Consultor imobiliário em A Nossa Chave Unipessoal, Lda - AMI: 16369
Comprar
Arrendar
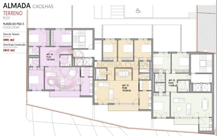
Área de terreno : 1001 m²
OPORTUNIDADE ÚNICA DE INVESTIMENTO! Terreno com 1.001 m² e PIP aprovado com uma área total de construção de 2.486,80 m² Ideal para investidores como também para quem procura desenvolver um projeto residencial de grande prestígio Este é composto por 12 apartamentos T3, todos eles com varandas, estacionamento subterrâneo e ainda um jardim privado exterior para usufruto dos residentes proporcionando um ambiente fantástico e harmonioso Nos andares superiores é possível disfrutar de uma deslumbrante vista sobre o Rio Tejo e do futuro Projeto ' Nova Cidade da Água ' a realizar na zona Ribeirinha de Cacilhas Com excelentes acessos para a Ponte 25 de Abril, IC20 Via Rápida para as diversas praias da Fonte da Telha e Costa de Caparica, A33, A2 e A38, além dos serviços fluviais da Transtejo e do Metro Sul do Tejo com destino a Universidade, Cacilhas, Pragal e Corroios sendo que estes dois últimos para a Estação de Comboios da Fertagus com vários destinos tais como Lisboa e Setúbal Próximo da Praça Gil Vicente e das Avenidas principais de Almada contando ainda com diversas Escolas, Universidades, Centro de Saúde, comércio, restaurantes e todo o tipo de serviços Ótimo para quem valoriza uma qualidade de vida por isso não deixe de Investir numa das melhores cidades para viver!... Para mais informações sobre o acesso ao este maravilhoso projeto detalhado, entre em contacto conosco através do telemóvel (telefone) Rui Gouveia para podermos explorar todas as possibilidades desta grande oportunidade Fazemos a gestão personalizada de todo o seu processo de financiamento, sempre com as melhores soluções do mercado ' A Chave do nosso sucesso é tornar o seu Sonho em Realidade!...'
AMI: 16369
Ref. Externa: TER_0173_1R
Id: 1708165
Inicie sessão para guardar este imóvel e aceder à sua lista de favoritos em qualquer dispositivo.
Área de terreno : 436 m²
Terreno com 436 m² a 10 minutos a pé da praia da Lagoa de Albufeira As infraestruturas estão todas pagas e a AUGI está a decorrer Foi requerido um direito à informação na Câmara Municipal de Sesimbra, no qual está previsto uma moradia isolada de 2 pisos com uma área de construção de 310 m² e uma área de implantação de 155 m² Excelente oportunidade de construir a sua moradia junto à praia Fazemos a gestão personalizada de todo o seu processo de financiamento, sempre com as melhores soluções do mercado 'A Chave do nosso sucesso é tornar o seu Sonho em Realidade!...'
AMI: 16369
Ref. Externa: TER_089P
Id: 1708164
Inicie sessão para guardar este imóvel e aceder à sua lista de favoritos em qualquer dispositivo.
3 Quartos
2 WCs
Área útil : 139 m²
O Sobreda Village a nascer no coração da Sobreda, em Almada é um edifício novo e moderno com uma construção de excelência e uma escolha cuidada de materiais de elevada qualidade que lhe vão proporcionar um agradável conforto Aqui encontra 12 apartamentos com tipologias T2, T2 Duplex, T3 e T3 Duplex, com áreas compreendidas entre os 71 e os 162 m² com estacionamento subterrâneo privativo e arrecadação desde 260.000€ a 395.000€ Este é um apartamento T3+1 Duplex Neste momento já só estão disponíveis tipologias T3 com suite e closet Conclusão prevista para 2026 Dispõem de acabamentos de alta qualidade e excelentes isolamentos acústicos e térmicos complementando com uma excelente exposição solar Todos os apartamentos foram projetados com um design moderno que privilegia a funcionalidade e garante o máximo de espaço e luz natural, salas espaçosas com cozinhas modernas abertas totalmente equipadas com a primeira linha da Teka (combinado, máquina de lavar louça, placa de indução, forno, micro-ondas, exaustor e máquina de lavar e secar roupa), ar condicionado Hair, tetos falsos com luzes embutidas, varandas onde poderá usufruir como espaço de refeições, ler um livro, ouvir o chilrear dos pássaros, sentir uma suave brisa fresca num ambiente verdadeiramente relaxante que o vai fazer esquecer da agitação da cidade Situado numa zona tranquila e aprazível provida de todo o tipo de serviços, Mercado Municipal da Sobreda, Lidl, Continente, colégios, escolas, universidades, centro de saúde, farmácias, restauração, Almada Fórum, Hospital Garcia de Orta, transportes públicos inclusive com paragem de autocarro com destino ás estação ferroviárias da Fertagus de Corroios, Pragal, Cacilhas e Universidade e uma ótima acessibilidade aos acessos à capital, IC20, A2, A33 Para quem é muito importante e gosta de cuidar da sua saúde e ter a sua prática desportiva ou os seus momentos de lazer e gosta de desfrutar da natureza este está ainda inserido perto de zonas verdes de recreação, que convidam e proporcionam a vivenciar bons momentos ao ar livre cheios de harmonia e serenidade sempre necessárias para quem vive o ritmo do dia a dia acelerado e nas imediações pode ainda visitar locais como : - Mata Nacional dos Medos e Arriba Fóssil (local de passagem da GR1 Caminho do Atlântico - Grande Rota Europeia) e local ideal para prática de bird watching e piqueniques em família - Lagoa de Albufeira (local onde impera o turismo balnear e a prática de desportos náuticos) - Clube de Campo Golfe Aroeira um paraíso para os entusiastas do golfe - Campos de Padel no Vitória Clube Quintinhas Entre muitos outros locais de interesse cultural e turístico Se aprecia ainda estar perto do mar e é amante dos desportos náuticos é aqui que pode viver pois está a poucos minutos onde a beleza do verde e o azul deslumbrantes do mar são premiados com as famosas e fantásticas praias de areia dourada da Fonte da Telha e da Costa da Caparica que hasteiam bandeira azul, símbolo de praia de alta qualidade de areal e água permitindo-lhe desfrutar do sol e do mar sempre que desejar Se procura um lar que combine tranquilidade junto ao mar, conforto, lazer e proximidade a com a vida urbana este é o ideal para si e para a sua família não perca a oportunidade de adquirir esta preciosidade que fará do seu sonho uma realidade e transformá-la no seu lar perfeito que lhe vai proporcionar uma qualidade de vida absolutamente fantástica! Não perca mais tempo e venha conhecer este projeto maravilhoso! Fazemos a gestão personalizada de todo o seu processo de financiamento, sempre com as melhores soluções do mercado 'A Chave do nosso sucesso é tornar o seu Sonho em Realidade!'
AMI: 16369
Ref. Externa: APA_0176R_A_3A
Id: 1624580
Inicie sessão para guardar este imóvel e aceder à sua lista de favoritos em qualquer dispositivo.
2 Quartos
1 WCs
Área útil : 70 m²
O Sobreda Village a nascer no coração da Sobreda, em Almada é um edifício novo e moderno com uma construção de excelência e uma escolha cuidada de materiais de elevada qualidade que lhe vão proporcionar um agradável conforto Aqui encontra 12 apartamentos com tipologias T2, T2 Duplex, T3 e T3 Duplex, com áreas compreendidas entre os 71 e os 162 m² e arrecadação desde 260.000€ a 395.000€ Conclusão prevista para 2026 Dispõem de acabamentos de alta qualidade e excelentes isolamentos acústicos e térmicos complementando com uma excelente exposição solar Todos os apartamentos foram projetados com um design moderno que privilegia a funcionalidade e garante o máximo de espaço e luz natural, salas espaçosas com cozinhas modernas abertas totalmente equipadas com a primeira linha da Teka (combinado, máquina de lavar louça, placa de indução, forno, micro-ondas, exaustor e máquina de lavar e secar roupa), ar condicionado Hair, tetos falsos com luzes embutidas, varandas onde poderá usufruir como espaço de refeições, ler um livro, ouvir o chilrear dos pássaros, sentir uma suave brisa fresca num ambiente verdadeiramente relaxante que o vai fazer esquecer da agitação da cidade Situado numa zona tranquila e aprazível provida de todo o tipo de serviços, Mercado Municipal da Sobreda, Lidl, Continente, colégios, escolas, universidades, centro de saúde, farmácias, restauração, Almada Fórum, Hospital Garcia de Orta, transportes públicos inclusive com paragem de autocarro com destino ás estação ferroviárias da Fertagus de Corroios, Pragal, Cacilhas e Universidade e uma ótima acessibilidade aos acessos à capital, IC20, A2, A33 Para quem é muito importante e gosta de cuidar da sua saúde e ter a sua prática desportiva ou os seus momentos de lazer e gosta de desfrutar da natureza este está ainda inserido perto de zonas verdes de recreação, que convidam e proporcionam a vivenciar bons momentos ao ar livre cheios de harmonia e serenidade sempre necessárias para quem vive o ritmo do dia a dia acelerado e nas imediações pode ainda visitar locais como : - Mata Nacional dos Medos e Arriba Fóssil (local de passagem da GR1 Caminho do Atlântico - Grande Rota Europeia) e local ideal para prática de bird watching e piqueniques em família - Lagoa de Albufeira (local onde impera o turismo balnear e a prática de desportos náuticos) - Clube de Campo Golfe Aroeira um paraíso para os entusiastas do golfe - Campos de Padel no Vitória Clube Quintinhas Entre muitos outros locais de interesse cultural e turístico Se aprecia ainda estar perto do mar e é amante dos desportos náuticos é aqui que pode viver pois está a poucos minutos onde a beleza do verde e o azul deslumbrantes do mar são premiados com as famosas e fantásticas praias de areia dourada da Fonte da Telha e da Costa da Caparica que hasteiam bandeira azul, símbolo de praia de alta qualidade de areal e água permitindo-lhe desfrutar do sol e do mar sempre que desejar Se procura um lar que combine tranquilidade junto ao mar, conforto, lazer e proximidade a com a vida urbana este é o ideal para si e para a sua família não perca a oportunidade de adquirir esta preciosidade que fará do seu sonho uma realidade e transformá-la no seu lar perfeito que lhe vai proporcionar uma qualidade de vida absolutamente fantástica! Não perca mais tempo e venha conhecer este projeto maravilhoso! Fazemos a gestão personalizada de todo o seu processo de financiamento, sempre com as melhores soluções do mercado 'A Chave do nosso sucesso é tornar o seu Sonho em Realidade!'
AMI: 16369
Ref. Externa: APA_0176R_A_RC
Id: 1624582
Inicie sessão para guardar este imóvel e aceder à sua lista de favoritos em qualquer dispositivo.
2 Quartos
1 WCs
Área útil : 63 m²
Apartamento T2 com logradouro na Quinta da Brieira no Centro da Charneca de Caparica numa zona muito tranquila Este magnifico apartamento foi alvo de uma remodelação de raiz a todos os níveis, onde foram utilizados materiais de elevada qualidade, dispondo ainda da cozinha completamente equipada com placa, forno, exaustor, micro-ondas, combinado, maquina de lavar loiça, maquina de lavar roupa e termo acumulador Logradouro com 17 m² onde poderá colocar uma churrasqueira e usufruir de um bom convívio com os amigos e como espaço de refeições Localizado a apenas 300m do McDonald's, transportes públicos ,continente, farmácias, restaurantes, bancos e próximo ao Minipreço, Pingo doce, KFC, escolas, colégios conceituados entre eles o Colégio do Vale, Mercado da Charneca, Parque Urbano das Quintinhas tendo ainda todos os principais serviços e todo o tipo de comércio Se gosta de estar perto do mar e é amante dos desportos náuticos é aqui que pode viver pois está á distancia de 1500m, apenas a 4 minutos de carro ou a 20 minutos a pé onde o verde e o azul do mar são premiados com as famosas e fantásticas praias da Fonte da Telha e da Costa da Caparica que hasteiam bandeira azul, símbolo de praia de alta qualidade de areal e água permitindo-lhe desfrutar do sol e do mar sempre que desejar Se procura um imóvel perto de zonas de lazer e de espaços preparados para a prática desportiva, este é o imóvel certo para si, uma vez que nas imediações do imóvel poderá visitar locais como : - Mata Nacional dos Medos e Arriba Fóssil (local de passagem da GR1 Caminho do Atlântico - Grande Rota Europeia) e local ideal para prática de bird watching e piqueniques em família - Lagoa de Albufeira (local onde impera o turismo balnear e a prática de desportos náuticos) - Clube de Campo Golfe Aroeira um paraíso para os entusiastas do golfe - Campos de Padel no Vitória Clube Quintinhas Entre muitos outros locais de interesse cultural e turístico Não perca a oportunidade de adquirir esta preciosidade que fará do seu sonho uma realidade e transformá-la no seu lar perfeito que lhe vai proporcionar uma qualidade de vida absolutamente fantástica! Fazemos a gestão personalizada de todo o seu processo de financiamento, sempre com as melhores soluções do mercado 'A Chave do nosso sucesso é tornar o seu Sonho em Realidade!'
AMI: 16369
Ref. Externa: APA_0175R
Id: 1624586
Inicie sessão para guardar este imóvel e aceder à sua lista de favoritos em qualquer dispositivo.
3 WCs
Área útil : 80 m²
Gostava de ter o seu próprio negócio? Então este é o espaço ideal para o concretizar... Trespasse para venda a 16.500 € O valor da renda não é vinculativo, carece de uma reunião com o proprietário para acordo de valores Localizado na Charneca de Caparica mesmo junto ao mercado municipal, tendo ainda ao seu redor os CTT, comércio e todo o tipo de serviços Esta Mercearia encontra-se em pleno funcionamento e com muito bom movimento de clientes Agende já a sua visita! Aguardamos por si Fazemos a gestão personalizada de todo o seu processo de financiamento, sempre com as melhores soluções do mercado 'A Chave do nosso sucesso é tornar o seu Sonho em Realidade!...'
AMI: 16369
Ref. Externa: COM_182R
Id: 1624583
Inicie sessão para guardar este imóvel e aceder à sua lista de favoritos em qualquer dispositivo.
Sob consulta
1 WCs
Área útil : 110 m²
Loja situada na Estrada Principal do centro da Charneca de Caparica Composta por cinco salas com um total de 110 m² Excelente localização Junto de comércio, transportes e todo o tipo de serviços A 5 minutos dos acessos rápidos, 7 minutos das praias Fazemos a gestão personalizada de todo o seu processo 'A Chave do nosso sucesso é tornar o seu Sonho em Realidade!...'
AMI: 16369
Ref. Externa: BOT_196R
Id: 1624581
Inicie sessão para guardar este imóvel e aceder à sua lista de favoritos em qualquer dispositivo.
3 Quartos
2 WCs
Área bruta : 105 m²
Moradia Térrea situada no Laranjeiro Ideal para famílias ou para investidores que procuram um ativo com potencial de rentabilidade Encontra-se em Propriedade Total ( sem Licença de habitação) Junto a todo o tipo de comércio, transportes e serviços Não perca esta oportunidade e agende já a sua visita! Fazemos a gestão personalizada de todo o seu processo de financiamento, sempre com as melhores soluções do mercado 'A Chave do nosso sucesso é tornar o seu Sonho em Realidade!...
AMI: 16369
Ref. Externa: CAS_0199R
Id: 1624578
Inicie sessão para guardar este imóvel e aceder à sua lista de favoritos em qualquer dispositivo.
3 Quartos
1 WCs
Área útil : 107 m²
O Sobreda Village a nascer no coração da Sobreda, em Almada é um edifício novo e moderno com uma construção de excelência e uma escolha cuidada de materiais de elevada qualidade que lhe vão proporcionar um agradável conforto Aqui encontra 12 apartamentos com tipologias T2, T2 Duplex, T3 e T3 Duplex, com áreas compreendidas entre os 71 e os 162 m² com estacionamento subterrâneo privativo e arrecadação desde 260.000€ a 395.000€ Conclusão prevista para 2026 Dispõem de acabamentos de alta qualidade e excelentes isolamentos acústicos e térmicos complementando com uma excelente exposição solar Todos os apartamentos foram projetados com um design moderno que privilegia a funcionalidade e garante o máximo de espaço e luz natural, salas espaçosas com cozinhas modernas abertas totalmente equipadas com a primeira linha da Teka (combinado, máquina de lavar louça, placa de indução, forno, micro-ondas, exaustor e máquina de lavar e secar roupa), ar condicionado Hair, tetos falsos com luzes embutidas, varandas onde poderá usufruir como espaço de refeições, ler um livro, ouvir o chilrear dos pássaros, sentir uma suave brisa fresca num ambiente verdadeiramente relaxante que o vai fazer esquecer da agitação da cidade Situado numa zona tranquila e aprazível provida de todo o tipo de serviços, Mercado Municipal da Sobreda, Lidl, Continente, colégios, escolas, universidades, centro de saúde, farmácias, restauração, Almada Fórum, Hospital Garcia de Orta, transportes públicos inclusive com paragem de autocarro com destino ás estação ferroviárias da Fertagus de Corroios, Pragal, Cacilhas e Universidade e uma ótima acessibilidade aos acessos à capital, IC20, A2, A33 Para quem é muito importante e gosta de cuidar da sua saúde e ter a sua prática desportiva ou os seus momentos de lazer e gosta de desfrutar da natureza este está ainda inserido perto de zonas verdes de recreação, que convidam e proporcionam a vivenciar bons momentos ao ar livre cheios de harmonia e serenidade sempre necessárias para quem vive o ritmo do dia a dia acelerado e nas imediações pode ainda visitar locais como : - Mata Nacional dos Medos e Arriba Fóssil (local de passagem da GR1 Caminho do Atlântico - Grande Rota Europeia) e local ideal para prática de bird watching e piqueniques em família - Lagoa de Albufeira (local onde impera o turismo balnear e a prática de desportos náuticos) - Clube de Campo Golfe Aroeira um paraíso para os entusiastas do golfe - Campos de Padel no Vitória Clube Quintinhas Entre muitos outros locais de interesse cultural e turístico Se aprecia ainda estar perto do mar e é amante dos desportos náuticos é aqui que pode viver pois está a poucos minutos onde a beleza do verde e o azul deslumbrantes do mar são premiados com as famosas e fantásticas praias de areia dourada da Fonte da Telha e da Costa da Caparica que hasteiam bandeira azul, símbolo de praia de alta qualidade de areal e água permitindo-lhe desfrutar do sol e do mar sempre que desejar Se procura um lar que combine tranquilidade junto ao mar, conforto, lazer e proximidade a com a vida urbana este é o ideal para si e para a sua família não perca a oportunidade de adquirir esta preciosidade que fará do seu sonho uma realidade e transformá-la no seu lar perfeito que lhe vai proporcionar uma qualidade de vida absolutamente fantástica! Não perca mais tempo e venha conhecer este projeto maravilhoso! Fazemos a gestão personalizada de todo o seu processo de financiamento, sempre com as melhores soluções do mercado 'A Chave do nosso sucesso é tornar o seu Sonho em Realidade!'
AMI: 16369
Ref. Externa: APA_0176R_A_3
Id: 1624579
Inicie sessão para guardar este imóvel e aceder à sua lista de favoritos em qualquer dispositivo.
3 Quartos
1 WCs
Área bruta : 136 m²
Moradia T3 + Terraço em Ribafria para remodelar Já com projeto aprovado Esta bonita povoação proporciona contrastes dignos à vista de quem a visita, desde a imagem das cerejeiras em flor do Vale de Ribafria na primavera são a imagem que melhor caracteriza este lugar, o verde a anunciar a generosidade do vinho uma paisagem vinhateira única no horizonte e dos trigos no verão, o amarelo acastanhado nas encostas, nos valados e nos cumes, transformando a paisagem num espetáculo esplêndido no outono e no inverno a desnudar as terras, mostrando outra beleza sem condimentos, a par da qual existem ainda fantásticos bosques de Carvalho e Sobreiro, que alimentam micro habitats de pequenas comunidades de aves e pequenos mamíferos Investimento que não pode perder seja para viver, para alojamento turístico, primeira habitação, casa de fim de semana ou férias numa zona sossegada e muito soalheira onde pode desfrutar de toda esta maravilha vivendo ou passando os tempos livres numa zona envolvente rural e tranquila... Ouvir o chilrear dos passarinhos, sentir o cheiro da natureza soprando uma suave brisa fresca num ambiente verdadeiramente relaxante que concerteza o vai fazer esquecer da agitação da cidade... Com bons acessos e próxima da auto estrada Apenas 5 km da vila de Sobral de Monte Agraço, com comércio, serviços e escolas, 8 km de Arruda dos Vinhos 9 km de Alenquer A 23 km da cidade de Torres Vedras, 30 km das praias e 45 km de Lisboa Venha conhecer e apaixonar-se por este ambiente verdadeiramente extraordinário... Fazemos a gestão personalizada de todo o seu processo de financiamento, sempre com as melhores soluções do mercado 'A Chave do nosso sucesso é tornar o seu Sonho em Realidade!...'
AMI: 16369
Ref. Externa: CAS_181R
Id: 1624575
Inicie sessão para guardar este imóvel e aceder à sua lista de favoritos em qualquer dispositivo.
187.500 €
2 Quartos
1 WCs
Área útil : 74 m²
Apartamento T2+1 situado na Rua General Humberto Delgado - Fogueteiro 3º andar sem elevador Cozinha equipada com placa, forno, máquina de lavar roupa e termoacumulador Marquise Vista para a Baía do Seixal Junto a todo o tipo de comércio, serviços e transportes Agende já a sua visita! Fazemos a gestão personalizada de todo o seu processo de financiamento, sempre com as melhores soluções do mercado 'A Chave do nosso sucesso é tornar o seu Sonho em Realidade!...'
AMI: 16369
Ref. Externa: APA_0191R
Id: 1624577
Inicie sessão para guardar este imóvel e aceder à sua lista de favoritos em qualquer dispositivo.
Área de terreno : 788 m²
Excelente Oportunidade Terreno com 787,50 m² no Centro da Charneca de Caparica Terreno destacado onde permite a construção de duas moradias isoladas de 2 pisos cada uma com160 m² de área de construção mais cave e garagem, onde cada lote ficará com 393,75 m² Todas as infraestruturas estão pagas e Alvará de Loteamento que permite avançar para construção com comunicação prévia Localizado junto a todos os principais serviços, primando por estar perto do McDonald's, Continente, Minipreço, Pingo doce, Lidl, KFC, tendo ainda todo o tipo de comércio, mercearias, restaurantes, farmácias, bancos, escolas, colégios conceituados entre eles o Colégio do Vale, Mercado da Charneca, Parque Urbano das Quintinhas Se gosta de estar perto do mar e é amante dos desportos náuticos é aqui que pode viver pois está apenas a 7 minutos de carro onde o verde e o azul do mar são premiados com as famosas e fantásticas praias da Fonte da Telha e da Costa da Caparica que hasteiam bandeira azul, símbolo de praia de alta qualidade de areal e água permitindo-lhe desfrutar do sol e do mar sempre que desejar Se procura ainda estar perto de zonas de lazer e de espaços preparados para a prática desportiva, este é o imóvel certo para si, uma vez que nas imediações do imóvel poderá visitar locais como : - Mata Nacional dos Medos e Arriba Fóssil (local de passagem da GR1 Caminho do Atlântico - Grande Rota Europeia) e local ideal para prática de bird watching e piqueniques em família - Lagoa de Albufeira (local onde impera o turismo balnear e a prática de desportos náuticos) - Clube de Campo Golfe Aroeira um paraíso para os entusiastas do golfe Entre muitos outros locais de interesse cultural e turístico Fazemos a gestão personalizada de todo o seu processo de financiamento, sempre com as melhores soluções do mercado ' A Chave do nosso sucesso é tornar o seu Sonho em Realidade!...
AMI: 16369
Ref. Externa: 0200R
Id: 1624576
Inicie sessão para guardar este imóvel e aceder à sua lista de favoritos em qualquer dispositivo.
4 Quartos
3 WCs
Área bruta : 206 m²
Deixe-se encantar e apaixonar por esta maravilhosa Moradia isolada térrea T4+1 com ótimas áreas e em excelente estado de conservação com uma boa qualidade de materiais e de um extremo cuidado nos seus acabamentos personalizados tornando-o num imóvel único...espaçoso e ideal para uma família que procura um novo e aconchegante lar...proporcionando um toque de elegância e um estilo de vida de qualidade Inserida num lote com 308 m² na Charneca da Caparica uma zona de excelência e eleição para viver com o usufruto da proximidade de uma capital cheia de vida sendo que fica a 20 km do centro de Lisboa 4 quartos Uma suite com wc, 2 Wc´s Duas salas uma com lareira com recuperador de calor Arrecadação Lavandaria Ar condicionado Encontramos uma cozinha inspirada na vida simples e no charme do interior europeu, onde a estética provençal se revela através de elementos rústicos e românticos, criando um ambiente simultaneamente acolhedor e elegante Um design delicado e cheio de personalidade, de charme irresistível, que convida a viver cada detalhe com tranquilidade, contando ainda com despensa e anexo No primeiro andar temos um bom terraço e uma zona de arrumos Um espaçoso jardim luxuriante com rega automática com flores lindas e diversas árvores de fruto, que convida a momentos de relaxamento ao ar livre, perfeito para atividades e entretenimento devido à sua privacidade mesmo estando no centro desta vila maravilhosa um espaço onde poderá usufruir de um bom convívio e lazer com os amigos, ler um livro num ambiente verdadeiramente relaxante e acolhedor Tem ainda uma zona com churrasqueira e onde tem a possibilidade de colocar uma piscina na qual pode oferecer a si mesmo o seu oásis particular para se refrescar nos dias de calor... Portão de garagem automático Localizado junto a todos os principais serviços, McDonald's, Continente, Minipreço, Pingo doce, Lidl, KFC, tendo ainda todo o tipo de comércio, mercearias, restaurantes, farmácias, bancos, escolas, colégios conceituados entre eles o Colégio do Vale, Mercado da Charneca, Parque Urbano das Quintinhas Se gosta de estar perto do mar é aqui que pode viver pois está apenas a 7 minutos de carro onde o verde e o azul do mar são premiados com as famosas e fantásticas praias da Fonte da Telha e da Costa da Caparica que hasteiam bandeira azul, símbolo de praia de alta qualidade de areal e água permitindo-lhe desfrutar do sol e do mar sempre que desejar Se procura um imóvel perto de zonas de lazer e de espaços preparados para a prática desportiva, este é o imóvel certo para si, uma vez que nas imediações do imóvel poderá visitar locais como : - Mata Nacional dos Medos e Arriba Fóssil (local de passagem da GR1 Caminho do Atlântico - Grande Rota Europeia) e local ideal para prática de bird watching e piqueniques em família - Lagoa de Albufeira (local onde impera o turismo balnear e a prática de desportos náuticos) - Clube de Campo Golfe Aroeira um paraíso para os entusiastas do golfe Entre muitos outros locais de interesse cultural e turístico Não perca a oportunidade de adquirir esta preciosidade que fará do seu sonho uma realidade e transformá-la no seu lar perfeito que lhe vai proporcionar uma qualidade de vida absolutamente fantástica! Fazemos a gestão personalizada de todo o seu processo de financiamento, sempre com as melhores soluções do mercado 'A Chave do nosso sucesso é tornar o seu Sonho em Realidade!'
AMI: 16369
Ref. Externa: HAB_0201R
Id: 1584930
Inicie sessão para guardar este imóvel e aceder à sua lista de favoritos em qualquer dispositivo.
3 Quartos
2 WCs
Área útil : 115 m²
O Sobreda Village a nascer no coração da Sobreda, em Almada é um edifício novo e moderno com uma construção de excelência e uma escolha cuidada de materiais de elevada qualidade que lhe vão proporcionar um agradável conforto Aqui encontra 12 apartamentos com tipologias T2, T2 Duplex, T3 e T3 Duplex, com áreas compreendidas entre os 71 e os 162 m² com estacionamento subterrâneo privativo e arrecadação desde 260.000€ a 395.000€ Este é um apartamento T3 com parqueamento e arrecadação Conclusão prevista para 2026 Dispõem de acabamentos de alta qualidade e excelentes isolamentos acústicos e térmicos complementando com uma excelente exposição solar Todos os apartamentos foram projetados com um design moderno que privilegia a funcionalidade e garante o máximo de espaço e luz natural, salas espaçosas com cozinhas modernas abertas totalmente equipadas com a primeira linha da Teka (combinado, máquina de lavar louça, placa de indução, forno, micro-ondas, exaustor e máquina de lavar e secar roupa), ar condicionado Hair, tetos falsos com luzes embutidas, varandas onde poderá usufruir como espaço de refeições, ler um livro, ouvir o chilrear dos pássaros, sentir uma suave brisa fresca num ambiente verdadeiramente relaxante que o vai fazer esquecer da agitação da cidade Situado numa zona tranquila e aprazível provida de todo o tipo de serviços, Mercado Municipal da Sobreda, Lidl, Continente, colégios, escolas, universidades, centro de saúde, farmácias, restauração, Almada Fórum, Hospital Garcia de Orta, transportes públicos inclusive com paragem de autocarro com destino ás estação ferroviárias da Fertagus de Corroios, Pragal, Cacilhas e Universidade e uma ótima acessibilidade aos acessos à capital, IC20, A2, A33 Para quem é muito importante e gosta de cuidar da sua saúde e ter a sua prática desportiva ou os seus momentos de lazer e gosta de desfrutar da natureza este está ainda inserido perto de zonas verdes de recreação, que convidam e proporcionam a vivenciar bons momentos ao ar livre cheios de harmonia e serenidade sempre necessárias para quem vive o ritmo do dia a dia acelerado e nas imediações pode ainda visitar locais como : - Mata Nacional dos Medos e Arriba Fóssil (local de passagem da GR1 Caminho do Atlântico - Grande Rota Europeia) e local ideal para prática de bird watching e piqueniques em família - Lagoa de Albufeira (local onde impera o turismo balnear e a prática de desportos náuticos) - Clube de Campo Golfe Aroeira um paraíso para os entusiastas do golfe - Campos de Padel no Vitória Clube Quintinhas Entre muitos outros locais de interesse cultural e turístico Se aprecia ainda estar perto do mar e é amante dos desportos náuticos é aqui que pode viver pois está a poucos minutos onde a beleza do verde e o azul deslumbrantes do mar são premiados com as famosas e fantásticas praias de areia dourada da Fonte da Telha e da Costa da Caparica que hasteiam bandeira azul, símbolo de praia de alta qualidade de areal e água permitindo-lhe desfrutar do sol e do mar sempre que desejar Se procura um lar que combine tranquilidade junto ao mar, conforto, lazer e proximidade a com a vida urbana este é o ideal para si e para a sua família não perca a oportunidade de adquirir esta preciosidade que fará do seu sonho uma realidade e transformá-la no seu lar perfeito que lhe vai proporcionar uma qualidade de vida absolutamente fantástica! Não perca mais tempo e venha conhecer este projeto maravilhoso! Fazemos a gestão personalizada de todo o seu processo de financiamento, sempre com as melhores soluções do mercado 'A Chave do nosso sucesso é tornar o seu Sonho em Realidade!'
AMI: 16369
Ref. Externa: APA_0176R_2A
Id: 1413578
Inicie sessão para guardar este imóvel e aceder à sua lista de favoritos em qualquer dispositivo.
2 Quartos
1 WCs
Área útil : 88 m²
O Sobreda Village a nascer no coração da Sobreda, em Almada é um edifício novo e moderno com uma construção de excelência e uma escolha cuidada de materiais de elevada qualidade que lhe vão proporcionar um agradável conforto Aqui encontra 12 apartamentos com tipologias T2, T2 Duplex, T3 e T3 Duplex, com áreas compreendidas entre os 71 e os 162 m² com estacionamento subterrâneo privativo e arrecadação desde 260.000€ a 395.000€ Conclusão prevista para 2026 Dispõem de acabamentos de alta qualidade e excelentes isolamentos acústicos e térmicos complementando com uma excelente exposição solar Todos os apartamentos foram projetados com um design moderno que privilegia a funcionalidade e garante o máximo de espaço e luz natural, salas espaçosas com cozinhas modernas abertas totalmente equipadas com a primeira linha da Teka (combinado, máquina de lavar louça, placa de indução, forno, micro-ondas, exaustor e máquina de lavar e secar roupa), ar condicionado Hair, tetos falsos com luzes embutidas, varandas onde poderá usufruir como espaço de refeições, ler um livro, ouvir o chilrear dos pássaros, sentir uma suave brisa fresca num ambiente verdadeiramente relaxante que o vai fazer esquecer da agitação da cidade Situado numa zona tranquila e aprazível provida de todo o tipo de serviços, Mercado Municipal da Sobreda, Lidl, Continente, colégios, escolas, universidades, centro de saúde, farmácias, restauração, Almada Fórum, Hospital Garcia de Orta, transportes públicos inclusive com paragem de autocarro com destino ás estação ferroviárias da Fertagus de Corroios, Pragal, Cacilhas e Universidade e uma ótima acessibilidade aos acessos à capital, IC20, A2, A33 Para quem é muito importante e gosta de cuidar da sua saúde e ter a sua prática desportiva ou os seus momentos de lazer e gosta de desfrutar da natureza este está ainda inserido perto de zonas verdes de recreação, que convidam e proporcionam a vivenciar bons momentos ao ar livre cheios de harmonia e serenidade sempre necessárias para quem vive o ritmo do dia a dia acelerado e nas imediações pode ainda visitar locais como : - Mata Nacional dos Medos e Arriba Fóssil (local de passagem da GR1 Caminho do Atlântico - Grande Rota Europeia) e local ideal para prática de bird watching e piqueniques em família - Lagoa de Albufeira (local onde impera o turismo balnear e a prática de desportos náuticos) - Clube de Campo Golfe Aroeira um paraíso para os entusiastas do golfe - Campos de Padel no Vitória Clube Quintinhas Entre muitos outros locais de interesse cultural e turístico Se aprecia ainda estar perto do mar e é amante dos desportos náuticos é aqui que pode viver pois está a poucos minutos onde a beleza do verde e o azul deslumbrantes do mar são premiados com as famosas e fantásticas praias de areia dourada da Fonte da Telha e da Costa da Caparica que hasteiam bandeira azul, símbolo de praia de alta qualidade de areal e água permitindo-lhe desfrutar do sol e do mar sempre que desejar Se procura um lar que combine tranquilidade junto ao mar, conforto, lazer e proximidade a com a vida urbana este é o ideal para si e para a sua família não perca a oportunidade de adquirir esta preciosidade que fará do seu sonho uma realidade e transformá-la no seu lar perfeito que lhe vai proporcionar uma qualidade de vida absolutamente fantástica! Não perca mais tempo e venha conhecer este projeto maravilhoso! Fazemos a gestão personalizada de todo o seu processo de financiamento, sempre com as melhores soluções do mercado 'A Chave do nosso sucesso é tornar o seu Sonho em Realidade!'
AMI: 16369
Ref. Externa: APA_0176R_A_1
Id: 1342553
Inicie sessão para guardar este imóvel e aceder à sua lista de favoritos em qualquer dispositivo.
Área bruta : 100 m²
Moradia com 2 pisos +1 arrecadação com casa de banho + 1 fachada com ruína São 3 fracções em separado mas vendidas em conjunto A sua localização nesta aldeia simpática e sossegada prima por estar a 300m da Barragem de Bouça Cova um refúgio natural constituído por uma área de 68 hectares onde esta linha de água da Ribeira de Cerejo constituí um local de grande beleza paisagística, com uma grande diversidade de fauna e flora e praticar pesca desportiva e a possibilidade de se banhar no verão...ficando ainda a cerca de uma hora e meia da deslumbrante Serra da Estrela 1 moradia pequena com 2 pisos Área de implantação no terreno: 35,0 m² Área bruta: 50,0 m² Tipologia: 1 divisão (piso 0) (25 m²) (piso é solo em bruto) 1 divisão com corredor lateral (piso 1) (20 m²) (piso de madeira/mau estado) 1 cozinha/bancada com torneira (5 m²) (piso de madeira/mau estado) 2 anexos (artigos independentes) Anexo 1 / artigo urbano edificado (arrecadação com casa de banho): Área de implantação no terreno: 30,0 m² Área bruta: 30,0 m² Tipologia: 1 divisão/estúdio/arrecadação com casa de banho (piso 0) (30 m²) (piso é solo em bruto/tem telhado) Anexo 2 / artigo urbano edificado (fachada com ruína): Área de implantação no terreno: 20,0 m² Área bruta: 20,0 m² Tipologia: 1 fachada, sem interior (piso 0) (20 m²) (piso é solo em bruto) Oportunidade para investimento, alojamento local, primeira habitação, casa de fim de semana ou férias Venha morar aqui onde merece especial referência o grande interesse turístico que é também local de grande beleza a Albufeira de Bouça Cova, situada a poente da aldeia de Bouça Cova onde na envolvente da albufeira a paisagem apresenta-se dominada por matas de pinheiro-bravo e campos agrícolas, e nas margens, de pendentes suaves e escassa vegetação ripícola, sobressaem blocos graníticos A Albufeira constitui um dos locais mais relevantes do distrito da Guarda para a observação de aves, considerando-se as espécies aquáticas as mais bem representadas Neste grupo destaca-se a nidificação do pato-real, mergulhão-de-crista, borrelho-pequeno-de-coleira e cegonha-branca No inverno observam-se ainda concentrações importantes a nível regional de garça-cinzenta, corvo-marinho-de-crista, mergulhão-pequeno e maçarico-bique-bique Neste período e durante as migrações, a área possui também importância para a passagem de garças, anatídeos, e límicolas, este último grupo com um total de dez espécies registadas Nas zonas envolventes da albufeira destaca-se ainda a observação frequente de pega-azul, pardal-francês e cia e, no período estival, do papa-figos e abelharuco Desfrute de toda esta maravilha vivendo ou passando os tempos livres numa zona envolvente rural e tranquila... Ouvir o chilrear dos pássaros, sentir o cheiro da natureza e uma suave brisa fresca num ambiente verdadeiramente relaxante que o vai fazer esquecer da agitação da cidade... Conheça sem compromisso...apaixone-se e idealize! Fazemos a gestão personalizada de todo o seu processo de financiamento, sempre com as melhores soluções do mercado 'A Chave do nosso sucesso é tornar o seu Sonho em Realidade!...'
AMI: 16369
Ref. Externa: CAS_0180R
Id: 1143011
Inicie sessão para guardar este imóvel e aceder à sua lista de favoritos em qualquer dispositivo.
3 Quartos
2 WCs
Área útil : 112 m²
O Sobreda Village a nascer no coração da Sobreda, em Almada é um edifício novo e moderno com uma construção de excelência e uma escolha cuidada de materiais de elevada qualidade que lhe vão proporcionar um agradável conforto Aqui encontra 12 apartamentos com tipologias T2, T2 Duplex, T3 e T3 Duplex, com áreas compreendidas entre os 71 e os 162 m² com estacionamento subterrâneo privativo e arrecadação desde 260.000€ a 395.000€ Neste momento já só estão disponíveis tipologias T3 com suite e closet Conclusão prevista para 2026 Dispõem de acabamentos de alta qualidade e excelentes isolamentos acústicos e térmicos complementando com uma excelente exposição solar Todos os apartamentos foram projetados com um design moderno que privilegia a funcionalidade e garante o máximo de espaço e luz natural, salas espaçosas com cozinhas modernas abertas totalmente equipadas com a primeira linha da Teka (combinado, máquina de lavar louça, placa de indução, forno, micro-ondas, exaustor e máquina de lavar e secar roupa), ar condicionado Hair, tetos falsos com luzes embutidas, varandas onde poderá usufruir como espaço de refeições, ler um livro, ouvir o chilrear dos pássaros, sentir uma suave brisa fresca num ambiente verdadeiramente relaxante que o vai fazer esquecer da agitação da cidade Situado numa zona tranquila e aprazível provida de todo o tipo de serviços, Mercado Municipal da Sobreda, Lidl, Continente, colégios, escolas, universidades, centro de saúde, farmácias, restauração, Almada Fórum, Hospital Garcia de Orta, transportes públicos inclusive com paragem de autocarro com destino ás estação ferroviárias da Fertagus de Corroios, Pragal, Cacilhas e Universidade e uma ótima acessibilidade aos acessos à capital, IC20, A2, A33 Para quem é muito importante e gosta de cuidar da sua saúde e ter a sua prática desportiva ou os seus momentos de lazer e gosta de desfrutar da natureza este está ainda inserido perto de zonas verdes de recreação, que convidam e proporcionam a vivenciar bons momentos ao ar livre cheios de harmonia e serenidade sempre necessárias para quem vive o ritmo do dia a dia acelerado e nas imediações pode ainda visitar locais como : - Mata Nacional dos Medos e Arriba Fóssil (local de passagem da GR1 Caminho do Atlântico - Grande Rota Europeia) e local ideal para prática de bird watching e piqueniques em família - Lagoa de Albufeira (local onde impera o turismo balnear e a prática de desportos náuticos) - Clube de Campo Golfe Aroeira um paraíso para os entusiastas do golfe - Campos de Padel no Vitória Clube Quintinhas Entre muitos outros locais de interesse cultural e turístico Se aprecia ainda estar perto do mar e é amante dos desportos náuticos é aqui que pode viver pois está a poucos minutos onde a beleza do verde e o azul deslumbrantes do mar são premiados com as famosas e fantásticas praias de areia dourada da Fonte da Telha e da Costa da Caparica que hasteiam bandeira azul, símbolo de praia de alta qualidade de areal e água permitindo-lhe desfrutar do sol e do mar sempre que desejar Se procura um lar que combine tranquilidade junto ao mar, conforto, lazer e proximidade a com a vida urbana este é o ideal para si e para a sua família não perca a oportunidade de adquirir esta preciosidade que fará do seu sonho uma realidade e transformá-la no seu lar perfeito que lhe vai proporcionar uma qualidade de vida absolutamente fantástica! Não perca mais tempo e venha conhecer este projeto maravilhoso! Fazemos a gestão personalizada de todo o seu processo de financiamento, sempre com as melhores soluções do mercado 'A Chave do nosso sucesso é tornar o seu Sonho em Realidade!'
AMI: 16369
Ref. Externa: APA_0176R_A_1A
Id: 1143008
Inicie sessão para guardar este imóvel e aceder à sua lista de favoritos em qualquer dispositivo.
Sob consulta
Área útil : 377 m²
Prédio totalmente devoluto de pessoas e bens Actualmente com 377 m² de área bruta de construção 5 fracções habitacionais e um loja Projecto de Arquitectura aprovado pela DGPC para construção de 9 fracções habitacionais de diferentes tipologias, incluindo um duplex com vista rio (a zona do quarto com vista frontal de rio) As estruturas do prédio encontram-se em bom estado de conservação Possui licença de Alojamento Local e Hospedagem transmissível na venda (após obra será necessário requerer uma nova licença) Próximo das Janelas Verdes, Avenida 24 de Julho, Clínica CUF Infante Santo e da empresa Teleperformance COMPOSIÇÃO ACTUAL DO IMÓVEL Descrição das fracções entrada pela Calçada da Pampulha: * R/C - Loja com 34,5 m² * 1º andar - T2 com 77 m² * 2º andar - T2 com 83 m² * 3º andar - T3 com 103 m² Descrição das fracções entrada pela Travessa dos Brunos: * R/C - T1 com 41 m² * 1º andar - T1 com 40 m² ÁREA TOTAL: 377 m² COMPOSIÇÃO DO IMÓVEL COM OBRA Descrição das fracções entrada pela Calçada da Pampulha: * R/C - T0+1 com 34 m² (antiga loja) * 1º andar - T0 com 38 m² (1º D) + T1 com 38 m² (1º E) * 2º andar - T0+1 com 35 m² (2º D) + T1 com 39 m² (2º E) * 3º andar - T1 com 55 m² Duplex (3º D) + T1 com 35m² vista rio (3º E) Descrição das fracções entrada pela Travessa dos Brunos: * R/C - T0+1 com 39 m² * 1º andar - T0+1 com 41 m² ÁREA TOTAL: 405 m² EXCELENTE OPORTUNIDADE PARA INVESTIDORES! Fazemos a gestão personalizada de todo o seu processo de financiamento, sempre com as melhores soluções do mercado 'A Chave do nosso sucesso é tornar o seu Sonho em Realidade!...' *** Trabalhamos para assegurar a nossa saúde e principalmente a saúde dos nossos clientes Sendo que o imóvel se encontra devoluto, pode ser visitado, cumprindo o protocolo de contingência em visitas, de acordo com as recomendações da DGS
AMI: 16369
Ref. Externa: EDI_065
Id: 1143005
Inicie sessão para guardar este imóvel e aceder à sua lista de favoritos em qualquer dispositivo.
Sob consulta
1 Quartos
1 WCs
Área útil : 50 m²
Apartamento T1 novo inserido num prédio que foi totalmente reconstruído e que possui um novo Licenciamento e Garantia de 5 anos e com acabamentos de muito bom gosto e de qualidade que o presenteará todos os dias com uma vista fantástica sobre o rio Tejo e o Castelo de S. Jorge Cozinha totalmente equipada, com placa, forno, exaustor, micro-ondas, combinado, termoacumulador, máquinas de lavar e secar roupa e de loiça O apartamento está equipado também com ar condicionado Varanda e um varandim Dada a sua localização extraordinariamente central, encontra-se a curta distância a pé de vários pontos de referência social e cultural, a 210 m do Martim Moniz, 1,3Km Castelo de S. Jorge, 500 m do Jardim do Torel, 1.1 Km Miradouro Senhora do Monte, 1.3 Km Cais das Colunas, Rio Tejo Fazemos a gestão personalizada de todo o seu processo de financiamento, sempre com as melhores soluções do mercado 'A Chave do nosso sucesso é tornar o seu Sonho em Realidade!...' *** Trabalhamos para assegurar a nossa saúde e principalmente a saúde dos nossos clientes Sendo que o imóvel, pode ser visitado, cumprindo o protocolo de contingência em visitas, de acordo com as recomendações da DGS
AMI: 16369
Ref. Externa: APA_091D
Id: 1143004
Inicie sessão para guardar este imóvel e aceder à sua lista de favoritos em qualquer dispositivo.
5 Quartos
5 WCs
Área bruta : 483 m²
Apaixone-se por esta maravilhosa Moradia em excelente estado de conservação com uma elevada qualidade de materiais nobres e um extremo cuidado nos seus acabamentos tornando-a num imóvel único... Inserida na Herdade da Aroeira uma zona preservada com portaria e segurança 24 horas por dia, a 25 km do centro de Lisboa e a apenas a 600 metros da praia, sendo o maior complexo residencial e de golfe da Grande Lisboa, 350 hectares, milhares de pinheiros e vários lagos usufruindo de um microclima temperado... Dispõe de: Sala de Estar com 50 m² com lareira e recuperador de calor Sala de Jantar com 20 m² Cozinha com 19 m² WC social com banheira de hidromassagem Master Suite com 40,5 m² Três magníficas suites com armários embutidos Águas furtadas com um compartimento para arrumos e um quarto extra Lavandaria Salão de jogos Garagem com capacidade para dois carros Estacionamento coberto para 4 viaturas Tem ainda: Todas as portas, roupeiros e cozinha em Madeira de Carvalho Francês Pedra Natural em todo o piso Pré-instalação de Ar Condicionado Aquecimento Central Caixilharia em PVC com vidro duplo e sistema Anti-Bala Isolamento com Lã de Rocha Estores elétricos com isolamento térmico Isolamento acústico No exterior temos uma magnífica exposição solar, piscina, churrasqueira para um bom convívio com os amigos, um belíssimo jardim onde poderá usufruir como espaço de refeições, ler um livro, ouvir o chilrear dos pássaros, sentir o cheiro da natureza e uma suave brisa fresca num ambiente verdadeiramente relaxante com uma privilegiada privacidade que o vai fazer esquecer da agitação da cidade... Rega automática Furo Nesta extraordinária Herdade, encontra ainda de 2 campos de golfe de campeonato de 18 buracos, escola de golfe, um acolhedor club house com snack-bar, bar e loja de golfe, piscina tropical, quatro campos de ténis, parque infantil, zona comercial e um hotelnum raio de 1000 metros tem 2 Hipermercados, uma Estação de Serviço aberta 24 horas/dia e a cinco minutos de carro da praia da Fonte da Telha Estas características transformam a Herdade da Aroeira num local de eleição quer para viver, quer para umas merecidas férias onde a prática do golfe, o lazer e o contacto com a natureza não impedem, pela proximidade, o usufruto de uma capital cheia de vidaFaça desta maravilhosa oportunidade...a Sua Casa! Venha visitarapaixone-sedesfrute da tranquilidade do campo e de uma luxuosa experiência dos Campos de Golf da Aroeira! Fazemos a gestão personalizada de todo o seu processo de financiamento, sempre com as melhores soluções do mercado 'A Chave do nosso sucesso é tornar o seu Sonho em Realidade!...' *** Trabalhamos para assegurar a nossa saúde e principalmente a saúde dos nossos clientes Sendo que o imóvel, pode ser visitado, cumprindo o protocolo de contingência em visitas, de acordo om as recomendações da DGS
AMI: 16369
Ref. Externa: HAB_081R
Id: 1143003
Inicie sessão para guardar este imóvel e aceder à sua lista de favoritos em qualquer dispositivo.
Inicie sessão para ocultar este imóvel das suas pesquisas e manter a sua lista de resultados organizada.
A Nossa Chave Real Estate
Consultor imobiliário em A Nossa Chave Unipessoal, Lda - AMI: 16369
Compre créditos para poder destacar os seus imóveis! Desta forma eles são os primeiros a aparecer nas pesquisas e têm uma maior chance de serem vistos pelos utilizadores.
© Copyright 2023 | CASACERTA. All rights reserved
Guardar favoritos
Este imóvel foi guardados nos seus favoritos com sucesso.
Para poder guardar pesquisa deverá ter a sua sessão iniciada.
Caso não tenha uma conta, deverá criar uma.
A sua pesquisa foi guardada com sucesso!
Este site utiliza cookies. Ao navegar no site estará a consentir a sua utilização.
Para mais informações sobre os cookies pode consultar a
política de privacidade.