Consultor imobiliário em IAD Holding - AMI: 11220
Comprar
Arrendar
1.500.000 €
Área útil : 2536 m²
Edifício para reabilitação, com projeto aprovado pelas várias entidades competentes, para uma Estrutura Residencial para Pessoas ldosas (ERPI) constituída por três pisos acima da cota de soleira e espaços exteriores. Com uma Área Bruta de Construção de 2.563, 14 m2, o imóvel está implantado num terreno com 3.630 m2, podendo aumentar-se a sua volumetria. Encontra-se servido por arruamento público de fácil acesso, dispondo de PT privativo e todas as infraestruturas necessárias ao seu uso. Está situado na charmosa vila da Lourinhã, junto à Estrada Nacional, perto de todo o tipo de comércio e serviços, encontrando-se apenas a 4 km da praia, a 17 km do Bombarral e de Peniche, a 18 km de Torres Vedras, a 29 km de Óbidos, a 34 km de Caldas da Rainha e a 60 km de Lisboa. O edifício apresenta também um grande potencial para outros tipos de atividade e usos. O PROJETO: A Residência Sénior caracteriza-se por uma arquitetura contemporânea, tendo sido pensada de modo a otimizar a funcionalidade e o conforto, assim como o melhor aproveitamento do espaço exterior, proporcionado pelas de áreas de lazer ao ar livre que rodeiam o edifício e que se encontram delimitadas de modo a assegurar liberdade, mas também segurança e privacidade dos utentes. Por outro lado, a sua localização estratégica, permite aos residentes mais autónomos poderem deslocar-se pela vila sem dificuldade. Foi concebida para ter 40 quartos e 79 camas, distribuídas da seguinte forma: 23 quartos duplos (57,50% da capacidade total), 9 quartos individuais, sendo um deles de casal, (22,50% da capacidade total) e 8 quartos triplos com instalação sanitária privativa (20% da capacidade total). Área de Construção: 2.355,80m2 Índice de Construção: 0,65 Nº Pisos Acima da Soleira: 3 Cércea: 7,85 m Na última década, tem-se verificado um forte crescimento e uma importância crescente da Lourinhã no panorama turístico e residencial da Costa Oeste e nacional, sendo de fulcral importância a criação de serviços e camas na área da acomodação sénior, face à limitada oferta existente, confirmando a grande pertinência deste projeto. Sem dúvida, uma excelente oportunidade de investimento, em zona prime, com elevado impacto social e económico! Agendamos uma reunião ou visita ao local? #ref: 144637
AMI: 11220
Ref. Externa: 144637
Id: 1593437
Inicie sessão para guardar este imóvel e aceder à sua lista de favoritos em qualquer dispositivo.
3 Quartos
2 WCs
Área útil : 115 m²
O PRIVILÉGIO DE VIVER A POUCOS METROS DO MAR, NUM MODERNO APARTAMENTO A ESTREAR Imagine acordar todos os dias com a brisa do Atlântico e a luz natural a entrar pelas janelas, tendo o privilégio de poder ir a pé para a praia. Este moderno e luminoso apartamento T3 com 115 m2, oferece-lhe essa qualidade de vida que tanto deseja. Está localizado numa zona tranquila da Consolação, apenas a 500 metros da praia, contígua às dos Supertubos e Molhe Leste, famosas pela sua beleza natural e pelas propriedades terapêuticas (ricas em iodo). Inserido num edifício contemporâneo com apenas 5 apartamentos, este apartamento destaca-se pela exclusividade, qualidade construtiva e conforto, estando localizado ao nível do 1º piso. Dispõe de elevador com acesso direto à cave onde conta com uma garagem privativa para 1 viatura + 1 espaço de estacionamento. O interior foi pensado ao detalhe para proporcionar bem-estar e funcionalidade: ✔ Hall de entrada com roupeiro ✔ Ampla sala e cozinha equipada em open space, com ligação ao enorme terraço e varanda (152 m2) ✔ 1 suite + 2 quartos (2 com roupeiro e acesso a varanda privativa) ✔ 2 casas de banho ✔ 3 varandas A excelente exposição solar e as janelas de grandes dimensões garantem luminosidade natural durante todo o dia, criando ambientes acolhedores e harmoniosos. Equipado com ar condicionado, painéis solares para aquecimento de águas e pré-instalação para painéis fotovoltaicos, alia conforto a eficiência energética e sustentabilidade. ENVOLVÊNCIA: zona calma, mas com todos os serviços essenciais à porta — comércio, restauração, multibanco, Associação Desportiva e expresso para Lisboa (cerca de 1 hora) várias vezes ao dia. Região com uma excelente gastronomia e produção vinícola, belíssimas praias em toda a sua costa, uma Albufeira (ideal para canoagem e pesca), a Lagoa mas bela de Portugal, inúmeros pontos de interesse histórico para visitar, oferta de uma grande variedade de atividades ao ar livre. Perto de diversos pontos de surf de renome, como Supertubos, Peniche, Baleal, Ericeira e Areia Branca. DISTÂNCIAS: Encontra-se a 3 km da Atouguia da Baleia e do acesso ao IP6, a 4,4 km da Albufeira, a 5 km de Peniche, a 12 km da Lourinhã, a 26 km de Caldas da Rainha, a 31 de Torres Vedras, a 15/23 km de quatro campos de golfe de nível internacional e a 90 km de Lisboa. Sem dúvida, uma excelente oportunidade de investimento, ideal tanto para habitação própria ou de férias, como para rentabilização com retorno garantido. Agendamos visita? #ref: 154827
AMI: 11220
Ref. Externa: 154827
Id: 1526050
Inicie sessão para guardar este imóvel e aceder à sua lista de favoritos em qualquer dispositivo.
3 Quartos
2 WCs
Área útil : 105 m²
SEJA UM DOS PRIVILEGIADOS A VIVER NUM APARTAMENTO NOVO NA PRAIA Imagine acordar todos os dias com a brisa do Atlântico e a luz natural a entrar pelas janelas, tendo o privilégio de poder ir a pé para a praia. Este moderno e luminoso apartamento T3 com 105 m2 oferece-lhe essa qualidade de vida que tanto deseja. Está localizado numa zona tranquila da Consolação, apenas a 500 metros da praia, contígua às dos Supertubos e Molhe Leste, famosas pela sua beleza natural e pelas propriedades terapêuticas (ricas em iodo). Inserido num edifício contemporâneo com apenas 5 apartamentos, este apartamento destaca-se pela exclusividade, qualidade construtiva e conforto, estando localizado ao nível do Rés-do-Chão. Dispõe de elevador com acesso direto à cave onde conta com uma garagem privativa para 1 viatura + 1 lugar de estacionamento. O interior foi pensado ao detalhe para proporcionar bem-estar e funcionalidade: ✔ Hall de entrada com roupeiro ✔ Ampla sala e cozinha equipada em open space, com ligação ao enorme terraço e varanda (152 m2) ✔ 1 suite + 2 quartos com roupeiro (2 deles com ligação à varanda) ✔ 2 casas de banho A excelente exposição solar e as janelas de grandes dimensões garantem luminosidade natural durante todo o dia, criando ambientes acolhedores e harmoniosos. Equipado com ar condicionado, painéis solares para aquecimento de águas e pré-instalação para painéis fotovoltaicos, alia conforto a eficiência energética e sustentabilidade. ENVOLVÊNCIA: zona calma, mas com todos os serviços essenciais à porta — comércio, restauração, multibanco, Associação Desportiva e expresso para Lisboa (cerca de 1 hora) várias vezes ao dia. Região com uma excelente gastronomia e produção vinícola, belíssimas praias em toda a sua costa, uma Albufeira (ideal para canoagem e pesca), a Lagoa mas bela de Portugal, inúmeros pontos de interesse histórico para visitar, oferta de uma grande variedade de atividades ao ar livre. Perto de diversos pontos de surf de renome, como Supertubos, Peniche, Baleal, Ericeira, Areia Branca e Nazaré. DISTÂNCIAS: Encontra-se a 3 km da Atouguia da Baleia e do acesso ao IP6, a 4,4 km da Albufeira, a 5 km de Peniche, a 12 km da Lourinhã, a 26 km de Caldas da Rainha, a 31 de Torres Vedras, a 15/23 km de quatro campos de golfe de nível internacional e a 90 km de Lisboa. Sem dúvida, uma excelente oportunidade de investimento, ideal tanto para habitação própria ou de férias, como para rentabilização com retorno garantido. Agendamos visita? #ref: 154721
AMI: 11220
Ref. Externa: 154721
Id: 1523642
Inicie sessão para guardar este imóvel e aceder à sua lista de favoritos em qualquer dispositivo.
Área de terreno : 1268 m²
- O TERRENO IDEAL PARA CONSTRUIR A SUA MORADIA - Terreno plano e bem localizado na acolhedora localidade de Outeiro da Cabeça, apenas a 10 km do Bombarral e 14 km de Torres Vedras. Com 1.268 m2, tem permissão de construção para 3 moradias, com uma Área Bruta de Construção de 507,2 m2 e uma Área Bruta Dependente de 101,44 m². Tem a orientação solar ideal (Nordeste / Sudoeste), proporcionando muita luminosidade ao longo de todo o dia. O terreno conta também com um poço com grande caudal, facultando-lhe gratuitamente água para irrigação do seu jardim e horta, bem como o enchimento da sua piscina, um recurso raro e valioso. Aqui, pode usufruir o melhor dos dois mundos — a serenidade e qualidade de vida do campo e a proximidade a tudo o que precisa. Ideal para investidores, construtores ou para quem procura viver em tranquilidade, com boa ligação às principais vias, à cidade e à costa. A LOCALIDADE: Dispõe de algum comércio e serviços, nomeadamente restaurantes, cafés, pastelaria, Escola Básica, Pré-Escola, Centro de Dia, Associação de Socorros, Junta de Freguesia, Pavilhão Gimnodesportivo, Parque Recreativo e de Atividades ao Ar Livre, … É servida por autocarros e comboio, tendo o acesso à A8 apenas a 3 km. Encontra-se a 11 km da Escola Internacional de Torres Vedras, a 19 km/27 km das belas praias da região, a 22km/34km de 5 campos de golf de nível internacional e a 60 km de Lisboa. Hospitais e clínicas em Bombarral, Caldas da Rainha e Torres Vedras. Sem dúvida, a opção certa para si. Agendamos visita? #ref: 762872
AMI: 11220
Ref. Externa: 762872
Id: 1495304
Inicie sessão para guardar este imóvel e aceder à sua lista de favoritos em qualquer dispositivo.
3 Quartos
3 WCs
Área útil : 252 m²
Inserida numa urbanização calma e familiar, esta moradia oferece o equilíbrio perfeito entre tranquilidade e proximidade de todos os serviços e comércio, localizados a apenas 3 minutos. CARACTERÍSTICAS PRINCIPAIS: •Área Bruta de Construção: 354,36 m2 •Janelas de vidro duplo •Aspiração central completa •Pré-instalação de aquecimento central •Sistema de alarme •Portas interiores largas (1 m), preparadas para cadeiras de rodas •Eletrodomésticos incluídos •Cave enorme com caixa de ar (145 m2), garagem, 3 salas, arrumação e casa de banho •Poço privativo •Pintura exterior recente ESPAÇO EXTERIOR: •Piso em calçada portuguesa •2 telheiros para agradáveis momentos de relax e convívio •Churrasqueira com bancada e lavatório •Anexo com casa de banho e lavandaria (25 m2) •Candeeiros exteriores novos •Espaço para jardim A REGIÃO: A localidade é contígua à bonita vila do Bombarral, estando inserida numa região conhecida pelos seus pomares, vinhas, ótima gastronomia e o célebre Bacalhôa Buddha Eden Garden. Encontra-se apenas a 20/30 minutos de inúmeras das belas praias da West Coast e de vários campos de golfe de nível internacional, e a 66 km do aeroporto de Lisboa. Acesso fácil à A8, a 1 km. Sem dúvida, a oportunidade ideal para quem procura qualidade de vida e tranquilidade, sem abdicar da proximidade de tudo o que precisa no dia a dia e do acesso à capital. Espero por si! #ref: 149226
AMI: 11220
Ref. Externa: 149226
Id: 1366789
Inicie sessão para guardar este imóvel e aceder à sua lista de favoritos em qualquer dispositivo.
2 Quartos
1 WCs
Área útil : 32320 m²
QUINTA COM PROJETO APROVADO PARA UNIDADES DE TURISMO Um local único, com vistas soberbas para o vale e o Parque Natural da Serra da Estrela, onde pode acordar com o chilrear dos pássaros e desfrutar do contacto com a Natureza no seu estado puro. Com 32.320 m², a quinta está localizada numa encosta da região de Oliveira do Hospital, integrando socalcos naturais, inúmeras árvores, penedos graníticos e pontos de água. Aproveitando a beleza e as características do local, foi desenvolvido um projeto (já aprovado) para um empreendimento de Turismo em Espaço Rural, que privilegia materiais naturais como granito e madeira, unindo o charme da arquitetura tradicional à funcionalidade e conforto do design moderno, preservando a vegetação existente. Está direcionado para o Turismo de qualidade, através do contacto com a Natureza, das atividades de lazer e de bem-estar. Mente sã em corpo são. Tem também a vantagem de ser elegível para uma candidatura ao Programa “Crescer com o Turismo – Apoio ao Turismo Rural a Fundo Perdido 2030” (até 80% a fundo perdido). A QUINTA: - terreno com 32.320 m2 (rústico e urbano) - moradia típica em pedra, reabilitada segundo as características originais (86,46 m2) - 1 lago com 50 m de comprido e 2 lagos mais pequenos com nascente - 1 estábulo e 2 pequenos anexos - diversas árvores (cerejeiras, oliveiras, figueiras, marmeleiros, pinheiros, videiras de uva de mesa) - animais (8 ovelhas Soulfok, 1 pónei, 1 burro, patos) - parcela de terreno urbano junto à estrada, que poderá ser destacado, com permissão de construção p/ habitações unifamiliares, rentabilizando ainda mais a propriedade PROJETO DE TURISMO APROVADO: - Área de Constr: 510,81 m2 + 112,44 m2 de alpendres - Passadiços: 435 m2 - Arruamentos/Estacionamentos: 910 m2 (12 lugares + 1p/ mini-autocarro + 3 adaptados) - Edifício de Receção e Lazer com spa, ginásio, massagens e área técnica - 5 Unid. de Alojamento (T1, T2 e T2+mezanine), distribuídas harmoniosamente pelo terreno - Piscina natural - Infraestruturas de turismo ativo e de natureza: percursos pedonais, picadeiro, escalada, rappel, quinta pedagógica com animais, … Localização privilegiada perto de Seia, Viseu, Guarda, Fundão, Coimbra e das Aldeias de Xisto, com acesso fácil ao IC6 e à A35. Região famosa pela sua variada gastronomia e artesanato. Venha viver a magia da Serra e de tudo o que ela lhe oferece. Invista na sua qualidade de vida e num conceito turístico original, em comunhão com a Natureza e numa simbiose perfeita entre tradição e modernidade. Aqui, a sua família e os seus hóspedes, poderão conviver com animais da quinta, relaxar em ambientes naturais e desfrutar de experiências únicas de bem-estar e aventura. Aqui, cada vivência e cada pôr do sol, é um convite para ficar. Agendamos uma visita? #ref: 147540
AMI: 11220
Ref. Externa: 147540
Id: 1324732
Inicie sessão para guardar este imóvel e aceder à sua lista de favoritos em qualquer dispositivo.
1.100.000 €
4 Quartos
5 WCs
Área útil : 381 m²
ACORDE TODOS OS DIAS COM UMA DESLUMBRANTE VISTA PARA O OCEANO É fácil deixarmo-nos fascinar por esta moradia T4, na melhor zona da Praia da Areia Branca, onde o sol e o mar se combinam na perfeição. É, sem dúvida, um imóvel de excepção, com uma localização privilegiada em zona residencial calma e exclusiva, e vistas absolutamente fantásticas. A sua exposição solar a Sudoeste, com as grandes janelas e portas panorâmicas, permitem-lhe também desfrutar de espaços com muita luminosidade durante todo o dia. Aqui, pode acordar com vistas soberbas para o mar, ir a pé para a praia e acabar os dias com pores do sol magníficos. CARACTERÍSTICAS PRINCIPAIS: ◾ construção e acabamentos de qualidade premium, a par de um design moderno e funcional ◾ orientação solar ideal com vistas fabulosas ◾ divisões espaçosas, fluindo harmoniosamente e onde o conforto impera ◾ piscina privativa de borda infinita (25,34 m2) e zonas de ajardinadas, perfeitas para lazer, convívio ou simplesmente desfrutar do clima ameno da zona ◾ localização privilegiada a poucos metros da praia e de 2 campos de ténis, bem como de vários serviços e comércio, incluindo paragem de autocarro DSTRIBUIÇÃO: PISO 0: Alpendre de acesso; Garagem para 3 viaturas; Ginásio; Casa de Banho; Lavandaria, Arrumos e Zona de Equipamentos; PISO 1: espaçoso Hall de entrada com roupeiro embutido; Sala de Estar e de Jantar com acesso a grande Terraço, Alpendre e Piscina; Cozinha equipada e em open space, com acesso a mais 2 Terraços, à Zona de Barbecue, com Alpendre e às Áreas Ajardinadas; Despensa; Escritório; Casa de Banho; PISO 2: Hall de acesso em mezzanine; 3 Suites bastantes espaçosas, com respectivas zonas de closet e casa de banho privativas, todas com acesso a uma ampla Varanda e Alpendre, com vistas abrangentes para o mar e toda a costa Sul; Zona de Arrumos;. A REGIÃO: A localidade, conta com mini-mercados, lojas, restaurantes, cafés, mercado, 2 campos de ténis, …, sendo servida por autocarros. Na charmosa vila da Lourinhã, a 3,5 km, encontra todo o tipo de serviços e comércio, com expressos directos para Lisboa durante todo o dia. Apenas a poucos minutos, encontra também muitas outras e belas praias, 6 campos de golf, centros equestres, cidades históricas e muitos pontos de interesse a visitar, tendo todo o tipo de actividades desportivas ao seu alcance. Gastronomia e enologia muito rica e variada. Escola Internacional a 21 km com transporte privado. Lisboa encontra-se a 50 minutos, maioritariamente por auto-estrada, Peniche a 15 km, Óbidos a 27 km, Caldas da Rainha a 29 km, Nazaré a 63 km e Torres Vedras a 28 km. Seja também um dos privilegiados a viver neste paraíso à beira-mar e numa moradia de excepção! Espero por si. #ref: 136404
AMI: 11220
Ref. Externa: 136404
Id: 1047719
Inicie sessão para guardar este imóvel e aceder à sua lista de favoritos em qualquer dispositivo.
4 Quartos
3 WCs
Área útil : 247 m²
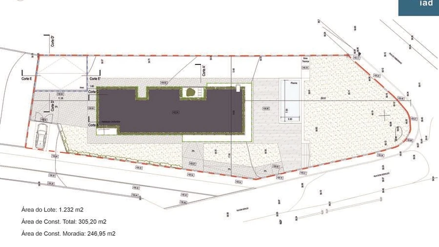
◼️ ESPAÇO, QUALIDADE DE CONSTRUÇÃO TOP, CONFORTO E SUSTENTABILIDADE são algumas das palavras que definem esta moradia exclusiva. Trata-se de uma moradia térrea T3+1 apenas a 2,4 km da praia, onde pode desfrutar da privacidade e qualidade de vida que deseja. Está implantada num grande lote de 1.231 m2, em zona habitacional calma da pitoresca aldeia de Geraldes, tendo sido pensada para combinar um design moderno, exclusivo e funcional, com a preocupação pela sustentabilidade, tendo 305,20 m2 de construção bruta. A excelente orientação solar, permite-lhe usufruir de grande luminosidade em todas as divisões, ao longo de todo o dia e de fantásticos pôr de sol sobre o mar. Ao entrarmos através do espaçoso e luminoso hall com roupeiro, somos surpreendidos pela fluidez e harmonia dos espaços, com todas as divisões a abrirem-se para os espaços exteriores: ampla sala em open space com a cozinha (equipada com electrodomésticos e ilha); despensa/arrecadação; 2 suites com closet e casa de banho privativa; 1 quarto com roupeiro; escritório; casa de banho; grande lavandaria com bancada e lavatório; No exterior, conta com espaços de lazer perfeitos para relaxar e conviver: zona de barbecue, terraços, jardim, piscina (32 m2) com deck e a garagem (58,25 m2). EQUIPAMENTOS: Para além dos óptimos isolamentos, conta com estores eléctricos e caixilharias com isolamento térmico/acústico, piso aquecido com sistema radiante de calor, 2 bombas de calor, pré instalação de A/C, portões automáticos, vídeo-porteiro e painéis fotovoltaicos que lhe permitem ser autónomo na produção da sua própria energia eléctrica, reduzindo substancialmente custos e contribuindo para a preservação do meio ambiente. Conclusão da construção prevista para Abril de 2026, dando-lhe ainda a possibilidade de escolher alguns materiais, personalizando-a a seu gosto. ZONA: A sua localização estratégica, permite-lhe estar a menos de 5 minutos das praias de S. Bernardino, Frades, Consolação e Supertubos e do acesso à auto-estrada, facilitando as suas deslocações. Encontra-se também a 6 km de Peniche, a 9 km da Lourinhã, a 14/22 km de vários campos de golf de nível internacional, a 19 km da vila histórica de Óbidos, a 24 km de Caldas da Rainha e a 90 km de Lisboa. As boas oportunidades não surgem todos os dias e esta, é a que lhe permite concretizar o seu sonho e começar a viver o estilo de vida que merece. Reservo-a para si? * 3D meramente ilustrativos #ref: 135689
AMI: 11220
Ref. Externa: 135689
Id: 1033090
Inicie sessão para guardar este imóvel e aceder à sua lista de favoritos em qualquer dispositivo.
9 WCs
Área útil : 1760 m²
▪️◼️ ARMAZÉM E ENTREPOSTO FRIGORÍFICO ◼️▪️ Armazém e Entreposto Frigorífico, inserido num terreno com 4.051,8 m2, situado na freguesia de Mafamude e Vilar do Paraíso, concelho de Vila Nova de Gaia. Conta com duas frentes e duas entradas, permitindo facilidade de manobra a veículos de grandes dimensões. Localização estratégica a apenas 2 km dos acessos às auto-estradas A29 e A44. - EDIFÍCIO PRINCIPAL (1.760 m2) Piso 0: alpendre de entrada, recepção, zonas de circulação, cantinas, despensa, 2 gabinetes, casa das máquinas, balneários/sanitários, armazém, 10 câmaras frigoríficas (algumas com linhas aéreas) e 8 cais de descarga. Piso 1: hall, sala da direcção, sala da administração, escritórios, 2 casas de banho, escadas interiores e varanda - PORTARIA Recepção, escritório e casa de banho - OUTROS PT eléctrico, estação de esgotos, fossa para verificação de veículos e espaços de estacionamento Altura máxima do pavilhão: 6,80 m Edifícios em boas condições, necessitando apenas de pintura exterior. Afectação: Armazéns e Actividade Industrial ---------------------------------------------------------------------------------------------------------------- A IAD é uma nova forma de ver o sector imobiliário, com um modelo que permite que todos ganhem, quer seja comprador, vendedor ou consultor. Apostamos no nosso conhecimento do mercado imobiliário proveniente de softwares exclusivos, formação, uma ampla rede de contactos e da análise de economias de escala para lhe proporcionar o melhor serviço, reduzir custos e distâncias e dar-lhe maior transparência. É um modelo que conta atualmente com quase 20.000 consultores, sempre disponíveis para o ajudar a vender, arrendar ou comprar o imóvel que deseja e a concretizar os seus projectos de vida. É, sem dúvida, um modelo em que todos saem a ganhar! #ref: 124422
AMI: 11220
Ref. Externa: 124422
Id: 813168
Inicie sessão para guardar este imóvel e aceder à sua lista de favoritos em qualquer dispositivo.
Área de terreno : 639 m²
◾◼️ À PROCURA DO LOCAL PERFEITO PARA CONSTRUIR A SUA MORADIA? ◼️◾ Este é o local perfeito para construir a sua moradia com uma vista magnífica para a Natureza em redor e uma excelente exposição solar, onde poderá desfrutar da tranquilidade e qualidade de vida que deseja. Aqui, poderá acordar com o chilrear dos pássaros, relaxar no seu jardim, fazer belos passeios a pé ou em bicicleta pelos campos verdes em redor ou à beira da lagoa, fazer canoagem, stand up paddle, surf, kite surf, bodyboard, …, usufruindo a vida na sua plenitude. Trata-se de um lote com 639 m2, localizado na parte superior da urbanização, permitindo-lhe vistas totalmente desafogadas, em zona premium, entre Caldas da Rainha, a Lagoa de Óbidos e a praia da Foz do Arelho. Permissão para uma área bruta de construção de 470 m2, com 170 m2 de implantação, cave e mais 2 pisos. Em caso de interesse, já existe pré-projecto para moradia de 2 pisos que é oferecido. Localização privilegiada apenas a 2,3 km de um dos braços da lagoa, a 7 km da praia, a 2 km de Caldas da Rainha e do acesso à auto-estrada e a 85 km de Lisboa. A simbiose perfeita entre tranquilidade, qualidade de vida e proximidade de tudo. Seja também um dos privilegiados a morar nesta zona de excelência e única! Contacte-me ainda hoje para visitarmos o local. ---------------------------------------------------------------------------------------------------------------- A iad é uma nova forma de ver o sector imobiliário, com um modelo que permite que todos ganhem, quer seja comprador, vendedor ou consultor. Apostamos no nosso conhecimento do mercado local e em economias de escala para reduzir custos e distâncias e dar-lhe maior transparência. É um modelo que conta atualmente com quase 20.000 consultores, prontos a apoiá-lo e a pôr os seus conhecimentos ao serviço dos seus novos projectos de vida. Um modelo em que todos saem a ganhar! Faça da sua mudança de casa, uma história com final feliz. #ref: 122900
AMI: 11220
Ref. Externa: 122900
Id: 775467
Inicie sessão para guardar este imóvel e aceder à sua lista de favoritos em qualquer dispositivo.
285.000 €
Área de terreno : 4773 m²
◾ ◾ LOCALIZAÇÃO PRIVILEGIADA PARA CONSTRUIR ◾ ◾ Tranquilidade, privacidade e vistas abrangentes para os campos verdes em redor e a praia da Foz do Arelho, são as mais-valias que caracterizam este terreno para construção. Com 4.773 m2, está situado numa zona residencial na encosta da parte alta da vila de Gaeiras, concelho de Óbidos, tendo a exposição solar ideal Norte-Sul. Na parte posterior, confina com campos verdes que se prolongam até uma colina e onde não é permitido construir, pelo que usufruirá sempre de vistas totalmente desobstruídas e a privacidade que deseja. Poderá construir apenas uma moradia ou várias, consoante o fim a que se destina. Em caso de interesse, existe já um pré-projecto de loteamento para 6 fracções e projectos para moradias T4 de design contemporâneo (com áreas de construção entre 180 m2 e 217 m2). Encontra-se apenas a 3,5 km de Caldas da Rainha, 4 km de Óbidos, 16 km de vários campos de golf de nível internacional, 15/20 minutos de inúmeras praias da bela West Coast e a 82 km de Lisboa. Acessos às auto-estrada A8 e A15 a 2,3 km e 2,8 km. Na vila, encontra alguns serviços e comércio (mini-mercado, padaria, pastelaria, cafés, restaurantes, farmácias, Jardim de Infância, Escola, Pavilhão Desportivo, Centro de Saúde, Centro de Diálise, …), sendo servida pelo minibus municipal OBI e autocarros da rede nacional. Como vê, este terreno reúne um conjunto de características cada vez mais difíceis de encontrar nos dias de hoje, sendo pois uma excelente oportunidade de negócio a aproveitar! Agendamos visita? #ref: 70600
AMI: 11220
Ref. Externa: 70600
Id: 228922
Inicie sessão para guardar este imóvel e aceder à sua lista de favoritos em qualquer dispositivo.
Inicie sessão para ocultar este imóvel das suas pesquisas e manter a sua lista de resultados organizada.
Anabela Subtil
Consultor imobiliário em IAD Holding - AMI: 11220
Compre créditos para poder destacar os seus imóveis! Desta forma eles são os primeiros a aparecer nas pesquisas e têm uma maior chance de serem vistos pelos utilizadores.
Guardar favoritos
Este imóvel foi guardados nos seus favoritos com sucesso.
Para poder guardar pesquisa deverá ter a sua sessão iniciada.
Caso não tenha uma conta, deverá criar uma.
A sua pesquisa foi guardada com sucesso!
© Copyright 2023 | CASACERTA. All rights reserved
Este site utiliza cookies. Ao navegar no site estará a consentir a sua utilização.
Para mais informações sobre os cookies pode consultar a
política de privacidade.