Consultor imobiliário em Claro Imobiliária - AMI: 10048
Comprar
Arrendar
110.000 €
1 WCs
Área bruta : 5100 m²
Refª CC3770 - Vende-se propriedade indicada para empreendimento turístico rural, hotelaria ou restauração. Antigo Lagar de fabrico de azeite, atualmente desativado, com anexos e terreno rústico envolvente às edificações para cultivo agrícola, com uma mina de água. Para mais informações e visitas, contactar CLARO Imobiliária: 925066077. (Rede móvel nacional).
AMI: 10048
Ref. Externa: CC3770
Id: 1772041
Inicie sessão para guardar este imóvel e aceder à sua lista de favoritos em qualquer dispositivo.
674.000 €
5 Quartos
4 WCs
Área bruta : 432 m²
Refª CC3970 - Vende-se Moradia T5+1, na Figueira da Foz, está como nova, com acabamentos de grande qualidade. No R/C desnivelado tem garagem para 3 carros. Um estúdio independente com cozinha bem equipada e muita arrumação, WC com poliban sala e quarto este espaço tem total acesso independência sem interferir na habitação, apropriado para rendimento, está na mesma estrutura da habitação. No piso 1º Hall de entrada, distribuído para a sala 54m2 dividida em dois ambientes tem uma excelente exposição solar tem uma lareira com recuperador de calor e uma grande varanda, WC e um quarto c/ roupeiro, uma grande cozinha muito bem equipada e bem decorada com equipamentos de qualidade superior tem uma despensa, este piso tem uma particularidade, a parte de trás fica ao nível do R/C tem um logradouro onde tem um pequeno quintal para cultivar uma horta, tem uma cobertura apropriada para uma churrasqueira, tem um canil. No piso superior temos quatro quartos todos com roupeiro, um deles suite, duas casas de banho, uma delas privativa. Tem varandas viradas a nascente e poente. A moradia tem 3 painéis solares para autoconsumo, painéis para aquecimentos das águas sanitárias, bomba de calor e dois ar condicionados. Esta moradia tem uma particularidade muito importante, com janelas muito largas assim como no vão da escada, uma grande claraboia toda envidraçada que ilumina a habitação na totalidade. CE: Classe C não corresponde a realidade. foram postos equipamentos e melhoramentos após a esta certificação. Para mais informações e visitas, contactar CLARO Imobiliária: 925066077 (rede móvel nacional)
AMI: 10048
Ref. Externa: CC3970
Id: 1772028
Inicie sessão para guardar este imóvel e aceder à sua lista de favoritos em qualquer dispositivo.
250.000 €
2 Quartos
2 WCs
Área bruta : 211 m²
Refª DB3966 - Vende-se moradia T2+2 de traça antiga, em banda, para remodelar no centro da Figueira da Foz com todo o tipo de serviços, comércio e próximo de escolas. Construção antiga anterior a 1951, composta por r/c, 1º andar e sótão. O r/chão amplo, no andar: sala, cozinha, 2 quartos ventilados e 2 quartos interiores e corredor, com acessos a sótão com varanda, anexo, terraço e logradouro. Para mais informações e visitas, contactar CLARO Imobiliária: 916452344 (rede móvel nacional)
AMI: 10048
Ref. Externa: DB3966
Id: 1772025
Inicie sessão para guardar este imóvel e aceder à sua lista de favoritos em qualquer dispositivo.
2 Quartos
2 WCs
Área bruta : 102 m²
Ref: CC3938-5 - Vende-se T2 com Garagem para 2 carros, Novo, em Vila Nova de Poiares, perto de Coimbra. Com acabamentos de qualidade superior, valor de venda com algum desconto por se tratar de lançamento no mercado. Este prédio está no inicio de construção. Acabamentos, todos os tetos em pladur, gesso cartonado com isolamento lã de rocha, louças sanitárias suspensas, madeiras portas interiores lacadas a branco, alumínios com corte térmico com vidro duplo, móveis da casa de banho suspensos conforme o projeto, águas quentes através de bomba de calor, pré instalação para painéis solares, moveis de cozinha termo lacado equipada com eletrodomésticos e varanda. CE: classe A. Para mais informações e visitas contactar CLARO Imobiliária: 925066077 (rede móvel nacional).
AMI: 10048
Ref. Externa: CC3938-5
Id: 1772010
Inicie sessão para guardar este imóvel e aceder à sua lista de favoritos em qualquer dispositivo.
420.000 €
3 Quartos
2 WCs
Área bruta : 130 m²
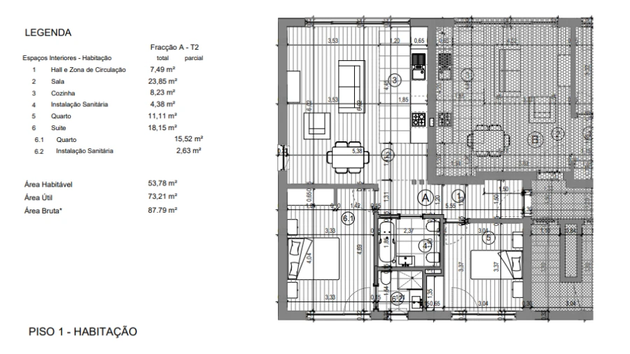
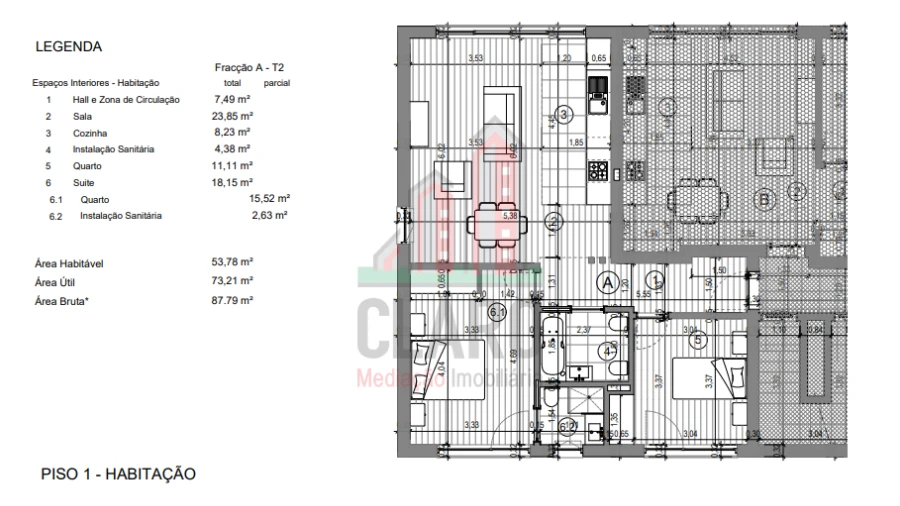
Ref: CC3965-4 - Vende-se Apartamento T3 + Sótão, com Garagem, Novo, em Condeixa, junto ao Parque Verde. Está pronto a habitar, acabamentos de grande qualidade, cozinha toda equipada, ar condicionado em todas as divisões, 1 varanda na cozinha e sala com churrasqueira e 1 varanda nos quartos e todos com roupeiro. Tem uma garagem no r/c que faz parte da fração. A sua localização está ali mesmo junto ao parque verde. Para mais informações e visitas, contactar CLARO Imobiliária: 925066077. (rede móvel nacional)
AMI: 10048
Ref. Externa: CC3965-4
Id: 1772023
Inicie sessão para guardar este imóvel e aceder à sua lista de favoritos em qualquer dispositivo.
2 Quartos
2 WCs
Área bruta : 101 m²
Ref: CC3938 - Vende-se T2 com Garagem para 2 carros, Novo, em Vila Nova de Poiares, perto de Coimbra. Com acabamentos de qualidade superior, valor de venda com algum desconto por se tratar de lançamento no mercado. Este prédio está no inicio de construção. Acabamentos, todos os tetos em pladur, gesso cartonado com isolamento lã de rocha, louças sanitárias suspensas, madeiras portas interiores lacadas a branco, alumínios com corte térmico com vidro duplo, móveis da casa de banho suspensos conforme o projeto, águas quentes através de bomba de calor, pré instalação para painéis solares, móveis de cozinha termo lacado equipada com eletrodomésticos, com acesso a Varanda. CE: classe A. Para mais informações e visitas contactar CLARO Imobiliária: 925066077 (rede móvel nacional).
AMI: 10048
Ref. Externa: CC3938
Id: 1772005
Inicie sessão para guardar este imóvel e aceder à sua lista de favoritos em qualquer dispositivo.
355.000 €
3 Quartos
2 WCs
Área bruta : 130 m²
Ref: CC3965-1 - Vende-se Apartamento T3 com Garagem, Novo, em Condeixa, junto ao Parque Verde. Está pronto a habitar, acabamentos de grande qualidade, cozinha toda equipada, ar condicionado em todas as divisões, 1 varanda na cozinha e sala com churrasqueira e 1 varanda nos quartos e todos com roupeiro. Tem uma garagem no r/c que faz parte da fração. A sua localização está ali mesmo junto ao parque verde. Para mais informações e visitas, contactar CLARO Imobiliária: 925066077. (rede móvel nacional)
AMI: 10048
Ref. Externa: CC3965-1
Id: 1772018
Inicie sessão para guardar este imóvel e aceder à sua lista de favoritos em qualquer dispositivo.
2 Quartos
2 WCs
Área bruta : 78 m²
Ref: CC3922-5 - Vende-se apartamento T2 com Garagem, Novo, 1º andar atualmente em acabamentos, situado na zona da Solum, cozinha toda equipada com todos os eletrodomésticos, quartos com roupeiros embutidos, tetos falsos em todas as divisões, casas de banho com ventilação forçada. Tem garagem privativa com portão seccionado, resguardo das varandas em vidro. Este prédio situa-se na zona da Solum. Conclusão da obra prevista para Setembro 2026. Fotos do andar modelo. Para mais informações e visitas, contactar CLARO Imobiliária: 925066077. (rede móvel nacional)
AMI: 10048
Ref. Externa: CC3922-5
Id: 1772004
Inicie sessão para guardar este imóvel e aceder à sua lista de favoritos em qualquer dispositivo.
76.000 €
7 Quartos
1 WCs
Área bruta : 500 m²
Refª CR3932 - Apresentamos uma notável moradia T7, situada a poucos km da encantadora cidade de Coimbra. O interior do imóvel distingue-se pela sua generosa amplitude e luminosidade, apresentando um elegante hall de entrada que conduz a diversas salas espaçosas e bem iluminadas. As áreas comuns são compostas por uma sala de estar acolhedora com lareira, onde se pode desfrutar momentos agradáveis em família ou entre amigos. Localizada nas proximidades da cidade universitária de Coimbra oferece tranquilidade sem abdicar do fácil acesso às principais vias rodoviárias locais além do comércio variado próximo; as facilidades educativas renomadamente reconhecidas internacionalmente estão apenas a escassos minutos – tornando-a perfeita tanto para famílias quanto investidores atentos ao mercado imobiliário. Este imóvel não só oferece condições excecionais seja pelo seu tamanho multifacetado mas sim reforça o desejo incessante pelas vivências memoráveis quer se poderão vir a criar com a remodelação. Para mais informações e visitas contactar CLARO Imobiliária: 925066077 (rede móvel nacional)
AMI: 10048
Ref. Externa: CR3932
Id: 1772006
Inicie sessão para guardar este imóvel e aceder à sua lista de favoritos em qualquer dispositivo.
355.000 €
3 Quartos
2 WCs
Área bruta : 130 m²
Ref: CC3965-2 - Vende-se Apartamento T3 com Garagem, Novo, em Condeixa, junto ao Parque Verde. Está pronto a habitar, acabamentos de grande qualidade, cozinha toda equipada, ar condicionado em todas as divisões, 1 varanda na cozinha e sala com churrasqueira e 1 varanda nos quartos e todos com roupeiro. Tem uma garagem no r/c que faz parte da fração. A sua localização está ali mesmo junto ao parque verde. Para mais informações e visitas, contactar CLARO Imobiliária: 925066077. (rede móvel nacional)
AMI: 10048
Ref. Externa: CC3965-2
Id: 1772019
Inicie sessão para guardar este imóvel e aceder à sua lista de favoritos em qualquer dispositivo.
2 Quartos
2 WCs
Área bruta : 102 m²
Ref: CC3938-9 - Vende-se T2 com Garagem para 2 carros, Novo, em Vila Nova de Poiares, perto de Coimbra. Com acabamentos de qualidade superior, valor de venda com algum desconto por se tratar de lançamento no mercado. Este prédio está no inicio de construção. Acabamentos, todos os tetos em pladur, gesso cartonado com isolamento lã de rocha, louças sanitárias suspensas, madeiras portas interiores lacadas a branco, alumínios com corte térmico com vidro duplo, móveis da casa de banho suspensos conforme o projeto, águas quentes através de bomba de calor, pré instalação para painéis solares, moveis de cozinha termo lacado equipada com eletrodomésticos e varanda. CE: classe A. Para mais informações e visitas contactar CLARO Imobiliária: 925066077 (rede móvel nacional).
AMI: 10048
Ref. Externa: CC3938-9
Id: 1772014
Inicie sessão para guardar este imóvel e aceder à sua lista de favoritos em qualquer dispositivo.
2 Quartos
2 WCs
Área bruta : 102 m²
Ref: CC3938-3 - Vende-se T2 com Garagem para 2 carros, Novo, em Vila Nova de Poiares, perto de Coimbra. Com acabamentos de qualidade superior, valor de venda com algum desconto por se tratar de lançamento no mercado. Este prédio está no inicio de construção. Acabamentos, todos os tetos em pladur, gesso cartonado com isolamento lã de rocha, louças sanitárias suspensas, madeiras portas interiores lacadas a branco, alumínios com corte térmico com vidro duplo, móveis da casa de banho suspensos conforme o projeto, águas quentes através de bomba de calor, pré instalação para painéis solares, móveis de cozinha termo lacado, equipada com eletrodomésticos e com acesso à varanda. CE: classe A. Para mais informações e visitas contactar CLARO Imobiliária: 925066077 (rede móvel nacional).
AMI: 10048
Ref. Externa: CC3938-2
Id: 1772009
Inicie sessão para guardar este imóvel e aceder à sua lista de favoritos em qualquer dispositivo.
2 Quartos
2 WCs
Área bruta : 104 m²
Ref: CC3938-11 - Vende-se T2 com Garagem para 2 carros, Novo, em Vila Nova de Poiares, perto de Coimbra. Com acabamentos de qualidade superior, valor de venda com algum desconto por se tratar de lançamento no mercado. Este prédio está no inicio de construção. Acabamentos, todos os tetos em pladur, gesso cartonado com isolamento lã de rocha, louças sanitárias suspensas, madeiras portas interiores lacadas a branco, alumínios com corte térmico com vidro duplo, móveis da casa de banho suspensos conforme o projeto, águas quentes através de bomba de calor, pré instalação para painéis solares, moveis de cozinha termo lacado equipada com eletrodomésticos e varanda. CE: classe A. Para mais informações e visitas contactar CLARO Imobiliária: 925066077 (rede móvel nacional).
AMI: 10048
Ref. Externa: CC3938-11
Id: 1772013
Inicie sessão para guardar este imóvel e aceder à sua lista de favoritos em qualquer dispositivo.
1 Quartos
1 WCs
Área bruta : 75 m²
Refª CR3960 - Só vai estar disponível no inicio de Setembro, Apartamento T1 para arrendamento, prazo mínimo um ano ou mais, situado na Praia da Consolação, no valor da renda, está incluído água e Internet. Destaca-se pelo seu interior cuidadosamente planeado e acolhedor. Ao entrar no espaço, somos recebidos por uma sala ampla e luminosa que proporciona um ambiente perfeito para relaxar ou entreter visitantes. A cozinha em estilo moderno está equipada com eletrodomésticos e oferece ampla arrumação está ligada no mesmo espaço a sala. O quarto é igualmente generoso em dimensões, apresentando um design harmonioso que convida ao descanso pleno após um dia agitado. No exterior do imóvel, a fachada apresenta linhas tradicionais combinadas com elementos de arquitetura local. Os residentes têm acesso a áreas comuns bem cuidadas onde se pode desfrutar momentos tranquilos sob o sol Português. Estas comodidades promovem não só o bem-estar dos moradores como também fortalecem os laços comunitários. Localizado numa zona privilegiada, próximo à praia. cafés, supermercados e mercado. Por fim, neste imóvel singular respira-se uma atmosfera serena aliada ao conforto essencial do lar moderno. O equilíbrio perfeito entre elegância, talento até mesmo numa simples escolha decorativa faz deste T1não apenas mais definição duma casa mas sim dá forma sonhada num verdadeiro lar. Ligue já! Para mais informações e visitas contactar CLARO Imobiliária: 925066077 (rede móvel nacional)
AMI: 10048
Ref. Externa: CR3960
Id: 1772016
Inicie sessão para guardar este imóvel e aceder à sua lista de favoritos em qualquer dispositivo.
3 Quartos
2 WCs
Área bruta : 126 m²
Ref: CC3938-8 - Vende-se T3 com Garagem para 2 carros, Novo, em Vila Nova de Poiares, perto de Coimbra. Com acabamentos de qualidade superior, valor de venda com algum desconto por se tratar de lançamento no mercado. Este prédio está no inicio de construção. Acabamentos, todos os tetos em pladur, gesso cartonado com isolamento lã de rocha, louças sanitárias suspensas, madeiras portas interiores lacadas a branco, alumínios com corte térmico com vidro duplo, móveis da casa de banho suspensos conforme o projeto, águas quentes através de bomba de calor, pré instalação para painéis solares, móveis de cozinha termo lacado equipada com eletrodomésticos e varanda. CE: classe A. Para mais informações e visitas contactar CLARO Imobiliária: 925066077 (rede móvel nacional).
AMI: 10048
Ref. Externa: CC3938-8
Id: 1772012
Inicie sessão para guardar este imóvel e aceder à sua lista de favoritos em qualquer dispositivo.
2 Quartos
2 WCs
Área bruta : 104 m²
Ref: CC3938-7 - Vende-se T2 com Garagem para 2 carros, Novo, em Vila Nova de Poiares, perto de Coimbra. Com acabamentos de qualidade superior, valor de venda com algum desconto por se tratar de lançamento no mercado. Este prédio está no inicio de construção. Acabamentos, todos os tetos em pladur, gesso cartonado com isolamento lã de rocha, louças sanitárias suspensas, madeiras portas interiores lacadas a branco, alumínios com corte térmico com vidro duplo, móveis da casa de banho suspensos conforme o projeto, águas quentes através de bomba de calor, pré instalação para painéis solares, moveis de cozinha termo lacado equipada com eletrodomésticos e varanda. CE: classe A. Para mais informações e visitas contactar CLARO Imobiliária: 925066077 (rede móvel nacional).
AMI: 10048
Ref. Externa: CC3938-7
Id: 1772011
Inicie sessão para guardar este imóvel e aceder à sua lista de favoritos em qualquer dispositivo.
3 Quartos
2 WCs
Área bruta : 117 m²
Ref: FE3956-2 - Vende-se T3 com garagem, todo remodelado, como novo, em Santa Clara, Coimbra. Este apartamento T3, foi totalmente renovado, situa-se na junto tranquila Urbanização Vale Verde Alto de Santa Clara, a poucos minutos do centro de Coimbra. Uma solução prática e moderna para quem procura viver com qualidade, próximo de tudo o que é essencial. Com espaços luminosos e acabamentos atuais, o imóvel distingue-se pelo conforto e funcionalidade, cozinha equipada com alguns eletrodomésticos, caixilharia com vidro duplo e corte térmico, estores elétricos, sistema de ar condicionado; Garagem incluída. A zona oferece excelente proximidade a transportes, comércio, escolas e serviços. Disponíveis também outros e T3 na mesma localização. Agende já a sua visita e venha conhecer o seu novo lar em Coimbra! Fotos andar modelo. Para mais informações e visitas, contactar CLARO Imobiliária: +351 925066077 (rede móvel nacional)
AMI: 10048
Ref. Externa: FE3956-2
Id: 1772015
Inicie sessão para guardar este imóvel e aceder à sua lista de favoritos em qualquer dispositivo.
355.000 €
3 Quartos
2 WCs
Área bruta : 130 m²
Ref: CC3965-3 - Vende-se Apartamento T3 com Garagem, Novo, em Condeixa, junto ao Parque Verde. Está pronto a habitar, acabamentos de grande qualidade, cozinha toda equipada, ar condicionado em todas as divisões, 1 varanda na cozinha e sala com churrasqueira e 1 varanda nos quartos e todos com roupeiro. Tem uma garagem no r/c que faz parte da fração. A sua localização está ali mesmo junto ao parque verde. Para mais informações e visitas, contactar CLARO Imobiliária: 925066077. (rede móvel nacional)
AMI: 10048
Ref. Externa: CC3965-3
Id: 1772020
Inicie sessão para guardar este imóvel e aceder à sua lista de favoritos em qualquer dispositivo.
2 Quartos
2 WCs
Área bruta : 102 m²
Ref: CC3938-3 - Vende-se T2 com Garagem para 2 carros e Terraço com 88m2, Novo, em Vila Nova de Poiares, perto de Coimbra. Com acabamentos de qualidade superior, valor de venda com algum desconto por se tratar de lançamento no mercado. Este prédio está no inicio de construção. Acabamentos, todos os tetos em pladur, gesso cartonado com isolamento lã de rocha, louças sanitárias suspensas, madeiras portas interiores lacadas a branco, alumínios com corte térmico com vidro duplo, móveis da casa de banho suspensos conforme o projeto, águas quentes através de bomba de calor, pré instalação para painéis solares, moveis de cozinha termo lacado equipada com eletrodomésticos e acesso a grande terraço. CE: classe A. Para mais informações e visitas contactar CLARO Imobiliária: 925066077 (rede móvel nacional).
AMI: 10048
Ref. Externa: CC3938-3
Id: 1772008
Inicie sessão para guardar este imóvel e aceder à sua lista de favoritos em qualquer dispositivo.
2 Quartos
2 WCs
Área bruta : 102 m²
Ref: CC3938-1 - Vende-se T2 com Garagem e Terraço com 88m2, Novo, em Vila Nova de Poiares, perto de Coimbra. Com acabamentos de qualidade superior, valor de venda com algum desconto por se tratar de lançamento no mercado. Este prédio está no inicio de construção. Acabamentos, todos os tetos em pladur, gesso cartonado com isolamento lã de rocha, louças sanitárias suspensas, madeiras portas interiores lacadas a branco, alumínios com corte térmico com vidro duplo, móveis da casa de banho suspensos conforme o projeto, águas quentes através de bomba de calor, pré instalação para painéis solares, móveis de cozinha termo lacado equipada com eletrodomésticos e com acesso a grande terraço. CE: classe A. Para mais informações e visitas contactar CLARO Imobiliária: 925066077 (rede móvel nacional).
AMI: 10048
Ref. Externa: CC3938-1
Id: 1772007
Inicie sessão para guardar este imóvel e aceder à sua lista de favoritos em qualquer dispositivo.
Inicie sessão para ocultar este imóvel das suas pesquisas e manter a sua lista de resultados organizada.
Claro Imobiliária
Consultor imobiliário em Claro Imobiliária - AMI: 10048
Compre créditos para poder destacar os seus imóveis! Desta forma eles são os primeiros a aparecer nas pesquisas e têm uma maior chance de serem vistos pelos utilizadores.
© Copyright 2023 | CASACERTA. All rights reserved
Guardar favoritos
Este imóvel foi guardados nos seus favoritos com sucesso.
Para poder guardar pesquisa deverá ter a sua sessão iniciada.
Caso não tenha uma conta, deverá criar uma.
A sua pesquisa foi guardada com sucesso!
Este site utiliza cookies. Ao navegar no site estará a consentir a sua utilização.
Para mais informações sobre os cookies pode consultar a
política de privacidade.