Agência imobiliária - AMI: 6338
Comprar
Arrendar
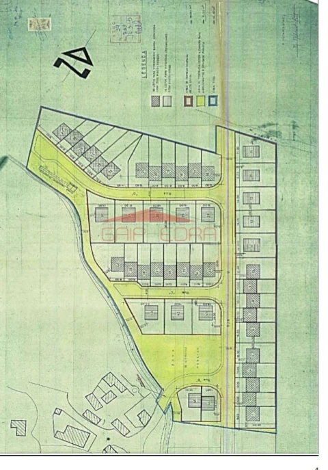
Área de terreno : 480 m²
Oportunidade em Mação: Lotes para Construção de Moradia (Cave + 3 Pisos) Construa a sua moradia de sonho com a segurança e rapidez que um loteamento infraestruturado oferece. Localizados na prestigiada Quinta de Santo António, em Mação, estes lotes representam uma solução económica e eficiente, sem os custos ocultos de infraestruturas, uma vez que toda a rede de arruamentos e serviços já se encontra concluída. Vantagens de Investir nos Lotes da Quinta de Santo António: - Economia: Não necessita de suportar custos de urbanização (estradas, passeios, saneamento, gás, água, telecomunicações). - Rapidez de Obra: Processo de licenciamento mais célere, seguindo apenas as regras do alvará de loteamento. - Flexibilidade: Lotes com diferentes áreas, ideais para o seu projeto familiar ou de investimento. Disponibilidade de Lotes e Áreas (Cave + 3 Pisos) 10 lotes com áreas entre 480m2 e 1.039m2 e preços de venda entre 28.680€ e 38.620€ Envolvência e Qualidade de Vida Viver em Mação é sinónimo de qualidade de vida e acessibilidade. A Quinta de Santo António beneficia de uma localização privilegiada: - Serviços: Intermarché, Farmácia Saldanha e variada oferta de restauração. - Desporto e Lazer: Campo de Futebol, Campo de Ténis e Skate Park nas proximidades. - Mobilidade: Acesso rápido à N244, N3 e A23, permitindo deslocações rápidas para Santarém, Tomar ou Vila do Rei. Gaiphedra Imobiliária - 32 Anos de Experiência Comprar connosco é uma etapa tranquila e segura. Acompanhamento Total: Ajudamos em todo o processo, desde a escolha do lote até à escritura. Gestão de Crédito: Apresentamos várias propostas de financiamento sem qualquer encargo, tratando de todo o processo de crédito para si. Não perca esta oportunidade de construir o seu futuro. Contacte-nos hoje mesmo para escolher o lote ideal para o seu projeto!
AMI: 6338
Ref. Externa: AV1103
Id: 1702100
Inicie sessão para guardar este imóvel e aceder à sua lista de favoritos em qualquer dispositivo.
Área de terreno : 22000 m²
Terreno urbano com 22 000 m2, correspondentes a 44 artigos, de natureza urbana, localizados no lugar de Montelavar, em Sintra. Estes artigos fazem parte dum processo de loteamento emitida pela Câmara Municipal de Sintra em 1975, entretanto declarado com caducidade de licença para a realização da operação do loteamento em abril de 2016. No local, nada foi construído, destinado à urbanização (arruamentos, saneamento, rede de águas, telecomunicações), mantendo a aparência rústica. Os acessos à propriedade, localizada no Casal de São João, Palmeiros, Sintra, são: -a sul pela via urbana do Largo de Santo António, o qual só poderá ser feito a pé, pois existe uma linha de água de dimensão considerável, que obrigará à construção duma ponte. -a norte por caminho que tem inicio na Estrada Nacional N117. Esta poderá ser uma excelente opção de investimento em Pêro Pinheiro, Sintra, pois beneficia de excelentes acessos a Lisboa e Cascais pela A16 e pela CREL. Gaiphedra Imobiliária - Comprar um imóvel connosco é uma etapa tranquila e segura! Acompanhamos em todo o processo até ao momento da escritura, inclusive no momento de financiamento. Se tem dúvidas quanto à compra de um imóvel, não hesite em contactar-nos. 32 anos de experiência na atividade imobiliária.
AMI: 6338
Ref. Externa: 260316
Id: 1702099
Inicie sessão para guardar este imóvel e aceder à sua lista de favoritos em qualquer dispositivo.
Área útil : 1300 m²
Terreno com Potencial Estratégico em Ossela - Eixo Aveiro/Porto Invista num futuro com tranquilidade. Este terreno rústico em Ossela, Oliveira de Azeméis, oferece um leque variado de possibilidades, desde o refúgio habitacional à exploração turística ou agrícola, beneficiando de uma localização privilegiada entre os grandes polos urbanos do Norte e Centro. Oportunidades de Desenvolvimento e Reclassificação: - Potencial Habitacional: Aproveite o novo enquadramento legal (Decreto-Lei 117/2024 e Lei 53A/2025) para estudar, junto de um arquiteto, a reclassificação simplificada de rústico para urbano. Uma oportunidade única para quem procura construir a sua moradia de sonho com custos de aquisição reduzidos. - Novos Conceitos de Habitação: Espaço ideal para a instalação de estruturas amovíveis, como Mobile Homes ou Tiny Houses, perfeitas para um estilo de vida sustentável e em contacto com a natureza. - Investimento Agrícola e Biológico: O solo e a localização são propícios à produção biológica, criação de animais ou apicultura, respondendo à crescente procura por produtos de origem local e sustentável. - Vertente Turística: Excelente potencial para a dinamização de projetos de Ecoturismo, como parques de campismo ou caravanismo. Localização e Qualidade de Vida Ossela é uma freguesia de cariz familiar, conhecida pela sua segurança, tranquilidade e comunidade acolhedora. Conectividade: Situado no eixo Aveiro-Porto, a apenas 10 minutos de São João da Madeira e Oliveira de Azeméis. Serviços: Proximidade a escolas e postos médicos. A curta distância terá acesso a hospitais, centros comerciais e toda a rede de serviços das cidades vizinhas. Informações Técnicas (Infraestruturas): Em prol da transparência e segurança do seu investimento, de acordo com a informação no Portal Geografico da Câmara informamos que as redes de água, saneamento e gás natural não se encontram atualmente na proximidade imediata, sendo ideal para projetos de autonomia e sustentabilidade (furos de água, fossas sépticas biológicas e energias renováveis). Gaiphedra Imobiliária - 32 Anos de Experiência Comprar um imóvel connosco é uma etapa tranquila e segura.
AMI: 6338
Ref. Externa: AV451
Id: 1702097
Inicie sessão para guardar este imóvel e aceder à sua lista de favoritos em qualquer dispositivo.
Área de terreno : 150 m²
Apresentamos uma oportunidade rara de investimento na Área Metropolitana de Lisboa. Trata-se de um conjunto de 4 lotes de terreno para construção urbana, localizados em Vila Franca de Xira, disponíveis para venda em conjunto ou separadamente. Lote 1 - 180.360€ Área total do terreno: 150,0000 m² Área de implantação do edifício: 150,0000 m² Área bruta de construção: 900,0000 m² Área bruta dependente: 300,0000 m² Lote 2 - 231.660€ Área total do terreno: 252,0000 m² Área de implantação do edifício: 215,2500 m² Área bruta de construção: 1.076,2500 m² Área bruta dependente: 215,2500 m² Lote 3 - 234.240€ Área total do terreno: 192,0000 m² Área de implantação do edifício: 192,0000 m² Área bruta de construção: 1.242,0000 m² Área bruta dependente: 192,0000 m² Lote 4 - 234.240€ Área total do terreno: 192,0000 m² Área de implantação do edifício: 192,0000 m² Área bruta de construção: 1.242,0000 m² Área bruta dependente: 192,0000 m² Com a crescente pressão imobiliária na capital e a escassez de terrenos para construção nova, Vila Franca de Xira posiciona-se como a alternativa número um para quem procura qualidade de vida a preços competitivos, garantindo aos promotores um escoamento de vendas extremamente rápido (100% de ocupação em tempo recorde). Localização e Conetividade Imbatíveis O sucesso deste investimento assenta na facilidade de acessos, tornando a ligação a Lisboa rápida e eficiente: Comboio: Apenas 12 minutos até à Gare do Oriente (Parque das Nações). Rodoviário: Acessos diretos e privilegiados à A1, A10 e EN10. Infraestruturas: Lotes inseridos em loteamento já consolidado, com todas as infraestruturas (água, luz, saneamento e pavimentação) prontas a edificar. Porquê Investir Aqui? Alta Procura vs. Baixa Oferta: A população está a deslocar-se para a periferia qualificada de Lisboa em busca de um custo de vida mais reduzido e construção moderna. Rentabilidade: Preço por m2 de terreno atrativo com elevado potencial de valorização no produto final. Pronto a Construir: Minimize tempos de espera e beneficie das infraestruturas já existentes. Sobre a Gaiphedra Imobiliária Com mais de 30 anos de experiência no mercado, somos o parceiro ideal para o seu próximo empreendimento. Garantimos um processo seguro e profissional em toda a compra.
AMI: 6338
Ref. Externa: AV238
Id: 1702098
Inicie sessão para guardar este imóvel e aceder à sua lista de favoritos em qualquer dispositivo.
64.800 €
Área de terreno : 387 m²
Lote de terreno para moradia no centro da Figueira da Foz. Terreno de 387 m², situado na Quinta da Esperança, uma das zonas mais tranquilas e procuradas da Figueira da Foz. Este terreno tem todas as infraestruturas concluídas, permitindo-lhe focar-se no que realmente importa: O projeto da sua nova casa! Destaques do Imóvel e Capacidade Construtiva: - Área Total do Lote: 387 m² - Viabilidade: Permite a construção de habitação unifamiliar e anexos (ocupação de 30% do terreno). - Volumetria: Possibilidade de construção até 2 pisos (R/Chão e 1.º Andar). Áreas de Projeto (Potencial Máximo): - Área de Implantação: 200 m² - Área Bruta de Construção: 600 m² - Área Bruta Dependente: 200 m² Vantagens Imediatas: Rapidez e Menos Custos Ao optar por este lote num loteamento já consolidado, beneficia de uma redução drástica nos prazos e custos burocráticos. - Ruas pavimentadas e iluminação pública instalada. - Redes de saneamento, esgoto e águas pluviais. Redes de eletricidade e telecomunicações prontas a ligar. Localização Estratégica Desfrute da paz de uma zona residencial exclusiva sem abdicar da conveniência urbana: - Centro da Figueira da Foz: - A 1.500 metros (cerca de 3 minutos de carro). - Proximidade a serviços, escolas e ao estilo de vida único que a proximidade ao mar oferece. Gaiphedra Imobiliária - 32 Anos de Confiança! Comprar um imóvel connosco é uma etapa tranquila e segura. Não perca a oportunidade de simplificar o seu projeto de vida. Contacte-nos hoje mesmo!
AMI: 6338
Ref. Externa: AV512
Id: 1678903
Inicie sessão para guardar este imóvel e aceder à sua lista de favoritos em qualquer dispositivo.
535.000 €
3 Quartos
3 WCs
Área bruta : 180 m²
Apresentamos esta exclusiva moradia T3, de arquitetura contemporânea e acabamentos premium, localizada numa zona residencial tranquila em Esmoriz. Pronta a estrear, esta moradia destaca-se pela sua luminosidade ímpar e pelo design focado no conforto, na funcionalidade e no excelente espaço exterior! Esta é uma construção de Excelência e Sustentabilidade. A solidez desta moradia é visível em cada detalhe, desde o muro e pérgulas em betão armado até às soluções técnicas invisíveis que garantem a durabilidade do imóvel: - Isolamento Superior: Edificada com caixa de ar e um sistema completo de drenagem no terreno. - Recursos Naturais: Propriedade equipada com 2 poços, ideal para manutenção do jardim e poupança de recursos. - Climatização de Topo: Conforto absoluto através de piso radiante em toda a casa, alimentado por uma Bomba de Calor de 500 litros, garantindo eficiência energética máxima. Este imóvel privilegia ainda, Equilíbrio, Design e Conforto. Construída num terreno de 465 m², a habitação distribui-se por dois pisos. No interior, a sensação de amplitude é imediata, graças ao pé-direito duplo na zona social, que confere uma volumetria imponente e sofisticada à sala. Organização dos Espaços (Pisos): A moradia destaca-se pela sua fluidez e funcionalidade, com orientação solar Nascente / Sul / Poente: - Piso Térreo (R/C): Zona social em open space com pé-direito duplo, cozinha gourmet (equipada com eletrodomésticos LG e AEG), um quarto versátil (ideal para escritório ou hóspedes), casa de banho completa e zona de lavandaria/casa das máquinas. - Piso Superior: Duas suítes master privativas com acesso a varandas amplas, proporcionando um refúgio de tranquilidade com vistas desafogadas. Destaques Exclusivos: - Privacidade e Descanso: Dispõe de 3 quartos generosos, sendo 2 deles suítes master, garantindo total conforto para a família. - Acabamentos de Luxo: As 3 casas de banho são verdadeiras peças de design, revestidas com cerâmicos de grande formato (sem juntas visíveis) e ferragens em tons dourados, seguindo as mais recentes tendências de decoração. - Luminosidade Natural: Com orientação solar a Nascente, Sul e Poente, a casa é banhada por luz natural durante todo o dia. - Eficiência Energética: Equipada com piso radiante e sistema de águas sanitárias via bomba de calor Daikin, garantindo o máximo conforto térmico com baixo consumo. - Cozinha Gourmet: Espaço funcional parcialmente equipado com eletrodomésticos de topo (LG Americano e AEG). - Arrumação Inteligente: Todos os armários foram totalmente personalizados, otimizando cada metro quadrado para uma organização impecável. - Conforto Tátil: Elegante escadaria em madeira que contrasta com o piso vinílico de alta resistência e conforto acústico no restante imóvel. - Segurança: Pré-instalação e possibilidade de colocação de câmaras de vigilância no interior para total controlo e segurança da sua família. Detalhes que Fazem a Diferença: - Varandas amplas no piso superior com vistas desafogadas. - Roupeiros embutidos com excelente capacidade de arrumação. - Projeto de iluminação e candeeiros já instalados em toda a casa. - Jardim privativo ideal para momentos de lazer ao ar livre. Localização Estratégica: Situada numa zona tranquila, mas com acesso imediato a escolas, serviços e às principais vias de comunicação, esta é a oportunidade ideal para quem não abdica da proximidade ao mar e da qualidade de construção superior. Inserida num lote de 465 m², a moradia oferece um generoso espaço exterior para jardim e lazer. A sua localização em Esmoriz permite o equilíbrio perfeito entre a serenidade residencial e a proximidade a escolas, serviços e à costa. Esta não é apenas uma casa, é um investimento na sua qualidade de vida. Agende hoje mesmo a sua visita e deixe-se surpreender pela atenção ao detalhe. Gaiphedra Imobiliária - Comprar um imóvel connosco é uma etapa tranquila e segura! Acompanhamos em todo o processo até ao momento da escritura, inclusive no momento de financiamento caso necessite de crédito habitação. Se tem dúvidas quanto à compra de um imóvel, não hesite em contactar-nos: mais de 32 anos de experiência na atividade imobiliária!
AMI: 6338
Ref. Externa: AV1.1
Id: 1674609
Inicie sessão para guardar este imóvel e aceder à sua lista de favoritos em qualquer dispositivo.
295.000 €
4 Quartos
3 WCs
Área bruta : 429 m²
Moradia de 4 frentes, 2 pisos e jardim, localizada em Alijó, a 30 minutos da cidade e das Universidades de Vila Real. Este imóvel, é uma oportunidade para quem deseja viver no coração do Alto Douro Minhateiro, considerado Património Mundial da Unesco. Se pertence ao grupo que procura viver longe do stress e reboliço do quotidiano, que privilegia a segurança e não ter de viver amedrontado com a violência diária das grandes cidades, este é o local ideal. Investir aqui, é ainda um passo firme e responsável para as suas poupanças, ou não fosse este o destino com maior crescimento em Portugal. A vivenda, necessita de algumas melhorias, mas as áreas são generosas, a exposição solar é excelente e as vistas são sempre panorâmicas, sem obstruções. Divisões: Piso 0: Cozinha com copa, sala com acesso ao jardim, 1 casa de banho, acesso a garagem e a 2 divisões em bruto. Piso 1: 4 quartos (1 é suite) e 1 casa de banho de apoio aos outros quartos. Alijó, cidade acolhedora, de imensa beleza, de encostas vinhateiras e de de trilhos que nos contam sempre uma história, está somente a : -1,30 h da cidade do Porto -40 Kms da cidade de Vila Real e das suas universidades -42 kms de Mirandela -1.10 h da cidade de Bragança, entre outras. Gaiphedra Imobiliária - Comprar um imóvel connosco é uma etapa tranquila e segura! Acompanhamos em todo o processo até ao momento da escritura, inclusive no momento de financiamento. Se tem dúvidas quanto à compra de um imóvel, não hesite em contactar-nos. 32 anos de experiência na atividade imobiliária.
AMI: 6338
Ref. Externa: 260302
Id: 1669742
Inicie sessão para guardar este imóvel e aceder à sua lista de favoritos em qualquer dispositivo.
Área bruta : 1 m²
Procura um espaço estratégico para dar visibilidade ao seu negócio, serviços ou publicidade informativa? Apresentamos esta oportunidade de exposição localizada no Shopping Oita, um dos centros comerciais de referência na cidade de Aveiro. Destaques do Espaço: Localização Privilegiada: Situada no 2º Piso, integrada numa zona de passagem obrigatória para escritórios e lojas em pleno funcionamento. Localização estratégica junto à Estação da CP, captando o fluxo constante de profissionais, residentes e visitantes que atravessam a principal artéria da cidade e frequentam o Shopping. Dimensões: 1,40 m² de área de exposição (montra), ideal para publicidade estática, vitrine de produtos ou painel informativo. Ideal para: - Divulgação de serviços profissionais (Advogados, Contabilidade, Imobiliárias). - Publicidade de marcas locais ou nacionais. - Exposição de produtos de nicho ou catálogos. - Ponto de informação estratégica no centro da cidade. Porquê escolher a Gaiphedra Imobiliária? Com mais 30 anos de experiência no mercado imobiliário, garantimos um processo totalmente transparente, seguro e profissional. Acompanhamos cada etapa!
AMI: 6338
Ref. Externa: AV5830
Id: 1657722
Inicie sessão para guardar este imóvel e aceder à sua lista de favoritos em qualquer dispositivo.
37.800 €
1 WCs
Área bruta : 48 m²
Aproveite esta excelente oportunidade de adquirir um espaço comercial versátil, localizado no rés-do-chão de um edifício habitacional, em pleno centro da histórica vila de Armamar. Características Principais: Área Bruta Privativa: 47,6 m² bem distribuídos e com luz natural direta. Infraestrutura: Equipada com casa de banho privativa e sistema de extração de fumos/exaustão Versatilidade: Espaço com potencial para comércio, serviços ou mesmo conversão em habitação, aproveitando a centralidade da vila. Um Local, Múltiplas Oportunidades: Devido à sua excelente localização e características técnicas, esta loja é ideal para: - Gourmet & Produtos Locais: Comercialização de vinhos do Douro, a famosa Maçã de Armamar, queijos e enchidos da região. - Restauração de Proximidade: Confeitaria, pastelaria ou pequeno café/snack-bar. - Serviços: Escritório, centro de estética, atelier ou pequeno centro logístico. Porquê investir em Armamar? - Inserida na Região Demarcada do Douro, Património Mundial da UNESCO, Armamar beneficia de um fluxo turístico crescente e de uma economia local dinâmica. - Proximidade Estratégica: Fronteira com Lamego, Peso da Régua, Tabuaço, Tarouca, Moimenta da Beira e Sabrosa. - Turismo e Cultura: Um destino de excelência para quem procura as paisagens vinhateiras e a gastronomia genuína do norte de Portugal. Confie na Gaiphedra Imobiliária Com mais de 30 anos de experiência, garantimos que a sua jornada de investimento seja pautada pela segurança e profissionalismo. Acompanhamento 360º: Desde a primeira visita até ao momento da escritura. Não perca esta oportunidade de se instalar num dos pontos mais autênticos do Douro. Agende já a sua visita!
AMI: 6338
Ref. Externa: AV38
Id: 1657717
Inicie sessão para guardar este imóvel e aceder à sua lista de favoritos em qualquer dispositivo.
2 Quartos
Área bruta : 73 m²
Deseja investir, em moradia (moradias), extraordinariamente bem localizadas, com inquilinos estáveis e de alguma idade? Numa localização estratégica: proximidade à A44, A1 e à futura linha de metro Rubi, em Vilar do Paraíso, temos 6 casas em venda, cada uma pelo valor de 119 500 €. oscilam entre os 60 e os 80 anos. Os imóveis contemplam a parte de habitação, arrumo e terreno. Imóveis em venda e as respectivas rendas: -casal mais novo: renda de 313,18 € -casal de idade: renda de 112,46 € -único inquilino: 283,20 € -casal idade: 160,51 € -casal idade: 204,48 € -casal idade: 153, 46 € Esta oferta, escassa no mercado, revela-se uma excelente oportunidade, para quem olhe para o futuro imobiliário e perceba que futuramente, poderá ser proprietário duma moradia, que facilmente rentabilizará no mercado, de arrendamento ou venda, investindo as suas poupanças de forma tranquila e segura; poupanças, que de contrário, tomando como base os juros pagos pelas instituições bancárias e o índice de inflação, resultam anualmente numa perca efetiva de capital. As visitas serão agendadas após a efetivação de real interesse na aquisição do (s) imovel (eis). Os financiamentos bancários estão condicionados a 70% do valor de avaliação, atendendo ao fato dos imóveis se encontrarem arrendados. Gaiphedra Imobiliária - Comprar um imóvel connosco é uma etapa tranquila e segura! Acompanhamos em todo o processo até ao momento da escritura, inclusive no momento de financiamento caso necessite de crédito habitação. Se tem dúvidas quanto à compra de um imóvel, não hesite em contactar-nos: 30 anos de experiência na atividade imobiliária!
AMI: 6338
Ref. Externa: 260220
Id: 1651768
Inicie sessão para guardar este imóvel e aceder à sua lista de favoritos em qualquer dispositivo.
165.000 €
2 Quartos
1 WCs
Área bruta : 119 m²
Esta é um apartamento, tipo andar moradia, ideal, para quem procura comprar bem e barato e que está localizada em Abragão, Penafiel. Totalmente restaurada, é um imóvel destinado a quem deseja fazer uma compra racional, sem ter de sofrer com as consequências duma possível bolha imobiliária. Destina-se a quem procura a tranquilidade, a segurança (viver junto de pessoas que se conhecem diariamente ), num ritmo de vida tranquilo, rural e de envolvência das paisagens da natureza, sem estar privado dos serviços e comércio das grandes cidades. Se comparar este preço com os das grandes cidades ali perto, confirma que irá comprar mais barato e com margem de evolução futura para uma mais valia. O que irá encontrar neste imóvel : cozinha com área para refeições, sala, 2 quartos , casa banho completa com luz direta e uma garagem fechada. Esta é uma oportunidade que não encontra em sites como os da Remax, Era e Century. Resultam do trabalho de quem desde à 32 anos permanece no mercado imobiliário de forma sustentável, com credibilidade e profissionalismo.
AMI: 6338
Ref. Externa: 260216.3
Id: 1651770
Inicie sessão para guardar este imóvel e aceder à sua lista de favoritos em qualquer dispositivo.
399.000 €
11 Quartos
9 WCs
Área bruta : 943 m²
Oportunidade moradia com piscina em Maiorca, Figueira da Foz. Excelente opção direcionada ao mercado de investimento para alojamento local ou organização de eventos. Distribuição das divisões: Piso 0/ala direita: -2 salas (1 com lareira) e com acesso direto ao jardim, lavandaria, quarto de banho e acesso à garagem. Piso 0/ala esquerda -1 escritório, cozinha com despensa e com ligação a sala com lareira, sala de refeições. Ligação ao jardim Tem caixa de elevador. Piso 1/ala direita: -4 quartos de banho e 6 quartos Piso 1ala esquerda: -1 sala com lareira, 3 quartos. Poso 2:-1 quarto de banho, 1 quarto e 1 arrumo Zona exterior, além da piscina, oferece pequenos retiros espalhados pelas 750 m2 de espaço ajardinado. Tem ainda uma zona de churrasco. O exterior tem ainda diversas zonas de descanso e lazer com bancos de jardins, varandins, árvores de fruta, variedade de flores e arrumo de apoio. Existe um poço água para a rega do jardim e funcionamento da piscina. Esta Quinta está localizada na Rota de Maiorca, nas margens do Mondego, com proximidade à praia Fluvial da Ereira, à Lagoa de Maiorca, à a Rota do Megalitismo, está ainda a 7 Km de Montemor-O-Velho e a 45 Kms da cidade de Coimbra, Port a 1 hora e Lisboa a 1 hora e meia, usando as autoestradas A1, A14 e A14. Maiorca oferece o equilíbrio entre a tranquilidade do campo e a proximidade à praia da Figueira da Foz, que está a 10 minutos.
AMI: 6338
Ref. Externa: 220715 (2)
Id: 1651767
Inicie sessão para guardar este imóvel e aceder à sua lista de favoritos em qualquer dispositivo.
230.000 €
3 Quartos
2 WCs
Área bruta : 175 m²
Esta é uma moradia unifamiliar, para quem procura comprar bem e barato, que está localizada em Abragão, Penafiel. Totalmente restaurada, é um imóvel destinado a quem deseja fazer uma compra racional, sem ter de sofrer com as consequências duma possível bolha imobiliária. Destina-se a quem procura a tranquilidade, a segurança (viver junto de pessoas que se conhecem diariamente ), num ritmo de vida tranquilo, rural e de envolvência das paisagens da natureza, sem estar privado dos serviços e comércio das grandes cidades. Se comparar este preço com os das grandes cidades ali perto, confirma que irá comprar mais barato e com margem de evolução futura para uma mais valia. O que irá encontrar neste imóvel: Uma entrada independente, um terraço privativo, um escritório, ou salão independente, cozinha com área para refeições, sala, 3 quartos (1 é suite), casa banho completa com luz direta e uma garagem fechada. Esta é uma oportunidade que não encontra em sites como os da Remax, Era e Century. Resultam do trabalho de quem desde à 32 anos permanece no mercado imobiliário de forma sustentável, com credibilidade e profissionalismo.
AMI: 6338
Ref. Externa: 260216-1
Id: 1645445
Inicie sessão para guardar este imóvel e aceder à sua lista de favoritos em qualquer dispositivo.
230.000 €
2 Quartos
1 WCs
Área bruta : 200 m²
Esta é uma moradia unifamiliar, para quem procura comprar bem e barato, que está localizada em Abragão, Penafiel. Totalmente restaurada, é um imóvel destinado a quem deseja fazer uma compra racional, sem ter de sofrer com as consequências duma possível bolha imobiliária. Destina-se a quem procura a tranquilidade, a segurança (viver junto de pessoas que se conhecem diariamente ), num ritmo de vida tranquilo, rural e de envolvência das paisagens da natureza, sem estar privado dos serviços e comércio das grandes cidades. Se comparar este preço com os das grandes cidades ali perto, confirma que irá comprar mais barato e com margem de evolução futura para uma mais valia. O que irá encontrar neste imóvel de dois pisos: Uma entrada independente, um terraço privativo, um escritório, ou salão independente, cozinha com área para refeições, sala, 2 quartos (1 é suite), casa banho completa com luz direta e uma garagem fechada. Esta é uma oportunidade que não encontra em sites como os da Remax, Era e Century. Resultam do trabalho de quem desde à 32 anos permanece no mercado imobiliário de forma sustentável, com credibilidade e profissionalismo.
AMI: 6338
Ref. Externa: 260216-2
Id: 1645446
Inicie sessão para guardar este imóvel e aceder à sua lista de favoritos em qualquer dispositivo.
1 Quartos
1 WCs
Área bruta : 80 m²
Oportunidade, para quem deseja viver no centro de Matosinhos. Quem não conhece o local onde é realizada a festa do Senhor de Matosinhos? Escolher viver aí, é usufruir do coração histórico de Matosinhos, onde a procura de apartamentos é elevada e a oferta limitada. Vantagens: Metro do Porto (linha azul), aeroporto do Porto, muito perto Proximidade à praia (praia de Matosinhos a 1 Km) Junto a diversos hipermercados, hospitais (CUF e Pedro Hispano), Polo Universitário (10 minutos), entre outros. Descrição do apartamento: Dispões de duas frentes soalheiras Open Space com varanda e despensa Quarto interior Casa de Banho com base de chuveiro Quarto principal com roupeiro Não necessita de qualquer melhoramento de obras, tem um excelente isolamento acústico (janelas de vidro duplo), entre outros. Se optar pela compra para investimento, um apartamento deste tipo, poderá ser alugado por cerca de 1 200 €/mês, mas se o direccionar para o alojamento local, esse valor poderá triplicar. Terá ainda a garantia que mesmo no futuro, os preços venham a baixar, nas zonas históricas e junto ao mar, esta será uma excelente opção que responderá à crise.
AMI: 6338
Ref. Externa: 260214
Id: 1639084
Inicie sessão para guardar este imóvel e aceder à sua lista de favoritos em qualquer dispositivo.
111.000 €
1 WCs
Área bruta : 85 m²
A 150m da Torre do Relógio e a Passos do Casino e da Praia Apresentamos duas excelentes frações comerciais localizadas estrategicamente entre a Rua Dr. Calado e a Rua Maestro David de Sousa. Situadas nas traseiras do Casino e a apenas 250 metros da areia, estas lojas oferecem a visibilidade e o prestígio que o seu negócio ou investimento merece. Destaques das Frações: - Infraestrutura Completa: Ambas as lojas possuem banho privativo e sistema de exaustão, uma característica rara e essencial para negócios de restauração, cafetaria ou pastelaria. - Versatilidade Total: Atualmente com afetação para comércio e serviços, apresentam também um enorme potencial para conversão em habitação, aproveitando a elevada procura por lofts ou apartamentos turísticos no centro da cidade. - Localização Imbatível: Inseridas na zona mais vibrante da Figueira da Foz, com fluxo constante de turistas e residentes durante todo o ano. Opções Disponíveis: Unidade - Área Bruta Privativa - Valor Patrimonial - Valor de Venda Loja J - 84,75 m² - 107.076 € - 111.300 € Loja B - 80,50 m² - 101.703 € - 107.280 € Envolvente Privilegiada: - Lazer: Casino da Figueira da Foz e Praias (250m). - Ícones da Cidade: Torre do Relógio a apenas 150m. - Conveniência: Rodeadas pelo melhor comércio tradicional, restauração e serviços da cidade. Invista com a Segurança da Gaiphedra Imobiliária Com mais de 30 anos de experiência no setor, garantimos que a sua etapa de investimento seja tranquila, segura e profissional. Acompanhamento 360º! Garanta a sua posição no centro da Figueira da Foz. Agende hoje a sua visita!
AMI: 6338
Ref. Externa: AV20 (J)
Id: 1631491
Inicie sessão para guardar este imóvel e aceder à sua lista de favoritos em qualquer dispositivo.
2 WCs
Área bruta : 156 m²
Loja com montra para a rua localizada muito perto da estação do Lavradio, no Barreiro. Este estabelecimento é composto no r/c por 1 divisão ampla com a área coberta de 138,28 m2 e a nível da cave possuí duas casas de banho e lavabos com a área coberta de 17,68 m2 perfazendo a área total coberta de 155,96 m2 O espaço está em bruto (sem acabamentos) e é vendido no exato estado em que se encontra. Tem afetação presente a comércio, mas esta é uma excelente possibilidade ao abrigo do decreto lei 10/2024 de 8 de Janeiro (Simplex), de refletir na aquisição da mesma para transformar em habitação/apartamento. Se pensar nela para desenvolvimento comercial: Está localizada numa situação estratégica excelente, beneficia de grande circulação de pessoas (moradores, passageiros e moradores locais), que garante uma visibilidade significativa. Potencial de clientes, pela proximidade à estação e de quem usa o comboio regularmente. Potencial de valorização Diversidade de negócios, desde lojas de conveniência e cafés até serviços úteis para viajantes e moradores. Gaiphedra Imobiliária - Comprar um imóvel connosco é uma etapa tranquila e segura! Acompanhamos em todo o processo até ao momento da escritura, inclusive no momento de financiamento caso necessite de crédito habitação. Se tem dúvidas quanto à compra de um imóvel, não hesite em contactar-nos: 30 anos de experiência na atividade imobiliária!
AMI: 6338
Ref. Externa: AV871
Id: 1631492
Inicie sessão para guardar este imóvel e aceder à sua lista de favoritos em qualquer dispositivo.
1.600.000 €
5 Quartos
6 WCs
Área bruta : 600 m²
Viver ou investir no Monte Rei Golf & Country Club em Sesmarias, Vila Real de Santo António, é escolher um dos principais resort de luxo e um dos principais destinos de golfe da Europa e o número 1 em Portugal, com um campo Jack Niclaus Signature; pode ainda beneficiar de SPA, piscinas, campos de ténis, restaurantes de chefs Michelin e vigilância 24 horas, 7 dias por semana. Se optar pelo investimento, pode recorrer a uma gestão de aluguer com garantia assegurada de rentabilidade, ou não fosse este espaço muito procurado por reformados, nómadas digitais, desportistas ou empresários. Os custos destes lotes começam nos 875 000 € e as moradias oscilam em torno dos 3 800 000 €. A construção com uma área 399,60 m2 e distribui as divisões da seguinte forma: piso-1: hall, garagem (100 m2), casa do lixo, Ginásio (233 m2), varanda (15 m2), área técnica (27 m2), área armazenamento água e produção AQS (30 m2), pátio (13 m2), zona ar condicionado, área técnica (20 m2), área apoio à piscina -piso 0 -:sala estar (71 m2), cozinha (36 m2), sala jantar (30 m2) e terraço 33 m2 -piso 1:-suite 1 com closet (27 m2), suite 2(20 m2), suite 3 (20 m2 ) e varanda (50 m2), suite 4 com closet (36 m2) e terraço de 48 m2. O imóvel é vendido - composto por: Projeto aprovado pelo Resort para moradia unifamiliar T5, válida até março de 2026. Apresenta inicio de construção recente: movimentação de terras, estrutura, impermeabilizações (nas fundações e muros de suporte), redes de esgotos embebidas na estrutura e instalações embebidas na estrutura da piscina. Existe a possibilidade de realizar a obra na totalidade. Localização: Em pleno Sotavento, o Monte Rei Golf & Country Club beneficia de um estratégico cruzamento entre três variáveis geográficas: a proximidade a algumas das melhores praias do Sul, a contiguidade à principal rede viária do Algarve e a curta distância que o separa do Aeroporto de Faro. Algarve, um destino altamente procurado No Algarve, todos os momentos são feitos de vivências de puro prazer. Iluminada por 300 dias de sol por ano, elevada pelo verde do golfe e rodeada pelo dourado das praias,. Esta é a vida da qual se desfruta no Algarve.
AMI: 6338
Ref. Externa: 230805 (2)
Id: 1631493
Inicie sessão para guardar este imóvel e aceder à sua lista de favoritos em qualquer dispositivo.
Área bruta : 2249 m²
Imóvel de 2 pisos, com área total de 2 249 m2 , localizada em Santo António de Cavaleiros, Loures, a 12 Km do centro de Lisboa e a 10 Km do aeroporto Internacional de Lisboa. Este é um espaço distribuído por dois pisos: -piso de serviços e comércio com 1.169 m2, no qual se desenvolve a zona de serviços e comércio com zona ampla (open space) - layout original - , instalações sanitárias separadas por sexos e pessoas com mobilidade reduzida, zonas técnicas, dois elevadores e escadas de acesso ao piso das garagens. - pis de aparcamento com 1.080,80 m2, equivalente a 32 lugares de garagem. O espaço encontra-se com contrato de arrendamento em vigor, com termo certo e é vendido nessa condição (caso o inquilino não exerça o direito de preferência na compra). As visitas são condicionadas a formalização prévia de proposta. Contacte-nos para informações adicionais. Este espaço comercial beneficia da proximidade ao centro de Loures que está a 3,9 Km e ao centro de Lisboa que está a 12 Km pelo Eixo Central. Gaiphedra Imobiliária - Comprar um imóvel connosco é uma etapa tranquila e segura! Acompanhamos em todo o processo até ao momento da escritura, inclusive no momento de financiamento caso necessite de crédito habitação. Se tem dúvidas quanto à compra de um imóvel, não hesite em contactar-nos: 30 anos de experiência na atividade imobiliária!
AMI: 6338
Ref. Externa: AV260
Id: 1631486
Inicie sessão para guardar este imóvel e aceder à sua lista de favoritos em qualquer dispositivo.
332.520 €
Área bruta : 1540 m²
Antes: 336.900€ | AGORA: 332.520€ Uma Oportunidade no Coração da Cidade Apresentamos um imóvel de dimensões únicas, localizado na cave de um edifício misto (habitação, escritórios e comércio) na Figueira da Foz, estrategicamente posicionado em frente aos Bombeiros Sapadores. Com uma área de 1.540 m², este espaço oferece a flexibilidade que o seu negócio ou investimento procura. Destaques do Imóvel: - Área Generosa: 1.540 m² de área bruta privativa, uma das maiores áreas disponíveis na zona urbana. - Afetação Versátil: Como estacionamento coberto e fechado, mas com características ideais para armazém de retém/logística. -Acesso Facilitado: Entrada direta da rua através de rampa larga com portão automatizado, garantindo segurança e comodidade. - Independência Total: Espaço completamente individualizado dentro do edifício. Potencial de Rentabilização: Este imóvel é a solução perfeita para diversas frentes de negócio: - Logística e Distribuição: Ideal para empresas que necessitam de um centro de armazenamento ou 'last mile delivery' no centro da Figueira da Foz. - Parque de Estacionamento Privado: Possibilidade de exploração para avenças mensais ou rotativas, dada a localização central e a densidade populacional da zona. - Gestão de Frotas: Espaço suficiente para recolha de frotas comerciais, rent-a-car ou exposição de veículos. - Self-Storage: Oportunidade para converter em unidades de armazenamento individual (box), um mercado em forte crescimento. Localização Estratégica: - Situado numa zona de fácil reconhecimento e acessibilidade, a segurança é reforçada pela proximidade imediata ao quartel dos Bombeiros Sapadores. A inserção num prédio misto garante um fluxo constante de potenciais utilizadores e proximidade a todo o tipo de serviços e comércio. Dados Adicionais: - Valor Patrimonial (CIMI): 226.994,60€ (Um indicador sólido para a viabilidade do investimento). Confie na Experiência da Gaiphedra Imobiliária Com mais de 30 anos de presença no mercado, a Gaiphedra assegura que o seu investimento é conduzido com total transparência e rigor. Acompanhamento especializado desde a primeira visita à escritura. Maximize o seu capital com um ativo de dimensões invulgares. Agende a sua visita!
AMI: 6338
Ref. Externa: AV298-A
Id: 1631496
Inicie sessão para guardar este imóvel e aceder à sua lista de favoritos em qualquer dispositivo.
Inicie sessão para ocultar este imóvel das suas pesquisas e manter a sua lista de resultados organizada.
Gaiphedra Imobiliária
Agência imobiliária - AMI: 6338
Compre créditos para poder destacar os seus imóveis! Desta forma eles são os primeiros a aparecer nas pesquisas e têm uma maior chance de serem vistos pelos utilizadores.
© Copyright 2023 | CASACERTA. All rights reserved
Guardar favoritos
Este imóvel foi guardados nos seus favoritos com sucesso.
Para poder guardar pesquisa deverá ter a sua sessão iniciada.
Caso não tenha uma conta, deverá criar uma.
A sua pesquisa foi guardada com sucesso!
Este site utiliza cookies. Ao navegar no site estará a consentir a sua utilização.
Para mais informações sobre os cookies pode consultar a
política de privacidade.