Consultor imobiliário em Patrícia Tiago Unipessoal, lda - AMI: 22918
Comprar
Arrendar
695.000 €
4 Quartos
4 WCs
Área bruta : 345 m²
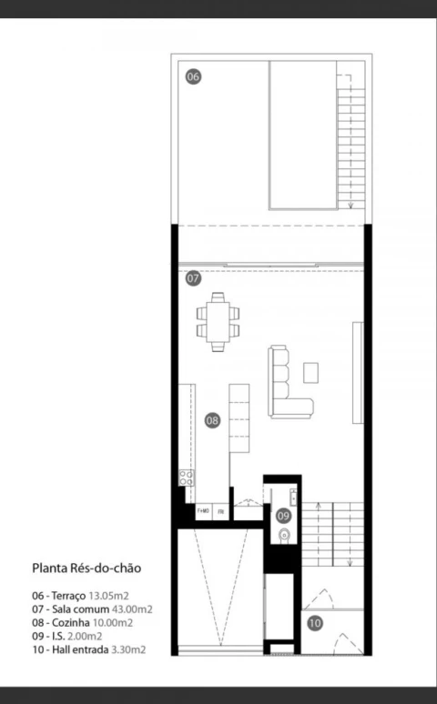
Moradia T4 de Luxo em Nogueira – Maia, com Piscina e Acabamentos Premium. Apresentamos esta exclusiva moradia T4 em Nogueira – Maia, um imóvel contemporâneo que combina arquitetura moderna, áreas amplas e acabamentos de excelência. Com certificação energética A, esta residência foi projetada ao pormenor para oferecer o máximo de conforto, sofisticação e funcionalidade, proporcionando um estilo de vida elevado para si e para a sua família. Distribuição do Imóvel : Cave •Garagem (box) para 4 viaturas – 60,91 m² •Vão de escadas – 6,40 m² •Arrumos 1 – 12,17 m² •Arrumos 2 – 7,96 m² •Sala das máquinas – 7,96 m² Rés-do-chão •Sala e cozinha em open space, totalmente equipada, com acesso direto ao jardim e piscina – 57,56 m² •Despensa – 2,06 m² •WC de serviço – 3,22 m² •Quarto/escritório – 10,76 m² •Hall de entrada – 4,48 m² 1.º Piso •Suíte Master com varanda – 19,52 m² •Closet – 7,23 m² •WC privativo – 4,98 m² •Suíte 2 •Quarto – 14,36 m² •Closet – 7,82 m² •WC – 4,98 m² •Suíte 3 •Quarto – 12,80 m² •WC – 3,12 m² •Hall de circulação – 1,80 m² Acabamentos de Excelência Cada pormenor desta moradia foi cuidadosamente selecionado para garantir elegância, durabilidade e conforto: •Porta de entrada: segurança reforçada em alumínio lacado •Caixilharias: alumínio com corte térmico e vidro duplo laminado Guardian Sun •Estores: elétricos interiores blackout •Carpintarias: portas, rodapés e armários em carvalho envernizado mate, com puxadores embutidos •Escadas: degraus suspensos em madeira de carvalho, com LED embutido e guardas em vidro •Pavimentos: vinil de tom carvalho nas áreas principais; cerâmico de grande formato nas zonas técnicas •Iluminação: focos e fitas LED estrategicamente integrados •Cozinha: totalmente equipada com eletrodomésticos Haier/Teka, móveis em carvalho ou lacados e tampos em Compact Quartz •WCs: louças suspensas, torneiras de design, bases de duche em vidro laminado e revestimentos cerâmicos 60x120 cm Conforto e Segurança Esta moradia garante elevado desempenho energético e total segurança através de: •Sistema de climatização por condutas Haier •Bomba de calor para AQS •Vídeo porteiro em todos os pisos •Sistema de vigilância CCTV com acesso remoto •Alarme de intrusão, incêndio e inundação •Garagem preparada para carregamento de veículos elétricos Exterior O exterior foi pensado para proporcionar momentos de lazer e bem-estar: •Piscina térmica 6 m x 3 m, com acabamento em tela •Jardim relvado com rega automática •Acessos automóvel e pedonal . Localização Privilegiada Situada numa zona residencial tranquila e bem servida de acessos, a moradia localiza-se a: •1 min de transportes públicos •4 min da A41, A3 e A4 •4 min do MaiaShopping e Maia Jardim •1 min do Colégio Novo da Maia •7 min do centro da Maia Uma Casa Criada para Superar Expectativas ! Esta moradia T4 em Nogueira – Maia destaca-se pela amplitude das divisões, pelos acabamentos premium e por uma arquitetura funcional e contemporânea, ideal para famílias que valorizam conforto, segurança e modernidade. Para mais informações ou agendar visita, entre em contacto.
AMI: 22918
Ref. Externa: HT00128
Id: 1492803
Inicie sessão para guardar este imóvel e aceder à sua lista de favoritos em qualquer dispositivo.
3 Quartos
1 WCs
Área bruta : 149 m²
Apresentamos uma excelente oportunidade para quem procura um projeto de remodelação no coração de São Mamede de Infesta. Esta moradia T3, inserida num generoso terreno de 345,40 m², oferece um enorme potencial para transformar e personalizar ao seu gosto , seja para habitação própria ou investimento. Com uma área bruta de 149,40 m², o imóvel distribui-se por dois pisos, permitindo criar uma casa funcional, moderna e confortável. O amplo espaço exterior possibilita a construção de jardim, zona de lazer ou até uma pequena horta, adaptando-se às necessidades da família. Localizada em zona central, esta moradia beneficia de excelente acessibilidade, proximidade a comércio, serviços, escolas e transportes, garantindo comodidade no dia a dia. Pontos fortes do imóvel: •Moradia T3 para recuperação total •Terreno com 345,40 m² •Área bruta de construção: 149,40 m² •Localização central e privilegiada •Ótimo potencial para valorização Se procura um imóvel para renovar e criar a casa dos seus sonhos numa zona consolidada e com grande procura, esta é uma oportunidade imperdível. Contacte-nos para mais informações ou agende a sua visita! Empresa Somos uma empresa de consultores imobiliários especializados em consultoria imobiliária cujo objetivo comum é proporcionar a todos os clientes uma vasta gama de serviços de excelência na compra, venda e arrendamento de imóveis dentro e fora do mercado imobiliário nacional. A disciplina, dedicação, foco, conhecimento do mercado, rigor, relações pessoais e profissionais são alguns dos valores que guiam o trabalho desta equipa e que se traduzem pela excelência, eficiência e eficácia prestada a todos os nossos clientes. Proporcionamos uma vasta gama de serviços no mercado imobiliário e todos os nossos clientes são acompanhados até à finalização do seu negócio e no serviço pós-venda.
AMI: 22918
Ref. Externa: HT00123
Id: 1488383
Inicie sessão para guardar este imóvel e aceder à sua lista de favoritos em qualquer dispositivo.
890.000 €
3 Quartos
3 WCs
Área bruta : 270 m²
Descubra esta deslumbrante Moradia T3 de arquitetura moderna, onde o design contemporâneo se alia à funcionalidade para proporcionar um estilo de vida sofisticado, confortável e totalmente orientado para o bem-estar. Com 4 frentes solares e inserida num generoso lote de 833 m², esta propriedade destaca-se pela excelente luminosidade natural, pela robustez construtiva e por uma distribuição inteligente dos espaços interiores e exteriores. Com uma área bruta de construção de 285,70 m² e uma área privativa de 146,45 m², cada detalhe foi pensado para criar um ambiente harmonioso, acolhedor e requintado, ideal para quem procura qualidade de vida num cenário moderno e elegante. -Destaques do Exterior: • Piscina de água salgada e aquecida, perfeita para desfrutar durante todo o ano; • Ginásio exterior com ar condicionado; • Churrasqueira para convívios memoráveis; • Espaço de relaxamento no jardim, pensado para momentos de descanso; • Logradouro amplo, com excelente exposição solar; • Lote com 833 m² -Características Principais: • Área Bruta: 285,70 m² • Área Útil: 146,45 m² • Garagem: Espaço para 2/3 carros • Ano de Construção: 2022 • Revestimento Exterior: Capoto e Pedra Natural -Cave: • Lavandaria • Salão de jogos e garrafeira • Garagem com capacidade para 2/3 carros -Rés do Chão: • Sala ampla com duas janelas, aquecimento central; • Tetos com LEDs e pavimento flutuante em madeira; • Cozinha moderna termo-laminada, totalmente equipada com: – Placa – Forno – Micro-ondas – Exaustor – Frigorífico – Máquina de lavar loiça • 1 WC de serviço -Primeiro Piso: • 1 suíte com roupeiro e WC privativo; • 2 quartos com roupeiros embutidos; • 1 WC completo de apoio aos quartos -Localização: Situada numa zona calma e tranquila, com ótimos acessos e a poucos metros da entrada da autoestrada, esta moradia proporciona proximidade a comércio, serviços e todas as comodidades necessárias para um estilo de vida confortável e de alta qualidade. C.E.: A Para mais informações, não hesite em contactar a nossa equipa. Estamos ao seu dispor!
AMI: 22918
Ref. Externa: HT00126
Id: 1483848
Inicie sessão para guardar este imóvel e aceder à sua lista de favoritos em qualquer dispositivo.
Área de terreno : 398 m²
O terreno perfeito para dar vida à casa que sempre imaginou, num ambiente calmo e familiar em São Mamede do Coronado! Se procura um lote de terreno com boa exposição solar, inserido numa zona tranquila e com excelente acessibilidade, esta é a oportunidade perfeita para si e para a sua família. Localizado em São Mamede do Coronado, no concelho da Trofa, este terreno reúne todas as condições para dar vida ao seu projeto de habitação num ambiente calmo, seguro e com ótimos acessos. Com uma área total de 398,90 m², o lote está inserido numa urbanização recente e harmoniosa, composta por moradias familiares modernas, o que garante uma envolvência agradável e um ambiente de vizinhança sereno. A rua é pouco movimentada, ideal para quem valoriza o sossego e a privacidade, permitindo desfrutar do conforto de uma vida tranquila, sem abdicar da proximidade aos principais serviços, comércio e transportes. O terreno apresenta uma ligeira inclinação, o que proporciona múltiplas possibilidades arquitetónicas, permitindo criar uma moradia com cave, rés-do-chão e primeiro andar. Já existiu anteriormente um projeto aprovado para uma moradia de quatro frentes, com elevador residencial e excelente distribuição de áreas, mas que atualmente se encontra caducado — uma excelente base de inspiração para quem pretende retomar ou adaptar o conceito a um estilo mais atual. A área de implantação prevista é de 112,40 m², enquanto a área bruta de construção ascende a 343,80 m², com uma área bruta dependente de 17,90 m², oferecendo espaço suficiente para conceber uma moradia confortável, moderna e funcional, com áreas amplas e bem iluminadas. A exposição solar é excelente, permitindo tirar o máximo partido da luz natural ao longo do dia — ideal para um lar energicamente eficiente, acolhedor e cheio de vida. Imagine o prazer de acordar todos os dias com o sol a iluminar as janelas da sua nova casa, de preparar o pequeno-almoço com vista para o seu jardim e de terminar o dia num ambiente calmo e seguro. Este lote oferece o cenário perfeito para criar memórias em família e construir uma habitação à sua medida, com espaço exterior para uma zona de lazer, jardim, churrasqueira ou até uma piscina privada. Além da tranquilidade, a localização é um dos grandes trunfos deste imóvel. A apenas 900 metros da Vila do Coronado, encontra todos os serviços essenciais — padarias, cafés, farmácias, escolas e comércio local — a uma curta distância. O Pingo Doce de São Romão do Coronado fica a 2 km, enquanto a estação de comboios de São Romão se encontra a cerca de 3 km, garantindo ligação rápida à Maia, Ermesinde e Porto. Para quem privilegia o metro, a estação do Castêlo da Maia está a apenas 3,5 km, facilitando a mobilidade diária. Os acessos rodoviários são igualmente excelentes, com a Autoestrada A41 a cerca de 5 km, permitindo chegar facilmente a qualquer ponto da Área Metropolitana do Porto. Esta conjugação entre serenidade residencial e conveniência urbana torna este terreno uma opção rara e valiosa. Trata-se de uma excelente oportunidade tanto para quem sonha construir a sua casa de família, como para investidores que procuram um terreno com potencial de valorização numa zona em constante desenvolvimento. A urbanização apresenta um ambiente cuidado, ruas arranjadas e uma envolvência onde predominam moradias modernas, o que reforça o valor patrimonial e estético da área. Aqui, o sonho da casa perfeita ganha forma — uma moradia moderna, luminosa, confortável e funcional, desenhada à sua medida, num local onde cada detalhe convida a viver melhor. Se procura qualidade de vida, tranquilidade e um excelente investimento, este lote em São Mamede do Coronado é a escolha certa. Agende já a sua reunião para conhecer o projeto em pormenor — temos a certeza de que vai ficar surpreendido com o potencial deste espaço. NOTA: Áreas conforme documentação existente.
AMI: 22918
Ref. Externa: SR0027
Id: 1458043
Inicie sessão para guardar este imóvel e aceder à sua lista de favoritos em qualquer dispositivo.
520.000 €
3 Quartos
5 WCs
Área bruta : 300 m²
Um novo conceito de habitação contemporânea na Maia, onde o design moderno se funde com o conforto e a funcionalidade. Esta moradia foi pensado ao detalhe para quem procura um lar sofisticado, com acabamentos Premium e espaços amplos que inspiram bem-estar em cada ambiente. - Arquitetura e Design Com linhas minimalistas e harmoniosas, as Casas das Devesas aliam arquitetura contemporânea, materiais nobres e soluções técnicas de última geração. A distribuição inteligente dos espaços permite uma vivência fluida entre o interior e o exterior, valorizando a luz natural, a privacidade e a comodidade de cada moradia. - Características Principais: •Área bruta aproximada: 300 m², distribuídos por cave, rés-do-chão e 1.º piso •3 suítes, todas com roupeiros embutidos •5 casas de banho (3 completas + 2 de serviço) •Sala e cozinha em open-space, com ligação direta ao pátio •2 pátios privativos (rés-do-chão e cave), ideais para momentos de lazer •Garagem fechada para 2 carros •Lavandaria e casa das máquinas independentes - Acabamentos e Equipamentos Cada detalhe foi pensado para garantir conforto, eficiência e elegância: •Ar condicionado por conduta •Piso radiante na cave •Bomba de calor para águas sanitárias •Brisa solar (proteção solar e térmica) •Revestimentos em pedra natural •Cozinha equipada com móveis lacados e bancadas embutidas •Pisos multicamadas de elevada durabilidade •Casas de banho com louças suspensas e torneiras encastradas •Rede Ethernet em todas as divisões (ideal para teletrabalho e domótica) - Localização Situadas em Milheirós, Maia, as Casas das Devesas oferecem o equilíbrio perfeito entre tranquilidade e acessibilidade. A poucos minutos do centro da Maia e do Porto, este é o local ideal para quem deseja viver com qualidade, proximidade e conforto, num ambiente seguro e moderno. - Entrega prevista: Setembro de 2027 Um novo conceito de viver com elegância. Convidamo-lo a descobrir o seu futuro lar com a HT Consultores Imobiliários. ? Contacte-nos para mais informações ou agende a sua visita. Empresa Somos uma empresa de consultores imobiliários especializados em consultoria imobiliária cujo objetivo comum é proporcionar a todos os clientes uma vasta gama de serviços de excelência na compra, venda e arrendamento de imóveis dentro e fora do mercado imobiliário nacional. A disciplina, dedicação, foco, conhecimento do mercado, rigor, relações pessoais e profissionais são alguns dos valores que guiam o trabalho desta equipa e que se traduzem pela excelência, eficiência e eficácia prestada a todos os nossos clientes. Proporcionamos uma vasta gama de serviços no mercado imobiliário e todos os nossos clientes são acompanhados até à finalização do seu negócio e no serviço pós-venda.
AMI: 22918
Ref. Externa: HT00124
Id: 1458044
Inicie sessão para guardar este imóvel e aceder à sua lista de favoritos em qualquer dispositivo.
345.000 €
3 Quartos
1 WCs
Área bruta : 213 m²
Imagine viver num lugar onde a tranquilidade é o verdadeiro luxo, onde o som dos pássaros substitui o ruído da cidade e cada amanhecer traz consigo a promessa de um dia sereno. É em São Pedro de Avioso, uma das zonas mais agradáveis e procuradas do concelho da Maia, que se encontra esta moradia térrea com um terreno de 1500m² — uma oportunidade única para quem procura espaço, privacidade e um projeto cheio de potencial. Esta moradia de tipologia T3, desenvolvida num único piso, combina o charme da arquitetura tradicional com uma estrutura sólida, ideal para quem deseja renovar e personalizar um espaço ao seu gosto. Embora necessite de obras de reabilitação, o imóvel apresenta uma base robusta, uma boa exposição solar e áreas equilibradas, características que permitem criar um lar moderno, confortável e harmonioso. O interior é composto por três quartos, perfeitos para acomodar a família ou criar espaços de trabalho, lazer ou descanso. A sala de estar, ampla e iluminada, convida a momentos de convívio e tranquilidade, podendo ser facilmente transformada num ambiente elegante e contemporâneo. A cozinha, atualmente em estado original, oferece o potencial para se tornar o verdadeiro coração da casa — um espaço funcional e acolhedor, ideal para refeições em família e momentos de partilha. A casa de banho completa o conjunto, aguardando um toque de modernidade que valorize a sua praticidade. O exterior desta propriedade é, sem dúvida, o seu maior trunfo. O terreno, com aproximadamente 1500m², oferece múltiplas possibilidades de aproveitamento — desde a criação de uma zona ajardinada com árvores e flores, até a instalação de uma piscina, uma horta biológica ou uma área de lazer com churrasqueira. Trata-se de um espaço onde o ar puro e o contacto com a natureza são parte do quotidiano, proporcionando um estilo de vida mais calmo e saudável. A presença de um poço de água acrescenta valor e funcionalidade, permitindo regar o terreno de forma económica e sustentável. Para quem valoriza a autonomia e a ligação com a terra, esta é uma característica rara e extremamente útil. A garagem, espaçosa e prática, oferece estacionamento seguro para vários veículos e espaço extra para arrumos, oficina, ginásio ou até um pequeno estúdio. O acesso à propriedade faz-se por um portão largo, e o pátio em calçada confere um toque rústico e acolhedor ao conjunto, refletindo o espírito autêntico das casas de campo portuguesas. A moradia está inserida numa zona residencial tranquila, rodeada de verde e com um ambiente familiar, ideal para quem procura paz sem abdicar da proximidade à cidade. A poucos minutos do centro de Castêlo da Maia, a localização oferece uma excelente rede de acessos, escolas, supermercados, farmácias, cafés e restaurantes, bem como transportes públicos, incluindo o metro. Tudo o que precisa está ao alcance de poucos minutos, garantindo o equilíbrio perfeito entre a vida urbana e o sossego do campo. Com a sua envolvência natural, áreas generosas e um terreno de dimensão rara nesta região, esta propriedade representa uma oportunidade de investimento segura e com elevado potencial de valorização. Seja para habitação própria, projeto de reabilitação, turismo rural ou como refúgio de fim de semana, esta moradia adapta-se a diferentes estilos de vida e objetivos. Imagine transformar este espaço num lar com alma, onde cada canto conta uma história e cada detalhe reflete o seu toque pessoal. Visualize uma ampla sala aberta para o jardim, janelas que deixam entrar a luz dourada do entardecer e um alpendre onde poderá relaxar nos dias quentes de verão. Aqui, o sonho é possível — basta deixá-lo ganhar forma. Esta é mais do que uma casa. É uma oportunidade para construir um novo capítulo, rodeado de natureza, silêncio e privacidade, sem abdicar da conveniência e das comodidades da vida moderna. Não perca a oportunidade de visitar esta moradia em São Pedro de Avioso, Castêlo da Maia, e descubra por si mesmo o potencial deste espaço único. Um lugar onde o campo e a cidade se encontram, onde o passado e o futuro se cruzam, e onde poderá finalmente dar vida ao lar que sempre imaginou.
AMI: 22918
Ref. Externa: SR0023
Id: 1415440
Inicie sessão para guardar este imóvel e aceder à sua lista de favoritos em qualquer dispositivo.
3 Quartos
2 WCs
Área bruta : 127 m²
Andar-Moradia T3 Totalmente Renovado – Silva Escura, Maia Se procura uma casa moderna, luminosa e pronta a habitar, este andar-moradia T3 em Silva Escura, Maia, é a oportunidade perfeita para si. Com uma renovação total e um estilo contemporâneo que privilegia o conforto e a funcionalidade, este imóvel oferece o equilíbrio ideal entre design e qualidade de vida. Espaços Amplos e Luminosos Com uma área útil de aproximadamente 105 m², este andar-moradia distingue-se pela sua luminosidade e pela organização prática dos espaços. A sala e a cozinha unem-se num elegante conceito open space, criando um ambiente harmonioso e acolhedor, ideal para momentos de convívio ou relaxamento. A cozinha, moderna e funcional, foi desenhada para quem valoriza o equilíbrio entre estética e praticidade. Fica totalmente equipada com placa, forno, exaustor, combinado, máquina de lavar louça e micro-ondas, oferecendo todas as comodidades necessárias para o dia-a-dia. Cada pormenor foi pensado para maximizar a eficiência e o conforto, num espaço onde cozinhar se torna um verdadeiro prazer. A excelente exposição solar realça os acabamentos e confere uma sensação constante de amplitude e bem-estar. Conforto e Bem-Estar Os três quartos oferecem áreas generosas, excelente luminosidade e uma atmosfera tranquila, perfeita para descanso e privacidade. O conforto é garantido durante todo o ano, graças ao sistema de aquecimento central e ao ar condicionado por splits, assegurando a temperatura ideal em qualquer estação. As áreas foram cuidadosamente distribuídas para garantir fluidez e comodidade, adaptando-se facilmente às necessidades de uma família moderna. Funcionalidade e Comodidades Este andar-moradia dispõe de uma garagem fechada para 1 viatura com portão elétrico, com cerca de 15 m², oferecendo segurança e conveniência no dia-a-dia. Inclui ainda uma lavandaria independente de 7 m², espaçosa e prática, que facilita as tarefas domésticas e contribui para a organização do espaço. O agradável espaço exterior comum é ideal para desfrutar de momentos de lazer ao ar livre, numa atmosfera serena e familiar. Renovação Moderna e Eficiente A fachada foi completamente renovada com aplicação de massa capoto, garantindo um excelente isolamento térmico e acústico, além de um aspeto exterior moderno e cuidado. Os novos portões elétricos reforçam a segurança e a comodidade, completando o conjunto de melhorias que tornam esta habitação uma opção pronta a habitar e sem necessidade de obras. Implantado num rés-do-chão, num lote de 350 m², este imóvel conjuga a praticidade de um andar-moradia com a privacidade e independência de uma moradia tradicional. Localização e Envolvência Situado em Silva Escura, uma zona residencial tranquila e bem servida, este imóvel beneficia de uma localização estratégica, próxima de escolas, comércio local, serviços e transportes públicos. A sua proximidade à cidade da Maia e aos principais acessos rodoviários permite-lhe conjugar a calma de um ambiente familiar com a conveniência de estar perto de tudo o que precisa. O Lar Ideal para Viver com Conforto Mais do que uma casa, este andar-moradia T3 é um espaço onde o conforto e a modernidade se unem para proporcionar uma experiência de habitar única. Aqui, a luz natural, os acabamentos de qualidade e a funcionalidade dos espaços criam o cenário perfeito para um novo capítulo da sua vida. Marque já a sua visita e descubra o seu novo lar em Silva Escura, Maia.
AMI: 22918
Ref. Externa: SR0024
Id: 1411807
Inicie sessão para guardar este imóvel e aceder à sua lista de favoritos em qualquer dispositivo.
1.290.000 €
4 Quartos
4 WCs
Área bruta : 572 m²
Imagine viver no coração da Maia, numa moradia que combina requinte, conforto e modernidade, a poucos metros da Câmara Municipal. Construída em 2012, esta propriedade de linhas elegantes e intemporais oferece uma área bruta de 572,67 m² e uma área útil de 527,17 m², num generoso lote de 692 m². Ao entrar, é recebido por espaços amplos e luminosos, onde a arquitetura contemporânea se alia à funcionalidade. A cozinha em open space, totalmente integrada com a sala de jantar, torna-se o local perfeito para momentos de convívio, prolongando-se naturalmente até à sala de estar, ampla e envolta em luz natural. Os quatro quartos foram pensados para proporcionar o máximo conforto, destacando-se a suíte principal como um verdadeiro refúgio privado. Para além das áreas comuns, esta moradia surpreende com detalhes de lazer e bem-estar, como o jacuzzi e o salão de jogos, perfeitos para descontrair após um dia intenso. No exterior, o encanto continua: um espaço cuidado convida a desfrutar da piscina, da churrasqueira e dos momentos em família ao ar livre, garantindo experiências únicas durante todo o ano. A garagem fechada para duas viaturas assegura comodidade e segurança adicionais. Localizada a escassos metros de serviços essenciais como a Câmara Municipal, repartições públicas, bancos, comércio local, supermercados e restauração, esta moradia oferece uma conveniência inigualável. Está ainda próxima de colégios e escolas de referência, bem como de centros de saúde e ginásios. Os rápidos acessos às principais vias rodoviárias, nomeadamente A3, A4 e VCI, garantem excelente mobilidade para o Porto e restante Grande Porto. Aqui, cada pormenor foi pensado para oferecer qualidade de vida, numa localização central e vibrante, onde o requinte se encontra com a funcionalidade. - Agende já a sua visita e deixe-se encantar por esta moradia única ! Empresa Somos uma empresa de consultores imobiliários especializados em consultoria imobiliária cujo objetivo comum é proporcionar a todos os clientes uma vasta gama de serviços de excelência na compra, venda e arrendamento de imóveis dentro e fora do mercado imobiliário nacional. A disciplina, dedicação, foco, conhecimento do mercado, rigor, relações pessoais e profissionais são alguns dos valores que guiam o trabalho desta equipa e que se traduzem pela excelência, eficiência e eficácia prestada a todos os nossos clientes. Proporcionamos uma vasta gama de serviços no mercado imobiliário e todos os nossos clientes são acompanhados até à finalização do seu negócio e no serviço pós-venda.
AMI: 22918
Ref. Externa: HT00122
Id: 1387818
Inicie sessão para guardar este imóvel e aceder à sua lista de favoritos em qualquer dispositivo.
2 Quartos
2 WCs
Área bruta : 93 m²
Apartamento T2 com Aproveitamento de Sótão e Jardim Privativo — Trofa * Interior do imóvel não habitável, necessita de obras totais* Imagine a oportunidade de criar a sua casa de sonho, começando com uma base sólida e cheia de potencial. É exatamente isso que este apartamento T2 em estado de bruto, localizado na Trofa, lhe proporciona. Aqui, não encontra apenas um imóvel; encontra um projeto aberto à sua imaginação, pronto para ser moldado ao seu gosto, necessidades e estilo de vida. Este apartamento distingue-se desde logo pelo aproveitamento de sótão, um espaço versátil que lhe oferece múltiplas possibilidades de utilização. Pode transformá-lo numa zona de lazer para a família, num escritório sossegado para trabalhar a partir de casa, numa sala de jogos para os mais novos ou até mesmo num quarto adicional, aumentando a área habitacional. Esta flexibilidade é um dos grandes trunfos do imóvel, tornando-o adaptável ao longo das diferentes fases da vida. No piso principal, a cozinha e sala em open space criam uma atmosfera moderna, funcional e acolhedora. O acesso direto à varanda permite que a luz natural invada o espaço, reforçando a sensação de amplitude e tornando-o perfeito para momentos de convívio em família ou com amigos. Este conceito aberto reflete o estilo de vida contemporâneo, em que a partilha e a proximidade são cada vez mais valorizadas. A zona privada foi pensada para oferecer o máximo conforto. A suíte principal destaca-se como um verdadeiro refúgio, equipada com casa de banho completa, ideal para garantir toda a privacidade e bem-estar. O segundo quarto, com roupeiro embutido, alia organização e funcionalidade, podendo ser utilizado tanto como quarto de hóspedes, como de criança ou até como um espaço multifuncional. Uma segunda casa de banho completa serve de apoio, assegurando maior comodidade para o dia a dia da família. No exterior, encontra-se um dos grandes destaques deste imóvel: o jardim privativo na frente do apartamento. Trata-se de um espaço exclusivo e raro, perfeito para quem valoriza o contacto com a natureza sem abdicar da conveniência de viver perto do centro urbano. Imagine reunir família e amigos para um agradável churrasco de fim de semana. Este jardim é uma verdadeira extensão da sua casa, um espaço onde poderá desfrutar de momentos únicos ao ar livre. Outro aspeto relevante é que a canalização já se encontra concluída, o que significa que a estrutura de base está preparada. Falta apenas dar vida ao imóvel através da escolha dos acabamentos, revestimentos e detalhes decorativos que irão imprimir personalidade e alma a cada espaço. Assim, poderá criar uma casa que reflita verdadeiramente o seu gosto e que se torne num cenário de novas memórias. Localização estratégica Este apartamento está situado numa zona tranquila da Trofa, mas com excelentes acessibilidades e serviços próximos. A menos de 1 km encontrará supermercados, farmácias, comércio local e serviços essenciais do dia a dia. Para quem utiliza transportes públicos, a estação ferroviária da Linha do Minho — com ligações diretas ao Porto, Braga e várias outras localidades — encontra-se a poucos minutos, assim como diversas paragens de autocarro. De carro, a localização é igualmente privilegiada. O imóvel encontra-se junto à EN14 e à Variante à N14, que asseguram uma ligação rápida à Maia, Vila Nova de Famalicão e Porto. Além disso, beneficia de acessos facilitados à A3 e à A41, garantindo deslocações mais céleres e cómodas, tanto em contexto profissional como pessoal. Agende já a sua visita e venha descobrir todo o potencial que este apartamento tem para lhe oferecer. Nota: Áreas conforme documentação do imóvel.
AMI: 22918
Ref. Externa: SR0002
Id: 1380050
Inicie sessão para guardar este imóvel e aceder à sua lista de favoritos em qualquer dispositivo.
140.000 €
1 Quartos
1 WCs
Área bruta : 108 m²
Moradia em Pedra com Lote de Terreno – Um Investimento Único com Potencial Extraordinário Apresentamos uma oportunidade verdadeiramente exclusiva para quem procura investir ou criar um projeto residencial de sonho: um lote de terreno com aproximadamente 1.100 m², onde se encontra uma moradia em pedra cheia de história, charme e potencial para renovação. Esta propriedade não é apenas um imóvel, é um tesouro rústico com possibilidades ilimitadas, ideal tanto para investidores como para particulares que valorizam autenticidade e carácter. A moradia encontra-se arrendada com um contrato antigo e vitalício, garantindo rendimentos seguros e contínuos desde o primeiro momento. Este detalhe faz desta oportunidade uma combinação rara: um investimento com retorno imediato e, simultaneamente, um terreno com potencial de valorização e desenvolvimento futuro. O terreno envolvente oferece espaço suficiente para novas construções, mediante aprovação de projeto junto da Câmara Municipal de Penafiel. Esta possibilidade torna o imóvel ainda mais atrativo, permitindo explorar múltiplos cenários, desde a construção de moradias independentes até à ampliação da moradia existente, de acordo com o gosto e a visão do comprador. Situada na encantadora freguesia de Santiago de Subarrifana, a propriedade beneficia de frente para dois arruamentos, conferindo uma sensação de exclusividade e acessibilidade. A localização combina tranquilidade e privacidade com proximidade a serviços e infraestruturas essenciais, proporcionando o equilíbrio perfeito entre vida no campo e comodidade urbana. A moradia, com cerca de 107 m² de área útil, é um verdadeiro tesouro histórico. As suas paredes e muros em pedra são testemunhos de um passado rico, transmitindo autenticidade e carácter único. A luminosidade natural é um dos grandes destaques, com uma exposição solar privilegiada que banha todos os espaços, realçando a beleza da construção e do terreno circundante. Este imóvel oferece um ambiente sereno, propício ao relaxamento e à contemplação, ideal para quem procura um refúgio longe da azáfama da cidade. Além do encanto rústico, a propriedade está estrategicamente localizada para acesso rápido a várias comodidades: 200 m da Escola EB1 de Santiago de Subarrifana, ideal para famílias com crianças; 1,2 km da Estação de Comboios de Penafiel, facilitando deslocações para outros destinos; 1,2 km do futuro complexo intermodal de transportes de Penafiel, aumentando a conectividade da região; 2,2 km da Autoestrada A4, permitindo explorar toda a região com facilidade; 2,2 km do Intermarché Penafiel, garantindo conveniência para o dia a dia; 2,7 km do Hospital e do centro da cidade, assegurando acesso a serviços essenciais; 3 km da Quinta da Aveleda, um espaço cultural e natural de referência, perfeito para lazer e momentos em família. Este imóvel combina história, charme e rendimento seguro, com a promessa de crescimento e valorização futura. É uma oportunidade rara de adquirir uma propriedade que une tradição e potencial, garantindo tanto a continuidade do arrendamento vitalício como a possibilidade de desenvolver projetos residenciais de alto valor. Não deixe escapar esta oportunidade de investir num imóvel com identidade, autenticidade e múltiplas possibilidades. Descubra como esta moradia em pedra pode transformar-se num refúgio de conforto, lazer e rendimento seguro, enquanto desfruta da tranquilidade única que só o campo de Santiago de Subarrifana oferece.
AMI: 22918
Ref. Externa: SR0006
Id: 1371458
Inicie sessão para guardar este imóvel e aceder à sua lista de favoritos em qualquer dispositivo.
1 Quartos
2 WCs
Área bruta : 69 m²
Venha descobrir este surpreendente apartamento T1+1 de construção nova, situado no primeiro andar de um edifício moderno com elevador, localizado no Castêlo da Maia. Trata-se de uma oportunidade rara que conjuga conforto, privacidade e uma ligação direta à natureza, sem abdicar da proximidade aos serviços essenciais e da energia própria da vida urbana. O imóvel encontra-se ainda em fase inicial de construção, com um prazo estimado de conclusão de cerca de dois anos. Esta fase permite ao futuro proprietário a possibilidade de personalizar antecipadamente alguns acabamentos e adaptar o espaço às suas preferências e estilo de vida. Uma vantagem significativa para quem procura um lar verdadeiramente à medida. Com uma área útil de 63,50 m², o apartamento apresenta uma configuração funcional e acolhedora, pensada para proporcionar conforto e bem-estar no dia a dia. A sala de estar é ampla e luminosa, integrando-se harmoniosamente com a cozinha moderna em open space, criando um ambiente ideal para momentos de convívio ou relaxamento. A suite principal oferece privacidade e comodidade, com casa de banho privativa, enquanto o espaço adicional (+1) pode ser utilizado como escritório, quarto de visitas ou zona de arrumação. Existe ainda uma casa de banho de serviço, que acrescenta praticidade ao quotidiano. No exterior, destaca-se um pátio/varanda com 6,30 m², perfeito para refeições ao ar livre, pausas para café ou para relaxar ao final do dia em contacto com o espaço exterior. Este elemento acrescenta valor à experiência de habitação, permitindo usufruir do ar livre com conforto e privacidade. Para maior comodidade, o apartamento inclui lugar de garagem para uma viatura. A construção será realizada com materiais de última geração, garantindo elevada eficiência térmica e acústica, vidros modernos, caixilharia eficaz, cores neutras e acabamentos contemporâneos que reforçam a estética e o conforto do espaço. A localização é outro dos pontos fortes: inserido numa zona residencial calma e envolta em áreas verdes, o imóvel está a poucos minutos de escolas, universidades, comércio local, transportes públicos e acessos rodoviários. Esta proximidade permite uma vida equilibrada entre tranquilidade e conveniência urbana. Este apartamento é ideal para quem valoriza qualidade de vida, privacidade e contacto com a natureza, sem abdicar da proximidade à cidade. Seja para casais, profissionais em regime híbrido ou investidores à procura de um produto moderno e durável, esta é uma solução habitacional que responde às exigências da vida contemporânea. Distâncias e acessos nas proximidades: Centro de Saúde do Castêlo da Maia: 2 a 4 minutos Escola Básica / Pré-Escolar (1.º ciclo): 3 a 5 minutos Escola Secundária do Castêlo da Maia: 3 a 6 minutos Universidade ISMAI: 5 a 7 minutos Estação de Metro “Castêlo da Maia”: 3 a 5 minutos Nó de acesso à A41 (CREP Maia): 3 a 5 minutos Pingo Doce – Castêlo da Maia: 2 a 4 minutos Auchan Maia: 5 a 7 minutos Continente Maia Jardim: 5 a 6 minutos Nota: Áreas conforme documentação do imóvel, Fração C. É necessária a apresentação de documento de identificação para a visita. O promotor reserva o direito de alterar e/ou substituir os materiais descritos por outros equivalentes que não comprometam a qualidade do imóvel. As imagens 3D apresentadas são meramente ilustrativas e podem não representar fielmente a realidade.
AMI: 22918
Ref. Externa: SR0013 (2)
Id: 1369764
Inicie sessão para guardar este imóvel e aceder à sua lista de favoritos em qualquer dispositivo.
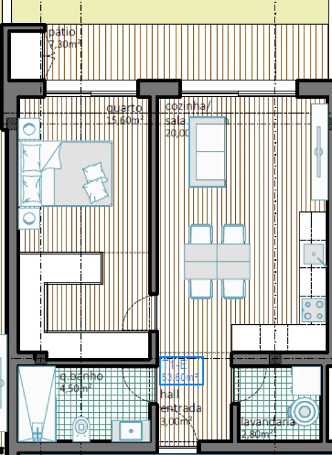
1 Quartos
1 WCs
Área bruta : 153 m²
Venha descobrir este surpreendente apartamento T1 de construção nova, localizado no primeiro andar de um edifício moderno com elevador, no Castêlo da Maia. Esta é uma oportunidade rara de viver num espaço que alia conforto, privacidade e ligação direta à natureza, sem prescindir da proximidade aos principais serviços e da energia urbana que a envolvente proporciona. O edifício encontra-se ainda em fase inicial de construção, com um prazo previsto de conclusão de cerca de 2 anos, permitindo ao futuro proprietário usufruir da vantagem única de poder personalizar determinados acabamentos, escolhendo detalhes que vão ao encontro do seu gosto e estilo de vida. Assim, poderá garantir que cada pormenor do apartamento reflete a sua identidade, tornando este espaço verdadeiramente especial. Com uma área útil de 53,60 m², o apartamento apresenta uma configuração moderna, funcional e cuidadosamente pensada para proporcionar bem-estar em cada divisão. A sala, ampla e iluminada, em open space com a cozinha, cria um ambiente fluido, perfeito para momentos de lazer, convívio e refeições em família. A cozinha, com linhas contemporâneas e pensada para a máxima eficiência, convida à criatividade culinária no dia a dia. O quarto, acolhedor e confortável, oferece o refúgio ideal para repousar com tranquilidade, enquanto a casa de banho completa, equipada com materiais de qualidade, proporciona funcionalidade e elegância. Um dos pontos mais diferenciadores deste imóvel é, sem dúvida, o espaço exterior. Com 92,50 m² de zona verde privativa, este apartamento convida a um estilo de vida que privilegia o contacto com a natureza. Seja para criar um jardim cuidado, um espaço de lazer para crianças, uma pequena horta urbana ou simplesmente uma área para relaxar, este espaço abre possibilidades infinitas. Para além disso, dispõe de um pátio/varanda de 7,30 m², ideal para refeições ao ar livre, para saborear o café da manhã ou para desfrutar de um final de tarde tranquilo. Para maior comodidade, o apartamento conta ainda com lugar de garagem para uma viatura, garantindo segurança e praticidade no dia a dia. A qualidade de construção é outro fator distintivo: materiais de última geração, caixilharias eficientes, vidros modernos, excelente isolamento térmico e acústico, bem como acabamentos contemporâneos que asseguram conforto e sofisticação em cada detalhe. Este apartamento é ideal para quem procura um lar que combine modernidade e praticidade, sem abdicar de um contacto próximo com a natureza. Perfeito para casais que desejam iniciar um novo ciclo de vida, para profissionais que trabalham em casa e valorizam espaços funcionais e luminosos, ou ainda para investidores que procuram um produto seguro, atual e com elevado potencial de valorização. Distâncias, serviços e acessos nas proximidades: Centro de Saúde do Castêlo da Maia → 2 a 4 minutos de carro Escola Básica / Pré-Escolar do Castêlo da Maia (1.º ciclo) → 3 a 5 minutos de carro Escola Secundária do Castêlo da Maia → 3 a 6 minutos de carro Universidade ISMAI → 5 a 7 minutos de carro Estação de Metro “Castêlo da Maia” → 3 a 5 minutos de carro Nó de acesso à A41 (CREP Maia) → 3 a 5 minutos de carro Supermercado Pingo Doce – Castêlo da Maia → 2 a 4 minutos de carro Auchan Maia → 5 a 7 minutos de carro Continente Maia Jardim → 5 a 6 minutos de carro Nota: Áreas conforme documentação do imóvel, Fracção E. É necessária a apresentação de documento de identificação para a visita. (O promotor reserva o direito de alterar e/ou substituir materiais descritos por outros idênticos que não alterem a qualidade do imóvel. As imagens 3D apresentadas são meramente ilustrativas e podem não representar totalmente a realidade.)
AMI: 22918
Ref. Externa: SR000016 (2)
Id: 1369770
Inicie sessão para guardar este imóvel e aceder à sua lista de favoritos em qualquer dispositivo.
1 Quartos
1 WCs
Área bruta : 132 m²
Venha descobrir este surpreendente apartamento T1 de construção nova, localizado no primeiro andar de um edifício moderno com elevador, no Castêlo da Maia. Esta é uma oportunidade rara de viver num espaço que alia conforto, privacidade e ligação direta à natureza, sem prescindir da proximidade aos principais serviços e da energia urbana que a envolvente proporciona. O edifício encontra-se ainda em fase inicial de construção, com um prazo previsto de conclusão de cerca de 2 anos, permitindo ao futuro proprietário usufruir da vantagem única de poder personalizar determinados acabamentos, escolhendo detalhes que vão ao encontro do seu gosto e estilo de vida. Assim, poderá garantir que cada pormenor do apartamento reflete a sua identidade, tornando este espaço verdadeiramente especial. Com uma área útil de 53,60 m², o apartamento apresenta uma configuração moderna, funcional e cuidadosamente pensada para proporcionar bem-estar em cada divisão. A sala, ampla e iluminada, em open space com a cozinha, cria um ambiente fluido, perfeito para momentos de lazer, convívio e refeições em família. A cozinha, com linhas contemporâneas e pensada para a máxima eficiência, convida à criatividade culinária no dia a dia. O quarto, acolhedor e confortável, oferece o refúgio ideal para repousar com tranquilidade, enquanto a casa de banho completa, equipada com materiais de qualidade, proporciona funcionalidade e elegância. Um dos pontos mais diferenciadores deste imóvel é, sem dúvida, o espaço exterior. Com 71,10 m² de zona verde privativa, este apartamento convida a um estilo de vida que privilegia o contacto com a natureza. Seja para criar um jardim cuidado, um espaço de lazer para crianças, uma pequena horta urbana ou simplesmente uma área para relaxar, este espaço abre possibilidades infinitas. Para além disso, dispõe de um pátio/varanda de 7,30 m², ideal para refeições ao ar livre, para saborear o café da manhã ou para desfrutar de um final de tarde tranquilo. Para maior comodidade, o apartamento conta ainda com lugar de garagem para uma viatura, garantindo segurança e praticidade no dia a dia. A qualidade de construção é outro fator distintivo: materiais de última geração, caixilharias eficientes, vidros modernos, excelente isolamento térmico e acústico, bem como acabamentos contemporâneos que asseguram conforto e sofisticação em cada detalhe. Este apartamento é ideal para quem procura um lar que combine modernidade e praticidade, sem abdicar de um contacto próximo com a natureza. Perfeito para casais que desejam iniciar um novo ciclo de vida, para profissionais que trabalham em casa e valorizam espaços funcionais e luminosos, ou ainda para investidores que procuram um produto seguro, atual e com elevado potencial de valorização. Distâncias, serviços e acessos nas proximidades: Centro de Saúde do Castêlo da Maia → 2 a 4 minutos de carro Escola Básica / Pré-Escolar do Castêlo da Maia (1.º ciclo) → 3 a 5 minutos de carro Escola Secundária do Castêlo da Maia → 3 a 6 minutos de carro Universidade ISMAI → 5 a 7 minutos de carro Estação de Metro “Castêlo da Maia” → 3 a 5 minutos de carro Nó de acesso à A41 (CREP Maia) → 3 a 5 minutos de carro Supermercado Pingo Doce – Castêlo da Maia → 2 a 4 minutos de carro Auchan Maia → 5 a 7 minutos de carro Continente Maia Jardim → 5 a 6 minutos de carro Nota: Áreas conforme documentação do imóvel, Fracção E. É necessária a apresentação de documento de identificação para a visita. (O promotor reserva o direito de alterar e/ou substituir materiais descritos por outros idênticos que não alterem a qualidade do imóvel. As imagens 3D apresentadas são meramente ilustrativas e podem não representar totalmente a realidade.)
AMI: 22918
Ref. Externa: SR000015 (2)
Id: 1369771
Inicie sessão para guardar este imóvel e aceder à sua lista de favoritos em qualquer dispositivo.
2 Quartos
3 WCs
Área bruta : 262 m²
Venha descobrir este surpreendente apartamento T2 de construção nova, situado no primeiro andar de um edifício contemporâneo com elevador, no coração do Castêlo da Maia. Esta é uma oportunidade única que alia modernidade, conforto e privacidade, ao mesmo tempo que oferece uma ligação direta à natureza, sem abdicar da proximidade de todos os serviços e da vivacidade urbana. O prédio encontra-se ainda em fase inicial de edificação, com prazo previsto de conclusão de cerca de 2 anos, permitindo ao futuro proprietário a possibilidade de escolher antecipadamente alguns acabamentos e personalizar o espaço de acordo com as suas preferências e estilo de vida. Um privilégio raro para quem deseja um lar à medida dos seus sonhos. Com uma área útil de 97,40 m², o apartamento apresenta uma configuração moderna e funcional, desenhada para maximizar conforto e bem-estar. A sala de estar, ampla e luminosa, em conceito aberto, integra-se com a cozinha moderna totalmente equipada, criando um ambiente perfeito para momentos de convívio em família ou entre amigos. Dispõe ainda de duas suites acolhedoras, ambas com casas de banho privadas, garantindo a máxima privacidade e comodidade. Como complemento, existe ainda uma casa de banho de serviço, ideal para visitas e maior praticidade no quotidiano. O grande destaque deste imóvel encontra-se no espaço exterior. Com 156,50 m² de zona verde privativa, oferece um refúgio ao ar livre, perfeito para criar um jardim, uma área de lazer para crianças, espaço para animais de estimação ou simplesmente para relaxar num ambiente tranquilo e reservado. Além disso, a presença de um pátio/varanda de 8,40 m² convida a desfrutar de refeições ao ar livre, pequenos-almoços ensolarados ou momentos de repouso no final de um dia de trabalho, sempre em contacto direto com a natureza. Para maior comodidade, o apartamento conta com lugar de garagem para uma viatura, um detalhe essencial para quem valoriza mobilidade e segurança. A qualidade de construção está assegurada com o uso de materiais de última geração, caixilharia eficiente, vidros de elevada performance, soluções que garantem isolamento térmico e acústico, bem como cores e acabamentos de linhas contemporâneas. A localização é outro dos pontos fortes. Inserido numa zona residencial calma e envolta em áreas verdes, este imóvel encontra-se, contudo, a poucos minutos de serviços essenciais, comércio local, escolas, universidades e transportes. A proximidade às principais vias rodoviárias e ao metro faz deste apartamento uma solução prática e equilibrada para quem procura qualidade de vida sem se afastar do centro urbano. Distâncias, serviços e acessos nas proximidades Centro de Saúde do Castêlo da Maia → 2 a 4 minutos de carro Escola Básica / Pré-Escolar do Castêlo da Maia (1.º ciclo) → 3 a 5 minutos de carro Escola Secundária do Castêlo da Maia → 3 a 6 minutos de carro Universidade ISMAI → 5 a 7 minutos de carro Estação de Metro “Castêlo da Maia” → 3 a 5 minutos de carro Nó de acesso à A41 (CREP Maia) → 3 a 5 minutos de carro Supermercado Pingo Doce – Castêlo da Maia → 2 a 4 minutos de carro Auchan Maia → 5 a 7 minutos de carro Continente Maia Jardim → 5 a 6 minutos de carro Nota: Áreas conforme documentação do imóvel, Fracção G. É necessária a apresentação de documento de identificação para a visita. (O promotor reserva o direito de alterar e/ou substituir materiais descritos por outros idênticos que não alterem a qualidade do imóvel. As imagens 3D apresentadas são meramente ilustrativas e podem não representar totalmente a realidade.)
AMI: 22918
Ref. Externa: SR000017 (2)
Id: 1369769
Inicie sessão para guardar este imóvel e aceder à sua lista de favoritos em qualquer dispositivo.
3 Quartos
4 WCs
Área bruta : 370 m²
Venha descobrir esta magnífica Penthouse T3 de construção nova, situada no último piso de um edifício contemporâneo com elevador, no coração do Castêlo da Maia. Trata-se de uma oportunidade verdadeiramente exclusiva que alia modernidade, conforto e privacidade, com uma envolvência natural privilegiada e a conveniência de estar perto de todos os serviços essenciais e da dinâmica urbana. O edifício encontra-se ainda em fase inicial de construção, com prazo previsto de conclusão de cerca de dois anos. Esta fase permite ao futuro proprietário a possibilidade de escolher antecipadamente alguns acabamentos e personalizar o espaço de acordo com as suas preferências e estilo de vida. Um privilégio raro para quem deseja um lar à medida dos seus sonhos. Com uma área útil de 126,90 m², esta penthouse apresenta uma configuração moderna e funcional, desenhada para maximizar o conforto e o bem-estar. A sala de estar, ampla e luminosa, em conceito aberto, integra-se com a cozinha moderna totalmente equipada, criando um ambiente perfeito para momentos de convívio em família ou entre amigos. Dispõe de três suites acolhedoras, cada uma com casa de banho privativa, garantindo a máxima privacidade e comodidade para todos os residentes. Como complemento, existe ainda uma casa de banho de serviço, ideal para visitas e maior praticidade no quotidiano. O grande destaque deste imóvel é o seu terraço privativo com 236,90 m², que circunda todo o apartamento e oferece uma envolvência exterior excecional. Este espaço é perfeito para refeições ao ar livre, momentos de lazer, criação de zonas de jardim, áreas de descanso ou até mesmo para instalar uma zona de jacuzzi, pérgula ou espaço de ginásio exterior. A vista desafogada e a exposição solar tornam este terraço num verdadeiro prolongamento da casa, ideal para quem valoriza o contacto com o exterior e a liberdade de espaço. Para maior comodidade, o apartamento conta com dois lugares de garagem, um detalhe essencial para quem valoriza mobilidade, segurança e praticidade no dia a dia. A qualidade de construção está assegurada com o uso de materiais de última geração, caixilharia eficiente, vidros de elevada performance, soluções que garantem isolamento térmico e acústico, bem como cores e acabamentos de linhas contemporâneas. A localização é outro dos pontos fortes. Inserido numa zona residencial calma e envolta em áreas verdes, este imóvel encontra-se, contudo, a poucos minutos de escolas, universidades, comércio local, transportes públicos e acessos rodoviários. A proximidade às principais vias e ao metro faz desta penthouse uma solução prática e equilibrada para quem procura qualidade de vida sem se afastar do centro urbano. Distâncias, serviços e acessos nas proximidades: Centro de Saúde do Castêlo da Maia → 2 a 4 minutos de carro Escola Básica / Pré-Escolar do Castêlo da Maia (1.º ciclo) → 3 a 5 minutos de carro Escola Secundária do Castêlo da Maia → 3 a 6 minutos de carro Universidade ISMAI → 5 a 7 minutos de carro Estação de Metro “Castêlo da Maia” → 3 a 5 minutos de carro Nó de acesso à A41 (CREP Maia) → 3 a 5 minutos de carro Supermercado Pingo Doce – Castêlo da Maia → 2 a 4 minutos de carro Auchan Maia → 5 a 7 minutos de carro Continente Maia Jardim → 5 a 6 minutos de carro Nota: Áreas conforme documentação do imóvel, Fração I. É necessária a apresentação de documento de identificação para a visita. O promotor reserva o direito de alterar e/ou substituir os materiais descritos por outros equivalentes que não comprometam a qualidade do imóvel. As imagens 3D apresentadas são meramente ilustrativas e podem não representar totalmente a realidade.
AMI: 22918
Ref. Externa: SR000019 (2)
Id: 1369768
Inicie sessão para guardar este imóvel e aceder à sua lista de favoritos em qualquer dispositivo.
2 Quartos
3 WCs
Área bruta : 234 m²
Venha descobrir este surpreendente apartamento T2 de construção nova, situado no primeiro andar de um edifício contemporâneo com elevador, no coração do Castêlo da Maia. Esta é uma oportunidade única que alia modernidade, conforto e privacidade, ao mesmo tempo que oferece uma ligação direta à natureza, sem abdicar da proximidade de todos os serviços e da vivacidade urbana. O prédio encontra-se ainda em fase inicial de edificação, com prazo previsto de conclusão de cerca de 2 anos, permitindo ao futuro proprietário a possibilidade de escolher antecipadamente alguns acabamentos e personalizar o espaço de acordo com as suas preferências e estilo de vida. Um privilégio raro para quem deseja um lar à medida dos seus sonhos. Com uma área útil de 95,70 m², o apartamento apresenta uma configuração moderna e funcional, desenhada para maximizar conforto e bem-estar. A sala de estar, ampla e luminosa, em conceito aberto, integra-se com a cozinha moderna totalmente equipada, criando um ambiente perfeito para momentos de convívio em família ou entre amigos. Dispõe ainda de duas suites acolhedoras, ambas com casas de banho privadas, garantindo a máxima privacidade e comodidade. Como complemento, existe ainda uma casa de banho de serviço, ideal para visitas e maior praticidade no quotidiano. O grande destaque deste imóvel encontra-se no espaço exterior. Com 130,30 m² de zona verde privativa, oferece um refúgio ao ar livre, perfeito para criar um jardim, uma área de lazer para crianças, espaço para animais de estimação ou simplesmente para relaxar num ambiente tranquilo e reservado. Além disso, a presença de um pátio/varanda de 8,40 m² convida a desfrutar de refeições ao ar livre, pequenos-almoços ensolarados ou momentos de repouso no final de um dia de trabalho, sempre em contacto direto com a natureza. Para maior comodidade, o apartamento conta com lugar de garagem para uma viatura, um detalhe essencial para quem valoriza mobilidade e segurança. A qualidade de construção está assegurada com o uso de materiais de última geração, caixilharia eficiente, vidros de elevada performance, soluções que garantem isolamento térmico e acústico, bem como cores e acabamentos de linhas contemporâneas. A localização é outro dos pontos fortes. Inserido numa zona residencial calma e envolta em áreas verdes, este imóvel encontra-se, contudo, a poucos minutos de serviços essenciais, comércio local, escolas, universidades e transportes. A proximidade às principais vias rodoviárias e ao metro faz deste apartamento uma solução prática e equilibrada para quem procura qualidade de vida sem se afastar do centro urbano. Distâncias, serviços e acessos nas proximidades Centro de Saúde do Castêlo da Maia → 2 a 4 minutos de carro Escola Básica / Pré-Escolar do Castêlo da Maia (1.º ciclo) → 3 a 5 minutos de carro Escola Secundária do Castêlo da Maia → 3 a 6 minutos de carro Universidade ISMAI → 5 a 7 minutos de carro Estação de Metro “Castêlo da Maia” → 3 a 5 minutos de carro Nó de acesso à A41 (CREP Maia) → 3 a 5 minutos de carro Supermercado Pingo Doce – Castêlo da Maia → 2 a 4 minutos de carro Auchan Maia → 5 a 7 minutos de carro Continente Maia Jardim → 5 a 6 minutos de carro Nota: Áreas conforme documentação do imóvel, Fracção D. É necessária a apresentação de documento de identificação para a visita. (O promotor reserva o direito de alterar e/ou substituir materiais descritos por outros idênticos que não alterem a qualidade do imóvel. As imagens 3D apresentadas são meramente ilustrativas e podem não representar totalmente a realidade.)
AMI: 22918
Ref. Externa: SR0014 (2)
Id: 1369766
Inicie sessão para guardar este imóvel e aceder à sua lista de favoritos em qualquer dispositivo.
1 Quartos
1 WCs
Área bruta : 85 m²
Venha descobrir este surpreendente apartamento T1 de construção nova, situado no rés-do-chão de um edifício moderno e elegante localizado no Castêlo da Maia. Trata-se de uma oportunidade rara que alia conforto, privacidade e uma ligação directa à natureza, sem abdicar da proximidade aos serviços essenciais e da energia própria da vida urbana. O imóvel encontra-se ainda em fase inicial de edificação, com um prazo previsto de conclusão de aproximadamente dois anos. Esta fase permite ao futuro proprietário a possibilidade de personalizar antecipadamente alguns acabamentos e adaptar o espaço às suas preferências e estilo de vida. Uma vantagem significativa para quem procura um lar verdadeiramente à medida. Com uma área útil de 53 m², o apartamento apresenta uma configuração funcional e acolhedora, pensada para maximizar o conforto diário. A sala de estar é ampla e luminosa, integrando-se harmoniosamente com a cozinha moderna em open space, criando um ambiente ideal para momentos de convívio ou relaxamento. O quarto principal é confortável e bem dimensionado, e a casa de banho completa oferece praticidade e estilo, com acabamentos contemporâneos. No exterior, destaca-se uma zona verde privativa com 23,10 m², perfeita para criar um pequeno jardim, usufruir de momentos de lazer ao ar livre, dedicar-se a hobbies ou simplesmente desfrutar da tranquilidade sem sair de casa. Complementa-se com um pátio/varanda de 9,80 m², ideal para refeições ao ar livre, pausas para café ou para relaxar ao final do dia em contacto com o espaço exterior. Para maior comodidade, o apartamento inclui lugar de garagem para uma viatura. A construção será realizada com materiais de última geração, garantindo elevada eficiência térmica e acústica, vidros modernos, caixilharia eficaz, cores neutras e detalhes que reforçam o conforto e a estética contemporânea. A localização é outro dos pontos fortes: inserido numa zona residencial calma e envolta em áreas verdes, o imóvel está a poucos minutos de escolas, universidades, comércio local, transportes públicos e acessos rodoviários. Esta proximidade permite uma vida equilibrada entre tranquilidade e conveniência urbana. Este apartamento é ideal para quem valoriza qualidade de vida, privacidade e contacto com a natureza, sem abdicar da proximidade à cidade. Seja para casais, profissionais em regime híbrido ou investidores à procura de um produto moderno e durável, esta é uma solução habitacional que responde às exigências da vida contemporânea. Distâncias e acessos nas proximidades: Centro de Saúde do Castêlo da Maia: 2 a 4 minutos Escola Básica / Pré-Escolar (1.º ciclo): 3 a 5 minutos Escola Secundária do Castêlo da Maia: 3 a 6 minutos Universidade ISMAI: 5 a 7 minutos Estação de Metro “Castêlo da Maia”: 3 a 5 minutos Nó de acesso à A41 (CREP Maia): 3 a 5 minutos Pingo Doce – Castêlo da Maia: 2 a 4 minutos Auchan Maia: 5 a 7 minutos Continente Maia Jardim: 5 a 6 minutos Nota: Áreas conforme documentação do imóvel, Fração B. É necessária a apresentação de documento de identificação para a visita. O promotor reserva o direito de alterar e/ou substituir os materiais descritos por outros equivalentes que não comprometam a qualidade do imóvel. As imagens 3D apresentadas são meramente ilustrativas e podem não representar fielmente a realidade.
AMI: 22918
Ref. Externa: SR000012 (2)
Id: 1369763
Inicie sessão para guardar este imóvel e aceder à sua lista de favoritos em qualquer dispositivo.
2 Quartos
2 WCs
Área bruta : 86 m²
Venha descobrir este surpreendente apartamento T2 de construção nova, situado no primeiro andar de um edifício contemporâneo com elevador, no coração do Castêlo da Maia. Esta é uma oportunidade única que alia modernidade, conforto e privacidade, ao mesmo tempo que oferece uma ligação direta à natureza, sem abdicar da proximidade de todos os serviços e da vivacidade urbana. O prédio encontra-se ainda em fase inicial de edificação, com prazo previsto de conclusão de cerca de 2 anos, permitindo ao futuro proprietário a possibilidade de escolher antecipadamente alguns acabamentos e personalizar o espaço de acordo com as suas preferências e estilo de vida. Um privilégio raro para quem deseja um lar à medida dos seus sonhos. Com uma área útil de 80,60 m², o apartamento apresenta uma configuração moderna e funcional, desenhada para maximizar conforto e bem-estar. A sala de estar, ampla e luminosa, em conceito aberto, integra-se com a cozinha moderna totalmente equipada, criando um ambiente perfeito para momentos de convívio em família ou entre amigos. Dispõe ainda de uma suite acolhedora com casa de banho privada, garantindo a máxima privacidade e comodidade. Como complemento, existe ainda uma casa de banho de serviço, ideal para visitas e maior praticidade no quotidiano. Além disso, a presença de um pátio/varanda de 6,30 m² convida a desfrutar de refeições ao ar livre, pequenos-almoços ensolarados ou momentos de repouso no final de um dia de trabalho, sempre em contacto direto com a natureza. Para maior comodidade, o apartamento conta com lugar de garagem para uma viatura, um detalhe essencial para quem valoriza mobilidade e segurança. A qualidade de construção está assegurada com o uso de materiais de última geração, caixilharia eficiente, vidros de elevada performance, soluções que garantem isolamento térmico e acústico, bem como cores e acabamentos de linhas contemporâneas. A localização é outro dos pontos fortes. Inserido numa zona residencial calma e envolta em áreas verdes, este imóvel encontra-se, contudo, a poucos minutos de serviços essenciais, comércio local, escolas, universidades e transportes. A proximidade às principais vias rodoviárias e ao metro faz deste apartamento uma solução prática e equilibrada para quem procura qualidade de vida sem se afastar do centro urbano. Distâncias, serviços e acessos nas proximidades Centro de Saúde do Castêlo da Maia → 2 a 4 minutos de carro Escola Básica / Pré-Escolar do Castêlo da Maia (1.º ciclo) → 3 a 5 minutos de carro Escola Secundária do Castêlo da Maia → 3 a 6 minutos de carro Universidade ISMAI → 5 a 7 minutos de carro Estação de Metro “Castêlo da Maia” → 3 a 5 minutos de carro Nó de acesso à A41 (CREP Maia) → 3 a 5 minutos de carro Supermercado Pingo Doce – Castêlo da Maia → 2 a 4 minutos de carro Auchan Maia → 5 a 7 minutos de carro Continente Maia Jardim → 5 a 6 minutos de carro Nota: Áreas conforme documentação do imóvel, Fracção H. É necessária a apresentação de documento de identificação para a visita. (O promotor reserva o direito de alterar e/ou substituir materiais descritos por outros idênticos que não alterem a qualidade do imóvel. As imagens 3D apresentadas são meramente ilustrativas e podem não representar totalmente a realidade.)
AMI: 22918
Ref. Externa: SR000018 (2)
Id: 1369767
Inicie sessão para guardar este imóvel e aceder à sua lista de favoritos em qualquer dispositivo.
1 Quartos
1 WCs
Área bruta : 149 m²
Venha descobrir este surpreendente apartamento T1+1 de construção nova, localizado no rés-do-chão de um edifício moderno e exclusivo no Castêlo da Maia. Este imóvel representa uma oportunidade rara para quem procura aliar conforto, privacidade e contacto direto com a natureza, sem abdicar da proximidade à vida urbana e às comodidades do dia a dia. O edifício encontra-se ainda em fase inicial de edificação, com um prazo previsto de conclusão de cerca de 2 anos, o que proporciona aos futuros proprietários a vantagem única de poderem antecipar personalizações e escolher alguns dos acabamentos de acordo com o seu gosto pessoal. Uma oportunidade perfeita para criar um espaço verdadeiramente à sua medida. Com 62 m² de área útil, este apartamento foi cuidadosamente desenhado para responder às exigências da vida moderna. A sala ampla e luminosa em conceito open space convida ao convívio e à descontração, sendo complementada por uma cozinha moderna e funcional, ideal para quem aprecia preparar refeições em ambiente prático e contemporâneo. O quarto principal destaca-se pelo conforto e tranquilidade, funcionando como o refúgio perfeito no final do dia. O espaço adicional (+1) abre múltiplas possibilidades de utilização: pode ser transformado num escritório para teletrabalho, num quarto de visitas acolhedor, num quarto infantil ou até mesmo num closet espaçoso. No exterior, este imóvel revela-se ainda mais especial. Conta com 74 m² de zona verde privativa, um verdadeiro prolongamento da casa, onde poderá criar um jardim, instalar uma zona de lazer, dedicar-se a hobbies ou simplesmente desfrutar do ar livre em total privacidade. Além disso, soma-se um pátio/varanda de 13,30 m², perfeito para refeições ao ar livre, para saborear um café matinal ou para momentos de repouso ao final do dia, em contacto direto com a envolvente verde. A conveniência está também assegurada com o lugar de garagem para uma viatura, garantindo segurança e comodidade. O projeto privilegia a qualidade e a eficiência, recorrendo a materiais de última geração, caixilharias modernas e eficazes, vidros de elevada performance, além de acabamentos de estilo contemporâneo que asseguram conforto térmico e acústico em todas as estações do ano. A localização é estratégica e muito valorizada. Inserido numa zona residencial tranquila, rodeada de espaços verdes e com um ambiente sereno, o apartamento encontra-se, no entanto, a poucos minutos de serviços essenciais, comércio local, transportes e acessos rodoviários. Aqui, terá a oportunidade de viver com calma, mas com todas as infraestruturas sempre à mão. Este imóvel é indicado para quem procura um equilíbrio perfeito entre tranquilidade, funcionalidade e proximidade à cidade. Seja para casais que iniciam uma nova etapa, para profissionais que necessitam de um espaço versátil adaptado ao teletrabalho, ou até para investidores que procuram um produto sólido, moderno e de elevada procura no mercado de arrendamento, este apartamento responde a todas as necessidades. Imagine acordar todos os dias rodeado de verde, usufruir do seu próprio espaço exterior privado, mas com a segurança de saber que escolas, supermercados, transportes e acessos estão sempre a curta distância. É este o estilo de vida que este apartamento lhe proporciona: uma combinação entre bem-estar, conveniência e modernidade. Distâncias, serviços e acessos nas proximidades: Centro de Saúde do Castêlo da Maia ~ 2-4 minutos Escola Básica / Pré-Escolar do Castêlo da Maia (1.º ciclo) ~ 3-5 minutos Escola Secundária do Castêlo da Maia ~ 3-6 minutos Universidade ISMAI ~ 5-7 minutos Estação de Metro “Castêlo da Maia” ~ 3-5 minutos Nó de acesso à A41 (CREP Maia) ~ 3-5 minutos Pingo Doce – Castêlo da Maia ~ 2-4 minutos Auchan Maia ~ 5-7 minutos Continente Maia Jardim ~ 5-6 minutos Nota: Áreas conforme documentação do imóvel, Fracção A. É obrigatória a apresentação de documento de identificação para a marcação de visitas. (O promotor reserva-se o direito de alterar e/ou substituir os materiais descritos por outros equivalentes que não comprometam a qualidade final do imóvel. As imagens 3D apresentadas são meramente ilustrativas e podem não corresponder integralmente à realidade.)
AMI: 22918
Ref. Externa: SR000011 (2)
Id: 1369765
Inicie sessão para guardar este imóvel e aceder à sua lista de favoritos em qualquer dispositivo.
575.000 €
4 Quartos
4 WCs
Área bruta : 180 m²
✨ Mais do que uma casa, um símbolo de distinção e exclusividade. ✨ No coração do Castêlo da Maia, numa envolvente residencial marcada pela tranquilidade e pela proximidade a todas as comodidades, nasce uma moradia que redefine o conceito de viver com elegância. Esta moradia T4 nova, em fase de construção, não é apenas um imóvel — é uma declaração de estilo, um refúgio onde a modernidade, o conforto e a exclusividade se unem para criar um lar verdadeiramente extraordinário. Com uma arquitetura contemporânea, de linhas puras e intemporais, esta propriedade alia sofisticação e funcionalidade numa simbiose perfeita. Cada espaço foi concebido para ser mais do que uma divisão: é uma experiência sensorial, onde a luz natural, os materiais nobres e as proporções equilibradas se encontram em harmonia. 174m² de área útil distribuem-se de forma fluida e inteligente, acompanhados por 46,80m² de varandas e logradouro e cerca de 107m² de área verde, criando a fusão ideal entre interior e exterior. Aqui, a vida quotidiana ganha uma nova dimensão, marcada pelo requinte e pela exclusividade. No rés-do-chão, o design abre-se em espaços amplos e luminosos. A sala comum, de atmosfera envolvente, é o cenário perfeito tanto para encontros sofisticados como para momentos íntimos em família. Em open space, a cozinha revela-se como o coração da casa — moderna, funcional e marcada pela elegância da sua ilha central, onde cada refeição se transforma num ritual de prazer e partilha. Este piso integra ainda um quarto versátil, capaz de se adaptar às necessidades mais exigentes, desde um escritório privativo até um espaço acolhedor para hóspedes. Uma lavandaria independente acrescenta discrição e organização, enquanto a garagem fechada para duas viaturas reforça a comodidade e a segurança, atributos indispensáveis a quem valoriza o conforto no quotidiano. No piso superior, a exclusividade manifesta-se através de três magníficas suites, cada uma delas concebida como um retiro privado. A master suite distingue-se pela sofisticação de um closet generoso, verdadeiro símbolo de elegância e funcionalidade. Todas as suites oferecem varandas privativas, permitindo-lhe despertar envolvido pela serenidade exterior, num ambiente que transmite paz e bem-estar. No exterior, encontra-se um cenário pensado para o lazer requintado. O jardim, envolto em tranquilidade, é o espaço ideal para criar momentos únicos, seja através de convívios elegantes, tardes de descontração ou jantares ao ar livre sob o brilho das estrelas. O logradouro e o pátio acrescentam versatilidade, convidando a experiências de convívio que se prolongam pela noite, num ambiente de privacidade absoluta. A qualidade construtiva é uma assinatura indelével desta moradia. Materiais criteriosamente selecionados, acabamentos de elevada sofisticação e um rigor técnico exemplar conferem não apenas estética, mas também durabilidade e eficiência. Tudo aqui foi pensado para responder às expectativas de quem exige o melhor — hoje e no futuro. Com previsão de conclusão num prazo de até dois anos, esta é também uma oportunidade rara de acompanhar de perto a evolução de um projeto de excelência, vendo nascer o seu lar de sonho e imprimindo-lhe, desde cedo, a sua marca pessoal. A localização, no Castêlo da Maia, assegura-lhe o equilíbrio perfeito entre exclusividade e conveniência. Beneficia de acessos privilegiados à nova variante da N14 e à Via Diagonal, garantindo ligações rápidas e eficientes. Nas proximidades, encontra escolas de referência, instituições de saúde de excelência, comércio e serviços selecionados, que tornam a vida quotidiana tão prática quanto sofisticada. Mais do que uma moradia, este é um projeto de vida. Um lugar onde a arquitetura encontra a arte de bem viver, onde cada espaço foi desenhado para inspirar e onde cada detalhe reflete a exigência de quem procura o melhor. Aqui, viver é um privilégio. ? Nota: Áreas conforme documentação do imóvel. ? Nota: Fração A. ? É necessária a apresentação de documento de identificação para a visita. (O promotor reserva o direito de alterar e/ou substituir materiais descritos por outros idênticos que não alterem a qualidade do imóvel. As imagens 3D apresentadas são ilustrativas e podem não representar totalmente a realidade.)
AMI: 22918
Ref. Externa: SR000021 (2)
Id: 1369762
Inicie sessão para guardar este imóvel e aceder à sua lista de favoritos em qualquer dispositivo.
Inicie sessão para ocultar este imóvel das suas pesquisas e manter a sua lista de resultados organizada.
HT Consultores
Consultor imobiliário em Patrícia Tiago Unipessoal, lda - AMI: 22918
Compre créditos para poder destacar os seus imóveis! Desta forma eles são os primeiros a aparecer nas pesquisas e têm uma maior chance de serem vistos pelos utilizadores.
Guardar favoritos
Este imóvel foi guardados nos seus favoritos com sucesso.
Para poder guardar pesquisa deverá ter a sua sessão iniciada.
Caso não tenha uma conta, deverá criar uma.
A sua pesquisa foi guardada com sucesso!
© Copyright 2023 | CASACERTA. All rights reserved
Este site utiliza cookies. Ao navegar no site estará a consentir a sua utilização.
Para mais informações sobre os cookies pode consultar a
política de privacidade.