Consultor imobiliário em Viver Nas Ondas - Mediação Imobiliária, Lda - AMI: 7530
Comprar
Arrendar
639.900 €
4 Quartos
4 WCs
Área bruta : 354 m²
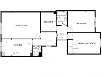
Oferta de 350€ em Cartão* Descubra esta moradia de luxo, de gaveto com 3 frentes, na Maia, a 15 minutos do Aeroporto. Pormenores exclusivos. Garagem com capacidade para 4 carros. Com linhas modernas, áreas generosas e acabamentos de excelência, esta é a casa perfeita para quem procura conforto, sofisticação e qualidade de vida. Piso -1 - Garagem fechada para dois carros, com muita arrumação - Dois lugares de garagem (com espaço ainda para um quinto sem perturbar a boa circulação) - Lavandaria com armários com muitos arrumos - Arrecadação Piso 0 (R/C) - Hall de entrada e circulação com armários embutidos - Casa de banho de serviço - Cozinha moderna e prática para o dia a dia, com muitos arrumos e equipada com placa, forno, microondas, frigorífico Side by Side, com ligação direta à sala - Sala ampla e luminosa com recuperador de calor para jantares em família no quentinho do lar - Acesso direto à zona exterior com logradouro e churrasqueira com total privacidade ideal para momentos de lazer Piso 1 - Master Suite com roupeiros embutidos, casa de banho privativa e acesso a varanda - Suite com roupeiros embutidos, casa de banho privativa e acesso à varanda em L Piso 2 - Um quarto com roupeiro, mini closet e varanda em L - Um outro quarto com roupeiro (neste momento é um escritório) com acesso ao terraço - Casa de banho de apoio aos quartos bastante generosa - Cantinho de leitura e acesso a um terraço com vista fenomenal onde de Verão pode usufruir de uns bons banhos de sol Equipamentos e Conforto - Caixilharia dupla com vidros duplos - Estores elétricos - Vídeo porteiro - Aspiração central - Aquecimento central Moradia toda ela com áreas amplas e bem distribuídas. Temos de destacar a luz direta que beneficia a casa toda e o facto de todos os pisos possuírem armários embutidos em forma de painel o que permite maior arrumação e facilita manter o espaço organizado. Destaca-se o bom gosto, organização e praticidade. Localiza-se numa zona residencial Premium da Maia, onde conta com todos os serviços e comércio perto tais como: Colégio, escolas, transportes públicos, zonas de lazer, restaurantes, padaria, etc A cinco minutos dos dois centros comerciais da Maia A 10 minutos do Zoo da Maia A 15 minutos do Aeroporto, do Centro do Porto e das praias de Leça da Palmeira e Matosinhos e do Parque da Cidade Uma moradia única, onde cada detalhe foi pensado para proporcionar bem-estar, privacidade e qualidade de vida. * Oferta em cartão Dá (Grupo SONAE). A VIVER NAS ONDAS é uma imobiliária com 19 anos de experiência que também atua como INTERMEDIÁRIA de CRÉDITO, devidamente autorizada pelo Banco de Portugal (Reg. 3151). A nossa equipa é composta por profissionais apaixonados e dedicados, prontos para tornar os seus sonhos em realidade. Assumimos a responsabilidade de cuidar de todo o processo de financiamento, proporcionando-lhe tranquilidade e segurança. Estamos empenhados em encontrar as melhores soluções de crédito habitação disponíveis no mercado, e trabalhamos incansavelmente para alcançar esse objetivo. Cuidamos de todos os detalhes do processo, desde a análise das suas necessidades financeiras até a apresentação das opções de financiamento mais adequadas ao seu perfil. A nossa missão é oferecer um serviço de excelência, colocando os seus interesses em primeiro lugar. Trabalhamos com empenho e dedicação para tornar o processo de obtenção de crédito habitação mais simples e eficaz para si.
AMI: 7530
Ref. Externa: MF-1249
Id: 1593722
Inicie sessão para guardar este imóvel e aceder à sua lista de favoritos em qualquer dispositivo.
2 WCs
Área bruta : 205 m²
Descubra esta magnífica loja, localizada no centro da Maia, com uma área bruta generosa de 205 m² e todo o conforto que procura para sentir com qualidade o seu comércio /serviço. Principais pontos de interesse deste imóvel: - Câmara Municipal: 1 minuto a pé - Hipermercados: 1 minuto a pé - Transportes públicos (metro e autocarro): 1 minuto a pé - Farmácia: 2 minutos a pé - Hospital (Trofa Saúde:) 2 minutos a pé - Acessos Autoestradas (várias ): 3 minutos de carro - Aeroporto 10 minutos de carro O imóvel destaca-se pelos seus espaços amplos, luminosos e bem distribuídos, oferecendo um ambiente moderno e funcional. Dispõe ainda de garagem com lugar para dois carros, garantindo total comodidade e segurança. Situado numa das zonas mais privilegiadas da Maia, esta loja coloca tudo ao seu alcance: comércio, serviços, escolas, transportes públicos, restaurantes, supermercados e zonas verdes, tudo a poucos passos de distância. Uma oportunidade única no centro da cidade.
AMI: 7530
Ref. Externa: JO-1233A
Id: 1593721
Inicie sessão para guardar este imóvel e aceder à sua lista de favoritos em qualquer dispositivo.
1 WCs
Área bruta : 142 m²
Descubra esta magnífica loja, localizada no centro da Maia, com uma área bruta generosa de 141,5 m² e todo o conforto que procura para sentir com qualidade o seu comércio /serviço. Principais pontos de interesse deste imóvel: - Câmara Municipal: 1 minuto a pé - Hipermercados: 1 minuto a pé - Transportes públicos (metro e autocarro): 1 minuto a pé - Farmácia: 2 minutos a pé - Hospital (Trofa Saúde:) 2 minutos a pé - Acessos Autoestradas (várias ): 3 minutos de carro - Aeroporto 10 minutos de carro O imóvel destaca-se pelos seus espaços amplos, luminosos e bem distribuídos, oferecendo um ambiente moderno e funcional. Dispõe ainda de garagem com lugar para um carro, garantindo total comodidade e segurança. Situado numa das zonas mais privilegiadas da Maia, esta loja coloca tudo ao seu alcance: comércio, serviços, escolas, transportes públicos, restaurantes, supermercados e zonas verdes, tudo a poucos passos de distância. Uma oportunidade única no centro da cidade.
AMI: 7530
Ref. Externa: JO-1233B
Id: 1593720
Inicie sessão para guardar este imóvel e aceder à sua lista de favoritos em qualquer dispositivo.
395.000 €
2 Quartos
2 WCs
Área bruta : 127 m²
Apartamento T2 Moderno com Parqueamento | Corroios Apresentamos este excelente T2, rés do chão, localizado em zona tranquila de Corroios, com ótimos acessos e proximidade a Lisboa e às praias da Costa da Caparica. Características principais: - 75m² de área útil - Cozinha americana totalmente equipada - Sala luminosa + segunda sala/escritório/arrumos no piso superior - 2 Quartos com roupeiro embutido - 2 Varandas, uma bastante generosa com 15.85m2 perfeita para desfrutar de momentos ao ar livre ou refeições em família - Casa de banho moderna com materiais de alta qualidade - Lugar de estacionamento privativo com 18.83m2 - Ar condicionado em todas as divisões - Inserido em prédio com elevador - Orientação solar nascente/poente Extras: Pavimento radiante, porta blindada, vídeo porteiro, arrecadação, painéis solares, internet e TV por cabo. Zona residencial calma, perto de escolas, comércio, serviços e transportes públicos. Excelente opção para habitação própria ou investimento. Marque já a sua visita e descubra o seu futuro lar! A VIVER NAS ONDAS é uma imobiliária com 19 anos de experiência que também atua como INTERMEDIÁRIA de CRÉDITO, devidamente autorizada pelo Banco de Portugal (Reg. 3151). A nossa equipa é composta por profissionais apaixonados e dedicados, prontos para tornar os seus sonhos em realidade. Assumimos a responsabilidade de cuidar de todo o processo de financiamento, caso necessite, proporcionando-lhe tranquilidade e segurança. Estamos empenhados em encontrar as melhores soluções de crédito habitação disponíveis no mercado, e trabalhamos incansavelmente para alcançar esse objetivo. Cuidamos de todos os detalhes do processo, desde a análise das suas necessidades financeiras até a apresentação das opções de financiamento mais adequadas ao seu perfil. A nossa missão é oferecer um serviço de excelência, colocando os seus interesses em primeiro lugar. Trabalhamos com empenho e dedicação para tornar o processo de obtenção de crédito habitação mais simples e eficaz para si.
AMI: 7530
Ref. Externa: PM-1159A
Id: 1593719
Inicie sessão para guardar este imóvel e aceder à sua lista de favoritos em qualquer dispositivo.
1 Quartos
1 WCs
Área bruta : 52 m²
NOVO a estrear - cozinha totalmente equipada. Este apartamento T1 novo, situado numa localização central e privilegiada, cercado por comércio, serviços e transportes públicos, destaca-se pelo design contemporâneo e acabamentos de alta qualidade. Características Principais: - Configuração com Suíte: O quarto principal é uma suíte privativa, equipado com roupeiros embutidos e uma casa de banho moderna. - Cozinha Totalmente Equipada: A cozinha apresenta um conceito moderno (open space), equipada com eletrodomésticos de última geração encastrados (placa, forno, exaustor, frigorífico combinado, máquina de lavar/secar roupa, máquina de lavar louça e microondas da marca Bosch. - Climatização e conforto: Dispõe de sistema de ar condicionado instalado na sala e no quarto, garantindo conforto térmico durante todo o ano, complementado por janelas de vidro duplo com corte térmico. Sendo um prédio novo, com vídeo porteiro, porta blindada de alta segurança, elevador e plataforma elevatória desde do piso 0 ao piso 5. 1º piso com elevador. Nota. : Pede-se 2 rendas + 1 caução
AMI: 7530
Ref. Externa: EA-1246
Id: 1591717
Inicie sessão para guardar este imóvel e aceder à sua lista de favoritos em qualquer dispositivo.
596.640 €
3 Quartos
3 WCs
Área bruta : 153 m²
OFERTA DA ESCRITURA de compra e venda*. Oportunidade Única no Porto. Excelentes Condições de Pagamento e Descontos Especiais! Localizado numa das zonas mais valorizadas e prestigiadas do Porto, ao lado do Estádio do Dragão, este é o empreendimento que você estava à espera! Perfeito para quem procura um lar com sofisticação, conforto e qualidade de vida, com acabamentos modernos e intemporais. Este apartamento com cozinha totalmente equipada e varanda, dispõe de áreas muito amplas, com todas as comodidades, bem como conforto acústico e térmico. - Acabamentos de elevada qualidade; - Cama king size suspensa com sistema de movimentação; - Cozinha totalmente equipada; - Casa de banho com duche; - Sistema Smart Home; - Controlo de iluminação e temperatura; - Ar condicionado; - Sistema multimédia; - Trinco e alarme na porta de entrada. Proximidade: - ESTÁDIO DO DRAGÃO - 0.1 km - ALAMEDA SHOPPING PORTO - 0.3 km - MERCADO ABASTECEDOR - 0.4 km - MATADOURO MUNICIPAL - 0.3 km - PRAÇA DA CORUJEIRA - 0.4 km - PARQUE DE SÃO ROQUE - 0.4 km - PRAÇA FRANCISCO SÁ CARNEIRO - 0.7 km - PRAÇA DAS FLORES - 0.7 km - ESCOLA BÁSICA DO 1º CICLO DAS FLORES - 1.0 km - TERMINAL INTERMODAL DE CAMPANHÃ - 1.8 km - PARQUE DO COVELO - 1.2 km - METRO ESTÁDIO DO DRAGÃO - 0,1Km Viva ou invista no coração do Porto, num condomínio fechado com localização privilegiada. Aproveite as condições exclusivas de pagamento e descontos especiais! Não perca esta oportunidade! Entre em contacto agora e garanta o seu lugar neste requintado empreendimento. * Oferta em cartão Dá (Grupo SONAE). A VIVER NAS ONDAS é uma imobiliária com 19 anos de experiência que também atua como INTERMEDIÁRIA de CRÉDITO, devidamente autorizada pelo Banco de Portugal (Reg. 3151). A nossa equipa é composta por profissionais apaixonados e dedicados, prontos para tornar os seus sonhos em realidade. Assumimos a responsabilidade de cuidar de todo o processo de financiamento, caso necessite, proporcionando-lhe tranquilidade e segurança. Estamos empenhados em encontrar as melhores soluções de crédito habitação disponíveis no mercado, e trabalhamos incansavelmente para alcançar esse objetivo. Cuidamos de todos os detalhes do processo, desde a análise das suas necessidades financeiras até a apresentação das opções de financiamento mais adequadas ao seu perfil. A nossa missão é oferecer um serviço de excelência, colocando os seus interesses em primeiro lugar. Trabalhamos com empenho e dedicação para tornar o processo de obtenção de crédito habitação mais simples e eficaz para si.
AMI: 7530
Ref. Externa: IP-1074H
Id: 1591718
Inicie sessão para guardar este imóvel e aceder à sua lista de favoritos em qualquer dispositivo.
4 Quartos
3 WCs
Área bruta : 159 m²
Viva onde o sol entra pela casa e o mar está a dois passos. COMPRE CASA E VÁ DE FÉRIAS! | *OFERTA de uma VIAGEM para 2 pessoas num magnífico CRUZEIRO de 7 noites pelo Mediterrâneo, em regime de pensão completa. Esta oferta exclusiva está disponível apenas para imóveis selecionados. Viaje a partir de OUTUBRO de 2026. Este espaçoso T4 com 159m², oferece luminosidade natural todo o dia, aliando conforto, elegância e sofisticação. Localizado junto à Av. Comendador Ferreira de Matos, este é um lugar pensado para quem valoriza qualidade de vida, arquitetura contemporânea e uma localização de excelência. Destaques do Apartamento: - Quartos amplos, com arrumação integrada - Sala e cozinha em open space - elegante e funcional, totalmente equipada com eletrodomésticos de marcas de referência - Varanda com ligação à zona social - Acabamentos premium e atenção ao detalhe - 4 lugares de estacionamento incluídos Destaques do empreendimento: - Arquitetura moderna e sofisticada - Áreas generosas e ambientes pensados para o conforto Inserido em Matosinhos Sul, entre o mar e o Parque da Cidade, a 5 minutos a pé da praia. Próximo de comércio, restaurantes, escolas, transportes e acessos rodoviários rápidos. Viver Aqui é Ter Tudo: - Uma vida junto ao mar, no centro da cidade. - Luz, textura e forma em sintonia perfeita. Agende já a sua visita e descubra porque este é um dos empreendimentos mais desejados de Matosinhos. Uma oportunidade única para viver ou investir com distinção. A VIVER NAS ONDAS é uma imobiliária com 19 anos de experiência que também atua como INTERMEDIÁRIA de CRÉDITO, devidamente autorizada pelo Banco de Portugal (Reg. 3151). A nossa equipa é composta por profissionais apaixonados e dedicados, prontos para tornar os seus sonhos em realidade. Assumimos a responsabilidade de cuidar de todo o processo de financiamento, proporcionando-lhe tranquilidade e segurança. Estamos empenhados em encontrar as melhores soluções de crédito habitação disponíveis no mercado, e trabalhamos incansavelmente para alcançar esse objetivo. Cuidamos de todos os detalhes do processo, desde a análise das suas necessidades financeiras até a apresentação das opções de financiamento mais adequadas ao seu perfil. A nossa missão é oferecer um serviço de excelência, colocando os seus interesses em primeiro lugar. Trabalhamos com empenho e dedicação para tornar o processo de obtenção de crédito habitação mais simples e eficaz para si.
AMI: 7530
Ref. Externa: IP-1148AX
Id: 1591716
Inicie sessão para guardar este imóvel e aceder à sua lista de favoritos em qualquer dispositivo.
3 Quartos
2 WCs
Área bruta : 160 m²
Viver no último andar, com espaço, luz natural e um terraço onde a cidade se abre à sua frente é isso que este T3 na Avenida da Liberdade oferece. Localizado no 7.º e último piso, com elevador, este apartamento destaca-se pelas áreas amplas, pela excelente luminosidade ao longo do dia e pelas vistas desafogadas sobre o Bom Jesus, Sameiro e o centro da cidade. O grande destaque vai para o amplo terraço, ideal para momentos de descanso, convívio ou refeições ao ar livre. Um verdadeiro privilégio em plena zona central. O imóvel dispõe de três quartos, sendo um deles suite, todos com roupeiros embutidos, além de um roupeiro adicional no corredor. Conta ainda com duas casas de banho completas, duas despensas, marquise e um arrumo no sótão, oferecendo uma capacidade de arrumação pouco comum neste tipo de localização. O prédio não dispõe de garagem. A cozinha encontra-se equipada com placa, forno e exaustor, e a caixilharia nova em todas as divisões garante maior conforto térmico e acústico. Uma excelente opção para quem procura centralidade sem abdicar de espaço, privacidade e qualidade de vida, com comércio, serviços, transportes e zonas de lazer a poucos passos. Um imóvel completo, pronto a habitar, numa localização onde raramente surgem oportunidades com estas características. Disponível para arrendamento Renda mensal: 1.250,00 € Condições para o arrendamento: Pagamento inicial: 2 rendas + 2 cauções Apresentação de IRS e contrato de trabalho Últimos 3 recibos de vencimento Fiadores poderão ser exigidos, dependendo dos rendimentos dos candidatos Para mais informações ou para agendar a sua visita e conhecer este apartamento, entre em contacto.
AMI: 7530
Ref. Externa: VR-AL
Id: 1589668
Inicie sessão para guardar este imóvel e aceder à sua lista de favoritos em qualquer dispositivo.
425.000 €
3 Quartos
3 WCs
Área bruta : 134 m²
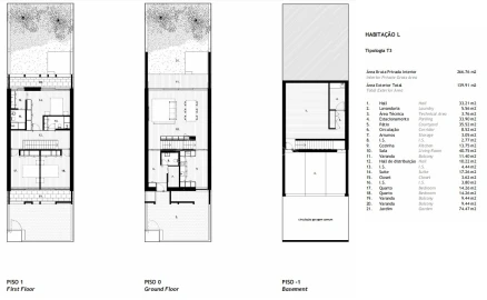
Oferta de Escritura de Compra e venda* Moradia em construção, de 4 assoalhadas geminada duplex de arquitetura contemporânea, com um quarto no piso térreo, localizada em Pinhal General, numa zona consolidada de moradias, junto ao novo Centro Desportivo do Pinhal do General. Composição da moradia: Piso 0: Sala (28,90 m²) e cozinha em estilo americano 'open space' 1 Quarto com roupeiro (13,20 m²) Casa de banho Piso 1: 1 Quarto em suite (15,35 m²) com roupeiro e acesso a varanda 1 Quarto em suite (14,75 m²) com roupeiro e acesso a varanda Em termos de acabamentos/equipamentos: Exterior: logradouro com churrasqueira, bancada de apoio com lavatório Cozinha com ilha totalmente equipada Caixilharia em PVC com vidro duplo e corte térmico Estores elétricos Tetos falsos com iluminação LED Aspiração central Painel solar com sistema de termossifão para AQS Ar condicionado Vídeo Porteiro Portão acesso de viatura com abertura de automatismo automática Na sua proximidade, de carro, encontramos: Escola Básica da Quinta do Conde a 5 minutos Mercado Municipal a 3 minutos Intermarché a 5 minutos Aldi e Lidl a 6 minutos Estação Fertagus (comboios para Lisboa) a 10 minutos Retail Shopping a 10 minutos Acesso A33 e A2 a 5 minutos Baía/zona histórica do Seixal a 15 minutos Praias da Fonte da Telha, Lagoa de Albufeira e Califórnia (Sesimbra) a 20 minutos Beneficie da possibilidade de isenção parcial de IMT e imposto de selo conforme previsto no Decreto-Lei n.º 48-A/2024. *Oferta em cartão Dá (Grupo SONAE). Marque já a sua visita. A VIVER NAS ONDAS é uma imobiliária com 19 anos de experiência que também atua como INTERMEDIÁRIA de CRÉDITO, devidamente autorizada pelo Banco de Portugal (Reg. 3151). A nossa equipa é composta por profissionais apaixonados e dedicados, prontos para tornar os seus sonhos em realidade. Assumimos a responsabilidade de cuidar de todo o processo de financiamento, caso necessite, proporcionando-lhe tranquilidade e segurança. Estamos empenhados em encontrar as melhores soluções de crédito habitação disponíveis no mercado, e trabalhamos incansavelmente para alcançar esse objetivo. Cuidamos de todos os detalhes do processo, desde a análise das suas necessidades financeiras até a apresentação das opções de financiamento mais adequadas ao seu perfil. A nossa missão é oferecer um serviço de excelência, colocando os seus interesses em primeiro lugar. Trabalhamos com empenho e dedicação para tornar o processo de obtenção de crédito habitação mais simples e eficaz para si.
AMI: 7530
Ref. Externa: AN-1245A
Id: 1589666
Inicie sessão para guardar este imóvel e aceder à sua lista de favoritos em qualquer dispositivo.
425.000 €
3 Quartos
3 WCs
Área bruta : 134 m²
Oferta de Escritura de Compra e venda* Moradia em construção, de 4 assoalhadas geminada duplex de arquitetura contemporânea, com um quarto no piso térreo, localizada em Pinhal General, numa zona consolidada de moradias, junto ao novo Centro Desportivo do Pinhal do General. Composição da moradia: Piso 0: Sala (28,90 m²) e cozinha em estilo americano 'open space' 1 Quarto com roupeiro (13,20 m²) Casa de banho Piso 1: 1 Quarto em suite (15,35 m²) com roupeiro e acesso a varanda 1 Quarto em suite (14,75 m²) com roupeiro e acesso a varanda Em termos de acabamentos/equipamentos: Exterior: logradouro com churrasqueira, bancada de apoio com lavatório Cozinha com ilha totalmente equipada Caixilharia em PVC com vidro duplo e corte térmico Estores elétricos Tetos falsos com iluminação LED Aspiração central Painel solar com sistema de termossifão para AQS Ar condicionado Vídeo Porteiro Portão acesso de viatura com abertura de automatismo automática Na sua proximidade, de carro, encontramos: Escola Básica da Quinta do Conde a 5 minutos Mercado Municipal a 3 minutos Intermarché a 5 minutos Aldi e Lidl a 6 minutos Estação Fertagus (comboios para Lisboa) a 10 minutos Retail Shopping a 10 minutos Acesso A33 e A2 a 5 minutos Baía/zona histórica do Seixal a 15 minutos Praias da Fonte da Telha, Lagoa de Albufeira e Califórnia (Sesimbra) a 20 minutos Beneficie da possibilidade de isenção parcial de IMT e imposto de selo conforme previsto no Decreto-Lei n.º 48-A/2024. *Oferta em cartão Dá (Grupo SONAE). Marque já a sua visita. A VIVER NAS ONDAS é uma imobiliária com 19 anos de experiência que também atua como INTERMEDIÁRIA de CRÉDITO, devidamente autorizada pelo Banco de Portugal (Reg. 3151). A nossa equipa é composta por profissionais apaixonados e dedicados, prontos para tornar os seus sonhos em realidade. Assumimos a responsabilidade de cuidar de todo o processo de financiamento, caso necessite, proporcionando-lhe tranquilidade e segurança. Estamos empenhados em encontrar as melhores soluções de crédito habitação disponíveis no mercado, e trabalhamos incansavelmente para alcançar esse objetivo. Cuidamos de todos os detalhes do processo, desde a análise das suas necessidades financeiras até a apresentação das opções de financiamento mais adequadas ao seu perfil. A nossa missão é oferecer um serviço de excelência, colocando os seus interesses em primeiro lugar. Trabalhamos com empenho e dedicação para tornar o processo de obtenção de crédito habitação mais simples e eficaz para si.
AMI: 7530
Ref. Externa: AN-1245B
Id: 1589667
Inicie sessão para guardar este imóvel e aceder à sua lista de favoritos em qualquer dispositivo.
389.900 €
2 Quartos
2 WCs
Área bruta : 142 m²
OFERTA DA ESCRITURA de compra e venda*. Descubra este T2 exclusivo, situado no 1º andar de um empreendimento inovador que combina funcionalidade, sustentabilidade e um design sofisticado. Com 79,4 m² de área útil, este apartamento é ideal para quem procura mais espaço e versatilidade, seja para uma família, um escritório em casa ou uma área de lazer extra. Características do Apartamento: - Área útil: 79,4 m² - Piso: 1 - Interiores modernos com acabamentos de alta qualidade, garantindo conforto e sofisticação Empreendimento Sustentável e Exclusivo: - Jardins paisagísticos e amplas áreas verdes, proporcionando um ambiente tranquilo no centro da cidade - Ginásio ao ar livre, promovendo um estilo de vida saudável - Parque infantil, perfeito para famílias - Eficiência energética e aproveitamento de águas pluviais, garantindo sustentabilidade e economia Vantagens Adicionais: - Possibilidade de isenção parcial de IMT e imposto de selo, conforme previsto no Decreto-Lei n.º 48-A/2024 - Localização estratégica no Porto, com acesso rápido a hospitais, escolas, transportes públicos e comércio - Uma oportunidade única de investimento num dos mercados imobiliários mais dinâmicos da Europa Se procura um apartamento espaçoso, moderno e inserido num empreendimento sustentável, este T2 é a escolha perfeita para viver com conforto e qualidade no Porto. * Oferta em cartão Dá (Grupo SONAE). A VIVER NAS ONDAS é uma imobiliária com 19 anos de experiência que também atua como INTERMEDIÁRIA de CRÉDITO, devidamente autorizada pelo Banco de Portugal (Reg. 3151). A nossa equipa é composta por profissionais apaixonados e dedicados, prontos para tornar os seus sonhos em realidade. Assumimos a responsabilidade de cuidar de todo o processo de financiamento, proporcionando-lhe tranquilidade e segurança. Estamos empenhados em encontrar as melhores soluções de crédito habitação disponíveis no mercado, e trabalhamos incansavelmente para alcançar esse objetivo. Cuidamos de todos os detalhes do processo, desde a análise das suas necessidades financeiras até a apresentação das opções de financiamento mais adequadas ao seu perfil. A nossa missão é oferecer um serviço de excelência, colocando os seus interesses em primeiro lugar. Trabalhamos com empenho e dedicação para tornar o processo de obtenção de crédito habitação mais simples e eficaz para si.
AMI: 7530
Ref. Externa: VO-RSPA2
Id: 1587598
Inicie sessão para guardar este imóvel e aceder à sua lista de favoritos em qualquer dispositivo.
550.000 €
3 Quartos
2 WCs
Área bruta : 244 m²
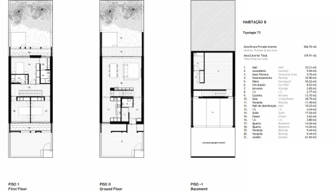
OFERTA DA ESCRITURA de compra e venda*. Moradia em construção, de 4 assoalhadas de arquitetura contemporânea, localizada em Pinhal General (Fernão Ferro), numa zona consolidada de moradias. Composição da moradia: Piso 0: Sala/cozinha (43,35m²), em estilo americano 'open space' Quarto com roupeiro (13,30 m²) Quarto com roupeiro (14,00 m²) 1 Quarto em suite (19,17 m²) com closet Casa de banho Em termos de acabamentos/equipamentos: Exterior: logradouro com lavandaria, churrasqueira, bancada de apoio com lavatório Cozinha totalmente equipada com frigorífico americano Caixilharia em PVC com vidro duplo e corte térmico Estores elétricos Tetos falsos com iluminação LED Aspiração central Painel solar com sistema de termossifão para AQS Ar condicionado Domótica Vídeo Porteiro Portão acesso de viatura com abertura de automatismo automática Garagem Na sua proximidade, de carro, encontramos: Escola Básica da Quinta do Conde a 10 minutos Mercado Municipal a 10 minutos Intermarché a 5 minutos Aldi e Lidl a 6 minutos Estação Fertagus (comboios para Lisboa) a 10 minutos RioSul Shopping a 10 minutos Acesso A33 e A2 a 5 minutos Baía/zona histórica do Seixal a 15 minutos Praias da Fonte da Telha, Lagoa de Albufeira e Califórnia (Sesimbra) a 20 minutos Beneficie da possibilidade de isenção parcial de IMT e imposto de selo conforme previsto no Decreto-Lei n.º 48-A/2024. * Oferta em cartão Dá (Grupo SONAE). A VIVER NAS ONDAS é uma imobiliária com 19 anos de experiência que também atua como INTERMEDIÁRIA de CRÉDITO, devidamente autorizada pelo Banco de Portugal (Reg. 3151). A nossa equipa é composta por profissionais apaixonados e dedicados, prontos para tornar os seus sonhos em realidade. Assumimos a responsabilidade de cuidar de todo o processo de financiamento, caso necessite, proporcionando-lhe tranquilidade e segurança. Estamos empenhados em encontrar as melhores soluções de crédito habitação disponíveis no mercado, e trabalhamos incansavelmente para alcançar esse objetivo. Cuidamos de todos os detalhes do processo, desde a análise das suas necessidades financeiras até a apresentação das opções de financiamento mais adequadas ao seu perfil. A nossa missão é oferecer um serviço de excelência, colocando os seus interesses em primeiro lugar. Trabalhamos com empenho e dedicação para tornar o processo de obtenção de crédito habitação mais simples e eficaz para si.
AMI: 7530
Ref. Externa: AN-1243
Id: 1587596
Inicie sessão para guardar este imóvel e aceder à sua lista de favoritos em qualquer dispositivo.
252.000 €
1 WCs
Área bruta : 44 m²
OFERTA DA ESCRITURA de compra e venda*. Apresentamos este moderno apartamento T0, localizado na Alameda das Antas, a apenas 200 metros do Estádio do Dragão e da estação de Metro, com acesso direto ao Alameda Shopping. Uma excelente oportunidade de investimento, garantindo alta rentabilidade. O apartamento inclui arrecadação, ar condicionado por condutas e lugar de estacionamento com ponto de carregamento para veículos elétricos. Inserido num empreendimento novo e exclusivo, oferece diversas comodidades, como: - Ginásio - Piscina interior - Parque de bicicletas - Sala de convívio - Espaço exterior infantil com parque - Mesas de piquenique - Zona fitness - Lounge de relaxamento - Pista de petanca A sua localização privilegiada, no coração do Porto, coloca-o a poucos minutos de locais estratégicos da cidade, como: - METRO Antas : 5 minutos a pé - Centro Comercial Alameda (5 min a pé) - Estádio do Dragão (5 min a pé) - Praça Velasquez (5 min de carro) - Loja do Cidadão (6 min de carro) - Futuro Matadouro de Campanhã (projeto em desenvolvimento) - Hipermercados a 5 minutos - Restauração e farmácias a 5 minutos - Colégios a 10 minutos A área é amplamente servida por transportes públicos, destacando-se a Estação de Metro do Estádio do Dragão, uma das principais da cidade, com ligações diretas a todas as linhas de metro. Além disso, a proximidade da Via de Cintura Interna (VCI) facilita a mobilidade para qualquer ponto da cidade e arredores. Viver aqui é desfrutar do equilíbrio perfeito entre modernidade, conforto e conveniência, no centro de uma cidade vibrante, reconhecida internacionalmente pela sua qualidade de vida. Beneficie da possibilidade de isenção total de IMT e imposto de selo, conforme previsto no Decreto-Lei n.º 48-A/2024. * Oferta em cartão Dá (Grupo SONAE). A VIVER NAS ONDAS é uma imobiliária com 19 anos de experiência que também atua como INTERMEDIÁRIA de CRÉDITO, devidamente autorizada pelo Banco de Portugal (Reg. 3151). A nossa equipa é composta por profissionais apaixonados e dedicados, prontos para tornar os seus sonhos em realidade. Assumimos a responsabilidade de cuidar de todo o processo de financiamento, proporcionando-lhe tranquilidade e segurança. Estamos empenhados em encontrar as melhores soluções de crédito habitação disponíveis no mercado, e trabalhamos incansavelmente para alcançar esse objetivo. Cuidamos de todos os detalhes do processo, desde a análise das suas necessidades financeiras até a apresentação das opções de financiamento mais adequadas ao seu perfil. A nossa missão é oferecer um serviço de excelência, colocando os seus interesses em primeiro lugar. Trabalhamos com empenho e dedicação para tornar o processo de obtenção de crédito habitação mais simples e eficaz para si.
AMI: 7530
Ref. Externa: IP-1017
Id: 1587595
Inicie sessão para guardar este imóvel e aceder à sua lista de favoritos em qualquer dispositivo.
1 Quartos
1 WCs
Área bruta : 95 m²
Este apartamento T1, localizado no rés-do-chão, destaca-se pela luminosidade, excelente distribuição de espaços e um terraço privativo de 35,64 m², perfeito para convívio, lazer ou refeições ao ar livre. Características principais: - Sala e cozinha em open space (31,45 m²): integração total entre os ambientes sociais, com acesso direto ao terraço. - Quarto (12,57 m²): confortável e tranquilo, com possibilidade de roupeiro. - Hall de entrada (8,95 m²): amplo, facilitando a circulação entre os ambientes. - WC (4,21 m²): moderno e funcional, com acabamentos de qualidade. - Terraço privativo (35,64 m²): ideal para relaxar ou receber convidados ao ar livre, com vistas para a envolvente verde. Conforto e acabamentos: - Pré-instalação de ar condicionado. - Pré-instalação de aquecimento central. - Cozinha equipada com eletrodomésticos da marca Beko. - Painéis solares térmicos em termossifão (AQS), promovendo eficiência energética e sustentabilidade. - Acabamentos premium, cuidadosamente selecionados para garantir durabilidade, conforto e valorização do imóvel. Comodidades e vantagens: - 1 lugar de estacionamento interior, garantindo segurança e comodidade. - Exposição solar privilegiada, assegurando excelente luminosidade natural ao longo do dia. Localização: Localizado no empreendimento Varandas do Pinhal, este apartamento beneficia de uma localização de excelência, combinando tranquilidade, acessibilidade e contacto com a natureza. Encontra-se junto ao futuro Jardim Alameda do Poder Local, um espaço verde em desenvolvimento que contará com a plantação de 254 novas árvores, reforçando a qualidade de vida e o bem-estar dos residentes. A poucos minutos da Quinta do Perú Golf & Country Club, o imóvel dispõe de fácil acesso a escolas nacionais e internacionais, comércio e serviços. A estação ferroviária situa-se a apenas 5 minutos, enquanto as principais vias rodoviárias (N10, IC32 e A33) garantem ligações rápidas a Lisboa e Setúbal, com o Aeroporto de Lisboa a cerca de 30 minutos. Sobre o empreendimento: Com conclusão prevista para fevereiro de 2027, o Varandas do Pinhal é um empreendimento residencial contemporâneo, composto por doze frações distribuídas por três pisos, oferecendo tipologias T1, T2 e T3 com áreas generosas, soluções modernas e acabamentos de elevada qualidade ideal tanto para habitação própria, como para investimento seguro. Os edifícios dispõem de ELEVADOR para sua comodidade. Marque já a sua visita. Nota: Fotografias 3D meramente ilustrativas. A VIVER NAS ONDAS é uma imobiliária com 19 anos de experiência que também atua como INTERMEDIÁRIA de CRÉDITO, devidamente autorizada pelo Banco de Portugal (Reg. 3151). A nossa equipa é composta por profissionais apaixonados e dedicados, prontos para tornar os seus sonhos em realidade. Assumimos a responsabilidade de cuidar de todo o processo de financiamento, caso necessite, proporcionando-lhe tranquilidade e segurança. Estamos empenhados em encontrar as melhores soluções de crédito habitação disponíveis no mercado, e trabalhamos incansavelmente para alcançar esse objetivo. Cuidamos de todos os detalhes do processo, desde a análise das suas necessidades financeiras até a apresentação das opções de financiamento mais adequadas ao seu perfil. A nossa missão é oferecer um serviço de excelência, colocando os seus interesses em primeiro lugar. Trabalhamos com empenho e dedicação para tornar o processo de obtenção de crédito habitação mais simples e eficaz para si.
AMI: 7530
Ref. Externa: VO-VDPA
Id: 1580686
Inicie sessão para guardar este imóvel e aceder à sua lista de favoritos em qualquer dispositivo.
1 Quartos
1 WCs
Área bruta : 95 m²
Este apartamento T1, localizado no rés-do-chão, destaca-se pela luminosidade, excelente distribuição de espaços e um terraço privativo de 35,64 m², perfeito para convívio, lazer ou refeições ao ar livre. Características principais: - Sala e cozinha em open space (31,45 m²): integração total entre os ambientes sociais, com acesso direto ao terraço. - Quarto (12,57 m²): confortável e tranquilo, com possibilidade de roupeiro. - Hall de entrada (8,95 m²): amplo, facilitando a circulação entre os ambientes. - WC (4,21 m²): moderno e funcional, com acabamentos de qualidade. - Terraço privativo (35,64 m²): ideal para relaxar ou receber convidados ao ar livre, com vistas para a envolvente verde. Conforto e acabamentos: - Pré-instalação de ar condicionado. - Pré-instalação de aquecimento central. - Cozinha equipada com eletrodomésticos da marca Beko. - Painéis solares térmicos em termossifão (AQS), promovendo eficiência energética e sustentabilidade. - Acabamentos premium, cuidadosamente selecionados para garantir durabilidade, conforto e valorização do imóvel. Comodidades e vantagens: - 1 lugar de estacionamento interior, garantindo segurança e comodidade. - Exposição solar privilegiada, assegurando excelente luminosidade natural ao longo do dia. Localização: Localizado no empreendimento Varandas do Pinhal, este apartamento beneficia de uma localização de excelência, combinando tranquilidade, acessibilidade e contacto com a natureza. Encontra-se junto ao futuro Jardim Alameda do Poder Local, um espaço verde em desenvolvimento que contará com a plantação de 254 novas árvores, reforçando a qualidade de vida e o bem-estar dos residentes. A poucos minutos da Quinta do Perú Golf & Country Club, o imóvel dispõe de fácil acesso a escolas nacionais e internacionais, comércio e serviços. A estação ferroviária situa-se a apenas 5 minutos, enquanto as principais vias rodoviárias (N10, IC32 e A33) garantem ligações rápidas a Lisboa e Setúbal, com o Aeroporto de Lisboa a cerca de 30 minutos. Sobre o empreendimento: Com conclusão prevista para fevereiro de 2027, o Varandas do Pinhal é um empreendimento residencial contemporâneo, composto por doze frações distribuídas por três pisos, oferecendo tipologias T1, T2 e T3 com áreas generosas, soluções modernas e acabamentos de elevada qualidade ideal tanto para habitação própria, como para investimento seguro. Os edifícios dispõem de ELEVADOR para sua comodidade. Marque já a sua visita. Nota: Fotografias 3D meramente ilustrativas. A VIVER NAS ONDAS é uma imobiliária com 19 anos de experiência que também atua como INTERMEDIÁRIA de CRÉDITO, devidamente autorizada pelo Banco de Portugal (Reg. 3151). A nossa equipa é composta por profissionais apaixonados e dedicados, prontos para tornar os seus sonhos em realidade. Assumimos a responsabilidade de cuidar de todo o processo de financiamento, caso necessite, proporcionando-lhe tranquilidade e segurança. Estamos empenhados em encontrar as melhores soluções de crédito habitação disponíveis no mercado, e trabalhamos incansavelmente para alcançar esse objetivo. Cuidamos de todos os detalhes do processo, desde a análise das suas necessidades financeiras até a apresentação das opções de financiamento mais adequadas ao seu perfil. A nossa missão é oferecer um serviço de excelência, colocando os seus interesses em primeiro lugar. Trabalhamos com empenho e dedicação para tornar o processo de obtenção de crédito habitação mais simples e eficaz para si.
AMI: 7530
Ref. Externa: VO-VDPAA
Id: 1580685
Inicie sessão para guardar este imóvel e aceder à sua lista de favoritos em qualquer dispositivo.
2 Quartos
2 WCs
Área bruta : 105 m²
Este apartamento T2, localizado no 2.º andar, combina luminosidade, conforto e funcionalidade, oferecendo dois quartos espaçosos, duas varandas privativas, dois lugares de estacionamento interior e arrecadação com 9,17 m², ideal para armazenamento adicional. É a opção perfeita para quem procura conforto, praticidade e um estilo de vida moderno. Características principais: - Sala (24,00 m²) e cozinha (6,95 m²) em open space: integração total entre os ambientes sociais, promovendo fluidez e conforto, com acesso direto a uma das varandas. - Quarto Suíte (17,63 m²) e Quarto (14,72 m²): espaços amplos e tranquilos, ideais para descanso, trabalho remoto ou quarto infantil. - Hall de entrada (4,65 m²): funcional e bem distribuído, facilitando a circulação entre os diferentes espaços. - WC Social (2,56 m²) e WC Suíte (4,22 m²): modernos, com acabamentos de qualidade e soluções funcionais. - Varandas privativas (9,13 m² e 7,35 m²): totalizando 16,48 m², perfeitas para momentos de lazer, relaxamento ou convívio ao ar livre. Conforto, eficiência e comodidades: - Pré-instalação de ar condicionado. - Pré-instalação de aquecimento central. - Cozinha equipada com eletrodomésticos da marca Beko. - Painéis solares térmicos em termossifão (AQS), promovendo eficiência energética e sustentabilidade. - 2 lugares de estacionamento interior, garantindo segurança e comodidade. - Arrecadação privativa (9,17 m²) para arrumação adicional. - Acabamentos premium, pensados para durabilidade, conforto e valorização do imóvel. Exposição solar privilegiada, assegurando excelente luminosidade natural ao longo do dia. Localização: Localizado no empreendimento Varandas do Pinhal, este apartamento beneficia de uma localização de excelência, combinando tranquilidade, acessibilidade e contacto com a natureza. Encontra-se junto ao futuro Jardim Alameda do Poder Local, um espaço verde em desenvolvimento que contará com a plantação de 254 novas árvores, reforçando a qualidade de vida e o bem-estar dos residentes. A poucos minutos da Quinta do Perú Golf & Country Club, o imóvel dispõe de fácil acesso a escolas nacionais e internacionais, comércio e serviços. A estação ferroviária situa-se a apenas 5 minutos, enquanto as principais vias rodoviárias (N10, IC32 e A33) garantem ligações rápidas a Lisboa e Setúbal, com o Aeroporto de Lisboa a cerca de 30 minutos. Sobre o empreendimento: Com conclusão prevista para fevereiro de 2027, o Varandas do Pinhal é um empreendimento residencial contemporâneo, composto por doze frações distribuídas por três pisos, oferecendo tipologias T1, T2 e T3 com áreas generosas, soluções modernas e acabamentos de elevada qualidade ideal tanto para habitação própria, como para investimento seguro. Os edifícios dispõem de ELEVADOR para sua comodidade. Marque já a sua visita. Nota: Imagens 3D meramente ilustrativas. A VIVER NAS ONDAS é uma imobiliária com 19 anos de experiência que também atua como INTERMEDIÁRIA de CRÉDITO, devidamente autorizada pelo Banco de Portugal (Reg. 3151). A nossa equipa é composta por profissionais apaixonados e dedicados, prontos para tornar os seus sonhos em realidade. Assumimos a responsabilidade de cuidar de todo o processo de financiamento, caso necessite, proporcionando-lhe tranquilidade e segurança. Estamos empenhados em encontrar as melhores soluções de crédito habitação disponíveis no mercado, e trabalhamos incansavelmente para alcançar esse objetivo. Cuidamos de todos os detalhes do processo, desde a análise das suas necessidades financeiras até a apresentação das opções de financiamento mais adequadas ao seu perfil. A nossa missão é oferecer um serviço de excelência, colocando os seus interesses em primeiro lugar. Trabalhamos com empenho e dedicação para tornar o processo de obtenção de crédito habitação mais simples e eficaz para si.
AMI: 7530
Ref. Externa: VO-VDPE
Id: 1580684
Inicie sessão para guardar este imóvel e aceder à sua lista de favoritos em qualquer dispositivo.
2 Quartos
2 WCs
Área bruta : 105 m²
Este apartamento T2, localizado no 2.º andar, combina luminosidade, conforto e funcionalidade, oferecendo dois quartos espaçosos, duas varandas privativas, dois lugares de estacionamento interior e arrecadação com 9,17 m², ideal para armazenamento adicional. É a opção perfeita para quem procura conforto, praticidade e um estilo de vida moderno. Características principais: - Sala (24,00 m²) e cozinha (6,95 m²) em open space: integração total entre os ambientes sociais, promovendo fluidez e conforto, com acesso direto a uma das varandas. - Quarto Suíte (17,63 m²) e Quarto (14,72 m²): espaços amplos e tranquilos, ideais para descanso, trabalho remoto ou quarto infantil. - Hall de entrada (4,65 m²): funcional e bem distribuído, facilitando a circulação entre os diferentes espaços. - WC Social (2,56 m²) e WC Suíte (4,22 m²): modernos, com acabamentos de qualidade e soluções funcionais. - Varandas privativas (9,13 m² e 7,35 m²): totalizando 16,48 m², perfeitas para momentos de lazer, relaxamento ou convívio ao ar livre. Conforto, eficiência e comodidades: - Pré-instalação de ar condicionado. - Pré-instalação de aquecimento central. - Cozinha equipada com eletrodomésticos da marca Beko. - Painéis solares térmicos em termossifão (AQS), promovendo eficiência energética e sustentabilidade. - 2 lugares de estacionamento interior, garantindo segurança e comodidade. - Arrecadação privativa (9,17 m²) para arrumação adicional. - Acabamentos premium, pensados para durabilidade, conforto e valorização do imóvel. Exposição solar privilegiada, assegurando excelente luminosidade natural ao longo do dia. Localização: Localizado no empreendimento Varandas do Pinhal, este apartamento beneficia de uma localização de excelência, combinando tranquilidade, acessibilidade e contacto com a natureza. Encontra-se junto ao futuro Jardim Alameda do Poder Local, um espaço verde em desenvolvimento que contará com a plantação de 254 novas árvores, reforçando a qualidade de vida e o bem-estar dos residentes. A poucos minutos da Quinta do Perú Golf & Country Club, o imóvel dispõe de fácil acesso a escolas nacionais e internacionais, comércio e serviços. A estação ferroviária situa-se a apenas 5 minutos, enquanto as principais vias rodoviárias (N10, IC32 e A33) garantem ligações rápidas a Lisboa e Setúbal, com o Aeroporto de Lisboa a cerca de 30 minutos. Sobre o empreendimento: Com conclusão prevista para fevereiro de 2027, o Varandas do Pinhal é um empreendimento residencial contemporâneo, composto por doze frações distribuídas por três pisos, oferecendo tipologias T1, T2 e T3 com áreas generosas, soluções modernas e acabamentos de elevada qualidade ideal tanto para habitação própria, como para investimento seguro. Os edifícios dispõem de ELEVADOR para sua comodidade. Marque já a sua visita. Nota: Imagens 3D meramente ilustrativas. A VIVER NAS ONDAS é uma imobiliária com 19 anos de experiência que também atua como INTERMEDIÁRIA de CRÉDITO, devidamente autorizada pelo Banco de Portugal (Reg. 3151). A nossa equipa é composta por profissionais apaixonados e dedicados, prontos para tornar os seus sonhos em realidade. Assumimos a responsabilidade de cuidar de todo o processo de financiamento, caso necessite, proporcionando-lhe tranquilidade e segurança. Estamos empenhados em encontrar as melhores soluções de crédito habitação disponíveis no mercado, e trabalhamos incansavelmente para alcançar esse objetivo. Cuidamos de todos os detalhes do processo, desde a análise das suas necessidades financeiras até a apresentação das opções de financiamento mais adequadas ao seu perfil. A nossa missão é oferecer um serviço de excelência, colocando os seus interesses em primeiro lugar. Trabalhamos com empenho e dedicação para tornar o processo de obtenção de crédito habitação mais simples e eficaz para si.
AMI: 7530
Ref. Externa: VO-VDPEE
Id: 1580683
Inicie sessão para guardar este imóvel e aceder à sua lista de favoritos em qualquer dispositivo.
3 Quartos
2 WCs
Área bruta : 116 m²
Este apartamento T3, situado no 1.º andar, combina luminosidade, conforto e funcionalidade, oferecendo três quartos espaçosos, duas varandas privativas, 2 lugares de estacionamento interior e arrecadação com 13,38 m², ideal para armazenamento adicional. É perfeito para famílias ou quem procura mais espaço e versatilidade, beneficiando de uma envolvente verde e tranquila. Características principais: - Sala (25,14 m²) e cozinha (9,06 m²) em open space: integração total entre os ambientes sociais, com acesso direto a uma das varandas e vistas sobre a envolvente arborizada. - Quarto Suíte (15,03 m²) e dois quartos adicionais (13,43 m² e 9,00 m²): espaçosos e tranquilos, ideais para descanso, quartos infantis ou home office. - Hall de entrada (5,42 m²): funcional, facilitando a circulação entre os ambientes. - WC Social (2,56 m²) e WC Suíte (4,22 m²): modernos, com acabamentos de qualidade e soluções práticas. - Varandas privativas (10,36 m² e 7,20 m²): perfeitas para momentos de lazer, relaxamento ou convívio ao ar livre, em contacto com a natureza envolvente. Conforto e acabamentos: - Pré-instalação de ar condicionado. - Pré-instalação de aquecimento central. - Cozinha equipada com eletrodomésticos da marca Beko. - Painéis solares térmicos em termossifão (AQS), promovendo eficiência energética e sustentabilidade. - Acabamentos premium, cuidadosamente selecionados para garantir durabilidade, conforto e valorização do imóvel. Comodidades e vantagens: - 2 lugares de estacionamento interior, garantindo segurança e comodidade. - Arrecadação privativa (13,38 m²) para armazenamento extra. - Exposição solar privilegiada, assegurando excelente luminosidade natural ao longo do dia. Localização: Localizado no empreendimento Varandas do Pinhal, este apartamento beneficia de uma localização de excelência, combinando tranquilidade, acessibilidade e contacto com a natureza. Encontra-se junto ao futuro Jardim Alameda do Poder Local, um espaço verde em desenvolvimento que contará com a plantação de 254 novas árvores, reforçando a qualidade de vida e o bem-estar dos residentes. A poucos minutos da Quinta do Perú Golf & Country Club, o imóvel dispõe de fácil acesso a escolas nacionais e internacionais, comércio e serviços. A estação ferroviária situa-se a apenas 5 minutos, enquanto as principais vias rodoviárias (N10, IC32 e A33) garantem ligações rápidas a Lisboa e Setúbal, com o Aeroporto de Lisboa a cerca de 30 minutos. Sobre o empreendimento: Com conclusão prevista para fevereiro de 2027, o Varandas do Pinhal é um empreendimento residencial contemporâneo, composto por doze frações distribuídas por três pisos, oferecendo tipologias T1, T2 e T3 com áreas generosas, soluções modernas e acabamentos de elevada qualidade ideal tanto para habitação própria, como para investimento seguro. Os edifícios dispõem de ELEVADOR para sua comodidade. Marque já a sua visita. Nota: Imagens 3D meramente ilustrativas. A VIVER NAS ONDAS é uma imobiliária com 19 anos de experiência que também atua como INTERMEDIÁRIA de CRÉDITO, devidamente autorizada pelo Banco de Portugal (Reg. 3151). A nossa equipa é composta por profissionais apaixonados e dedicados, prontos para tornar os seus sonhos em realidade. Assumimos a responsabilidade de cuidar de todo o processo de financiamento, caso necessite, proporcionando-lhe tranquilidade e segurança. Estamos empenhados em encontrar as melhores soluções de crédito habitação disponíveis no mercado, e trabalhamos incansavelmente para alcançar esse objetivo. Cuidamos de todos os detalhes do processo, desde a análise das suas necessidades financeiras até a apresentação das opções de financiamento mais adequadas ao seu perfil. A nossa missão é oferecer um serviço de excelência, colocando os seus interesses em primeiro lugar. Trabalhamos com empenho e dedicação para tornar o processo de obtenção de crédito habitação mais simples e eficaz para si.
AMI: 7530
Ref. Externa: VO-VDPDD
Id: 1580688
Inicie sessão para guardar este imóvel e aceder à sua lista de favoritos em qualquer dispositivo.
3 Quartos
2 WCs
Área bruta : 116 m²
Este apartamento T3, situado no 1.º andar, combina luminosidade, conforto e funcionalidade, oferecendo três quartos espaçosos, duas varandas privativas, 2 lugares de estacionamento interior e arrecadação com 13,38 m², ideal para armazenamento adicional. É perfeito para famílias ou para quem procura mais espaço e versatilidade, beneficiando de uma envolvente verde e tranquila. Características principais: - Sala (25,14 m²) e cozinha (9,06 m²) em open space: integração total entre os ambientes sociais, com acesso direto a uma das varandas e vistas sobre a envolvente arborizada. - Quarto Suíte (15,03 m²) e dois quartos adicionais (13,43 m² e 9,00 m²): espaçosos e tranquilos, ideais para descanso, quartos infantis ou home office. - Hall de entrada (5,42 m²): funcional, facilitando a circulação entre os ambientes. - WC Social (2,56 m²) e WC Suíte (4,22 m²): modernos, com acabamentos de qualidade e soluções práticas. - Varandas privativas (10,36 m² e 7,20 m²): perfeitas para momentos de lazer, relaxamento ou convívio ao ar livre, em contacto com a natureza envolvente. Conforto e acabamentos: - Pré-instalação de ar condicionado. - Pré-instalação de aquecimento central. - Cozinha equipada com eletrodomésticos da marca Beko. - Painéis solares térmicos em termossifão (AQS), promovendo eficiência energética e sustentabilidade. - Acabamentos premium, cuidadosamente selecionados para garantir durabilidade, conforto e valorização do imóvel. Comodidades e vantagens: - 2 lugares de estacionamento interior, garantindo segurança e comodidade. - Arrecadação privativa (13,38 m²) para armazenamento extra. - Exposição solar privilegiada, assegurando excelente luminosidade natural ao longo do dia. Localização: Localizado no empreendimento Varandas do Pinhal, este apartamento beneficia de uma localização de excelência, combinando tranquilidade, acessibilidade e contacto com a natureza. Encontra-se junto ao futuro Jardim Alameda do Poder Local, um espaço verde em desenvolvimento que contará com a plantação de 254 novas árvores, reforçando a qualidade de vida e o bem-estar dos residentes. A poucos minutos da Quinta do Perú Golf & Country Club, o imóvel dispõe de fácil acesso a escolas nacionais e internacionais, comércio e serviços. A estação ferroviária situa-se a apenas 5 minutos, enquanto as principais vias rodoviárias (N10, IC32 e A33) garantem ligações rápidas a Lisboa e Setúbal, com o Aeroporto de Lisboa a cerca de 30 minutos. Sobre o empreendimento: Com conclusão prevista para fevereiro de 2027, o Varandas do Pinhal é um empreendimento residencial contemporâneo, composto por doze frações distribuídas por três pisos, oferecendo tipologias T1, T2 e T3 com áreas generosas, soluções modernas e acabamentos de elevada qualidade ideal tanto para habitação própria, como para investimento seguro. Os edifícios dispõem de ELEVADOR para sua comodidade. Marque já a sua visita. Nota: Imagens 3D meramente ilustrativas. A VIVER NAS ONDAS é uma imobiliária com 19 anos de experiência que também atua como INTERMEDIÁRIA de CRÉDITO, devidamente autorizada pelo Banco de Portugal (Reg. 3151). A nossa equipa é composta por profissionais apaixonados e dedicados, prontos para tornar os seus sonhos em realidade. Assumimos a responsabilidade de cuidar de todo o processo de financiamento, caso necessite, proporcionando-lhe tranquilidade e segurança. Estamos empenhados em encontrar as melhores soluções de crédito habitação disponíveis no mercado, e trabalhamos incansavelmente para alcançar esse objetivo. Cuidamos de todos os detalhes do processo, desde a análise das suas necessidades financeiras até a apresentação das opções de financiamento mais adequadas ao seu perfil. A nossa missão é oferecer um serviço de excelência, colocando os seus interesses em primeiro lugar. Trabalhamos com empenho e dedicação para tornar o processo de obtenção de crédito habitação mais simples e eficaz para si.
AMI: 7530
Ref. Externa: VO-VDPD
Id: 1580687
Inicie sessão para guardar este imóvel e aceder à sua lista de favoritos em qualquer dispositivo.
2 Quartos
2 WCs
Área bruta : 122 m²
Este apartamento T2, rés-do-chão, com terraço privativo de 35,65 m², combina luminosidade, conforto e funcionalidade, oferecendo espaços bem distribuídos, ideais para convívio, lazer ou refeições ao ar livre. Características principais: - Sala (28,03 m²) e cozinha (7,15 m²) em open space: integração total entre os ambientes sociais, com acesso direto ao terraço. - Quarto Suíte (14,33 m²) e Quarto (11,71 m²): espaçosos e tranquilos, ideais para descanso, com possibilidade de roupeiros. - Hall de entrada (6,32 m²): amplo, facilitando a circulação entre os ambientes. - WC Social (2,56 m²) e WC Suíte (4,22 m²): modernos, com acabamentos de qualidade e soluções funcionais. - Terraço privativo (35,65 m²): ideal para momentos de lazer ou convívio ao ar livre, com vistas para a envolvente verde. Conforto e acabamentos: - Pré-instalação de ar condicionado. - Pré-instalação de aquecimento central. - Cozinha equipada com eletrodomésticos da marca Beko. -Painéis solares térmicos em termossifão (AQS), promovendo eficiência energética e sustentabilidade. - Acabamentos premium, cuidadosamente selecionados para garantir durabilidade, conforto e valorização do imóvel. Comodidades e vantagens: - 1 lugar de estacionamento interior, garantindo segurança e comodidade. - Arrecadação (8,65 m²) para armazenamento extra. - Exposição solar privilegiada, assegurando excelente luminosidade natural ao longo do dia. Localização: Localizado no empreendimento Varandas do Pinhal, este apartamento beneficia de uma localização de excelência, combinando tranquilidade, acessibilidade e contacto com a natureza. Encontra-se junto ao futuro Jardim Alameda do Poder Local, um espaço verde em desenvolvimento que contará com a plantação de 254 novas árvores, reforçando a qualidade de vida e o bem-estar dos residentes. A poucos minutos da Quinta do Perú Golf & Country Club, o imóvel dispõe de fácil acesso a escolas nacionais e internacionais, comércio e serviços. A estação ferroviária situa-se a apenas 5 minutos, enquanto as principais vias rodoviárias (N10, IC32 e A33) garantem ligações rápidas a Lisboa e Setúbal, com o Aeroporto de Lisboa a cerca de 30 minutos. Sobre o empreendimento: Com conclusão prevista para fevereiro de 2027, o Varandas do Pinhal é um empreendimento residencial contemporâneo, composto por doze frações distribuídas por três pisos, oferecendo tipologias T1, T2 e T3 com áreas generosas, soluções modernas e acabamentos de elevada qualidade ideal tanto para habitação própria, como para investimento seguro. Os edifícios dispõem de ELEVADOR para sua comodidade. Marque já a sua visita. Nota: Imagens 3D meramente ilustrativas. A VIVER NAS ONDAS é uma imobiliária com 19 anos de experiência que também atua como INTERMEDIÁRIA de CRÉDITO, devidamente autorizada pelo Banco de Portugal (Reg. 3151). A nossa equipa é composta por profissionais apaixonados e dedicados, prontos para tornar os seus sonhos em realidade. Assumimos a responsabilidade de cuidar de todo o processo de financiamento, caso necessite, proporcionando-lhe tranquilidade e segurança. Estamos empenhados em encontrar as melhores soluções de crédito habitação disponíveis no mercado, e trabalhamos incansavelmente para alcançar esse objetivo. Cuidamos de todos os detalhes do processo, desde a análise das suas necessidades financeiras até a apresentação das opções de financiamento mais adequadas ao seu perfil. A nossa missão é oferecer um serviço de excelência, colocando os seus interesses em primeiro lugar. Trabalhamos com empenho e dedicação para tornar o processo de obtenção de crédito habitação mais simples e eficaz para si.
AMI: 7530
Ref. Externa: VO-VDPB
Id: 1580677
Inicie sessão para guardar este imóvel e aceder à sua lista de favoritos em qualquer dispositivo.
Inicie sessão para ocultar este imóvel das suas pesquisas e manter a sua lista de resultados organizada.
Viver Nas Ondas - Portugal
Consultor imobiliário em Viver Nas Ondas - Mediação Imobiliária, Lda - AMI: 7530
Compre créditos para poder destacar os seus imóveis! Desta forma eles são os primeiros a aparecer nas pesquisas e têm uma maior chance de serem vistos pelos utilizadores.
Guardar favoritos
Este imóvel foi guardados nos seus favoritos com sucesso.
Para poder guardar pesquisa deverá ter a sua sessão iniciada.
Caso não tenha uma conta, deverá criar uma.
A sua pesquisa foi guardada com sucesso!
© Copyright 2023 | CASACERTA. All rights reserved
Este site utiliza cookies. Ao navegar no site estará a consentir a sua utilização.
Para mais informações sobre os cookies pode consultar a
política de privacidade.