Lista
Comprar
Arrendar
4 Quartos
4 WCs
Área bruta : 262 m²
Apartamento T4 no Garden ResidenceDescubra este magnífico apartamento T4, com 262m² de área bruta privativa, inserido no prestigiado Garden Residence, um condomínio privado de luxo que combina elegância, segurança e uma envolvente natural única. Um espaço concebido para quem valoriza conforto, tranquilidade e exclusividade, a poucos minutos do centro de Lisboa. A entrada é marcada por um vestíbulo amplo (16,70m²) que conduz a uma impressionante sala de estar de 59,10m², ideal para momentos de convívio e lazer em família, com acesso direto a uma varanda generosa de 19,70m² que prolonga a experiência interior para o exterior, permitindo-lhe desfrutar de momentos ao ar livre com todo o conforto. A cozinha, com 19,65m², é da prestigiada marca italiana Aran e está totalmente equipada com eletrodomésticos AEG/Electrolux, incluindo frigorífico side-by-side, forno, micro-ondas, placa, máquina de lavar e secar roupa, máquina de lavar loiça e garrafeira. Contígua à cozinha encontra-se a zona de estendal (8,75m²), funcional e bem integrada. A zona privada oferece-lhe duas suites, uma delas com uma área de 17,20m² e outra - a master suite, com 17,10m², complementada por uma luxuosa instalação sanitária (7,25m²) e um espaçoso closet de 13,70m², verdadeiro refúgio de conforto e privacidade. Os dois quartos adicionais, ambos com áreas superiores a 19m², são perfeitos para quartos de crianças, hóspedes ou até para criar um escritório ou biblioteca. A distribuição inclui ainda um bengaleiro (3,35m²), casa de banho social (2,95m²) e uma casa de banho completa comum (6,70m²). O layout do apartamento foi desenhado para garantir fluidez, funcionalidade e privacidade entre as áreas sociais e privadas. Para sua total comodidade, o apartamento dispõe de três lugares de garagem e uma arrecadação de 9,45m². O Garden Residence estende-se por cerca de 13.000m², com amplos jardins, piscina para adultos, piscina infantil, parque infantil, sala de condomínio, balneários e agradáveis percursos pedonais. A segurança é uma prioridade, assegurada por portaria com vigilância 24 horas e controlo de acessos. A excelência dos acabamentos é notória, com mármores Carrara, cerâmicas Porcelanosa, azulejos Viúva Lamego, roupeiros Lema, sanitários Duravit, torneiras Hansgrohe e portas blindadas Dierre, conferindo ao imóvel uma estética de elevado requinte. A localização é verdadeiramente privilegiada: próximo do Aeroporto Internacional de Lisboa, do Parque das Nações e dos principais acessos à cidade. Em breve, o condomínio contará ainda com os serviços de um hotel de 5 estrelas, já em construção, incluindo spa com ginásio e court de ténis. Uma oportunidade rara de viver num espaço onde cada detalhe foi pensado para elevar a sua qualidade de vida. Para mais informações ou para agendar uma visita a este imóvel exclusivo, entre em contacto connosco Equipa Conim&Sattar!
AMI: 10006
Ref. Externa: PE-123751128-428
Id: 1756628
Inicie sessão para guardar este imóvel e aceder à sua lista de favoritos em qualquer dispositivo.
2 Quartos
1 WCs
Área bruta : 79 m²
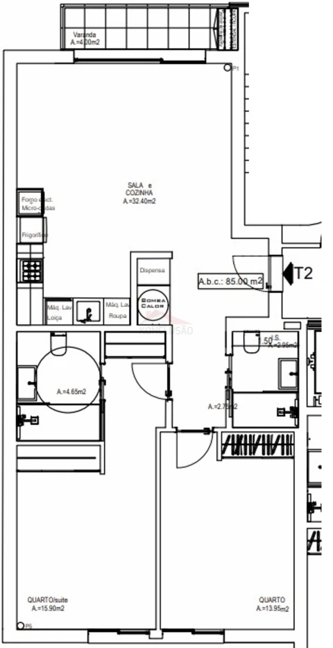
T2 TOTALMENTE REMODELADO EM SACAVÉM / 80m² / JUNTO AO PARQUE DAS NAÇÕESDescubra este elegante T2 totalmente remodelado em Sacavém uma oportunidade única para quem procura conforto, modernidade e uma localização estratégica às portas de Lisboa.Inserido numa praceta tranquila com parque infantil, este imóvel oferece o cenário ideal para uma vida familiar equilibrada, onde a segurança, a tranquilidade e a conveniência convivem em perfeita harmonia.Aqui, os seus filhos podem brincar livremente, enquanto desfruta de um dia a dia prático e funcional.UM APARTAMENTO QUE SE DESTACARemodelação total com acabamentos modernosExcelente exposição solar e abundante luz naturalÁreas bem distribuídas e funcionaisAmbiente acolhedor e contemporâneoPronto a habitarLOCALIZAÇÃO QUE FAZ A DIFERENÇAA escassos minutos do Parque das NaçõesLigações rápidas à A1, Segunda Circular e Ponte Vasco da GamaProximidade de comércio, serviços, escolas e transportesA poucos minutos do Centro Comercial Vasco da GamaSe valoriza qualidade de vida, acessos rápidos e um ambiente familiar tranquilo, este é o imóvel certo para si.Uma casa pronta a receber novas histórias. Pode ser a sua.Entre em contacto e agende já a sua visita.NOTA: As primeiras imagens apresentadas inserem-se no âmbito do projeto e têm carácter meramente ilustrativo, podendo não corresponder de forma integral ao imóvel em questãoONDE A EXCELÊNCIA E O LUXO DEFINEM A ASSINATURA
AMI: 10006
Ref. Externa: PE-123751695-8
Id: 1756622
Inicie sessão para guardar este imóvel e aceder à sua lista de favoritos em qualquer dispositivo.
3 Quartos
1 WCs
Área útil : 80 m²
Se procura espaço, uma localização central e o encanto de uma casa cheia de potencial, este apartamento em Sacavém é a oportunidade ideal de ser a sua futura casa!Apartamento com 81m² de área útil, o imóvel dispõe de 3 varandas (sendo 2 marquises) com um espaço muito generoso.Distribuição da casa:Sala ampla com áreas de estar e jantar e uma boa varanda, cozinha com varanda, 2 quartos, sendo 1 deles com varanda e 1 casa de banho comum.O que torna esta casa muito especial: Localização privilegiada em área central de Sacavém, a 10m da cidade de Lisboa, a poucos minutos de comércio, escolas, todo o tipo de serviços, aeroporto e de transportes públicos. Bom estado de conservação, com ótimo potencial para modernização ao gosto do novo proprietário.Ideal para: Quem procura um espaço funcional; Investidores que queiram remodelar e valorizar um imóvel no centro da cidade; Famílias que desejam aliar o conforto interior a um espaço exterior versátil.Uma casa com alma, espaço e inúmeras possibilidades. Venha conhecê-la!Necessita de obter crédito, apoiamos a identificar as melhores soluções do mercado, não hesite contacte-nos!
AMI: 22503
Ref. Externa: PD-054602
Id: 1752894
Inicie sessão para guardar este imóvel e aceder à sua lista de favoritos em qualquer dispositivo.
2 Quartos
1 WCs
Área bruta : 70 m²
O seu primeiro 'Lar Doce Lar' a 10 minutos do Parque das Nações! Recentemente renovado, luminoso e pronto a habitar! O Seu novo refúgio em Sacavém! Diga adeus às rendas e olá à sua casa própria! Este T2 em Sacavém foi pensado para quem valoriza o conforto moderno sem abdicar da conveniência urbana. Ilegível para financiamento a 100%. Imagine acordar com a luz do sol a inundar a sua sala, preparar o pequeno almoço numa cozinha renovada e ter o privilégio de viver num prédio com elevador e ar condicionado. Localizado numa zona tranquila de Sacavém, tem escolas, supermercados e transportes à porta. É a combinação perfeita entre a calma de Loures e a energia de Lisboa. Venha começar o seu próximo capítulo aqui! Destaques que vai adorar. Renovação com Estilo. Esqueça obras e complicações. Este imóvel foi intervencionado com materiais e acabamentos de qualidade, oferecendo um ambiente clean e acolhedor. Com uma exposição solar privilegiada, o apartamento é banhado por luz durante todo o dia, criando uma atmosfera vibrante e eficiente do ponto de vista energético. Equipado com ar condicionado na sala e quarto principal, garantindo a temperatura ideal tanto no verão como no inverno. Cozinha funcional, otimizada e equipada. Situado num edifício bem conservado e com elevador, proporcionando a comodidade que o seu dia-a-dia exige. Localização Estratégica em Sacavém, a um passo de tudo! Excelentes acessos rodoviários (A1, A8, IC17 e Ponte Vasco da Gama) e a 10 minutos do Parque das Nações. Rodeado de comércio local, serviços, escolas e transportes públicos à porta. Não deixe passar esta oportunidade. Marque já a sua visita e venha apaixonar-se pela sua nova casa! T2 em Sacavém: Alta Procura e Pronto a Rentabilizar! Apoio no processo de financiamento A KW Lead dispõe de uma estrutura dedicada de Gestão de Crédito à Habitação, pronta a ajudar com todo o rigor e confiança no seu processo de financiamento, para a compra de imóvel. Conheça as melhores propostas de crédito à habitação para si. Lead Kash - Mediação Imobiliária, Lda. - Intermediário de Crédito Vinculado registado no Banco de Portugal com o nº 0007406. Este imóvel está angariado em regime de exclusividade e partilhamos com todas as imobiliárias com licença AMI válida, e profissionais em regime de 50%/50% Para mais informações, consulte o nosso site (url)
AMI: 12518
Ref. Externa: KWPT-029314
Id: 1744456
Inicie sessão para guardar este imóvel e aceder à sua lista de favoritos em qualquer dispositivo.
2 Quartos
1 WCs
Área bruta : 70 m²
O seu primeiro "Lar Doce Lar" a 10 minutos do Parque das Nações! ✨ Recentemente renovado, luminoso e pronto a habitar! O Seu novo refúgio em Sacavém! Diga adeus às rendas e olá à sua casa própria! Este T2 em Sacavém foi pensado para quem valoriza o conforto moderno sem abdicar da conveniência urbana. Ilegível para financiamento a 100%. Imagine acordar com a luz do sol a inundar a sua sala, preparar o pequeno almoço numa cozinha renovada e ter o privilégio de viver num prédio com elevador e ar condicionado. Localizado numa zona tranquila de Sacavém, tem escolas, supermercados e transportes à porta. É a combinação perfeita entre a calma de Loures e a energia de Lisboa. Venha começar o seu próximo capítulo aqui! ? Destaques que vai adorar. Renovação com Estilo. Esqueça obras e complicações. Este imóvel foi intervencionado com materiais e acabamentos de qualidade, oferecendo um ambiente clean e acolhedor. Com uma exposição solar privilegiada, o apartamento é banhado por luz durante todo o dia, criando uma atmosfera vibrante e eficiente do ponto de vista energético. Equipado com ar condicionado na sala e quarto principal, garantindo a temperatura ideal tanto no verão como no inverno. Cozinha funcional, otimizada e equipada. Situado num edifício bem conservado e com elevador, proporcionando a comodidade que o seu dia-a-dia exige. ? Localização Estratégica em Sacavém, a um passo de tudo! Excelentes acessos rodoviários (A1, A8, IC17 e Ponte Vasco da Gama) e a 10 minutos do Parque das Nações. Rodeado de comércio local, serviços, escolas e transportes públicos à porta. Não deixe passar esta oportunidade. Marque já a sua visita e venha apaixonar-se pela sua nova casa! T2 em Sacavém: Alta Procura e Pronto a Rentabilizar! Apoio no processo de financiamento A KW Lead dispõe de uma estrutura dedicada de Gestão de Crédito à Habitação, pronta a ajudar com todo o rigor e confiança no seu processo de financiamento, para a compra de imóvel. Conheça as melhores propostas de crédito à habitação para si. Lead Kash - Mediação Imobiliária, Lda. - Intermediário de Crédito Vinculado registado no Banco de Portugal com o nº 0007406. Este imóvel está angariado em regime de exclusividade e partilhamos com todas as imobiliárias com licença AMI válida, e profissionais em regime de 50%/50% Para mais informações, consulte o nosso site www.kwportugal.pt
AMI: 12518
Ref. Externa: KWPT-029314
Id: 1739356
Inicie sessão para guardar este imóvel e aceder à sua lista de favoritos em qualquer dispositivo.
Sob consulta
2 Quartos
1 WCs
Área útil : 65 m²
VENDIDO - Exclusivo Apartamento T2 remodelado em Sacavém com varanda e vista rio.Apartamento T2 com 68,40m², sendo 65m² úteis, tem 2 frentes Nascente e Poente, muita luz natural e é composto por:- Hall - 3m²- Sala - 16m²- Cozinha - 13m², semi-equipada (placa a gás, exaustor e esquentador), com zona para refeições e com área de serviço/estendal- Corredor- Quarto - 15m², com varanda- Quarto – 11m²- WC completo com banheira – 4,5m²- Arrecadação no sótão do prédio – 4m²O apartamento situa-se no 3º andar de um prédio robusto sem elevador, com escadas confortáveis em pedra mármore. Muita facilidade de estacionamento no local, a qualquer hora.Com excelente localização em Sacavém, junto a escolas, comércio local, farmácias, Finanças, etc., possui excelentes acessos rodoviários e é muito bem servido de transportes públicos:A 100 metros (menos de 2 minutos a pé) da paragem da Rodiviária de Lisboa com as seguintes carreiras:- 300 - Sacavém-Campo Grande (inclui Metro no trajeto)- 307 - Sacavém Circulação (inclui estação CP de Sacavém no trajeto)- 310 - Lisboa (estação Oriente)-Charneca do Lumiar- 320 - Lisboa (Areeiro)-Alverca (inclui aeroporto e Estações CP Sacavém e Oriente no trajeto)- 329 - Lisboa (Campo Grande)-Póvoa de Santa Iria (Quinta da Piedade) (inclui Aeroporto, Metro e estações CP no trajeto)- Rodinhas - circular Sacavém (inclui estação CP Sacavém e Centro de Saúde)A 1,1 km da estação da CP Sacavém - comboios (menos de 15 minutos a pé)A 3,5km da A1 e do Metro MoscavideA 4,6 km do aeroporto de LisboaNão perca esta oportunidade e marque já a sua visita com toda a segurança, segundo as normas da DGS.Também disponível a visita através de vídeo-chamada:Maiores informações e visitas:Margarida Tavares
AMI: 22503
Ref. Externa: PD-021803
Id: 1726384
Inicie sessão para guardar este imóvel e aceder à sua lista de favoritos em qualquer dispositivo.
3 Quartos
2 WCs
Área bruta : 140 m²
Exclusivo T3 Renovado com Terraço de 98m² e Vista Rio – Quinta do Património Onde o Luxo da Modernidade se Encontra com a Amplitude do Tejo. Apresentamos este magnífico apartamento T3, totalmente renovado com acabamentos de excelência e tecnologia de ponta, localizado na prestigiada Quinta do Património. Esta é a casa ideal para quem não abdica de espaço, conforto tecnológico e uma ligação permanente ao exterior. O Coração da Casa: Fluidez e Luz O grande destaque deste imóvel é a sua configuração única: todas as divisões têm acesso direto ao generoso terraço de 98m². Esta caraterística confere uma luminosidade ímpar a todo o apartamento e uma sensação de liberdade difícil de encontrar em contexto urbano. Áreas Generosas: Espaços amplos e bem distribuídos, pensados para o máximo conforto. Demótica avançada: Controle a sua casa na palma da mão (iluminação, climatização e estores), garantindo eficiência e sofisticação. Cozinha de Sonho: Totalmente equipada com eletrodomésticos de última geração e design contemporâneo. Um Terraço que é um Refúgio Privado Com 98m² de área exterior, este espaço é o prolongamento natural da sala, da cozinha e dos quartos. Imagine acordar e tomar o pequeno almoço com vista para a Ponte Vasco da Gama, ou receber amigos para um jantar ao pôr-do-sol com o Rio Tejo como pano de fundo. Conforto e Localização Estratégica Estacionamento: Box privativa para 2 viaturas, com espaço adicional para arrumação. Vistas e Acessos: Localizado numa zona calma, mas com acessos imediatos às principais vias (A1, A12, IC2, Segunda Circular). A poucos minutos do Parque das Nações e do Aeroporto de Lisboa. Envolvente: Comércio, serviços, escolas e espaços verdes à porta de casa. Principais Características: Tipologia T3 (3 Quartos, sendo um deles suíte). Renovação integral com materiais de alta qualidade. Sistema de Domótica. Terraço panorâmico de 98m². Cozinha totalmente equipada. Box para 2 carros. Vista desafogada para a Ponte Vasco da Gama. Não perca a oportunidade de viver num imóvel que combina a exclusividade de um terraço privado com a modernidade de uma casa inteligente. Agende já a sua visita!
AMI: 11160
Ref. Externa: KWPT-027899
Id: 1719775
Inicie sessão para guardar este imóvel e aceder à sua lista de favoritos em qualquer dispositivo.
2 Quartos
2 WCs
Área bruta : 160 m²
Descubra o equilíbrio perfeito entre a tranquilidade de um condomínio de prestígio e a proximidade ao coração de Lisboa. Situado no Condomínio Blue Gardens, reconhecido como o melhor condomínio fechado de Sacavém, este elegante apartamento T2 com apenas um proprietário desde a sua construção em 2019, o imóvel encontra-se em estado irrepreensível, oferecendo uma distribuição de espaços inteligentemente pensada para o bem-estar diário. Com 99 m² de área bruta privativa e 61 m² de área dependente, este apartamento destaca-se pela excelente qualidade de construção, materiais de gama superior, uma luminosidade ímpar com todas as divisões com ligação direta a uma generosa varanda, uma cozinha moderna totalmente equipada para as suas necessidades diárias, uma ampla sala de estar, dois quartos espaçosos com roupeiros embutidos, incluindo uma luxuosa suíte master com casa de banho privativa, equipado com sistema de ar condicionado por conduta em todas as divisões e painéis solares para aquecimento de águas e uma garagem em box fechada com capacidade para duas viaturas. Na exclusividade do Condomínio Blue Gardens encontra uma arquitetura de linhas modernas, um ambiente residencial sereno e familiar e terá acesso diário a uma piscina exterior com zona de solário, jardins cuidadosamente mantidos e amplas áreas verdes. O condomínio conta com uma localização estratégica e acessos de excelência, a poucos minutos do Aeroporto de Lisboa e do Parque das Nações, este imóvel garante uma mobilidade sem falhas numa zona amplamente servida por transportes públicos, com autocarros diretos para Lisboa, Parque das Nações e Estação do Oriente (Metro e Comboios) e com excelentes acessos a A1, A12, 2ª Circular e CRIL Não perca esta oportunidade! Agende já a sua visita e venha descobrir a sua próxima casa em Sacavém.
AMI: 4797
Ref. Externa: PSI-104131
Id: 1712664
Inicie sessão para guardar este imóvel e aceder à sua lista de favoritos em qualquer dispositivo.
3 Quartos
2 WCs
Área bruta : 79 m²
#EXCLUSIVO MEDIPRED# Ref.ª: MJU9966 - Apartamento T3 Totalmente Remodelado | Camarate, Loures Apartamento T3 recentemente remodelado, com vista rio, inserido num prédio em bom estado de conservação, ao nível do terceiro andar sem elevador. Possui boa exposição solar e é por isso bastante luminoso. Apresenta uma harmoniosa distribuição do espaço. Dispõe de cozinha e sala em open space. A cozinha está semi-equipada com forno, placa de indução, exaustor e termoacumulador. Possui 3 quartos, um deles uma suíte com 15 m2, com roupeiro embutido e WC completo. A suíte e o quarto têm acesso a uma varanda em comum. Situa-se numa zona calma com excelentes acessos, bem servida de transportes públicos, com proximidade a todo o tipo de comércio e serviços como escolas, hipermercados, farmácias e restauração. Marque já a sua visita!
AMI: 8388
Ref. Externa: MJU9966
Id: 1696413
Inicie sessão para guardar este imóvel e aceder à sua lista de favoritos em qualquer dispositivo.
1 Quartos
1 WCs
Área útil : 42 m²
Apartamento T2 na Av. De São José em Sacavém. Zona servida de transportes públicos, serviços e comércio variado. Bons acessos às vias rápidas, 2ª circular e aeroporto de Lisboa. Prédio com elevador. Bom estado de conservação. Este apartamento encontrasse com inquilino com contrato sem termo. Boa oportunidade de investimento! Estamos disponíveis para o ajudar a realizar sonhos, seja na compra ou na venda do seu imóvel. ;ID RE/MAX: 121291484-51
AMI: 7772
Ref. Externa: 121291484-51
Id: 1694652
Inicie sessão para guardar este imóvel e aceder à sua lista de favoritos em qualquer dispositivo.
4 Quartos
4 WCs
Área bruta : 262 m²
Exclusivo Apartamento T4 no Condomínio Privado Garden Residence | Lisboa Descubra este magnífico apartamento T4, inserido no prestigiado Condomínio Privado Garden Residence, um empreendimento de arquitetura moderna que combina elegância, conforto e qualidade de vida numa localização privilegiada de Lisboa. Com 262 m² de área bruta e cerca de 250 m² de área útil, este imóvel destaca-se pela amplitude das suas áreas, design de bom gosto e materiais de elevada qualidade, oferecendo um ambiente sofisticado e funcional pensado para o bem-estar de toda a família. Destaques do imóvel - A entrada faz-se por um amplo Hall, que conduz à imponente Sala de Estar com 57 m², um espaço luminoso e elegante que se prolonga para uma fantástica varanda com cerca de 20 m², ideal para momentos de lazer e convívio; - A Cozinha totalmente equipada com eletrodomésticos de gama alta alia modernidade e funcionalidade, contando ainda com acesso a varanda de apoio à lavandaria; A zona privada é composta por: - 2 quartos com roupeiros embutidos e varandas; - 1 WC completo de apoio aos quartos; - 2 amplas Suites com Wc's privativos, sendo uma delas com closet; O apartamento dispõe ainda de 1 WC social, as casas de banho são revestidas em mármore, acabamentos de elevada qualidade e uma organização de espaços pensada para proporcionar máximo conforto. Estacionamento e Arrumação O imóvel inclui: - 3 lugares de estacionamento de fácil acesso; - 1 arrecadação com 23 m², oferecendo excelente capacidade de arrumação; O Condomínio O Garden Residence ocupa uma área aproximada de 13.000 m² e privilegia a qualidade de vida dos seus residentes, oferecendo: - Amplos jardins cuidadosamente mantidos; - Piscina para adultos e piscina para crianças; - Balneários de apoio às zonas de lazer; - Parque infantil; - Sala de condomínio; - Percursos pedonais; - Portaria com segurança e controlo de acessos 24 horas, garantindo tranquilidade, privacidade e segurança Localização - Localizado numa zona estratégica de Lisboa, beneficia de excelentes acessos ao Aeroporto, ao centro da cidade e ao Parque das Nações, bem como aos principais eixos rodoviários, permitindo deslocações rápidas e cómodas; - A proximidade de comércio, serviços, escolas e zonas de lazer reforça ainda mais a qualidade desta localização; Uma oportunidade única para viver com exclusividade, espaço e conforto num dos condomínios mais prestigiados da cidade. Agende já a sua visita e descubra o seu lar de sonho ID: I.401.21418
AMI: 21418
Ref. Externa: I.401.21418
Id: 1692154
Inicie sessão para guardar este imóvel e aceder à sua lista de favoritos em qualquer dispositivo.
2 Quartos
2 WCs
Área bruta : 172 m²
Apartamento T2 com Terraço, Vista Rio e Garagem em Box, para Venda, Terraços da Ponte, em Prior Velho, Lisboa - Área Bruta: 172 m² - Tipologia: T2 - Piso: Rés do chão com elevador - Box privada com portão elétrico - Estado: Segunda mão / Em ótimo estado - Certificação Energética: Classe B Um apartamento moderno, espaçoso e totalmente equipado, em excelente estado de conservação, ideal para quem procura conforto, luz natural, vistas agradáveis e acessos rápidos a Lisboa, num ambiente calmo e residencial. Ambiente Moderno e Prático: - Sala ampla e luminosa, com acesso direto ao terraço. - Cozinha nova, praticamente sem uso, totalmente equipada com eletrodomésticos Bosch. - Dois quartos com roupeiros embutidos, garantindo excelente capacidade de arrumação. - Duas casas de banho completas, bem conservadas e funcionais. - Varanda e terraço de grandes dimensões, perfeitos para refeições, lazer ou convívio ao ar livre. - Arrecadação integrada na box. Conforto e Eficiência: - Ar condicionado Daikin para climatização em todas as estações. - Aspiração central, para maior conforto e praticidade. - Estores elétricos. - Janelas com vidros duplos, garantindo isolamento térmico e acústico. - Aquecimento individual elétrico. - Excelente exposição solar (Sul), oferecendo luz natural durante todo o dia. - Vista rio, criando um ambiente tranquilo e agradável. O Edifício: - Rés do chão em prédio moderno e bem cuidado. - Elevador. - Acesso exterior adaptado a pessoas com mobilidade reduzida. - Jardim na envolvente do prédio. Localização: - Situado numa zona calma, residencial e bem servida, com ótimos acessos para Lisboa. - Perfeito para quem procura qualidade de vida sem abdicar da proximidade à cidade. Agende já a sua visita e descubra este T2 excecional um apartamento completo, com excelentes áreas e um terraço raro, ideal para quem privilegia conforto, luz e vistas únicas. ---------- Alguma dúvida, não hesite em contactar-nos. NOTA: Fazemos parceria e partilha com todas as imobiliárias profissionais. ---------- SOBRE A LT REAL ESTATE. Na LT Real Estate primamos pela DISCRIÇÃO, comprometemos-nos a trabalhar com EXCELÊNCIA e concedemos DISTINÇÃO. Fundada por Marisa Guedes e Bruno Queirós, a LT Real Estate foi criada com a intenção de consolidar-se como referência de excelência no seletíssimo Mercado de Residências Premium/Luxo e no sofisticado âmbito dos Investimentos. A exclusividade, celeridade e primor no atendimento são os alicerces mais preponderantes que fundamentam a essência da nossa marca. Na LT, a nossa dedicação é focada na sublime meta de criar relações duradouras e de máxima satisfação para o nosso cliente. 'A verdadeira essência do luxo revela-se em cada minucioso detalhe. Luxo não é um privilégio, é uma estratégia de negócios.' ---- ltrealestate.pt
AMI: 19915
Ref. Externa: APA_2202
Id: 1683939
Inicie sessão para guardar este imóvel e aceder à sua lista de favoritos em qualquer dispositivo.
3 Quartos
6 WCs
Área bruta : 305 m²
Apresenta-se esta imovel exclusivo, totalmente nova, inserida no prestigiado condomínio Terraços da Ponte, numa das zonas mais valorizadas pela sua qualidade de vida, tranquilidade e proximidade a Lisboa. O imóvel distingue-se pelas suas áreas generosas, acabamentos contemporâneos e excelente exposição solar, proporcionando um ambiente de conforto, privacidade e sofisticação. Composição do Imóvel T3 + arrumos Terraço com jacuzzi Varandas Garagem privada Elevador interior entre os pisos Enquadramento Este imóvel reúne conforto, modernidade e localização estratégica, ideal para famílias ou para quem valoriza uma vivência residencial de elevado padrão, com acesso rápido ao centro urbano e aos principais eixos rodoviários de ligação a Lisboa. Características Técnicas Aquecimento individual elétrico, Excelente exposição solar, Acabamentos contemporâneos, Ambiente residencial tranquilo e seguro. Sugestão de decoração gerada por IA Marque já a sua visita e venha conhecer a sua nova casa.
AMI: 11271
Ref. Externa: APA_1414TP
Id: 1651905
Inicie sessão para guardar este imóvel e aceder à sua lista de favoritos em qualquer dispositivo.
3 Quartos
Área bruta : 263 m²
Novo Empreendimento localizado na Urbanização Terraços da Ponte no Edifício _Terraços137 em fase de construção com finalização prevista para o 4ºtrimestre de 2027. Imóveis de tipologia T2 e T3 com ótimas varandas ! Urbanização bastante recente, muito homogénea na sua caracterização urbanística. Linhas modernas e intemporais. No seu interior da urbanização predomina espaços verdes e arruamentos desafogados. Existe também comercio e serviços, de salientar o Pingo Doce, Lidl, Farmácia , Centro de Saúde. No seu redor existe uma imensa variedade de todo o tipo de comercio, serviços, escolas, supermercados, Leroy Merlin e outros. Acessibilidades a 2º Circular através da variante do Prior Velho, com acesso a A1 e IC17 e eixo Norte-Sul. Para o Parque das Nações e o Aeroporto não irá demorar mais que 5 minutos. Transportes rodoviários por perto com ligações a Lisboa, Moscavide e Gare do Oriente. Apeadeiro de Sacavém a 3 minutos de carro. A nível da construção, o imóvel possui acabamentos superiores de excelente qualidade , de salientar: GENERICOS Abertura e fecho centralizado dos estores Estores elétricos em alumínio térmico em tom castanho escuro por fora Caixilharia em PVC Oscilobatente com bom corte térmico e acústico Tetos falsos nas zonas de circulação, pintados a branco com sistema de luz LED Aparelhagem elétrica de marca EFAPEL Pavimento flutuante AC4 ( Hall quartos e sala) Ar Condicionado BOSH sistema mural ou equivalente Bomba de calor BOSH de 260 litros Roupeiros lacados a branco semi brilho com interior acabado em linho Cancun ou equivalente NA COZINHA Pavimento flutuante AquaStop Eletrodomésticos de marca AEG ( totalmente equipada) Tampos da bancada e lava loiças em Krion Klife ( ou equivalente) Pré-instalação de recirculação de aguas Tetos falsos em gesso cartonado hidrofugo LCD da marca LG ou Samsung NA SALA e QUARTOS Teto falso em gesso cartonado c/iluminação indireta em fita LED Sancas para cortinados iluminadas Pré - instalação para cortinados elétricos INSTALAÇOES SANITARIAS Pavimento e paredes revestidos com porcelana MARGRÊS linha LOVE Tetos falsos em gesso cartonado hidrofugo Loiça suspensa , tampo com queda amortecida , SANIDUSA ou equivalente Torneiras e coluna chuveiro GROHE Pré-instalação de recirculação de aguas VARANDAS Churrasqueira com lavatório de apoio Instalação de tomada TV Torneira Uma ou duas varandas conforme fração Box para 2 carros ou mais ( dependente da fração) Mais informações ou agendamento de visita estamos ao dispor! **** FOTOS ILUSTARTIVAS 3D DO ANDAR MODELO **** Estamos no local com stand de vendas, de 3ªf a Domingo e convidamos a conhecer mais um empreendimento comercializado pela Espaços.
AMI: 6602
Ref. Externa: 5475/JN_2B
Id: 1633189
Inicie sessão para guardar este imóvel e aceder à sua lista de favoritos em qualquer dispositivo.
2 Quartos
Área bruta : 172 m²
Novo Empreendimento localizado na Urbanização Terraços da Ponte no Edifício _Terraços137 em fase de construção com finalização prevista para o 4ºtrimestre de 2027. Imóveis de tipologia T2 e T3 com ótimas varandas ! Urbanização bastante recente, muito homogénea na sua caracterização urbanística. Linhas modernas e intemporais. No seu interior da urbanização predomina espaços verdes e arruamentos desafogados. Existe também comercio e serviços, de salientar o Pingo Doce, Lidl, Farmácia , Centro de Saúde. No seu redor existe uma imensa variedade de todo o tipo de comercio, serviços, escolas, supermercados, Leroy Merlin e outros. Acessibilidades a 2º Circular através da variante do Prior Velho, com acesso a A1 e IC17 e eixo Norte-Sul. Para o Parque das Nações e o Aeroporto não irá demorar mais que 5 minutos. Transportes rodoviários por perto com ligações a Lisboa, Moscavide e Gare do Oriente. Apeadeiro de Sacavém a 3 minutos de carro. A nível da construção, o imóvel possui acabamentos superiores de excelente qualidade , de salientar: GENERICOS Abertura e fecho centralizado dos estores Estores elétricos em alumínio térmico em tom castanho escuro por fora Caixilharia em PVC Oscilobatente com bom corte térmico e acústico Tetos falsos nas zonas de circulação, pintados a branco com sistema de luz LED Aparelhagem elétrica de marca EFAPEL Pavimento flutuante AC4 ( Hall quartos e sala) Ar Condicionado BOSH sistema mural ou equivalente Bomba de calor BOSH de 260 litros Roupeiros lacados a branco semi brilho com interior acabado em linho Cancun ou equivalente NA COZINHA Pavimento flutuante AquaStop Eletrodomésticos de marca AEG ( totalmente equipada) Tampos da bancada e lava loiças em Krion Klife ( ou equivalente) Pré-instalação de recirculação de aguas Tetos falsos em gesso cartonado hidrofugo LCD da marca LG ou Samsung NA SALA e QUARTOS Teto falso em gesso cartonado c/iluminação indireta em fita LED Sancas para cortinados iluminadas Pré - instalação para cortinados elétricos INSTALAÇOES SANITARIAS Pavimento e paredes revestidos com porcelana MARGRÊS linha LOVE Tetos falsos em gesso cartonado hidrofugo Loiça suspensa , tampo com queda amortecida , SANIDUSA ou equivalente Torneiras e coluna chuveiro GROHE Pré-instalação de recirculação de aguas VARANDAS Churrasqueira com lavatório de apoio Instalação de tomada TV Torneira Uma ou duas varandas conforme fração Box para 2 carros ou mais ( dependente da fração) Mais informações ou agendamento de visita estamos ao dispor! **** FOTOS ILUSTARTIVAS 3D DO ANDAR MODELO **** Estamos no local com stand de vendas, de 3ªf a Domingo e convidamos a conhecer mais um empreendimento comercializado pela Espaços.
AMI: 6602
Ref. Externa: 5475/JN_2A
Id: 1633183
Inicie sessão para guardar este imóvel e aceder à sua lista de favoritos em qualquer dispositivo.
2 Quartos
Área bruta : 206 m²
Novo Empreendimento localizado na Urbanização Terraços da Ponte no Edifício _Terraços137 em fase de construção com finalização prevista para o 4ºtrimestre de 2027. Imóveis de tipologia T2 e T3 com ótimas varandas ! Urbanização bastante recente, muito homogénea na sua caracterização urbanística. Linhas modernas e intemporais. No seu interior da urbanização predomina espaços verdes e arruamentos desafogados. Existe também comercio e serviços, de salientar o Pingo Doce, Lidl, Farmácia , Centro de Saúde. No seu redor existe uma imensa variedade de todo o tipo de comercio, serviços, escolas, supermercados, Leroy Merlin e outros. Acessibilidades a 2º Circular através da variante do Prior Velho, com acesso a A1 e IC17 e eixo Norte-Sul. Para o Parque das Nações e o Aeroporto não irá demorar mais que 5 minutos. Transportes rodoviários por perto com ligações a Lisboa, Moscavide e Gare do Oriente. Apeadeiro de Sacavém a 3 minutos de carro. A nível da construção, o imóvel possui acabamentos superiores de excelente qualidade , de salientar: GENERICOS Abertura e fecho centralizado dos estores Estores elétricos em alumínio térmico em tom castanho escuro por fora Caixilharia em PVC Oscilobatente com bom corte térmico e acústico Tetos falsos nas zonas de circulação, pintados a branco com sistema de luz LED Aparelhagem elétrica de marca EFAPEL Pavimento flutuante AC4 ( Hall quartos e sala) Ar Condicionado BOSH sistema mural ou equivalente Bomba de calor BOSH de 260 litros Roupeiros lacados a branco semi brilho com interior acabado em linho Cancun ou equivalente NA COZINHA Pavimento flutuante AquaStop Eletrodomésticos de marca AEG ( totalmente equipada) Tampos da bancada e lava loiças em Krion Klife ( ou equivalente) Pré-instalação de recirculação de aguas Tetos falsos em gesso cartonado hidrofugo LCD da marca LG ou Samsung NA SALA e QUARTOS Teto falso em gesso cartonado c/iluminação indireta em fita LED Sancas para cortinados iluminadas Pré - instalação para cortinados elétricos INSTALAÇOES SANITARIAS Pavimento e paredes revestidos com porcelana MARGRÊS linha LOVE Tetos falsos em gesso cartonado hidrofugo Loiça suspensa , tampo com queda amortecida , SANIDUSA ou equivalente Torneiras e coluna chuveiro GROHE Pré-instalação de recirculação de aguas VARANDAS Churrasqueira com lavatório de apoio Instalação de tomada TV Torneira Uma ou duas varandas conforme fração Box para 2 carros ou mais ( dependente da fração) Mais informações ou agendamento de visita estamos ao dispor! **** FOTOS ILUSTARTIVAS 3D DO ANDAR MODELO **** Estamos no local com stand de vendas, de 3ªf a Domingo e convidamos a conhecer mais um empreendimento comercializado pela Espaços.
AMI: 6602
Ref. Externa: 5475/JN_1C
Id: 1633176
Inicie sessão para guardar este imóvel e aceder à sua lista de favoritos em qualquer dispositivo.
3 Quartos
Área bruta : 277 m²
Novo Empreendimento localizado na Urbanização Terraços da Ponte no Edifício _Terraços137 em fase de construção com finalização prevista para o 4ºtrimestre de 2027. Imóveis de tipologia T2 e T3 com ótimas varandas ! Urbanização bastante recente, muito homogénea na sua caracterização urbanística. Linhas modernas e intemporais. No seu interior da urbanização predomina espaços verdes e arruamentos desafogados. Existe também comercio e serviços, de salientar o Pingo Doce, Lidl, Farmácia , Centro de Saúde. No seu redor existe uma imensa variedade de todo o tipo de comercio, serviços, escolas, supermercados, Leroy Merlin e outros. Acessibilidades a 2º Circular através da variante do Prior Velho, com acesso a A1 e IC17 e eixo Norte-Sul. Para o Parque das Nações e o Aeroporto não irá demorar mais que 5 minutos. Transportes rodoviários por perto com ligações a Lisboa, Moscavide e Gare do Oriente. Apeadeiro de Sacavém a 3 minutos de carro. A nível da construção, o imóvel possui acabamentos superiores de excelente qualidade , de salientar: GENERICOS Abertura e fecho centralizado dos estores Estores elétricos em alumínio térmico em tom castanho escuro por fora Caixilharia em PVC Oscilobatente com bom corte térmico e acústico Tetos falsos nas zonas de circulação, pintados a branco com sistema de luz LED Aparelhagem elétrica de marca EFAPEL Pavimento flutuante AC4 ( Hall quartos e sala) Ar Condicionado BOSH sistema mural ou equivalente Bomba de calor BOSH de 260 litros Roupeiros lacados a branco semi brilho com interior acabado em linho Cancun ou equivalente NA COZINHA Pavimento flutuante AquaStop Eletrodomésticos de marca AEG ( totalmente equipada) Tampos da bancada e lava loiças em Krion Klife ( ou equivalente) Pré-instalação de recirculação de aguas Tetos falsos em gesso cartonado hidrofugo LCD da marca LG ou Samsung NA SALA e QUARTOS Teto falso em gesso cartonado c/iluminação indireta em fita LED Sancas para cortinados iluminadas Pré - instalação para cortinados elétricos INSTALAÇOES SANITARIAS Pavimento e paredes revestidos com porcelana MARGRÊS linha LOVE Tetos falsos em gesso cartonado hidrofugo Loiça suspensa , tampo com queda amortecida , SANIDUSA ou equivalente Torneiras e coluna chuveiro GROHE Pré-instalação de recirculação de aguas VARANDAS Churrasqueira com lavatório de apoio Instalação de tomada TV Torneira Uma ou duas varandas conforme fração Box para 2 carros ou mais ( dependente da fração) Mais informações ou agendamento de visita estamos ao dispor! **** FOTOS ILUSTARTIVAS 3D DO ANDAR MODELO **** Estamos no local com stand de vendas, de 3ªf a Domingo e convidamos a conhecer mais um empreendimento comercializado pela Espaços.
AMI: 6602
Ref. Externa: 5475/JN_1B
Id: 1633172
Inicie sessão para guardar este imóvel e aceder à sua lista de favoritos em qualquer dispositivo.
2 Quartos
Área bruta : 231 m²
Novo Empreendimento localizado na Urbanização Terraços da Ponte no Edifício _Terraços137 em fase de construção com finalização prevista para o 4ºtrimestre de 2027. Imóveis de tipologia T2 e T3 com ótimas varandas ! Urbanização bastante recente, muito homogénea na sua caracterização urbanística. Linhas modernas e intemporais. No seu interior da urbanização predomina espaços verdes e arruamentos desafogados. Existe também comercio e serviços, de salientar o Pingo Doce, Lidl, Farmácia , Centro de Saúde. No seu redor existe uma imensa variedade de todo o tipo de comercio, serviços, escolas, supermercados, Leroy Merlin e outros. Acessibilidades a 2º Circular através da variante do Prior Velho, com acesso a A1 e IC17 e eixo Norte-Sul. Para o Parque das Nações e o Aeroporto não irá demorar mais que 5 minutos. Transportes rodoviários por perto com ligações a Lisboa, Moscavide e Gare do Oriente. Apeadeiro de Sacavém a 3 minutos de carro. A nível da construção, o imóvel possui acabamentos superiores de excelente qualidade , de salientar: GENERICOS Abertura e fecho centralizado dos estores Estores elétricos em alumínio térmico em tom castanho escuro por fora Caixilharia em PVC Oscilobatente com bom corte térmico e acústico Tetos falsos nas zonas de circulação, pintados a branco com sistema de luz LED Aparelhagem elétrica de marca EFAPEL Pavimento flutuante AC4 ( Hall quartos e sala) Ar Condicionado BOSH sistema mural ou equivalente Bomba de calor BOSH de 260 litros Roupeiros lacados a branco semi brilho com interior acabado em linho Cancun ou equivalente NA COZINHA Pavimento flutuante AquaStop Eletrodomésticos de marca AEG ( totalmente equipada) Tampos da bancada e lava loiças em Krion Klife ( ou equivalente) Pré-instalação de recirculação de aguas Tetos falsos em gesso cartonado hidrofugo LCD da marca LG ou Samsung NA SALA e QUARTOS Teto falso em gesso cartonado c/iluminação indireta em fita LED Sancas para cortinados iluminadas Pré - instalação para cortinados elétricos INSTALAÇOES SANITARIAS Pavimento e paredes revestidos com porcelana MARGRÊS linha LOVE Tetos falsos em gesso cartonado hidrofugo Loiça suspensa , tampo com queda amortecida , SANIDUSA ou equivalente Torneiras e coluna chuveiro GROHE Pré-instalação de recirculação de aguas VARANDAS Churrasqueira com lavatório de apoio Instalação de tomada TV Torneira Uma ou duas varandas conforme fração Box para 2 carros ou mais ( dependente da fração) Mais informações ou agendamento de visita estamos ao dispor! **** FOTOS ILUSTARTIVAS 3D DO ANDAR MODELO **** Estamos no local com stand de vendas, de 3ªf a Domingo e convidamos a conhecer mais um empreendimento comercializado pela Espaços.
AMI: 6602
Ref. Externa: 5475/JN_1A
Id: 1633168
Inicie sessão para guardar este imóvel e aceder à sua lista de favoritos em qualquer dispositivo.
3 Quartos
Área bruta : 341 m²
Novo Empreendimento localizado na Urbanização Terraços da Ponte no Edifício _Terraços137 em fase de construção com finalização prevista para o 4ºtrimestre de 2027. Imóveis de tipologia T2 e T3 com ótimas varandas ! Urbanização bastante recente, muito homogénea na sua caracterização urbanística. Linhas modernas e intemporais. No seu interior da urbanização predomina espaços verdes e arruamentos desafogados. Existe também comercio e serviços, de salientar o Pingo Doce, Lidl, Farmácia , Centro de Saúde. No seu redor existe uma imensa variedade de todo o tipo de comercio, serviços, escolas, supermercados, Leroy Merlin e outros. Acessibilidades a 2º Circular através da variante do Prior Velho, com acesso a A1 e IC17 e eixo Norte-Sul. Para o Parque das Nações e o Aeroporto não irá demorar mais que 5 minutos. Transportes rodoviários por perto com ligações a Lisboa, Moscavide e Gare do Oriente. Apeadeiro de Sacavém a 3 minutos de carro. A nível da construção, o imóvel possui acabamentos superiores de excelente qualidade , de salientar: GENERICOS Abertura e fecho centralizado dos estores Estores elétricos em alumínio térmico em tom castanho escuro por fora Caixilharia em PVC Oscilobatente com bom corte térmico e acústico Tetos falsos nas zonas de circulação, pintados a branco com sistema de luz LED Aparelhagem elétrica de marca EFAPEL Pavimento flutuante AC4 ( Hall quartos e sala) Ar Condicionado BOSH sistema mural ou equivalente Bomba de calor BOSH de 260 litros Roupeiros lacados a branco semi brilho com interior acabado em linho Cancun ou equivalente NA COZINHA Pavimento flutuante AquaStop Eletrodomésticos de marca AEG ( totalmente equipada) Tampos da bancada e lava loiças em Krion Klife ( ou equivalente) Pré-instalação de recirculação de aguas Tetos falsos em gesso cartonado hidrofugo LCD da marca LG ou Samsung NA SALA e QUARTOS Teto falso em gesso cartonado c/iluminação indireta em fita LED Sancas para cortinados iluminadas Pré - instalação para cortinados elétricos INSTALAÇOES SANITARIAS Pavimento e paredes revestidos com porcelana MARGRÊS linha LOVE Tetos falsos em gesso cartonado hidrofugo Loiça suspensa , tampo com queda amortecida , SANIDUSA ou equivalente Torneiras e coluna chuveiro GROHE Pré-instalação de recirculação de aguas VARANDAS Churrasqueira com lavatório de apoio Instalação de tomada TV Torneira Uma ou duas varandas conforme fração Box para 2 carros ou mais ( dependente da fração) Mais informações ou agendamento de visita estamos ao dispor! **** FOTOS ILUSTARTIVAS 3D DO ANDAR MODELO **** Estamos no local com stand de vendas, de 3ªf a Domingo e convidamos a conhecer mais um empreendimento comercializado pela Espaços.
AMI: 6602
Ref. Externa: 5475/JN_7B
Id: 1633143
Inicie sessão para guardar este imóvel e aceder à sua lista de favoritos em qualquer dispositivo.
3 Quartos
Área bruta : 279 m²
Novo Empreendimento localizado na Urbanização Terraços da Ponte no Edifício _Terraços137 em fase de construção com finalização prevista para o 4ºtrimestre de 2027. Imóveis de tipologia T2 e T3 com ótimas varandas ! Urbanização bastante recente, muito homogénea na sua caracterização urbanística. Linhas modernas e intemporais. No seu interior da urbanização predomina espaços verdes e arruamentos desafogados. Existe também comercio e serviços, de salientar o Pingo Doce, Lidl, Farmácia , Centro de Saúde. No seu redor existe uma imensa variedade de todo o tipo de comercio, serviços, escolas, supermercados, Leroy Merlin e outros. Acessibilidades a 2º Circular através da variante do Prior Velho, com acesso a A1 e IC17 e eixo Norte-Sul. Para o Parque das Nações e o Aeroporto não irá demorar mais que 5 minutos. Transportes rodoviários por perto com ligações a Lisboa, Moscavide e Gare do Oriente. Apeadeiro de Sacavém a 3 minutos de carro. A nível da construção, o imóvel possui acabamentos superiores de excelente qualidade , de salientar: GENERICOS Abertura e fecho centralizado dos estores Estores elétricos em alumínio térmico em tom castanho escuro por fora Caixilharia em PVC Oscilobatente com bom corte térmico e acústico Tetos falsos nas zonas de circulação, pintados a branco com sistema de luz LED Aparelhagem elétrica de marca EFAPEL Pavimento flutuante AC4 ( Hall quartos e sala) Ar Condicionado BOSH sistema mural ou equivalente Bomba de calor BOSH de 260 litros Roupeiros lacados a branco semi brilho com interior acabado em linho Cancun ou equivalente NA COZINHA Pavimento flutuante AquaStop Eletrodomésticos de marca AEG ( totalmente equipada) Tampos da bancada e lava loiças em Krion Klife ( ou equivalente) Pré-instalação de recirculação de aguas Tetos falsos em gesso cartonado hidrofugo LCD da marca LG ou Samsung NA SALA e QUARTOS Teto falso em gesso cartonado c/iluminação indireta em fita LED Sancas para cortinados iluminadas Pré - instalação para cortinados elétricos INSTALAÇOES SANITARIAS Pavimento e paredes revestidos com porcelana MARGRÊS linha LOVE Tetos falsos em gesso cartonado hidrofugo Loiça suspensa , tampo com queda amortecida , SANIDUSA ou equivalente Torneiras e coluna chuveiro GROHE Pré-instalação de recirculação de aguas VARANDAS Churrasqueira com lavatório de apoio Instalação de tomada TV Torneira Uma ou duas varandas conforme fração Box para 2 carros ou mais ( dependente da fração) Mais informações ou agendamento de visita estamos ao dispor! **** FOTOS ILUSTARTIVAS 3D DO ANDAR MODELO **** Estamos no local com stand de vendas, de 3ªf a Domingo e convidamos a conhecer mais um empreendimento comercializado pela Espaços.
AMI: 6602
Ref. Externa: 5475/JN_7A
Id: 1633142
Inicie sessão para guardar este imóvel e aceder à sua lista de favoritos em qualquer dispositivo.
Estes agentes são especialistas nesta zona:
Inicie sessão para ocultar este imóvel das suas pesquisas e manter a sua lista de resultados organizada.
© Copyright 2023 | CASACERTA. All rights reserved
Guardar favoritos
Este imóvel foi guardados nos seus favoritos com sucesso.
Para poder guardar pesquisa deverá ter a sua sessão iniciada.
Caso não tenha uma conta, deverá criar uma.
A sua pesquisa foi guardada com sucesso!
Este site utiliza cookies. Ao navegar no site estará a consentir a sua utilização.
Para mais informações sobre os cookies pode consultar a
política de privacidade.