Lista
Comprar
Arrendar
2 Quartos
2 WCs
Área bruta : 93 m²
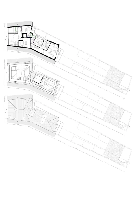
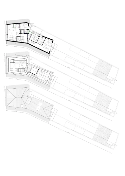
Apartamento T2 localizado na Rua Vale do Coronado, numa zona central, muito bem servido de transportes, serviços e comércio nas imediações. 1km do Campo de Futebol de São Mamede do Coronado; 2km da Bial; 2,4km do Pingo Doce São Romão. Composto por: - Hall da entrada; - Cozinha equipada; - Marquise; - Despensa; - Sala; - 2 quartos com roupeiros embutidos, um deles com varanda; - 2 WC (um de serviço + um completo). Características: - Aquecimento central; - Varanda; - Garagem fechada (box); - 2º andar em prédio sem elevador; - Condomínio: 54€
AMI: 19157
Ref. Externa: 3713
Id: 1478178
Inicie sessão para guardar este imóvel e aceder à sua lista de favoritos em qualquer dispositivo.
265.000 €
1 Quartos
Área bruta : 94 m²
T1 Semi Mobilado para venda no PortoApartamento novo para venda, construção terminada em 2022, com lugar de garagem para 1 viatura e preparada para carregamento de carros eléctricos.Ao entrarmos no prédio, temos elevador ou escadas que nos levam ao 4º andar, aí, um corredor que nos leva ao apartamento. Temos um hall de entrada para a cozinha, arrumos, wc de serviço, sala comum e suite. A cozinha, totalmente equipada, com exaustor, placa, forno, micro-ondas, máquina de lavar loiça e frigorifico combinado. Aqui podemos ir à lavandaria com vistas desafogadas. Sala comum com janela virada para a traseira do prédio. Na suite, temos um hall do quarto com roupeiros embutidos, wc com base de duche e quarto virado para a traseira do prédio. Todo o apartamento tem ar condicionado.Venha visitar e sinta-se em casa.
AMI: 12410
Ref. Externa: 1
Id: 1478037
Inicie sessão para guardar este imóvel e aceder à sua lista de favoritos em qualquer dispositivo.
3 Quartos
3 WCs
Área bruta : 158 m²
Apartamento T3 Renovado, Moderno e Pronto a Habitar Este apartamento de tipologia T3 destaca-se pela renovação realizada nos últimos anos, que lhe confere uma imagem atual, confortável e em excelente estado de conservação. A cozinha, totalmente mobilada e equipada, conta com uma prática zona de lavandaria, discretamente separada por portas de vidro. A ligação à sala de estar e jantar é fluida, permitindo um ambiente amplo e funcional, com acesso direto ao terraço exterior — um verdadeiro prolongamento da área social e um dos grandes atributos deste imóvel. Nesta zona encontra ainda um WC de serviço. A área privativa oferece dois quartos com armários embutidos, além de arrumação extra no hall. Dispõe ainda de uma casa de banho completa de apoio aos mesmos. A suíte, de dimensão generosa, integra dois armários embutidos e usufrui de uma varanda privativa, garantindo conforto e privacidade. O apartamento conta igualmente com aquecimento central através de caldeira a gás. No piso das garagens, encontra um lugar de estacionamento e uma arrecadação, ambos incluídos. Agendamos uma visita?
AMI: 13093
Ref. Externa: 00323
Id: 1508724
Inicie sessão para guardar este imóvel e aceder à sua lista de favoritos em qualquer dispositivo.
4 Quartos
6 WCs
Área bruta : 619 m²
Apartamento T4+1 de luxo c/ piscina privativa junto ao Parque da Cidade do Porto. Este fantástico apartamento de dois andares, possui uma área bruta com uns incríveis 619,46 m2 e uma box com 4 lugares de estacionamento. O +1 situado no piso superior pode ser redesenhado à sua necessidade com a finalidade que pretender. Um mimo da construtora para si. Situado numa das zonas mais prestigiadas do Porto, beneficia de uma localização privilegiada, a apenas um minuto do Parque da Cidade, e, ainda, a apenas 10 minutos a pé da Foz e da rotunda do Castelo do Queijo. Este projeto é da autoria do conceituado atelier de arquitetura Ventura + Partners. Trata-se de um condomínio fechado com portaria, ginásio e sala de convívio, distribuído por 3 pisos e composto por 57 frações: T1, T2, T3 e T4. Todos os apartamentos incluem garagem e varandas. Cada tipologia traduz um conceito de vida distinto: .Nature, com jardins e piscinas privativas em harmonia com o verde; .Core, onde interior e exterior se complementam com equilíbrio; .Upper, no topo, com penthouses e rooftops exclusivos, piscina privativa e uma experiência elevada ao máximo. Mapa de Acabamentos: FACHADAS Painel compósito de alumínio | Espelho cobre e bronze metálico Ripado em compósito de madeira | Cor Tropical Brown Painel de grés porcelânico branco de grandes dimensões Azulejo com relevo | Cor Verde Painel de Cortiça VARANDAS Caixilharia de alumínio com corte térmico, série minimalista, vidro duplo com proteção solar | Cor Bronze Guardas em aço lacadas a bronze Pavimento em deck compósito de madeira Teto das varandas: Piso 1: Painéis de grés porcelânico branco Piso 2: Painel compósito de alumínio com acabamento bronze metálico Piso 3: Ripado em compósito de madeira | Cor Tropical Brown Piso 4: Painel compósito de alumínio com textura de madeira Ponto de água e luz ÁTRIOS Pavimento em Pedra Natural | Mármore Carrara polido ou equivalente Paredes pintadas ou apaineladas em MDF lacado ou folheado a carvalho, com apontamentos em espelho bronze Portas de entrada das frações, de segurança | MDF lacado Pavimento exterior em betão poroso ou inertes resinados ELEVADORES Elevadores tipo Schmitt ou equivalente GARAGEM Ponto de carregamento de veículos elétricos por fração Pavimento em betão com endurecedor de superfície à cor natural Portão seccionado, motorizado SALA CONDOMÍNIO / GINÁSIO Pavimento interior em vinílico com textura de madeira ou equivalente Paredes em dupla placa de gesso cartonado, com isolamento acústico e acabamento pintado e/ou ripado de MDF hidrófugo folheado a carvalho Frentes de armários em MDF, acabamento lacado mate SALAS E QUARTOS Pavimento em soalho estratificado de madeira Carvalho, à cor natural Paredes em dupla placa de gesso cartonado, com isolamento acústico e acabamento pintado e/ou painéis de MDF lacados ou folheados a Carvalho Rodapés embutidos, lacados à cor da parede Teto falso em gesso cartonado, com isolamento acústico e acabamento pintado Sancas para screens ou cortinas com iluminação LED nas salas e quartos Blackouts elétricos nos quartos Portas a toda a altura, acabamento lacado, dobradiças ocultas Armários em MDF lacados ou folheados a Carvalho, interior em melamina de linho COZINHAS Portas de armários em MDF hidrófugo | Cor branca Eletrodomésticos Siemens ou equivalente: forno, micro-ondas, placa de indução, exaustor de teto, combinado encastrável, máquina de lavar loiça encastrável Balcão e contra-tampo em compacto de pedra | Tipo Neolith Calacata ou equivalente Pavimento em grés porcelânico efeito mármore branco INSTALAÇÃO SANITÁRIA SOCIAL Pavimento em soalho estratificado de Carvalho, à cor natural Paredes em gesso cartonado, com isolamento acústico e acabamento pintado Tampo em pedra natural | Mármore branco olímpico ou equivalente Portas de móvel em MDF hidrófugo folheado a Carvalho Loiças suspensas | Tipo Geberit ou equivalente Misturadoras | Tipo BRUMA ou equivalente INSTALAÇÃO SANITÁRIA SUITES Pavimento e paredes em pedra natural | Mármore branco olímpico ou equivalente Tampo em pedra natural | Mármore branco olímpico ou equivalente Portas de móvel em MDF hidrófugo folheado a Carvalho Loiças suspensas | Tipo Geberit ou equivalente Misturadoras | Tipo BRUMA ou equivalente CLIMATIZAÇÃO Instalação de Ar Condicionado por condutas Bomba de calor para AQS Pavimento radiante elétrico nas I.S. das suites SEGURANÇA Zonas comuns: deteção de incêndio, videovigilância e videoporteiro Frações: alarme e sistema automático de inundação nas cozinhas, lavandarias e I.S. DOMÓTICA Painel táctil para controlo centralizado de iluminação, blackouts e climatização ILUMINAÇÃO E ENERGIA Iluminação embutida em LED Instalação de painéis solares fotovoltaicos A obra já está em execução. Não deixe escapar esta oportunidade. Peça mais informações!
AMI: 26010
Ref. Externa: FER_RA_P_P2_A2.1
Id: 1508722
Inicie sessão para guardar este imóvel e aceder à sua lista de favoritos em qualquer dispositivo.
3 Quartos
4 WCs
Área bruta : 201 m²
Apartamento T3 de luxo junto ao Parque da Cidade do Porto com áreas generosas, uma master suite, duas suites, varanda, arrumos e dois lugares de estacionamento. O condomínio possui ginásio e sala de condomínio. Situado numa das zonas mais prestigiadas do Porto, beneficia de uma localização privilegiada, a apenas um minuto do Parque da Cidade, e, ainda, a apenas 10 minutos a pé da Foz e da rotunda do Castelo do Queijo. Este projeto é da autoria do conceituado atelier de arquitetura Ventura + Partners. Trata-se de um condomínio fechado com portaria, ginásio e sala de convívio, distribuído por 3 pisos e composto por 57 frações: T1, T2, T3 e T4. Todos os apartamentos incluem garagem e varandas. Cada tipologia traduz um conceito de vida distinto: .Nature, com jardins e piscinas privativas em harmonia com o verde; .Core, onde interior e exterior se complementam com equilíbrio; .Upper, no topo, com penthouses e rooftops exclusivos, piscina privativa e uma experiência elevada ao máximo. Mapa de Acabamentos: FACHADAS Painel compósito de alumínio | Espelho cobre e bronze metálico Ripado em compósito de madeira | Cor Tropical Brown Painel de grés porcelânico branco de grandes dimensões Azulejo com relevo | Cor Verde Painel de Cortiça VARANDAS Caixilharia de alumínio com corte térmico, série minimalista, vidro duplo com proteção solar | Cor Bronze Guardas em aço lacadas a bronze Pavimento em deck compósito de madeira Teto das varandas: Piso 1: Painéis de grés porcelânico branco Piso 2: Painel compósito de alumínio com acabamento bronze metálico Piso 3: Ripado em compósito de madeira | Cor Tropical Brown Piso 4: Painel compósito de alumínio com textura de madeira Ponto de água e luz ÁTRIOS Pavimento em Pedra Natural | Mármore Carrara polido ou equivalente Paredes pintadas ou apaineladas em MDF lacado ou folheado a carvalho, com apontamentos em espelho bronze Portas de entrada das frações, de segurança | MDF lacado Pavimento exterior em betão poroso ou inertes resinados ELEVADORES Elevadores tipo Schmitt ou equivalente GARAGEM Ponto de carregamento de veículos elétricos por fração Pavimento em betão com endurecedor de superfície à cor natural Portão seccionado, motorizado SALA CONDOMÍNIO / GINÁSIO Pavimento interior em vinílico com textura de madeira ou equivalente Paredes em dupla placa de gesso cartonado, com isolamento acústico e acabamento pintado e/ou ripado de MDF hidrófugo folheado a carvalho Frentes de armários em MDF, acabamento lacado mate SALAS E QUARTOS Pavimento em soalho estratificado de madeira Carvalho, à cor natural Paredes em dupla placa de gesso cartonado, com isolamento acústico e acabamento pintado e/ou painéis de MDF lacados ou folheados a Carvalho Rodapés embutidos, lacados à cor da parede Teto falso em gesso cartonado, com isolamento acústico e acabamento pintado Sancas para screens ou cortinas com iluminação LED nas salas e quartos Blackouts elétricos nos quartos Portas a toda a altura, acabamento lacado, dobradiças ocultas Armários em MDF lacados ou folheados a Carvalho, interior em melamina de linho COZINHAS Portas de armários em MDF hidrófugo | Cor branca Eletrodomésticos Siemens ou equivalente: forno, micro-ondas, placa de indução, exaustor de teto, combinado encastrável, máquina de lavar loiça encastrável Balcão e contra-tampo em compacto de pedra | Tipo Neolith Calacata ou equivalente Pavimento em grés porcelânico efeito mármore branco INSTALAÇÃO SANITÁRIA SOCIAL Pavimento em soalho estratificado de Carvalho, à cor natural Paredes em gesso cartonado, com isolamento acústico e acabamento pintado Tampo em pedra natural | Mármore branco olímpico ou equivalente Portas de móvel em MDF hidrófugo folheado a Carvalho Loiças suspensas | Tipo Geberit ou equivalente Misturadoras | Tipo BRUMA ou equivalente INSTALAÇÃO SANITÁRIA SUITES Pavimento e paredes em pedra natural | Mármore branco olímpico ou equivalente Tampo em pedra natural | Mármore branco olímpico ou equivalente Portas de móvel em MDF hidrófugo folheado a Carvalho Loiças suspensas | Tipo Geberit ou equivalente Misturadoras | Tipo BRUMA ou equivalente CLIMATIZAÇÃO Instalação de Ar Condicionado por condutas Bomba de calor para AQS Pavimento radiante elétrico nas I.S. das suites SEGURANÇA Zonas comuns: deteção de incêndio, videovigilância e videoporteiro Frações: alarme e sistema automático de inundação nas cozinhas, lavandarias e I.S. DOMÓTICA Painel táctil para controlo centralizado de iluminação, blackouts e climatização ILUMINAÇÃO E ENERGIA Iluminação embutida em LED Instalação de painéis solares fotovoltaicos A obra já está em execução. Não deixe escapar esta oportunidade. Peça mais informações!
AMI: 26010
Ref. Externa: FER_RA_P_P1_A1.3
Id: 1508721
Inicie sessão para guardar este imóvel e aceder à sua lista de favoritos em qualquer dispositivo.
2 Quartos
3 WCs
Área bruta : 139 m²
Apartamento T2 de luxo junto ao Parque da Cidade do Porto com áreas generosas, uma master suite, uma suite, varanda, arrumos e dois lugares de estacionamento. O condomínio possui ginásio e sala de condomínio. Situado numa das zonas mais prestigiadas do Porto, beneficia de uma localização privilegiada, a apenas um minuto do Parque da Cidade, e, ainda, a apenas 10 minutos a pé da Foz e da rotunda do Castelo do Queijo. Este projeto é da autoria do conceituado atelier de arquitetura Ventura + Partners. Trata-se de um condomínio fechado com portaria, ginásio e sala de convívio, distribuído por 3 pisos e composto por 57 frações: T1, T2, T3 e T4. Todos os apartamentos incluem garagem e varandas. Cada tipologia traduz um conceito de vida distinto: .Nature, com jardins e piscinas privativas em harmonia com o verde; .Core, onde interior e exterior se complementam com equilíbrio; .Upper, no topo, com penthouses e rooftops exclusivos, piscina privativa e uma experiência elevada ao máximo. Mapa de Acabamentos: FACHADAS Painel compósito de alumínio | Espelho cobre e bronze metálico Ripado em compósito de madeira | Cor Tropical Brown Painel de grés porcelânico branco de grandes dimensões Azulejo com relevo | Cor Verde Painel de Cortiça VARANDAS Caixilharia de alumínio com corte térmico, série minimalista, vidro duplo com proteção solar | Cor Bronze Guardas em aço lacadas a bronze Pavimento em deck compósito de madeira Teto das varandas: Piso 1: Painéis de grés porcelânico branco Piso 2: Painel compósito de alumínio com acabamento bronze metálico Piso 3: Ripado em compósito de madeira | Cor Tropical Brown Piso 4: Painel compósito de alumínio com textura de madeira Ponto de água e luz ÁTRIOS Pavimento em Pedra Natural | Mármore Carrara polido ou equivalente Paredes pintadas ou apaineladas em MDF lacado ou folheado a carvalho, com apontamentos em espelho bronze Portas de entrada das frações, de segurança | MDF lacado Pavimento exterior em betão poroso ou inertes resinados ELEVADORES Elevadores tipo Schmitt ou equivalente GARAGEM Ponto de carregamento de veículos elétricos por fração Pavimento em betão com endurecedor de superfície à cor natural Portão seccionado, motorizado SALA CONDOMÍNIO / GINÁSIO Pavimento interior em vinílico com textura de madeira ou equivalente Paredes em dupla placa de gesso cartonado, com isolamento acústico e acabamento pintado e/ou ripado de MDF hidrófugo folheado a carvalho Frentes de armários em MDF, acabamento lacado mate SALAS E QUARTOS Pavimento em soalho estratificado de madeira Carvalho, à cor natural Paredes em dupla placa de gesso cartonado, com isolamento acústico e acabamento pintado e/ou painéis de MDF lacados ou folheados a Carvalho Rodapés embutidos, lacados à cor da parede Teto falso em gesso cartonado, com isolamento acústico e acabamento pintado Sancas para screens ou cortinas com iluminação LED nas salas e quartos Blackouts elétricos nos quartos Portas a toda a altura, acabamento lacado, dobradiças ocultas Armários em MDF lacados ou folheados a Carvalho, interior em melamina de linho COZINHAS Portas de armários em MDF hidrófugo | Cor branca Eletrodomésticos Siemens ou equivalente: forno, micro-ondas, placa de indução, exaustor de teto, combinado encastrável, máquina de lavar loiça encastrável Balcão e contra-tampo em compacto de pedra | Tipo Neolith Calacata ou equivalente Pavimento em grés porcelânico efeito mármore branco INSTALAÇÃO SANITÁRIA SOCIAL Pavimento em soalho estratificado de Carvalho, à cor natural Paredes em gesso cartonado, com isolamento acústico e acabamento pintado Tampo em pedra natural | Mármore branco olímpico ou equivalente Portas de móvel em MDF hidrófugo folheado a Carvalho Loiças suspensas | Tipo Geberit ou equivalente Misturadoras | Tipo BRUMA ou equivalente INSTALAÇÃO SANITÁRIA SUITES Pavimento e paredes em pedra natural | Mármore branco olímpico ou equivalente Tampo em pedra natural | Mármore branco olímpico ou equivalente Portas de móvel em MDF hidrófugo folheado a Carvalho Loiças suspensas | Tipo Geberit ou equivalente Misturadoras | Tipo BRUMA ou equivalente CLIMATIZAÇÃO Instalação de Ar Condicionado por condutas Bomba de calor para AQS Pavimento radiante elétrico nas I.S. das suites SEGURANÇA Zonas comuns: deteção de incêndio, videovigilância e videoporteiro Frações: alarme e sistema automático de inundação nas cozinhas, lavandarias e I.S. DOMÓTICA Painel táctil para controlo centralizado de iluminação, blackouts e climatização ILUMINAÇÃO E ENERGIA Iluminação embutida em LED Instalação de painéis solares fotovoltaicos A obra já está em execução. Não deixe escapar esta oportunidade. Peça mais informações!
AMI: 26010
Ref. Externa: FER_RA_P_P1_A1.2
Id: 1508720
Inicie sessão para guardar este imóvel e aceder à sua lista de favoritos em qualquer dispositivo.
265.000 €
2 Quartos
1 WCs
Área bruta : 95 m²
T2 para venda no concelho da Maia, a cerca de 10 minutos do centro da Maia e próximo ao Shopping Maia Jardim. As fotos não mostram ainda a remodelação, pois só irá ser realizada no inicio do ano, a ser realizada em 30 dias. Irá ser mudada a cozinha, com placa e forno, e ficará em open space com a sala e com a zona da lavandaria fechada por porta de correr. Tetos falsos na zona social e de circulação, com focos em led embutidos. Casa de banho completa irá ser também toda restaurada, com materiais modernos. Madeiras todas lacadas a branco, dando um ar de moderno ao imóvel. Tem um lugar de garagem na cave do edifício. O edifício está infraestruturado com elevador. Marque já a sua visita.
AMI: 8477
Ref. Externa: 057/25
Id: 1508710
Inicie sessão para guardar este imóvel e aceder à sua lista de favoritos em qualquer dispositivo.
1 Quartos
1 WCs
Área bruta : 37 m²
FRAÇÃO 6 - 3º Andar Frente com VISTA RIO - FOTOS REAIS DO IMÓVEL Apartamentos T1 totalmente remodelados, com licença ativa de Alojamento Local, situados na prestigiada Rua Cândido dos Reis, em Vila Nova de Gaia – a escassos metros das caves de vinho do Porto, da marginal ribeirinha e da ponte D. Luís I. - Localização Premium – Altíssima procura turística - Produto pronto a rentabilizar – Licenças AL para 4 utentes por unidade - Diversas oportunidades T1 – Com vista rio e terraços privativos até 32 m² - Ideal para rendimento passivo, revenda faseada ou Golden Visa Com áreas entre os 31m² e 46m², estas unidades foram totalmente renovadas com excelente gosto e materiais de qualidade. O projeto preserva o charme histórico das fachadas e interiores em pedra, aliando conforto moderno, cozinhas equipadas e ambientes acolhedores prontos a receber hóspedes desde o primeiro dia. Destaques das unidades: - Todas as frações com licença de Alojamento Local - Algumas com terraços amplos (até 32 m²) - Outras com vista privilegiada sobre o rio Douro - Potencial de valorização elevado, zona em crescimento contínuo - Vendas individuais ou em conjunto Frações Disponíveis: * Fração 1: Apartamento T1 no R/C, com 32m² - VENDIDO * Fração 2: Apartamento T1 no 1º A, com 32m², varanda de 2m² - 195.000€ * Fração 3: Apartamento T1 no 2º TR, com 35m², terraço de 7m² - VENDIDO * Fração 4: Apartamento T1 no 2º FR, com 33m² - 195.000€ * Fração 5: Apartamento T1 no 3º TR, com 34m², terraço de 14m² - 230.000€ * Fração 6: Apartamento T1 no 3º FR, com 33m² e vista rio - 250.000€ * Fração 7: Apartamento T1 no 4º TR, com 35m², terraço de 23m² e vista rio - 295.000€ * Fração 8: Apartamento T1 no 4º FR, com 33m² e vista rio - 270.000€ * Fração 9: Apartamento T1 no R/C, com 32m² - VENDIDO * Fração 10: Apartamento T1 no 1º A, com 38m², varanda de 3m² - 195.000€ * Fração 11: Apartamento T1 no 2º DR, com 36m², terraço de 7m² - 185.000€ * Fração 12: Apartamento T1 no 2º ES, com 39m² - 195.000€ * Fração 13: Apartamento T1 no 3º DR, com 35m², terraço de 13m² - 230.000€ * Fração 14: Apartamento T1 no 3º ES, com 39m² e vista rio - 250.000€ * Fração 15: Apartamento T1 no 4º DR, com 46m², terraço de 32m² e vista rio - 350.000€ * Fração 16: Apartamento T1 no 4º ES, com 39m² e vista rio - 270.000€ Este é o tipo de ativo que raramente aparece no mercado: localização de excelência, projeto coeso, licenças aprovadas e operação pronta a gerar rendimento. Se procura segurança, rentabilidade e valorização patrimonial, fale connosco. - Vila Nova de Gaia - Porto Marque já a sua visita! CASABELO - Mediação Imobiliária ID do Imóvel: CB02-158 AMI 24770 www.casabelo.pt Av. Dr. Germano Vieira 1108, Gueifães, Maia Autógrafos Diários Lda Intermediário de Crédito Vinculado nº 0007133 registado no Banco de Portugal.
AMI: 24770
Ref. Externa: CB02-158-6 (2) (2)
Id: 1508709
Inicie sessão para guardar este imóvel e aceder à sua lista de favoritos em qualquer dispositivo.
1 Quartos
1 WCs
Área bruta : 50 m²
FRAÇÃO 5 - 3º Andar Traseiras com terraço de 14m² - FOTOS REAIS DO IMÓVEL Apartamentos T1 totalmente remodelados, com licença ativa de Alojamento Local, situados na prestigiada Rua Cândido dos Reis, em Vila Nova de Gaia – a escassos metros das caves de vinho do Porto, da marginal ribeirinha e da ponte D. Luís I. - Localização Premium – Altíssima procura turística - Produto pronto a rentabilizar – Licenças AL para 4 utentes por unidade - Diversas oportunidades T1 – Com vista rio e terraços privativos até 32 m² - Ideal para rendimento passivo, revenda faseada ou Golden Visa Com áreas entre os 31m² e 46m², estas unidades foram totalmente renovadas com excelente gosto e materiais de qualidade. O projeto preserva o charme histórico das fachadas e interiores em pedra, aliando conforto moderno, cozinhas equipadas e ambientes acolhedores prontos a receber hóspedes desde o primeiro dia. Destaques das unidades: - Todas as frações com licença de Alojamento Local - Algumas com terraços amplos (até 32 m²) - Outras com vista privilegiada sobre o rio Douro - Potencial de valorização elevado, zona em crescimento contínuo - Vendas individuais ou em conjunto Frações Disponíveis: * Fração 1: Apartamento T1 no R/C, com 32m² - VENDIDO * Fração 2: Apartamento T1 no 1º A, com 32m², varanda de 2m² - 195.000€ * Fração 3: Apartamento T1 no 2º TR, com 35m², terraço de 7m² - VENDIDO * Fração 4: Apartamento T1 no 2º FR, com 33m² - 195.000€ * Fração 5: Apartamento T1 no 3º TR, com 34m², terraço de 14m² - 230.000€ * Fração 6: Apartamento T1 no 3º FR, com 33m² e vista rio - 250.000€ * Fração 7: Apartamento T1 no 4º TR, com 35m², terraço de 23m² e vista rio - 295.000€ * Fração 8: Apartamento T1 no 4º FR, com 33m² e vista rio - 270.000€ * Fração 9: Apartamento T1 no R/C, com 32m² - VENDIDO * Fração 10: Apartamento T1 no 1º A, com 38m², varanda de 3m² - 195.000€ * Fração 11: Apartamento T1 no 2º DR, com 36m², terraço de 7m² - 185.000€ * Fração 12: Apartamento T1 no 2º ES, com 39m² - 195.000€ * Fração 13: Apartamento T1 no 3º DR, com 35m², terraço de 13m² - 230.000€ * Fração 14: Apartamento T1 no 3º ES, com 39m² e vista rio - 250.000€ * Fração 15: Apartamento T1 no 4º DR, com 46m², terraço de 32m² e vista rio - 350.000€ * Fração 16: Apartamento T1 no 4º ES, com 39m² e vista rio - 270.000€ Este é o tipo de ativo que raramente aparece no mercado: localização de excelência, projeto coeso, licenças aprovadas e operação pronta a gerar rendimento. Se procura segurança, rentabilidade e valorização patrimonial, fale connosco. - Vila Nova de Gaia - Porto Marque já a sua visita! CASABELO - Mediação Imobiliária ID do Imóvel: CB02-158 AMI 24770 www.casabelo.pt Av. Dr. Germano Vieira 1108, Gueifães, Maia Autógrafos Diários Lda Intermediário de Crédito Vinculado nº 0007133 registado no Banco de Portugal.
AMI: 24770
Ref. Externa: CB02-158-5 (2) (2)
Id: 1508708
Inicie sessão para guardar este imóvel e aceder à sua lista de favoritos em qualquer dispositivo.
1 Quartos
1 WCs
Área bruta : 37 m²
FRAÇÃO 4 - 1º Andar Frente - FOTOS REAIS DO IMÓVEL Apartamentos T1 totalmente remodelados, com licença ativa de Alojamento Local, situados na prestigiada Rua Cândido dos Reis, em Vila Nova de Gaia – a escassos metros das caves de vinho do Porto, da marginal ribeirinha e da ponte D. Luís I. - Localização Premium – Altíssima procura turística - Produto pronto a rentabilizar – Licenças AL para 4 utentes por unidade - Diversas oportunidades T1 – Com vista rio e terraços privativos até 32 m² - Ideal para rendimento passivo, revenda faseada ou Golden Visa Com áreas entre os 31m² e 46m², estas unidades foram totalmente renovadas com excelente gosto e materiais de qualidade. O projeto preserva o charme histórico das fachadas e interiores em pedra, aliando conforto moderno, cozinhas equipadas e ambientes acolhedores prontos a receber hóspedes desde o primeiro dia. Destaques das unidades: - Todas as frações com licença de Alojamento Local - Algumas com terraços amplos (até 32 m²) - Outras com vista privilegiada sobre o rio Douro - Potencial de valorização elevado, zona em crescimento contínuo - Vendas individuais ou em conjunto Frações Disponíveis: * Fração 1: Apartamento T1 no R/C, com 32m² - VENDIDO * Fração 2: Apartamento T1 no 1º A, com 32m², varanda de 2m² - 195.000€ * Fração 3: Apartamento T1 no 2º TR, com 35m², terraço de 7m² - VENDIDO * Fração 4: Apartamento T1 no 2º FR, com 33m² - 195.000€ * Fração 5: Apartamento T1 no 3º TR, com 34m², terraço de 14m² - 230.000€ * Fração 6: Apartamento T1 no 3º FR, com 33m² e vista rio - 250.000€ * Fração 7: Apartamento T1 no 4º TR, com 35m², terraço de 23m² e vista rio - 295.000€ * Fração 8: Apartamento T1 no 4º FR, com 33m² e vista rio - 270.000€ * Fração 9: Apartamento T1 no R/C, com 32m² - VENDIDO * Fração 10: Apartamento T1 no 1º A, com 38m², varanda de 3m² - 195.000€ * Fração 11: Apartamento T1 no 2º DR, com 36m², terraço de 7m² - 185.000€ * Fração 12: Apartamento T1 no 2º ES, com 39m² - 195.000€ * Fração 13: Apartamento T1 no 3º DR, com 35m², terraço de 13m² - 230.000€ * Fração 14: Apartamento T1 no 3º ES, com 39m² e vista rio - 250.000€ * Fração 15: Apartamento T1 no 4º DR, com 46m², terraço de 32m² e vista rio - 350.000€ * Fração 16: Apartamento T1 no 4º ES, com 39m² e vista rio - 270.000€ Este é o tipo de ativo que raramente aparece no mercado: localização de excelência, projeto coeso, licenças aprovadas e operação pronta a gerar rendimento. Se procura segurança, rentabilidade e valorização patrimonial, fale connosco. - Vila Nova de Gaia - Porto Marque já a sua visita! CASABELO - Mediação Imobiliária ID do Imóvel: CB02-158 AMI 24770 www.casabelo.pt Av. Dr. Germano Vieira 1108, Gueifães, Maia Autógrafos Diários Lda Intermediário de Crédito Vinculado nº 0007133 registado no Banco de Portugal.
AMI: 24770
Ref. Externa: CB02-158-4 (2) (2)
Id: 1508706
Inicie sessão para guardar este imóvel e aceder à sua lista de favoritos em qualquer dispositivo.
3 Quartos
2 WCs
Área bruta : 117 m²
Vende-se T3 com Terraço – São Mamede de Infesta (Montes Burgos) Apartamento T3 com 106 m² de área bruta privativa, localizado na Praceta Cristóvão Falcão, numa zona residencial muito tranquila. Destaca-se pelo terraço espaçoso, ideal para refeições ao ar livre e momentos de lazer. O imóvel dispõe de três quartos com boas áreas, excelente exposição solar e uma disposição funcional. Principais características: •Terraço amplo •3 quartos •Rés-do-chão direito recuado •Boa exposição solar •Praceta calma e com facilidade de estacionamento Envolvente: •Acessos rápidos às principais vias •Zona com bastante comércio e serviços •Forte proximidade a escolas •Transportes públicos próximos •Supermercados e zonas verdes a poucos metros Ideal para famílias ou para quem procura espaço exterior em zona central. CASABELO - Mediação Imobiliária ID do Imóvel: CB08-59 AMI 24770 www.casabelo.pt Av. Dr. Germano Vieira 1108, Gueifães, Maia Autógrafos Diários Lda Intermediário de Crédito Vinculado nº 0007133 registado no Banco de Portugal. CASABELO – Mediação Imobiliária (AMI 24770) Somos uma imobiliária sediada na Maia, especializada na compra e venda de imóveis no Grande Porto: Maia, Porto, Matosinhos, Vila Nova de Gaia, Gondomar, Trofa e arredores. A nossa equipa garante um acompanhamento próximo, transparente e profissional em todo o processo de compra, venda ou arrendamento, bem como no acesso ao crédito habitação através da nossa intermediação de crédito (serviço gratuito para o cliente). Se procura uma imobiliária de confiança na Maia e no Porto, contacte a CASABELO. Transformamos planos em realidade.
AMI: 24770
Ref. Externa: CB08-59 (2)
Id: 1508702
Inicie sessão para guardar este imóvel e aceder à sua lista de favoritos em qualquer dispositivo.
1 Quartos
1 WCs
Área bruta : 34 m²
FRAÇÃO 2 - 1º Andar Frente com varanda de 2m² - FOTOS REAIS DO IMÓVEL Apartamentos T1 totalmente remodelados, com licença ativa de Alojamento Local, situados na prestigiada Rua Cândido dos Reis, em Vila Nova de Gaia – a escassos metros das caves de vinho do Porto, da marginal ribeirinha e da ponte D. Luís I. - Localização Premium – Altíssima procura turística - Produto pronto a rentabilizar – Licenças AL para 4 utentes por unidade - Diversas oportunidades T1 – Com vista rio e terraços privativos até 32 m² - Ideal para rendimento passivo, revenda faseada ou Golden Visa Com áreas entre os 31m² e 46m², estas unidades foram totalmente renovadas com excelente gosto e materiais de qualidade. O projeto preserva o charme histórico das fachadas e interiores em pedra, aliando conforto moderno, cozinhas equipadas e ambientes acolhedores prontos a receber hóspedes desde o primeiro dia. Destaques das unidades: - Todas as frações com licença de Alojamento Local - Algumas com terraços amplos (até 32 m²) - Outras com vista privilegiada sobre o rio Douro - Potencial de valorização elevado, zona em crescimento contínuo - Vendas individuais ou em conjunto Frações Disponíveis: * Fração 1: Apartamento T1 no R/C, com 32m² - VENDIDO * Fração 2: Apartamento T1 no 1º A, com 32m², varanda de 2m² - 195.000€ * Fração 3: Apartamento T1 no 2º TR, com 35m², terraço de 7m² - VENDIDO * Fração 4: Apartamento T1 no 2º FR, com 33m² - 195.000€ * Fração 5: Apartamento T1 no 3º TR, com 34m², terraço de 14m² - 230.000€ * Fração 6: Apartamento T1 no 3º FR, com 33m² e vista rio - 250.000€ * Fração 7: Apartamento T1 no 4º TR, com 35m², terraço de 23m² e vista rio - 295.000€ * Fração 8: Apartamento T1 no 4º FR, com 33m² e vista rio - 270.000€ * Fração 9: Apartamento T1 no R/C, com 32m² - VENDIDO * Fração 10: Apartamento T1 no 1º A, com 38m², varanda de 3m² - 195.000€ * Fração 11: Apartamento T1 no 2º DR, com 36m², terraço de 7m² - 185.000€ * Fração 12: Apartamento T1 no 2º ES, com 39m² - 195.000€ * Fração 13: Apartamento T1 no 3º DR, com 35m², terraço de 13m² - 230.000€ * Fração 14: Apartamento T1 no 3º ES, com 39m² e vista rio - 250.000€ * Fração 15: Apartamento T1 no 4º DR, com 46m², terraço de 32m² e vista rio - 350.000€ * Fração 16: Apartamento T1 no 4º ES, com 39m² e vista rio - 270.000€ Este é o tipo de ativo que raramente aparece no mercado: localização de excelência, projeto coeso, licenças aprovadas e operação pronta a gerar rendimento. Se procura segurança, rentabilidade e valorização patrimonial, fale connosco. - Vila Nova de Gaia - Porto Marque já a sua visita! CASABELO - Mediação Imobiliária ID do Imóvel: CB02-158 AMI 24770 www.casabelo.pt Av. Dr. Germano Vieira 1108, Gueifães, Maia Autógrafos Diários Lda Intermediário de Crédito Vinculado nº 0007133 registado no Banco de Portugal.
AMI: 24770
Ref. Externa: CB02-158-3 (2) (2)
Id: 1508701
Inicie sessão para guardar este imóvel e aceder à sua lista de favoritos em qualquer dispositivo.
380.000 €
6 Quartos
2 WCs
Área bruta : 500 m²
1º Andar T4 com terraço + moradia de R/C e Cave | 426 m² | Para Remodelar | Rua Pinto Bessa – Porto Apartamento único com 426 m² úteis no centro do Porto! Oportunidade rara de adquirir uma fração triplex (1º andar + moradia de rés-do-chão e cave) com área total de 426 m² na Rua Pinto Bessa, a dois passos da estação de metro de Campanhã. Este imóvel, com tipologia T4, distribui-se por três pisos e oferece um potencial enorme para personalização total — seja para habitação própria, projeto de investimento ou reconversão em várias unidades. O que destaca este imóvel: * 426 m² de área útil (3 pisos) * Tipologia T4 com possibilidade de reorganização de espaços * Localização central, com metro, comércio e serviços a poucos minutos * Prédio com apenas 13 frações, fachada com três frentes * Ideal para habitação familiar, alojamento local ou arrendamento O apartamento encontra-se em estado original, a necessitar de obras totais — o que permite criar um projeto à sua medida num dos bairros com maior procura no Porto. Investimento com elevado potencial de valorização.
AMI: 24770
Ref. Externa: CB06-39 (2) (2) (2)
Id: 1508698
Inicie sessão para guardar este imóvel e aceder à sua lista de favoritos em qualquer dispositivo.
230.000 €
1 WCs
Área bruta : 48 m²
Apartamento T0 novo, no 2º andar esquerdo, inserido no Edifício Bonfim by Poetic Space, um projeto moderno e exclusivo com previsão de entrega em abril de 2026. Com áreas bem distribuídas, varanda/jardim (dependendo da fração) e arrumos, este imóvel destaca-se pela qualidade dos acabamentos e pela eficiência energética A+. Principais características do edifício: Revestimento exterior em capoto, cor “Camurça” Caixilharias em alumínio cor “Champanhe” com vidro duplo Guarda-corpos em vidro incolor com perfil em alumínio Porta de entrada em vidro translúcido com perfil “Champanhe” Elevador Acessibilidade para pessoas com mobilidade reduzida Características interiores: Cozinha equipada com eletrodomésticos Móvel no lavatório do WC Termoacumulador para aquecimento de águas Iluminação LED Pavimento vinílico em carvalho vintage Tetos brancos e paredes em tom creme Sistema VMC Pré-instalação de ar condicionado O Edifício Bonfim alia modernidade, conforto e localização privilegiada, sendo uma excelente oportunidade tanto para habitação própria como para investimento no Porto. CASABELO - Mediação Imobiliária ID do Imóvel: CB02-168-F AMI 24770 www.casabelo.pt Av. Dr. Germano Vieira 1108, Gueifães, Maia Autógrafos Diários Lda Intermediário de Crédito Vinculado nº 0007133 registado no Banco de Portugal. CASABELO – Mediação Imobiliária (AMI 24770) Somos uma imobiliária sediada na Maia, especializada na compra e venda de imóveis no Grande Porto: Maia, Porto, Matosinhos, Vila Nova de Gaia, Gondomar, Trofa e arredores. A nossa equipa garante um acompanhamento próximo, transparente e profissional em todo o processo de compra, venda ou arrendamento, bem como no acesso ao crédito habitação através da nossa intermediação de crédito (serviço gratuito para o cliente). Se procura uma imobiliária de confiança na Maia e no Porto, contacte a CASABELO. Transformamos planos em realidade.
AMI: 24770
Ref. Externa: CB02-168-F (2) (2) (2)
Id: 1508697
Inicie sessão para guardar este imóvel e aceder à sua lista de favoritos em qualquer dispositivo.
325.000 €
3 Quartos
2 WCs
Área útil : 128 m²
T3 de 128 m2 com 3 frentes, terraço de 39 m² e garagem fechada – Canelas, Vila Nova de Gaia PAULA FERNANDES Contacto direto: 916_279_649 (chamada para a rede móvel nacional) [email protected] Descubra este magnífico apartamento T3 localizado na Rua Delfim de Lima, em Canelas, uma das zonas mais tranquilas e procuradas de Vila Nova de Gaia, que combina conforto, espaço e luminosidade em perfeita harmonia. Com 128 m² de área bruta privativa, este apartamento destaca-se pela sua excelente exposição solar (nascente, sul e poente), garantindo luz natural ao longo de todo o dia. O hall de entrada é bastante generoso, dando acesso a uma casa de banho de serviço. A zona social é ampla e acolhedora, com uma sala espaçosa e varanda de 3,5 m2, ideal para receber família e amigos, sendo que a cozinha em open space é moderna, totalmente equipada, e dispõe de lavandaria e uma prática despensa, oferecendo funcionalidade e organização. A zona privada é composta por três quartos, um deles em suite, e uma casa de banho completa de apoio aos restantes quartos. Todas as divisões beneficiam de excelente luz natural e boas áreas, proporcionando o máximo conforto no dia a dia. Dois dos quartos têm acesso direto a um extraordinário terraço de 39 m², perfeito para momentos de lazer, refeições ao ar livre ou simplesmente relaxar ao final do dia. O apartamento inclui ainda arrumos independentes com 4 m²; e uma Garagem fechada para um carro com 19 m²; Inserido em prédio cuidado e com dois elevadores; Localização de excelência, com acessos rápidos à A29 e A1, bem como proximidade de escolas, comércio, serviços e transportes públicos. Este é o lar ideal para quem procura um apartamento espaçoso, moderno e com áreas exteriores generosas, numa zona calma mas com tudo por perto. Contacte-nos para MAIS INFORMAÇÕES, PAULA FERNANDES Contacto direto: 916_279_649 (chamada para a rede móvel nacional) [email protected] Uma OPORTUNIDADE a não perder. A RE/MAX +Grupo Vantagem, existe para o ajudar a realizar sonhos, seja na compra ou na venda do seu imóvel Escolher o Grupo RE/MAX +VANTAGEM Significa: Optar pela mais eficiente rede de Consultores Imobiliários do Mercado, capazes de o aconselhar e acompanhar na operação de compra do seu imóvel. Seja qual for o valor do seu investimento, terá sempre a certeza que o seu novo imóvel não é uma parte do que fazemos, é tudo o que fazemos. _____________________________________ 128 m² three-bedroom apartment with three fronts, 39 m² terrace and enclosed garage – Canelas, Vila Nova de Gaia PAULA FERNANDES Direct contact: 916_279_649 (call to national mobile network) [email protected] Discover this magnificent 3-bedroom apartment located on Rua Delfim de Lima, in Canelas, one of the quietest and most sought-after areas of Vila Nova de Gaia, which combines comfort, space and light in perfect harmony. With 128 m² of gross private area, this flat stands out for its excellent sun exposure (east, south and west), ensuring natural light throughout the day. The entrance hall is quite generous, giving access to a guest bathroom. The social area is large and welcoming, with a spacious living room and a 3.5 m² balcony, ideal for entertaining family and friends. The open-plan kitchen is modern, fully equipped, and has a laundry room and a practical pantry, offering functionality and organisation. The private area consists of three bedrooms, one of which is en suite, and a full bathroom for the other bedrooms. All rooms benefit from excellent natural light and good areas, providing maximum comfort in everyday life. Two of the bedrooms have direct access to an extraordinary 39 m² terrace, perfect for leisure time, outdoor dining or simply relaxing at the end of the day. The apartment also includes a separate 4 m² storage room and a 19 m² closed garage for one car. Excellent location, with quick access to the A29 and A1 motorways, as well as proximity to schools, shops, services and public transport. This is the ideal home for those looking for a spacious, modern flat with generous outdoor areas, in a quiet area but with everything nearby. Contact us for MORE INFORMATION, PAULA FERNANDES Direct contact: 916_279_649 (call to the national mobile network) [email protected] An OPPORTUNITY not to be missed. RE/MAX +Grupo Vantagem is here to help you realise your dreams, whether you are buying or selling your property. Choosing the RE/MAX +VANTAGEM Group means: Choosing the most efficient network of real estate consultants on the market, capable of advising and accompanying you in the purchase of your property. Whatever the value of your investment, you can always be sure that your new property is not just part of what we do, it is everything we do.
AMI: 7772
Ref. Externa: A-29990
Id: 1507588
Inicie sessão para guardar este imóvel e aceder à sua lista de favoritos em qualquer dispositivo.
2 Quartos
1 WCs
Área útil : 50 m²
Apartamento T1+1 NOVO PAULA FERNANDES Contacto direto: 916_279_649 (chamada para a rede móvel nacional) [email protected] Edifício Floris – Um Novo Conceito de Habitação em Vila Nova de Gaia Situado em Vila Nova de Gaia, na Rua Doutor Florido Toscano, o Edifício Floris representa uma fusão perfeita entre modernidade, conforto e qualidade com um design contemporâneo e acabamentos de elevada sofisticação. Estrategicamente localizado, o Edifício Floris aposta na proximidade aos transportes públicos e à vasta oferta de serviços e comércio na região, tornando-se a escolha ideal para quem valoriza a mobilidade urbana e um estilo de vida prático. Este Apartamento T1+1, sem garagem, tem uma área de 50,39 m2, sendo que o +1 é bastante generoso podendo ser perfeitamento utilizado com quarto e encontra-se localizado no R/C do Edifício Floris, com as seguintes características: Fachada moderna com sistema ETICS e tons neutros, combinando granito amarelo e tintas Nováqua CIN na tonalidade cinza noturna; Janelas com caixilharia em PVC de alta eficiência térmica e vidro duplo , garantindo isolamento acústico e conforto térmico; Pavimento em cerâmica Vitacer Milton OAK , proporcionando um ambiente sofisticado e de fácil manutenção; Cozinhas totalmente equipada, com eletrodomésticos Meireles, armários lacados a branco e tampos em granito preto Angola; Casas de banho elegante, com cerâmicas de grande formato, loiças sanitárias Sanitana e bases de duche Sanindusa; Climatização eficiente com ar condicionado multi-split da marca Mitsubishi; Solução segura, incluindo um sistema solar termossifão para aquecimento de águas. Localização e Envolvente A Rua Doutor Florido Toscano beneficia de uma localização privilegiada em Vila Nova de Gaia , oferecendo uma combinação perfeita entre tranquilidade residencial e a conveniência da cidade. Nas proximidades, localizado: Avenida da República – o eixo central da cidade, com uma vasta oferta de comércio, restauração e serviços; Estações de Metro e Transportes Públicos , garantindo fácil deslocação para o Porto e outros pontos da região; Praias de Valadares, ideais para momentos de lazer à beira-mar; El Corte Inglés Gaia , um dos principais polos comerciais da cidade; Escolas, hospitais e farmácias , garantindo um suporte completo às famílias residentes; Acessos rápidos à Ponte da Arrábida e à Ponte do Infante , permitindo uma ligação ágil ao Porto.Um Novo Estilo de Vida O Edifício Floris é mais do que uma residência – é uma afirmação de conforto, modernidade e qualidade. Com espaços bem distribuídos, acabamentos premium e uma localização estratégica, este empreendimento foi pensado para quem deseja viver com sofisticação e praticidade em Vila Nova de Gaia. Contacte-nos para MAIS INFORMAÇÕES, PAULA FERNANDES Contacto direto: 916_279_649 (chamada para a rede móvel nacional) [email protected] Uma OPORTUNIDADE a não perder. A RE/MAX +Grupo Vantagem, existe para o ajudar a realizar sonhos, seja na compra ou na venda do seu imóvel Escolher o Grupo RE/MAX +VANTAGEM Significa: Optar pela mais eficiente rede de Consultores Imobiliários do Mercado, capazes de o aconselhar e acompanhar na operação de compra do seu imóvel. Seja qual for o valor do seu investimento, terá sempre a certeza que o seu novo imóvel não é uma parte do que fazemos, é tudo o que fazemos. ______________________________ NEW 1+1 bedroom apartment PAULA FERNANDES Direct contact: 916_279_649 (call to national mobile network) [email protected] Floris Building – A New Concept in Housing in Vila Nova de Gaia Located in Vila Nova de Gaia, on Rua Doutor Florido Toscano, the Floris Building represents a perfect fusion of modernity, comfort and quality with a contemporary design and highly sophisticated finishes. Strategically located, the Floris Building is close to public transport and a wide range of services and shops in the region, making it the ideal choice for those who value urban mobility and a practical lifestyle. This 1+1 bedroom apartment, without a garage, has an area of 50.39 m2, with the +1 being quite generous and perfectly suitable for use as a bedroom. It is located on the ground floor of the Floris Building and has the following features: Modern façade with ETICS system and neutral tones, combining yellow granite and Nováqua CIN paints in midnight grey; Windows with high thermal efficiency PVC frames and double glazing, ensuring sound insulation and thermal comfort; Vitacer Milton OAK ceramic flooring, providing a sophisticated and easy-to-maintain environment; Fully equipped kitchens with Meireles appliances, white lacquered cabinets and black Angola granite countertops; Elegant bathrooms with large format ceramics, Sanitana sanitary ware and Sanindusa shower trays; Efficient climate control with Mitsubishi multi-split air conditioning; Secure solution, including a solar thermosiphon system for water heating. Location and Surroundings Rua Doutor Florido Toscano benefits from a privileged location in Vila Nova de Gaia, offering a perfect combination of residential tranquillity and city convenience. Nearby, you will find: Avenida da República – the city's central axis, with a wide range of shops, restaurants and services; Metro and public transport stations, ensuring easy travel to Porto and other parts of the region; Valadares beaches, ideal for leisure time by the sea; El Corte Inglés Gaia, one of the city's main shopping centres; Schools, hospitals and pharmacies, ensuring comprehensive support for resident families; Quick access to the Arrábida Bridge and the Infante Bridge, providing a fast connection to Porto. A New Lifestyle The Floris Building is more than just a residence – it is a statement of comfort, modernity and quality. With well-distributed spaces, premium finishes and a strategic location, this development was designed for those who want to live with sophistication and practicality in Vila Nova de Gaia. Contact us for MORE INFORMATION, PAULA FERNANDES Direct contact: 916_279_649 (call to the national mobile network) [email protected] An OPPORTUNITY not to be missed. RE/MAX +Grupo Vantagem is here to help you realise your dreams, whether you are buying or selling your property Choosing the RE/MAX +VANTAGEM Group means: Opting for the most efficient network of Estate Agents on the market, capable of advising and accompanying you in the purchase of your property. Whatever the value of your investment, you can always be sure that your new property is not just part of what we do, it is everything we do.
AMI: 7772
Ref. Externa: A-29991
Id: 1507587
Inicie sessão para guardar este imóvel e aceder à sua lista de favoritos em qualquer dispositivo.
1 Quartos
1 WCs
Área útil : 59 m²
Exclusivo Chave Nova Este acolhedor apartamento T1, com 65 m², está situado no 2.º piso de um prédio com elevador, bem cuidado, e destaca-se pelo excelente estado de conservação e pelo facto de estar totalmente mobilado, oferecendo conforto imediato a quem o escolher. Principais características: Sala com varanda aconchegante, ideal para relaxar ao final do dia; Cozinha equipada com área de serviço independente; Quarto com armário embutido; Casa de banho completa; Boa exposição solar e pavimento em ótimo estado; Hall de entrada que distribui de forma funcional todas as divisões. Inserido numa zona prática e bem servida, fica a cerca de 15 minutos a pé do metro, próximo de todo o tipo de comércio, como supermercados, cafés, farmácias e pastelarias. Também beneficia da proximidade a escolas e de uma ótima rede de transportes, facilitando a rotina diária.
AMI: 7142
Ref. Externa: OD/02547
Id: 1507586
Inicie sessão para guardar este imóvel e aceder à sua lista de favoritos em qualquer dispositivo.
2 Quartos
4 WCs
Área útil : 70 m²
Apartamento Deslumbrante no Coração do Porto Descubra este magnífico apartamento T2+1, inserido numa zona histórica da cidade, num edifício datado de 1945 na emblemática Rua da Boavista. ? O apartamento foi alvo de uma remodelação integral em 2022, conduzida por um renomado atelier de arquitetura português. Foram utilizados materiais de excelência e qualidade ímpar, incluindo mármores nobres, espelhos de grandes dimensões, sancas de luz e mobiliário feito sob medida. Cada intervenção foi pensada para aliar classe e funcionalidade, criando um ambiente de sofisticação e conforto. A sala e a cozinha integram-se num espaço contínuo, com orientação a sul e vista direta para o jardim. A cozinha encontra-se totalmente equipada com eletrodomésticos Miele e Bosch. O apartamento inclui ainda uma área de lavandaria autónoma, equipada com máquina de lavar e secar roupa. Para o seu conforto, o apartamento dispõe de climatização multisplit, bomba de calor com capacidade para dez banhos, toldos nas janelas e caixilharia em PVC com vidros duplos planitérmicos. A propriedade oferece duas suites e um terceiro quarto servido por uma casa de banho localizada no corredor. Uma verdadeira joia imobiliária no coração vibrante do Porto, pronta para o acolher! ? Atreva-se a visitar… e apaixone-se! Contacte já a sua Agência! Maivas Imobiliária ???? ? ?????? ???????! ? ? Rua Cónego Luciano Afonso dos Santos, 37B ? 253 091 703 ? [email protected] Mais ofertas em www.maivas.com Ref.ª A005-0030
AMI: 24377
Ref. Externa: A005-0030
Id: 1507582
Inicie sessão para guardar este imóvel e aceder à sua lista de favoritos em qualquer dispositivo.
1 Quartos
2 WCs
Área útil : 53 m²
✨ Apartamento T1 com Suite – Matosinhos ✨ Apresentamos este magnífico apartamento T1, situado a apenas 800 metros da praia, inserido num empreendimento moderno e exclusivo no coração de Matosinhos, onde o design contemporâneo se alia à funcionalidade e ao conforto. Um espaço pensado ao detalhe para proporcionar qualidade de vida e valorização garantida. ?️ Localização privilegiada: No centro de Matosinhos, a poucos minutos das principais comodidades, como metro, escolas, supermercados, centros de saúde, farmácias, restaurantes e comércio local. A sua proximidade às praias, parques e zonas verdes oferece um equilíbrio perfeito entre o ritmo urbano e a serenidade costeira. ? Características do apartamento: Área bruta: 60 m² | Área útil: 53 m² 1 suíte + 1 casa de banho serviço Sala espaçosa com 20,1 m² Cozinha moderna totalmente equipada com eletrodomésticos Bosch Varanda de 7 m², ideal para momentos de lazer Acabamentos premium, com pavimento vinílico, tetos falsos e iluminação embutida Ar condicionado completo e caixilharia com corte térmico e vidros duplos Vídeo-porteiro e porta de segurança ? Conforto e eficiência: Com classe energética A, este apartamento foi concebido para garantir eficiência térmica e acústica, reduzindo custos energéticos e aumentando o bem-estar. O sistema de bomba de calor e os materiais de alta qualidade refletem o compromisso com a sustentabilidade e a modernidade. ? Viver em Matosinhos: Matosinhos é uma cidade vibrante e cosmopolita, que combina a vida urbana com o charme costeiro. Reconhecida pela sua qualidade de vida, excelente infraestrutura e elevado potencial de valorização imobiliária, é hoje uma das zonas mais procuradas da Área Metropolitana do Porto. ? Preço: 340.000 € ? Não perca esta oportunidade! Agende já a sua visita e descubra o seu novo lar – um espaço que redefine o conceito de elegância, conforto e bem-estar no coração de Matosinhos. Siga-nos nas nossas redes sociais! WEBSITE: https://www.lardesonho.pt/barcelos/ FACEBOOK: https://www.facebook.com/lardesonhobarcelospagina INSTAGRAM: https://www.instagram.com/lardesonhobarcelos/ YOUTUBE: https://www.youtube.com/@lardesonhobarcelos2733 A história de sucesso da rede imobiliária LardeSonho deve-se a um serviço de excelência, personalizado para cada cliente, marcado por três premissas- SATISFAÇÃO- RECOMENDAÇÃO-FIDELIZAÇÃO. É a Maior Rede Imobiliária 100% Nacional tendo 24 agências distribuídas por todo o país com mais de 400 Consultores, o que garante uma presença forte junto de potenciais compradores e investidores. A Rede Imobiliária LardeSonho tem como ferramentas uma equipa de profissionais dinâmicos, motivados, com uma vasta experiência; uma carteira de imóveis aos preços mais competitivos do mercado; uma atitude proactiva que se carateriza por inúmeras iniciativas de marketing, campanhas, eventos publicitários, promovendo e divulgando com sucesso a sua carteira de imóveis em cada localidade onde tem Agência. Aliados a parcerias com instituições bancárias, gabinetes de arquitetura, empresas de construção, marketing e publicidade, a rede Imobiliária LardeSonho ajuda os seus clientes a encontrar a solução adequada às suas necessidades. ------- ✨ One-bedroom apartment with en suite bathroom – Matosinhos ✨ We present this magnificent one-bedroom apartment, located just 800 metres from the beach, in a modern and exclusive development in the heart of Matosinhos, where contemporary design combines with functionality and comfort. A space designed down to the last detail to provide quality of life and guaranteed value. ?️ Prime location: In the centre of Matosinhos, just a few minutes from key amenities such as the underground, schools, supermarkets, health centres, pharmacies, restaurants and local shops. Its proximity to beaches, parks and green areas offers the perfect balance between urban life and coastal serenity. ? Apartment features: Gross area: 60 m² | Usable area: 53 m² 1 suite + 1 service bathroom Spacious 20.1 m² living room Modern kitchen fully equipped with Bosch appliances 7 m² balcony, ideal for leisure time Premium finishes, with vinyl flooring, false ceilings and recessed lighting Full air conditioning and thermal break window frames with double glazing Video intercom and security door ? Comfort and efficiency: With energy class A, this flat has been designed to ensure thermal and acoustic efficiency, reducing energy costs and increasing well-being. The heat pump system and high-quality materials reflect a commitment to sustainability and modernity. ? Living in Matosinhos: Matosinhos is a vibrant and cosmopolitan city that combines urban life with coastal charm. Renowned for its quality of life, excellent infrastructure and high potential for property appreciation, it is now one of the most sought-after areas in the Porto Metropolitan Area. ? Price: €340,000 ? Don't miss this opportunity! Schedule your visit now and discover your new home – a space that redefines the concept of elegance, comfort, and well-being in the heart of Matosinhos. Follow us on social media! WEBSITE: https://www.lardesonho.pt/barcelos/ FACEBOOK: https://www.facebook.com/lardesonhobarcelospagina INSTAGRAM: https://www.instagram.com/lardesonhobarcelos/ YOUTUBE: https://www.youtube.com/@lardesonhobarcelos2733 The success story of the LardeSonho real estate network is due to a service of excellence, personalised for each client, marked by three premises - SATISFACTION - RECOMMENDATION - RELEASE. It is the Largest 100% National Real Estate Network with 24 branches throughout the country with more than 400 Consultants, which guarantees a strong presence among potential buyers and investors. The LardeSonho Real Estate Network has as its tools a team of dynamic, motivated professionals with vast experience; a portfolio of properties at the most competitive prices on the market; a proactive attitude characterised by numerous marketing initiatives, campaigns and advertising events, successfully promoting and publicising its portfolio of properties in every location where it has an agency. Combined with partnerships with banks, architectural offices, construction, marketing and advertising companies, the LardeSonho Real Estate network helps its clients find the right solution for their needs.
AMI: 17319
Ref. Externa: 265-A-02013
Id: 1507578
Inicie sessão para guardar este imóvel e aceder à sua lista de favoritos em qualquer dispositivo.
1 Quartos
1 WCs
Área útil : 51 m²
Apartamento T1 em Condomínio Privado com Jardim, Ginásio, Varanda e Garagem – Próximo ao MetroBus Descubra este moderno apartamento T1, localizado no 1.º piso de um condomínio privado, com amplas áreas comuns e um ambiente ideal para quem valoriza conforto, tranquilidade e acessos rápidos à cidade. Situado junto ao MetroBus com ligação direta à Estação de Metro D. João II. Condomínio com: -Jardim privado; -Sala de convívio; -Sala de ginásio privativo; -Espaço comum para crianças; Características do apartamento: -Sala e cozinha em open-space com acesso a varanda de 5,16 m²; -Cozinha equipada com eletrodomésticos Bosch (ou equivalente): placa vitrocerâmica, exaustor, micro-ondas, forno, máquina de lavar louça e combinado; -Quarto com roupeiro embutido; -Ar condicionado (multi-split) na sala e no quarto; -Estores elétricos e vidros duplos; -Bomba de calor para aquecimento de águas; -Orientação nascente, com vista para o jardim; -Lugar de garagem incluído; Localização estratégica: -Junto à Quinta da Seara; -A poucos minutos de várias escolas e serviços (Escola Gaia Nascente a 350m, Freixieiro a 600m, Colégio do Sardão a 1500m); -A 3000m da Estação de Metro “D. João II” e a 3100m da “Santo Ovídio”; -Próximo de comércio, serviços, parques e equipamentos desportivos; Ideal para quem procura viver com qualidade, perto da cidade mas rodeado de conforto e comodidade.
AMI: 7142
Ref. Externa: ESP/00160
Id: 1507573
Inicie sessão para guardar este imóvel e aceder à sua lista de favoritos em qualquer dispositivo.
2 Quartos
2 WCs
Área útil : 89 m²
Apartamento T2+1 na Avenida da República – Vila Nova de Gaia T2+1 numa das avenidas mais emblemáticas de Vila Nova de Gaia, situado a apenas 50 metros da estação de metro de Santo Ovídio. Uma oportunidade única para quem procura qualidade de vida, centralidade e um imóvel com grande potencial. Localizado no 7.º piso, este apartamento oferece vistas completamente desafogadas e uma luminosidade natural excecional. Dispõe de 100 m² de área útil, distribuídos de forma prática e equilibrada. A zona social é composta por uma sala ampla com acesso direto a varanda, perfeita para momentos de descanso ou convívio. A área privada integra dois quartos, complementados por um (+1) versátil — ideal para escritório, quarto de apoio ou zona de arrumação. Conta ainda com duas casas de banho, A localização é verdadeiramente privilegiada: Proximidade imediata de transportes públicos (metro a 50 metros); Supermercados, farmácias, escolas, serviços e comércio tradicional a poucos minutos; Acesso rápido às principais vias rodoviárias, facilitando a mobilidade diária. Uma excelente opção tanto para habitação própria como para investimento, inserida numa das áreas mais valorizadas e procuradas de Vila Nova de Gaia. Ligue para mais informações e agendamento de visita.
AMI: 7917
Ref. Externa: 808251056
Id: 1507563
Inicie sessão para guardar este imóvel e aceder à sua lista de favoritos em qualquer dispositivo.
2 Quartos
1 WCs
Área útil : 81 m²
Excelentes áreas. rés-do-chão mas sem acesso ao exterior (rua). Acesso para pessoas com deficiência. Nascente - Sul. Cozinha equipada com placa e forno, micro-ondas, máq. de lavar louça. Lavandaria com máq. de lavar roupa. Varanda. Hall de entrada enorme 2 bons quartos (1 deles com área fora do comum, enorme), 1 roupeiro. 1 Banho completo com base de duche (recuperado). Prédio com elevador. Lugar de Garagem interior e com portão automático. Acessos rápidos. Agende quanto antes a sua visita.
AMI: 7917
Ref. Externa: 802256062
Id: 1507562
Inicie sessão para guardar este imóvel e aceder à sua lista de favoritos em qualquer dispositivo.
Estes agentes são especialistas nesta zona:
Inicie sessão para ocultar este imóvel das suas pesquisas e manter a sua lista de resultados organizada.
Guardar favoritos
Este imóvel foi guardados nos seus favoritos com sucesso.
Para poder guardar pesquisa deverá ter a sua sessão iniciada.
Caso não tenha uma conta, deverá criar uma.
A sua pesquisa foi guardada com sucesso!
© Copyright 2023 | CASACERTA. All rights reserved
Este site utiliza cookies. Ao navegar no site estará a consentir a sua utilização.
Para mais informações sobre os cookies pode consultar a
política de privacidade.