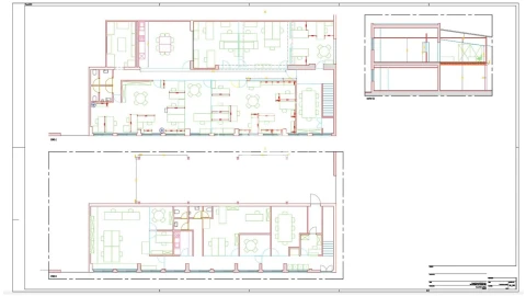
Para aqueles que procuram um espaço moderno e funcional para o seu negócio, apresentamos o Edifício de Escritórios e Armazém. Com uma Área Bruta de 425 m2 em Open Space distribuídos por 2 pisos, os escritórios proporcionam um ambiente de trabalho amplo e versátil.
O Armazém, por sua vez, possui uma Área Bruta de 1200 m2 com um pé direito máximo de 6.50m e mínimo de 3.55m, permitindo o armazenamento de grandes quantidades de mercadorias. Além disso, o acesso a camiões facilita o transporte de carga.
O edifício conta com 5 Casas de Banho e Balneários com 2 Duches, garantindo o conforto e a privacidade dos funcionários. São 2 Copas disponíveis para momentos de pausa e refeições.
Com 9 zonas de trabalho divididas por vidro e 4 Salas de Reuniões, o edifício proporciona um ambiente de trabalho colaborativo e eficiente.
E para quem se preocupa com a mobilidade, o Edifício de Escritórios e Armazém dispõe de 9 lugares de estacionamento.
Não perca esta oportunidade de adquirir um espaço de trabalho moderno e funcional. Entre em contato connosco para saber mais informações e agendar uma visita.
Este site utiliza cookies. Ao navegar no site estará a consentir a sua utilização. Para mais informações sobre os cookies pode consultar a
política de privacidade.