Lista
Comprar
Arrendar
7.000.000 €
Área bruta : 39792 m²
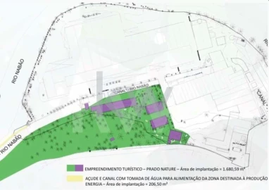
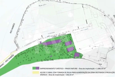
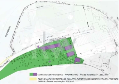
Centro de Negócios e logística da Prado e Turismo Prado Nature no centro do país a poucos minutos da cidade de Tomar. Uma propriedade com aproximadamente 12 HECTARES, um sítio com características únicas, com viabilidade para desenvolver várias áreas de negócio, indústria, comércio, serviços e armazéns. A propriedade é composta por um conjunto de edifícios industriais e de habitação, com uma área coberta aproximadamente 50.000m2, portaria sistema de vídeo vigilância instalados com condições para funcionar em condomínio privado excelentes condições para a produção de ENERGIAS VERDES através de central hidroelétrica, alimentada por canal de açude do RIO NABÃO e também por painéis fotovoltaicos. Ainda com excelentes condições para a produção de hidrogénio verde. O empreendimento é dotado de uma conduta de GÁS NATURAL ligada à rede pública, sendo uma mais valia para qualquer tipo de indústria e produção de energia. Está projetado a criação de um edifício multi-serviços, com auditório, cafetaria, salas polivalentes para escritórios, formação e outros serviços. O RIO NABÃO ladeia toda a propriedade, rodeada de uma densa floresta com árvores centenárias, antiga capela, um ambiente único. Este conjunto de imóveis está inserido num terreno com uma área aproximada de 12 hectares situado nas margens Rio Nabão, sendo servido por açude com tomada de água junto à propriedade. Esta tomada de água alimenta a unidade industrial através de um canal que atravessa a mesma, incluindo uma hídrica que se encontra dentro do imóvel. Está também dotado de infraestrutura de gás ligada à rede nacional. É neste espaço que se projeta a criação do futuro Centro de Negócios, Logística e Serviços do Prado. Este empreendimento dispõe de uma localização privilegiada no centro do país, a 1h30 de distância de Lisboa e do Porto, sendo servido pela autoestrada A13 e pelo IC9. Neste espaço funcionou até 2017 a Prado Karton, mais antiga fábrica de produção de papel no país, com alvará atribuído pelo Marquês de Pombal no século XVIII. É aqui que irá nascer um empreendimento com características únicas, para desenvolver projetos em várias áreas de negócios, indústria, comércio, serviços e armazém, produção de energias verdes e turismo natura. O Centro de Negócios, Logística e Serviços do Prado será composto por um conjunto de edifícios com uma área coberta de aproximadamente 50.000 m2, com apoio de portaria, sistema de segurança e vídeo-vigilância instalado e com condições para funcionamento em condomínio privado. Os edifícios podem ser destinados à indústria, comércio, serviços e armazém, com áreas entre 600 e 5 mil metros quadrados, rés-do-chão, 1º e 2º pisos. Outra caraterística única do empreendimento é a possibilidade de produção de energias verdes dentro do complexo, com central hidro-eléctrica própria, alimentada por canal a partir de açude no Rio Nabão e a instalação de painéis fotovoltaicos na cobertura dos edifícios. Esta unidade situa-se numa zona que também reúne todas as condições para a produção de hidrogénio verde. Todas estas potencialidades possibilitam a criação de uma CER - Comunidade de Energia Renovável, com a disponibilização de energia a preços mais competitivos para consumo no complexo. Está prevista ainda a criação de um edifício multi-serviços com auditório, cafetaria, salas polivalentes para escritórios, formação e outros serviços. Para além das áreas destinadas ao Centro de Negócios, Logística e Serviços do Prado, está também contemplado um conjunto de edifícios destinado a turismo natura: o Rio Nabão ladeia toda a propriedade. Destaque também para a floresta com árvores centenárias, que se desenvolve por mais de um quilometro nas margens do Rio Nabão e para a antiga capela. Uma área destinada a turismo Natura4km da cidade de Tomar 30km do eixo Leiria/Fátima 140km da cidade de Lisboa 195km da cidade do Porto 500km de Madrid 420km de Sevilha Características: Características Exteriores - Video Porteiro; Orientação - Nascente; Norte; Sul; Poente; Outros Equipamentos - Serviço de internet; Gás canalizado; Sistema de Segurança; Alarme de segurança; Vistas - Vista campo; Vista rio;
AMI: 23350
Ref. Externa: 2276-898
Id: 1432472
Inicie sessão para guardar este imóvel e aceder à sua lista de favoritos em qualquer dispositivo.
7.000.000 €
Área bruta : 39792 m²
Centro de Negócios e logística da Prado e Turismo Prado Nature no centro do país a poucos minutos da cidade de Tomar. Uma propriedade com aproximadamente 12 HECTARES, um sítio com características únicas, com viabilidade para desenvolver várias áreas de negócio, indústria, comércio, serviços e armazéns. A propriedade é composta por um conjunto de edifícios industriais e de habitação, com uma área coberta aproximadamente 50.000m2, portaria sistema de vídeo vigilância instalados com condições para funcionar em condomínio privado excelentes condições para a produção de ENERGIAS VERDES através de central hidroelétrica, alimentada por canal de açude do RIO NABÃO e também por painéis fotovoltaicos. Ainda com excelentes condições para a produção de hidrogénio verde. O empreendimento é dotado de uma conduta de GÁS NATURAL ligada à rede pública, sendo uma mais valia para qualquer tipo de indústria e produção de energia. Está projetado a criação de um edifício multi-serviços, com auditório, cafetaria, salas polivalentes para escritórios, formação e outros serviços. O RIO NABÃO ladeia toda a propriedade, rodeada de uma densa floresta com árvores centenárias, antiga capela, um ambiente único. Este conjunto de imóveis está inserido num terreno com uma área aproximada de 12 hectares situado nas margens Rio Nabão, sendo servido por açude com tomada de água junto à propriedade. Esta tomada de água alimenta a unidade industrial através de um canal que atravessa a mesma, incluindo uma hídrica que se encontra dentro do imóvel. Está também dotado de infraestrutura de gás ligada à rede nacional. É neste espaço que se projeta a criação do futuro Centro de Negócios, Logística e Serviços do Prado. Este empreendimento dispõe de uma localização privilegiada no centro do país, a 1h30 de distância de Lisboa e do Porto, sendo servido pela autoestrada A13 e pelo IC9. Neste espaço funcionou até 2017 a Prado Karton, mais antiga fábrica de produção de papel no país, com alvará atribuído pelo Marquês de Pombal no século XVIII. É aqui que irá nascer um empreendimento com características únicas, para desenvolver projetos em várias áreas de negócios, indústria, comércio, serviços e armazém, produção de energias verdes e turismo natura. O Centro de Negócios, Logística e Serviços do Prado será composto por um conjunto de edifícios com uma área coberta de aproximadamente 50.000 m2, com apoio de portaria, sistema de segurança e vídeo-vigilância instalado e com condições para funcionamento em condomínio privado. Os edifícios podem ser destinados à indústria, comércio, serviços e armazém, com áreas entre 600 e 5 mil metros quadrados, rés-do-chão, 1º e 2º pisos. Outra caraterística única do empreendimento é a possibilidade de produção de energias verdes dentro do complexo, com central hidro-eléctrica própria, alimentada por canal a partir de açude no Rio Nabão e a instalação de painéis fotovoltaicos na cobertura dos edifícios. Esta unidade situa-se numa zona que também reúne todas as condições para a produção de hidrogénio verde. Todas estas potencialidades possibilitam a criação de uma CER - Comunidade de Energia Renovável, com a disponibilização de energia a preços mais competitivos para consumo no complexo. Está prevista ainda a criação de um edifício multi-serviços com auditório, cafetaria, salas polivalentes para escritórios, formação e outros serviços. Para além das áreas destinadas ao Centro de Negócios, Logística e Serviços do Prado, está também contemplado um conjunto de edifícios destinado a turismo natura: o Rio Nabão ladeia toda a propriedade. Destaque também para a floresta com árvores centenárias, que se desenvolve por mais de um quilometro nas margens do Rio Nabão e para a antiga capela. Uma área destinada a turismo Natura4km da cidade de Tomar 30km do eixo Leiria/Fátima 140km da cidade de Lisboa 195km da cidade do Porto 500km de Madrid 420km de Sevilha
AMI: 23350
Ref. Externa: 2276-898
Id: 906075
Inicie sessão para guardar este imóvel e aceder à sua lista de favoritos em qualquer dispositivo.
7.000.000 €
Área bruta : 39792 m²
Centro de Negócios e logística da Prado e Turismo Prado Nature no centro do país a poucos minutos da cidade de Tomar. Uma propriedade com aproximadamente 12 HECTARES, um sítio com características únicas, com viabilidade para desenvolver várias áreas de negócio, indústria, comércio, serviços e armazéns. A propriedade é composta por um conjunto de edifícios industriais e de habitação, com uma área coberta aproximadamente 50.000m2, portaria sistema de vídeo vigilância instalados com condições para funcionar em condomínio privado excelentes condições para a produção de ENERGIAS VERDES através de central hidroelétrica, alimentada por canal de açude do RIO NABÃO e também por painéis fotovoltaicos. Ainda com excelentes condições para a produção de hidrogénio verde. O empreendimento é dotado de uma conduta de GÁS NATURAL ligada à rede pública, sendo uma mais valia para qualquer tipo de indústria e produção de energia. Está projetado a criação de um edifício multi-serviços, com auditório, cafetaria, salas polivalentes para escritórios, formação e outros serviços. O RIO NABÃO ladeia toda a propriedade, rodeada de uma densa floresta com árvores centenárias, antiga capela, um ambiente único. Este conjunto de imóveis está inserido num terreno com uma área aproximada de 12 hectares situado nas margens Rio Nabão, sendo servido por açude com tomada de água junto à propriedade. Esta tomada de água alimenta a unidade industrial através de um canal que atravessa a mesma, incluindo uma hídrica que se encontra dentro do imóvel. Está também dotado de infraestrutura de gás ligada à rede nacional. É neste espaço que se projeta a criação do futuro Centro de Negócios, Logística e Serviços do Prado. Este empreendimento dispõe de uma localização privilegiada no centro do país, a 1h30 de distância de Lisboa e do Porto, sendo servido pela autoestrada A13 e pelo IC9. Neste espaço funcionou até 2017 a Prado Karton, mais antiga fábrica de produção de papel no país, com alvará atribuído pelo Marquês de Pombal no século XVIII. É aqui que irá nascer um empreendimento com características únicas, para desenvolver projetos em várias áreas de negócios, indústria, comércio, serviços e armazém, produção de energias verdes e turismo natura. O Centro de Negócios, Logística e Serviços do Prado será composto por um conjunto de edifícios com uma área coberta de aproximadamente 50.000 m2, com apoio de portaria, sistema de segurança e vídeo-vigilância instalado e com condições para funcionamento em condomínio privado. Os edifícios podem ser destinados à indústria, comércio, serviços e armazém, com áreas entre 600 e 5 mil metros quadrados, rés-do-chão, 1º e 2º pisos. Outra caraterística única do empreendimento é a possibilidade de produção de energias verdes dentro do complexo, com central hidro-eléctrica própria, alimentada por canal a partir de açude no Rio Nabão e a instalação de painéis fotovoltaicos na cobertura dos edifícios. Esta unidade situa-se numa zona que também reúne todas as condições para a produção de hidrogénio verde. Todas estas potencialidades possibilitam a criação de uma CER - Comunidade de Energia Renovável, com a disponibilização de energia a preços mais competitivos para consumo no complexo. Está prevista ainda a criação de um edifício multi-serviços com auditório, cafetaria, salas polivalentes para escritórios, formação e outros serviços. Para além das áreas destinadas ao Centro de Negócios, Logística e Serviços do Prado, está também contemplado um conjunto de edifícios destinado a turismo natura: o Rio Nabão ladeia toda a propriedade. Destaque também para a floresta com árvores centenárias, que se desenvolve por mais de um quilometro nas margens do Rio Nabão e para a antiga capela. Uma área destinada a turismo Natura4km da cidade de Tomar 30km do eixo Leiria/Fátima 140km da cidade de Lisboa 195km da cidade do Porto 500km de Madrid 420km de Sevilha
AMI: 23350
Ref. Externa: 2276-898
Id: 797050
Inicie sessão para guardar este imóvel e aceder à sua lista de favoritos em qualquer dispositivo.
Este agente é especialista nesta zona:
Inicie sessão para ocultar este imóvel das suas pesquisas e manter a sua lista de resultados organizada.
Guardar favoritos
Este imóvel foi guardados nos seus favoritos com sucesso.
Para poder guardar pesquisa deverá ter a sua sessão iniciada.
Caso não tenha uma conta, deverá criar uma.
A sua pesquisa foi guardada com sucesso!
© Copyright 2023 | CASACERTA. All rights reserved
Este site utiliza cookies. Ao navegar no site estará a consentir a sua utilização.
Para mais informações sobre os cookies pode consultar a
política de privacidade.