Filtros
0 · 119 resultados880.000 €
4 Quartos
4 WCs
Área bruta : 394 m²
Na cidade berço de Portugal, inserido no perímetro do Parque da Cidade de Guimarães, um lote de terreno para construção de habitação unifamiliar isolada do tipo T4. Em zona de prestígio no centro urbano de Guimarães. Com acesso directo único à mais importante área verde, desporto e de actividades ao ar-livre, o Parque da Cidade O lote com 883,50m2, tem já em construção uma moradia T4, de dois pisos, sendo que o projecto prevê a construção de espaço de habitação com uma área total construída de 394,5m2, sendo 140,7m2 no piso térreo, 190,6m2 no piso superior e ainda 63,2m2 de anexo. O jardim, com 400m2, orientado a poente e de frente para o Parque da Cidade acolhe uma piscina com 35m2. A estrutura de betão armado está já edificada e parte da alvenaria (2024). A licença de construção encontra-se válida para prosseguimento imediato da obra. A venda da moradia é efectuada no seu estado actual. A localização beneficia de excelentes acessos rodoviários. Nas imediações encontram-se várias Escolas, o Complexo Desportivo do Vitória Sport Clube, a Academia de Ginástica da cidade, as futuras instalações de um complexo de piscinas do futuro Campus da Justiça. O actual projecto de arquitectura prevê um piso superior destinado a áreas privativas composto por quatro suites, duas delas com instalação sanitária dedicada. Para o piso inferior foram desenhadas as áreas de serviço e sociais, nomeadamente a sala de estar e a sala de jantar, espaços amplos e flexíveis, assim como um escritório orientado ao pátio posterior. A área de serviço é composta por cozinha, copa, lavandaria e garagem exterior e coberta com acesso directo ao interior da habitação. A grandes fachadas envidraçadas potenciam a vista sobre o Parque da Cidade e a envolvente e, simultaneamente, as linhas simples e cobertura inclinada garantem a privacidade dos ocupantes das várias divisões da moradia. Está previsto um espaço destinado a um ascensor, caso se pretenda instalar no futuro este equipamento.
AMI: 14355
Ref. Externa: MM444/24GUI/AM
Id: 1844643
Inicie sessão para guardar este imóvel e aceder à sua lista de favoritos em qualquer dispositivo.
525.000 €
2 Quartos
Área útil : 146 m²
Apartamento T2 de Luxo em Construção – Parque da Cidade de GuimarãesDescubra este exclusivo apartamento em construção, situado numa das zonas mais nobres e privilegiadas de Guimarães, com vistas deslumbrantes para o Parque da Cidade e o Castelo.Projetado com um estilo contemporâneo e acabamentos de elevada qualidade, este imóvel é ideal para famílias que valorizam tranquilidade, conforto e proximidade ao centro da cidade.Principais características:Hall de entrada acolhedorSala ampla de estar e jantar em open spaceCozinha moderna mobilada e totalmente equipada (forno, placa vitrocerâmica, exaustor, frigorífico e máquina de lavar loiça)Acesso a varanda com excelente exposição solarLavandaria independenteWC de serviçoHall dos quartos com roupeiros embutidosWC completo com base de ducheQuartos com roupeiros embutidos ou closetTipologia T3 com até 4 casas de banhoConforto e tecnologia:Estrutura em betão armado com fachada ventiladaCaixilharia com corte térmico (Cortizo)Estores elétricos e brisa solarPorta de segurança e vídeo porteiroSistema de ventilação mecânica (VMC)Ar condicionado por condutasBomba de calor para águas quentes sanitáriasPiso radiante elétrico nas casas de banhoEquipamentos elétricos gama premiumExtras:2 lugares de garagemArrumos fechadosPrédio com elevadorClasse energética AÁrea: 130 m² Localização: A poucos minutos do centro de GuimarãesSe procura qualidade de vida, vistas abertas e uma localização de excelência, este é o imóvel ideal para si.Agende já a sua visita!Predimed Imobiliária, Mediação Imobiliária, Lda.Avenida Brasil 43, 12º Andar, 1700-062 LisboaLicença AMI nº 22503Pessoa Coletiva nº 517 239 345Seguro Responsabilidade Civil: Nº de Apólice RC65379424 Fidelidade Características: Acesso para Deficientes;Arrecadação;Estacionamento Ar-Livre;Estacionamento Coberto;Salão de Festas;Terraço;Tecto Falso;Varanda;Suite;Carregamento de carros elétricos;Ar Condicionado;Aspiração Central;Bomba de calor;Combinado;Cozinha equipada;Domótica;Elevador;Estores Eléctricos;Exaustor;Forno;Isolamento Térmico;Máquina de Lavar Louça;Máquina de Lavar Roupa;Microondas;Piso Radiante;Placa de Indução;Portão Eléctrico;Roupeiros;Toalheiros Aquecidos;Vídeo Porteiro;Vidros Duplos;Áreas de Lazer Infantil;Árvores de Frutos;Auto-Estrada;Banco;Centro da Cidade;Escola;Farmácia;Hipermercado;Hospital;Posto de Combustível;Transportes Públicos;Vista para Campo;Vista para Cidade;Zona Comercial
AMI: 13558
Ref. Externa: 060202
Id: 1835072
Inicie sessão para guardar este imóvel e aceder à sua lista de favoritos em qualquer dispositivo.
525.000 €
2 Quartos
2 WCs
Área útil : 146 m²
Apartamento T2 de Luxo em Construção - Parque da Cidade de GuimarãesDescubra este exclusivo apartamento em construção, situado numa das zonas mais nobres e privilegiadas de Guimarães, com vistas deslumbrantes para o Parque da Cidade e o Castelo.Projetado com um estilo contemporâneo e acabamentos de elevada qualidade, este imóvel é ideal para famílias que valorizam tranquilidade, conforto e proximidade ao centro da cidade.Principais características:Hall de entrada acolhedorSala ampla de estar e jantar em open spaceCozinha moderna mobilada e totalmente equipada (forno, placa vitrocerâmica, exaustor, frigorífico e máquina de lavar loiça)Acesso a varanda com excelente exposição solarLavandaria independenteWC de serviçoHall dos quartos com roupeiros embutidosWC completo com base de ducheQuartos com roupeiros embutidos ou closetTipologia T3 com até 4 casas de banhoConforto e tecnologia:Estrutura em betão armado com fachada ventiladaCaixilharia com corte térmico (Cortizo)Estores elétricos e brisa solarPorta de segurança e vídeo porteiroSistema de ventilação mecânica (VMC)Ar condicionado por condutasBomba de calor para águas quentes sanitáriasPiso radiante elétrico nas casas de banhoEquipamentos elétricos gama premiumExtras:2 lugares de garagemArrumos fechadosPrédio com elevadorClasse energética AÁrea: 130m² Localização: A poucos minutos do centro de GuimarãesSe procura qualidade de vida, vistas abertas e uma localização de excelência, este é o imóvel ideal para si.Agende já a sua visita!
AMI: 22503
Ref. Externa: PD-060202
Id: 1830506
Inicie sessão para guardar este imóvel e aceder à sua lista de favoritos em qualquer dispositivo.
415.000 €
4 Quartos
4 WCs
Área bruta : 174 m²
Situado na Costa, Guimarães, junto ao Parque da Cidade, este moderno apartamento oferece uma localização privilegiada e tranquila. O imóvel dispõe de duas suites com casa de banho privativa e dois quartos, além de uma sala e cozinha em open space, promovendo um ambiente espaçoso e arejado. A cozinha está equipada com mobiliário lacado e a sala oferece espaço para uma área de jantar e zona de estar. O apartamento inclui ainda uma garagem fechada para dois carros. Os acabamentos são de alta qualidade, com pisos em laminado flutuante ou cerâmica e janelas com bom isolamento térmico e acústico. A localização oferece fácil acesso a serviços essenciais e ao centro histórico de Guimarães, ideal para quem procura conforto e conveniência. Campanha: Na compra deste imóvel, oferecemos uma semana de férias na Madeira, Açores, Algarve ou norte de Portugal.
AMI: 824
Ref. Externa: CB-9110_B4_F
Id: 1829592
Inicie sessão para guardar este imóvel e aceder à sua lista de favoritos em qualquer dispositivo.
415.000 €
4 Quartos
4 WCs
Área bruta : 174 m²
Situado na Costa, Guimarães, junto ao Parque da Cidade, este moderno apartamento oferece uma localização privilegiada e tranquila. O imóvel dispõe de duas suites com casa de banho privativa e dois quartos, além de uma sala e cozinha em open space, promovendo um ambiente espaçoso e arejado. A cozinha está equipada com mobiliário lacado e a sala oferece espaço para uma área de jantar e zona de estar. O apartamento inclui ainda uma garagem fechada para dois carros. Os acabamentos são de alta qualidade, com pisos em laminado flutuante ou cerâmica e janelas com bom isolamento térmico e acústico. A localização oferece fácil acesso a serviços essenciais e ao centro histórico de Guimarães, ideal para quem procura conforto e conveniência. Campanha: Na compra deste imóvel, oferecemos uma semana de férias na Madeira, Açores, Algarve ou norte de Portugal.
AMI: 824
Ref. Externa: CB-9110_B3_H
Id: 1829593
Inicie sessão para guardar este imóvel e aceder à sua lista de favoritos em qualquer dispositivo.
1.300.000 €
3 Quartos
Área bruta : 451 m²
Esta impressionante moradia de luxo em Guimarães é uma verdadeira obra-prima da arquitetura contemporânea, com um design único e uma localização privilegiada. Com três quartos espaçosos e cinco casas de banho elegantes, esta propriedade oferece todo o conforto e privacidade que procura. Com uma área total de 487 metros quadrados, esta nova moradia conta com um amplo terraço, garagem para dois carros, aquecimento central, e está totalmente mobilada. O seu design moderno inclui um sistema de segurança, ar condicionado, uma cave com adega de vinhos e uma vista panorâmica para a cidade. No interior, encontrará uma cozinha equipada com eletrodomésticos modernos, um sistema de música central, e um quarto principal com 2 closet e casa de banho privativa. 2 suites com closet e guest room. Além disso, a moradia possui uma sala de estar ensolarada com vistas deslumbrantes da cidade e da piscina. Localizada numa zona tranquila e central, esta propriedade oferece um ambiente relaxante e luxuoso. Com diversos extras, como sistema de videovigilância, painéis solares, domótica, e uma churrasqueira, esta moradia é o lugar ideal para quem procura o melhor em termos de conforto e exclusividade. Não perca esta oportunidade única de adquirir uma propriedade de sonho em Guimarães!
AMI: 18810
Ref. Externa: DSPBRAGAMP129
Id: 1827215
Inicie sessão para guardar este imóvel e aceder à sua lista de favoritos em qualquer dispositivo.
350.000 €
3 Quartos
3 WCs
Área bruta : 234 m²
Moradia Geminada T3 com Vista Deslumbrante sobre Guimarães Apresentamos esta fantástica moradia geminada T3, situada na privilegiada encosta da Penha, onde poderá desfrutar de uma vista verdadeiramente espetacular sobre a cidade de Guimarães. Com uma excelente exposição solar ao longo de todo o dia, esta moradia destaca-se pela sua luminosidade natural e ambiente acolhedor, ideal para quem valoriza conforto e tranquilidade sem abdicar da proximidade ao centro da cidade. Principais características: * Tipologia T3 * Localização exclusiva e tranquila * Vista panorâmica sobre a cidade * Excelente exposição solar * Inserida numa zona de grande valorização Se procura uma casa onde a paisagem e a qualidade de vida se encontram, esta é a oportunidade perfeita. Marque já a sua visita! (telefone) / (telefone)
AMI: 9730
Ref. Externa: 4616
Id: 1814299
Inicie sessão para guardar este imóvel e aceder à sua lista de favoritos em qualquer dispositivo.
561.750 €
4 Quartos
4 WCs
Área bruta : 225 m²
Exelente Apartamento de tipologia T4 Projeto de autoria da Arquiteta Isabel Saavedra, junto ao parque da cidade, Arquitetura com imensa luz, com tons Dourados e castanhos prolongando as cores da natureza; varandas recuados e muita privacidade e conforto; Mapa Acabamentos: - Materiais de alta qualidade, e conforto; - Flutuante na tonalidade Carvalho natural - FINSA AC6; - Armários lacados; - Móveis de cozinha equipados com eletrodomésticos Marca BOSCH; - Climatização com Ar Condicionado; - Sistema Blackout motorizado - Open Space; - Sistema de aquecimentos águas através Bomba Calor; - Sistema Domótica, vídeo porteiro conectado; Garagem subterrânea, com lugares abertos e fechados, carregamento Elétrico e local para estacionamento de bicicletas. As visitas ao Mil Cento e Onze decorrem exclusivamente mediante marcação prévia, assegurando, deste modo, um acompanhamento personalizado e dedicado. Um projeto consciente do lugar onde se insere. Agende a sua Visita!
AMI: 9730
Ref. Externa: 4617
Id: 1814300
Inicie sessão para guardar este imóvel e aceder à sua lista de favoritos em qualquer dispositivo.
561.750 €
4 Quartos
Área bruta : 216 m²
Apartamentos T4 novos em GuimarãesDesde: 561.750 € a 572.450 €Área Privativa + Varandas desde: 216.42 m2 e 224.30 m2Os apartamentos T4 foram pensados para diferentes formas de viver, o Mil Cento e Onze apresenta uma proposta onde o conforto, a funcionalidade e a qualidade construtiva assumem um papel central.A construção tem como base uma elevada qualidade ao nível dos matérias e acabamentos. Já pode comprar o seu apartamento e personalizá-lo de acordo com o seu estilo de vida, criando cenários únicos e exclusivos.A configuração de cada residência valoriza a entrada de luz natural e reforça a comunicação entre espaços, criando uma sensação de harmonia.Os apartamentos apresentam características que garantem máximo conforto para as famílias, como:- Móveis de cozinha equipados com eletrodomésticos BOSCH;- Pavimento flutuante carvalho natural;- Sistema Domótica;- Armários lacados;- Tetos falsos;- Louças suspensas;- Base de duche;- Ar condicionado em todos os apartamentos;- Bomba de calor;- Sanca iluminada com fita LED;- Sistema Blackout motorizado- Open Space;- Porta segurança blindada DIERRE;- Elevador;- Vídeo porteiro;- Vidros duplos;- Caixilharia em alumínio CORTIZO;- Garagem subterrânea com lugares de estacionamento abertos e fechados;- Infraestruturas de carregamento elétrico;- Um local de estacionamento para bicicletas:- Certificação Energética A+Os avanços e recuos das varandas criam movimento e equilíbrio, enquanto a organização dos espaços interiores privilegia a luz natural, a privacidade e a fluidez, dando origem a habitações confortáveis, funcionais e duráveis.Beneficiando da proximidade ao Parque da Cidade, o edifício Mil Cento e Onze insere-se com elegância numa das áreas verdes mais emblemáticas de Guimarães.Esta localização oferece momentos de lazer e contemplação, estabelecendo uma relação com a natureza e valorizando o bem-estar, onde os percursos diários se tornam momentos agradáveis.Todos os elementos e informações mencionados neste documento possuem um carácter meramente indicativo. Acresce que todas as informações apresentadas, designadamente as informações relativas a áreas, materiais e acabamentos, poderão ser ajustadas/alteradas no decurso do processo construtivo, bem como sofrer eventuais ajustes, em função do desenvolvimento dos projetos de arquitetura.As visitas ao Mil Cento e Onze decorrem exclusivamente mediante marcação prévia, assegurando, deste modo, um acompanhamento personalizado e dedicado.Conclusão prevista para o 1º Trimestre de 2028.Contacte-nos para mais informações.Somos Intermediários de Crédito registado junto do Banco de Portugal sob o nº 2436, agilizamos todo o processo de financiamento por si, sem qualquer custo e sem ter que se deslocar aos bancos, de forma imparcial e sempre recolhendo as melhores propostas de mercado.Porque visitar a Prestiti Imobiliária?A Prestiti Imobiliária está sediada em Guimarães á mais de 20 anos, na mais bela cidade portuguesa, quem caminha pelas ruas e passa pelos monumentos tem a sensação de respirar história, é por isso que foi tombada como Patrimônio Mundial da Unesco 2001, designada Capital Europeia da Cultura em 2012 e Cidade Europeia do Desporto em 2013, o que sem dúvida, torna Guimarães uma excelente escolha para quem pretende morar aqui, é muito fácil apaixonar-se pela a cidade e ter qualidade de vida.A Prestiti Imobiliária preocupa-se com a felicidade do cliente todos os dias do Ano.O cliente connosco tem um atendimento baseado na ética, seriedade, competência, eficácia e garantimos que da nossa parte existe segurança e responsabilidade em tudo em que nos comprometemos e pretendemos que nossa amizade dure para sempre.Paixão a Comercializar Imóveis!
AMI: 6575
Ref. Externa: 3257T4
Id: 1810781
Inicie sessão para guardar este imóvel e aceder à sua lista de favoritos em qualquer dispositivo.
381.100 €
3 Quartos
Área bruta : 146 m²
Apartamentos T3 novos em GuimarãesDesde: 381.100 € a 422.300 €Área Privativa + Varandas desde: 146.70 m2 a 160.50 m2Os apartamentos T3 foram pensados para diferentes formas de viver, o Mil Cento e Onze apresenta uma proposta onde o conforto, a funcionalidade e a qualidade construtiva assumem um papel central.A construção tem como base uma elevada qualidade ao nível dos matérias e acabamentos. Já pode comprar o seu apartamento e personalizá-lo de acordo com o seu estilo de vida, criando cenários únicos e exclusivos.A configuração de cada residência valoriza a entrada de luz natural e reforça a comunicação entre espaços, criando uma sensação de harmonia.Os apartamentos apresentam características que garantem máximo conforto para as famílias, como:- Móveis de cozinha equipados com eletrodomésticos BOSCH;- Pavimento flutuante carvalho natural;- Sistema Domótica;- Armários lacados;- Tetos falsos;- Louças suspensas;- Base de duche;- Ar condicionado em todos os apartamentos;- Bomba de calor;- Sanca iluminada com fita LED;- Sistema Blackout motorizado- Open Space;- Porta segurança blindada DIERRE;- Elevador;- Vídeo porteiro;- Vidros duplos;- Caixilharia em alumínio CORTIZO;- Garagem subterrânea com lugares de estacionamento abertos e fechados;- Infraestruturas de carregamento elétrico;- Um local de estacionamento para bicicletas:- Certificação Energética A (Fração AF) e A+ (Frações K/L/R/Y)Os avanços e recuos das varandas criam movimento e equilíbrio, enquanto a organização dos espaços interiores privilegia a luz natural, a privacidade e a fluidez, dando origem a habitações confortáveis, funcionais e duráveis.Beneficiando da proximidade ao Parque da Cidade, o edifício Mil Cento e Onze insere-se com elegância numa das áreas verdes mais emblemáticas de Guimarães.Esta localização oferece momentos de lazer e contemplação, estabelecendo uma relação com a natureza e valorizando o bem-estar, onde os percursos diários se tornam momentos agradáveis.Todos os elementos e informações mencionados neste documento possuem um carácter meramente indicativo. Acresce que todas as informações apresentadas, designadamente as informações relativas a áreas, materiais e acabamentos, poderão ser ajustadas/alteradas no decurso do processo construtivo, bem como sofrer eventuais ajustes, em função do desenvolvimento dos projetos de arquitetura.As visitas ao Mil Cento e Onze decorrem exclusivamente mediante marcação prévia, assegurando, deste modo, um acompanhamento personalizado e dedicado.Conclusão prevista para o 1º Trimestre de 2028.Contacte-nos para mais informações.Somos Intermediários de Crédito registado junto do Banco de Portugal sob o nº 2436, agilizamos todo o processo de financiamento por si, sem qualquer custo e sem ter que se deslocar aos bancos, de forma imparcial e sempre recolhendo as melhores propostas de mercado.Porque visitar a Prestiti Imobiliária?A Prestiti Imobiliária está sediada em Guimarães á mais de 20 anos, na mais bela cidade portuguesa, quem caminha pelas ruas e passa pelos monumentos tem a sensação de respirar história, é por isso que foi tombada como Patrimônio Mundial da Unesco 2001, designada Capital Europeia da Cultura em 2012 e Cidade Europeia do Desporto em 2013, o que sem dúvida, torna Guimarães uma excelente escolha para quem pretende morar aqui, é muito fácil apaixonar-se pela a cidade e ter qualidade de vida.A Prestiti Imobiliária preocupa-se com a felicidade do cliente todos os dias do Ano.O cliente connosco tem um atendimento baseado na ética, seriedade, competência, eficácia e garantimos que da nossa parte existe segurança e responsabilidade em tudo em que nos comprometemos e pretendemos que nossa amizade dure para sempre.Paixão a Comercializar Imóveis!
AMI: 6575
Ref. Externa: 3257T3
Id: 1810782
Inicie sessão para guardar este imóvel e aceder à sua lista de favoritos em qualquer dispositivo.
Profissionais que conhecem esta zona a fundo — contacte-os para uma avaliação personalizada.
415.000 €
4 Quartos
3 WCs
Área de terreno : 156 m²
O Vess Living é um empreendimento único, pensado para quem procura um equilíbrio perfeito entre modernidade, conforto e natureza. Localizado na Costa, em Guimarães, este projeto oferece uma qualidade de vida ímpar, rodeado por espaços verdes e a poucos minutos do centro histórico da cidade. Destaca-se pela sua arquitetura moderna e pelas suas áreas comuns que incluem um ginásio, piscina e jardins privativos, proporcionando um estilo de vida exclusivo e tranquilo. Constituído por 39 apartamentos, concebidos para proporcionar um estilo de vida saudável, equilibrado e em perfeita harmonia com a natureza. Tipologias Disponíveis: O Vess Living dispõe de apartamentos modernos nas tipologias T1, T2, T3 e T4, todos com garagem e varanda privativa. Independentemente da sua escolha, poderá contar com espaços amplos, bem iluminados e desenhados para maximizar o conforto e a funcionalidade. Ambiente Natural: O empreendimento está rodeado por vastos espaços verdes e majestosas árvores, criando um ambiente sereno e natural que convida à reconexão com a natureza. Ideal para quem aprecia a tranquilidade, sem abdicar das comodidades da vida urbana. Estilo de Vida Ativo: Para os amantes da atividade física e da vida ao ar livre, o Vess Living oferece fácil acesso a trilhos para caminhadas, ciclovias, e locais ideais para correr e andar de bicicleta. Aqui, viver é sinónimo de bem-estar e saúde. Lazer e Recreação: A localização privilegiada permite ainda desfrutar de várias opções de lazer nas proximidades, como o Parque da Cidade, Skate Park, Street Workout, Parque Desportivo da Juni, Parque da Penha, Minigolf, trilhos, grutas e até o teleférico. Há sempre algo para fazer, para todas as idades e gostos. Proximidade Urbana: A 4 minutos do centro histórico de Guimarães, o Vess Living proporciona a tranquilidade de um ambiente natural, sem abdicar da proximidade às infraestruturas urbanas. Com fácil acesso a Braga (28 minutos) e ao Porto (50 minutos), este é o local ideal para quem valoriza a proximidade de grandes centros urbanos. Comodidades e Infraestruturas: • Espaços Verdes: Relaxe e recarregue energias nos jardins e áreas de lazer do empreendimento. • Facilidade de Acesso: O Vess Living está estrategicamente localizado para garantir o acesso rápido a espaços comerciais, restaurantes, supermercados e outros serviços essenciais. Se procura um estilo de vida que combine conforto, natureza e proximidade urbana, o Vess Living é o local perfeito para chamar de lar. Não perca a oportunidade de viver num dos empreendimentos mais exclusivos de Guimarães! Para além deste imóvel, dispomos de mais imóveis que de certeza encaixam naquilo que pretende. Venha conhecer este espaço de sonho!
AMI: 7142
Ref. Externa: BRG/00089
Id: 1802843
Inicie sessão para guardar este imóvel e aceder à sua lista de favoritos em qualquer dispositivo.
415.000 €
4 Quartos
3 WCs
Área bruta : 156 m²
Apartamento T4 inserido num edifício com cinco pisos O Vess Living engloba a construção de três edifícios, assinalando uma nova etapa do loteamento da Quinta das Vessadas, em Guimarães. O Grupo Acrescentar vem revitalizar o projeto existente e disponibilizar 39 apartamentos com tipologias T1, T2,T3 e T4. O Vess Living encontra-se numa área deslumbrante que lhe permitirá viver num ambiente equilibrado, ativo e saudável. Este empreendimento surge numa zona alta da cidade de Guimarães, na Rua de Vessadas, rodeado de um vasto manto verde e a um passo do Parque da Cidade, onde encontra espaços ajardinados e percursos pedonais. O contacto com a natureza é complementado com todas as comodidades da vida na cidade, assegurando um rápido acesso ao centro e a várias infraestruturas e valências importantes para o seu dia a dia, como espaços comerciais, restaurantes, supermercados, entre outras. Centro Histórico de Guimarães fica à 4 minutos 28 minutos de Braga e 50 minutos do Porto. O Vess Living é um convite à reconexão com a natureza, promovendo um estilo de vida saudável e equilibrado. Rodeado de espaços verdes e árvores majestosas, este empreendimento encoraja a desacelerar, parar e respirar, valorizando cada momento do seu dia. Priorize o seu bem-estar e tenha acesso a espaços ao ar livre para relaxar e recarregar as energias. Caminhar, correr ou andar de bicicleta são atividades que podem, facilmente, fazer parte do seu dia a dia. Parque da Cidade Skate Park Street workout Ciclovias Parque desportivo da Juni Parque da Penha Minigolf Trilhos Grutas Teleférico Data de conclusão 11/2026
AMI: 12689
Ref. Externa: APTADF027
Id: 1796436
Inicie sessão para guardar este imóvel e aceder à sua lista de favoritos em qualquer dispositivo.
415.000 €
4 Quartos
3 WCs
Área de terreno : 156 m²
O Vess Living é um empreendimento único, pensado para quem procura um equilíbrio perfeito entre modernidade, conforto e natureza. Localizado na Costa, em Guimarães, este projeto oferece uma qualidade de vida ímpar, rodeado por espaços verdes e a poucos minutos do centro histórico da cidade. Destaca-se pela sua arquitetura moderna e pelas suas áreas comuns que incluem um ginásio, piscina e jardins privativos, proporcionando um estilo de vida exclusivo e tranquilo. Constituído por 39 apartamentos, concebidos para proporcionar um estilo de vida saudável, equilibrado e em perfeita harmonia com a natureza. Tipologias Disponíveis: O Vess Living dispõe de apartamentos modernos nas tipologias T1, T2, T3 e T4, todos com garagem e varanda privativa. Independentemente da sua escolha, poderá contar com espaços amplos, bem iluminados e desenhados para maximizar o conforto e a funcionalidade. Ambiente Natural: O empreendimento está rodeado por vastos espaços verdes e majestosas árvores, criando um ambiente sereno e natural que convida à reconexão com a natureza. Ideal para quem aprecia a tranquilidade, sem abdicar das comodidades da vida urbana. Estilo de Vida Ativo: Para os amantes da atividade física e da vida ao ar livre, o Vess Living oferece fácil acesso a trilhos para caminhadas, ciclovias, e locais ideais para correr e andar de bicicleta. Aqui, viver é sinónimo de bem-estar e saúde. Lazer e Recreação: A localização privilegiada permite ainda desfrutar de várias opções de lazer nas proximidades, como o Parque da Cidade, Skate Park, Street Workout, Parque Desportivo da Juni, Parque da Penha, Minigolf, trilhos, grutas e até o teleférico. Há sempre algo para fazer, para todas as idades e gostos. Proximidade Urbana: A 4 minutos do centro histórico de Guimarães, o Vess Living proporciona a tranquilidade de um ambiente natural, sem abdicar da proximidade às infraestruturas urbanas. Com fácil acesso a Braga (28 minutos) e ao Porto (50 minutos), este é o local ideal para quem valoriza a proximidade de grandes centros urbanos. Comodidades e Infraestruturas: • Espaços Verdes: Relaxe e recarregue energias nos jardins e áreas de lazer do empreendimento. • Facilidade de Acesso: O Vess Living está estrategicamente localizado para garantir o acesso rápido a espaços comerciais, restaurantes, supermercados e outros serviços essenciais. Se procura um estilo de vida que combine conforto, natureza e proximidade urbana, o Vess Living é o local perfeito para chamar de lar. Não perca a oportunidade de viver num dos empreendimentos mais exclusivos de Guimarães! Para além deste imóvel, dispomos de mais imóveis que de certeza encaixam naquilo que pretende. Venha conhecer este espaço de sonho!
AMI: 7142
Ref. Externa: BRG/00084
Id: 1791059
Inicie sessão para guardar este imóvel e aceder à sua lista de favoritos em qualquer dispositivo.
561.750 €
4 Quartos
Área bruta : 224 m²
Apartamento T4 no Empreendimento 1111 – Guimarães | Desde 561.750€Apresentamos este moderno apartamento T4 inserido no exclusivo empreendimento 1111, localizado em Guimarães, ideal para quem procura design contemporâneo, conforto e qualidade de construção superior.Com uma área útil de 164,20 m² e área bruta privativa de 224,30 m², este imóvel destaca-se pelas suas linhas modernas, excelente organização de espaços e elevada luminosidade natural.A fração dispõe de varanda com churrasqueira, proporcionando uma ligação perfeita entre interior e exterior, ideal para momentos de lazer e convívio.Características principais: Tipologia T4 2 suítes + 2 quartos 4 casas de banho Área útil: 164,20 m² Área bruta privativa: 224,30 m² Varanda com churrasqueira 2 lugares de garagem Layout moderno e funcionalDestaques de construção e acabamentos: Fachada contemporânea com painéis compósitos STACBOND Bronze Metallic e sistema ETICS Caixilharia em alumínio CORTIZO com acabamento RAL 8017 e vidro duplo Guardas metálicas com acabamento premium Pavimentos flutuantes em Carvalho Natural FINSA AC6 Tetos falsos com iluminação integrada e sancas com LED Carpintarias modernas com rodapés embutidos e armários lacadosCozinha e equipamentos: Cozinha equipada com eletrodomésticos BOSCH Mobiliário lacado com design minimalista e puxadores embutidos Bancadas em HIMACS (ou equivalente) Torneiras monocomando BRUMA com chuveiro extensívelInstalações sanitárias: Revestimentos cerâmicos REVIGRÉS Travertino Louças suspensas com sistema OLI Bases de duche MOOVLUX (ou equivalente) Torneiras embutidas BRUMA com design contemporâneoConforto e tecnologia: Sistema de ar condicionado Bomba de calor para águas quentes sanitárias Sistema de domótica e videoporteiro conectado Estores interiores blackout motorizados Iluminação LED integrada Infraestrutura para carregamento de veículos elétricosZonas comuns e envolvente: Átrio moderno com acabamentos premium (REVIGRÉS e FINSA) Elevadores duplos SCHMITT + SOHN (ou equivalente) Estacionamento com acabamentos funcionais e preparados para mobilidade elétricaInserido numa localização estratégica em Guimarães, este apartamento beneficia de bons acessos, proximidade a serviços, comércio e zonas centrais, tornando-se ideal tanto para habitação própria como para investimento.💰 Preços desde 561.750€🏗️ Prazos de Construção:• Início da obra: 1º Trimestre de 2026• Conclusão prevista: 2028👉 Descubra o empreendimento 1111 – onde design, conforto e tecnologia se unem para criar um novo padrão de habitação em Guimarães. Referência: ASBR26018Por sermos intermediários de crédito devidamente autorizados pelo Banco de Portugal (Reg. 2736) fazemos a gestão de todo o seu processo de financiamento, sempre com as melhores soluções de mercado.Porquê escolher a AS Imobiliária?Com mais de 18 anos no ramo imobiliário e milhares de famílias felizes, dispomos de 10 agências estrategicamente localizadas, para o servir com proximidade, corresponder à suas expectativas e ajudá-lo a adquirir a sua casa de sonho. Compromisso, Competência e Confiança são os nossos valores que entregamos aos nossos Clientes na hora de comprar, arrendar ou vender o seu imóvel.A nossa prioridade é a sua Felicidade!Na AS Imobiliária somos apaixonados por vender casas!Especialistas imobiliários em Vizela ; Guimarães ; Felgueiras ; Lousada ; Santo Tirso ; Porto ; Braga ; Trofa; Lisboa ; Fafe
AMI: 13249
Ref. Externa: ASBR26018
Id: 1789772
Inicie sessão para guardar este imóvel e aceder à sua lista de favoritos em qualquer dispositivo.
381.100 €
3 Quartos
Área bruta : 146 m²
Apartamento T3 no Empreendimento 1111 – Guimarães | Desde 381.100€Apresentamos este moderno apartamento T3 inserido no exclusivo empreendimento 1111, localizado em Guimarães, ideal para quem procura design contemporâneo, conforto e qualidade de construção superior.Com uma área útil de 120 m² e área bruta privativa de 146,70 m², este imóvel destaca-se pelas suas linhas modernas, excelente organização de espaços e elevada luminosidade natural.A fração dispõe de varanda com churrasqueira, proporcionando uma ligação perfeita entre interior e exterior, ideal para momentos de lazer e convívio.Características principais: Tipologia T3 1 suíte + 2 quartos 3 casas de banho Área útil: 120 m² Área bruta privativa: 146,70 m² Varanda com churrasqueira 2 lugares de garagem Layout moderno e funcionalDestaques de construção e acabamentos: Fachada contemporânea com painéis compósitos STACBOND Bronze Metallic e sistema ETICS Caixilharia em alumínio CORTIZO com acabamento RAL 8017 e vidro duplo Guardas metálicas com acabamento premium Pavimentos flutuantes em Carvalho Natural FINSA AC6 Tetos falsos com iluminação integrada e sancas com LED Carpintarias modernas com rodapés embutidos e armários lacadosCozinha e equipamentos: Cozinha equipada com eletrodomésticos BOSCH Mobiliário lacado com design minimalista e puxadores embutidos Bancadas em HIMACS (ou equivalente) Torneiras monocomando BRUMA com chuveiro extensívelInstalações sanitárias: Revestimentos cerâmicos REVIGRÉS Travertino Louças suspensas com sistema OLI Bases de duche MOOVLUX (ou equivalente) Torneiras embutidas BRUMA com design contemporâneoConforto e tecnologia: Sistema de ar condicionado Bomba de calor para águas quentes sanitárias Sistema de domótica e videoporteiro conectado Estores interiores blackout motorizados Iluminação LED integrada Infraestrutura para carregamento de veículos elétricosZonas comuns e envolvente: Átrio moderno com acabamentos premium (REVIGRÉS e FINSA) Elevadores duplos SCHMITT + SOHN (ou equivalente) Estacionamento com acabamentos funcionais e preparados para mobilidade elétricaInserido numa localização estratégica em Guimarães, este apartamento beneficia de bons acessos, proximidade a serviços, comércio e zonas centrais, tornando-se ideal tanto para habitação própria como para investimento.💰 Preços desde 381.100€🏗️ Prazos de Construção:• Início da obra: 1º Trimestre de 2026• Conclusão prevista: 2028👉 Descubra o empreendimento 1111 – onde design, conforto e tecnologia se unem para criar um novo padrão de habitação em Guimarães. Referência: ASBR26017Por sermos intermediários de crédito devidamente autorizados pelo Banco de Portugal (Reg. 2736) fazemos a gestão de todo o seu processo de financiamento, sempre com as melhores soluções de mercado.Porquê escolher a AS Imobiliária?Com mais de 18 anos no ramo imobiliário e milhares de famílias felizes, dispomos de 10 agências estrategicamente localizadas, para o servir com proximidade, corresponder à suas expectativas e ajudá-lo a adquirir a sua casa de sonho. Compromisso, Competência e Confiança são os nossos valores que entregamos aos nossos Clientes na hora de comprar, arrendar ou vender o seu imóvel.A nossa prioridade é a sua Felicidade!Na AS Imobiliária somos apaixonados por vender casas!Especialistas imobiliários em Vizela ; Guimarães ; Felgueiras ; Lousada ; Santo Tirso ; Porto ; Braga ; Trofa; Lisboa ; Fafe
AMI: 13249
Ref. Externa: ASBR26017
Id: 1789771
Inicie sessão para guardar este imóvel e aceder à sua lista de favoritos em qualquer dispositivo.
386.250 €
3 Quartos
3 WCs
Área bruta : 148 m²
Empreendimento Mil Cento e Onze Um projeto de arquitetura contemporânea que combina elegância, privacidade e conforto. Destaca-se pelos recuos de varandas, criando movimento e uma integração harmoniosa com a envolvente, privilegiando a luz natural e o carácter intemporal dos espaços. Tipologias Disponíveis e Preços - T3 – Desde 381.100 a 422.300€ - T4 – Desde 561.750 a 586.360€ Projetado pela arquiteta Isabel Saavedra, e associado ao cuidado e pormenorização da equipa da Três60IMOBILIÁRIA, o Empreendimento Mil Cento e Onze transmite uma abordagem rigorosa com design contemporâneo e elegante com valorização à luz natural. 70 apartamentos (T1 a T4) 8 espaços comerciais 7 pisos de altura Acabamentos: -Espaços comuns com acabamentos de elevada qualidade, incluindo fachada ventilada em painéis compósitos, caixilharia em alumínio CORTIZO, revestimentos cerâmicos REVIGRÉS e detalhes em tons quentes que conferem sofisticação. -O edifício dispõe ainda de elevador duplo, estacionamento em betão polido e soluções funcionais pensadas para o conforto no dia a dia. - Materiais de alta qualidade e equipamentos modernos para máximo conforto e durabilidade. BOSCH, CORTIZO, REVIGRÉS - Ar condicionado em todos os apartamentos - Domótica integrada Garagem subterrânea com infraestrutura completa para mobilidade: - Estacionamento aberto e fechado - Bicicletário - Carregamento elétrico Localizado em Guimarães, junto ao Parque da Cidade, com acesso fácil a serviços e comércio Marque já a sua visita! Pode também contar com a nossa ajuda na Intermediação de Crédito, uma vez que a CALCULACERTADO - Mediação Imobiliária Lda, Lic. AMI 10030, está registada junto do Banco de Portugal, como Intermediário de Crédito Vinculado, sob o nº 4786, verificável em https://www.bportugal.pt/intermediariocreditofar/calculacertado-lda
AMI: 10030
Ref. Externa: 000409
Id: 1786696
Inicie sessão para guardar este imóvel e aceder à sua lista de favoritos em qualquer dispositivo.
561.750 €
4 Quartos
4 WCs
Área bruta : 224 m²
Empreendimento Mil Cento e Onze Um projeto de arquitetura contemporânea que combina elegância, privacidade e conforto. Destaca-se pelos recuos de varandas, criando movimento e uma integração harmoniosa com a envolvente, privilegiando a luz natural e o carácter intemporal dos espaços. Tipologias Disponíveis e Preços - T3 – Desde 381.100 a 422.300€ - T4 – Desde 561.750 a 586.360€ Projetado pela arquiteta Isabel Saavedra, e associado ao cuidado e pormenorização da equipa da Três60IMOBILIÁRIA, o Empreendimento Mil Cento e Onze transmite uma abordagem rigorosa com design contemporâneo e elegante com valorização à luz natural. 70 apartamentos (T1 a T4) 8 espaços comerciais 7 pisos de altura Acabamentos: -Espaços comuns com acabamentos de elevada qualidade, incluindo fachada ventilada em painéis compósitos, caixilharia em alumínio CORTIZO, revestimentos cerâmicos REVIGRÉS e detalhes em tons quentes que conferem sofisticação. -O edifício dispõe ainda de elevador duplo, estacionamento em betão polido e soluções funcionais pensadas para o conforto no dia a dia. - Materiais de alta qualidade e equipamentos modernos para máximo conforto e durabilidade. BOSCH, CORTIZO, REVIGRÉS - Ar condicionado em todos os apartamentos - Domótica integrada Garagem subterrânea com infraestrutura completa para mobilidade: - Estacionamento aberto e fechado - Bicicletário - Carregamento elétrico Localizado em Guimarães, junto ao Parque da Cidade, com acesso fácil a serviços e comércio Marque já a sua visita! Pode também contar com a nossa ajuda na Intermediação de Crédito, uma vez que a CALCULACERTADO - Mediação Imobiliária Lda, Lic. AMI 10030, está registada junto do Banco de Portugal, como Intermediário de Crédito Vinculado, sob o nº 4786, verificável em https://www.bportugal.pt/intermediariocreditofar/calculacertado-lda
AMI: 10030
Ref. Externa: 000408
Id: 1786697
Inicie sessão para guardar este imóvel e aceder à sua lista de favoritos em qualquer dispositivo.
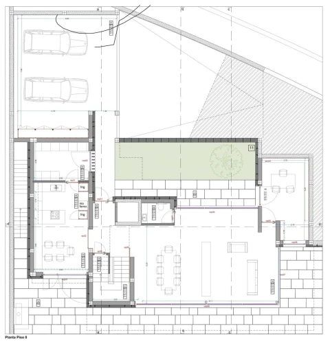
880.000 €
4 Quartos
4 WCs
Área bruta : 490 m²
Viva o seu sonho no coração de Guimarães Imagine viver numa moradia que combina arquitetura contemporânea, natureza envolvente e localização privilegiada. Esta exclusiva Moradia T4 ergue-se num lote de 883 m², mesmo ao lado do Parque da Cidade de Guimarães um verdadeiro oásis urbano onde o silêncio e o verde se encontram com a comodidade da cidade. Com uma área de construção de 490 m² e estrutura já concluída, esta casa é uma tela em branco para concretizar a sua visão de lar. Todos os espaços foram pensados para proporcionar conforto, funcionalidade e elegância, com a possibilidade de personalizar os acabamentos ao seu gosto. Composição da Moradia: Sala ampla e luminosa com ligação ao jardim Cozinha espaçosa ideal para os amantes da culinária Lavandaria independente Escritório tranquilo para home office ou biblioteca 2 Suites com casa de banho privativa 2 Quartos adicionais com WC partilhado WC de apoio no rés-do-chão Garagem fechada para dois carros Estrutura preparada para instalação de elevador Projeto aprovado para piscina Localização que eleva a qualidade de vida: Inserida numa das zonas mais prestigiadas de Guimarães A 5 minutos do centro da cidade A 2 minutos da Academia Vitória SC Proximidade a escolas, serviços, comércio e espaços verdes Porquê esta moradia? Porque ela representa um novo capítulo da sua vida, onde o bom gosto, a tranquilidade e a localização se encontram para criar algo raro: um verdadeiro lar com alma. Não é apenas uma casa. É o espaço onde a sua história será escrita.
AMI: 21865
Ref. Externa: TAPT01-1294_CA_AMV
Id: 1786390
Inicie sessão para guardar este imóvel e aceder à sua lista de favoritos em qualquer dispositivo.
415.000 €
4 Quartos
3 WCs
Área de terreno : 156 m²
O Vess Living é um empreendimento único, pensado para quem procura um equilíbrio perfeito entre modernidade, conforto e natureza. Localizado na Costa, em Guimarães, este projeto oferece uma qualidade de vida ímpar, rodeado por espaços verdes e a poucos minutos do centro histórico da cidade. Destaca-se pela sua arquitetura moderna e pelas suas áreas comuns que incluem um ginásio, piscina e jardins privativos, proporcionando um estilo de vida exclusivo e tranquilo. Constituído por 39 apartamentos, concebidos para proporcionar um estilo de vida saudável, equilibrado e em perfeita harmonia com a natureza. Tipologias Disponíveis: O Vess Living dispõe de apartamentos modernos nas tipologias T1, T2, T3 e T4, todos com garagem e varanda privativa. Independentemente da sua escolha, poderá contar com espaços amplos, bem iluminados e desenhados para maximizar o conforto e a funcionalidade. Ambiente Natural: O empreendimento está rodeado por vastos espaços verdes e majestosas árvores, criando um ambiente sereno e natural que convida à reconexão com a natureza. Ideal para quem aprecia a tranquilidade, sem abdicar das comodidades da vida urbana. Estilo de Vida Ativo: Para os amantes da atividade física e da vida ao ar livre, o Vess Living oferece fácil acesso a trilhos para caminhadas, ciclovias, e locais ideais para correr e andar de bicicleta. Aqui, viver é sinónimo de bem-estar e saúde. Lazer e Recreação: A localização privilegiada permite ainda desfrutar de várias opções de lazer nas proximidades, como o Parque da Cidade, Skate Park, Street Workout, Parque Desportivo da Juni, Parque da Penha, Minigolf, trilhos, grutas e até o teleférico. Há sempre algo para fazer, para todas as idades e gostos. Proximidade Urbana: A 4 minutos do centro histórico de Guimarães, o Vess Living proporciona a tranquilidade de um ambiente natural, sem abdicar da proximidade às infraestruturas urbanas. Com fácil acesso a Braga (28 minutos) e ao Porto (50 minutos), este é o local ideal para quem valoriza a proximidade de grandes centros urbanos. Comodidades e Infraestruturas: • Espaços Verdes: Relaxe e recarregue energias nos jardins e áreas de lazer do empreendimento. • Facilidade de Acesso: O Vess Living está estrategicamente localizado para garantir o acesso rápido a espaços comerciais, restaurantes, supermercados e outros serviços essenciais. Se procura um estilo de vida que combine conforto, natureza e proximidade urbana, o Vess Living é o local perfeito para chamar de lar. Não perca a oportunidade de viver num dos empreendimentos mais exclusivos de Guimarães! Para além deste imóvel, dispomos de mais imóveis que de certeza encaixam naquilo que pretende. Venha conhecer este espaço de sonho!
AMI: 7142
Ref. Externa: BRG/00095
Id: 1780898
Inicie sessão para guardar este imóvel e aceder à sua lista de favoritos em qualquer dispositivo.
980.000 €
4 Quartos
Área bruta : 298 m²
Apartamento T4 no condomínio fechado Santa Marinha Sublime.Convidamo-lo a explorar o conceito de exclusividade do novo condomínio privado da cidade de Guimarães, entre o Parque da Cidade e a Pousada de Santa Marinha da Costa, com apenas seis apartamentos de tipologias T2, T3 e T4, meticulosamente projetados num empreendimento capaz de oferecer o máximo conforto e um estilo de vida distinto. A qualidade de construção e dos acabamentos reflete o compromisso com a excelência em cada detalhe.Desfrute de uma exposição solar perfeita e relaxe na piscina privada e espaços ajardinados enquanto aprecia as vistas panorâmicas para o castelo, centro histórico e Montanha da Penha. Sofisticado e funcional, cada apartamento dispõe de amplas áreas sociais com acesso a varanda, piso em madeira natural, caixilharia minimalista, domótica, bomba de calor para AQS, ar condicionado encastrado e garagens fechadas.Com uma localização premium, o Santa Marinha Sublime permite-lhe desfrutar da conveniência de viver a 200 metros do Parque da Cidade e a 900 metros do encantador centro histórico de Guimarães.Este apartamento T4 é composto por:- 4 suítes;- 4 WCs completos e 1 WC de serviço;- Sala de estar e jantar com acesso a terraço;- Cozinha mobilada e equipada com placa, forno e exaustor da Siemens, com acesso a varanda;- Generosa Lavandaria;- Garrafeira;- Garagem fechada para 2 viaturas e espaço para arrumos;Dispõe ainda de:- Piso em madeira natural;- Ar condicionado encastrado;- Bomba de calor para AQS;- Caixilharia minimalista da marca Cortizo com rutura térmica e vidro duplo térmico;- Domótica;- Vídeoporteiro.- Louças sanitárias suspensas da Geberit;- WCs dos quartos com pavimento aquecido elétrico;- Pré-instalação para colocação de painéis fotovoltaicos.Contacte-nos para mais informações.-A dipe foi distinguida como uma das 10 melhores PME do setor imobiliário em Portugal no ano de 2022.O reconhecimento atribuído pela SCORING resulta de uma avaliação levada a cabo por uma equipa de docentes universitários doutorados em gestão e com referência aos Certificados da BUREAU VERITAS e da ASSOFT e reforça a dipe como uma referência de confiança, solidez e futuro no setor Mediação Imobiliária.- A dipe é uma imobiliária sediada em Guimarães, com mais de 28 anos de experiência no mercado, e distingue-se pelo serviço de excelência no apoio e acompanhamento a proprietários, investidores e clientes compradores. Dispomos de uma equipa pluridisciplinar, com profissionais altamente qualificados em diferentes áreas, como Arquitectura, Design de Interiores, Gestão, Comunicação e Marketing, dedicados a criar as soluções ideais para as suas necessidades. O nosso serviço, personalizado e transversal, é completamente diferenciado, oferecendo um auxílio constante a todos os intervenientes do negócio, mesmo após a conclusão do mesmo. Dipe é hoje sinónimo de tradição, por todas as experiências e histórias que partilhamos com os nossos clientes ao longo de mais de 28 anos, mas também de inovação, fruto da ousadia de uma equipa que procura estar um passo à frente daquilo que o mercado dita.
AMI: 11491
Ref. Externa: 24.24_CD
Id: 1775133
Inicie sessão para guardar este imóvel e aceder à sua lista de favoritos em qualquer dispositivo.
© Copyright 2023 | CASACERTA. All rights reserved
Guardar favoritos
Este imóvel foi guardados nos seus favoritos com sucesso.
Para poder guardar pesquisa deverá ter a sua sessão iniciada.
Caso não tenha uma conta, deverá criar uma.
A sua pesquisa foi guardada com sucesso!
Este site utiliza cookies. Ao navegar no site estará a consentir a sua utilização.
Para mais informações sobre os cookies pode consultar a
política de privacidade.