Lista
Comprar
Arrendar
4 Quartos
2 WCs
Área bruta : 104 m²
Ruína para reabilitação ou nova construção, localizada na aldeia do Álamo, concelho de Alcoutim, numa posição elevada com vista aberta sobre o Rio Guadiana, inserida num ambiente de grande tranquilidade, contacto com a natureza e autenticidade algarvia. O imóvel encontra-se implantado num terreno com 104 m², dispondo de uma área de implantação de 72 m², o que permite a reabilitação da construção existente ou o desenvolvimento de um novo projeto, sujeito à viabilidade e aprovação camarária. De acordo com a matriz predial, trata-se de um prédio em propriedade total, composto por vários compartimentos, atualmente sem condições de habitabilidade, constituindo uma excelente base para a criação de um projeto personalizado, seja para habitação própria, casa de férias ou investimento turístico. A planta existente permite compreender a distribuição original dos espaços, servindo como referência para uma reabilitação consciente ou para uma reformulação integral do layout, adaptada às exigências e ao estilo de vida atual. Uma oportunidade rara para quem procura um imóvel com vista rio, potencial construtivo e liberdade de projeto, num dos cenários mais genuínos e preservados do sotavento algarvio.
AMI: 23350
Ref. Externa: KWPT-011743
Id: 1580538
Inicie sessão para guardar este imóvel e aceder à sua lista de favoritos em qualquer dispositivo.
4 Quartos
2 WCs
Área bruta : 104 m²
Ruína para reabilitação ou nova construção, localizada na aldeia do Álamo, concelho de Alcoutim, numa posição elevada com vista aberta sobre o Rio Guadiana, inserida num ambiente de grande tranquilidade, contacto com a natureza e autenticidade algarvia. O imóvel encontra-se implantado num terreno com 104 m², dispondo de uma área de implantação de 72 m², o que permite a reabilitação da construção existente ou o desenvolvimento de um novo projeto, sujeito à viabilidade e aprovação camarária. De acordo com a matriz predial, trata-se de um prédio em propriedade total, composto por vários compartimentos, atualmente sem condições de habitabilidade, constituindo uma excelente base para a criação de um projeto personalizado, seja para habitação própria, casa de férias ou investimento turístico. A planta existente permite compreender a distribuição original dos espaços, servindo como referência para uma reabilitação consciente ou para uma reformulação integral do layout, adaptada às exigências e ao estilo de vida atual. Uma oportunidade rara para quem procura um imóvel com vista rio, potencial construtivo e liberdade de projeto, num dos cenários mais genuínos e preservados do sotavento algarvio.
AMI: 23350
Ref. Externa: KWPT-011743
Id: 1580398
Inicie sessão para guardar este imóvel e aceder à sua lista de favoritos em qualquer dispositivo.
3 Quartos
1 WCs
Área bruta : 97 m²
Moradia tradicional algarvia localizada na pitoresca aldeia de Pereiro, ideal para quem procura tranquilidade e contacto com a natureza. Esta casa antiga conta com: 3 quartos Sala e cozinha em espaço aberto Casa de banho Terraço Logradouro A propriedade necessita de obras de renovação, mas possui grande potencial para se transformar numa charmosa casa de campo ou num refúgio de férias no interior do Algarve. Inserida numa aldeia muito graciosa e acolhedora, esta moradia é uma excelente oportunidade para quem valoriza o estilo de vida tradicional algarvio. Obs: Os móveis que aparecem na foto não ficam na casa, somente a cozinha. Localização: Pereiro, concelho de Alcoutim a poucos minutos da natureza, com paisagens típicas e ambiente calmo.
AMI: 23350
Ref. Externa: KWPT-017661
Id: 1563067
Inicie sessão para guardar este imóvel e aceder à sua lista de favoritos em qualquer dispositivo.
3 Quartos
1 WCs
Área bruta : 97 m²
Moradia tradicional algarvia localizada na pitoresca aldeia de Pereiro, ideal para quem procura tranquilidade e contacto com a natureza. Esta casa antiga conta com: 3 quartos Sala e cozinha em espaço aberto Casa de banho Terraço Logradouro A propriedade necessita de obras de renovação, mas possui grande potencial para se transformar numa charmosa casa de campo ou num refúgio de férias no interior do Algarve. Inserida numa aldeia muito graciosa e acolhedora, esta moradia é uma excelente oportunidade para quem valoriza o estilo de vida tradicional algarvio. Obs: Os móveis que aparecem na foto não ficam na casa, somente a cozinha. ? Localização: Pereiro, concelho de Alcoutim – a poucos minutos da natureza, com paisagens típicas e ambiente calmo.
AMI: 23350
Ref. Externa: KWPT-017661
Id: 1562975
Inicie sessão para guardar este imóvel e aceder à sua lista de favoritos em qualquer dispositivo.
Área bruta : 74 m²
Ruína para recuperar para venda, localizada em na Aldeia pitoresca algarvia Cerro da Vinha de Baixo, no Pereiro, concelho de Alcoutim. O terreno é composto por uma área total de 154 m² e com uma área de implantação com 80 m² e espaço exterior com 74 m². O terreno é composto por 1 ruína com vários compartimentos e logradouro. Para construir. O terreno tem água da rede e luz. Localizado no meio da natureza, com árvores de fruto, como a amendoeira e a figueira. Zona tranquila, sossegada, com privacidade e com vista para o campo. Localizado a 16 km da vila de Alcoutim, a 30 min. da cidade de Espanha, 34 min das praias algarvias e a 1h10 do aeroporto de Faro. Excelente oportunidade de investimento para construir a sua moradia , seja para habitação, de férias ou para rentabilizar. Este pode ser o vosso refúgio no meio da natureza da serra algarvia. Agende a vossa visita e desfrute do melhor que o Sotavento Algarvio tem para lhe oferecer. ---------------------------------------------------------- House to renovate for sale, located in the picturesque Algarve village of Cerro da Vinha de Baixo, in Pereiro, municipality of Alcoutim. The land comprises a total area of 154 sq.m, with a building of 80 sq.m. and an outdoor space of 74 sq.m.. The land is composed with 1 ruin with several compartments and a patio. Ready to build. The land has mains water and electricity. Located in the middle of nature, with fruit trees such as almond and fig trees. Quiet, peaceful area with privacy and views of the countryside. Located 16 km from the town of Alcoutim, 30 min. from the city of Spain, 34 min. from the Algarve beaches and 1h10 from Faro airport. Excellent investment opportunity to build your home, whether for permanent residence, holidays or to generate income. This could be your refuge in the middle of the Algarve mountains. Schedule your visit and enjoy the best that the Eastern Algarve has to offer. -------------------------------------------------------- Maison à rénover à vendre, situé dans le pittoresque village de Cerro da Vinha de Baixo, à Pereiro, commune d'Alcoutim, en Algarve. D'une superficie totale de 154 m², il offre une surface constructible de 80 m² et un espace extérieur de 74 m². Le terrain comprend une ruine avec plusieurs pièces et un patio. Prêt à bâtir. Le terrain est raccordé à l'eau courante et à l'électricité. Situé en pleine nature, avec des arbres fruitiers tels que des amandiers et des figuiers. Un environnement calme et paisible, offrant intimité et vue sur la campagne. À 16 km d'Alcoutim, 30 minutes de Barcelone, 34 minutes des plages de l'Algarve et 1h10 de l'aéroport de Faro.
AMI: 23350
Ref. Externa: KWPT-026058
Id: 1529793
Inicie sessão para guardar este imóvel e aceder à sua lista de favoritos em qualquer dispositivo.
Área bruta : 74 m²
Ruína para recuperar para venda, localizada em na Aldeia pitoresca algarvia Cerro da Vinha de Baixo, no Pereiro, concelho de Alcoutim. O terreno é composto por uma área total de 154 m² e com uma área de implantação com 80 m² e espaço exterior com 74 m². O terreno é composto por 1 ruína com vários compartimentos e logradouro. Para construir. O terreno tem água da rede e luz. Localizado no meio da natureza, com árvores de fruto, como a amendoeira e a figueira. Zona tranquila, sossegada, com privacidade e com vista para o campo. Localizado a 16 km da vila de Alcoutim, a 30 min. da cidade de Espanha, 34 min das praias algarvias e a 1h10 do aeroporto de Faro. Excelente oportunidade de investimento para construir a sua moradia , seja para habitação, de férias ou para rentabilizar. Este pode ser o vosso refúgio no meio da natureza da serra algarvia. Agende a vossa visita e desfrute do melhor que o Sotavento Algarvio tem para lhe oferecer. ---------------------------------------------------------- House to renovate for sale, located in the picturesque Algarve village of Cerro da Vinha de Baixo, in Pereiro, municipality of Alcoutim. The land comprises a total area of 154 sq.m, with a building of 80 sq.m. and an outdoor space of 74 sq.m.. The land is composed with 1 ruin with several compartments and a patio. Ready to build. The land has mains water and electricity. Located in the middle of nature, with fruit trees such as almond and fig trees. Quiet, peaceful area with privacy and views of the countryside. Located 16 km from the town of Alcoutim, 30 min. from the city of Spain, 34 min. from the Algarve beaches and 1h10 from Faro airport. Excellent investment opportunity to build your home, whether for permanent residence, holidays or to generate income. This could be your refuge in the middle of the Algarve mountains. Schedule your visit and enjoy the best that the Eastern Algarve has to offer. -------------------------------------------------------- Maison à rénover à vendre, situé dans le pittoresque village de Cerro da Vinha de Baixo, à Pereiro, commune d'Alcoutim, en Algarve. D'une superficie totale de 154 m², il offre une surface constructible de 80 m² et un espace extérieur de 74 m². Le terrain comprend une ruine avec plusieurs pièces et un patio. Prêt à bâtir. Le terrain est raccordé à l'eau courante et à l'électricité. Situé en pleine nature, avec des arbres fruitiers tels que des amandiers et des figuiers. Un environnement calme et paisible, offrant intimité et vue sur la campagne. À 16 km d'Alcoutim, 30 minutes de Barcelone, 34 minutes des plages de l'Algarve et 1h10 de l'aéroport de Faro.
AMI: 23350
Ref. Externa: KWPT-026058
Id: 1529721
Inicie sessão para guardar este imóvel e aceder à sua lista de favoritos em qualquer dispositivo.
105.000 €
Área bruta : 120 m²
Venha conhecer e reconstruir esta casa térrea com Rés do chão e Primeiro andar em ruina na Rua das Portas do Rio nº2 e nº4 centro de Alcoutim mesmo ao lado do Rio Guadiana. Esta ruína está localizada em frente ao Castelo, perto de vários restaurantes, das Finanças e do Cais de embarque. Imóvel com primeiro andar e vista desafogada para o Rio, oferece uma área de implantação de 80m2 e uma área total de 120m2. Esta casa tem potencial para reconstruir a seguinte tipologia conforme o projeto inicial: - Res do chão - 2 quartos, casa de banho - 1 andar - 1 quarto e uma sala - segundo andar - cozinha e terraço com vista para o Rio Guadiana Daqui pode conhecer melhor o lindíssimo rio Guadiana e as suas margens, podendo fazer-se bonitos percursos pela estrada ribeirinha ou mesmo de barco, alugado ou numa das excursões que se organizam na zona a têm aqui paragem com o seu cais acostável. Existem também pela região diversos percursos pedestres de grande encanto. Longe das multidões e da agitação dos centros turísticos do litoral algarvio, Alcoutim é um paraíso de tranquilidade entre a serra do Caldeirão e o rio Guadiana, fronteira natural com a vizinha Espanha. A região mantém vivo o seu artesanato, eminentemente ligado à vida rural, com peças que vão das tradicionais mantas de lã ou de trapos, à cestaria em cana e vime, olaria, entre muitas outras. Lá pode encontrar comércio local, centro de saúde, cafés, restaurantes, jardim-de-infância, escolas, supermercados, correios entre outros serviços. Imóvel ideal para rentabilizar ou até mesmo para casa de férias. Não perca esta oportunidade agende já a sua visita. A iad é uma rede de consultores imobiliários independentes assente num modelo plenamente inovador que vem romper com o conceito tradicional de agência imobiliária. O que procura o cliente do século XXI quando decide comprar, arrendar ou vender um imóvel? Procura um serviço completo, descomplicado e competitivo. É isso que lhe propomos na iad. Os nossos consultores vão ao seu encontro, tendo acesso à mais recente formação do setor e a uma plataforma de ferramentas exclusivas que lhes permite prestar-lhe o melhor serviço onde quer que esteja. Damos aos nossos consultores a flexibilidade e a autonomia necessárias para lhe garantir um acompanhamento personalizado na concretização do seu projeto, seja ele de comprar, arrendar ou vender um imóvel. Na iad encontra um consultor imobiliário à sua medida. #ref: 776007
AMI: 11220
Ref. Externa: 776007
Id: 1526190
Inicie sessão para guardar este imóvel e aceder à sua lista de favoritos em qualquer dispositivo.
1 Quartos
Área bruta : 40 m²
Venda de casa pitoresca para recuperar em Corte Tabelião, Alcoutim. Situada numa localização idílica, esta propriedade é um convite para os amantes da tranquilidade e da autenticidade algarvia. A sua atmosfera acolhedora e vistas deslumbrantes, oferece um estilo de vida rural, longe da azáfama das cidades. A proximidade do rio Guadiana e da Serra do Caldeirão oferece oportunidades para desfrutar de atividades ao ar livre, como caminhadas e passeios de barco. Vizinha de imóveis idênticos transformados e rentabilizados como Alojamentos Locais, poderá ser uma das opções de exploração. Características do Imóvel: Área bruta: 40m2 Composto por 2 divisões (não dispõe de cozinha nem de casa de banho). Não dispõe de ligações às redes de água, luz e esgotos, ainda que acessíveis nas mediações. Distâncias (aprox.): Alcoutim: 4.5 kms Espanha (Ayamonte): 45 kms Praia (Vila Real de Santo António): 46 kms Aeroporto (Faro): 96 kms Esta é uma oportunidade imperdível para adquirir uma propriedade ideal para quem procura investir em renovação e/ou construção num cenário idílico. Transforme esta ruína no seu projeto dos sonhos e aproveite o melhor da tranquilidade algarvia. Para mais informações e agendamento de visitas, entre em contato! Na Legacy Group temos ao dispor Apoio no processo de Financiamento (se requerido). A nossa agência dispõe do serviço de Intermediários de Crédito Autorizados pelo Banco de Portugal. Caso necessite de financiamento podemos ajudar.
AMI: 19852
Ref. Externa: GM072
Id: 1469856
Inicie sessão para guardar este imóvel e aceder à sua lista de favoritos em qualquer dispositivo.
1 Quartos
1 WCs
Área bruta : 54 m²
Moradia totalmente renovada, incluindo telhado, casa de banho, cozinha, portas, janelas, ... pronta a habitar. Apresenta um pé-direito generoso de 3,60 metros, conferindo uma agradável sensação de amplitude e luminosidade. Localizada na tranquila aldeia do Torneio, no concelho de Alcoutim, beneficia de bons acessos e de uma vista desafogada sobre a serra, ideal para quem procura conforto, privacidade e contacto com a natureza.
AMI: 19852
Ref. Externa: LC49
Id: 1456803
Inicie sessão para guardar este imóvel e aceder à sua lista de favoritos em qualquer dispositivo.
1 Quartos
1 WCs
Área bruta : 126 m²
FAÇA CONNOSCO O MELHOR NEGÓCIO Moradia térrea, em banda, no centro da bonita aldeia do Pereiro. Este bela Moradia, de 126 m2, é composta por três quartos, sendo dois deles interiores, uma casa de banho, uma cozinha, uma sala, quintal e um terraço. Moradia muito acolhedora e típica, ideal para quem quer viver longe do ritmo acerelado das grandes cidades ou para quem queira apenas para moradia de fim de semana ou férias. Pereiro está inserido numa zona privilegiada pela sua proximidade ao Rio Guadiana e às belas paisagens da serra algarvia.. Aqui encontra o equilíbrio perfeito entre tranquilidade, autenticidade e o verdadeiro encanto do interior algarvio. Ajudamos com todo o processo! Entre em contacto connosco ou deixe-nos os seus dados e entraremos em contacto assim que possível! AL97854VR
AMI: 8989
Ref. Externa: AL97854VR
Id: 1456299
Inicie sessão para guardar este imóvel e aceder à sua lista de favoritos em qualquer dispositivo.
4 Quartos
4 WCs
Área bruta : 486 m²
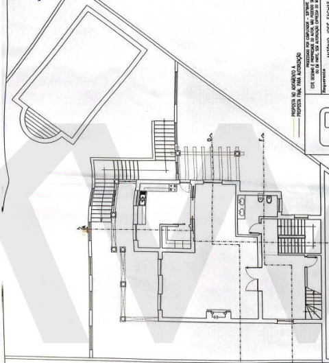
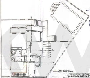
Em Alcoutim, junto ao Rio Guadiana, encontra esta moradia independente T4 + 1, que lhe oferece vistas panorâmicas e desafogadas sobre a serra e a praia fluvial. É uma propriedade que lhe permite tirar proveito da luz natural do nosso Algarve, e aproveitar, também, os dias de calor no espaço exterior com piscina privada e barbecue. Encontra-se inserida numa urbanização composta apenas por 12 lotes, 6 moradias, o que lhe oferece sossego e tranquilidade. Características Principais: - Moradia com traços tradicionais, dividida em 3 pisos: 1º Piso, Rés-do-chão e Cave; - 1ºPiso: Composto por 4 quartos, e 2 casas de banho completas, onde existe o acesso ao sótão; - Rés-do-chão: Composto por cozinha com despensa, sala de estar em open space com a sala de jantar, uma área de descanso, e 1 casa de banho de serviço; - Cave: Composta por duas áreas amplas, 1 quarto, 1 casa de banho completa e 1 lavandaria; Características Interiores: - Todas as divisões da casa são espaçosas e amplas; - Os quartos têm todos roupeiros embutidos com boa iluminação proveniente de luz natural; - A propriedade é vendida equipada; Características Exteriores: - Acesso à moradia feito em 2 frentes da propriedade; - 2 Zonas de refeição, estando ambas localizadas de forma estratégica junto à cozinha, e ao barbecue, podendo disfrutar da maravilhosa vista que a moradia proporciona; - Piscina privada; - Garagem com portão automático que permite o estacionamento de 3 carros, contando ainda com lugares de estacionamento junto à propriedade. Características diferenciadores: - A grande maioria das divisões da casa têm janelas, o que permite aproveitar a luz natural por um período mais extenso do dia - Inclui: Cave, e 3 Casas de Banho; - Proximidade à praia fluvial e à fronteira com Espanha; Aproveite esta oportunidade, e marque já a sua visita! Ficamos à sua espera! Na KW Flash Algarve temos o apoio de um serviço de Intermediação de Crédito. Peça-me mais informação, e vamos concretizar os seus sonhos juntos. Partilhamos 50%/50% do negócio com todos os consultores imobiliários e agências com licença AMI - porque os interesses dos nossos clientes estão sempre em primeiro lugar.
AMI: 23350
Ref. Externa: KWPT-013955
Id: 1431491
Inicie sessão para guardar este imóvel e aceder à sua lista de favoritos em qualquer dispositivo.
2 Quartos
1 WCs
Área bruta : 56 m²
Propriedade constituída por dois artigos- uma ruína para reconstruir com 56m² de área de implantação inseridos em prédio urbano com área total de 177m²; confronta com um prédio rústico de 1 720m², totalizando uma quintinha com 1 897m². Terreno plano em local privilegiado, numa pequena elevação, confronta com caminho público em três frentes e não confronta com outras construções. No seio da propriedade encontra-se uma eira centenária em ótimo estado. Estrada alcatroada até à entrada, eletricidade e água no local- sendo apenas necessário solicitar a instalação. Inserido no coração da paisagem algarvia, vistas desafogadas para a serra, tranquilidade, trilhos do concelho de Alcoutim- Oportunidade única! Localização: 3km do Pereiro; 9km de IC27; 16km de Alcoutim e da Praia Fluvial do Pego Fundo; 35km de Mértola; 42km de Vila real de Santo António e 45km de Ayamonte- Espanha. Para segunda habitação ou investimento: oportunidade de disfrutar da natureza no seu melhor! Características: Características Exteriores - Jardim; Características Gerais - Para remodelar; Vistas - Vista montanha; Vista campo; Outras características - Moradia;
AMI: 23350
Ref. Externa: KWPT-016720
Id: 1430421
Inicie sessão para guardar este imóvel e aceder à sua lista de favoritos em qualquer dispositivo.
3 Quartos
3 WCs
Área bruta : 140 m²
Moradia Moderna com 3 quartos para venda localizada em Alcoutim. Moradia localizada numa zona muito tranquila. Lote da moradia com 224m². O R/C é composto por hall de entrada, sala ampla, cozinha equipada com eletrodomésticos marca "Smeg", arrumação e casa de banho com luz natural. Sala e cozinha com acesso à zona de lazer exterior. O 1º andar é composto por hall de quartos, 3 quartos, sendo um deles em suíte. Quartos com roupeiros embutidos. Divisões com instalação de AC, estores elétricos e aquecimento central. O sótão foi convertido em sala de cinema e 1 quarto. Espaço exterior amplo para momentos de lazer com piscina de água salgada, chuveiro, barbecue, chuveiro e espaço com cobertura para estacionamento. Tetos falsos com luzes embutidas. Divisões com boas áreas. Todas as casas de banho têm luz natural. Acabamentos de qualidade e modernos. Em excelente estado de conservação. Localizada a 600 metros do centro e 1,5 km da praia Fluvial de Alcoutim. A 30 min. de Castro Marim e de Espanha. A 1 hora do aeroporto de Faro. Desfrute o melhor que o Sotavento Algarvio tem para lhe oferecer. Marque a vossa visita e torne esta moradia no seu novo lar. ------------------------------------ Modern house with 3 bedrooms for sale in Alcoutim. Located in a very quiet area. Plot of land with 224 sq.m.. The ground floor is composed with an entrance hall, a spacious living room, a kitchen equipped with Smeg appliances, storage, and a bathroom with natural light. The living room and kitchen have access to the outdoor leisure area. The first floor is composed with a hallway, three bedrooms, one of which is en suite. All bedrooms have built-in wardrobes. Rooms with air conditioning and central heating installation. The attic has been converted into a movie room and one bedroom. Large outside space for leisure moments with a saltwater pool, shower, barbecue, shower and covered parking space. False ceilings with recessed lights. Spacious rooms. All bathrooms have natural light. Quality and modern finishing, excellent sun exposure and in excellent condition. Close to all services and amenities. Located 600 meters from the center and 1.5 km from Alcoutim River Beach. 30 minutes from Castro Marim and Spain. 1 hour driving to Faro airport. Enjoy the best the Eastern Algarve has to offer. Schedule your visit and make this house your new home. ---------------------------------- Maison moderne de 3 chambres à vendre à Alcoutim. Située dans un quartier très calme, elle dispose d'un terrain de 224 m². Le rez-de-chaussée comprend un hall d'entrée, un grand séjour, une cuisine équipée d'appareils électroménagers Smeg, un débarras et une salle de bains baignée de lumière naturelle. Le séjour et la cuisine donnent accès à un espace de loisirs extérieur. Le premier étage comprend un couloir et trois chambres, dont une avec salle de bains privative. Toutes les chambres disposent de placards intégrés. Les pièces sont équipées de la climatisation, de stores électriques et du chauffage central. Le grenier a été aménagé en salle de cinéma et en chambre. Un vaste espace extérieur est dédié aux loisirs : piscine d'eau salée, douche, espace barbecue, douche et parking couvert. Plafonds suspendus avec spots encastrés. Les pièces sont spacieuses et toutes les salles de bains bénéficient de la lumière naturelle. Finitions modernes et de haute qualité. En excellent état. Située à 600 mètres du centre-ville et à 1,5 km de la plage fluviale d'Alcoutim. À 30 minutes de Castro Marim et de l'Espagne. À 1 heure de l'aéroport de Faro. Profitez du meilleur de l'Algarve de l'Est. Planifiez votre visite et faites de cette maison votre nouveau chez-vous.
AMI: 23350
Ref. Externa: KWPT-019919
Id: 1429767
Inicie sessão para guardar este imóvel e aceder à sua lista de favoritos em qualquer dispositivo.
3 Quartos
1 WCs
Área bruta : 80 m²
Moradia para recuperar com 3 quartos, terraço e vista para o rio Guadiana, situada na aldeia do Álamo, Alcoutim. A casa está dividida em dois pisos: sala, um quarto e uma casa de banho no rés do chão; 1 sala e dois quartos no 1º andar. Em frente da casa tem um terraço/quintal e a cozinha. A moradia necessita de obras de recuperação, não está habitável. Fica situada no centro do Álamo, a 11kms de Alcoutim, onde encontra comércio, supermercado e outros serviços de utilidade. As praias de Monte Gordo e Vila Real ficam a 35kms. É ideal para quem gosta de viver na tranquilidade da aldeia. Peça mais informações.
AMI: 24614
Ref. Externa: 31SF_ALC
Id: 1348464
Inicie sessão para guardar este imóvel e aceder à sua lista de favoritos em qualquer dispositivo.
2 Quartos
Área bruta : 135 m²
Casa antiga situada num monte perto do Rio Guadiana e da Ribeira do Vascão , a 8Km da vila de Alcoutim. A casa tem 10 divisões e terreno plano em frente. Tem água canalizada e luz. Possibilidade de ampliar a área de contrução e deslocar a ruína no terreno. Acesso por estrada alcatroada. De grande beleza natural. Excluído do SCE, ao abrigo da alínea g) do artigo 18º do Decreto-Lei nº 101-D/2020, de 7 de dezembro.
AMI: 6110
Ref. Externa: CA2411
Id: 1327608
Inicie sessão para guardar este imóvel e aceder à sua lista de favoritos em qualquer dispositivo.
2 Quartos
Área bruta : 81 m²
Moradia Rústica T2 com Quintal e Terreno a 5 Minutos da Vila de AlcoutimDescubra o potencial desta moradia de traça tradicional, situada numa aldeia tranquila a cerca de 5 minutos da pitoresca vila de Alcoutim, no coração do sotavento algarvio. Com uma área de 80 m², a casa é composta por sala de estar, cozinha com chaminé típica algarvia, dois quartos e uma casa de banho. Conta ainda com um anexo para arrumos, jardim e um terreno generoso com cerca de 2500 m², ideal para quem deseja criar um espaço exterior para lazer, cultivo ou até um pequeno pomar.A moradia necessita de recuperação, o que representa uma excelente oportunidade para renovar ao seu gosto, respeitando a arquitetura local e valorizando os elementos rústicos que conferem identidade ao imóvel.Alcoutim é uma vila de grande encanto histórico, marcada pelas suas ruas estreitas, pelo castelo com vista sobre o rio Guadiana e pela tranquilidade que convida a uma vida sem pressas. Um dos seus grandes atrativos é a praia fluvial, com águas calmas e perfeita para refrescar-se nos dias quentes de verão. A região oferece ainda trilhos pedestres, atividades náuticas no Guadiana e uma forte ligação à natureza e às tradições do interior algarvio.Com bons acessos à vila e também às localidades costeiras e praias do litoral, esta propriedade é ideal para quem procura um refúgio com autenticidade e tranquilidade, sem abdicar da proximidade a serviços, comércio e pontos de interesse turístico.Temos uma equipa especializada que o irá auxiliar na escolha e decisão da melhor solução de crédito habitação (Intermediário de Crédito certificado pelo Banco de Portugal com o nº 0001802).
AMI: 7050
Ref. Externa: 216250079
Id: 1320129
Inicie sessão para guardar este imóvel e aceder à sua lista de favoritos em qualquer dispositivo.
2 Quartos
2 WCs
Área bruta : 116 m²
Moradia pronta a habitar com 2 quartos, terraço e vista para o rio Guadiana, na localidade do Álamo, a 11kms de Alcoutim. A moradia é composta por 2 pisos: no rés do chão tem uma grande cozinha, casa de banho com duche e despensa. No exterior tem um terraço com barbecue. No 1º andar tem uma sala com varanda e vista aberta sobre o rio Guadiana, um quarto, um segundo quarto interior e uma casa de banho com banheira. Está pronta a habitar. A aldeia do Álamo fica situada a 11kms de Alcoutim, a 30 minutos da praia de Monte Gordo ou de Vila Real de Santo António. É ideal para quem gosta de tranquilidade. Visite!
AMI: 24614
Ref. Externa: 27SF-ALC
Id: 1314406
Inicie sessão para guardar este imóvel e aceder à sua lista de favoritos em qualquer dispositivo.
3 Quartos
3 WCs
Área bruta : 140 m²
Moradia Moderna com 3 quartos para venda localizada em Alcoutim. Moradia localizada numa zona muito tranquila. Lote da moradia com 224m². O R/C é composto por hall de entrada, sala ampla, cozinha equipada com eletrodomésticos marca "Smeg", arrumação e casa de banho com luz natural. Sala e cozinha com acesso à zona de lazer exterior. O 1º andar é composto por hall de quartos, 3 quartos, sendo um deles em suíte. Quartos com roupeiros embutidos. Divisões com instalação de AC, estores elétricos e aquecimento central. O sótão foi convertido em sala de cinema e 1 quarto. Espaço exterior amplo para momentos de lazer com piscina de água salgada, chuveiro, barbecue, chuveiro e espaço com cobertura para estacionamento. Tetos falsos com luzes embutidas. Divisões com boas áreas. Todas as casas de banho têm luz natural. Acabamentos de qualidade e modernos. Em excelente estado de conservação. Localizada a 600 metros do centro e 1,5 km da praia Fluvial de Alcoutim. A 30 min. de Castro Marim e de Espanha. A 1 hora do aeroporto de Faro. Desfrute o melhor que o Sotavento Algarvio tem para lhe oferecer. Marque a vossa visita e torne esta moradia no seu novo lar. ------------------------------------ Modern house with 3 bedrooms for sale in Alcoutim. Located in a very quiet area. Plot of land with 224 sq.m.. The ground floor is composed with an entrance hall, a spacious living room, a kitchen equipped with Smeg appliances, storage, and a bathroom with natural light. The living room and kitchen have access to the outdoor leisure area. The first floor is composed with a hallway, three bedrooms, one of which is en suite. All bedrooms have built-in wardrobes. Rooms with air conditioning and central heating installation. The attic has been converted into a movie room and one bedroom. Large outside space for leisure moments with a saltwater pool, shower, barbecue, shower and covered parking space. False ceilings with recessed lights. Spacious rooms. All bathrooms have natural light. Quality and modern finishing, excellent sun exposure and in excellent condition. Close to all services and amenities. Located 600 meters from the center and 1.5 km from Alcoutim River Beach. 30 minutes from Castro Marim and Spain. 1 hour driving to Faro airport. Enjoy the best the Eastern Algarve has to offer. Schedule your visit and make this house your new home. ---------------------------------- Maison moderne de 3 chambres à vendre à Alcoutim. Située dans un quartier très calme, elle dispose d'un terrain de 224 m². Le rez-de-chaussée comprend un hall d'entrée, un grand séjour, une cuisine équipée d'appareils électroménagers Smeg, un débarras et une salle de bains baignée de lumière naturelle. Le séjour et la cuisine donnent accès à un espace de loisirs extérieur. Le premier étage comprend un couloir et trois chambres, dont une avec salle de bains privative. Toutes les chambres disposent de placards intégrés. Les pièces sont équipées de la climatisation, de stores électriques et du chauffage central. Le grenier a été aménagé en salle de cinéma et en chambre. Un vaste espace extérieur est dédié aux loisirs : piscine d'eau salée, douche, espace barbecue, douche et parking couvert. Plafonds suspendus avec spots encastrés. Les pièces sont spacieuses et toutes les salles de bains bénéficient de la lumière naturelle. Finitions modernes et de haute qualité. En excellent état. Située à 600 mètres du centre-ville et à 1,5 km de la plage fluviale d'Alcoutim. À 30 minutes de Castro Marim et de l'Espagne. À 1 heure de l'aéroport de Faro. Profitez du meilleur de l'Algarve de l'Est. Planifiez votre visite et faites de cette maison votre nouveau chez-vous.
AMI: 23350
Ref. Externa: KWPT-019919
Id: 1313250
Inicie sessão para guardar este imóvel e aceder à sua lista de favoritos em qualquer dispositivo.
2 Quartos
Área bruta : 42 m²
Equipa LC by LegacyGroup Escritório Vila Real de Santo António +351 965 451 669 / +351 281 027 283 Localizada na pitoresca povoação de Guerreiros do Rio, esta encantadora moradia destaca-se pela sua vista deslumbrante sobre o rio Guadiana, num cenário único de tranquilidade e beleza natural. Com bons acessos rodoviários e a escassos minutos do litoral algarvio e da sua sede de concelho, Alcoutim, oferece o equilíbrio perfeito entre o sossego do interior e a proximidade das praias. Ideal para quem procura um refúgio de férias ou pretende investir numa unidade de alojamento local, esta casa tem um grande potencial de valorização e rentabilidade turística. A envolvência natural, o património ribeirinho e a autenticidade da região tornam este imóvel uma oportunidade rara.
AMI: 19852
Ref. Externa: LC42
Id: 1291003
Inicie sessão para guardar este imóvel e aceder à sua lista de favoritos em qualquer dispositivo.
2 Quartos
1 WCs
Área bruta : 104 m²
PT - Moradia isolada para restauro, com projeto aprovado, a 10 minutos do centro de Alcoutim. Projecto para Moradia T2 com sala, cozinha open space, uma casa de banho e 2 quartos. Peça mais informações não hesite em contactar. EN - Detached house for restoration, with approved project, 10 minutes from the center of Alcoutim. Project for a 2 bedroom house with living room, open space kitchen, bathroom and 2 bedrooms. Ask for more information, do not hesitate to contact us. FR - Maison individuelle à restaurer, avec projet approuvé, à 10 minutes du centre dAlcoutim. Projet dune maison de 2 chambres avec salon, cuisine ouverte, salle de bain et 2 chambres. Demandez plus dinformations, nhésitez pas à nous contacter.
AMI: 11599
Ref. Externa: 0639
Id: 1280506
Inicie sessão para guardar este imóvel e aceder à sua lista de favoritos em qualquer dispositivo.
Estes agentes são especialistas nesta zona:
Inicie sessão para ocultar este imóvel das suas pesquisas e manter a sua lista de resultados organizada.
Guardar favoritos
Este imóvel foi guardados nos seus favoritos com sucesso.
Para poder guardar pesquisa deverá ter a sua sessão iniciada.
Caso não tenha uma conta, deverá criar uma.
A sua pesquisa foi guardada com sucesso!
© Copyright 2023 | CASACERTA. All rights reserved
Este site utiliza cookies. Ao navegar no site estará a consentir a sua utilização.
Para mais informações sobre os cookies pode consultar a
política de privacidade.