Lista
Comprar
Arrendar
5 Quartos
3 WCs
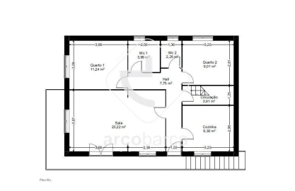
Área bruta : 324 m²
Excelente moradia T5 com logradouro, situada na freguesia de Santar, em Arcos de Valdevez, a apenas 2 minutos do centro da vila e 5 minutos de Ponte da Barca. O imóvel é composto por dois pisos e um sótão com grande potencial, que pode ser aproveitado para arrumos, quartos adicionais ou espaço de lazer. Rés do chão : Garagem espaçosa Cozinha Sala de estar Casa de banho Dois quartos Primeiro andar : Três quartos Casa de banho principal Casa de banho de serviço Cozinha ampla com excelente área Sala com varanda e recuperador de calor No exterior, dispõe de logradouro com espaço de churrasqueira coberto, ideal para desfrutar tanto no verão como no inverno. A moradia localiza-se numa zona tranquila e de fácil acesso, com a estrada principal totalmente renovada em 2024. Com acessos rapidos as autoestradas em direçao Viana do Castelo, Braga, Porto.. "A Arcobarca além de ser agência mediadora de imóveis, é também intermediária de crédito registada junto do Bando de Portugal com o número de registo 0003433. A Arcobarca não concede crédito, sendo neste âmbito de atividade exclusivamente a intermediação com as instituições financeiras com quem tem contractos de vinculação. Os serviços de Intermediação de Crédito prestados pela Arcobarca são isentos de qualquer custo para os seus clientes".
AMI: 8178
Ref. Externa: AV6389
Id: 1552274
Inicie sessão para guardar este imóvel e aceder à sua lista de favoritos em qualquer dispositivo.
4 Quartos
3 WCs
Área bruta : 264 m²
Moradia T4 em Guilhadeses – Arcos de Valdevez Situada a apenas 2 minutos do centro da Vila dos Arcos de Valdevez, esta moradia combina tranquilidade, privacidade e proximidade a todas as comodidades (comércio, serviços, escolas e lazer). Com excelentes acessos, encontra-se a 5 minutos da IC28, a 10 minutos da A27 (direção Viana do Castelo) e da A3 (direção Braga), e a apenas 50 minutos do Porto. Inserida num terreno com 2000m², desfruta de vistas totalmente desafogadas, um furo de agua e ótima exposição solar. Distribuição da Moradia: - Primeiro piso : Cozinha equipada e mobilada Sala ampla e luminosa Três quartos espaçosos Duas casas de banho Varandas na cozinha, sala e quarto - Piso inferior : Garagem fechada para várias viaturas Arrumos e lavandaria Um quarto adicional Uma casa de banho - Exterior: Amplo jardim Espaço para cultivo Possibilidade de instalação de piscina Uma oportunidade única para quem procura viver num local calmo, com qualidade de vida e a poucos minutos do centro da vila. A Arcobarca além de ser agência mediadora de imóveis, é também intermediária de crédito registada junto do Bando de Portugal com o número de registo 0003433. A Arcobarca não concede crédito, sendo neste âmbito de atividade exclusivamente a intermediação com as instituições financeiras com quem tem contractos de vinculação. Os serviços de Intermediação de Crédito prestados pela Arcobarca são isentos de qualquer custo para os seus clientes.
AMI: 8178
Ref. Externa: AV6231
Id: 1358613
Inicie sessão para guardar este imóvel e aceder à sua lista de favoritos em qualquer dispositivo.
3 Quartos
3 WCs
Área útil : 220 m²
Moradia T3 Moderna com Piscina – Arcos de Valdevez | Luxo e Conforto a 2,3km da Vila de Arcos de Valdevez. Viva o melhor do Alto Minho nesta moradia de luxo, totalmente mobilada e equipada, inserida numa urbanização exclusiva e tranquila, a poucos minutos do centro da Vila de Arcos de Valdevez. ✨ Características de destaque: - Design contemporâneo com acabamentos de alta qualidade - 3 quartos amplos (1 suíte), 2 casas de banho modernas - Sala espaçosa e cozinha equipada para o dia a dia - Sistema de domótica avançado com climatização por ventilo-convetores e estores elétricos - Energia sustentável: painéis solares, iluminação LED, gás natural e fibra ótica - Jardim cuidado, piscina privativa e terreno com mina de água e depósito de 6.000 litros - Certificação energética classe B, garantindo eficiência e poupança Extra: Inclui copropriedade de terreno com fonte natural — perfeito para um uso sustentável da água no jardim e piscina. Pronta a habitar e já mobilada com chave na mão! Não perca esta oportunidade única de viver com conforto, modernidade e qualidade num dos locais mais privilegiados do Alto Minho. Esta Moradia Moradia T3 Moderna com Piscina – Arcos de Valdevez | Luxo e Conforto a 2,3km da Vila de Arcos de Valdevez. Nesta Vila de Arcos de Valdevez, pode usufruir das seguintes, infraestruturas: - 5 Farmácias; Um agrupamento de Escolas que conta com 5 Escolas Básicas; 4 Jardins de Infância, Escola E.B.2,3/S de Arcos de Valdevez, Escola Profissional de Alto Lima; CENFIM (Centro de Formação da Industria Metalomecânica, IPVC/ESTG / Arcos de Valdevez, Conservatório de Música e Dança de Arcos de Valdevez, Escola de Musica , Escola de Acompanhamento Escolar (entre outras escolas), Três grandes Superfícies e todo um apoio do comércio local, incluindo o Mercado Municipal de Arcos de Valdevez. Uma Casa das Artes/Biblioteca Municipal com vários eventos no Ano. Esplanadas, Ecovia, Rio Vez. Centro de Saúde e Hospital São José, mais uma série de Clinicas que apoiam todos os moradores nas várias questões de saúde que poderão ter. Restaurantes locais com comida Regional. Moradia T3 Moderna com Piscina – Arcos de Valdevez | Luxo e Conforto a 2,3km da Vila de Arcos de Valdevez, não é mais um imóvel à venda em Arcos de Valdevez, mas é o imóvel que junta o luxo de uma moradia de luxo, cercada por todos os serviços que uma grande cidade tem, mas que permite viver numa moldura viva e única que é a Vila de Arcos de Valdevez e como diz o Slogan desta Vila Paradisíaca: "Arcos de Valdevez, onde Portugal se fez!" Quer juntar História, Cultura, condições e estruturas de apoio para uma vida de Qualidade, visite já esta moradia! Marque já a sua visita connosco - IAD Portugal: - IAD, há 15 anos a fazer bem ao imobiliário! #MoradiaDeLuxo #ArcosDeValdevez #CasaComPiscina #ImobiliárioPremium #ChaveNaMão #Domótica #iadportugal #ConfortoENatureza #InvestimentoSeguro #AltoMinho #ref: 144079
AMI: 11220
Ref. Externa: 144079
Id: 1235993
Inicie sessão para guardar este imóvel e aceder à sua lista de favoritos em qualquer dispositivo.
4 Quartos
2 WCs
Área bruta : 324 m²
À entrada da vila de Arcos de Valdevez, mais precisamente a 1km do centro, situada na Freguesia de Guilhadeses, encontra-se esta belíssima moradia de 4 quartos com boas condições de habitabilidade. A sua localização confere-lhe uma vista panorâmica lindíssima a par da melhor exposição solar desejável que é Nascente/Sul/Poente. A casa é composta no rés do chão por sala de estar e sala de jantar, cozinha, 2 casas de banho, uma de serviço e outra com banheira (ambas com janela) e 2 espaçosos e luminosos quartos. A sala tem acesso directo a uma varanda que circunda a casa para poder aproveitar o sol e as magnificas vistas que este imóvel proporciona. No piso superior (águas furtadas) tem 2 quartos também bastante grandes, várias zonas de arrumos e uma outra divisão que poderá ser mais um quarto, zona de arrumos ou convertida numa grande casa de banho para este piso de apoio aos 2 quartos. Na parte inferior da casa, temos 2 garagens box com portões independentes e automáticos, zona de máquinas, como a caldeira e máquina de lavar roupa, e outra divisão para arrumos. No exterior temos um espaçoso pátio que permite facilmente entrar e sair com os carros e uma zona de jardim com cerca de 500m2 em zona definida pelo Plano Director Municipal como zona de construção, o que, mediante aprovação da Câmara Municipal, lhe poderá permitir a construção de uma piscina ou outra estrutura que deseje. A casa está equipada com todas as infraestruturas, electricidade, água de companhia, saneamento público, internet de fibra óptica e tem ainda água de mina todos os dias do ano sem interrupções, aquecimento central com caldeira a gasóleo e além do fogão a gás tem um fogão a lenha na cozinha. O imóvel tem cerca de 50 anos de construção, encontrando-se maioritariamente de origem, mas está em perfeitas condições de conservação interior, consequentemente com boas condições de habitabilidade. Isto permite que ao comprar o imóvel o possa habitar de imediato. De salientar que a propriedade tem 3 entradas e todas permitem entrada de viaturas. Se procura uma moradia num local sossegado com excelente vista e a cerca de 3 minutos do centro de Arcos de Valdevez, esta será a propriedade ideal para si. Este imóvel encontra-se em processo de alteração de áreas a nível de terreno, sendo que ficará com cerca de 900m2 de área total como anunciado, bem como em processo de obtenção da licença de utilização. Procura investir no Alto Minho? Não perca a oportunidade e seja o próximo a disfrutar das coisas boas que esta região tem para lhe oferecer. Venha visitar mais um imóvel Arcobarca. A Arcobarca além de ser agência mediadora de imóveis, é também intermediária de crédito registada junto do Banco de Portugal com o número de registo 0003433. A Arcobarca não concede crédito, sendo neste âmbito de actividade exclusivamente a intermediação com as instituições financeiras com quem tem contractos de vinculação. Os serviços de Intermediação de Crédito prestados pela Arcobarca são isentos de qualquer custo para os seus clientes.
AMI: 8178
Ref. Externa: AV6132
Id: 866180
Inicie sessão para guardar este imóvel e aceder à sua lista de favoritos em qualquer dispositivo.
3 Quartos
1 WCs
Área bruta : 61 m²
Moradia para restauração - em Grade - Arcos de Valdevez O seu sonho passa por um projeto de alojamento local? ou procura viver em harmonia com a natureza? Em um terreno de 265m² está moradia de 61m² em Ruina aguarda para se tornar um lindo recanto no alto do monte, a poucos minutos do centro dos Arcos de Valdevez. Dista cerca de 5 Km da sede do concelho, nas faldas da serra da Peneda, e ocupa uma área de cerca de 485 ha. Tem por limites: a norte, Carralcova e Gondoriz; a sul Vale, a Nascente Cabana Maior e a poente Ázere e Couto. Diz José Cândido Gomes, na sua obra As Terras de Valdevez, que: "Na sua área há apenas os montes da Costa e da Pena. Neste monte, que pertence em parte à freguesia do Vale, aparecem vestígios de mamoas." É banhada a freguesia pelos rios de Padornello e Ázere e pelo ribeiro chamado de Grade, no qual há um poço muito fundo no lugar do Xarinho. A lenda diz que ao fundo d'este poço há uma porta que comunica com a torre dos Abreus Agende já a sua visita !!! Se procura Consultoria Imobiliária de excelência, encontrá-la-á aqui, na Decisões e Soluções - Alto Minho Viana do Castelo. Tem conosco um acompanhamento personalizado à medida do seus pedidos e características. O nosso serviço de intermediação de crédito é o mais profissional e assertivo do mercado. Sem rodeios, sem demoras, nem incertezas, conheça conosco as melhores condições do mercado para o seu crédito habitação e a consolidação dos seus compromissos financeiros, para que possa conquistar a casa dos seus sonhos! Escolha Exclusiva, Mediação Imobiliária, Lda. Ami 18126. Intermediário de crédito vinculado pelo Banco de Portugal sob n. 6319. Sobre ARCOS DE VALDEVEZ pode ser considerado uma pequena caixa de sedução, encravado no Vale do Vez, Arcos conserva todo o encanto característico do ALTO MINHO: paisagem verde, frescura abundante, arquitetura solarenga e um rio que espalha a vaidade de toda uma vila carregada de História. A Terra de Valdevez e as suas gentes mergulham raízes no tempo longínquo. Franjeada pelo poético Lima, sulcada ao meio, e de ponta a ponta, pelo idílico Vez que lhe dá o nome, abeberada, em muitas direções por saltitantes e cristalinos ribeiros, caprichosamente moldada pela natureza, ora em montanhas de empinado recorte Soajo e Peneda e extasiantes miradouros, ora em preguiçosas encostas em que amadura o vinho e, sonolentas várzeas onde cresce o pão.
AMI: 18126
Ref. Externa: VCSTLSS29
Id: 813416
Inicie sessão para guardar este imóvel e aceder à sua lista de favoritos em qualquer dispositivo.
4 Quartos
1 WCs
Área bruta : 55 m²
Moradia para restauro - em Grade - Arcos de Valdevez O seu sonho passa por um projeto de alojamento local? ou procura viver em harmonia com a natureza? Em um terreno de 282m² está moradia de 55m² em Ruina aguarda para se tornar um lindo recanto no alto do monte, a poucos minutos do centro dos Arcos de Valdevez. Dista cerca de 5 Km da sede do concelho, nas faldas da serra da Peneda, e ocupa uma área de cerca de 485 ha. Tem por limites: a norte, Carralcova e Gondoriz; a sul Vale, a Nascente Cabana Maior e a poente Ázere e Couto. Diz José Cândido Gomes, na sua obra As Terras de Valdevez, que: "Na sua área há apenas os montes da Costa e da Pena. Neste monte, que pertence em parte à freguesia do Vale, aparecem vestígios de mamoas." É banhada a freguesia pelos rios de Padornello e Ázere e pelo ribeiro chamado de Grade, no qual há um poço muito fundo no lugar do Xarinho. A lenda diz que ao fundo d'este poço há uma porta que comunica com a torre dos Abreus Agende já a sua visita !!! Se procura Consultoria Imobiliária de excelência, encontrá-la-á aqui, na Decisões e Soluções - Alto Minho Viana do Castelo. Tem conosco um acompanhamento personalizado à medida do seus pedidos e características. O nosso serviço de intermediação de crédito é o mais profissional e assertivo do mercado. Sem rodeios, sem demoras, nem incertezas, conheça conosco as melhores condições do mercado para o seu crédito habitação e a consolidação dos seus compromissos financeiros, para que possa conquistar a casa dos seus sonhos! Escolha Exclusiva, Mediação Imobiliária, Lda. Ami 18126. Intermediário de crédito vinculado pelo Banco de Portugal sob n. 6319. Sobre ARCOS DE VALDEVEZ pode ser considerado uma pequena caixa de sedução, encravado no Vale do Vez, Arcos conserva todo o encanto característico do ALTO MINHO: paisagem verde, frescura abundante, arquitetura solarenga e um rio que espalha a vaidade de toda uma vila carregada de História. A Terra de Valdevez e as suas gentes mergulham raízes no tempo longínquo. Franjeada pelo poético Lima, sulcada ao meio, e de ponta a ponta, pelo idílico Vez que lhe dá o nome, abeberada, em muitas direções por saltitantes e cristalinos ribeiros, caprichosamente moldada pela natureza, ora em montanhas de empinado recorte Soajo e Peneda e extasiantes miradouros, ora em preguiçosas encostas em que amadura o vinho e, sonolentas várzeas onde cresce o pão.
AMI: 18126
Ref. Externa: VCSTLSS30
Id: 813418
Inicie sessão para guardar este imóvel e aceder à sua lista de favoritos em qualquer dispositivo.
3 Quartos
3 WCs
Área bruta : 200 m²
Apresentamos uma oportunidade exclusiva de adquirir uma moradia T3 de arquitetura contemporânea e funcionalidade exemplar. Situada numa localização privilegiada, com acessos facilitados, esta propriedade é a combinação perfeita de design moderno e conforto. Ao entrar, é recebido por um hall espaçoso que conduz a uma sala ampla, banhada por luz natural e com uma vista deslumbrante para o jardim, complementada por um sofisticado recuperador de calor. A cozinha, moderna e totalmente equipada, dispõe de uma prática despensa e acesso direto à garagem e ao jardim. A escada aberta, um elemento de destaque na decoração, não só enriquece o ambiente com a sua estética como permite a fluidez da luz por toda a casa. No andar superior, um hall de dimensões generosas distribui harmoniosamente as áreas privadas, que incluem três quartos acolhedores, um dos quais é uma suite com closet e varanda privativa, oferecendo um refúgio tranquilo e elegante. A casa de banho principal, espaçosa e com bons acabamentos, serve convenientemente os quartos restantes. Esta moradia é uma verdadeira joia em Arcos de Valdevez, uma região conhecida pela sua beleza natural e qualidade de vida. Convidamo-lo a descobrir o lugar onde o seu futuro lar espera por si. Venha visitar e deixe-se encantar por cada detalhe pensado para o seu bem-estar.
AMI: 8178
Ref. Externa: AV6059
Id: 801008
Inicie sessão para guardar este imóvel e aceder à sua lista de favoritos em qualquer dispositivo.
3 Quartos
5 WCs
Área útil : 136 m²
Está à procura de uma quinta ? Não perca mais tempo ! Esta fantástica quinta no distrito de Viana do Castelo tem muito potencial para quem procura um local para fazer casamentos ou mesmo até uma quinta para lazer. Localizada em Arcos de Valdevez, um local de paisagens naturais e deslumbrantes. Inserida num terreno de 17880mtrs2 (todo vedado), a moradia conta com uma área de construção de cerca de 320mtrs2, distribuída em 2 pisos e com uma excelente exposição solar. Quinta localizada a 10 minutos do centro da cidade. A quinta é constituída por: - 3 Quartos (3 Suítes) - 5 Casas de banho - Terraço - Aquecimento Central - Lavandaria - Varanda - Cozinha Equipada - Árvores de Fruto - Jardim - Cozinha regional - Forno a lenha - Minas de água No primeiro andar encontramos 3 suítes, sala, cozinha equipada e WC de serviço, assim como um terraço onde pode usufruir das vistas da quinta. No R/C temos um salão amplo com cozinha regional e acesso ao jardim. O local ideal para receber família e amigos! Temos também WC completo, lavandaria e zona de máquinas. Por todo a extensão do terreno podemos encontrar variadas árvores de fruto, assim como minas de água e muito espaço para desfrutar da natureza. Se procura um refúgio na natureza, este é o imóvel para si! Para além deste imóvel, dispomos de mais imóveis que de certeza encaixam naquilo que pretende. Tratamos de todo o processo de crédito habitação e acompanhamento até ao ato da escritura de forma gratuita. Mais informações sobre este ou outro imóvel e marcações de visita, contacte-nos: 935 755 813 (chamada para a rede móvel nacional) Chave Nova - Rua Mestre Guilherme Camarinha, 7742 4200-537 Porto.
AMI: 7142
Ref. Externa: PSJ/00064
Id: 565122
Inicie sessão para guardar este imóvel e aceder à sua lista de favoritos em qualquer dispositivo.
4 Quartos
Área útil : 315 m²
Moradia geminada T4 localizada na zona urbana da vila de Arcos de Valdevez. A moradia é constituída por 3 pisos e está inserida num lote de terreno de 479 m2. A cave destina-se a comércio e conta, também, com acesso pelo arruamento do Campo da Feira. O 1º e 2º pisos destinam-se a habitação. Marque já a sua visita. Ao escolher a VALDOVEZ para comprar, vender ou arrendar o seu imóvel está a confiar numa equipa experiente, profissional e comprometida a encontrar a solução para o seu imóvel. Propiciamos a respetiva promoção do imóvel em vários portais do género, nas redes sociais e em campanhas de marketing. Em caso de necessidade garantimos acesso a condições de financiamento competitivas, através dos protocolos exclusivos estabelecidos com a banca. Por intermédio da nossa empresa do ramo da construção asseguramos a reabilitação, a remodelação ou mesmo construção integral de qualquer tipo de empreendimento. São mais de 35 anos de experiência no mercado imobiliário e o nosso compromisso é o de continuarmos a pautar a nossa conduta pela credibilidade e pela confiança. VALDOVEZ – Mediação Imobiliária, Lda. Mais do que negócios
AMI: 7194
Ref. Externa: 198
Id: 403539
Inicie sessão para guardar este imóvel e aceder à sua lista de favoritos em qualquer dispositivo.
Este agente é especialista nesta zona:
Inicie sessão para ocultar este imóvel das suas pesquisas e manter a sua lista de resultados organizada.
Guardar favoritos
Este imóvel foi guardados nos seus favoritos com sucesso.
Para poder guardar pesquisa deverá ter a sua sessão iniciada.
Caso não tenha uma conta, deverá criar uma.
A sua pesquisa foi guardada com sucesso!
© Copyright 2023 | CASACERTA. All rights reserved
Este site utiliza cookies. Ao navegar no site estará a consentir a sua utilização.
Para mais informações sobre os cookies pode consultar a
política de privacidade.