Lista
Comprar
Arrendar
3 Quartos
2 WCs
Área bruta : 1926 m²
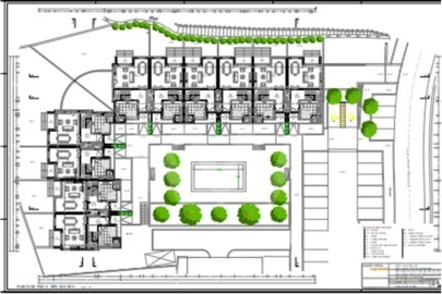
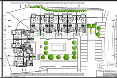
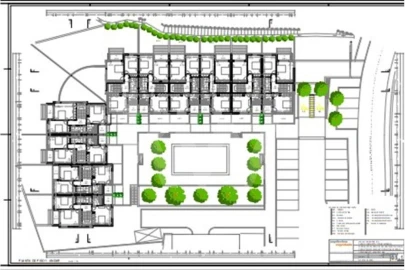
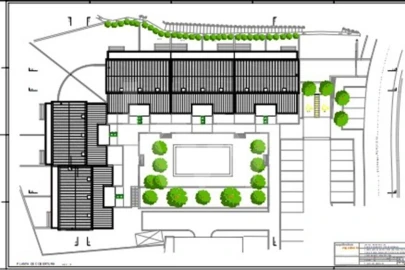
A tranquilidade, a natureza, todo o ambiente envolvente proporciona um experiência única a todos os residentes neste condomínio exclusivo. O condomínio é constituído por 10 moradias onde a qualidade de construção e o requinte dos acabamentos se destacam. Piso -1Garagem para 2 carrosR/CHall de entrada, cozinha equipada com móveis em laminado, lavandaria, casa de banho de serviço, sala com acesso à varanda e ao jardim com recuperador de calor.Piso 1Hall, 2 quartos e 1 varanda, suite e varanda, com outra casa de banho de apoio aos quartos. Os quartos possuem todos roupeiros embutidos em carvalho, o pavimento é executado em pavimento flutuante AC4 e as portas interiores com acabamento em carvalho. As casas de banho são compostas por sanita, lavatório, base de duche ou banheira e bidé. As moradias têm pré instalação de ar condicionado, recuperador de calor na sala, pré instalação de sistema solar e ventilação forçada. Características: Características Exteriores - Jardim; Piscina exterior; Características Interiores - Hall de entrada; Electrodomésticos embutidos; Casa de Banho da Suite; Roupeiros; Vistas - Vista campo; Outras características - Garagem; Varanda; Garagem para 2 Carros; Cozinha Equipada; Suite; Moradia em Banda;
AMI: 23524
Ref. Externa: 1214-2757
Id: 1431027
Inicie sessão para guardar este imóvel e aceder à sua lista de favoritos em qualquer dispositivo.
4 Quartos
5 WCs
Área bruta : 193 m²
Aldeamento turístico composto por T2 no piso térreo, T1+1 no piso superior e um T0 independente. Totalmente mobilados e equipados. Este empreendimento foi totalmente reconstruído em 2020 e dispõe, além das fracções habitacionais, de zona de churrasqueira, piscina exterior, estacionamento com carregador para viaturas eléctricas e zonas de lazer no exterior exclusivas a cada fracção. Equipada com painéis solares, bomba de calor, ar condicionado, wifi em todo o aldeamento, luzes led, portão automático, excelentes acabamentos e materiais e água de nascente. Dotada de excelentes vistas panorâmicas e de um exposição solar nascente/sul/poente. Bons acessos por estrada alcatroada que o levam a uma aldeia no sossego da montanha, a 15 minutos do centro de ponte de Lima e de Arcos de Valdevez. Possui licença de alojamento local. Atualmente na região de Arcos de Valdevez, os alojamentos existentes não são suficientes para a enorme demanda do público, pelo que a taxa de ocupação expectável será de uma média bastante elevada ao longo de todo o ano. Procura investir no Alto Minho? Não perca a oportunidade e seja o próximo a disfrutar das coisas boas que esta região tem para lhe oferecer. Venha visitar mais um imóvel Arcobarca. A Arcobarca além de ser agência mediadora de imóveis, é também intermediária de crédito registada junto do Banco de Portugal com o número de registo 0003433. A Arcobarca não concede crédito, sendo neste âmbito de actividade exclusivamente a intermediação com as instituições financeiras com quem tem contractos de vinculação. Os serviços de Intermediação de Crédito prestados pela Arcobarca são isentos de qualquer custo para os seus clientes.
AMI: 8178
Ref. Externa: AV6168
Id: 948131
Inicie sessão para guardar este imóvel e aceder à sua lista de favoritos em qualquer dispositivo.
Este agente é especialista nesta zona:
Inicie sessão para ocultar este imóvel das suas pesquisas e manter a sua lista de resultados organizada.
Guardar favoritos
Este imóvel foi guardados nos seus favoritos com sucesso.
Para poder guardar pesquisa deverá ter a sua sessão iniciada.
Caso não tenha uma conta, deverá criar uma.
A sua pesquisa foi guardada com sucesso!
© Copyright 2023 | CASACERTA. All rights reserved
Este site utiliza cookies. Ao navegar no site estará a consentir a sua utilização.
Para mais informações sobre os cookies pode consultar a
política de privacidade.