Lista
Comprar
Arrendar
360.000 €
1 WCs
Área bruta : 444 m²
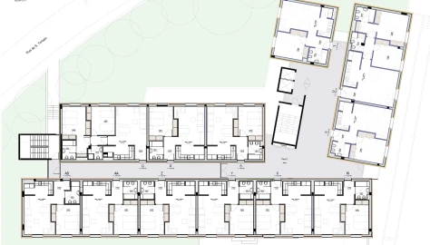
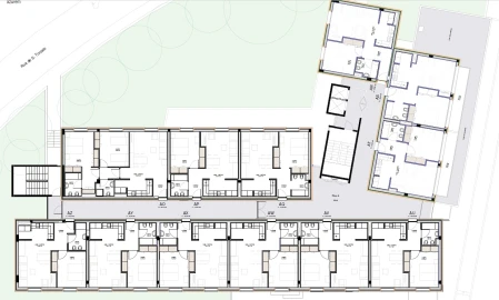
Espaço Comercial junto ao Campus da Universidade do Minho, Polo de Guimarães. O espaço possui terraço e lugar de garagem. Este fantástico imóvel insere-se num novo empreendimento imobiliário situado numa localização privilegiada, junto ao polo da Universidade de Guimarães e a poucos minutos do centro da cidade. O empreendimento encontra-se a apenas 2 minutos a pé do Campus Universitário de Azurém e do mercado tradicional, beneficiando ainda da proximidade ao centro urbano e aos principais acessos de entrada e saída da cidade. A Universidade do Minho tem vindo a afirmar-se nos primeiros lugares dos rankings internacionais de prestígio académico, o que tem contribuído para o aumento significativo da procura de alojamento, tanto por estudantes estrangeiros como nacionais, que privilegiam qualidade e proximidade aos campus universitários. Aliando localização estratégica a comodidade e o acesso, este imóvel é ideal para rentabilidade do seu negócio. Fale connosco para mais informações.
AMI: 26010
Ref. Externa: ANT_S_GUI_P0_FA
Id: 1562680
Inicie sessão para guardar este imóvel e aceder à sua lista de favoritos em qualquer dispositivo.
50.000 €
1 WCs
Área bruta : 39 m²
Aproveite uma Oportunidade Única em Guimarães! Instale o seu negócio numa loja completamente renovada, localizada a poucos metros da Universidade do Minho. Com 30 m² de área útil, uma casa de banho privada e uma arrecadação de 9 m², este espaço oferece a combinação perfeita entre visibilidade e funcionalidade. Características Principais: Área Total: 39 m² (30m² loja + 9m² arrecadação) Localização: Azurém, Guimarães (Ponto de grande circulação e acesso) Condição: Totalmente renovada (Pronta a usar, sem necessidade de obras) Comodidades: Casa de banho privada, espaço extra para stock/arrumos Ideal para: Diversos tipos de negócio (comércio, serviços, escritório) Não perca a oportunidade de lançar o seu negócio num local privilegiado. Contacte-nos já para agendar uma visita e conhecer o potencial deste espaço!
AMI: 25358
Ref. Externa: 182
Id: 1516935
Inicie sessão para guardar este imóvel e aceder à sua lista de favoritos em qualquer dispositivo.
360.000 €
Área bruta : 322 m²
Loja com 322 m2 inserida no novo empreendimento na cidade berço, Guimarães. Novo empreendimento a nascer junto do polo da Universidade de Guimarães e a escassos minutos do centro da cidade. Excelente oportunidade de investimento para arrendamento a estudante, o empreendimento fica a 2 minutos a pé do Campus de Azurém, mas também ao mercado tradicional, devido à sua excelente localização, junto ao centro e aos acessos de entrada e saída da cidade. A Universidade do Minho tem vindo a ocupar lugares de topo nos rankings internacionais de reconhecimento académico, atraindo um número crescente de estudantes estrangeiros, mas também nacionais, à procura de alojamento de qualidade e proximidade com os campus. Pensado na conveniência e praticidade da sua localização, os apartamentos oferecem todo o conforto e praticidade com cozinhas totalmente equipadas com placa de indução, forno, microondas, frigorífico combinado, exaustor e máquina de lavar louça, bem como de requinte nos acabamentos e qualidade de construção com excelente isolamento térmico e acústco. Todos os apartamentos oferecem lugar de garagem. T1 com garagem desde €168.750 T2 com garagem desde €230.000 A Castelhana agora é Dils. Com mais de 25 anos de experiência no mercado imobiliário português, a Castelhana é agora Dils, uma empresa internacional com mais de 50 anos de história e presença em Itália, Países Baixos, Espanha e Portugal. Sob a marca Dils, continuamos a prestar serviços especializados de consultoria, compra, venda, arrendamento e desenvolvimento de imóveis residenciais. Estamos ao seu lado, com uma equipa dedicada nos nossos escritórios em Lisboa, Estoril, Comporta, Porto e Algarve, prontos para apoiar o seu próximo investimento. Quando o mundo muda, é hora de reescrever as regras. It's time to imagine your future space.
AMI: 3497
Ref. Externa: 21144
Id: 1465401
Inicie sessão para guardar este imóvel e aceder à sua lista de favoritos em qualquer dispositivo.
360.000 €
2 Quartos
1 WCs
Área bruta : 322 m²
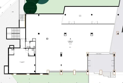
Espaço Comercial em Azurém - Excelente Localização Este espaço comercial está estrategicamente situado na freguesia de Azurém, a apenas 1 minuto a pé da Universidade do Minho e das residências universitárias. Uma localização privilegiada que o torna uma excelente oportunidade para investidores ou para quem pretende iniciar ou expandir o seu negócio, beneficiando da proximidade ao Centro Histórico de Guimarães, bem como de comércio, serviços e transportes. Características: - Área ampla e versátil - Caixilharia em alumínio anodizado com rutura térmica e vidros duplos térmicos, garantindo conforto e eficiência energética - 1 casa de banho - 1 lugar de garagem Não perca esta oportunidade! Agende já a sua visita com: José Pereira CasaFama Braga - 4MFORLIFE Investimentos, Unipessoal, Lda. AMI 24719
AMI: 24719
Ref. Externa: CFB-360-46
Id: 1362097
Inicie sessão para guardar este imóvel e aceder à sua lista de favoritos em qualquer dispositivo.
30.000 €
Área bruta : 30 m²
Apresentamos esta loja comercial com cave, já arrendada, situada numa das zonas mais estratégicas de Azurém, em Guimarães , uma excelente oportunidade tanto para quem quer abrir o seu negócio como para quem procura um investimento seguro com rentabilidade imediata. Localizada no rés-do-chão de um edifício de 8 pisos destinados a habitação, comércio e serviços, esta loja destaca-se pela versatilidade e funcionalidade, adaptando-se facilmente a diferentes tipos de atividades comerciais ou de prestação de serviços. Conta ainda com uma cave ampla, perfeita para armazenamento, apoio logístico ou expansão da área útil, proporcionando uma solução prática e eficiente para qualquer operação. Inserida num centro comercial de zona urbana consolidada, com bons acessos e apenas a poucos minutos do centro da cidade de Guimarães Seja para iniciar um novo projeto ou reforçar o seu portfólio de investimentos, esta é uma oportunidade a não perder. Agende já a sua visita e descubra o potencial deste espaço em Azurém! Ref. 1330133/25GM_2
AMI: 22200
Ref. Externa: 1330133/25GM_2
Id: 1316442
Inicie sessão para guardar este imóvel e aceder à sua lista de favoritos em qualquer dispositivo.
360.000 €
2 WCs
Área bruta : 322 m²
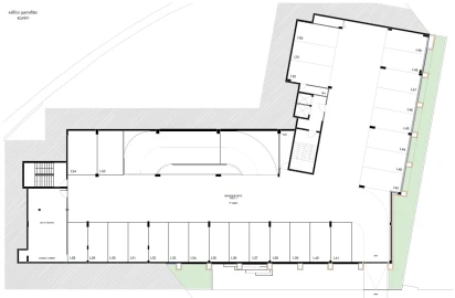
Loja para comércio com 322 m2 + 67 m2 de área exterior/esplanada com orientação nascente e poente , no rés do chão de um edifício com 51 habitações. Tem um lugar de garagem na cave e arrumo fechado com 9 m2 Está integrada num empreendimento junto às residências universitárias e ao PIEP – Pólo de Inovação em Engenharia de Polímeros. Localizada a 1km do centro histórico de Guimarães, com transportes públicos a 200 metros. Entrega prevista em junho 2025. Características gerais: Ar-Condicionado; Bomba de Calor para aquecimento de águas; Iluminação com projetores de embutir no teto falso, com lâmpada LED; Caixilharia de alumínio com ruptura térmica; Vidros duplos térmicos; Sinal TV e Linha Telefónica com tomadas; Lugar de garagem na cave, com ficha para carregamento – portão automático + arrumo fechado. Margem Imobiliária Mediação na compra, venda e arrendamento de imóveis. Oferecemos acompanhamento em todo o processo, tanto aos compradores, como aos vendedores, desde a primeira reunião até à conclusão do negócio/escritura. Na compra e na venda, que seja um bom negócio! A Margem Imobiliária existe para o bem servir, adaptando-se às suas necessidades da forma mais personalizada e profissional que cada situação requer. O objetivo não é que saiba o nosso nome, é merecer que nos trate por “a minha imobiliária“!
AMI: 14598
Ref. Externa: MP0357LJ
Id: 1028035
Inicie sessão para guardar este imóvel e aceder à sua lista de favoritos em qualquer dispositivo.
360.000 €
Área bruta : 345 m²
Loja ampla, com boa exposição solar e excelente localização!Predimed Imobiliária, Mediação Imobiliária, Lda.Avenida Brasil 43, 12º Andar, 1700-062 LisboaLicença AMI nº 22503Pessoa Coletiva nº 517 239 345Seguro Responsabilidade Civil: Nº de Apólice RC65379424 Fidelidade Características: Acesso para Deficientes;Arrecadação;Garagem;Tecto Falso
AMI: 13558
Ref. Externa: 047616
Id: 877673
Inicie sessão para guardar este imóvel e aceder à sua lista de favoritos em qualquer dispositivo.
350.000 €
1 WCs
Área bruta : 345 m²
O Empreendimento Guimaflats Residences é o mais recente empreendimento a nascer junto do polo da Universidade de Guimarães e a escassos minutos do centro da cidade. Excelente oportunidade de investimento para arrendamento a estudantes ou quadros deslocados. O empreendimento fica apenas a 2 minutos a pé do Campus Universitário de Azurém, do mercado tradicional, junto ao centro e aos acessos de entrada e saída da cidade. O Empreendimento dispõe de apartamentos T1 e T2 , todos com lugar de garagem. Pensados para oferecer todo o conforto com cozinhas totalmente mobiladas e equipadas com placa, forno, micro-ondas, frigorífico combinado, exaustor e máquina de lavar louça. Bons acabamentos e qualidade de construção com excelentes níveis de isolamento térmico e acústico. A Universidade do Minho tem vindo a ocupar lugares de topo nos rankings internacionais de reconhecimento académico, atraindo um número crescente de estudantes estrangeiros, mas também nacionais, à procura de alojamento de qualidade e proximidade com os campus. Todos os apartamentos oferecem lugar de garagem. T1 com garagem desde €168.750,00€ T2 com garagem desde €230.000,00€ Imóvel com a Ref.ª 1502A/23
AMI: 18500
Ref. Externa: 1502A/23
Id: 741136
Inicie sessão para guardar este imóvel e aceder à sua lista de favoritos em qualquer dispositivo.
360.000 €
1 WCs
Área bruta : 345 m²
Descubra o charme de viver em Guimaflats Residences, onde a qualidade se encontra com o conforto. Apartamentos T1 e T2 com garagem, junto a Universidade do Minho em Azurém, Guimarães. Desperte o desejo ao apresentar os detalhes dos acabamentos! Hall de Entrada/Circulações com paredes em pladur e pavimento flutuante FINSA AC5. Cozinha/Lavandaria equipada com pavimento em FINSA AC5, tampo em "Nanuglass - Branco" e eletrodomésticos "BALAY". Sala com pavimento flutuante FINSA AC5 e aquecimento através de emissores térmicos elétricos de baixo consumo. Quartos com pavimento flutuante FINSA AC5, roupeiros lacados em branco e emissores térmicos elétricos. Instalações Sanitárias revestidas com cerâmico, louças Sanindusa "Urb Y" e mobiliário suspenso em MDF hidrófugo lacado branco. Previsão de conclusão da obra no primeiro semestre de 2025. Reserve agora o seu espaço único! Descubra o seu novo lar com a RealtyOneGroup. ?✨ #GuimaflatsResidences #VidaEmGuimarães #RealtyOneGroup O Grupo Sucesso, durante 23 anos foi Líder nas duas maiores redes imobiliárias - Nr.º 1 no Norte | Nr.º 4 Nacional | Nr.º 16 Europa. Hoje somos o Master em Portugal da marca Realty One Group, que é a marca que mais cresce nos Estados Unidos, com mais de 17 anos, e quase 1.000 lojas e 20.000 colaboradores em 16 países, estando já aberto em Portugal, Espanha, Itália e em breve em França e Alemanha. O presidente da Realty One Group é o Vinnie Tracey, que foi presidente durante 40 anos de uma das marcas lideres mundiais, e é hoje é o Líder da Realty One Group, que com toda sua experiência esta a tornar a Realty One Group, uma das marcas Lideres nos Estados Unidos, e que já alguns anos, se espalhar para todo mundo. https://www.realtyonegroup.com/leadership/vinnie-tracey https://franchising.realtyonegroup.com Motivos para escolher o Grupo Sucesso No Grupo Sucesso - AS PESSOAS PRIMEIRO.. O Grupo Sucesso conta há vários anos, com vários agentes premiados. -Com a experiência única no mercado imobiliário com mais de 20 anos e 18.000 negócios, os nossos consultores podem dar-lhe o melhor serviço e acompanhamento, levando a escolher o melhor caminho para as suas necessidades. -Os consultores têm formação de alto nível, nacional e internacional, como os melhores formadores nacionais e internacionais, em todas vertentes do negócio, e de forma gratuita para o pode ajudar com mais eficiência. -Somos a primeira empresa nacional que teve serviço 360, onde pode fazer tudo nas nossas loja, desde início da compra a fase da escritura, quer seja a pronto pagamento ou com financiamento, com 7 pessoas no departamento processual e 3 advogados, para que tenha todo apoio necessário, e possa usufruir dos prazeres da vida com a sua família. “Enquanto usufrui dos prazeres da sua vida, compre e venda o seu imóvel de forma rápida e segura...” ONE house, ONE dream, ONE life (style) A Realty One Group, é a marca que mais cresce nos Estados Unidos, com mais de 17 anos, e quase 1.000 lojas e 20.000 colaboradores em 16 países, estando já aberto em Portugal, Espanha, Itália e em breve em França e Alemanha. O presidente da Realty One Group é o Vinnie Tracey, que foi presidente durante 40 anos de uma das marcas líderes mundiais, e é hoje é o Líder da Realty One Group, que com toda sua experiência esta a tornar a Realty One Group, uma das marcas Líderes nos Estados Unidos, e que já alguns anos, se espalhar para todo mundo. Motivos para escolher a ONE AS PESSOAS PRIMEIRO.. Contamos com vários anos, com vários agentes premiados. -Os consultores têm formação de alto nível nacional e internacional, como os melhores formadores nacionais e internacionais, em todas vertentes do negócio, e de forma gratuita para o pode ajudar com mais eficiência. “Enquanto usufrui dos prazeres da sua vida, compre e venda o seu imóvel de forma rápida e segura...” ONE house, ONE dream, ONE life (style)
AMI: 8815
Ref. Externa: ONE0011245-135
Id: 704852
Inicie sessão para guardar este imóvel e aceder à sua lista de favoritos em qualquer dispositivo.
360.000 €
Área bruta : 345 m²
Apresento-lhe esta Loja em fase de construção.Empreendimentoque oferece qualidade e conforto, destacando-se as linhas contemporânease vista desafogada.Alocalização estratégica deste espaço comercial torna-o uma escolha ideal para investimento.Próximo de instituições académicas, apenas a 2 minutos do Campus de Azurém, a 2km do centro histórico e a 600m2 da circular urbana e oferece um fácil acesso à entrada e saída da cidade. Dispõe ainda de espaço de arrumos e lugar de garagem. Predimed Imobiliária, Mediação Imobiliária, Lda.Avenida Brasil 43, 12º Andar, 1700-062 LisboaLicença AMI nº 22503Pessoa Coletiva nº 517 239 345Seguro Responsabilidade Civil: Nº de Apólice RC65379424 Fidelidade
AMI: 13558
Ref. Externa: 044546
Id: 688913
Inicie sessão para guardar este imóvel e aceder à sua lista de favoritos em qualquer dispositivo.
350.000 €
Área bruta : 345 m²
Venda de loja nova na freguesia de Azurém, Guimarães. Empreendimento a surgir próximo da universidade do minho, em construção. Loja com lugar de garagem Fi-3489 Empreendimento em construção com data prevista para conclusão 2025. Para mais informação ou visitar contate Munditroca Imobiliária.
AMI: 7336
Ref. Externa: 3489_2
Id: 623703
Inicie sessão para guardar este imóvel e aceder à sua lista de favoritos em qualquer dispositivo.
160.000 €
Área útil : 98 m²
INVESTIMENTO - Loja para comércios/serviços em Azurém, GuimarãesO imóvel encontra-se arrendado por 800€/mensais. Contrato celebrado pelo prazo de 3 anos, com início em 01 de dezembro de 2024 e termo no dia 30 de novembro de 2027, renovável sucessivamente por períodos de 1 ano.Loja toda renovada, em excelente estado, com licença para comércio/serviços localizada junto de vários comércios locais de horário alargado.Foi inicialmente equipado para salão de estética/cabeleireiro, possuindo excelentes condições para este ramo de negócio.O seu interior é composto por:- Sala ampla, acessível pelo exterior;- 2 Salas internas, um delas com luz natural;- Copa/cozinha.- 1 WC mais uma base de duche numa das salas.Conta ainda as seguintes características:- Caixilharia nova com vidros duplos com rotura térmica;- Chão em material vinílico;- Ar condicionado por condutas;- 2 aparelhos split de ar condicionado;- Sistema de som em todas as divisões com controlo independente;- Luzes LED;- Cilindro termoacumulador;- Paredes/divisórias em pladur;- Arrecadação na zona das garagens;- Boa exposição solar com entrada de luz natural.A sua localização permite-lhe estar:- Em local fortemente habitado;- Junto a diversas indústrias;- A 5 minutos do centro de Guimarães.Este imóvel tem potencial para várias atividades comerciais, dependendo da necessidade de cada negócio. Venha conhecer!Referência: ASG23147Por sermos intermediários de crédito devidamente autorizados pelo Banco de Portugal (Reg. 2736) fazemos a gestão de todo o seu processo de financiamento, sempre com as melhores soluções de mercado.Porquê escolher a AS ImobiliáriaCom mais de 14 anos no ramo imobiliário e milhares de famílias felizes, dispomos de 8 agências estrategicamente localizadas, para o servir com proximidade, corresponder à suas expectativas e ajudá-lo a adquirir a sua casa de sonho. Compromisso, Competência e Confiança são os nossos valores que entregamos aos nossos Clientes na hora de comprar, arrendar ou vender o seu imóvel.A nossa prioridade é a sua Felicidade!Especialistas imobiliários em Vizela; Guimarães; Taipas; Felgueiras; Lousada; Santo Tirso; Barcelos; S. João da Madeira; Porto; Lisboa; Braga
AMI: 13249
Ref. Externa: ASG23147
Id: 614535
Inicie sessão para guardar este imóvel e aceder à sua lista de favoritos em qualquer dispositivo.
360.000 €
1 WCs
Área bruta : 322 m²
Loja comercial ampla com casa de banho e terraço com vista para a Rua de São Torcato, com 322 m2. Possui lugar de garagem e arrecadação.
AMI: 22200
Ref. Externa: 1330018/23GM_A
Id: 587436
Inicie sessão para guardar este imóvel e aceder à sua lista de favoritos em qualquer dispositivo.
360.000 €
Área bruta : 444 m²
Empreendimento com localização privilegiada.Localização: Azurém, GuimarãesComposto por:- 43 apartamentos de tipologia T1;- 8 apartamentos de tipologia T2;- 1 espaço comercial.O espaço comercial localiza-se no piso R/Ch.Área bruta: 345,28 m2Útil: 322 m2Arrumos: 8,78 m2 Lugar de garagem: 14.50 m2Quer esteja no mercado para comprar, ou vender um imóvel, trabalharemos consigo, de forma personalizada, para que consigamos, juntos, o melhor negócio.A nossa equipa de consultores imobiliários é experiente, formada e orientada para a obtenção de resultados e serviço ao cliente. Sabemos que não basta uma ótima carteira de imóveis para atender às necessidades de quem procura uma casa. Preocupamo-nos em estudar o mercado local para que lhe possamos dar as melhores recomendações. Diga-nos o que procura, e nós iremos ajudá-lo/a.
AMI: 20927
Ref. Externa: MP299
Id: 536602
Inicie sessão para guardar este imóvel e aceder à sua lista de favoritos em qualquer dispositivo.
345.000 €
Área bruta : 345 m²
Loja, com Lugar de Garagem ao Polo Universitário de Guimarães Localizado no novo empreendimento, junto ao Polo Universitário, Universidade de Arquitetura, próximo a igreja de São Damião, Castelo de Guimarães.Com uma loja e 51 apartamentos com tipologias T1 e T2 o local ideal para investir ou até mesmo viver em família.Cozinhas totalmente equipadas, aquecimento, lugar de estacionamento.Agende Hoje Mesmo a sua visita!DOMUS TRIBUTO IMOBILIÁRIANascemos para fazer a diferença, crescer de forma consolidada, criar compromisso para a vida com objectivo claro e inalterável do reconhecimento e satisfação dos nossos clientes.Com uma equipa com vasta e diferenciada experiência no sector imobiliário, orientamos os nossos esforços sempre para mantermos um padrão de excelência, sendo o nosso compromisso a sua conquista.ObjetivoQueremos crescer como empresa, e isso só é possível através de uma postura séria que privilegie a relação com o cliente. Não há dois clientes iguais, nem uma solução rápida para os problemas. Por isso, ouvimos, analisamos e depois apresentamos propostas que acrescentem valor.Prestamos um acompanhamento constante em todo o processo de compra ou venda do seu imóvel. Sabemos que é importante mantê-lo/a informado, pois as decisões tomadas podem mudar a sua vida. Finalidade" Queremos prestar um tributo à família, um bom lar é a base de tudo."
AMI: 16899
Ref. Externa: DT1814/MT
Id: 425260
Inicie sessão para guardar este imóvel e aceder à sua lista de favoritos em qualquer dispositivo.
Estes agentes são especialistas nesta zona:
Inicie sessão para ocultar este imóvel das suas pesquisas e manter a sua lista de resultados organizada.
Guardar favoritos
Este imóvel foi guardados nos seus favoritos com sucesso.
Para poder guardar pesquisa deverá ter a sua sessão iniciada.
Caso não tenha uma conta, deverá criar uma.
A sua pesquisa foi guardada com sucesso!
© Copyright 2023 | CASACERTA. All rights reserved
Este site utiliza cookies. Ao navegar no site estará a consentir a sua utilização.
Para mais informações sobre os cookies pode consultar a
política de privacidade.