Lista
Comprar
Arrendar
2 Quartos
2 WCs
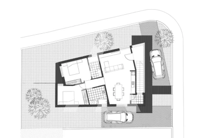
Área útil : 95 m²
Apresentamos este excelente projeto de moradia moderna que irá iniciar brevemente a sua construção, utilizando o inovador sistema Light Steel Frame (LSF) - uma tecnologia de construção de última geração, reconhecida pela sua eficiência, durabilidade e sustentabilidade. A construção em LSF baseia-se numa estrutura em aço leve galvanizado, substituindo os métodos tradicionais de betão e ferro, garantindo uma edificação mais rápida, mais leve e com elevados padrões de qualidade e precisão. Este sistema construtivo oferece inúmeras vantagens, entre as quais: .Elevada resistência estrutural e durabilidade .Excelente desempenho térmico e acústico .Maior eficiência energética .Construção mais rápida, limpa e sustentável .Redução significativa de desperdícios em obra A moradia será pensada com um design contemporâneo, espaços funcionais e acabamentos de qualidade, proporcionando conforto, modernidade e eficiência para o dia a dia. Uma oportunidade única de adquirir um imóvel moderno, construído com tecnologia de ponta, ideal para quem valoriza qualidade, conforto e inovação. Esta Moradia T2+1, situada a poucos minutos da praia, perfeita para quem procura conforto, espaço e uma localização privilegiada. É composta no rés do chão, por uma cozinha e sala em open space, criando um ambiente moderno, amplo e luminoso. E no primeiro andar, a zona privada dispõe de uma suíte, além de dois quartos adicionais, garantindo toda a funcionalidade necessária para a vida familiar. .No exterior, conta com terreno envolvente ideal para momentos de lazer ao ar livre, bem como uma garagem espaçosa para dois carros.
AMI: 9054
Ref. Externa: 1030983/25BL
Id: 1595334
Inicie sessão para guardar este imóvel e aceder à sua lista de favoritos em qualquer dispositivo.
3 Quartos
3 WCs
Área bruta : 375 m²
Moradia T3 com áreas generosas, quartos amplos com roupeiros embutidos, incluindo uma suite master. A sala de estar e a sala de jantar apresentam uma configuração fluida, ideal para receber visitas . Estacionamento privativo para dois veículos com portão automático e espaço adicional para arrumação técnica ou oficina. Espaço Exterior Privativo Um refúgio tranquilo no rés-do-chão que garante luz natural em todo o piso e um espaço seguro para lazer. Localização Premium, situada no 'coração' da cidade, permite o acesso a pé a serviços, comércio local, escolas e transportes, eliminando a dependência de automóvel no dia-a-dia. Esta é a oportunidade ideal para quem procura uma residência familiar moderna, com espaços exteriores privados, sem prescindir da centralidade urbana. ***************************************************************************************************************************************************************** 3-bedroom house with generous areas, spacious bedrooms with built-in wardrobes, including a master suite. The living and dining room has a fluid layout, ideal for entertaining guests. Private parking for two vehicles with automatic gate and additional space for technical storage or a workshop. Private Outdoor Space A tranquil retreat on the ground floor that guarantees natural light throughout the floor and a safe space for leisure. Premium location, situated in the 'heart' of the city, allows walking access to services, local shops, schools and transport, eliminating the need for a car in daily life. This is the ideal opportunity for those seeking a modern family home with private outdoor spaces, without sacrificing urban centrality. ***************************************************************************************************************************************************************** Großzügiges 3-Zimmer-Haus mit geräumigen Schlafzimmern inklusive Einbauschränken, darunter eine Master-Suite. Der offene Wohn- und Essbereich ist ideal für gesellige Abende mit Gästen. Privater Parkplatz für zwei Fahrzeuge mit automatischem Tor und zusätzlichem Platz für Technik oder eine Werkstatt. Privater Außenbereich Ein ruhiger Rückzugsort im Erdgeschoss, der durch natürliches Licht auf allen Etagen einen geschützten Raum zum Entspannen bietet. Die erstklassige Lage im Herzen der Stadt ermöglicht fußläufige Erreichbarkeit von Geschäften, Schulen und öffentlichen Verkehrsmitteln - ein Auto ist im Alltag somit überflüssig. Dies ist die ideale Gelegenheit für alle, die ein modernes Familienhaus mit privatem Außenbereich suchen, ohne auf die zentrale Lage der Stadt verzichten zu müssen. ***************************************************************************************************************************************************************** Maison de 3 chambres aux volumes généreux, chambres spacieuses avec placards intégrés, dont une suite parentale. Le séjour et la salle à manger forment un espace ouvert et convivial, idéal pour recevoir. Parking privé pour deux véhicules avec portail automatique et espace supplémentaire pouvant servir de local technique ou d'atelier. Espace extérieur privatif Un havre de paix au rez-de-chaussée, baigné de lumière naturelle et offrant un espace de détente sécurisé. Emplacement privilégié, en plein cœur de la ville, permettant un accès à pied aux commerces, écoles et transports en commun, et rendant la voiture superflue au quotidien. Cette maison représente une opportunité idéale pour ceux qui recherchent une famille moderne avec espaces extérieurs privatifs, tout en profitant pleinement de la vie urbaine. *****************************************************************************************************************************************************************
AMI: 12919
Ref. Externa: AV26/013
Id: 1587737
Inicie sessão para guardar este imóvel e aceder à sua lista de favoritos em qualquer dispositivo.
4 Quartos
3 WCs
Área bruta : 421 m²
Moradia T4 de Estilo Americano com Jardim Tropical, Piscina, Campo de Ténis e Elevado Potencial de Investimento Apresentamos esta exclusiva moradia T4 de estilo americano, com 227 m² de área útil, onde o conforto, o charme e a versatilidade se unem num cenário verdadeiramente único. Venda disponível exclusivamente para aquisição com capitais próprios. Inserida numa envolvente de jardim tropical cuidadosamente concebido, esta propriedade distingue-se pelas excelentes áreas interiores, luminosidade e ambiente acolhedor. Todas as divisões estão equipadas com ar condicionado, garantindo conforto durante todo o ano. A moradia principal é complementada por um espaço independente T2, ideal para receber visitas com total privacidade ou para rentabilização. No exterior, a propriedade surpreende: Estacionamento coberto para 4 viaturas Pátio com fonte, que reforça o ambiente tranquilo e exclusivo Anexos completos, com salão, cozinha rústica, balneários e ginásio Piscina e campo de ténis na zona posterior, perfeitos para momentos de lazer ou eventos privados A venda inclui ainda um artigo de terreno para construção contíguo à moradia, acrescentando valor, flexibilidade e potencial de desenvolvimento futuro. Uma propriedade ideal tanto para habitação própria permanente como para casa de férias, mas também com enorme potencial de negócio, seja para eventos, turismo ou alojamento local. Um imóvel raro, pensado para quem procura qualidade de vida, privacidade e um investimento sólido, disponível exclusivamente para compradores com capitais próprios.
AMI: 24448
Ref. Externa: CAS_164
Id: 1579704
Inicie sessão para guardar este imóvel e aceder à sua lista de favoritos em qualquer dispositivo.
3 Quartos
1 WCs
Área bruta : 102 m²
Apresentamos-lhe uma verdadeira joia rara... Moradia térrea, isolada para restauro, verdadeiramente localizada no centro da Gafanha da Nazaré, com todo o tipo de serviços e comércios nas imediações... A moradia está inserida num lote de terreno com 443m2, e é composta por 3 quartos sala de estar com lareira, cozinha, 1 Wc, lavandaria, jardim e anexos com arrumos e garagem fechada. Devido á EXCELENTE localização desta propriedade existe também a possibilidade de construção de um prédio multifamiliar, sendo uma excelente oportunidade de negocio para construtores / investidores. Visite hoje mesmo ESTE IMOVEL NÃO POSSUI LICENÇA DE UTILIZAÇÃO ************************************************************************************************************************************* We present you a true rare gem... Single storey house, detached for restoration, truly located in the centre of Gafanha da Nazaré, with all kinds of services and shops in the vicinity... The villa is set on a plot of land with 443m2, and consists of 3 bedrooms, living room with fireplace, kitchen, 1 bathroom, laundry, garden and annexes with storage and closed garage. Due to the EXCELLENT location of this property there is also the possibility of building a multifamily building, being an excellent business opportunity for builders / investors. Visit today ************************************************************************************************************************************* Os presentamos una verdadera joya rara... Casa de una sola planta, independiente para restauración, realmente situada en el centro de Gafanha da Nazaré, con todo tipo de servicios y tiendas en las alrededores... La villa está situada en un terreno de 443 m2 y consta de 3 dormitorios, salón con chimenea, cocina, 1 baño, lavandería, jardín y anexos con trastero y garaje cerrado. Debido a la EXCELENTE ubicación de esta propiedad, también existe la posibilidad de construir un edificio multifamiliar, siendo una excelente oportunidad de negocio para constructores e inversores. Visita hoy ************************************************************************************************************************************* Nous vous présentons un véritable joyau rare... Maison d'un étage, détachée pour restauration, véritablement située au centre de Gafanha da Nazaré, avec toutes sortes de services et de boutiques à proximité... La villa est située sur un terrain de 443 m2, et se compose de 3 chambres, d'un salon avec cheminée, d'une cuisine, d'une salle de bain, d'une buanderie, d'un jardin et d'annexes avec stockage et garage fermé. Grâce à l'EXCELLENTE situation de cette propriété, il est également possible de construire un immeuble multifamilial, ce qui constitue une excellente opportunité d'affaires pour les constructeurs et investisseurs. Visitez-le dès aujourd'hui ************************************************************************************************************************************* Wir präsentieren euch ein wahres seltenes Juwel... Eingeschossiges Haus, freistehend zur Restaurierung, wirklich im Zentrum von Gafanha da Nazaré gelegen, mit allen Arten von Dienstleistungen und Geschäften in der Umgebung... Die Villa befindet sich auf einem Grundstück von 443 m² und besteht aus 3 Schlafzimmern, einem Wohnzimmer mit Kamin, einer Küche, 1 Badezimmer, Waschküche, Garten sowie Anbauten mit Lagerraum und geschlossener Garage. Aufgrund der AUSGEZEICHNETEN Lage dieser Immobilie besteht auch die Möglichkeit, ein Mehrfamilienhaus zu errichten, was eine ausgezeichnete Geschäftsmöglichkeit für Bauträger und Investoren darstellt. Besuchen Sie heute *************************************************************************************************************************************
AMI: 12919
Ref. Externa: AV25/200
Id: 1578019
Inicie sessão para guardar este imóvel e aceder à sua lista de favoritos em qualquer dispositivo.
Sob consulta
4 Quartos
Área útil : 261 m²
Apresentamos esta moradia T4 na Gafanha da Nazaré conhecida pela qualidade de vida e proximidade ao mar. Este é um imóvel ideal para quem procura conforto, espaço amplo e áreas exteriores generosas. Imóvel caracterizado por dois pisos, no piso inferior encontramos um quarto de hospedes, uma sala ampla, um WC, cozinha e copa com recuperador de calor. O piso superior oferece a privacidade de uma suite, dois quartos e um WC de apoio. Imóvel com boa exposição solar, reduzindo consumo de energia e aumentando o conforto. O aquecimento central a pellets mantém a casa quente no inverno com baixo custo e no Verão podemos usufruir de painéis solares para aquecimento das aguas sanitárias. No exterior do imóvel podemos encontrar uma garagem ampla para uma viatura, guardar por exemplo bicicletas e diversas ferramentas. Também no exterior e se gosta de convívios de Verão com a família terá uma churrasqueira totalmente funcional para a confeção de variadas refeições. Com mais de 1700 m² de terreno, a propriedade oferece total privacidade bem como a possibilidade de realização de alguns projetos pessoais como por exemplo uma piscina. Se procura uma moradia com uma construção solida, conforto, áreas generosas e localização privilegiada, esta é uma excelente oportunidade!
AMI: 5707
Ref. Externa: 20560
Id: 1540895
Inicie sessão para guardar este imóvel e aceder à sua lista de favoritos em qualquer dispositivo.
4 Quartos
3 WCs
Área bruta : 280 m²
Situada na avenida principal da Gafanha da Nazaré, esta moradia T4+1 destaca-se pela sua excelente localização, boas áreas e pela presença de terreno e garagens fechadas, oferecendo o equilíbrio perfeito entre conforto, funcionalidade e privacidade. A habitação é composta por dois pisos. No rés do chão, encontra uma sala ampla e luminosa, ideal para momentos de convívio em família, um escritório que proporciona o espaço perfeito para trabalho ou estudo, uma cozinha funcional, uma casa de banho completa, além de uma lavandaria e uma despensa espaçosa, garantindo a máxima organização e praticidade no dia a dia. No primeiro andar, a zona privada da casa conta com três quartos, uma suite com casa de banho privativa, e ainda um quarto interior com janela, que pode ser utilizado como quarto adicional, closet ou espaço de lazer. Há também uma casa de banho completa de apoio aos restantes quartos. A moradia foi remodelada recentemente, mantendo uma boa base estrutural e um estilo acolhedor, necessitando apenas de pequenas melhorias para atingir o seu pleno potencial. No exterior, dispõe de terreno, ideal para jardim, horta ou zona de lazer, e de duas garagens fechadas, oferecendo amplo espaço para estacionamento e arrumação. Esta propriedade representa uma excelente oportunidade de negócio, seja para habitação própria ou investimento, combinando localização privilegiada, espaço e versatilidade numa das zonas mais procuradas da Gafanha da Nazaré. REF: 1040828/25 BR CE: E Isto é Aveiro! Arcada Imobiliária Forca (Aveiro) e Praia da Barra 'Histórias e Pessoas fazem o Lar' Integradas no Grupo Arcada, as nossas agências - Arcada Forca (Aveiro) e Praia da Barra - acompanham as tendências de crescimento no mercado imobiliário, um dos sectores mais dinâmicos em Aveiro. Procuramos soluções para quem procura comprar casa. Porque 'Histórias e Pessoas fazem o Lar'.
AMI: 12841
Ref. Externa: 1040828/25 BR
Id: 1529297
Inicie sessão para guardar este imóvel e aceder à sua lista de favoritos em qualquer dispositivo.
2 Quartos
Área útil : 95 m²
Moradia T2+1 na Gafanha da Nazaré Apresentamos esta moradia T2+1, inserida num terreno de 600 m², que alia modernidade, conforto e funcionalidade. Com 95 m² de área construída, destaca-se pela possibilidade de personalização de acabamentos, permitindo adaptar o espaço ao gosto do comprador. Principais Características: 3 quartos (inclui 1 suíte) Sala ampla em open space com cozinha integrada 1 casa de banho completa Revestimento exterior em OSB e capoto Interior em OSB e pladur Caixilharia em PVC de elevada qualidade Preparação para internet Pré-instalação de ar condicionado Pré-instalação de painéis solares Pavimentos cerâmicos (com possibilidade de escolha de materiais e alterações) Exterior: O terreno de 600 m² oferece múltiplas possibilidades: jardim, lazer ou outros projetos pessoais, assegurando privacidade e tranquilidade. Localização: Situada na Gafanha da Nazaré, numa zona calma, mas próxima de serviços, comércio e principais acessos. Uma excelente oportunidade para quem procura uma casa moderna, eficiente e personalizável, pronta para ser moldada às suas necessidades.
AMI: 11283
Ref. Externa: 6688_384
Id: 1529164
Inicie sessão para guardar este imóvel e aceder à sua lista de favoritos em qualquer dispositivo.
4 Quartos
3 WCs
Área bruta : 200 m²
Moradia Térrea T4 na Gafanha da NazaréApresentamos esta ampla moradia térrea, ideal para famílias que valorizam conforto, espaço e funcionalidade.Com três a quatro quartos versáteis, a casa dispõe de três casas de banho modernas, garantindo praticidade e privacidade para todos os moradores. A suíte principal inclui um closet espaçoso, oferecendo organização e conforto no dia a dia.A cozinha em open space integra-se harmoniosamente com a zona social, promovendo um ambiente acolhedor e funcional para convívio familiar e receção de convidados.A garagem com capacidade para dois carros oferece segurança e comodidade, enquanto a lavandaria separada acrescenta praticidade às tarefas domésticas.O sistema de ar condicionado e bomba de calor assegura conforto térmico ao longo de todo o ano, adaptando-se a todas as estações.Localizada na Gafanha da Nazaré, esta moradia oferece uma excelente qualidade de vida, com acesso facilitado a serviços, comércio e zonas verdes.Moradia em inicio de construção, com data de entrega Agosto de 2026A SUA CASA MORA AQUIPredimed Imobiliária, Mediação Imobiliária, Lda.Avenida Brasil 43, 12º Andar, 1700-062 LisboaLicença AMI nº 22503Pessoa Coletiva nº 517 239 345Seguro Responsabilidade Civil: Nº de Apólice RC65379424 Fidelidade Características: Acesso para Deficientes;Anexos;Estacionamento Ar-Livre;Estacionamento Coberto;Garagem;Jardim;Muro;Terraço;Parqueamento;Varanda;Suite;Bomba de calor;Combinado;Cozinha equipada;Estores Eléctricos;Exaustor;Fogão Eléctrico;Forno;Gás Canalizado;Gás Natural;Isolamento Térmico;Ligação Wi-Fi;Máquina de Lavar Louça;Máquina de Lavar Roupa;Microondas;Painéis solares;Piso Flutuante;Placa de Indução;Poliban;Porta Blindada;Porteiro;Pré-Instalação Ar Condicionado;Roupeiros;Vídeo Porteiro;Vidros Duplos;Auto-Estrada;Banco;Centro da Cidade;Escola;Espaços Verdes;Farmácia;Hipermercado;Mercado;Polícia;Posto de Combustível;Praça Táxis;Praia
AMI: 13558
Ref. Externa: 057233
Id: 1523609
Inicie sessão para guardar este imóvel e aceder à sua lista de favoritos em qualquer dispositivo.
4 Quartos
Área útil : 180 m²
Moradia para reabilitação na Gafanha da Nazaré, inserida em lote de 1.250 m², com potencial para construção em altura. Situada a poucos metros da Avenida Principal e próxima do Jardim Oudinot, esta propriedade destaca-se pela sua localização privilegiada e pela versatilidade de utilização. Com uma área de terreno ampla e rara na zona, oferece duas possibilidades de investimento: Restauração da moradia existente, ideal para quem procura criar uma habitação espaçosa, única e totalmente personalizada. Desenvolvimento imobiliário, com viabilidade para construção de apartamentos em altura, tornando-se uma excelente oportunidade para investidores. Uma propriedade com grande potencial, num ponto estratégico da Gafanha da Nazaré.
AMI: 17406
Ref. Externa: MOR-MOR_10
Id: 1515702
Inicie sessão para guardar este imóvel e aceder à sua lista de favoritos em qualquer dispositivo.
4 Quartos
6 WCs
Área bruta : 485 m²
Grande oportunidade de negocio no centro da Gafanha da Nazaré !! Senhor investidor venha conhecer esta imperdível oportunidade de negocio... Imóvel em propriedade horizontal composto por 3 frações. Fração A - Espaço / loja com 20.70m2, localizado ao nível do rés do chão com licença para comercio e serviços, constituído por 2 salas e um Wc. Fração B - Com uma área de 164.30m2, é composta por uma sala muito ampla, cozinha e copa, sala, sanitários para homens, sanitários para senhoras, sanitários específicos para funcionários, arrumo, lavandaria, um grande pátio coberto e ainda uma garagem. Fração C - Com uma área de 190.60m2, é composta por um andar moradia T4, situado no 1º andar com cozinha, sala comum, duas casas de banho completas e quatro quartos. Garagem / sala com lareira, dois grandes arrumos e uma cozinha rustica com tradicional forno a lenha. Comum a todas as frações existe ainda um grande quintal. Venha conhecer ************************************************************************************************************************************************** Great business opportunity in the centre of Gafanha da Nazaré !! Mr. Investor, come and see this unmissable business opportunity... Property in horizontal property consisting of 3 fractions. Fraction A - Space / shop with 20.70m2, located on the ground floor with a license for commerce and services, consisting of 2 rooms and a bathroom. Fraction B - With an area of 164.30m2, it consists of a very large living room, kitchen and pantry, living room, toilets for men, toilets for ladies, specific toilets for employees, storage, laundry, a large covered patio and a garage. Fraction C - With an area of 190.60m2, it consists of a 4 bedroom villa, located on the 1st floor with kitchen, living room, two full bathrooms and four bedrooms. Garage / living room with fireplace, two large storage rooms and a rustic kitchen with traditional wood oven. Common to all fractions there is also a large backyard. Come and meet ************************************************************************************************************************************************** ¡Gran oportunidad de negocio en el centro de Gafanha da Nazaré! Señor inversor, venga a ver esta oportunidad de negocio imperdible... Propiedad en propiedad horizontal compuesta por 3 fracciones. Fracción A - Espacio / tienda de 20,70 m2, situada en la planta baja con licencia para comercio y servicios, que consta de 2 habitaciones y un baño. Fracción B - Con una superficie de 164,30 m2, consta de un salón muy grande, cocina y despensa, salón, aseos para hombres, aseos para mujeres, aseos específicos para empleados, trastero, lavandería, un gran patio cubierto y un garaje. Fracción C - Con una superficie de 190,60 m2, consta de una villa de 4 dormitorios, situada en la primera planta, con cocina, salón, dos baños completos y cuatro dormitorios. Garaje / salón con chimenea, dos grandes almacenes y una cocina rústica con horno de leña tradicional. En común a todas las fracciones también hay un gran patio trasero. Ven a conocernos ************************************************************************************************************************************************** Une excellente opportunité d'affaires au centre de Gafanha da Nazaré !! Monsieur l'investisseur, venez découvrir cette opportunité d'affaires incontournable... Propriété en propriété horizontale composée de 3 fractions. Fraction A - Espace / boutique de 20,70 m2, située au rez-de-chaussée avec une licence de commerce et de services, composée de 2 pièces et d'une salle de bain. Fraction B - Avec une superficie de 164,30 m2, elle comprend un très grand salon, une cuisine et un garde-manger, un salon, des toilettes pour hommes, des toilettes pour dames, des toilettes spécifiques pour les employés, un stockage, une buanderie, une grande terrasse couverte et un garage. Fraction C - D'une superficie de 190,60 m2, elle se compose d'une villa de 4 chambres, située au 1er étage avec cuisine, salon, deux salles de bains complètes et quatre chambres. Garage / salon avec cheminée, deux grands débarras et une cuisine rustique avec un four à bois traditionnel. Commun à toutes les fractions, il y a aussi un grand jardin arrière. Viens me rencontrer ************************************************************************************************************************************************** Großartige Geschäftsmöglichkeit im Zentrum von Gafanha da Nazaré!! Herr Investor, kommen Sie und sehen Sie sich diese unverpassbare Geschäftsmöglichkeit an... Eigenschaft in horizontaler Eigenschaft, bestehend aus 3 Brüchen. Fraktion A - Raum / Laden mit 20,70 m², im Erdgeschoss mit einer Lizenz für Handel und Dienstleistungen, bestehend aus 2 Zimmern und einem Badezimmer. Fraktion B - Mit einer Fläche von 164,30 m² besteht es aus einem sehr großen Wohnzimmer, Küche und Speisekammer, Wohnzimmer, Herrentoiletten, Damentoiletten, speziellen Toiletten für Angestellte, Lagerraum, Waschküche, einer großen überdachten Terrasse und einer Garage. Bruch C - Mit einer Fläche von 190,60 m² besteht sie aus einer Villa mit vier Schlafzimmern im ersten Stock und verfügt über Küche, Wohnzimmer, zwei voll ausgestattete Badezimmer und vier Schlafzimmer. Garage/Wohnzimmer mit Kamin, zwei große Abstellräume und eine rustikale Küche mit traditionellem Holzofen. Gemeinsam für alle Fraktionen gibt es auch einen großen Hinterhof. Komm und triff dich **************************************************************************************************************************************************
AMI: 12919
Ref. Externa: AV25/206
Id: 1505620
Inicie sessão para guardar este imóvel e aceder à sua lista de favoritos em qualquer dispositivo.
2 Quartos
2 WCs
Área bruta : 95 m²
Oportunidade de Moradia em Construção na Gafanha da Nazaré! Apresentamos um moderno projeto de moradia T2+1, perfeitamente equipado para o seu conforto e bem-estar. Com 2 casas de banho, lugar de garagem e um design funcional, esta Moradia oferece um estilo de vida prático e agradável. Situada na tranquila e bem valorizada Gafanha da Nazaré, a propriedade fica próxima de todos os serviços essenciais supermercados, escolas, áreas de lazer e acesso fácil às principais vias de transporte. Não perca a oportunidade de investir numa moradia em projeto, personalizar ao seu gosto e garantir o seu novo capítulo numa localização privilegiada! Para mais informações e visitas, contacte-nos.
AMI: 24448
Ref. Externa: I99P8049584
Id: 1490655
Inicie sessão para guardar este imóvel e aceder à sua lista de favoritos em qualquer dispositivo.
4 Quartos
2 WCs
Área bruta : 100 m²
Moradia T2+2 na Gafanha da Nazaré, centro da cidade, perto dos acessos à A25 com rápidos acesso às praias da Costa Nova e da Barra, e do centro da cidade de Aveiro. Inserida em zona residencial perto de comércios, serviços, escolas e zonas verdes. A moradia foi totalmente remodelada, tem um armazém de grandes dimensões, ideal para festas e convívios com a família e amigos. Tem terreno com quintal na parte de trás com cerca de 500 m2, com árvores de fruto. A casa tem um hall de entrada amplo com ligação direta à sala de estar e de jantar, cozinha moderna e totalmente equipada, dois quartos, uma casa de banho completa com cabine de hidromassagem. Tem lavandaria equipada com caldeira e máquina de lavar a roupa. A zona coberta na parte de trás, o armazém, tem uma entrada independente da moradia, com área 210 m2. Está equipado um fogão de sala, tem duas casas de banho e cozinha de apoio, e com acesso direto ao quintal. A moradia foi totalmente intervencionada a nível da eletricidade e canalizações. Está equipada com caixilharia em alumínio com vidro duplo e persianas, aquecimento central e sistema solar fotovoltaico. Nota: Não tem licença de Habitabilidade, pelo que só poderá ser adquirida com capitais próprios. Marque a sua visita! CE C Ref. 7428 2+2 Bedroom House in Gafanha da Nazaré , in the city center, close to the A25 access road with quick access to the beaches of Costa Nova and Barra, and to the center of Aveiro. Located in a residential area near shops, services, schools, and green spaces. The house has been completely renovated and includes a large warehouse, ideal for parties and gatherings with family and friends. It features a backyard of approximately 500 m². There is a spacious entrance hall with direct connection to the living and dining rooms, a modern fully equipped kitchen, two bedrooms, and a full bathroom with a hydromassage shower cabin. It also includes a laundry room equipped with a boiler and washing machine. The covered area (warehouse) has an independent entrance from the main house, with about 210 m², featuring a fireplace, two bathrooms, and a support kitchen. It has direct access to the backyard. The property has been fully refurbished, including electrical and plumbing systems. It is equipped with aluminum frames with double glazing and shutters, central heating, and a photovoltaic solar system. Note: It does not have a Habitation License, so it can only be purchased with private capital. Energy Certificate: C Ref. 7428
AMI: 4439
Ref. Externa: 7428
Id: 1488655
Inicie sessão para guardar este imóvel e aceder à sua lista de favoritos em qualquer dispositivo.
3 Quartos
1 WCs
Área bruta : 443 m²
Moradia T3 na Gafanha da Nazaré, ílhavo, no centro da cidade, próxima dos acessos às praias, à A25, e perto de escolas, comércios e serviços. A moradia é isolada com jardim e anexos. A casa tem 3 quartos, uma casa de banho completa, cozinha, lavandaria. No exterior tem garagem e anexos com arrumos. Tem um jardim com anexos ideal para usufruir com a família e amigos. Nota : As fotos 3D apresentadas neste anúncio são apenas uma simulação Ilustrativa do potencial da moradia após a realização de obras de restauro. Terreno com viabilidade para a construção em altura. Ideal para desenvolver o seu projeto imobiliário! Marque a sua visita!. CE: F Ref. 7050 Three-bedroom house in Gafanha da Nazaré, Ílhavo, in the city centre, close to access roads to the beaches and the A25, and near schools, shops and services. The property is detached, with a garden and outbuildings. The house has 3 bedrooms, a full bathroom, kitchen and laundry room. Outside, there is a garage and storage outbuildings. It also features a garden with annexes, ideal for enjoying with family and friends. Note: The 3D images shown in this listing are merely illustrative simulations of the property's potential after restoration works. Plot with feasibility for multi-storey construction. Ideal for developing your real estate project! Book your visit! Energy Certificate: F Ref. 7050
AMI: 4439
Ref. Externa: 7050
Id: 1488630
Inicie sessão para guardar este imóvel e aceder à sua lista de favoritos em qualquer dispositivo.
2 Quartos
1 WCs
Área bruta : 102 m²
Moradia Térrea T2+1 com Jardim e Garagem - Gafanha da Nazaré. Descubra o conforto e a tranquilidade nesta moradia térrea situada na Av. José Estêvão, na Gafanha da Nazaré, a minutos das praias e da cidade de Aveiro. Uma excelente oportunidade para quem procura qualidade de vida, proximidade ao mar e funcionalidade num só piso. Características principais: 3 quartos, sendo 2 com luz natural e 1 interior Sala de estar acolhedora e com boa luminosidade Cozinha funcional, com espaço de arrumação Casa de banho completa Exterior: Jardim frontal ideal para relaxar e receber amigos. Garagem fechada Zona de arrumos Com uma localização privilegiada, próxima de comércio, serviços, escolas e dos principais acessos rodoviários, esta moradia é perfeita tanto para residência permanente como para casa de férias. Venha conhecer e apaixone-se pelo seu novo lar na Gafanha da Nazaré! CE:D REF:1040773/25 BR Isto é Aveiro! Arcada Imobiliária Forca (Aveiro) e Praia da Barra 'Histórias e Pessoas fazem o Lar' Integradas no Grupo Arcada, as nossas agências - Arcada Forca (Aveiro) e Praia da Barra - acompanham as tendências de crescimento no mercado imobiliário, um dos sectores mais dinâmicos em Aveiro. Procuramos soluções para quem procura comprar casa. Porque 'Histórias e Pessoas fazem o Lar'.
AMI: 12841
Ref. Externa: 1040773/25 BR
Id: 1458193
Inicie sessão para guardar este imóvel e aceder à sua lista de favoritos em qualquer dispositivo.
2 Quartos
2 WCs
Área útil : 95 m²
Moradia T2+1, localizada na Gafanha da Nazaré – uma zona tranquila, com excelente qualidade de vida e em constante valorização.Implantada num terreno de 540 m², com ótima exposição solar, esta moradia moderna oferece 95 m² de área construída, unindo conforto, funcionalidade e um design contemporâneo.O interior foi pensado para oferecer bem-estar e versatilidade: dispõe de dois quartos, sendo uma suíte, e um espaço adicional (+1) que pode ser utilizado como escritório, quarto extra ou área de lazer. Conta ainda com duas casas de banho, uma sala em conceito open space com excelente luminosidade natural, e uma cozinha equipada com forno, placa e exaustor, criando um ambiente moderno, prático e acolhedor.No exterior, conta com lugar de garagem junto à moradia e um amplo espaço de terreno, ideal para jardim, zona de lazer ou futura ampliação.A Gafanha da Nazaré destaca-se pela proximidade às praias da Costa Nova e da Barra, bem como pelos excelentes acessos ao centro de Aveiro, onde encontra comércio, serviços e todas as comodidades urbanas.Prazo de entrega estimado: entre 8 a 10 meses.Destaques do imóvel:Moradia entregue nova e “chave na mão”Terreno de 540 m² com ótima exposição solarCozinha equipada e sala em open spaceEspaço adicional (+1) para escritório, quarto ou lazerGaragem e amplo espaço exteriorLocalização tranquila e em crescimentoUma oportunidade única para quem procura uma moradia moderna, funcional e com espaço exterior!Marque já a sua visita!Predimed Imobiliária, Mediação Imobiliária, Lda.Avenida Brasil 43, 12º Andar, 1700-062 LisboaLicença AMI nº 22503Pessoa Coletiva nº 517 239 345Seguro Responsabilidade Civil: Nº de Apólice RC65379424 Fidelidade
AMI: 13558
Ref. Externa: 056235
Id: 1454223
Inicie sessão para guardar este imóvel e aceder à sua lista de favoritos em qualquer dispositivo.
4 Quartos
3 WCs
Área útil : 173 m²
Moradia T4 com Excelentes Áreas, Jardim e Pátio Coberto – Gafanha da Nazaré Apresentamos esta fantástica moradia T4 situada na tranquila e acolhedora Gafanha da Nazaré, a poucos minutos de Aveiro e das praias da Costa Nova e Barra. Com generosas áreas interiores e exteriores, esta propriedade é ideal para quem procura conforto, funcionalidade e qualidade de vida. A casa dispõe de: 4 quartos espaçosos, incluindo uma suíte, todos com excelente iluminação natural; Sala ampla, perfeita para momentos em família ou para receber amigos; Cozinha totalmente equipada, com acesso direto ao exterior; Jardim cuidado, ideal para relaxar ou para as brincadeiras dos mais pequenos; Pátio coberto com churrasqueira, ótimo para refeições ao ar livre em qualquer estação do ano; Garagem e espaço de arrumação adicional. Com uma disposição funcional e acabamentos de qualidade, esta moradia é perfeita tanto para residência permanente como para casa de férias. Não perca a oportunidade de viver numa zona calma, com bons acessos e perto de tudo o que precisa. Agende já a sua visita! IMI: 590, 33 eur/ano ;ID RE/MAX: 123421419-3
AMI: 7772
Ref. Externa: 123421419-3
Id: 1449545
Inicie sessão para guardar este imóvel e aceder à sua lista de favoritos em qualquer dispositivo.
2 Quartos
2 WCs
Área bruta : 190 m²
Moradia térrea e isolada de tipologia T2, caracterizada pela sua elegância e sobriedade, privilegiando de uma localização de excelência, por se encontrar próximo a todos os serviços e comodidades essenciais, na Gafanha da Nazaré. Esta maravilhosa moradia destaca-se pelo seu design moderno e acabamentos de excelência, sendo distribuída por uma ampla e espaçosa sala de estar e jantar, integrada harmoniosamente com a cozinha, totalmente equipada, em conceito open space, conferindo a este espaço um ambiente acolhedor e funcional. Esta moradia comporta ainda 2 quartos, um deles em suite com casa de banho privativa e uma casa de banho completa. Destacamos que a moradia conta ainda com sistema de ar-condicionado, garagem fechada e zona de deck no exterior. A Casa Da Joana é uma empresa ligada ao ramo imobiliário que nasceu na cidade de Aveiro. Distingue-se pela seleção rigorosa e criteriosa dos imóveis que promove e que apresenta aos seus clientes. Assume-se como um conceito descontraído, onde encontrar a casa ideal, e o mais apaixonante possível, são as palavras de ordem. A proximidade e a empatia que firma com os clientes cria laços e estabelece uma relação de confiança e credibilidade igualáveis. Estamos no mercado para dar cor e paixão ao mercado imobiliário e combater um pouco o modelo tradicional de compra e venda de imóveis. A nossa casa é o local mais especial da nossa vida e, por isso, escolhê-la é um processo que deverá ser assessorado com toda a importância e cuidado que ele merece. Joana Portela Unipessoal Lda. | AMI: 13535
AMI: 13535
Ref. Externa: CAS_2478
Id: 1446594
Inicie sessão para guardar este imóvel e aceder à sua lista de favoritos em qualquer dispositivo.
5 Quartos
Área útil : 212 m²
Moradia T5 na Gafanha da Nazaré — conforto, qualidade e excelentes áreas Apresentamos esta magnífica moradia T5, inserida num terreno de 400 m², situada numa zona tranquila e muito procurada da Gafanha da Nazaré, a poucos minutos de Aveiro. Com excelente qualidade de construção e amplas áreas interiores, esta moradia oferece um ambiente acolhedor, funcional e pensado para o bem-estar de toda a família. Distribuída por dois pisos, destaca-se pela luminosidade natural e pela harmonia dos espaços. No rés do chão, encontramos uma sala ampla e confortável, ideal para momentos em família, uma cozinha moderna e totalmente equipada, dois quartos — um deles atualmente utilizado como biblioteca —, uma salinha de costura, uma casa de banho e uma zona de lavandaria muito prática. O primeiro andar dispõe de três quartos, sendo um deles suíte, todos com roupeiros embutidos, e uma casa de banho completa de apoio aos restantes quartos. Equipada com aquecimento central e ar condicionado, esta moradia garante conforto durante todo o ano. No exterior, encontramos uma ampla área revestida a tijoleira, de baixa manutenção, ideal para convívios e refeições ao ar livre. Conta ainda com uma cozinha de lenha tradicional, equipada com forno, uma casa de banho de serviço e uma garrafeira, perfeitas para quem aprecia o prazer de receber e desfrutar de bons momentos em família e com amigos. A localização é outro dos grandes atrativos desta propriedade — numa zona residencial calma, próxima de escolas, comércio local, serviços e transportes, com excelentes acessos a Aveiro e às praias da Costa Nova e da Barra.
AMI: 5707
Ref. Externa: 14698
Id: 1438905
Inicie sessão para guardar este imóvel e aceder à sua lista de favoritos em qualquer dispositivo.
2 Quartos
2 WCs
Área bruta : 107 m²
Moradia Terrea isolada na Gafanha da Nazare 1 Suite2 QuartosSala e Cozinha em open space Garagem fechada Pequeno QuintalPronta dentro de 3 meses Marque a sua visita ou peça mais informaçõesPredimed Imobiliária, Mediação Imobiliária, Lda.Avenida Brasil 43, 12º Andar, 1700-062 LisboaLicença AMI nº 22503Pessoa Coletiva nº 517 239 345Seguro Responsabilidade Civil: Nº de Apólice RC65379424 Fidelidade Características: Acesso para Deficientes;Estacionamento Ar-Livre;Garagem;Muro;Terraço;Parqueamento;Internet fibra;Horta-Jardim;Exaustor;Fogão Eléctrico;Gás Canalizado;Gás Natural;Piso Flutuante;Roupeiros;Vidros Duplos;Banco;Farmácia;Posto de Combustível;Praça Táxis;Transportes Públicos
AMI: 13558
Ref. Externa: 055867
Id: 1417949
Inicie sessão para guardar este imóvel e aceder à sua lista de favoritos em qualquer dispositivo.
2 Quartos
2 WCs
Área bruta : 115 m²
MORADIA TÉRREA T2 ISOLADA - GAFANHA DA NAZARÉ Oportunidade única para quem procura conforto, privacidade e qualidade de vida! Esta moradia nova, isolada e térrea combina design moderno com acabamentos de excelência e uma localização invejável, a apenas 5 minutos das praias e do centro de Aveiro. Destaques: Sala e cozinha equipada, 31 m2 de área Equipada com ar condicionado Dois quartos, sendo um deles suíte Casa de banho completa Garagem fechada Exposição solar perfeita, com luz natural todo o dia Arquitetura contemporânea e ambiente acolhedor Ideal para quem quer viver com qualidade, independência e estilo, perto de tudo o que é essencial cidade, mar e natureza. Não perca tempo! Esta moradia é daquelas oportunidades que não voltam a aparecer. Agende já a sua visita e apaixone-se ao primeiro olhar!
AMI: 11283
Ref. Externa: 6616
Id: 1413716
Inicie sessão para guardar este imóvel e aceder à sua lista de favoritos em qualquer dispositivo.
Estes agentes são especialistas nesta zona:
Inicie sessão para ocultar este imóvel das suas pesquisas e manter a sua lista de resultados organizada.
Guardar favoritos
Este imóvel foi guardados nos seus favoritos com sucesso.
Para poder guardar pesquisa deverá ter a sua sessão iniciada.
Caso não tenha uma conta, deverá criar uma.
A sua pesquisa foi guardada com sucesso!
© Copyright 2023 | CASACERTA. All rights reserved
Este site utiliza cookies. Ao navegar no site estará a consentir a sua utilização.
Para mais informações sobre os cookies pode consultar a
política de privacidade.