Lista
Comprar
Arrendar
2 Quartos
2 WCs
Área útil : 73 m²
Apresentamos este excelente projeto de moradia moderna que irá iniciar brevemente a sua construção, utilizando o inovador sistema Light Steel Frame (LSF) - uma tecnologia de construção de última geração, reconhecida pela sua eficiência, durabilidade e sustentabilidade. A construção em LSF baseia-se numa estrutura em aço leve galvanizado, substituindo os métodos tradicionais de betão e ferro, garantindo uma edificação mais rápida, mais leve e com elevados padrões de qualidade e precisão. Este sistema construtivo oferece inúmeras vantagens, entre as quais: .Elevada resistência estrutural e durabilidade .Excelente desempenho térmico e acústico .Maior eficiência energética .Construção mais rápida, limpa e sustentável .Redução significativa de desperdícios em obra A moradia será pensada com um design contemporâneo, espaços funcionais e acabamentos de qualidade, proporcionando conforto, modernidade e eficiência para o dia a dia. Uma oportunidade única de adquirir um imóvel moderno, construído com tecnologia de ponta, ideal para quem valoriza qualidade, conforto e inovação. A Moradia irá ser construída numa localização privilegiada, a poucos minutos da praia e a escassos metros da ria. É composta por: Sala e cozinha em open space, uma suite , um quarto e casa de banho. No exterior, a moradia oferece garagem, jardim e terreno, perfeitos para desfrutar de momentos de lazer ao ar livre. Uma excelente opção para quem procura tranquilidade, proximidade com a natureza e qualidade de vida, sem abdicar da comodidade. Ref. 1030991/25BL
AMI: 9054
Ref. Externa: 1030991/25BL
Id: 1591294
Inicie sessão para guardar este imóvel e aceder à sua lista de favoritos em qualquer dispositivo.
4 Quartos
4 WCs
Área bruta : 154 m²
Moradia T4 com Vista Deslumbrante para a Ria de Aveiro ? Construção Inovadora ICFDescubra esta magnífica moradia T4 inserida num terreno de 2000m2 que se estende até à ria, situada na Gafanha do Carmo. Uma localização tranquila, com excelente acessibilidade e uma vista absolutamente única sobre a Ria de Aveiro ? um verdadeiro privilégio para quem valoriza natureza, serenidade e qualidade de vida.Com um design moderno e funcional, esta moradia oferece:Distribuição Inteligente em Dois Pisos Rés do chão: Um quarto versátil, ideal como escritório, quarto de hóspedes. Dispõe ainda de uma casa de banho completa e uma ampla sala em open space com cozinha equipada ? um ambiente moderno, luminoso e acolhedor. Piso superior: Uma suíte espaçosa com casa de banho privativa e excelente luminosidade, dois quartos adicionais com acesso a varandas que oferecem uma vista panorâmica deslumbrante sobre a Ria de Aveiro ? o cenário perfeito para momentos de tranquilidade ao nascer e pôr do sol. Exterior de Sonho ? Piscina, Churrasqueira e Muito MaisA área exterior foi pensada para proporcionar o máximo de conforto e lazer, incluindo: Piscina privativa Alpendre coberto com zona de refeições ao ar livre Churrasqueira integrada ? ideal para convívios e refeições em família Casa de banho exterior ? comodidade extra para os dias de verão Jardim funcional e zona de estacionamento dentro da propriedade Qualidade de Construção Superior ? Sistema ICFEsta moradia destaca-se pela sua construção inovadora com o sistema ICF (Insulated Concrete Forms), uma tecnologia de vanguarda que garante: Isolamento térmico de alta performance Isolamento acústico eficiente Elevada resistência ao fogo Construção anti-sísmica Processo construtivo mais rápido e sustentável, com menos necessidade de mão de obra e maior precisão técnicaCombinando vista incrível, conforto moderno e uma construção robusta e inovadora, esta moradia é mais do que uma casa ? é um verdadeiro refúgio junto à natureza, sem abdicar da sofisticação e da eficiência. Localização: Gafanha do Carmo Certificação Energética: A+Marque já a sua visita e venha sentir na pele o que é viver com qualidade, inovação e uma vista de cortar a respiração!______________________________________________________________________________________________________________________________________A JF Imobiliária proporciona aos seus clientes a máxima experiência, qualidade e profissionalismo, em diversas áreas.Desta maneira, proporcionamos um serviço completo, desde a aquisição e venda de imóveis, (investimentos,) financiamento, assessorias jurídica e fiscal, arquitetura, construção, design de interiores, e gestão imobiliária.O relacionamento, a empatia e o serviço personalizado, visam criar um serviço à medida das necessidades de cada clienteEstamos comprometidos com um rigoroso padrão de qualidade e profissionalismo.Serviços:- Venda de Imóveis- Prospeção de novos mercados- Arrendamentos- Intermediação de Crédito- Projetos- Construção- Licenciamentos- Certificados Energéticos- Levantamentos Tipográficos
AMI: 23526
Ref. Externa: JFI147
Id: 1589807
Inicie sessão para guardar este imóvel e aceder à sua lista de favoritos em qualquer dispositivo.
3 Quartos
4 WCs
Área bruta : 230 m²
Moradia T3+1, localizada na Gafanha do Carmo pensada para oferecer conforto, funcionalidade e qualidade de vida, quer seja para habitação permanente, casa de férias ou investimento. Com uma arquitetura moderna e espaços amplos contamos no rés-do-chão com uma ampla sala e cozinha em open space, uma casa de banho completa, lavandaria e casa de máquinas. Conta ainda com um escritório espaçoso com entrada independente, perfeito para profissionais que valorizam a separação entre trabalho e vida pessoal. No primeiro andar encontramos a suíte principal com closet e casa de banho privativa, dois quartos amplos com acesso a uma varanda virada a sul, uma casa de banho completa e um hall de distribuição com varanda frontal panorâmica. A moradia oferece ainda acabamentos de qualidade superior, instalações sanitárias com louças e móveis suspensos, garagem fechada e abrigo coberto para uma segunda viatura, portão automático em aço, caixilharia em alumínio com corte térmico e vidros duplos, estores elétricos, sistema de aquecimento completo (bomba de calor e recuperador a pellets com radiadores), videoporteiro, ventilação mecânica controlada (VMC) e muros exteriores com acabamento em pedra natural. O imóvel conta com pré-instalações para ar condicionado, painéis fotovoltaicos, carregador para carro elétrico, videovigilância e uma zona exterior preparada para churrasqueira, com pontos de água e eletricidade. Agende já a sua visita e descubra todo o potencial deste imóvel excecional. CE: A REF:1040766/25 BR Isto é Aveiro! Arcada Imobiliária Forca (Aveiro) e Praia da Barra 'Histórias e Pessoas fazem o Lar' Integradas no Grupo Arcada, as nossas agências - Arcada Forca (Aveiro) e Praia da Barra - acompanham as tendências de crescimento no mercado imobiliário, um dos sectores mais dinâmicos em Aveiro. Procuramos soluções para quem procura comprar casa. Porque 'Histórias e Pessoas fazem o Lar'.
AMI: 12841
Ref. Externa: 1040766/25 BR
Id: 1587155
Inicie sessão para guardar este imóvel e aceder à sua lista de favoritos em qualquer dispositivo.
4 Quartos
3 WCs
Área útil : 154 m²
Moradia T4, situada na zona da Gafanha do Carmo, uma localização privilegiada que combina tranquilidade, natureza e excelentes acessos. A moradia distribui-se por dois pisos: No Rés do chão encontra-se um quarto versátil, ideal para escritório, quarto de hóspedes ou mesmo para quem prefere evitar escadas. Conta ainda com uma casa de banho completa e funcional, ideal para apoio à área social. A sala e a cozinha em open space proporcionam um ambiente moderno, amplo e luminoso, ideal para o convívio diário e momentos especiais em família. A cozinha encontra-se equipada, facilitando o dia a dia e trazendo praticidade e elegância ao espaço. No piso superior, encontra-se a suíte principal, espaçosa e com boa luminosidade natural, equipada com casa de banho privativa. Há ainda dois quartos adicionais, ideais para filhos, escritório ou quartos de hóspedes, todos com acesso a varandas que oferecem uma vista panorâmica e deslumbrante sobre a ria - um cenário único para começar e terminar o dia. No espaço exterior, esta moradia oferece um agradável e funcional jardim com piscina privada, perfeito para momentos de lazer nos dias mais quentes. Há também zona de estar e refeições ao ar livre, ideal para churrascos, festas ou simples momentos de descontração. Além disso, possui área de estacionamento no interior da propriedade, garantindo segurança e conveniência. Esta moradia foi pensada para oferecer conforto e funcionalidade, aliando o interior moderno ao exterior acolhedor, com atenção aos detalhes e qualidade de construção. Se procura a combinação perfeita entre modernidade, natureza e qualidade de vida, esta moradia é a escolha certa! CE:A+ REF:1040743/25 BR Isto é Aveiro! Arcada Imobiliária Forca (Aveiro) e Praia da Barra 'Histórias e Pessoas fazem o Lar' Integradas no Grupo Arcada, as nossas agências - Arcada Forca (Aveiro) e Praia da Barra - acompanham as tendências de crescimento no mercado imobiliário, um dos sectores mais dinâmicos em Aveiro. Procuramos soluções para quem procura comprar casa. Porque 'Histórias e Pessoas fazem o Lar'.
AMI: 12841
Ref. Externa: 1040743/25 BR
Id: 1582257
Inicie sessão para guardar este imóvel e aceder à sua lista de favoritos em qualquer dispositivo.
4 Quartos
4 WCs
Área bruta : 158 m²
Moradia T4 isolada em fase de construção, situada na Gafanha do Carmo. Num ambiente tranquilo, ideal para quem procura escapar ao ritmo acelerado da cidade, esta moradia destaca-se pela sua orientação solar, pela luz natural que invade todos os espaços e pelos acabamentos de elevada qualidade. O piso térreo conta com uma ampla zona social em conceito open space, integrando sala de estar e cozinha. Dispõe ainda de uma casa de banho completa, lavandaria e um quarto. No piso superior encontra-se a zona privada, composta por uma espaçosa suíte com closet e casa de banho privativa, três quartos de excelentes dimensões, e uma casa de banho completa. Ideal para famílias que valorizam o contacto com a natureza e a tranquilidade, sem abdicar da proximidade às principais vias de comunicação e centros urbanos. Esta é uma oportunidade rara de adquirir uma moradia isolada, moderna e eficiente, num cenário onde o conforto e a paisagem se conjugam de forma harmoniosa. Agende a sua visita e surpreenda-se com o estilo de vida que esta casa tem para lhe oferecer! CE:A+ REF:1040765/25 BR Isto é Aveiro! Arcada Imobiliária Forca (Aveiro) e Praia da Barra 'Histórias e Pessoas fazem o Lar' Integradas no Grupo Arcada, as nossas agências - Arcada Forca (Aveiro) e Praia da Barra - acompanham as tendências de crescimento no mercado imobiliário, um dos sectores mais dinâmicos em Aveiro. Procuramos soluções para quem procura comprar casa. Porque 'Histórias e Pessoas fazem o Lar'.
AMI: 12841
Ref. Externa: 1040765/25 BR
Id: 1579515
Inicie sessão para guardar este imóvel e aceder à sua lista de favoritos em qualquer dispositivo.
2 Quartos
2 WCs
Área bruta : 72 m²
Moradia T2 Térrea – Nova na Gafanha do Carmo Esta elegante moradia T2 térrea, de construção nova, entregue chave na mão e pronta a habitar, finalizada em Abril de 2026. Situada na Gafanha do Carmo, uma zona residencial tranquila, em crescente valorização e com excelente qualidade de vida. Implantada num lote de 311 m², esta moradia beneficia de excelente exposição solar, proporcionando luminosidade natural ao longo de todo o dia. Com uma área de construção de 72 m², o imóvel destaca-se pelo seu design contemporâneo, linhas modernas e uma distribuição funcional dos espaços, pensada para o máximo conforto no dia a dia. A zona social é composta por uma sala ampla em open Space, integrada com a cozinha, criando um ambiente moderno, acolhedor e versátil. A cozinha encontra-se totalmente equipada com forno, placa e exaustor, oferecendo praticidade e funcionalidade. A ligação direta ao exterior permite usufruir do terreno envolvente, ideal para momentos de lazer, refeições ao ar livre ou para a criação de um jardim, zona de descanso ou até uma pequena área de lazer. A área privada dispõe de dois quartos com boa luminosidade, sendo um deles suíte, garantindo maior conforto e privacidade. A moradia conta ainda com instalações sanitárias modernas, acabamentos de qualidade e uma construção pensada para eficiência e conforto térmico. A localização é um dos grandes destaques deste imóvel. A Gafanha do Carmo oferece um ambiente calmo e familiar, com bons acessos às principais vias rodoviárias, proximidade a comércio, serviços e escolas, e encontra-se a poucos minutos das praias da Costa Nova e da Barra. O centro de Aveiro está a curta distância, permitindo usufruir de todas as comodidades urbanas, mantendo a tranquilidade de uma zona residencial. Esta moradia é ideal para habitação própria permanente, casa de férias ou investimento, representando uma excelente oportunidade para quem procura um imóvel novo, funcional e pronto a habitar, numa área em constante crescimento e valorização.
AMI: 9626
Ref. Externa: MD-00686
Id: 1555441
Inicie sessão para guardar este imóvel e aceder à sua lista de favoritos em qualquer dispositivo.
4 Quartos
4 WCs
Área bruta : 244 m²
Há casas que se constroem e há casas que são pensadas para serem vividas, sentidas e desfrutadas todos os dias. Esta moradia T4 geminada, em construção, com uma área de terreno de 1.890m2, localizada na Gafanha do Carmo, Ílhavo, nasce num dos cenários mais autênticos da região, com a ria como pano de fundo, onde a tranquilidade, a luz natural e a proximidade à água definem um estilo de vida raro e privilegiado. A sua conclusão está prevista para fevereiro de 2026. Cada detalhe foi cuidadosamente projetado, recorrendo a materiais de topo e acabamentos de elevada qualidade, garantindo conforto, durabilidade e eficiência, especialmente adequados a um imóvel junto à ria e ao mar. No exterior, o espaço convida ao lazer e à contemplação: piscina, zonas de lazer, anexos, telheiro com churrasqueira e áreas verdes com relva (artificial), num ambiente elegante e de manutenção simples. A moradia dispõe de estacionamento para duas viaturas na frente e, como verdadeira mais-valia, a possibilidade de criar lugares adicionais, na parte traseira da moradia, orientada para a ria — um detalhe diferenciador para quem valoriza espaço e exclusividade. Ao entrar no piso térreo, a casa revela-se fluida e acolhedora. Um armário embutido de apoio marca a entrada, reforçando a funcionalidade desde o primeiro momento. Neste piso encontra-se ainda um quarto térreo, uma casa de banho completa e uma cozinha totalmente equipada em open space, integrada com uma ampla sala de estar e jantar. A ligação direta ao exterior permite que a luz e o verde entrem na casa, criando uma vivência contínua entre o interior, a piscina, os terraços e as zonas de lazer — perfeita para receber ou simplesmente desfrutar. A lavandaria, discretamente integrada no aproveitamento do espaço sob as escadas, reflete a atenção ao detalhe e à funcionalidade. No entanto, para quem preferir, existe ainda a possibilidade de a instalar nos anexos exteriores, onde ficarão também as restantes máquinas. No primeiro piso, a área privada oferece um verdadeiro refúgio: uma suíte com varanda e closet, pensada para o descanso e a privacidade, e dois quartos adicionais, ambos com varanda e armários embutidos, apoiados por uma casa de banho completa. Em termos de conforto e eficiência, esta moradia distingue-se por soluções técnicas premium: - Caixilharia em PVC com vidros duplos e corte térmico, ideal para a proximidade à ria e ao mar; - Sistema VMC de duplo fluxo, garantindo qualidade do ar e eficiência energética; - Ar condicionado em todas as divisões; - Bomba de calor; - Pré-instalação de painéis solares; - Pavimento vinílico em toda a casa, combinando conforto, resistência e elegância contemporânea; Esta é uma casa pensada para quem valoriza o tempo, o conforto e a serenidade. Um espaço onde a qualidade construtiva se alia à localização, e onde cada detalhe foi desenhado para proporcionar uma forma de viver mais tranquila, mais confortável e mais consciente, a poucos minutos de Aveiro, das praias e dos principais acessos. Um lugar onde os dias começam com luz, seguem com calma e terminam com a ria como companhia. Marque uma visita e sinta-se em casa!
AMI: 16457
Ref. Externa: KWPT-026336
Id: 1552321
Inicie sessão para guardar este imóvel e aceder à sua lista de favoritos em qualquer dispositivo.
4 Quartos
3 WCs
Área útil : 154 m²
Moradia T4, situada na zona da Gafanha do Carmo, uma localização privilegiada que combina tranquilidade, natureza e excelentes acessos. A moradia distribui-se por dois pisos: No Rés do chão encontra-se um quarto versátil, ideal para escritório, quarto de hóspedes ou mesmo para quem prefere evitar escadas. Conta ainda com uma casa de banho completa e funcional, ideal para apoio à área social. A sala e a cozinha em open space proporcionam um ambiente moderno, amplo e luminoso, ideal para o convívio diário e momentos especiais em família. A cozinha encontra-se equipada, facilitando o dia a dia e trazendo praticidade e elegância ao espaço. No piso superior, encontra-se a suíte principal, espaçosa e com boa luminosidade natural, equipada com casa de banho privativa. Há ainda dois quartos adicionais, ideais para filhos, escritório ou quartos de hóspedes, todos com acesso a varandas que oferecem uma vista panorâmica e deslumbrante sobre a ria - um cenário único para começar e terminar o dia. No espaço exterior, esta moradia oferece um agradável e funcional jardim com piscina privada, perfeito para momentos de lazer nos dias mais quentes. Há também zona de estar e refeições ao ar livre, ideal para churrascos, festas ou simples momentos de descontração. Além disso, possui área de estacionamento no interior da propriedade, garantindo segurança e conveniência. Esta moradia foi pensada para oferecer conforto e funcionalidade, aliando o interior moderno ao exterior acolhedor, com atenção aos detalhes e qualidade de construção. Se procura a combinação perfeita entre modernidade, natureza e qualidade de vida, esta moradia é a escolha certa! CE:A+ REF:1040743/25 BR Isto é Aveiro! Arcada Imobiliária Forca (Aveiro) e Praia da Barra 'Histórias e Pessoas fazem o Lar' Integradas no Grupo Arcada, as nossas agências - Arcada Forca (Aveiro) e Praia da Barra - acompanham as tendências de crescimento no mercado imobiliário, um dos sectores mais dinâmicos em Aveiro. Procuramos soluções para quem procura comprar casa. Porque 'Histórias e Pessoas fazem o Lar'.
AMI: 12841
Ref. Externa: 1040743/25 BR
Id: 1542355
Inicie sessão para guardar este imóvel e aceder à sua lista de favoritos em qualquer dispositivo.
3 Quartos
4 WCs
Área bruta : 230 m²
Moradia T3+1, localizada na Gafanha do Carmo pensada para oferecer conforto, funcionalidade e qualidade de vida, quer seja para habitação permanente, casa de férias ou investimento. Com uma arquitetura moderna e espaços amplos contamos no rés-do-chão com uma ampla sala e cozinha em open space, uma casa de banho completa, lavandaria e casa de máquinas. Conta ainda com um escritório espaçoso com entrada independente, perfeito para profissionais que valorizam a separação entre trabalho e vida pessoal. No primeiro andar encontramos a suíte principal com closet e casa de banho privativa, dois quartos amplos com acesso a uma varanda virada a sul, uma casa de banho completa e um hall de distribuição com varanda frontal panorâmica. A moradia oferece ainda acabamentos de qualidade superior, instalações sanitárias com louças e móveis suspensos, garagem fechada e abrigo coberto para uma segunda viatura, portão automático em aço, caixilharia em alumínio com corte térmico e vidros duplos, estores elétricos, sistema de aquecimento completo (bomba de calor e recuperador a pellets com radiadores), videoporteiro, ventilação mecânica controlada (VMC) e muros exteriores com acabamento em pedra natural. O imóvel conta com pré-instalações para ar condicionado, painéis fotovoltaicos, carregador para carro elétrico, videovigilância e uma zona exterior preparada para churrasqueira, com pontos de água e eletricidade. Agende já a sua visita e descubra todo o potencial deste imóvel excecional. CE: A REF:1040766/25 BR Isto é Aveiro! Arcada Imobiliária Forca (Aveiro) e Praia da Barra 'Histórias e Pessoas fazem o Lar' Integradas no Grupo Arcada, as nossas agências - Arcada Forca (Aveiro) e Praia da Barra - acompanham as tendências de crescimento no mercado imobiliário, um dos sectores mais dinâmicos em Aveiro. Procuramos soluções para quem procura comprar casa. Porque 'Histórias e Pessoas fazem o Lar'.
AMI: 12841
Ref. Externa: 1040766/25 BR
Id: 1542352
Inicie sessão para guardar este imóvel e aceder à sua lista de favoritos em qualquer dispositivo.
4 Quartos
4 WCs
Área bruta : 158 m²
Moradia T4 isolada em fase de construção, situada na Gafanha do Carmo. Num ambiente tranquilo, ideal para quem procura escapar ao ritmo acelerado da cidade, esta moradia destaca-se pela sua orientação solar, pela luz natural que invade todos os espaços e pelos acabamentos de elevada qualidade. O piso térreo conta com uma ampla zona social em conceito open space, integrando sala de estar e cozinha. Dispõe ainda de uma casa de banho completa, lavandaria e um quarto. No piso superior encontra-se a zona privada, composta por uma espaçosa suíte com closet e casa de banho privativa, três quartos de excelentes dimensões, e uma casa de banho completa. Ideal para famílias que valorizam o contacto com a natureza e a tranquilidade, sem abdicar da proximidade às principais vias de comunicação e centros urbanos. Esta é uma oportunidade rara de adquirir uma moradia isolada, moderna e eficiente, num cenário onde o conforto e a paisagem se conjugam de forma harmoniosa. Agende a sua visita e surpreenda-se com o estilo de vida que esta casa tem para lhe oferecer! CE:A+ REF:1040765/25 BR Isto é Aveiro! Arcada Imobiliária Forca (Aveiro) e Praia da Barra 'Histórias e Pessoas fazem o Lar' Integradas no Grupo Arcada, as nossas agências - Arcada Forca (Aveiro) e Praia da Barra - acompanham as tendências de crescimento no mercado imobiliário, um dos sectores mais dinâmicos em Aveiro. Procuramos soluções para quem procura comprar casa. Porque 'Histórias e Pessoas fazem o Lar'.
AMI: 12841
Ref. Externa: 1040765/25 BR
Id: 1538748
Inicie sessão para guardar este imóvel e aceder à sua lista de favoritos em qualquer dispositivo.
3 Quartos
3 WCs
Área bruta : 142 m²
Moradia unifamiliar térrea de tipologia T3, situada na Gafanha do Carmo, no concelho de Ílhavo. O projeto, de arquitetura contemporânea e apresenta uma organização funcional e equilibrada, privilegiando o conforto e a eficiência dos espaços.A habitação distribui-se num único piso, integrando zona social, área privada e garagem. A entrada conduz a um hall que articula a sala comum e a zona de quartos. A sala usufrui de boa exposição solar e ligação direta ao exterior. A cozinha encontra-se equipada e funcionalmente organizada, com zona de refeições adjacente. A área privada inclui três quartos, sendo um deles suite, e duas instalações sanitárias completas. Existe ainda garagem com portão de fecho automático.O interior caracteriza-se por acabamentos de qualidade. As paredes são em gesso pintado, com revestimentos cerâmicos da marca MARGRES ou equivalente nas instalações sanitárias. Os pavimentos interiores são em vinílico, garantindo conforto e resistência, enquanto pavimentos exteriores são acabados com lajetas de betão. As carpintarias apresentam acabamento lacado mate e os roupeiros têm acabamento em madeira.A cozinha é composta por móveis termolaminados, bancada e frente em compósito mineral, equipada com eletrodomésticos TEKA ou similar. As louças sanitárias são SANITANA ou similar, as torneiras Bruma ou similar, e os sistemas de autoclismo OLI ou similar. As bases de duche são em resina.O conforto e a eficiência energética são assegurados por uma bomba de calor de alta eficiência para aquecimento de águas sanitárias e por sistema de ar condicionado LG ou equivalente. A iluminação é feita através de focos embutidos, e a moradia dispõe de videoporteiro.No exterior, as fachadas em ETICS em tom cinza, com caixilharia de alumínio SOSOARES ou similar e tetos exteriores em gesso cartonado hydropanel. Os pavimentos exteriores são em lajetas de betão ou betão afagado, garantindo durabilidade e integração estética com o conjunto arquitetónico.Esta moradia reflete uma construção cuidada e funcional, com materiais de qualidade e soluções técnicas que privilegiam o conforto, a durabilidade, inserida num contexto residencial tranquilo e bem enquadrado na malha urbana da Gafanha do Carmo.QUero a traduçao como esta para as linguas que ja te pedi Prazo de conclusão: 2.º trimestre de 2027 – ideal para quem quer planear com tranquilidade.Prazo de conclusão: 2.º trimestre de 2027 – ideal para quem quer planear com tranquilidade.A SUA CASA MORA AQUI Predimed Imobiliária, Mediação Imobiliária, Lda.Avenida Brasil 43, 12º Andar, 1700-062 LisboaLicença AMI nº 22503Pessoa Coletiva nº 517 239 345Seguro Responsabilidade Civil: Nº de Apólice RC65379424 Fidelidade Características: Garagem;Jardim;Muro;Suite;Ar Condicionado;Bomba de calor;Vídeo Porteiro;Áreas de Lazer Infantil;Árvores de Frutos;Auto-Estrada;Banco;Biblioteca;Bombeiros;Centro da Cidade;Escola;Farmácia;Hipermercado;Hospital;Transportes Públicos
AMI: 13558
Ref. Externa: 057369
Id: 1533959
Inicie sessão para guardar este imóvel e aceder à sua lista de favoritos em qualquer dispositivo.
2 Quartos
2 WCs
Área bruta : 73 m²
Oportunidade de Moradia em Construção na Gafanha do Carmo! Apresentamos um moderno projeto de moradia T2, perfeitamente equipado para o seu conforto e bem-estar. Com 2 casas de banho, sendo uma delas Suite, um lugar de garagem e um design funcional, esta Moradia oferece um estilo de vida prático e agradável. Situada na tranquila e bem valorizada Gafanha do Carmo, a propriedade fica próxima de todos os serviços essenciais supermercados, escolas, áreas de lazer e acesso fácil às principais vias de transporte. Não perca a oportunidade de investir numa moradia em projeto, personalizar ao seu gosto e garantir o seu novo capítulo numa localização privilegiada! Para mais informações e visitas, contacte-nos.
AMI: 24448
Ref. Externa: CAS_269
Id: 1490654
Inicie sessão para guardar este imóvel e aceder à sua lista de favoritos em qualquer dispositivo.
3 Quartos
2 WCs
Área bruta : 191 m²
Moradia T3 Térrea | Isolada | Construção de 2025 | Garagem 2 carros Apresentamos esta magnífica moradia térrea T3, isolada, construída em 2025, inserida num lote de terreno com 442m². Com áreas generosas e acabamentos de qualidade, esta habitação oferece todo o conforto que procura: 3 quartos, sendo um deles suíte, para maior privacidade e comodidade. Sala e cozinha equipada em semi openspace, com excelente luminosidade natural. Aquecimento central em todas as divisões, garantindo conforto durante todo o ano. No exterior, poderá desfrutar de um agradável telheiro com cerca de 43m², ideal para momentos em família ou entre amigos, bem como de uma garagem fechada com 39m². Além disso, conta com espaço exterior adicional, beneficiando de ótima exposição solar e privacidade máxima. Uma oportunidade única para viver com qualidade, conforto e tranquilidade, numa moradia pronta a estrear.
AMI: 24448
Ref. Externa: CAS_95
Id: 1472823
Inicie sessão para guardar este imóvel e aceder à sua lista de favoritos em qualquer dispositivo.
4 Quartos
Área útil : 244 m²
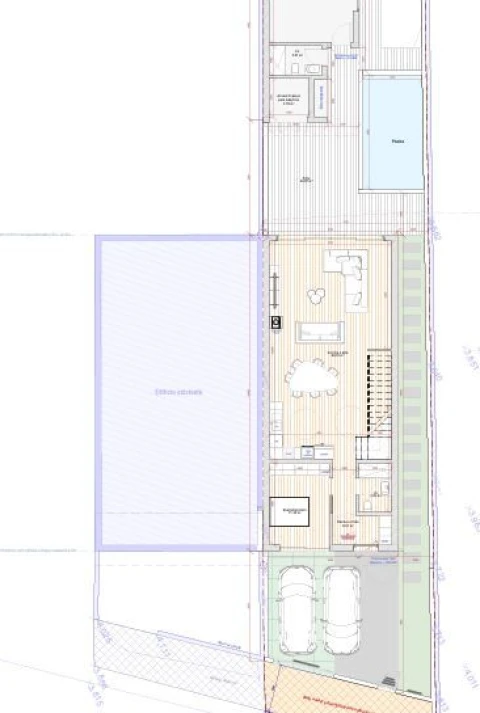
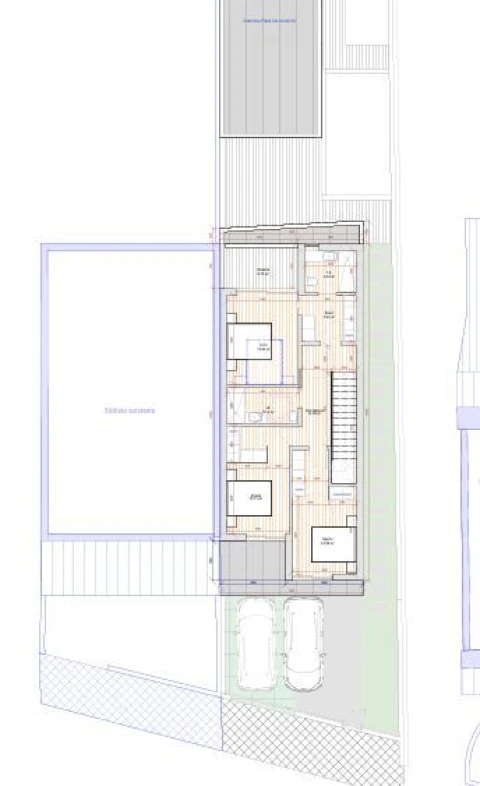
Moradia T4 com piscina na Gafanha do Carmo, junto à RiaMoradia moderna de 244 m² com piscina, vista e acesso direto à Ria de Aveiro. Dispõe de amplas áreas interiores, acabamentos de qualidade superior e localização privilegiada numa zona calma com bons acessos, ideal para quem procura conforto, elegância e contacto direto com a natureza.Composta por: 4 quartos (um deles suíte com closet) 4 casas de banho Sala ampla com excelente luz natural Cozinha totalmente equipada Sistema de climatização completo (ar condicionado + bomba de calor) Piscina integrada Casa de apoio à piscina Terreno com ligação direta à Ria de AveiroUma oportunidade sólida para quem procura uma moradia moderna, bem localizada e com ótimos espaços interiores e exteriores.Contacte-nos para agendar a sua visita.
AMI: 16089
Ref. Externa: GF3078
Id: 1467526
Inicie sessão para guardar este imóvel e aceder à sua lista de favoritos em qualquer dispositivo.
2 Quartos
2 WCs
Área útil : 72 m²
Moradia térrea T2, nova e entregue pronta a habitar, localizada numa zona tranquila e em constante valorização – a Gafanha do Carmo.Implantada num terreno de 311 m², com excelente exposição solar, esta moradia moderna oferece 72 m² de área construída, projetada para proporcionar conforto, funcionalidade e um design contemporâneo.O interior é composto por dois quartos, sendo um deles suíte, uma sala em conceito open space, e uma cozinha equipada com forno, placa e exaustor – ideal para quem valoriza um ambiente prático, luminoso e acolhedor.A localização é um dos seus maiores atrativos: a Gafanha do Carmo oferece qualidade de vida, tranquilidade e excelentes acessos. Está a poucos minutos das praias da Costa Nova e da Barra, e próxima do centro de Aveiro, onde encontrará todas as comodidades urbanas.Destaques:Moradia nova, entregue chave na mãoTerreno de 311 m² com ótima exposição solarCozinha equipada e sala em open spaceSuíte + um quarto Zona calma e em crescimento, próxima de praias e serviçosUma oportunidade única para quem procura uma moradia moderna, funcional e pronta a habitar!Previsão de entrega: Março 2026Marque já a sua visita!Predimed Imobiliária, Mediação Imobiliária, Lda.Avenida Brasil 43, 12º Andar, 1700-062 LisboaLicença AMI nº 22503Pessoa Coletiva nº 517 239 345Seguro Responsabilidade Civil: Nº de Apólice RC65379424 Fidelidade Características: Estacionamento Ar-Livre;Jardim;Suite;Poliban;Roupeiros;Exaustor;Forno;Auto-Estrada;Farmácia;Hipermercado;Transportes Públicos
AMI: 13558
Ref. Externa: 056234
Id: 1454275
Inicie sessão para guardar este imóvel e aceder à sua lista de favoritos em qualquer dispositivo.
3 Quartos
2 WCs
Área bruta : 235 m²
Moradia T3 térrea e isolada, construída em 2025, localizada na Gafanha do Carmo. Com uma arquitetura moderna e acabamentos de elevada qualidade, esta casa oferece o equilíbrio perfeito entre conforto, funcionalidade e eficiência energética.Com uma área total de 442,50m², a moradia dispõe de 235,05m² de área bruta de construção, distribuída de forma harmoniosa entre 147,20m² de área privativa e 87,85m² de área dependente.No seu interior, encontra:3 quartos, incluindo uma suíte espaçosa com excelente luminosidade natural;Roupeiros embutidos em todos os quartos, proporcionando máxima arrumação;Cozinha moderna e sala ampla, pensadas para proporcionar conforto e convívio;Aquecimento central, garantindo bem-estar durante todo o ano.No exterior, destaca-se a garagem fechada, ideal para estacionamento e arrumação, e o espaço envolvente privativo, perfeito para momentos ao ar livre.Com classe energética A, esta moradia assegura eficiência e poupança, aliando design moderno à sustentabilidade.Se procura uma casa nova, isolada e pronta a habitar, num local calmo mas com bons acessos, esta é a oportunidade ideal.Agende já a sua visita!Predimed Imobiliária, Mediação Imobiliária, Lda.Avenida Brasil 43, 12º Andar, 1700-062 LisboaLicença AMI nº 22503Pessoa Coletiva nº 517 239 345Seguro Responsabilidade Civil: Nº de Apólice RC65379424 Fidelidade Características: Estacionamento Ar-Livre;Garagem;Jardim;Suite;Aquecimento Central;Caldeira;Cozinha equipada;Gás Natural;Poliban;Forno;Frigorífico;Máquina de Lavar Louça;Placa Vitrocerâmica;Portão Eléctrico;Roupeiros;Vidros Duplos;Áreas de Lazer Infantil;Banco;Escola;Mercado;Posto de Combustível;Praia
AMI: 13558
Ref. Externa: 056231
Id: 1454248
Inicie sessão para guardar este imóvel e aceder à sua lista de favoritos em qualquer dispositivo.
3 Quartos
Área bruta : 152 m²
Encantadora Moradia T3 Térrea na Gafanha do CarmoApresentamos esta excelente moradia de tipologia T3, localizada numa zona calma, perfeita para quem procura conforto, funcionalidade e um espaço de qualidade para a sua família.Interior:Hall de entrada acolhedor que dá as boas-vindas. Cozinha moderna e totalmente equipada, ideal para preparar deliciosas refeições. Uma espaçosa sala de estar e jantar em open space, proporcionando um ambiente harmonioso para convívio. Na parte privada da casa, uma suíte de 18 m² com casa de banho privativa, oferecendo privacidade e conforto, dois quartos com roupeiros embutidos, otimizando o espaço de armazenamento e casa de banho de serviço completa, equipada para o dia a dia. Sistema de aquecimento a gás.Exterior:Garagem para duas viaturas, com acesso fácil.Espaço de lazer coberto, ideal para convívios em qualquer estação.Bomba de calor, contribuindo para maior eficiência energética.Esta moradia combina funcionalidade, conforto e um excelente espaço exterior, sendo uma oportunidade única para quem deseja viver numa zona tranquila, próxima de todas as comodidades. Agende já a sua visita e apaixone-se por esta casa!
AMI: 16013
Ref. Externa: LV376
Id: 1452805
Inicie sessão para guardar este imóvel e aceder à sua lista de favoritos em qualquer dispositivo.
3 Quartos
Área útil : 235 m²
Apresentamos esta magnífica moradia térrea isolada, situada na tranquila e acolhedora Gafanha do Carmo, ideal para quem procura conforto, privacidade e qualidade de vida. A propriedade destaca-se pelo excelente espaço exterior, perfeito para desfrutar de momentos de lazer, convívios em família ou simplesmente relaxar ao ar livre. Com aquecimento central em todas as divisões, esta moradia garante um ambiente acolhedor durante todo o ano. Dispõe ainda de garagem fechada, proporcionando segurança e comodidade no estacionamento e arrumação. A sua localização privilegiada permite fácil acesso a todo o tipo de serviços e comércio, como supermercados, escolas, farmácia, restaurantes e transportes públicos, tornando o dia a dia mais prático e confortável. Se procura uma moradia funcional, bem equipada e com um excelente espaço exterior, esta é a oportunidade ideal para si. Venha conhecer e deixe-se encantar por esta moradia na Gafanha do Carmo! PS: Aguardar reportagem fotográfica .
AMI: 17684
Ref. Externa: LP21102025
Id: 1434792
Inicie sessão para guardar este imóvel e aceder à sua lista de favoritos em qualquer dispositivo.
4 Quartos
2 WCs
Área bruta : 270 m²
?✨ Moradia T4 Como Nova na Gafanha do Carmo – Ílhavo ? Vista para a Ria | Piscina Aquecida | Próxima das Praias Descubra esta espetacular moradia T4, como nova, com excelentes acabamentos e um conjunto de comodidades que a tornam perfeita tanto para habitação própria como para investimento em alojamento local (AL). ? Destaques da Propriedade: ✅ Painéis solares – máxima eficiência energética ✅ Bomba de calor, aquecimento central e ar condicionado em toda a casa ✅ Piscina aquecida ✅ Portão elétrico ✅ Garagem ampla + espaço exterior para até 4 carros ✅ Roupeiros embutidos ✅ Cozinha interior moderna e totalmente equipada ✅ Cozinha exterior com churrasqueira – perfeita para eventos e convívios ✅ Vista deslumbrante para a ria ✅ Ambientes amplos e luminosos ✅ Zona tranquila e segura ?️ Localização : A 5 minutos das praias da Costa Nova e Barra Excelentes acessos a Aveiro e serviços essenciais Ambiente natural ideal para relaxar ou receber hóspedes ? Oportunidade única para quem procura: Casa de família espaçosa e confortável Investimento seguro em turismo local e short-rental ? Marque já a sua visita e venha conhecer esta moradia de sonho!
AMI: 16457
Ref. Externa: KWPT-018982
Id: 1426603
Inicie sessão para guardar este imóvel e aceder à sua lista de favoritos em qualquer dispositivo.
3 Quartos
4 WCs
Área bruta : 220 m²
Moradia T3+1 com vista Ria, Costa Nova/Barra e Reserva Ecológica. Localizada na Gafanha do Carmo Moradia ideal para famílias que gostam da tranquilidade de morar numa zona muito tranquila próxima da Ria e das Praias, próxima do Centro de Aveiro, mas localizada numa zona residencial tranquila e sossegada. Rés-do-chão: - Escritório espaçoso com entrada independente: ideal para profissionais liberais receberem os seus clientes com privacidade e manter o trabalho separado da vida familiar. - Ampla sala e cozinha em open space. - Casa de banho completa. - Lavandaria e casa de máquinas. Primeiro andar: - Suíte principal com closet e casa de banho privativa. - 2 quartos amplos com acesso a varanda voltada a sul. - Casa de banho completa. - Hall de distribuição panorâmico e varanda frontal - Um espaço único com vistas deslumbrantes sobre a ria, praias da Costa Nova e Barra, onde a luz natural se funde com a paisagem. Extras de Qualidade Superior: - Cozinha - Instalações sanitárias com louças e móvel suspensos - Garagem fechada e abrigo para outra viatura a coberto - Portão automático em aço - Vidros duplos térmicos e caixilharia de alumínio com corte térmico - Estores elétricos - Sistema de aquecimento completo (Bomba de calor + Recuperador a pellets com radiadores) - Vídeo-porteiro - VMC - Ventilação Mecânica Controlada (circulação de ar nos edifícios, melhora a qualidade do ar interior e reduz humidade) - Muros de separação das moradias com pedra natural na superfície superior > Pré-instalações Pensadas no Futuro: - Ar condicionado - Painéis fotovoltaicos - Carregador para carro elétrico - vídeo-vigilância - Lugar de Churrasqueira exterior servida com pontos de água e eletricidade
AMI: 9626
Ref. Externa: MD-00681
Id: 1398655
Inicie sessão para guardar este imóvel e aceder à sua lista de favoritos em qualquer dispositivo.
Estes agentes são especialistas nesta zona:
Inicie sessão para ocultar este imóvel das suas pesquisas e manter a sua lista de resultados organizada.
Guardar favoritos
Este imóvel foi guardados nos seus favoritos com sucesso.
Para poder guardar pesquisa deverá ter a sua sessão iniciada.
Caso não tenha uma conta, deverá criar uma.
A sua pesquisa foi guardada com sucesso!
© Copyright 2023 | CASACERTA. All rights reserved
Este site utiliza cookies. Ao navegar no site estará a consentir a sua utilização.
Para mais informações sobre os cookies pode consultar a
política de privacidade.