4 Quartos

3 WCs

Área bruta : 216 m²

Esta deslumbrante moradia em banda T4, localizada na freguesia de Travassos, no concelho de Fafe, já em construção. Com uma área total de lote generosa de 806m² e 214,5m² de área coberta, esta propriedade é o sonho tornado realidade para quem procura uma vida tranquila. Como ainda se encontra em construção ainda poderá dar o seu toque e gosto. Descrição da Propriedade: Rés do Chão: Sala de Estar e Jantar: Ao entrar nesta magnífica moradia, será recebido por uma sala de estar e jantar espaçosa e luminosa Cozinha com Excelente Área: A cozinha é um dos destaques desta propriedade, oferecendo uma área generosa e equipada com aparelhos de última geração. Além disso, possui acesso direto ao exuberante jardim, tornando-o o local perfeito para preparar refeições enquanto aprecia a vista para o exterior. Zona de Arrumos e Lavandaria WC de Serviço Garagem: A propriedade oferece espaço para estacionar até dois carros, com uma garagem coberta para um deles. 1º Piso: 1 Suite com Closet: O primeiro piso acomoda uma suíte elegante, completa com um espaçoso closet, proporcionando privacidade e conforto. 3 Quartos: Além da suíte, este piso inclui mais três quartos bem dimensionados, todos com espaço de armazenamento adequado. WC de Apoio aos Quartos Zona Exterior Coberta: A cereja no topo do bolo desta moradia é o seu incrível jardim, perfeito para momentos de descontração ao ar livre, entretenimento e lazer. Desfrute de refeições ao ar livre, jantares à luz das estrelas e momentos tranquilos no seu próprio refúgio natural. Excelentes Acabamentos: Esta propriedade foi meticulosamente projetada e construída com acabamentos de alta qualidade, garantindo uma vida de luxo e conforto. Desde os materiais de construção até aos detalhes de design, esta moradia em banda reflete o mais alto padrão de qualidade. 'Dê Asas à Sua Nova História' Uma equipa profissional um propósito Esta é uma equipa muito dinâmica que funciona como uma unidade muito eficiente. A grande capacidade de resposta e comunicação é a razão que leva os clientes a sentirem-se muito bem acompanhados ao longo dos seus processos de compra e venda. Experiência, competência e profissionalismo Todos os dias trabalhamos para somar, mas não a qualquer preço. Estamos do seu lado, representamos os seus interesses. Fazemo-lo com confiança e respeito. Processos claros e com transparência. Preocupamo-nos em prestar um serviço de excelência e inovador aos nossos clientes, quer estes pretendam vender comprar ou arrendar casa.

AMI: 20808

Ref. Externa: F2304.112

Id: 1231230

10 Quartos

Área útil : 1547 m²

Oportunidade de Investimento | Prédio Misto com Potencial Habitacional Total – Travassós, FafeApresentamos este prédio misto de 6 andares, localizado em Travassós, Fafe, uma zona em crescimento, tranquila mas com bons acessos, ideal para quem procura investir num imóvel com forte potencial de valorização e rentabilidade.Este edifício está dividido em 4 frações independentes, sendo duas atualmente destinadas a habitação, e duas com uso misto, mas com viabilidade de conversão total para uso habitacional. Uma excelente oportunidade para investidores que procuram transformar e rentabilizar um imóvel com estrutura sólida e localização estratégica.🔹 Características do Prédio: 6 andares distribuídos por 4 artigos independentes; 2 frações já registadas como habitação com ótimas áreas; Potencial de requalificação para converter todas as frações em habitação com facilidade de conversão em mais de uma habitação por fração ; Estrutura robusta e bem conservada; Localização com acesso facilitado ao centro de Fafe e vias principais;🔹 Pontos Fortes: Ideal para criação de várias unidades habitacionais (arrendamento de longa duração ou alojamento local); Potencial elevado de rentabilidade Investimento sólido numa zona em expansão Possibilidade de personalização e valorização do imóvelÓtima oportunidade para investidores seja para transformar em habitação multifamiliar, vender frações individualmente ou explorar no mercado de arrendamento, este prédio tem tudo para garantir retorno.Entre em contacto connosco para mais informações ou para agendar uma visita ao local.

AMI: 8878

Ref. Externa: 002-304

Id: 1223167

6 Quartos

6 WCs

Área útil : 362 m²

À VENDA – Quinta Autêntica em Requeixo (Fafe, Portugal) Terreno: 1.775 m² | Área coberta: 275 m² | Jardim: 1.500 m² Projeto de reabilitação iniciado | Licença anterior expirada Potencial excecional para turismo rural ou residência privada Situada numa zona tranquila e verdejante de Requeixo, no concelho de Fafe, esta Quinta tradicional portuguesa oferece uma oportunidade rara para investimento turístico ou habitação de charme. Com uma arquitetura típica e um terreno generoso, a propriedade já passou por obras iniciais de reabilitação e inclui todos os planos técnicos. Características principais: Casa com 3 pisos e 7 divisões previstas Estrutura sólida com obras iniciadas Projeto paisagístico com espaço para piscina incluído Plantas arquitetónicas disponíveis Ideal para alojamento local, turismo rural ou residência familiar ⚠️ Nota importante: O projeto de licenciamento anterior foi aprovado para uso turístico, mas encontra-se expirado. O comprador deverá apresentar novo pedido de licenciamento (documentação incluída). Localização estratégica, com acesso direto à estrada EM207, a poucos minutos do centro de Fafe. Ambiente calmo, rural e valorizado. Entre em contacto para mais informações ou agendar uma visita. Dossier técnico completo disponível. #ref: 143310

AMI: 11220

Ref. Externa: 143310

Id: 1218927

3 Quartos

3 WCs

Área bruta : 160 m²

Moradia em banda, t3 em fase de construção, localizada na freguesia de Travassos.Moradia constituída por:- sala e cozinha em regime Open Space;-1 suite;- 2 quartos com varanda- 3 WC completos- Garagem individual para um carro;  -Jardim Ficou curioso ?? Predimed Imobiliária, Mediação Imobiliária, Lda.Avenida Brasil 43, 12º Andar, 1700-062 LisboaLicença AMI nº 22503Pessoa Coletiva nº 517 239 345Seguro Responsabilidade Civil: Nº de Apólice RC65379424 Fidelidade Características: Anexos;Arrecadação;Estacionamento Ar-Livre;Jardim;Telheiro;Vedação;Tecto Falso;Sacada;Varanda;Suite;Estores Eléctricos;Piso Flutuante;Portão Eléctrico;Pré-Instalação Ar Condicionado;Vidros Duplos;Escola;Espaços Verdes;Farmácia;Terreno

AMI: 13558

Ref. Externa: 045161

Id: 1119332

3 Quartos

3 WCs

Área bruta : 171 m²

Moradia em banda, t3 em fase de construção, localizada na freguesia de Travassos.  Moradia constituída por: - sala e cozinha em regime Open Space;  -1 suite;  - 2 quartos com varanda  - 3 WC completos  - Garagem individual para um carro;  -Jardim Ficou curioso ?? Predimed Imobiliária, Mediação Imobiliária, Lda.Avenida Brasil 43, 12º Andar, 1700-062 LisboaLicença AMI nº 22503Pessoa Coletiva nº 517 239 345Seguro Responsabilidade Civil: Nº de Apólice RC65379424 Fidelidade Características: Estores Eléctricos;Isolamento Térmico;Piso Flutuante;Portão Eléctrico;Pré-Instalação Ar Condicionado;Roupeiros;Vidros Duplos

AMI: 13558

Ref. Externa: 045162

Id: 1118861

3 Quartos

3 WCs

Área bruta : 160 m²

Moradia em banda, t3 em fase de construção, localizada na freguesia de Travassos. Moradia constituída por:  - sala e cozinha em regime Open Space; -1 suite; - 2 quartos com varanda  - 3 WC completos  - Garagem individual para um carro;  -Jardim  Ficou curioso ?? Predimed Imobiliária, Mediação Imobiliária, Lda.Avenida Brasil 43, 12º Andar, 1700-062 LisboaLicença AMI nº 22503Pessoa Coletiva nº 517 239 345Seguro Responsabilidade Civil: Nº de Apólice RC65379424 Fidelidade Características: Jardim;Terraço;Vedação;Tecto Falso;Varanda;Suite;Estores Eléctricos;Piso Flutuante;Portão Eléctrico;Roupeiros;Vidros Duplos;Áreas de Lazer Infantil;Árvores de Frutos;Escola;Espaços Verdes;Farmácia;Terreno

AMI: 13558

Ref. Externa: 045164

Id: 1118858

3 Quartos

Área bruta : 171 m²

Moradia em banda, t3 em fase de construção, localizada na freguesia de Travassos.Moradia constituída por:- sala e cozinha em regime Open Space;-1 suite;- 2 quartos com varanda;- Roupeiros embutidos;- 3 WC completos;- Garagem individual para um carro;  -Jardim Ficou curioso ?? Predimed Imobiliária, Mediação Imobiliária, Lda.Avenida Brasil 43, 12º Andar, 1700-062 LisboaLicença AMI nº 22503Pessoa Coletiva nº 517 239 345Seguro Responsabilidade Civil: Nº de Apólice RC65379424 Fidelidade Características: Estacionamento Ar-Livre;Garagem;Jardim;Tecto Falso;Sacada;Varanda;Suite;Piso Flutuante;Portão Eléctrico;Roupeiros;Vidros Duplos;Áreas de Lazer Infantil;Árvores de Frutos;Escola;Espaços Verdes;Farmácia;Orientação Solar;Terreno

AMI: 13558

Ref. Externa: 045108

Id: 1118275

2 Quartos

1 WCs

Área útil : 75 m²

Moradia em pedra para restaurar, 2 pisos, garagem fechada, área total 335m2, poço de água, total privacidade, vistas desafogadas, com estudo para aumento da área útil. Propriedade ideal para férias e/ou fim de semana onde pode encontrar a serenidade. __ A história de sucesso da rede imobiliária LardeSonho deve-se a um serviço de excelência, personalizado para cada cliente, marcada por três premissas- SATISFAÇÃO- RECOMENDAÇÃO-FIDELIZAÇÃO. É a Maior Rede Imobiliária 100% Nacional tendo 24 agências distribuídas por todo o país com mais de 400 Consultores, o que garante uma presença forte junto de potenciais compradores e investidores. A Rede Imobiliária LardeSonho tem como ferramentas uma equipa de profissionais dinâmicos, motivados, com uma vasta experiência; uma carteira de imóveis aos preços mais competitivos do mercado; uma atitude proactiva que se caracteriza por inúmeras iniciativas de marketing, campanhas, eventos publicitários, promovendo e divulgando com sucesso a sua carteira de residentes em cada localidade onde tem Agência. Aliados a parcerias com instituições bancárias, gabinetes de arquitetura, empresas de construção, marketing e publicidade, a rede Imobiliária LardeSonho ajuda os seus clientes a encontrar uma solução adequada às suas necessidades.

AMI: 23311

Ref. Externa: 256-M-00853

Id: 998195

3 Quartos

Área bruta : 171 m²

Moradia em banda, t3 em fase de construção, localizada na freguesia de Travassos.Moradia constituída por:- sala e cozinha em regime Open Space;-1 suite;- 2 quartos com varanda- 3 WC completos- Garagem individual para um carro;  -Jardim Ficou curioso ?? Predimed Imobiliária, Mediação Imobiliária, Lda.Avenida Brasil 43, 12º Andar, 1700-062 LisboaLicença AMI nº 22503Pessoa Coletiva nº 517 239 345Seguro Responsabilidade Civil: Nº de Apólice RC65379424 Fidelidade Características: Estacionamento Ar-Livre;Garagem;Terraço;Tecto Falso;Sacada;Varanda;Suite;Janelas duplas;Roupeiros;Vidros Duplos

AMI: 13558

Ref. Externa: 045079

Id: 732394

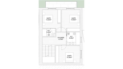
4 Quartos

Área útil : 204 m²

Moradia em banda com quatro quartos!Este imóvel é constituído por: Rés do Chão:- Cozinha;- Sala ampla;- Despensa;- Casa de banho de serviço;- Garagem ; Andar:- 4 Quartos, sendo um deles suite com closet;- 1 Casa de banho completa. Este imóvel dispõe ainda de logradouro privativo, estacionamento no exterior, ótimos acessos!A 5 minutos do Centro da Cidade, 5 minutos da Barragem da Queimadela e inserido numa freguesia com vários comércios/serviços (escolas, postos de correio, farmácia, postos de combustível, multibanco, talho, restaurantes, pastelaria)!|Venha Visitar! Imóvel em construção! 

AMI: 8878

Ref. Externa: 002-274

Id: 707842

Clicky