Lista
Comprar
Arrendar
75.000 €
2 Quartos
1 WCs
Área bruta : 181 m²
Casa de campo isolada com vistas espetaculares, pátio e jardim Situada nas colinas acima da animada vila mercantil de Miranda do Corvo. Este projeto de renovação simples oferece vistas deslumbrantes de longo alcance e pores-do-sol incríveis. Um telhado novo em 2024, vidros duplos e ligações às redes de serviços tornam este projeto fácil de concluir. A vila de Miranda do Corvo fica a 6 km de distância e beneficia das excelentes novas ligações de metro para a cidade de Coimbra, classificada pela UNESCO. É possível chegar diretamente a Coimbra em 30 minutos. O aeroporto internacional mais próximo é o do Porto, a 1 hora e 50 minutos. Existe também transporte local da aldeia para Miranda do Corvo. Entra-se na propriedade através de dois grandes portões de metal, que dão acesso ao pátio inferior murado e à área de estacionamento coberta. A disposição da habitação é a seguinte: Um lance de escadas conduz à área habitável, toda num único piso Hall de entrada/sala de estar 4,1 m x 1,45 m – esta sala também dá acesso a um fabuloso terraço lateral com cerca de 35 m² e vistas incríveis Cozinha/sala de jantar 5,9 m x 2,6 m – com duas orientações e uma grande chaminé original. Sala de estar 5,8 m x 3,1 m – com duas orientações e vistas de longo alcance a partir da janela. Quarto 2,9 m x 2,7 m Quarto 2,8 m x 2,6 m Casa de banho 2,9 m x 2 m - com banheira e duche. Piso térreo Adega 5,8 m x 5,7 m - esta pode ser adaptada caso necessite de espaço adicional. Arrecadação 5,1 m x 2,8 m Arrecadação 5,7 m x 2,6 m - com forno de pão autêntico original. O jardim é acessível através de alguns degraus a partir do terraço lateral. As vistas a partir daqui são ainda mais impressionantes. O jardim beneficia de várias árvores, incluindo uma impressionante nogueira. Neste piso, existe um grande anexo que necessita de renovação ou demolição. Este edifício poderia ser transformado numa fabulosa área de terraço coberto, numa oficina ou num alojamento adicional separado para hóspedes. A localização é deslumbrante, com vistas a partir da propriedade que abrangem Miranda do Corvo, mais abaixo, e a cidade de Coimbra, entre outras. É raro encontrar uma propriedade isolada como esta, com algum terreno, vistas e um projeto de renovação fácil de concluir por este preço. #ref: 849129
AMI: 11220
Ref. Externa: 849129
Id: 1710307
Inicie sessão para guardar este imóvel e aceder à sua lista de favoritos em qualquer dispositivo.
209.500 €
2 Quartos
2 WCs
Área de terreno : 214 m²
Moradia T2 para venda Moradia T2+2 de Dois Pisos em Zona Tranquila – A 5 Minutos de Miranda do Corvo e Penela. Descubra esta excelente moradia de dois pisos, inserida num lote de 659 m2 situada numa zona extremamente calma e tranquila, ideal para quem procura qualidade de vida, conforto e proximidade às principais vilas da região. Localizada a apenas 5 minutos de Miranda do Corvo e 5 minutos de Penela, esta propriedade combina a serenidade do campo com a conveniência urbana, com acessos rápidos a comércio, serviços, escolas e transportes. No piso inferior, a moradia dispõe de: ● Cozinha ampla, com excelente luminosidade ● Sala espaçosa com recuperador de calor, proporcionando conforto nos meses mais frios ● Casa de banho No piso superior, encontramos: ● Quatro quartos com boas áreas, com bastante luz natural e ar condicionado ● Casa de banho ● Acesso a terraço, ideal para momentos de lazer e relaxamento No exterior, a propriedade oferece: ● Garagem fechada, com portão automático , com capacidade para quatro carros ● Churrasqueira coberta, perfeita para convívios em família e com amigos ● Jardim cuidado ● Inclui um terreno de 380m2 com potencial para cultivo, lazer ou outros projetos Uma excelente oportunidade, numa localização privilegiada onde a tranquilidade e o conforto andam de mãos dadas. Se pretende viver com qualidade, espaço e privacidade, esta pode ser a casa certa para si! Imóvel não elegível para crédito bancário uma vez que está isento de LU por ser construído antes do 07-08-1951 (RGEU).
AMI: 7772
Ref. Externa: M-30301
Id: 1666497
Inicie sessão para guardar este imóvel e aceder à sua lista de favoritos em qualquer dispositivo.
209.500 €
2 Quartos
0 WCs
Área útil : 214 m²
Moradia T2 para venda Moradia T2+2 de Dois Pisos em Zona Tranquila – A 5 Minutos de Miranda do Corvo ePenela Descubra esta excelente moradia de dois pisos, inserida num lote de 659 m2 situadanuma zona extremamente calma e tranquila, ideal para quem procura qualidade devida, conforto e proximidade às principais vilas da região. Localizada a apenas 5 minutos de Miranda do Corvo e 5minutos de Penela, esta propriedade combina a serenidade do campo com aconveniência urbana, com acessos rápidos a comércio, serviços, escolas e transportes. No piso inferior, a moradia dispõe de: ● Cozinha ampla, com excelente luminosidade ● Sala espaçosa com recuperador de calor, proporcionandoconforto nos meses mais frios ● Casa de banho No piso superior, encontramos: ● Quatro quartos com boas áreas, com bastante luz natural e ar condicionado ● Casa de banho ● Acesso a terraço, ideal para momentos de lazer erelaxamento No exterior, a propriedade oferece: ● Garagem fechada, com portão automático , com capacidade para quatro carros ● Churrasqueira coberta, perfeita para convívios emfamília e com amigos ● Jardim cuidado ● Inclui um terreno de 380m2com potencial para cultivo, lazer ou outros projetos Uma excelente oportunidade, numa localizaçãoprivilegiada onde a tranquilidade e o conforto andam de mãos dadas. Se pretende viver com qualidade, espaço e privacidade,esta pode ser a casa certa para si ! Imóvel não elegivel para crédito bancário uma vez que está isento de LU por ser construído antes do 07-08-1951 (RGEU). ;ID RE/MAX: 125721262-1
AMI: 7772
Ref. Externa: 125721262-1
Id: 1665998
Inicie sessão para guardar este imóvel e aceder à sua lista de favoritos em qualquer dispositivo.
65.000 €
4 Quartos
2 WCs
Área bruta : 372 m²
Moradia de rés-do-chão e primeiro andar com quintal e vistas deslumbrantes. Moradia independente, com bom acesso numa rua que apenas serve esta casa e exposição solar nascente e poente. O quintal envolve a casa e tem acesso a duas ruas, a moradia de construção em pedra tem logo à entrada um grande pátio interior, com um telheiro que pode abrigar dois carros e três arrumos, com lindas paredes em pedra e abertura/portas para o pátio da casa. Subimos para o primeiro andar por uma escada exterior que leva a uma varanda. No topo, uma casa de banho simples, segue-se uma sala e dois quartos, todos com janelas para o exterior. Seguidamente, uma grande cozinha com forno a lenha e acesso ao quintal. Segue-se mais dois quartos, uma sala e despensa. A partir desta segunda sala, também temos acesso ao pátio da casa. A moradia necessita de renovação total, tem excelentes áreas e vistas desimpedidas para a zona envolvente e em dias de céu limpo, avista-se o mar/oceano na Figueira da Foz. O pôr do sol visto desta casa é também algo de extraordinário que impressiona qualquer pessoa. Uma localização encantadora! Ideal para viver e excecional para investimento. A apenas 5 minutos encontra uma vila com café, minimercado e escola, a 10 minutos a vila de Miranda do Corvo com todo o tipo de comércio, hospital e transportes públicos (metro). Uma propriedade com muita luz, envolta em lindas paisagens e com quintal. Descrição predial: - 1383 m² de área total de terreno - 372 m² de área bruta de construção Características: - 2 cozinhas não equipadas - 4 quartos - 2 salas - 2 casas de banho - 1 despensa - 1 telheiro - 3 arrumos - 1 pátio - 1 quintal Distâncias relevantes: - Vila de Miranda do Corvo a 9 km (10 minutos) - Cidade de Coimbra a 35 km (25 minutos) - Cidade de Lisboa a 200 km (2 horas) - Cidade do Porto a 149 km (1 hora e 32 minutos) #ref: 799226
AMI: 11220
Ref. Externa: 799226
Id: 1584955
Inicie sessão para guardar este imóvel e aceder à sua lista de favoritos em qualquer dispositivo.
70.000 €
2 Quartos
1 WCs
Área bruta : 72 m²
Moradia independente com quintal, pátio e garagem. Localizada numa pequena e acolhedora aldeia a 8 minutos da vila de Miranda do Corvo. Envolta numa paisagem de verde e serra única! Excelente exposição solar, terreno e anexos. A moradia fica no extremo do terreno, logo à entrada temos um grande hall com acesso à cave da casa de banho, simples, mas funcional. Do lado esquerdo, uma cozinha dividida em copa e sala de refeições, com lareira e janelas com vistas para o quintal. A partir da sala de refeições, entramos num salão com duas janelas e dois quartos, também com janelas. A casa necessita de renovação, mas tem o telhado em boas condições. Regressamos ao hall de entrada e descemos para o pátio, com um telheiro, garagem com acesso direto à rua e uma cave com lindas paredes em pedra, ideal para transformar num lindo salão. Na parte exterior, temos ainda um pequeno workshop ou escritório, uma pequenina casa com um forno a lenha e outro anexo já sem telhado, separado da casa. O terreno é plano, tem várias árvores de fruto e rodeia a casa. A moradia tem ligação à eletricidade e água de fornecimento público. Ideal para habitação permanente, pois tem potencial para ser uma linda e acolhedora casa de família. Também será excelente para arrendamento permanente. A apenas 3 minutos de carro, tem um supermercado, café e escola. Nas proximidades encontra praias fluviais, cascatas, miradouros, piscina municipal e lindos trilhos. Zona calma onde reina a tranquilidade e se vive com qualidade. A vila mais próxima (a 10 minutos) é Miranda do Corvo que tem todo o tipo de comércio, hospital,, mercado, escoas e transportes públicos (metro e autocarro). Descrição predial: - 1350 m² de área total de terreno - 72 m² de área bruta de construção Características: - 1 cozinha não equipada - 1 casa de banho - 2 quartos - 2 salas - 1 hall - 1 cave - 1 garagem - 1 telheiro - 2 arrumos Distâncias relevantes: - Vila de Miranda do Corvo a 5,8 km (10 minutos) - Cidade de Coimbra a 30 km (25 minutos) - Cidade de Lisboa a 200 km (2 horas) - Cidade do Porto a 148 km (1 hora e 32 minutos) #ref: 789326
AMI: 11220
Ref. Externa: 789326
Id: 1562902
Inicie sessão para guardar este imóvel e aceder à sua lista de favoritos em qualquer dispositivo.
140.000 €
4 Quartos
2 WCs
Área bruta : 319 m²
Se procura uma casa confortável e bem localizada na zona de Pereira, esta moradia pode ser a opção ideal para si e para a sua família. Distribui-se por 3 pisos: Rés-do-chão: - OpenSpace com cozinha e lareira, assim como zona de convívio e de estar; - Despensa ou zona de arrumação; - Logradouro exterior. Primeiro andar: - Hall de distribuição; - Open space composto por cozinha e sala com acesso a varanda; - 1 suite equipada com base de duche; - 1 quarto com muito boa área e exposição solar; - Hall de distribuição; - Casa de banho completa com banheira. Aguas furtadas: - Zona de lazer com muito bom pé direito e acesso a varanda; - Quarto com janela; - Quarto com janela. Não perca a oportunidade de adquirir esta moradia. Entre em contato comigo hoje para agendar uma visita e ver pessoalmente tudo o que esta casa tem a oferecer!
AMI: 16772
Ref. Externa: KWPT-001284
Id: 1429990
Inicie sessão para guardar este imóvel e aceder à sua lista de favoritos em qualquer dispositivo.
15.000 €
2 Quartos
1 WCs
Área bruta : 28 m²
Valoriza a tranquilidade e o ar puro da natureza? Esta é a sua oportunidade de comprar uma Casa de Pedra, para restauro, na localidade de Campo do Mouro, Vila Nova, Miranda do Corvo. Casa de rés do chão e primeiro andar, em zona calma e privativa. Aproveite o momento para criar uma casa a seu gosto, seja para habitação própria, secundária, alojamento local e/ou turismo rural. Vamos visitar? Atrações Turísticas:- Miradouro do Relógio (9 minutos de carro);- Fonte do Monte do Calvário (15 minutos de carro);- Cascata da Pedra da Ferida (15 minutos de carro);- Gondramaz - Aldeias do Xisto (19 minutos de carro);- Penedo dos Corvos (20 minutos de carro);- Gruta da Fonte ( 25 minutos de carro);- Moldura Isto é Lousã (28 minutos de carro);- Casal Novo - Aldeias do Xisto (34 minutos de carro). Curiosidades:- Vila Nova é uma freguesia portuguesa do concelho de Miranda do Corvo, com 27,08 km² de área e 970 habitantes (2011). A sua densidade populacional é de 35,8 hab/km². Foi fundada em 1907.- O escritor Miguel Torga foi médico de clínica geral em Vila Nova.- Vila Nova é apelidada de O Miradouro do Concelho, situando-se na vertente norte da Serra da Lousã, entre escarpas majestosas e ventos agrestes. - Freguesia com imenso património natural e monumental. É o berço de muitas tradições e uma terra de pessoas hospitaleiras e solidárias. Ao escolher Nicole Cleto - KW Union:- Uma agente imobiliária com uma excelente formação do mercado - Visualização das casas com antecedência - Informação sobre novas casas no mercado - Informação sobre outras casas vendidas e por que valores - Apresentação das melhores soluções financeiras para aquisição do imóvel - Apoio no processo de financiamento (se requerido) - Presença na avaliação do imóvel Características: Características Gerais - Para remodelar; Orientação - Nascente; Poente; Vistas - Vista jardim; Vista campo; Outras características - Moradia;
AMI: 16772
Ref. Externa: 2219-1383
Id: 1427302
Inicie sessão para guardar este imóvel e aceder à sua lista de favoritos em qualquer dispositivo.
349.000 €
3 Quartos
3 WCs
Área útil : 125 m²
2 CASAS PARADISÍACAS - NO MEIO DA NATUREZA Com muita privacidade, mas não isoladas. Muito confortáveis, renovadas com alto padrão de qualidade. Perto da praia fluvial da Louçainha e da cascata Pedra Ferida. Podem ser utilizadas para habitação principal e outra para arrendar. Trata-se de um bom investimento, pois fica a uma distância de 40 minutos de carro da histórica cidade de Coimbra (onde a habitação é muito cara). Fica perto da vila de Miranda do Corvo, 14 minutos de carro, que tem todos os serviços (escola, supermercados) e um hospital novo, muito útil nos dias de hoje. A casa principal tem 2 quartos, um com casa de banho privativa, sala, cozinha, open space. Tem outra casa de banho e outra sala. A outra casa tem um quarto com casa de banho, sala, cozinha, open space. Com bom acesso, silêncio total. Distância para o Aeroporto da cidade do Porto: 1 hora e 46 minutos aprox. pela A1 Distância para o Aeroporto de Lisboa: 2 horas aprox. pela A1 Distância para a praia da Figueira da Foz: 1 hora e 20 minutos aprox. pela A14 #ref: 151247
AMI: 11220
Ref. Externa: 151247
Id: 1412026
Inicie sessão para guardar este imóvel e aceder à sua lista de favoritos em qualquer dispositivo.
49.000 €
2 Quartos
Área útil : 250 m²
Duas moradias em pedra com pátio para reabilitação. Localizadas numa bonita aldeia serrana a 10 minutos da vila de Miranda do Corvo, apresento-vos estas duas moradias para renovação total com um pátio e dois portões de entrada, permitindo individualizar as entradas e criar um espaço independente para cada casa já que se trata de dois artigos urbanos independentes. Ideal para primeira habitação numa das casas, ficando a segunda destinada a receber família, amigos ou rentabilizar. Este conjunto de casas pode ainda ser apenas para investimento, quer em alojamento local ou arrendamento permanente. Várias possibilidades, muito potencial! Descrição predial: - 240 metros quadrados de área total de terreno - 250 metros quadrados de área bruta de construção - 2 casas de rés-do-chão e primeiro andar com pátio Distâncias relevantes: - Supermercado, escola e café a 3 km - Vila de Mirando do Corvo a 6 km - Cidade de Coimbra a 25 km - Cidade de Lisboa a 200 km - Cidade do Porto a 150 km - Praia fluvial a 4 km - Piscina municipal a 3 km #ref: 147301
AMI: 11220
Ref. Externa: 147301
Id: 1351737
Inicie sessão para guardar este imóvel e aceder à sua lista de favoritos em qualquer dispositivo.
325.000 €
4 Quartos
3 WCs
Área útil : 232 m²
Moradia única com 4 quartos, excelentes vistas e um magnífico jardim com água abundante! A propriedade localiza-se a poucos minutos da vila de Miranda do Corvo (8 minutos), numa posição elevada, proporcionando vistas deslumbrantes! A moradia está envolvida por um lindo jardim, relvado, com magníficas árvores, lindos canteiros de flores e uma grande churrasqueira. Atravessamos o verde jardim e entramos num espaçoso hall! A partir daqui, temos acesso a toda a casa e a partir daqui, uma linda escadaria em madeira leva a um sótão convertido em espaço habitado. Dirigimo-nos à bonita sala em open space com a cozinha. Um espaço com muita luz natural e magníficas vistas para o jardim. Uma opção que combina dois ambientes na perfeição: sala de estar e cozinha, ainda com uma linda lareira com recuperador de calor. A cozinha está completamente equipada, tem duas grandes janelas e ainda uma porta para o exterior com acesso ao jardim e churrasqueira, tudo plano. De salientar que os móveis da cozinha são recentes e estão em muito bom estado de conservação, assim como toda a moradia. A cozinha tem ainda uma útil despensa. Segue-se uma funcional e moderna casa de banho completa com janela para o exterior. No seguimento da zona privada da moradia, ainda temos três quartos, dos quais um em suite. Todos os quartos têm excelentes áreas, grandes janelas e o chão revestido a linda madeira natural! Acolhedores, modernos e confortáveis. Chegou a vez de subirmos ao primeiro andar onde encontramos um sótão aproveitado para habitação. Subimos a linda escada e chegamos a um hall iluminado por duas grandes janelas para o exterior, conferindo um agradável ambiente natural. À esquerda, um grande quarto, completo, com janela e revestido a madeira natural no chão e tetos. Um lindo quarto! Regressamos novamente ao hall e à direita temos um grande salão, igualmente com muita luz natural. Este espaço poderá ter outra utilização, pois tem preparado e, de momento, oculta mas existente, água e esgoto para poder instalar uma casa de banho ou até cozinha. Ainda neste piso, temos um enorme closet, ideal para acomodar roupas, fazer arrumos ou transformar em quartos. Está igualmente revestido no chão e teto em madeira natural. Saímos da casa e vamos para a churrasqueira! Toda coberta, espaço preparado para fazer refeições e convívio. Do lado direito, o jardim e do lado esquerdo, o acesso a uma cozinha grande com forno a lenha, ideal para festas ou para realizar refeições mais elaboradas, libertando assim a cozinha interior da casa. Esta cozinha tem acesso a uma grande adega e garagem fechada com uma casa de banho completa. Desta garagem há acesso a um segundo terraço térreo com espaço de arrumos e canil e ainda uma entrada para o jardim da frente da casa. Zona muito cuidada e à qual se pode dar várias utilizações. Voltamos ao jardim, um espaço verde, com canteiros de flores, lindas árvores e um poço de água que serve para regar todo o jardim e fazer limpezas. No jardim, há ainda um espaço preparado para fazer horta, um espaço de aves e um telheiro para desfrutar a vista abrigada do sol. De salientar que a moradia está abastecida por água de fornecimento público, tem um poço e ainda água proveniente de uma nascente pública. Toda a água consumida na casa, exceto para beber, provém do poço. É utilizada para usos domésticos, inclusive cozinhar. As janelas são em PVC com vidros duplos e tratamento térmico e acústico. Tem a vantagem de vir de carro até ao interior da garagem e a partir da cozinha e churrasqueira tem acesso direto à casa, tudo em zona coberta, abrigado da chuva. A partir da churrasqueira, há ainda acesso a um enorme terraço com vistas extraordinárias para a serra, a vila de Miranda do Corvo até à cidade de Coimbra. Na margem esquerda da casa, há ainda uma segunda garagem fechada e um aparcamento exterior que pertencem à propriedade. Excelente estado de conservação! A apenas 2 minutos da moradia, há uma linda vila com café, piscina municipal, um pequeno supermercado, escola e multibanco. A zona é muito aprazível para fazer caminhadas ou andar de bicicleta. Descrição predial: - 232 metros quadrados de área bruta de construção - 600 metros quadrados de área total de terreno Características: - 2 cozinhas equipadas - 3 casas de banho - 4 quartos (1 suite) - 2 salas - 1 adega - 2 garagens - Quintal/Jardim - 2 poços de água Distâncias relevantes: - Vila de Miranda do Corvo a 4 km - Cidade de Coimbra a 25 km - Autoestrada a 5 km - Cidade de Porto a 150 km - Cidade de Lisboa a 200 km #ref: 148001
AMI: 11220
Ref. Externa: 148001
Id: 1340724
Inicie sessão para guardar este imóvel e aceder à sua lista de favoritos em qualquer dispositivo.
25.000 €
2 Quartos
1 WCs
Área útil : 96 m²
Moradia no centro da bonita vila de Vila Nova, em condições de habitabilidade. Compõem esta casa rés-do-chão e primeiro andar. No primeiro andar, com acesso feito por uma escada exterior, temos uma sala ampla com janelas para a rua e dois quartos, dos quais um interior, uma cozinha não equipada com copa e sala de refeições. No rés-do-chão, há uma casa de banho e um grande arrumo que facilmente transforma em zona habitada. De salientar que a moradia tem paredes e telhado em muito bom estado de conservação, necessitando de obras de modernização e conforto. Tem uma localização privilegiada: café, supermercado e piscina municipal a 2 minutos a pé. A zona é muito sossegada, ideal para quem procura uma moradia para habitar, de férias ou para investimento! "Excluído do SCE, ao abrigo da alínea g) do n.º 2 do artigo 18.º do Decreto-Lei n.º 101-D/2020, de 7 de dezembro". Descrição predial: - 48 metros quadrados de área total de terreno - 96 metros quadrados de área bruta de construção Características: - 2 quartos - 1 sala - 1 cozinha - 1 casa de banho - 1 arrumo - 1 varanda Distâncias relevantes: - Vila de Miranda do Corvo a 5 km - Cidade de Coimbra a 25 km - Autoestrada a 7 km - Lisboa a 200 km - Porto a 160 km #ref: 146016
AMI: 11220
Ref. Externa: 146016
Id: 1290599
Inicie sessão para guardar este imóvel e aceder à sua lista de favoritos em qualquer dispositivo.
90.000 €
3 Quartos
1 WCs
Área útil : 84 m²
Moradia tipologia T3, pronta a habitar, a poucos minutos da vila de Miranda do Corvo. Propriedade independente, composta por rés-do-chão, primeiro andar, terraço e quintal. A entrada é feita pelo rés-do-chão. Entramos num pátio interior, coberto e temos à direita uma despensa, casa de máquinas e à esquerda uma grande adega, ou salão, com lindas paredes em pedra. Subimos ao primeiro andar e à direita temos uma cozinha completa e equipada com acesso a um terraço com churrasqueira e área de refeições a partir do qual temos vistas desimpedidas magníficas! Ideal para fazer as refeições nos dias de verão ou aproveitar o sol de inverno. Do lado oposto à cozinha, temos um corredor em marquise e, no topo a casa de banho completa, a seguir, uma agradável sala com acesso a três quartos e uma segunda sala ou escritório. Espaços muito bem aproveitados, com janelas que favorecem a entrada de luz natural. A casa está em bom estado de conservação! O telhado é recente, tem portas e janelas em alumínio com portadas exteriores também em alumínio. No exterior, há dois quintais, um na lateral da casa, outro do lado oposto da rua. Ideais para jardim, horta ou espaço de lazer. A casa tem espaço exterior de estacionamento. "Excluído do SCE, ao abrigo da alínea g) do n.º 2 do artigo 18.º do Decreto-Lei n.º 101-D/2020, de 7 de dezembro". Descrição predial: - 84 metros quadrados de área bruta de construção - 802 metros quadrados de área total de terreno Características: - 3 quartos - 1 cozinha - 1 casa de banho - 1 churrasqueira - 2 salas - Pátio interior - Despensa - Adega/Salão - Quintal Distâncias relevantes: - Vila de Miranda do Corvo a 8.4 km - Vila de Penela 12 Km - Cidade de Coimbra a 33 km - Lisboa a 195 km - Figueira da Foz 87 Km - Porto a 153 km #ref: 142718
AMI: 11220
Ref. Externa: 142718
Id: 1205950
Inicie sessão para guardar este imóvel e aceder à sua lista de favoritos em qualquer dispositivo.
59.000 €
3 Quartos
1 WCs
Área útil : 70 m²
Moradia pronta localizada a poucos minutos da vila de Miranda do Corvo. A entrada é feita para um pequeno terraço. Do lado esquerdo, um espaço de arrumos, do lado direito a moradia. Entramos na cozinha, que está equipada e funcional. De seguida, uma sala de estar com janelas viradas a poente e excelentes vistas. Segue-se a casa de banho, completa e funcional e três quartos. Há ainda no exterior um pequeno quintal onde poderá fazer uma pequena horta ou um belo jardim. A casa perfeita para a sua família ou para investimento, pois a proximidade da vila de Miranda do Corvo, a beleza do local e a funcionalidade tornam esta moradia muito atrativa. A 4 minutos há um pequeno café onde as pessoas se reúnem para conviverem. Há distribuição de pão porta a porta, a vila de Miranda do Corvo fica a 10 minutos de distância e há transporte para levar as crianças à escola. Descrição predial: - 35 metros quadrados de área total de terreno - 70 metros quadrados de área bruta de construção Características: - 3 quartos - 1 cozinha - 1 sala - 1 casa de banho - Terraço - Quintal - 1 arrumo Distâncias relevantes: - Vila de Miranda do Corvo a 5 km - Cidade de Coimbra a 25 km - Lisboa a 200 km - Porto a 150 km #ref: 137723
AMI: 11220
Ref. Externa: 137723
Id: 1117611
Inicie sessão para guardar este imóvel e aceder à sua lista de favoritos em qualquer dispositivo.
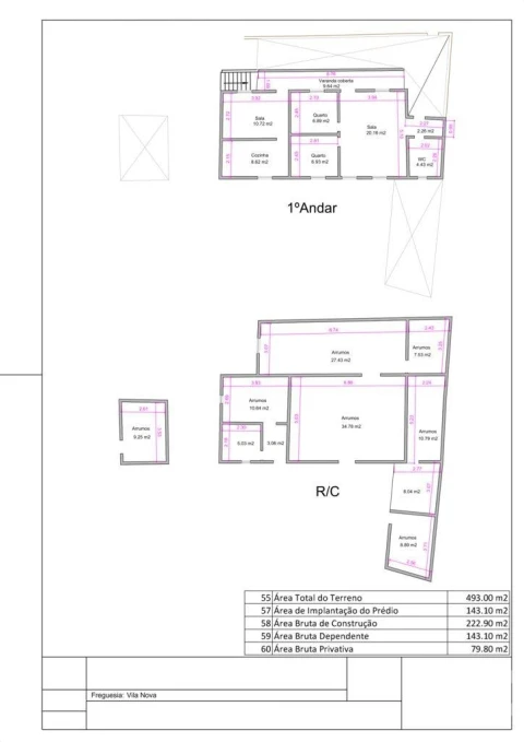
70.000 €
2 Quartos
1 WCs
Área útil : 223 m²
Moradia independente com condições de habitabilidade, quintal e poço de água. Localiza-se numa linda aldeia do concelho de Miranda do Corvo, uma aldeia serrana onde o sol chega muito cedo e fica até ao fim do dia. A entrada principal é feita para um terraço com exposição solar nascente. Entramos numa marquise envidraçada, a partir do qual se tem ligação a toda a casa. No topo da marquise há um acesso ao quintal. A primeira porta conduz a uma grande sala com janelas viradas a poente onde a vista alcança a cidade de Coimbra e ao fundo o oceano na cidade de Figueira da Foz. Magnífico! A partir da sala, tem acesso a dois quartos com janela e uma casa de banho, simples, mas completa e funcional. Voltando à marquise, temos a entrada para a cozinha, dividida em copa e sala de refeições, semi-equipada. Tem ainda uma lareira e um forno a lenha. Descemos ao quintal onde temos dois grandes arrumos na cave da casa, um telheiro, arrecadação independente, poço com água e quintal murado com árvores de fruto. A casa está habitável, tem um bom telhado, soalho em madeira igualmente em bom estado, eletricidade e canalização a funcionar. O quintal é excecional, com magníficas vistas, excelente exposição solar, terra fértil e água abundante proveniente do poço. Descrição predial: - 223 metros quadrados de área bruta de construção - 493 metros quadrados de área total de terreno Características: - 1 casa de banho - 1 cozinha - 1 sala - 2 quartos - 2 arrumos - 1 poço com água - Quintal com árvores de fruto Distâncias relevantes: - Vila de Penela a 10 km - Vila de Miranda do Corvo a 8 km - Cidade de Coimbra a 30 km - Autoestrada a 10 km - Praia fluvial a 4 km A apenas 3 km, há um café e supermercado. Excelente opção. #ref: 134734
AMI: 11220
Ref. Externa: 134734
Id: 1017552
Inicie sessão para guardar este imóvel e aceder à sua lista de favoritos em qualquer dispositivo.
25.000 €
2 Quartos
1 WCs
Área útil : 200 m²
Casa em pedra de construção anterior a 1951, com 200 metros quadrados de área bruta de construção, localizada numa bonita aldeia do concelho de Miranda do Corvo. Este imóvel é para renovação total, mas tem paredes exteriores de pedra em bom estado de conservação. No primeiro andar tem uma grande sala, cozinha e dois quartos, não esquecendo a varanda com exposição solar poente sobre um pátio interior pertencente à casa. No rés-do-chão temos espaço de arrumos e uma grande garagem com portão para a rua, aberta para o pátio interior. Imóvel com potencial para habitar, mas também para investir. Dadas as características da região, a procura é muita, tornando o investimento nestas casas muito atrativo! Descrição predial: - 86 metros quadrados de terreno - 200 metros quadrados de área bruta de construção Distâncias relevantes: - Vila de Miranda do Corvo a 8 km - Vila de Penela a 12 km - Cidade de Coimbra a 32 km - Lisboa a 193 km - Porto a 152 km #ref: 130046
AMI: 11220
Ref. Externa: 130046
Id: 921292
Inicie sessão para guardar este imóvel e aceder à sua lista de favoritos em qualquer dispositivo.
65.000 €
4 Quartos
1 WCs
Área útil : 240 m²
Moradia em pedra com 240 metros quadrados de área bruta de construção. Na realidade, trata-se da possibilidade de construir 3 casas independentes, com dois grandes pátios e um grande terraço. A entrada é feita por um grande portão que dá acesso a um pátio interior com um pequeno terreno de cultivo, a todo o rés-do-chão da moradia e com escada de acesso ao primeiro andar. O rés-do-chão é composto por várias lojas com bonitas paredes em pedra, dois pátios interiores e ainda anexos de arrumos. O primeiro andar é composto por várias divisões: 4 quartos, 3 salas, 2 cozinhas (não equipadas), 1 casa de banho e um grande terraço. Apesar da moradia necessitar de renovação, tem grande potencial por existir a possibilidade de fazer 3 casas independentes. Localiza-se numa aldeia serrana do concelho de Miranda do Corvo, tem bom acesso, excelente exposição solar e lindas vistas que em dias de sol nos permitem ver o mar na Figueira da Foz. Magnífico! Zona muito calma onde apenas se ouvem os passarinhos e a água que corre numa pequena ribeira. Distâncias relevantes. - Vila de Miranda do Corvo a 6 km - Cidade de Coimbra a 30 km - Lisboa a 200 km - Porto a 188 km - Praia a 70 km - Autoestrada a 12 km - Praia fluvial da Louçainha a 6 km #ref: 118677
AMI: 11220
Ref. Externa: 118677
Id: 699573
Inicie sessão para guardar este imóvel e aceder à sua lista de favoritos em qualquer dispositivo.
32.000 €
Área útil : 100 m²
Casa em pedra para remodelação total. Localizada na aldeia de S. Gens, freguesia de Vila Nova, no concelho de Miranda do Corvo. Esta aldeia localiza-se no topo de um monte, com vistas e exposição solar fantásticas. Serviços e comodidades a cerca de 15 minutos na Vila de Miranda do Corvo, onde pode encontrar supermercados, escolas, bancos, cafés, restaurantes, piscinas, etc. Autoestrada A13 a cerca de 15 minutos. #ref: 46903
AMI: 11220
Ref. Externa: 46903
Id: 522052
Inicie sessão para guardar este imóvel e aceder à sua lista de favoritos em qualquer dispositivo.
15.900 €
Área bruta : 32 m²
Moradia para restaurar com uma vista espetacular para a Serra da Lousã. Local tranquilo com vasta natureza, o imóvel possui um quintal de 560m2. Preço atrativo, venha conhecer!!! Não perca esta oportunidade e marque já a sua visita com a LifeTime. A LifeTime tem uma equipa onde pode encontrar profissionais dedicados. A nossa conduta é baseada em valores como a confiança, a integridade e o profissionalismo. Os nossos consultores estão preparados para lhe oferecer um serviço de excelência na compra/arrendamento da casa ou investimento dos seus sonhos. Para tal têm acessos às melhores formações no mercado imobiliário, de forma a identificar as suas necessidades reais. A nossa gestão processual tratará de todo o processo desde das simulações bancárias até à documentação da escritura e realização da mesma. Na LifeTime temos serviços que vão desde a compra, arrendamento, obras, financiamentos e gestão de imóveis sempre com o foco no melhor serviço ao cliente.
AMI: 10987
Ref. Externa: LT0182
Id: 191356
Inicie sessão para guardar este imóvel e aceder à sua lista de favoritos em qualquer dispositivo.
Estes agentes são especialistas nesta zona:
Inicie sessão para ocultar este imóvel das suas pesquisas e manter a sua lista de resultados organizada.
© Copyright 2023 | CASACERTA. All rights reserved
Guardar favoritos
Este imóvel foi guardados nos seus favoritos com sucesso.
Para poder guardar pesquisa deverá ter a sua sessão iniciada.
Caso não tenha uma conta, deverá criar uma.
A sua pesquisa foi guardada com sucesso!
Este site utiliza cookies. Ao navegar no site estará a consentir a sua utilização.
Para mais informações sobre os cookies pode consultar a
política de privacidade.