Lista
Comprar
Arrendar
725.000 €
3 Quartos
4 WCs
Área bruta : 300 m²
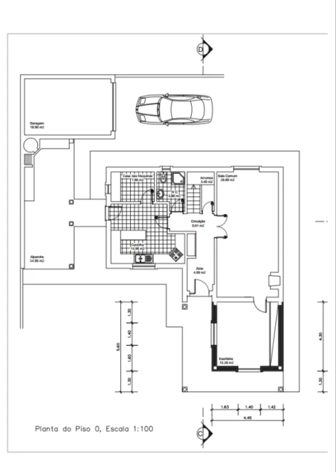
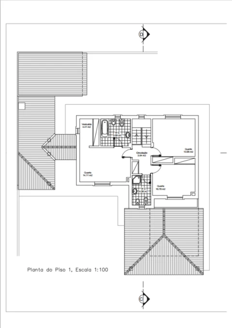
MORADIA DE LUXO COM PISCINA NAS GAEIRAS Moradia em fase de construção com espaços modernos e acolhedores, projetada para oferecer conforto e funcionalidade. Com arquitetura contemporânea, com linhas elegantes e materiais de alta qualidade. As grandes janelas permitem a entrada de luz natural. A cozinha num conceito 'open-space', equipada com eletrodomésticos de última geração, combina praticidade e sofisticação, ideal para momentos gastronômicos especiais. A moradia é composta por 3 quartos, um deles ensuite, mais um escritório que poderá eventualmente ser usado como outro quarto. Os quartos são espaçosos e bem distribuídos, proporcionando privacidade e tranquilidade com acabamentos refinados sendo um deles em suite. No exterior, um jardim e um grande terraço que convida ao relaxamento e ao convívio ao ar livre, com piscina (8mx4m) e churrasqueira. Garagem para 2 veículos, casa de banho, zona de lazer/sala de jogos e lavandaria/dispensa. garantindo ainda mais comodidade. Na fase em que se encontra a construção existe possibilidade do futuro proprietário escolher alguns acabamos. Principais características: Aquecimento central através de Bomba de Calor Bomba de Calor e Painéis Solares; Estores elétricos; Caixilharia em ALUMÍNIO com vidro duplo; Piscina conforme projeto, forrada a tela; Vídeo Porteiro. A moradia localiza-se em zona habitacional tranquila e perto de todos os serviços incluindo escolas, centro medico e restaurantes. Óbidos, que fica a escassos 5 minutos, poderá encontrar vários serviços (farmácia, cafés/pastelarias, restaurantes, banco supermercado, piscinal municipal transportes, etc. ) e um mágico castelo onde decorrem vários eventos como o Mercado Medieval, Festival Internacional de Chocolate, Vila Natal, Semana Internacional de Piano de Óbidos, entre outros. A cidade termal das Caldas da Rainha está a apenas 5 minutos de carro e a Lagoa, a praia e os campos de golfe a 10 minutos. O aeroporto de Lisboa está a 45 minutos.
AMI: 14121
Ref. Externa: MM-CA2321
Id: 1475568
Inicie sessão para guardar este imóvel e aceder à sua lista de favoritos em qualquer dispositivo.
350.000 €
4 Quartos
2 WCs
Área bruta : 145 m²
Moradia Unifamiliar térrea composta por sala e cozinha em open space, recuperador de calor, varanda, hall de entrada e corredor, 4 quartos com boas áreas, duas casas de banho, cave com 70m2 para garagem com arrecadação e casa da lenha. A casa está inserida num lote de 950m2 com vistas desafogadas, a poucos minutos do centro das Caldas da Rainha e de Óbidos, bons acessos à A8 e A15.
AMI: 14165
Ref. Externa: 02178
Id: 1458071
Inicie sessão para guardar este imóvel e aceder à sua lista de favoritos em qualquer dispositivo.
95.000 €
4 Quartos
2 WCs
Área bruta : 90 m²
? Oportunidade Única: Moradia T4 Térrea nas Gaeiras, Óbidos! ? Não perca esta chance singular de transformar este espaço no lar que sempre idealizou! ⚠️ Esta moradia T4 térrea, com 90m² de área total e de construção, é uma tela em branco no centro das Gaeiras e só existe esta! Uma oportunidade como esta, com este potencial e localização, não voltará a surgir rapidamente! ⏳ A procura está a aumentar! As Gaeiras é um local em franco crescimento e com a proximidade das Caldas da Rainha (apenas 5 minutos) e o acesso rápido a Lisboa (45 minutos via A8), esta é a altura de agir depressa! ? Não é só uma casa, é um investimento inteligentíssimo! Ideal para investidores que procuram um ativo de valorização garantida ou para uma família que deseja personalizar a 100% o seu futuro lar. O potencial de retorno é enorme! ? Deixe a sua imaginação voar! Com 90m², tem o espaço perfeito para criar a casa dos seus sonhos, totalmente adaptada ao seu gosto e necessidades. Sinta a alegria de viver no coração das Gaeiras, perto de todos os serviços e transportes, com a tranquilidade do campo e a conveniência da cidade à porta. O seu futuro começa aqui! Localização Premium: Centro das Gaeiras, Óbidos. 5 minutos das Caldas da Rainha. 45 minutos de Lisboa (excelentes acessos à A8). ☎️ Não espere que seja tarde demais! Marque já a sua visita e agarre este potencial!
AMI: 10340
Ref. Externa: 1115431
Id: 1451876
Inicie sessão para guardar este imóvel e aceder à sua lista de favoritos em qualquer dispositivo.
599.500 €
4 Quartos
3 WCs
Área bruta : 262 m²
Moradia T4 nas Gaeiras – Condomínio Fechado com Piscina e Excelentes Acabamentos Apresentamos esta fantástica moradia T4, inserida num condomínio fechado nas Gaeiras, a apenas 10 minutos das Caldas da Rainha e 15 minutos da Foz do Arelho. Com 262 m² de área total e um lote de 340 m², esta casa destaca-se pela excelente organização dos espaços interiores e exteriores, perfeita para quem procura conforto, segurança e qualidade de vida. Características da Moradia: * Hall de Entrada acolhedor * 3 quartos com roupeiros embutidos, incluindo uma suite * 3 casas de banho modernas * Sala e cozinha em open space, equipada e com recuperador de calor * Lavandaria funcional * Garagem privada * Terraço espaçoso e churrasqueira para momentos de lazer * Aspiração central para maior comodidade * Chão radiante para conforto térmico * Caldeira a gás eficiente * Pré-instalação de ar condicionado * Estores elétricos * Painéis solares para eficiência energética * Piscina comum ao condomínio com casa de banho de apoio Localização e Acessos: Situada numa zona privilegiada com ótima exposição solar e bons acessos a Lisboa, A15, A8, Caldas da Rainha, Foz do Arelho, Óbidos, São Martinho do Porto e Nazaré. Próximo de escolas, hipermercados, pastelarias, farmácias e variados serviços. Venha Conhecer Esta Moradia! Para quem procura qualidade, conforto e uma excelente localização, esta moradia T4 nas Gaeiras é a escolha ideal. Contacte-nos para mais informações e agende já a sua visita. Sobre Nós A Preserve Prestige, Lda, criada em 2018, distingue-se pela paixão, transparência e dedicação ao mercado imobiliário. Com a marca S-Prestige, oferecemos soluções personalizadas para comprar, vender ou investir, com acompanhamento especializado e total compromisso com a satisfação do cliente. S-Prestige – Elevamos o seu património, criamos valor, construímos confiança.
AMI: 20322
Ref. Externa: SPDP136
Id: 1380812
Inicie sessão para guardar este imóvel e aceder à sua lista de favoritos em qualquer dispositivo.
455.000 €
4 Quartos
3 WCs
Área útil : 193 m²
Quer ter uma Moradia com garagem e jardim, situada entre as Caldas da Rainha e Óbidos? Encontrou! Venha conhecer esta maravilhosa moradia com 2 pisos, muito bem conservada, construída num lote de 632 m2. Se procura tranquilidade e conforto, e ao mesmo tempo quer estar perto da cidade, esta é a opção ideal! Em 5 minutos está em Caldas da Rainha; a 20 minutos nas praias da região. Fica a aproximadamente 60 minutos de Lisboa. No rés do chão tem uma sala com recuperador de calor, com saída de calor para o 1º andar; Cozinha com península e despensa; Quarto ou escritório com roupeiro; Hall e casa de banho social; No 1º andar tem 3 quartos: 1 Suite com closet e casa de banho privativa 1 casa de banho completa 2 quartos. Zona Exterior: Garagem fechada para 1 carro; Telheiro com churrasqueira e zona de lazer; Jardim espaçoso; Se quiser tem espaço para construir uma piscina. Se ficou com vontade de saber mais, já sabe: ligue-nos ainda hoje e marque a sua visita!
AMI: 19516
Ref. Externa: L2025576
Id: 1351819
Inicie sessão para guardar este imóvel e aceder à sua lista de favoritos em qualquer dispositivo.
510.000 €
4 Quartos
4 WCs
Área bruta : 387 m²
Moradia T4 para Venda Entre a serenidade de Óbidos e a energia da cidade de Caldas da Rainha, existe umamoradia isolada que convida a uma nova forma de viver — com calma, comprivacidade, com escolhas. Aqui, o espaço não é apenas físico. É a liberdade de plantar uma horta e colher à suamedida. É o silêncio para receber amigos à volta do forno e da churrasqueira,com tempo para conversas longas e refeições sem pressa. É a possibilidade deconstruir uma piscina ou apenas um jardim que reflita o seu ritmo. Com quatro quartos distribuídos por dois andares, há lugar para a família crescerou simplesmente respirar. A garagem ampla e a área de lavandaria na caveoferecem organização e funcionalidade, mas também potencial para transformar —atelier, ginásio, estúdio, o que fizer sentido para si. Mais do que uma casa, este é um espaço onde pode alinhar o seu estilo de vida com os seus valores: tranquilidade, autonomia, conexão com a natureza e proximidadecom tudo o que importa. Se procura mais do que paredes e divisões, se procura um lugar que acompanhe quemé e para onde quer ir, talvez valha a pena vir conhecê-la. 1º Andar 2 quartos, com varanda, e uma casa de banho R/C Sala de estar, copa, cozinha, 1 suite, um quarto e uma casa de banho. Cave Garagem, espaço de lazer e lavandaria. ;ID RE/MAX: 124311225-3
AMI: 7772
Ref. Externa: 124311225-3
Id: 1299040
Inicie sessão para guardar este imóvel e aceder à sua lista de favoritos em qualquer dispositivo.
475.000 €
5 Quartos
Área útil : 226 m²
Moradia T5 Acessível e Versátil nas Caldas da Rainha – Gaeiras, ÓbidosEspaço, conforto e potencial de investimento numa localização privilegiadaSe procura uma moradia T5 nas Gaeiras, junto a Óbidos e muito perto das Caldas da Rainha, com acessibilidade para pessoas com mobilidade reduzida, áreas amplas e um excelente espaço exterior, esta é uma oportunidade que merece a sua atenção. Uma casa completa, funcional e com potencial de valorização, inserida num terreno generoso de 2.880 m², com possibilidade de destacar parcela para construção de outra moradia.Destaques da PropriedadeRés-do-chão acessível e funcionalPensado para garantir conforto e autonomia a pessoas com mobilidade reduzida, conta com: Sala de estar acolhedora com lareira e recuperador de calor Sala de jantar com ar condicionado Cozinha espaçosa e prática Casa de banho comum Suíte adaptada (resultado da transformação da garagem)Primeiro andar com excelente distribuição familiar Hall amplo Segunda suíte Três quartos (dois com roupeiros embutidos) Casa de banho completa Uma planta equilibrada, ideal para famílias que valorizam privacidade e conforto.Sótão versátil e luminosoTotalmente revestido a madeira, com duas janelas Velux, oferece um espaço perfeito para escritório, sala de jogos, biblioteca ou área de lazer.Exterior preparado para viver e desfrutar Pátio com alpendre Churrasqueira e forno de pão Jardim cuidado Anexo para arrumos Estacionamento no interior da propriedadeO terreno, amplo e bem aproveitado, garante privacidade, espaço para atividades ao ar livre e ainda a possibilidade de construção adicional — um fator importante para quem procura investimento imobiliário no Oeste.Localização EstratégicaSituada nas Gaeiras, a poucos minutos de: Caldas da Rainha Vila histórica de Óbidos Escolas, comércio, serviços e saúde Bons acessos rodoviários e transportesUma zona tranquila, residencial e perto de tudo, ideal para quem procura qualidade de vida, proximidade urbana e ligação à natureza.Se procura comprar moradia T5 nas Gaeiras, Óbidos ou Caldas da Rainha, esta é uma oportunidade rara pela versatilidade, acessibilidade e potencial do terreno.Agende já a sua visita com a ImoCruz – A transformar sonhos em realidade.Somos intermediários de crédito autorizados pelo Banco de Portugal n.º 0008055.Ajudamos a tornar o seu processo rápido, transparente e totalmente adaptado às suas necessidades — sem burocracias e sem custos.Precisa de ajuda para encontrar a melhor solução de crédito? Conte connosco.A informação facultada, embora precisa, é meramente informativa pelo que não pode ser considerada vinculativa e está sujeita a alterações.
AMI: 24151
Ref. Externa: FL001-25
Id: 1290920
Inicie sessão para guardar este imóvel e aceder à sua lista de favoritos em qualquer dispositivo.
595.000 €
4 Quartos
3 WCs
Área útil : 137 m²
Conclusão de obras prevista para o ano de 2026. EXTRAS: • Cozinha equipada com exaustor, forno e placa, todos da marca haier • Móveis de cozinha à escolha, inclui tampo em silestone ou compak, lava louças e escorredor • Loiças Sanitárias da Marca CTESI ou Roca • Carpintarias lacadas a branco • Tetos interiores em pladur com focos de iluminação led • Aquecimento Piso Radiante e Bomba de calor • Pré-Instalação de Ar Condicionado • Sistema de circulação de ar VMC • Equipamento Solar térmico para aguas sanitárias, depósito 200l e com resistência EXTERIOR: • Pavimento exterior em calçada, betão ou pavê nas áreas previstas em projeto • Relva natural nas áreas previstas em projeto • Piscina com água salgada, com liner
AMI: 18240
Ref. Externa: M042R
Id: 1063338
Inicie sessão para guardar este imóvel e aceder à sua lista de favoritos em qualquer dispositivo.
1.550.000 €
5 Quartos
4 WCs
Área bruta : 244 m²
Moradia T5 Térrea de Luxo com Piscina e Terreno Único de 4.820 m² Próximo da Foz do Arelho / Lagoa de Óbidos Descubra esta moradia térrea T5 de elevado padrão, implantada num magnífico terreno de 4.820 m², que alia exclusividade, elegância, privacidade e sustentabilidade. Localizada a apenas 10 minutos da praia da Foz do Arelho e da Lagoa de Óbidos, esta propriedade oferece uma experiência de vida única, em plena harmonia com a natureza. Espaços desenhados para o conforto e funcionalidade: - 4 quartos (incluindo 2 suítes, uma delas com walk-in closet) - 4 casas de banho - Escritório/quarto com vista para o jardim - Cozinha SMEG totalmente equipada - Lavandaria - Sala com janela panorâmica de 7 metros, que proporciona uma ligação plena ao exterior - Garagem fechada com preparação para 2 veículos elétricos - Todas as divisões principais com acesso direto ao jardim Design contemporâneo e tecnologia: - Revestimento em cortiça - Janelas com vidro espelhado térmico - Claraboias para luz natural - Domótica avançada compatível com Apple HomeKit, Google Home e Alexa - Fechaduras inteligentes Eficiência e sustentabilidade: - Classe energética A+ - Painéis solares com bateria - Furo de água e sistema de rega inteligente - Piso radiante com bomba de calor geotérmica para aquecimento e arrefecimento - Muro em pedra natural Terreno distinto e versátil: - Riacho natural a norte - Pequena vinha e árvores de fruto - Cerca de 1.000 m² de área relvada com sebe natural - Piscina de água salgada - Zona adicional de 1.000 m² com potencial para construção de uma segunda moradia ou court de ténis Uma moradia rara, com um terreno versátil e com alma, que alia luxo, conforto e sustentabilidade, numa das zonas mais procuradas da região Oeste. Imóvel em exclusivo partilhamos com todas as agências. Agende a sua visita e venha conhecer esta moradia incomparável.
AMI: 21865
Ref. Externa: TAPT01-1180_SAC_AMV
Id: 1042921
Inicie sessão para guardar este imóvel e aceder à sua lista de favoritos em qualquer dispositivo.
Sob consulta
3 Quartos
2 WCs
Área bruta : 87 m²
Sem Descrição
AMI: 14165
Ref. Externa: 02153
Id: 1030825
Inicie sessão para guardar este imóvel e aceder à sua lista de favoritos em qualquer dispositivo.
660.000 €
6 Quartos
5 WCs
Área bruta : 532 m²
Viver ou investir? 3 apartamentos com piscina na encantadora Vila de Óbidos Situada numa localização privilegiada nas Gaeiras, no concelho de Óbidos, esta propriedade única combina espaço, potencial e qualidade de vida. Com uma área total de 4.339,80m², oferece uma oportunidade singular, tanto para quem procura o refúgio ideal para viver, quanto para quem deseja investir num projeto de exploração turística. Uma propriedade com múltiplas possibilidades, que contempla parque privativo e um furo de água, com todas as vantagens que pode trazer! Composta por três apartamentos independentes, compostos da seguinte forma: - T1 no R/C com vista para jardins e piscina: Cozinha equipada e sala em open space, espaço de arrumos, um quarto com roupeiro e janela e uma casa de banho com poliban; - T3 no R/C com vista para jardins e piscina: Cozinha equipada e sala em open space, um quarto em suite, 2 quartos, uma casa de banho com base de duche, espaço para arrumação à entrada do apartamento; - T2 no Primeiro andar: Cozinha equipada e sala em open space, com saída para uma varanda com vista para jardins e piscina, espaço para arrumação, um quarto em suite, closet e também com acesso à varanda, 2 quartos e uma casa de banho com base de duche. Todos os apartamentos ficam mobilados e equipados e têm ar condicionado. Esta propriedade foi pensada para proporcionar conforto, privacidade e funcionalidade. Seja para habitação própria ou investimento, os apartamentos têm um layout que pode ser adaptado às suas necessidades. A área envolvente é o ponto alto do imóvel, com uma piscina convidativa e amplos espaços exteriores que garantem tranquilidade e qualidade de vida. Os três apartamentos oferecem um design versátil, podendo ser utilizados para arrendamentos de curta ou longa duração. A disposição das unidades também é perfeita para receber diferentes tipos de hóspedes, desde famílias a casais que procuram a paz e o encanto de Óbidos. Localização estratégica Nas Gaeiras, uma vila tranquila e próxima de Óbidos, a propriedade beneficia de uma localização estratégica. A poucos minutos da vila histórica, famosa pela sua muralha medieval e festivais culturais, este imóvel coloca-o no centro de uma região turística muito procurada. Além disso, a proximidade das praias da Costa de Prata, como Peniche e Foz do Arelho e dos acessos às principais vias de transporte torna-o ainda mais atrativo. Ideal para viver Se procura um espaço para viver, esta propriedade é o refúgio perfeito para quem valoriza tranquilidade e qualidade de vida. A vasta área exterior é ideal para momentos em família, atividades ao ar livre, ou simplesmente para relaxar junto à piscina. Com espaço suficiente para personalização, pode transformar esta propriedade no lar dos seus sonhos, aproveitando ao máximo a natureza e o charme da região. Potencial de exploração turística Para investidores, o potencial desta propriedade é extraordinário. A crescente procura por estadias em ambientes tranquilos e próximos de pontos turísticos como Óbidos torna esta uma oportunidade de ouro. Imagine criar ou manter um negócio de alojamento local ou turismo rural, com três apartamentos prontos para receber hóspedes, uma piscina que atrai visitantes em busca de conforto e lazer, e um amplo terreno, que pode ser utilizado para criar experiências únicas, como eventos, workshops ou até um pequeno restaurante ou bar. Com o aumento do turismo na região Oeste, especialmente na vila de Óbidos, conhecida como um dos destinos mais encantadores de Portugal, o retorno deste tipo de investimento é uma aposta certeira. A propriedade é um excelente ponto de partida para criar um espaço que combine tradição, conforto e experiências autênticas. Um investimento seguro e versátil Este imóvel não é apenas um espaço físico... é uma oportunidade! Seja para construir uma nova etapa da sua vida ou para iniciar um negócio promissor, esta propriedade tem tudo para se tornar a sua melhor decisão. Os 4.339,80m² oferecem espaço para sonhar, crescer e realizar, seja através de um estilo de vida tranquilo ou de um investimento rentável. Visite e deixe-se encantar Esta é mais do que uma propriedade... é um convite a descobrir um estilo de vida ou a embarcar num projeto de sucesso. Agende já uma visita e explore tudo o que este imóvel nas Gaeiras tem para oferecer. Óbidos e a Costa de Prata esperam por si!
AMI: 8044
Ref. Externa: CAL-216673
Id: 1019020
Inicie sessão para guardar este imóvel e aceder à sua lista de favoritos em qualquer dispositivo.
445.000 €
4 Quartos
3 WCs
Área bruta : 170 m²
Moradia T4 situada na Foz do Arelho, Gaeiras. Apresentamos uma magnifica moradia T4, em excelente estado de conservação e áreas generosas. Descubra o equilíbrio perfeito entre tranquilidade e conveniência nesta acolhedora vivenda de 4 quartos localizada em Óbidos. Com 4 quartos e 3 casas de banho, cozinha toda equipada e sala de estar e de jantar, em separado, esta vivenda espaçosa de 340m2 é ideal para famílias que procuram um novo lar. Com uma área de 340 m², esta propriedade usada oferece uma atmosfera acolhedora e confortável. Detentora de uma piscina privada, uma garagem para estacionar com facilidade, um piso adicional no porão para arrumos adicionais e um sistema de entrada de vídeo para garantir a sua segurança e privacidade. Localizada numa zona tranquila, mas ainda perto de escolas e supermercados, esta moradia oferece o melhor dos dois mundos, a proximidade de pontos de interesse como a Escola Profissional CENFIM e o Intermarché Supermercado permitem-lhe desfrutar da vida urbana sem comprometer a paz e tranquilidade que procura. Marque já a sua visita e deixe-se encantar por esta propriedade única em Óbidos. ___________________________________________________________________________________________________________________________________________________________________________________________We present a magnificent 4 bedroom villa, in excellent condition and with generous areas. Discover the perfect balance between tranquility and convenience in this welcoming 4 bedroom villa located in Óbidos. With 4 bedrooms and 3 bathrooms, a fully equipped kitchen and a separate living and dining room, this spacious 340m2 villa is ideal for families looking for a new home. With an area of 340 m2, this pre-owned property offers a warm and comfortable atmosphere. Boasting a private swimming pool, a garage for easy parking, an additional basement floor for additional storage and a video entry system to ensure your security and privacy. Located in a quiet area, but still close to schools and supermarkets, this property offers the best of both worlds. Its proximity to points of interest such as the CENFIM Professional School and the Intermarché Supermarket allows you to enjoy urban life without compromising the peace and quiet you seek. Book your visit now and let yourself be enchanted by this unique property in Óbidos.
AMI: 21541
Ref. Externa: 2SA92
Id: 965874
Inicie sessão para guardar este imóvel e aceder à sua lista de favoritos em qualquer dispositivo.
795.000 €
3 Quartos
3 WCs
Área bruta : 300 m²
Esta fantástica moradia T3, situada em zona tranquila das Gaeiras com uma vista soberba, é uma oportunidade imperdível para quem procura espaço e conforto. Com um terreno generoso de 6.750m², a propriedade está a apenas 10 minutos da charmosa vila de Óbidos e da cidade de Caldas da Rainha. Características da Moradia: Piso Térreo: Hall de entrada acolhedor Ampla sala de estar e cozinha totalmente equipada em open space Três quartos, incluindo uma suíte com casa de banho privativa e closet Hall de quartos e zona de circulação Cave: Lavandaria equipada Sala multiuso para cinema ou jogos Casa de banho com cabine de duche Ampla garagem com capacidade para duas viaturas Equipamentos e Comodidades: Cozinha equipada com: Duas placas vitrocerâmicas Exaustor Forno Micro-ondas Máquina de café Combinado Máquina de lavar loiça Sala com recuperador de calor a pellets Lavandaria com máquina de lavar roupa, bomba de calor e aproveitamento de painéis solares Pré-Instalação de Piso radiante Sistema de ventilação eficiente nas paredes Vidros duplos com corte térmico para melhor eficiência energética Exterior: Ampla área de lazer perfeita para momentos em família ou com amigos Bar exterior para aproveitar a boa exposição solar nascente/sul Espaços para passeios e relaxamento na vasta propriedade Esta moradia é o local ideal para quem valoriza qualidade de vida e tranquilidade. Não perca a oportunidade de visitar e conhecer a casa dos seus sonhos! Agende já a sua visita!
AMI: 10595
Ref. Externa: CAS_1180
Id: 934234
Inicie sessão para guardar este imóvel e aceder à sua lista de favoritos em qualquer dispositivo.
450.000 €
4 Quartos
3 WCs
Área bruta : 380 m²
Moradia T4 com Terreno de 8200 m² próximo da cidade das Caldas da Rainha Esta magnífica moradia, situada às portas da cidade, oferece o melhor da vida no campo com a conveniência da proximidade urbana, esta propriedade destaca-se pela sua excelente conservação e pelas amplas áreas interiores e exteriores. Distribuição da Propriedade: Cave: Espaçosa e multifuncional, a cave desta moradia dispõe de uma garagem com capacidade para mais de 10 viaturas, proporcionando uma solução ideal para quem necessita de amplo espaço de estacionamento. Além disso, a cave conta ainda com uma divisão para lavandaria e uma casa de banho de apoio. Piso Térreo: Ao entrar na casa, é recebido por um hall de entrada acolhedor que dá acesso às diversas divisões do piso. A sala de estar, ampla e iluminada, possui uma lareira que cria um ambiente aconchegante nos dias mais frios e tem acesso direto a uma varanda com vistas desafogadas. A sala de jantar, adjacente, é perfeita para receber amigos e familiares. Este piso conta com quatro quartos espaçosos, sendo um deles uma suite com casa de banho privativa. Há também uma casa de banho social para maior conveniência dos residentes e visitantes. A cozinha é ampla, equipada, e inclui uma despensa, ideal para armazenamento adicional. Sótão: O sótão desta moradia é um espaço surpreendente, com pé direito alto e abundante luz natural, o que o torna extremamente versátil. Pode ser utilizado como área de lazer, escritório, atelier, ou até mesmo ser convertido em mais áreas de habitação, conforme as necessidades dos futuros proprietários. Características Adicionais: Esta propriedade goza de uma excelente exposição solar, beneficiando de luz natural durante todo o dia. Está equipada com aquecimento central a gasóleo, garantindo conforto durante todo o ano. O terreno, que se estende por 8200 m², inclui uma área de eucaliptos e um furo com água abundante, ideal para a manutenção de um jardim exuberante ou mesmo para atividades agrícolas. A segurança e comodidade são reforçadas pelo portão automatizado. Localização Privilegiada: A 3 minutos da cidade de Caldas da Rainha: Esta proximidade permite acesso rápido a todos os serviços e comodidades que a cidade oferece, como escolas, hospitais, comércio, e lazer. A 15 minutos das praias da Costa de Prata: As belas praias da região são facilmente acessíveis, proporcionando a oportunidade de desfrutar do mar e das atividades náuticas em poucos minutos. A 45 minutos de Lisboa: A capital está a menos de uma hora de distância, tornando esta moradia uma excelente opção para quem deseja viver numa zona tranquila, mas com fácil acesso à cidade. Esta moradia é a escolha perfeita para quem procura um refúgio tranquilo, sem renunciar às conveniências da vida urbana e à proximidade das praias. Um verdadeiro oásis de conforto e qualidade de vida.
AMI: 329
Ref. Externa: 1834
Id: 857114
Inicie sessão para guardar este imóvel e aceder à sua lista de favoritos em qualquer dispositivo.
475.000 €
5 Quartos
3 WCs
Área útil : 226 m²
Se está à procura de uma moradia de campo, próxima da cidade, esta é a sua oportunidade ideal. Apresentamos uma encantadora moradia V5, distribuída por rés-do-chão, primeiro andar e sótão. No rés-do-chão, encontrará uma sala de estar acolhedora com lareira e recuperador de calor, uma cozinha espaçosa, uma sala de jantar equipada com ar condicionado, uma suíte confortável e uma casa de banho comum. Subindo ao primeiro andar, há um hall generoso, uma segunda suíte, três quartos (dois dos quais com roupeiros embutidos) e mais uma casa de banho comum, assegurando espaço e conforto para toda a família. O sótão, totalmente forrado em madeira, é um espaço amplo e luminoso graças às duas janelas Velux, ideal para um escritório, sala de jogos ou zona de lazer. A moradia está equipada com dois sistemas de aquecimento central, um a gás e outro através da lareira com recuperador de calor, garantindo conforto durante todo o ano. No exterior, poderá desfrutar de um pátio com churrasqueira e forno de pão, perfeito para convívios ao ar livre. A propriedade inclui ainda um anexo para arrumos, um belo jardim e espaço de estacionamento para cinco viaturas. Adicionalmente, a moradia possui um terreno de 400m² com potencial para construção de outra moradia, oferecendo uma excelente oportunidade de investimento. Não perca esta oportunidade única de viver no campo com todas as comodidades da cidade por perto. Contate-nos para mais informações e agende a sua visita!
AMI: 329
Ref. Externa: 1821
Id: 857110
Inicie sessão para guardar este imóvel e aceder à sua lista de favoritos em qualquer dispositivo.
Sob consulta
3 Quartos
2 WCs
Área útil : 89 m²
Moradia completamente renovada no centro da aldeia das Gaeiras, concelho de Óbidos. Ao nível do rés do chão composta por sala, cozinha, quarto, casa de banho e quintal com churrasqueira. Ao nível do 1º andar temos mais dois quartos, casa de banho e terraço. Inserida na Costa da Prata/Silver Coast, a 10 minutos da praia e a 45 minutos de Lisboa. Uma excelente oportunidade para habitação permanente, férias ou investimento. Completely renovated house in the center of the village of Gaeiras, in the municipality of Óbidos. On the ground floor there is a living room, kitchen, bedroom, bathroom and backyard with barbecue. On the first floor there are two more bedrooms, a bathroom and a terrace. Located on the Silver Coast, 10 minutes from the beach and 45 minutes from Lisbon. An excellent opportunity for permanent living, vacation or investment.
AMI: 17782
Ref. Externa: 386/M/00310
Id: 844043
Inicie sessão para guardar este imóvel e aceder à sua lista de favoritos em qualquer dispositivo.
Estes agentes são especialistas nesta zona:
Inicie sessão para ocultar este imóvel das suas pesquisas e manter a sua lista de resultados organizada.
Guardar favoritos
Este imóvel foi guardados nos seus favoritos com sucesso.
Para poder guardar pesquisa deverá ter a sua sessão iniciada.
Caso não tenha uma conta, deverá criar uma.
A sua pesquisa foi guardada com sucesso!
© Copyright 2023 | CASACERTA. All rights reserved
Este site utiliza cookies. Ao navegar no site estará a consentir a sua utilização.
Para mais informações sobre os cookies pode consultar a
política de privacidade.