Lista
Comprar
Arrendar
125.000 €
2 Quartos
1 WCs
Área bruta : 76 m²
**Moradia Independente em Peral - Oportunidade Única! ** Descobre esta encantadora moradia independente localizada em Peral, no concelho do Cadaval. Com 76 m² de área bruta e 75 m² úteis, este imóvel apresenta-se como a escolha ideal para quem procura uma habitação própria, uma casa de férias ou uma oportunidade de investimento. A sua configuração atual conta com 2 quartos e 1 casa de banho, mas o verdadeiro potencial está na possibilidade de ampliar a área útil, criando um quarto extra, um escritório ou até um estúdio. A localização é perfeita para quem valoriza a tranquilidade, com fácil acesso a serviços e comércio local. Além disso, a proximidade à natureza oferece um ambiente sereno e relaxante. O primeiro andar tem potencial para um terraço, onde se pode desfrutar de momentos ao ar livre. A personalização de cada detalhe permite adaptar a casa ao teu estilo e necessidades. Esta moradia, construída em 1988 e em bom estado, é uma excelente oportunidade para quem busca a primeira habitação ou uma casa de campo. Com um certificado energético de classe F, é importante considerar as possibilidades de melhoria energética. Não percas esta chance de transformar este espaço na casa dos teus sonhos!
AMI: 5544
Ref. Externa: DN2224
Id: 1692206
Inicie sessão para guardar este imóvel e aceder à sua lista de favoritos em qualquer dispositivo.
550.000 €
5 Quartos
3 WCs
Área bruta : 193 m²
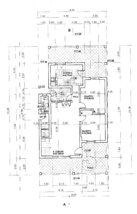
Moradia de três pisos, inserida em terreno amplo com piscina, jardim, garagem e anexo independente Entre árvores de fruto e o silêncio do campo, encontra-se uma casa que não é apenas um imóvel é um lugar para crescer, desfrutar e conviver. No piso térreo, encontra-se uma sala de estar com lareira com recuperador, pé-direito alto e acesso a varanda com vista para a área verde envolvente. A cozinha, totalmente equipada, liga-se à zona social de forma prática e funcional. No mesmo piso existem uma suíte com vista para a piscina, dois quartos com roupeiros embutidos e uma casa de banho completa com banheira. O piso superior dispõe de uma sala em mezzanine com vista sobre a sala principal, um escritório, dois quartos adicionais e uma casa de banho com banheira. No exterior, o espaço oferece diversas zonas de lazer, incluindo jardim, terraço e piscina, bem como uma garagem de grandes dimensões e um terreno com árvores de fruto. O anexo independente permite utilização como espaço de apoio, estúdio ou alojamento complementar. Localizada em zona tranquila e com boa exposição solar, esta moradia, mobilada, combina conforto, privacidade e funcionalidade, ideal para habitação permanente ou casa de férias. Esta casa está situada em Peral, Cadaval, uma zona sossegada e envolvente, ideal para quem procura privacidade e contacto com a natureza. A região combina a serenidade do campo com fácil acesso a serviços locais, comércio e escolas, estando a cerca de 45 minutos de Lisboa. A proximidade de estradas principais permite deslocações rápidas para praias e outras localidades do Oeste, tornando esta localização prática e ao mesmo tempo aprazível para habitação permanente ou escapadas de fim de semana. Áreas: Suíte principal: 17.30m2 Quarto: 12.83m2 Quarto: 13.20m2 Quarto: 14.10m2 Quarto: 14.10m2 Cozinha: 13.68m2 Wc: 6.72m2 Wc: 3.24m2 Wc: 3.80m2 Sala: 45.00m2 Galeria: 40.20m2 Garagem: 57.80m2
AMI: 1415
Ref. Externa: 103/2025.AF
Id: 1620947
Inicie sessão para guardar este imóvel e aceder à sua lista de favoritos em qualquer dispositivo.
195.000 €
3 Quartos
2 WCs
Área bruta : 110 m²
RESERVADO! Esta moradia totalmente renovada é o refúgio perfeito para quem procura conforto, qualidade de vida e contacto com a natureza tudo isto numa localização tranquila e de excelente acessibilidade. Localização privilegiada Situada numa aldeia serena e a poucos metros da Estrada Nacional N366, esta propriedade permite-lhe chegar facilmente a Lisboa (70 km) e às Caldas da Rainha (20 km). Ideal para quem deseja viver longe do ritmo acelerado da cidade, mas com acesso rápido a serviços essenciais, comércio e transportes. Distribuição da moradia Rés do chão: Sala ampla e luminosa, cozinha moderna e totalmente equipada, um quarto acolhedor e uma casa de banho. 1.º andar: Dois quartos espaçosos e uma casa de banho adicional, perfeitos para família, hóspedes ou área de trabalho. Exterior pensado para momentos especiais Num lote de 344 m², encontra ainda um anexo com forno e churrasqueira o cenário ideal para jantares ao ar livre, fins de semana em família ou convívios com amigos. Totalmente mobilada e equipada, esta moradia está pronta a receber os seus novos proprietários, sendo uma excelente opção tanto para residência permanente como para casa de férias. Se procura tranquilidade sem renunciar ao conforto e à comodidade, esta é uma oportunidade que não vai querer perder. Contacte-me para mais informações ou para agendar a sua visita!
AMI: 8044
Ref. Externa: CAL-216719
Id: 1517439
Inicie sessão para guardar este imóvel e aceder à sua lista de favoritos em qualquer dispositivo.
390.000 €
5 Quartos
5 WCs
Área bruta : 292 m²
Moradia luminosa, com excelente espaço exterior e a poucos minutos do centro do Cadaval. Esta propriedade destaca-se pela sua luminosidade natural, ambiente acolhedor e pela tranquilidade envolvente ideal para quem procura qualidade de vida junto à natureza, sem abdicar da proximidade ao centro urbano. Composta por dois pisos (R/C e 1.º andar), oferece uma distribuição funcional e confortável: Rés-do-Chão; Cozinha Sala de estar e jantar com lareira e recuperador de calor Casa de banho completa Suíte Primeiro Piso; 4 quartos, um deles com pequena varanda Casa de banho de apoio (com pré-instalação de chuveiro) Sótão aproveitado e transformado em quarto de grandes dimensões, com casa de banho Zona de arrumos Exterior; Terraço Estacionamento coberto para, pelo menos, 2 carros Anexo com sala, casa de banho, churrasqueira e forno a lenha, com pequeno pátio adjacente Zona adicional de arrumos Jardim; Poço com água Casa das máquinas (rega, seleção entre água da rede ou do poço) Ampla área ajardinada, com potencial para construção de piscina Características e Informações Adicionais; Janelas oscilo-batentes Piso flutuante nos quartos Vista desafogada e excelente exposição solar Roupeiros embutidos em todos os quartos (sem portas) Moradia sem estores fase da renovação que ficou por concluir Localização e Acessos; A 5 minutos do centro do Cadaval (comércio, serviços e escolas) A 15 minutos da A8 A 20 minutos das Caldas da Rainha Próxima das praias do Oeste Elite Homes Real Estate Somos Intermediários de Crédito registados no Banco de Portugal: 7059. Analisamos e encontramos o melhor contrato de crédito para as suas necessidades. Visite-nos em www.elitehomes.pt
AMI: 18414
Ref. Externa: MV25/001
Id: 1505287
Inicie sessão para guardar este imóvel e aceder à sua lista de favoritos em qualquer dispositivo.
79.500 €
1 Quartos
Área bruta : 50 m²
? Oportunidade Única — Pequena Moradia em Barreiras, Peral (Cadaval) Apresentamos esta moradia de 50 m², situada na tranquila localidade de Barreiras, Peral, no concelho do Cadaval. Atualmente em fase de remodelação, e vendida no estado em que se encontra, ideal para quem procura criar um espaço ao seu gosto, seja para habitação própria, casa de férias ou investimento. Além da área principal, o imóvel conta ainda com potencial de aproveitamento do sótão, permitindo ampliar a área útil e criar um quarto extra, escritório, estúdio ou zona de arrumação, conforme as suas necessidades. Moradia com muito potencial, com a possibilidade de personalizar cada detalhe. Localizada numa zona calma e com fácil acesso a serviços, comércio local e natureza, este imóvel é perfeito para quem valoriza qualidade de vida. Principais características: Em processo de renovação – excelente oportunidade para adaptar ao seu estilo Ambiente calmo e agradável Excelente para primeira habitação, casa de campo ou investimento para arrendamento Se procura um imóvel com potencial, acessível e bem localizado, esta é a oportunidade ideal! Agende a sua visita e venha descobrir o que esta moradia pode oferecer.
AMI: 23677
Ref. Externa: 66684-TEAM60726
Id: 1503109
Inicie sessão para guardar este imóvel e aceder à sua lista de favoritos em qualquer dispositivo.
Sob consulta
3 Quartos
2 WCs
Área bruta : 235 m²
Moradia Isolada Peral, Cadaval Moradia isolada, situada num ambiente rural e tranquilo na freguesia do Peral, concelho do Cadaval. Distribuída por dois pisos, apresenta um ambiente acolhedor e espaçoso, ideal para residência permanente ou casa de férias. Ao nível do rés do chão, Sala de estar com lareira e ar condicionado Sala de jantar Hall de entrada Cozinha totalmente equipada com forno, placa, exaustor e máquina de lavar loiça Casa de banho completa com banheira. Ao nível do primeiro andar, dispõe de: Três quartos Hall Casa de banho com duche Marquise Duas divisões adicionais, ideais para closet, escritório ou arrumos. Inclui ainda anexa à moradia uma garagem individual e um terreno rústico de 1.960 m² com árvores de fruto e poço, perfeito para quem aprecia o contacto com a natureza. Com uma vista deslumbrante sobre o campo e a Serra do Montejunto, orientação Este/Oeste, garantindo uma excelente exposição solar. A casa encontra-se em ótimo estado de conservação, pronta a habitar! Recentemente atualizada, oferecendo maior conforto e eficiência energética. Janelas novas. Dispõe de 8 painéis solares com bateria, bomba de calor nova para aquecimento central, 2 unidades de ar condicionado, novo recuperador de calor a lenha, novas loiças de casa de banho, novo fogão, e ventoinhas de teto na sala de estar, na área de escritório e no quarto principal. Foi ainda adicionado um alpendre e realizada uma pintura integral do exterior da casa, conferindo-lhe um aspeto moderno e cuidado. Localizada a 7 km do Cadaval, onde encontrará todos os serviços e comércio essenciais. A uma curta distância de Lisboa, das praias da Costa de Prata e de destinos emblemáticos como a Vila Medieval de Óbidos, o Buddha Eden, Caldas da Rainha e Torres Vedras, oferece uma localização privilegiada e excelente potencial de valorização.
AMI: 17782
Ref. Externa: 386/M/00389
Id: 1476054
Inicie sessão para guardar este imóvel e aceder à sua lista de favoritos em qualquer dispositivo.
570.000 €
3 Quartos
Área bruta : 211 m²
Moradia Térrea Moderna com Piscina – Barreiras, Cadaval Apresentamos esta magnífica moradia térrea, entregue chave na mão, situada em Barreiras, Cadaval, a apenas 50 minutos de Lisboa. Inserida num lote de 1.000 m², esta propriedade combina conforto, funcionalidade e uma excelente exposição solar, proporcionando luminosidade natural durante todo o dia. A moradia dispõe de 3 quartos, sendo um deles uma suite com closet privativo, ideal para quem valoriza o conforto e a privacidade. A sala e cozinha em open space oferecem um ambiente moderno e acolhedor, perfeito para momentos em família ou entre amigos. No exterior, poderá desfrutar de uma piscina privada, rodeada por um agradável espaço ajardinado, ideal para relaxar e aproveitar o clima ameno da região. Conta ainda com uma garagem com 27,5 m², oferecendo espaço para estacionamento e arrumação. A localização é tranquila, com bons acessos e proximidade a serviços, comércio e escolas, tornando esta moradia a escolha ideal para quem procura qualidade de vida no campo, sem abdicar da proximidade à cidade. Principais características: Moradia térrea nova (entrega chave na mão) Lote de 1.000 m² 3 quartos (1 suite com closet) Cozinha e sala em open space Piscina privada Garagem com 27,5 m² Excelente exposição solar A 50 minutos de Lisboa Uma oportunidade única para viver com conforto, privacidade e elegância, em harmonia com a natureza.
AMI: 23990
Ref. Externa: 66582-TEAM60695
Id: 1466962
Inicie sessão para guardar este imóvel e aceder à sua lista de favoritos em qualquer dispositivo.
570.000 €
3 Quartos
Área bruta : 211 m²
Moradia Térrea Moderna com Piscina – Barreiras, Cadaval Apresentamos esta magnífica moradia térrea, entregue chave na mão, situada em Barreiras, Cadaval, a apenas 50 minutos de Lisboa. Inserida num lote de 1.000 m², esta propriedade combina conforto, funcionalidade e uma excelente exposição solar, proporcionando luminosidade natural durante todo o dia. A moradia dispõe de 3 quartos, sendo um deles uma suite com closet privativo, ideal para quem valoriza o conforto e a privacidade. A sala e cozinha em open space oferecem um ambiente moderno e acolhedor, perfeito para momentos em família ou entre amigos. No exterior, poderá desfrutar de uma piscina privada, rodeada por um agradável espaço ajardinado, ideal para relaxar e aproveitar o clima ameno da região. Conta ainda com uma garagem com 27,5 m², oferecendo espaço para estacionamento e arrumação. A localização é tranquila, com bons acessos e proximidade a serviços, comércio e escolas, tornando esta moradia a escolha ideal para quem procura qualidade de vida no campo, sem abdicar da proximidade à cidade. Principais características: Moradia térrea nova (entrega chave na mão) Lote de 1.000 m² 3 quartos (1 suite com closet) Cozinha e sala em open space Piscina privada Garagem com 27,5 m² Excelente exposição solar A 50 minutos de Lisboa Uma oportunidade única para viver com conforto, privacidade e elegância, em harmonia com a natureza.
AMI: 23990
Ref. Externa: 66588-TEAM60696
Id: 1466961
Inicie sessão para guardar este imóvel e aceder à sua lista de favoritos em qualquer dispositivo.
385.000 €
4 Quartos
2 WCs
Área bruta : 421 m²
Quintinha de charme com piscina em lote de 7562,60 m² no Cadaval um refúgio com futuro no coração do Oeste Entre o verde dos campos e a tranquilidade da aldeia do Peral, no concelho do Cadaval, encontra-se uma propriedade que reúne o melhor dos dois mundos: autenticidade rural, conforto moderno e um terreno com elevado potencial construtivo e turístico. Esta quintinha T4 com piscina, anexos e 6.800 m² de terreno representa uma oportunidade única para quem procura qualidade de vida, rentabilidade e valorização imobiliária numa zona de franca expansão a apenas 50 minutos de Lisboa. Um refúgio entre o campo e a conveniência A moradia principal, com 276,9 m² distribuídos por dois pisos, foi renovada em 2019, preservando o seu charme rural e acrescentando conforto contemporâneo. A ampla sala e cozinha em open space formam o coração da casa um espaço pensado para partilhar momentos em família, cozinhar e receber amigos, com luz natural e materiais que refletem a serenidade do campo. No piso superior, encontram-se quatro quartos e uma divisão extra para escritório ou arrumos, complementados por um sótão por aproveitar, ideal para ampliar a área habitável ou criar uma zona de lazer. Equipamentos como janelas em PVC, pré-instalação de aquecimento central, salamandra a lenha e termoacumulador de 200 litros asseguram conforto durante todo o ano. Terreno com potencial e natureza em estado puro O exterior é um verdadeiro convite à tranquilidade: uma piscina com zona de lazer, pérgula em madeira, charco natural e amplas áreas verdes tornam esta quinta um espaço perfeito para relaxar ou desenvolver projetos pessoais e profissionais. O terreno, rústico, mas urbanizável, oferece capacidade construtiva adicional, sendo ideal para quem pretenda expandir a habitação, criar alojamentos turísticos ou desenvolver um projeto de turismo rural, eco-resort ou glamping. Localização estratégica e valorização crescente Mais do que uma casa, esta quintinha é uma proposta de vida. Ideal para quem sonha com uma segunda habitação, um retiro no campo ou um negócio turístico sustentável, a propriedade alia potencial de valorização a um estilo de vida mais calmo e equilibrado. Situada a apenas 5 minutos do centro do Cadaval, com todos os serviços essenciais, e 13 minutos do Jardim Buddha Eden, esta propriedade beneficia de uma localização estratégica numa zona em forte crescimento residencial e turístico. Com acessos rápidos à A8 e proximidade de praias como a Foz do Arelho ou Peniche, o Peral é hoje uma das localizações mais promissoras do Oeste, combinando tranquilidade, natureza e acessibilidade. Não perca esta oportunidade, agende a sua visita!
AMI: 10073
Ref. Externa: 321/M/01251
Id: 1452436
Inicie sessão para guardar este imóvel e aceder à sua lista de favoritos em qualquer dispositivo.
385.000 €
4 Quartos
3 WCs
Área bruta : 0 m²
Moradia de R/C e 1.° andar, situada na aldeia do Peral. Sala espaçosa com cozinha aberta com balcão e casa de banho de serviço no R/C. No 1.° andar tem 4 quartos + 1 divisão de arrumação que pode ser convertida noutro quarto, e casa de banho completa. Ainda conta com um sótão não aproveitado. Casa remodelada em 2019, com soalho de pinho novo no R/C assim como as escadas que levam ao 1.° andar. Conta com as seguintes características: caixilharia em PVC oscilo-batente; pré-instalação de aquecimento central e salamandra a lenha; águas quentes sanitárias por termoacumulador de 200 litros; placa de indução, forno eléctrico e exaustor encastrados. Piscina com pérgula de madeira no exterior, zona de quintal e jardim. Garagem aberta e divisão de arrumos (oficina) e grande anexo de 80 m² que era uma antiga adega que serve como espaço de jogos. Ainda tem mais 2 zonas cobertas. Esta casa tem ainda um grande terreno rústico de 6800 m² com zona inserida na REN e outra área considerável de zona urbanizável. Fica localizado numa aldeia pacata com cafés e minimercado. A cerca de 5 minutos de carro do Cadaval que tem hipermercados, restaurantes, lojas, farmácia e todos os serviços como Bancos, Correios, assim como a 13 minutos do Jardim Buddha Eden. Excelente oportunidade para investidores ou proprietários que desejam entrar no mercado do Alojamento local. Pouco mais de 30 minutos das praias do Oeste e do Dinoparque da Lourinhã. Para visitar, contacte AM, a sua Imobiliária! Rosemary: + (telefone)
AMI: 12245
Ref. Externa: RC.1497105
Id: 1417960
Inicie sessão para guardar este imóvel e aceder à sua lista de favoritos em qualquer dispositivo.
390.000 €
4 Quartos
Área bruta : 292 m²
Moradia T4 Com espaço exterior na Sobrena, Cadaval Moradia com divisões amplas, bastante luz natural e excelente espaço exterior, localizada numa zona calma da Sobrena, a poucos minutos do centro do Cadaval. Composta por rés do chão e primeiro andar, esta casa oferece funcionalidade e conforto para quem procura viver com tranquilidade e espaço. Distribuição: Rés do chão: Cozinha Sala com lareira e recuperador de calor Casa de banho social Suite Primeiro andar: Três quartos (um com varanda) Casa de banho (sem chuveiro) Sótão aproveitado com casa de banho Exterior: Terraço Zona coberta para estacionamento Anexo com casa de banho, churrasqueira e forno a lenha Arrecadação Poço com água Espaço exterior ideal para horta ou zona de lazer Outros detalhes: Janelas oscilo-batentes Piso flutuante nos quartos e no primeiro andar Vista desafogada na traseira da moradia Excelente exposição solar Localização e acessos: A apenas 5 minutos do centro do Cadaval, onde encontra comércio, serviços e escolas. A 15 minutos da A8, com ligação rápida a Caldas da Rainha (20 minutos) e às praias da Costa Oeste, como Areia Branca ou Santa Cruz (cerca de 30 minutos). Nota: a moradia não dispõe de portas nos roupeiros embutidos, nem estores. Não perca esta oportunidade e venha visitar a sua futura casa.
AMI: 23990
Ref. Externa: 66289-TEAM60643
Id: 1413588
Inicie sessão para guardar este imóvel e aceder à sua lista de favoritos em qualquer dispositivo.
329.000 €
4 Quartos
2 WCs
Área bruta : 321 m²
Magnífica Casa de Campo T3 em Peral com Jardim, Garagem e Vistas Deslumbrantes! Descubra esta encantadora Casa de Campo localizada em Peral, que oferece uma vida tranquila e relaxante no meio da natureza. Remodelada entre 2023/2025 e com uma área total de 503 metros quadrados de terreno e 225 metros quadrados de área de construção, esta propriedade é perfeita para quem procura um refúgio longe da agitação da cidade. Características Interiores: - 4 quartos espaçosos, 2 deles com roupeiros, + 1 escritório (ou 4 quartos) e 2 casas de banho com banheira para o máximo conforto da sua família. - Janelas em PVC oscilo batentes! - Sala de estar acolhedora com lareira para noites aconchegantes. - Cozinha equipada para facilitar as suas refeições diárias. - Elegante sala de jantar para momentos especiais em família. - Dois terraços para desfrutar do ar fresco e das vistas panorâmicas para o campo. Características Exteriores: - Jardim cuidado, ideal para momentos ao ar livre e convívio com a natureza. - Garagem para proteger o seu carro dos elemento, podendo ser acrescentada caso precise de mais espaço. - Estacionamento para maior comodidade dos visitantes dentro da propriedade. - Vista deslumbrante para o sul, que proporciona uma atmosfera tranquila e relaxante. - Acompanhada de boa vizinhança , aqui não sente ambiente de solidão. - Vários anexos com Casa do forno ou de convívio, casa da lenha (arrumos material jardim e lenha); atelier. Comodidades Adicionais: - TV por cabo, internet de fibra ótica e ar condicionado para o seu conforto. - Sistema de aquecimento individual com lareira para noites mais quentes. AC no primeiro piso. - Sistema de esgoto ligado ao saneamento. Localização: - Situada em casais do Peral, a 2 mn do Cadaval esta casa de campo oferece um ambiente calmo e sereno. - 50mn de Lisboa - 20 minutos de Caldas da Rainha - 25 mn de Torres Vedras - 25 mn das praias do Oeste Esta Casa de Campo em Peral é o refúgio perfeito para quem procura uma vida tranquila em harmonia com a natureza. Agende já a sua visita e apaixone-se por este espaço único! #ref: 678849
AMI: 11220
Ref. Externa: 678849
Id: 1314923
Inicie sessão para guardar este imóvel e aceder à sua lista de favoritos em qualquer dispositivo.
130.000 €
3 Quartos
1 WCs
Área bruta : 175 m²
Moradia em Gaveto de dois pisos, tipologia T4, com arrecadação e Páteo. Para Recuperar. A mesma oferece acesso a duas ruas e insere-se num lote de 114.70 m2. Possui uma área bruta de construção 175.60 m2, uma área privativa de 121.80 m2 e uma área dependente de 53.80 m2. O imóvel distribui-se da seguinte forma; Rés de Chão: Cozinha, Sala Comum, Hall, Instalação Sanitária, Um Quarto, Arrecadação, Anexo e um pequeno Páteo. 1ºAndar: Três quartos e um Hall. A moradia necessita de obras de melhoramentos. Está orientada a Nascente/Poente/Norte usufruindo deste modo do máximo de luz solar. Está localizada numa aldeia de Peral a cerca de 5 min. da vila do Cadaval e sede de Concelho, na vila pode encontrar todos os comércios e serviços necessário para o dia á dia. A cerca de 15 min encontra o acesso á autoestrada nº8 (nó nº11) ou autoestrada do Oeste. Encontra-se a cerca de 50 min. de Lisboa e do Aeroporto, a cerca de 25 min das cidades de Torres Vedras ou Caldas da Rainha e a cerca de 30 min das Praias da Costa de Prata. A cerca de 11 km está no topo da Serra do Montejunto onde pode encontrar alguns pontos de interesse. Venha Viver no Oeste de Portugal entre a Serra e a Praia! Venha ter qualidade de Vida! Excelente oportunidade do negócio! Não o perca! Ref. 020-2025 CE: Em Execução Ano de Construção: 1937 Agende já a sua Visita! Ao vosso dispor para mais informações e esclarecimento de dúvidas. Informações inseridas por rotina informática, deverão ser posteriormente confirmadas. Visite-nos em Av. dos Bombeiros, nº 2, c/v, 2550-102 Cadaval ou em Largo do Município, nº4A, 2540-046 Bombarral. Aqui para o servir!
AMI: 21495
Ref. Externa: 020-2025
Id: 1162407
Inicie sessão para guardar este imóvel e aceder à sua lista de favoritos em qualquer dispositivo.
190.000 €
2 Quartos
3 WCs
Área bruta : 117 m²
Moradia térrea de tipologia T2+4 com sótão habitável inserida num lote de 760.00 m2 A mesma é vendida mobilada e equipada, requer alguns melhoramentos mas está em condições de habitabilidade imediata. A moradia possui uma área bruta de construção de 117.78 m2 e distribui-se da seguinte forma: O Rés de chão é composto por; uma Sala provida de Lareira, uma cozinha equipada, dois Quartos com roupeiros, uma instalação sanitária, 2 Alpendres sendo que um possui uma churrasqueira, um telheiro, uns arrumos e uma instalação sanitária de apoio ao exterior. O Sótão é composto por; uma mezanine/sala, dois quartos, um escritório e uma instalação sanitária. Todos o compartimentos possuem, uns janelas de parede e outros janelas na cobertura do tipo "velux". A parte exterior da moradias é composta por um logradouro com algumas árvores de fruto. Possui poço. Está orientada a Nascente/Sul/Poente usufruindo deste modo do máximo de luz solar. Possui vista sobre os campos. A mesma situa-se numa aldeia a cerca de 10 min. da vila do Cadaval e sede de Concelho, na vila pode encontrar todos os comércios e serviços necessário para o dia á dia. Localiza-se a cerca de 20km da cidade das Calda da Rainha, a cerca de 13km do acesso á autoestrada nº15 (nó nº2 Gaeiras), a 22km da vila medieval de Óbidos, a 30 km da Praia e Lagoa da Foz do Arelho, a 77km de Lisboa e do Aeroporto. Na Região pode ainda encontrar muitos pontos de interesse. Venha Viver no Oeste de Portugal entre a Serra e a Praia! Venha ter qualidade de Vida! Excelente oportunidade do negócio! Não o perca! Ref. 020-2024 CE: C Ano de Construção: 2005 Agende já a sua Visita! Ao vosso dispor para mais informações e esclarecimento de dúvidas. Informações inseridas por rotina informática, deverão ser posteriormente confirmadas. Visite-nos em Av. dos Bombeiros, nº 2, c/v, 2550-102 Cadaval ou em Largo do Município, nº4A, 2540-046 Bombarral. Aqui para o servir!
AMI: 21495
Ref. Externa: 020-2024
Id: 1162306
Inicie sessão para guardar este imóvel e aceder à sua lista de favoritos em qualquer dispositivo.
50.000 €
1 Quartos
1 WCs
Área bruta : 72 m²
Moradia de tipologia T1 mais Sótão e logradouro. Possui uma área bruta de construção de 72.00 m2 (rés de chão + Sótão), uma área bruta privativa de 36.00 m2 (Rés de Chão), uma área bruta dependente de 36.00 m2 (Sótão) e um logradouro com 6.50 m2. A moradia encontra-se num estado razoável mas precisar de obras de remodelação. A mesma é composta por; uma cozinha, uma zona de refeições, um quarto, uma sala e uma instalação sanitária. O sótão é amplo, com um pé direito razoável para criar mais um espaço habitável, o acesso ao é feito por uma escada interior em madeira. A moradia á alguns sofreu alguns arranjos, nomeadamente a parte elétrica, ramais de águas e esgotos, pavimentos e pinturas. Mas a necessitar de ser toda pintada novamente. A Lage do tecto é toda em madeira, estando a mesma em excelente estado de conservação, a cobertura é toda em vigas de madeira com a telha á vista. A moradia localiza-se no centro da vila do Cadaval, estando próxima de todos os comércios e serviços. A mesma possui duas frentes, tendo acesso por uma rua e um largo, ambos públicos. Está orientada a Norte/Sul Situa-se a 50 min de Lisboa e do aeroporto, a 20 min. da A1, a 10 min. da A8, a 25 min. das cidades de Caldas da Rainha e de Torres Vedras, a 20 min. da Vila medieval de Óbidos, a 11 km do topo da Serra do Montejunto, a 5 km tem o Bacalhôa Buddha Eden e a 25 Km das Praias da Costa de Prata. Excelente oportunidade do negócio! Não o perca! Ref. 020/2023 CE: Isento Ano de Construção: Anterior a 1951 Agende já a sua Visita! Ao vosso dispor para mais informações e esclarecimento de dúvidas. Informações inseridas por rotina informática, deverão ser posteriormente confirmadas. Visite-nos em Av. dos Bombeiros, nº 2, c/v, 2550-102 Cadaval ou em Largo do Município, nº4A, 2540-046 Bombarral. Aqui para o servir!
AMI: 21495
Ref. Externa: 020-2023
Id: 1162217
Inicie sessão para guardar este imóvel e aceder à sua lista de favoritos em qualquer dispositivo.
35.000 €
Área bruta : 28 m²
Moinho de Vento para recuperar. O mesmo possui uma área bruta de 28.00 m2 e está inserido num lote de 306.00 m2. Está localizado a 5 min da Vila do Cadaval. Não perca esta oportunidade de negócio! Ref: 014-2023 CE: Não aplicável Agende já a sua Visita! Ao vosso dispor para mais informações e esclarecimento de dúvidas. Informações inseridas por rotina informática, deverão ser posteriormente confirmadas. Visite-nos em Av. dos Bombeiros, nº 2, c/v, 2550-102 Cadaval ou em Largo do Município, nº4A, 2540-046 Bombarral. Aqui para o servir!
AMI: 21495
Ref. Externa: 014-2023
Id: 1162189
Inicie sessão para guardar este imóvel e aceder à sua lista de favoritos em qualquer dispositivo.
85.000 €
1 Quartos
1 WCs
Área bruta : 156 m²
Casa rústica de aldeia em condições de habitabilidade, com anexos em ruinas, logradouro para cultivo e poço. A mesma está inserida numa propriedade 317.00 m2 e possui uma área bruta de construção de 156.00 m2. A moradia é térrea e distribui-se da seguinte forma: uma sala, uma cozinha, um quarto, uma copa, uma instalação sanitária, um Páteo pavimentado, anexo em ruinas e um logradouro para cultivo provido de um poço com água. Está orientada a Sul/Poente/Norte. O imóvel localiza-se no centro de uma aldeia no concelho da Vila do Cadaval, estando a cerca de 10 minutos do centro da vila, onde poderá encontrar todos os comércios e serviços. Situa-se a cerca 20 km da cidade de Caldas da Rainha, a 25 km das praias da Costa de Prata e da lagoa da Foz do Arelho, a cerca de 70 km de Lisboa e do aeroporto, a 20 km da vila medieval de Óbidos, se gosta de Serra, poderá encontrar a serra do Montejunto na imediações. Não perca esta oportunidade de negócio! Venha viver entre a Serra e a praia numa zona sossegada. Ref: 007-2023 CE: F Ano de Construção: anterior a 1951 Agende já a sua Visita Ao vosso dispor para mais informações e esclarecimento de dúvidas. Informações inseridas por rotina informática, deverão ser posteriormente confirmadas. Visite-nos em Av. dos Bombeiros, nº 2, c/v, 2550-102 Cadaval ou em Largo do Município, nº4A, 2540-046 Bombarral. Aqui para o servir!
AMI: 21495
Ref. Externa: 007-2023
Id: 1162166
Inicie sessão para guardar este imóvel e aceder à sua lista de favoritos em qualquer dispositivo.
170.000 €
2 Quartos
2 WCs
Área bruta : 246 m²
Propriedade com 3687.00 m2 toda murada, composta por Casa de Habitação térrea mais sótão, Garagem, Anexo, Páteo e terreno para cultivo. A moradia encontra-se num bom estado geral e pronta a habitar. Possui uma área bruta de construção de 246.10 m2. A mesma é composta por 2 quartos, cozinha com lareira, sala, duas instalações sanitárias, closet, lavandaria, cozinha de forno, arrumos e uma garagem para dois carros. O sótão está dividido mas por acabar, de uma parte está preparado para habitar, na outra para arrumos, o acesso ao mesmo é feito por uma escada exterior, com possibilidade de colocar uma escada interior. O anexo é destinado a arrumos de alfaias agrícolas, podendo também ser utilizada como garagem. O Páteo é todo pavimentado a pavês. O Acesso principal á propriedade é feito através de uma rua asfaltada, na entrada possui um portão de abertura automática e com comando á distancia. Possui ainda uma serventia em terra batida como um segundo acesso ao terreno. O Terreno possui 2 poços com água e é destinado a cultivo, possuindo já algumas diversas arvores de fruto. A habitação está Orientada a Nascente/Poente/Sul, possuindo uma boa disposição solar. A propriedade localiza-se numa aldeia bastante sossegada a cerca de dois minutos do centro da Vila do Cadaval, na vila poderá encontrar todos os comércios e serviços necessários para o dia á dia. Encontra-se a cerca de 10 minutos da autoestrada nº8 (nó de campelos), a cerca de 50 minutos de Lisboa e do Aeroporto, a cerca de 30 minutos das Cidades de Torres Vedras e Caldas da Rainha, a cerca de 20 minutos da Vila Medieval de Óbidos, a cerca de 10 minutos do topo da Serra do Montejunto e a cerca de 30 minutos das Praias da Costa de Prata. Nota: para alem das construções existentes a propriedade ainda possui uma zona considerada como espaço urbanizável, de acordo com o PDM do Cadaval. A mesma encontra-se no limite urbano. Excelente oportunidade de negócio Aproveite e marque já a sua visita CE: Em curso Ref. 026-2022 Ao vosso dispor para mais informações e esclarecimento de dúvidas. Informações inseridas por rotina informática, deverão ser posteriormente confirmadas. Visite-nos em Av. dos Bombeiros, nº 2, c/v, 2550-102 Cadaval ou em Largo do Município, nº4A, 2540-046 Bombarral. Aqui para o servir!
AMI: 21495
Ref. Externa: 026-2022
Id: 1162129
Inicie sessão para guardar este imóvel e aceder à sua lista de favoritos em qualquer dispositivo.
400.000 €
3 Quartos
3 WCs
Área bruta : 189 m²
Moradia Nova de Arquitetura Contemporânea com Classe Energética A+. Pronta a Habitar. A mesma é de tipologia T3 com uma área bruta de 189.30 m2 distribuídos em dois pisos, possui Garagem, logradouro e piscina, está inserida num lote de 271.00 m2. Os espaços interiores distribuem-se da seguinte forma: O Rés de Chão possui; Sala comum, cozinha, Quarto, Instalação Sanitária, Hall de entrada, Lavandaria, Garagem e um telheiro com pérgula. Todos os compartimentos possuem acesso ao exterior. O piso superior possui; dois quartos com instalações sanitárias privativa, um Hall e dois terraços virados a poente e com vistas desafogadas. A parte exterior é composta por um logradouro/jardim, passeios em cerâmica em torno da Moradia e uma Piscina de média dimensão. A propriedade é toda murada, possuindo um portão pedonal de Abertura manual e um portão para viaturas automatizado e com comando á distancia. A moradia está orientada a Nascente/Sul/Poente, tendo desta forma um grande aproveitamento da luz solar. A Sul e Poente as vistas são completamente desafogadas, podendo usufruir de excelentes por do Sol. Os vãos dos compartimentos são todos de grandes dimensões de modo a obter o maior proveito da luz natural. A moradia faz parte de uma urbanização composta por 6 moradias isoladas, todas elas da mesma traça e cores. Está localizada na periferia da Vila do Cadaval, numa zona sossegada e segura, porém com algumas habitações do mesmo género. A cerca de 5 minutos tem o centro da Vila onde pode encontrar comércios, serviços e todas as infraestruturas necessárias para o dia á dia. Tem por perto as cidades de Caldas da Rainha e Torres Vedras, os acessos ás autoestradas n1 e nº8, a vila medieval de Óbidos, Lisboa está a cerca de 50 min. e encontra-se a apenas 30 min. das praias da Costa de Prata. Se gosta de serra está a apenas 11 km do topo da Serra do Montejunto onde tem muitos pontos atrativos. Venha viver entre a Serra e a Praia e ter qualidade de Vida! Acabamentos e Equipamentos: A instalação Sanitária ao nível do rés de chão está preparada para pessoas com mobilidade condicionada. Todas as instalações sanitárias possuem toalheiros elétricos e proteção de banhos instalados. Os quartos possuem roupeiros embutidos. A lavandaria está equipada com máquina de lavar roupa, um pequeno tanque e bancadas de apoio. A cozinha é toda em madeira com tampos em pedra do tipo "Silistone", a mesma é equipada com; placa vitro cerâmica, forno, exaustor, máquina de lavar loiça e frigorifico. A sala está equipada de uma lareira com recuperador de calor. Pavimento em madeira do tipo flutuante. Caixilharias em PVC com corte térmico de abertura oscila batentes, todos os estores são elétricos. Respiradores térmicos. Possui vídeo porteiro a cores. Painel solar com sistema de termossifão para aquecimento das águas com depósito de 300 litros. Pré instalação de ar condicionado Compartimentos com tecto falso em pladur, a iluminação é toda em LED e embutida nas sancas. Piscina com tratamento automático do cloro. Portão da Garagem basculante de abertura automática e com comando á distancia. Guardas das varandas em vidro temperado com perfis em Alumínio. Isolamento exterior em Capoto, isolamento interior em lã mineral. Notas: A moradia foi posta á venda por motivos de saúde da proprietária. Não possui fotos do interior pelo motivo de os proprietários estarem em mudanças e as moveis não estarem no sitio. Ref. 021-2022 CE: A+ Ano de Construção: Novembro de 2022 As visitas são agendadas com antecedência, Agende já a sua, não perca tempo! Ao vosso dispor para mais informações e esclarecimento de dúvidas. Informações inseridas por rotina informática, deverão ser posteriormente confirmadas. Visite-nos em Av. dos Bombeiros, nº 2, c/v, 2550-102 Cadaval ou em Largo do Município, nº4A, 2540-046 Bombarral. Aqui para o servir!
AMI: 21495
Ref. Externa: 021-2022
Id: 1162117
Inicie sessão para guardar este imóvel e aceder à sua lista de favoritos em qualquer dispositivo.
260.000 €
2 Quartos
2 WCs
Área bruta : 150 m²
Quintinha toda murada, inserida numa propriedade com 4 112.50 m2. A propriedade é Mista e dividida em 3 artigos, 1 urbano e 2 rústicos, sendo que os artigos rústicos estão classificados no PDM como espaços urbanizáveis de nível 4, regendo-se pelo artigo 11 e 12 do PDM do Cadaval. Sendo possível fazer obras de urbanização em toda a propriedade ou lotear. A propriedade é composta por; duas casas de habitação de rés de chão e sótão com acessos independentes, adega, arrumos, churrasqueira, poço, vários anexo e um terreno em pousio pronto a ser cultivado. Possui dois acessos independentes, por ruas diferentes,, com portões de abertura manual. A propriedade está murada em todo o seu perímetro por muros em alvenaria e possui um gradeamento também em alvenaria. Os arruamentos confinantes são públicos e pavimentados com asfalto. O local está servido de todas as infraestruturas necessárias, nomeadamente, rede de águas, saneamento, rede elétrica, rede telefónica e internet. O imóvel encontra-se em estado de uso, mas com boas condições de habitabilidade. A propriedade está orientada a Nascente/Sul/Poente, usufruindo de sol o dia inteiro, e possui muita privacidade. Tem possibilidade de destacar e na parte restante lotear ou criar outra figura urbanística. Localiza-se numa aldeia com alguns serviços e comércios, faz parte do concelho do Cadaval. Está a cerca de 10 min. da vila de Cadaval onde pode encontrar todos os serviços e comércios necessários ao seu dia á dia. Esta a cerca de 20 min da cidade de Caldas da Rainha e vila medieval de Óbidos, a 50 min de Lisboa, a 20 min da Autoestrada nº1 (nó de Aveiras de Cima), a 25 min da cidade de Rio Maior e a 30 minutos das praias da Costa de Prata, nomeadamente da Foz do Arelho ou da Lagoa de Óbidos. Excelente oportunidade de negócio. Agende já a sua visita. Ref. 014-2022 CE: Em execução Ao vosso dispor para mais informações e esclarecimento de dúvidas. Informações inseridas por rotina informática, deverão ser posteriormente confirmadas. Visite-nos em Av. dos Bombeiros, nº 2, c/v, 2550-102 Cadaval ou em Largo do Município, nº4A, 2540-046 Bombarral. Aqui para o servir!
AMI: 21495
Ref. Externa: 014-2022
Id: 1162088
Inicie sessão para guardar este imóvel e aceder à sua lista de favoritos em qualquer dispositivo.
Estes agentes são especialistas nesta zona:
Inicie sessão para ocultar este imóvel das suas pesquisas e manter a sua lista de resultados organizada.
© Copyright 2023 | CASACERTA. All rights reserved
Guardar favoritos
Este imóvel foi guardados nos seus favoritos com sucesso.
Para poder guardar pesquisa deverá ter a sua sessão iniciada.
Caso não tenha uma conta, deverá criar uma.
A sua pesquisa foi guardada com sucesso!
Este site utiliza cookies. Ao navegar no site estará a consentir a sua utilização.
Para mais informações sobre os cookies pode consultar a
política de privacidade.