Filtros
0 · 51 resultados2.500.000 €
4 Quartos
4 WCs
Área bruta : 346 m²
Habitações com acesso independente em percurso interno pedonal, que assumem a sua individualidade pelas interrupções, realçada por um corte vertical na fachada. Com dois jardins privativos, desenvolvem-se em quatro pisos: o piso de entrada com átrio, cozinha, casa de banho social e sala aberta para o jardim. O primeiro piso com uma suíte, dois quartos e uma casa de banho. O segundo piso, recuado, com suíte, escritório, biblioteca e terraço com jacuzzi, e por fim o piso em cave com estacionamento para três viaturas, espaço de apoio e arrumos. O projecto procura acolher a cor e a materialidade que se integram na arquitetura da cidade. O embasamento em mármore lioz bujardado, os alçados em microbetão de alta resistência, os caixilhos e ripados lacados a cor bronze, complementados por uma vegetação abundante materializam as composições. O piso térreo de cada composição é constituído por um átrio de acesso reservado. No seu interior encontram-se as zonas sociais e áreas de lazer, onde se destaca um amplo jardim privado, com uma fantástica vista para o rio. Localizadas junto ao rio e parte integrante de uma cidade cheia de história. Alcântara é uma zona distinta, segura e acolhedora. Museus, monumentos icónicos, espaços verdes, comércio, oferta cultural, moda, inovação e modernidade abraçam a autenticidade e a tradição que aqui permanecem intactas. Um local incomparável, onde a tranquilidade perdura, mas onde a vida é ritmada, a gosto, pela diversidade de uma das mais deslumbrantes capitais mundiais. Nas fachadas e espaços exteriores, poderemos encontrar: painéis de alumínio compósito com sistema de fachada ventilada, caixilharia minimalista de alumínio de cor bronze, guardas em ferro, cantarias em mármore lioz, pavimentos em deck de compósito, lajetas em mármore lioz e de betão, pré-instalação de jacuzzi, jardins e terraços. Nos interiores, nomeadamente na sala, quartos e zonas de circulação, encontramos, pavimento em soalho de carvalho, paredes com acabamentos em gesso projetado, tetos em gesso cartonado, carpintarias em MDF lacado, ar condicionado, estores blackout, lareira e elevador. Cozinha equipada com eletrodomésticos de encastrar, tampos em mármore lioz e armários em lacados e folheados a carvalho. Casas de banho com pavimento, paredes, bancadas em mámore lioz, loiças sanitárias suspensas, marca Roca e torneiras W7. Garagem com ponto de alimentação para carregamento de viaturas elétricas.
AMI: 4491
Ref. Externa: GT-4559-M_D
Id: 1785603
Inicie sessão para guardar este imóvel e aceder à sua lista de favoritos em qualquer dispositivo.
2.500.000 €
4 Quartos
3 WCs
Área bruta : 346 m²
Habitações com acesso independente em percurso interno pedonal, que assumem a sua individualidade pelas interrupções, realçada por um corte vertical na fachada. Com dois jardins privativos, desenvolvem-se em quatro pisos: o piso de entrada com átrio, cozinha, casa de banho social e sala aberta para o jardim. O primeiro piso com uma suíte, dois quartos e uma casa de banho. O segundo piso, recuado, com suíte, escritório, biblioteca e terraço com jacuzzi, e por fim o piso em cave com estacionamento para três viaturas, espaço de apoio e arrumos. O projecto procura acolher a cor e a materialidade que se integram na arquitetura da cidade. O embasamento em mármore lioz bujardado, os alçados em microbetão de alta resistência, os caixilhos e ripados lacados a cor bronze, complementados por uma vegetação abundante materializam as composições. O piso térreo de cada composição é constituído por um átrio de acesso reservado. No seu interior encontram-se as zonas sociais e áreas de lazer, onde se destaca um amplo jardim privado, com uma fantástica vista para o rio. Localizadas junto ao rio e parte integrante de uma cidade cheia de história. Alcântara é uma zona distinta, segura e acolhedora. Museus, monumentos icónicos, espaços verdes, comércio, oferta cultural, moda, inovação e modernidade abraçam a autenticidade e a tradição que aqui permanecem intactas. Um local incomparável, onde a tranquilidade perdura, mas onde a vida é ritmada, a gosto, pela diversidade de uma das mais deslumbrantes capitais mundiais. Nas fachadas e espaços exteriores, poderemos encontrar: painéis de alumínio compósito com sistema de fachada ventilada, caixilharia minimalista de alumínio de cor bronze, guardas em ferro, cantarias em mármore lioz, pavimentos em deck de compósito, lajetas em mármore lioz e de betão, pré-instalação de jacuzzi, jardins e terraços. Nos interiores, nomeadamente na sala, quartos e zonas de circulação, encontramos, pavimento em soalho de carvalho, paredes com acabamentos em gesso projetado, tetos em gesso cartonado, carpintarias em MDF lacado, ar condicionado, estores blackout, lareira e elevador. Cozinha equipada com eletrodomésticos de encastrar, tampos em mármore lioz e armários em lacados e folheados a carvalho. Casas de banho com pavimento, paredes, bancadas em mámore lioz, loiças sanitárias suspensas, marca Roca e torneiras W7. Garagem com ponto de alimentação para carregamento de viaturas elétricas. Não perca esta oportunidade de fazer um negócio único!
AMI: 4491
Ref. Externa: GT-4559-M_B
Id: 1785604
Inicie sessão para guardar este imóvel e aceder à sua lista de favoritos em qualquer dispositivo.
2.700.000 €
4 Quartos
4 WCs
Área bruta : 403 m²
Habitações com acesso independente em percurso interno pedonal, que assumem a sua individualidade pelas interrupções, realçada por um corte vertical na fachada. Com dois jardins privativos, desenvolvem-se em quatro pisos: o piso de entrada com átrio, cozinha, casa de banho social e sala aberta para o jardim. O primeiro piso com uma suíte, dois quartos e uma casa de banho. O segundo piso, recuado, com suíte, escritório, biblioteca e terraço com jacuzzi, e por fim o piso em cave com estacionamento para três viaturas, espaço de apoio e arrumos. O projecto procura acolher a cor e a materialidade que se integram na arquitetura da cidade. O embasamento em mármore lioz bujardado, os alçados em microbetão de alta resistência, os caixilhos e ripados lacados a cor bronze, complementados por uma vegetação abundante materializam as composições. O piso térreo de cada composição é constituído por um átrio de acesso reservado. No seu interior encontram-se as zonas sociais e áreas de lazer, onde se destaca um amplo jardim privado, com uma fantástica vista para o rio. Localizadas junto ao rio e parte integrante de uma cidade cheia de história. Alcântara é uma zona distinta, segura e acolhedora. Museus, monumentos icónicos, espaços verdes, comércio, oferta cultural, moda, inovação e modernidade abraçam a autenticidade e a tradição que aqui permanecem intactas. Um local incomparável, onde a tranquilidade perdura, mas onde a vida é ritmada, a gosto, pela diversidade de uma das mais deslumbrantes capitais mundiais. Nas fachadas e espaços exteriores, poderemos encontrar: painéis de alumínio compósito com sistema de fachada ventilada, caixilharia minimalista de alumínio de cor bronze, guardas em ferro, cantarias em mármore lioz, pavimentos em deck de compósito, lajetas em mármore lioz e de betão, pré-instalação de jacuzzi, jardins e terraços. Nos interiores, nomeadamente na sala, quartos e zonas de circulação, encontramos, pavimento em soalho de carvalho, paredes com acabamentos em gesso projetado, tetos em gesso cartonado, carpintarias em MDF lacado, ar condicionado, estores blackout, lareira e elevador. Cozinha equipada com eletrodomésticos de encastrar, tampos em mármore lioz e armários em lacados e folheados a carvalho. Casas de banho com pavimento, paredes, bancadas em mámore lioz, loiças sanitárias suspensas, marca Roca e torneiras W7. Garagem com ponto de alimentação para carregamento de viaturas elétricas. Não perca esta oportunidade de adquirir um imóvel único!
AMI: 4491
Ref. Externa: GT-4559-M_A
Id: 1785605
Inicie sessão para guardar este imóvel e aceder à sua lista de favoritos em qualquer dispositivo.
2.700.000 €
5 Quartos
4 WCs
Área bruta : 303 m²
Moradia T5 nova, com 303 m² de área bruta privativa, 79 m² de áreas exteriores e quatro lugares de estacionamento, situada em Alcântara, numa das zonas mais exclusivas e em crescimento da cidade de Lisboa. Este imóvel distingue-se pela entrada de luz natural em todas as divisões, pelas varandas e jardim privativo, onde se destaca um jacuzzi com vista única sobre o rio Tejo, proporcionando momentos de lazer e descontração com todo o conforto. Com uma arquitetura que conjuga elegância e modernidade, cada moradia foi desenhada a pensar na funcionalidade e bem-estar do dia a dia. Os espaços amplos e bem distribuídos garantem uma vivência equilibrada entre áreas sociais e privadas, num ambiente sofisticado e acolhedor. Algumas das unidades contam ainda com elevador privativo, reforçando a exclusividade e acessibilidade deste condomínio. As Casas de Santo Amaro oferecem uma vida serena e segura, num condomínio exclusivo que representa uma nova Lisboa, mais sustentável e orientada para a qualidade de vida. A envolvente é outro ponto forte: junto à Embaixada da Hungria e ao prestigiado Hotel Pestana Palace, a poucos minutos a pé da zona ribeirinha, escolas de referência, espaços verdes e culturais. Conta ainda com excelentes acessos a toda a cidade e uma ampla rede de transportes, permitindo viver o melhor da capital sem abdicar de privacidade e tranquilidade. Uma oportunidade rara para quem procura uma moradia moderna e elegante, com todo o conforto, numa das áreas mais promissoras e autênticas de Lisboa.
AMI: 21920
Ref. Externa: 00086
Id: 1774649
Inicie sessão para guardar este imóvel e aceder à sua lista de favoritos em qualquer dispositivo.
2.500.000 €
5 Quartos
4 WCs
Área bruta : 292 m²
Moradia T5 nova, com 292 m² de área bruta privativa, 102 m² de espaços exteriores e três lugares de estacionamento, localizada em Alcântara, numa das zonas mais privilegiadas da frente ribeirinha de Lisboa. Este imóvel distingue-se pela luminosidade natural em todas as divisões e pela harmonia entre espaços interiores generosos e áreas exteriores pensadas para o lazer, onde se destacam as varandas, o jardim e o jacuzzi privativo com vista sobre o Tejo. A área social é composta por uma ampla sala de estar e jantar com cerca de 45 m², ideal para momentos em família e para receber convidados, e por uma cozinha com zona de refeições com cerca de 22 m², totalmente equipada e funcional. A zona privada distribui-se por cinco quartos, incluindo uma suíte principal com aproximadamente 25 m², casa de banho privativa e espaço de arrumação, e quatro quartos adicionais entre 12 e 15 m² cada, apoiados por casas de banho modernas e bem dimensionadas. O condomínio é composto apenas por cinco moradias exclusivas, garantindo privacidade, tranquilidade e segurança. Algumas das unidades contam ainda com elevador privativo, reforçando o conforto e a acessibilidade. A localização é outro dos pontos fortes: junto à Embaixada da Hungria e ao Hotel Pestana Palace, permite desfrutar da proximidade ao rio e de agradáveis passeios na zona ribeirinha. Está a poucos minutos de escolas de referência, zonas verdes e culturais, com ótimos acessos a toda a cidade e diversas opções de transporte. Trata-se de uma oportunidade única de viver numa moradia exclusiva, inserida num projeto que alia sofisticação, sustentabilidade e qualidade de vida, num dos bairros com maior crescimento residencial da capital.
AMI: 21920
Ref. Externa: 00085
Id: 1774655
Inicie sessão para guardar este imóvel e aceder à sua lista de favoritos em qualquer dispositivo.
1.000.000 €
1 Quartos
1 WCs
Área bruta : 316 m²
Excelente oportunidade de investimento numa das zonas mais privilegiadas de Lisboa, o bairro de Alcântara. Bairro com uma vista deslumbrante sobre o rio Tejo, estes imóveis possuem um potencial excepcional para serem transformados em espaços únicos e modernos...apartamentos ou moradias...conforme o projecto que se pretender... Oito moradias geminadas, inseridas em terreno com 316 m2. Cinco moradias estão arrendadas com contratos curtos e recentes, apenas duas com contratos antigos e uma devoluta. Junto à Avenida de Ceuta e à entrada para a ponte sobre o Tejo, perto da estação de comboios de Alcântara Terra e ao Largo de Alcântara, famoso pelo seu comércio tradicional e restaurantes de todas as proveniências, com horários alargados. Conte com meu compromisso na hora de comercializar o seu imóvel. Contacte-me: 911196891 [email protected] Hora da Casa Imobiliária AMI: 18106 Escolher a Hora da Casa significa: Optar por Consultores Imobiliários eficientes, capazes de o aconselhar e acompanhar na operação de compra do seu imóvel. Seja qual for o valor do seu investimento, terá sempre a certeza de que o seu novo imóvel não é uma parte do que fazemos - é tudo o que fazemos. VANTAGENS: - Disponibilização de um Consultor dedicado em todo o processo de compra; - Procura permanente de um imóvel à medida das suas necessidades; - Acompanhamento negocial; - Disponibilização das mais vantajosas soluções financeiras; - Apoio no processo de financiamento; - Apoio na marcação e realização do CPCV (Contrato Promessa Compra e Venda); - Apoio na marcação e realização da Escritura Pública de Compra e Venda. Contacto direto - 911196891
AMI: 18106
Ref. Externa: 16032025
Id: 1771112
Inicie sessão para guardar este imóvel e aceder à sua lista de favoritos em qualquer dispositivo.
2.700.000 €
5 Quartos
3 WCs
Área bruta : 403 m²
O projeto Casas de Santo Amaro, localizado em Alcântara, traduz um novo conceito de habitação na Lisboa ribeirinha, onde elegância, conforto e sustentabilidade se encontram em perfeita harmonia. Inspirado nas composições geométricas de Piet Mondrian, o empreendimento combina equilíbrio formal e funcionalidade, resultando numa arquitetura contemporânea e intemporal. Esta distinta moradia T5, com 403,18 m² de área bruta privativa, distingue-se pela amplitude generosa dos seus espaços interiores e pela abundante luz natural que atravessa cada divisão. A vivência exterior é um dos seus maiores privilégios, oferecendo 50,89 m² de varandas e terraços equipados com jacuzzi, além de um jardim privado de 70,05 m², criando o cenário ideal para desfrutar de uma vista única sobre o rio Tejo em total serenidade. O layout da moradia foi meticulosamente concebido para garantir fluidez, destacando-se uma garagem privativa com 105,09 m² (com capacidade para três viaturas) e, em algumas unidades, a conveniência de um elevador privativo, assegurando o máximo de comodidade e exclusividade. Localizada junto à Embaixada da Hungria e ao icónico Hotel Pestana Palace, esta residência permite viver com privacidade e usufruir da proximidade a escolas de referência, museus e espaços culturais. Alcântara é uma zona singular, onde a tradição e a modernidade coexistem, oferecendo um estilo de vida cosmopolita e seguro. As Casas de Santo Amaro assumem-se, assim, como uma nova geração de habitação em Lisboa: sofisticada, sustentável e um verdadeiro refúgio familiar numa das zonas mais emblemáticas da capital.
AMI: 26505
Ref. Externa: 0038
Id: 1746539
Inicie sessão para guardar este imóvel e aceder à sua lista de favoritos em qualquer dispositivo.
2.500.000 €
5 Quartos
3 WCs
Área bruta : 346 m²
Casas de Santo Amaro, em Alcântara, é um projeto residencial que redefine a Lisboa ribeirinha através de um conceito onde elegância, conforto e sustentabilidade se unem numa arquitetura contemporânea e intemporal. Inspirado nas composições geométricas de Piet Mondrian, o empreendimento reflete equilíbrio visual, funcionalidade e sofisticação em cada detalhe. Esta moradia T5 destaca-se pelos seus 346,12 m² de área bruta privativa, oferecendo espaços amplos e luminosos distribuídos de forma a privilegiar a fluidez entre o interior e o exterior. A experiência de lazer é elevada por 49,23 m² de varandas e terraços equipados com jacuzzi, além de um jardim privativo de 61,67 m², proporcionando um enquadramento único sobre o rio Tejo e o cenário ideal para momentos em família. A funcionalidade e a exclusividade são reforçadas por uma garagem privativa de 58,71 m² com capacidade para três viaturas, zonas sociais generosas e, em algumas unidades, a conveniência de um elevador privativo. As Casas de Santo Amaro foram concebidas para proporcionar uma vida serena numa das zonas de maior crescimento residencial de Lisboa, sendo o projeto perfeito para quem procura uma casa moderna com forte ligação à natureza sem abdicar da proximidade ao centro. Com uma localização privilegiada junto à Embaixada da Hungria e ao icónico Hotel Pestana Palace, o empreendimento garante acesso a escolas de referência e espaços culturais. Entre a autenticidade lisboeta e a modernidade cosmopolita, esta moradia afirma-se como um projeto de referência para uma nova geração residencial: sofisticada, sustentável e exclusiva.
AMI: 26505
Ref. Externa: 0039
Id: 1746541
Inicie sessão para guardar este imóvel e aceder à sua lista de favoritos em qualquer dispositivo.
2.500.000 €
5 Quartos
3 WCs
Área bruta : 346 m²
O Casas de Santo Amaro, em Alcântara, é um projeto residencial que redefine a Lisboa ribeirinha através de um conceito onde elegância, conforto e sustentabilidade se unem numa arquitetura contemporânea e intemporal. Inspirado nas composições geométricas de Piet Mondrian, o empreendimento reflete equilíbrio visual, funcionalidade e sofisticação em cada detalhe. Esta moradia T5 destaca-se pelos seus 346,12 m² de área bruta privativa, oferecendo espaços amplos e luminosos distribuídos de forma a privilegiar a fluidez entre o interior e o exterior. A vivência ao ar livre é potenciada por 49,23 m² de varandas e terraços, complementados por um jardim privativo de 61,03 m², criando um ambiente perfeito para momentos de lazer com uma vista privilegiada sobre o rio Tejo. A conveniência e a privacidade são garantidas por uma garagem privativa com 58,71 m² (com capacidade para três viaturas), zonas sociais generosas e acabamentos de alto padrão. As Casas de Santo Amaro foram concebidas para proporcionar uma vida serena numa das zonas de maior crescimento residencial de Lisboa, sendo o projeto ideal para famílias que procuram uma casa moderna e funcional com uma forte ligação à natureza. Localizado junto à Embaixada da Hungria e ao icónico Hotel Pestana Palace, o empreendimento oferece acesso imediato a escolas de referência, museus e espaços culturais. Entre a autenticidade lisboeta e a modernidade cosmopolita, esta moradia afirma-se como um projeto de referência para uma nova geração residencial: sofisticada, sustentável e exclusiva.
AMI: 26505
Ref. Externa: 0040
Id: 1746542
Inicie sessão para guardar este imóvel e aceder à sua lista de favoritos em qualquer dispositivo.
2.500.000 €
5 Quartos
4 WCs
Área bruta : 353 m²
Moradia T5 com 292m² com vista frontal de rio, total de varandas de 48m², jardins de 72m², inserida em novo empreendimento em Alcântara.Um novo condomínio privado de moradias a nascer em Alcântara, um projeto único de 5 moradias de estilo contemporâneo com vista frontal sobre o rio Tejo.Composto por moradias de tipologia T5, com áreas privativas que variam entre os 353 a 410m², pensadas no conforto e exclusividade dos seus residentes, com acabamentos de elevada qualidade e espaços altamente funcionais.As moradias são construídas de raiz - cinco habitações com acesso independente em percurso interno pedonal, com dois jardins privativos, que se desenvolvem em quatro pisos: o piso de entrada com átrio, cozinha, casa de banho social e sala aberta para o jardim; o primeiro piso com uma suíte, dois quartos e uma casa de banho; o segundo piso, recuado, com suíte, escritório e um terraço; e por fim, o piso em cave com estacionamento para três viaturas, espaços de apoio e arrumos. Duas das moradias contam ainda com elevador.A arquitetura é marcada por linhas depuradas, onde os espaços interiores vivem em harmonia com os exteriores - terraços, varandas e jardins privativos. Os acabamentos são de qualidade premium que conferem uma sensação de conforto e sofisticação a estas moradias.Localizadas junto à embaixada da Hungria e do Hotel Pestana Palace, em Alcântara, encontram-se numa zona de Lisboa cada vez mais renovada e moderna, com diversos pontos de interesse.Aqui, vai encontrar alguns dos espaços mais animados da vida noturna e social da capital, mas também alguns dos museus e monumentos mais conhecidos em todo o mundo, pela sua arquitetura e história.Nesta zona há ainda espaços verdes de grande dimensão, como a Tapada da Ajuda ou o Parque Florestal de Monsanto, escolas, universidades, e um vasto património onde a tradição e a modernidade caminham lado a lado e que tornam Alcântara numa das zonas mais vibrantes de Lisboa.Um estilo de vida urbano que conjuga a modernidade, a sustentabilidade e a natureza, numa localização absolutamente ímpar, com uma vista deslumbrante sobre o rio Tejo.Não perca esta oportunidade. Solicite já mais informações!
AMI: 3497
Ref. Externa: CT-24970
Id: 1730730
Inicie sessão para guardar este imóvel e aceder à sua lista de favoritos em qualquer dispositivo.
Profissionais que conhecem esta zona a fundo — contacte-os para uma avaliação personalizada.
2.500.000 €
5 Quartos
4 WCs
Área bruta : 353 m²
Moradia T5 com 292m² com vista frontal de rio, total de varandas de 48m², jardins de 72m², inserida em novo empreendimento em Alcântara.Um novo condomínio privado de moradias a nascer em Alcântara, um projeto único de 5 moradias de estilo contemporâneo com vista frontal sobre o rio Tejo.Composto por moradias de tipologia T5, com áreas privativas que variam entre os 353 a 410m², pensadas no conforto e exclusividade dos seus residentes, com acabamentos de elevada qualidade e espaços altamente funcionais.As moradias são construídas de raiz - cinco habitações com acesso independente em percurso interno pedonal, com dois jardins privativos, que se desenvolvem em quatro pisos: o piso de entrada com átrio, cozinha, casa de banho social e sala aberta para o jardim; o primeiro piso com uma suíte, dois quartos e uma casa de banho; o segundo piso, recuado, com suíte, escritório e um terraço; e por fim, o piso em cave com estacionamento para três viaturas, espaços de apoio e arrumos. Duas das moradias contam ainda com elevador.A arquitetura é marcada por linhas depuradas, onde os espaços interiores vivem em harmonia com os exteriores - terraços, varandas e jardins privativos. Os acabamentos são de qualidade premium que conferem uma sensação de conforto e sofisticação a estas moradias.Localizadas junto à embaixada da Hungria e do Hotel Pestana Palace, em Alcântara, encontram-se numa zona de Lisboa cada vez mais renovada e moderna, com diversos pontos de interesse.Aqui, vai encontrar alguns dos espaços mais animados da vida noturna e social da capital, mas também alguns dos museus e monumentos mais conhecidos em todo o mundo, pela sua arquitetura e história.Nesta zona há ainda espaços verdes de grande dimensão, como a Tapada da Ajuda ou o Parque Florestal de Monsanto, escolas, universidades, e um vasto património onde a tradição e a modernidade caminham lado a lado e que tornam Alcântara numa das zonas mais vibrantes de Lisboa.Um estilo de vida urbano que conjuga a modernidade, a sustentabilidade e a natureza, numa localização absolutamente ímpar, com uma vista deslumbrante sobre o rio Tejo.Não perca esta oportunidade. Solicite já mais informações!
AMI: 3497
Ref. Externa: CT-24972
Id: 1730729
Inicie sessão para guardar este imóvel e aceder à sua lista de favoritos em qualquer dispositivo.
2.700.000 €
5 Quartos
4 WCs
Área bruta : 410 m²
Moradia T5 com 303m² com vista frontal de rio, total de varandas de 49m², jardim de 81m², inserida em novo empreendimento em Alcântara.Um novo condomínio privado de moradias a nascer em Alcântara, um projeto único de 5 moradias de estilo contemporâneo com vista frontal sobre o rio Tejo.Composto por moradias de tipologia T5, com áreas privativas que variam entre os 353 a 410m², pensadas no conforto e exclusividade dos seus residentes, com acabamentos de elevada qualidade e espaços altamente funcionais.As moradias são construídas de raiz - cinco habitações com acesso independente em percurso interno pedonal, com dois jardins privativos, que se desenvolvem em quatro pisos: o piso de entrada com átrio, cozinha, casa de banho social e sala aberta para o jardim; o primeiro piso com uma suíte, dois quartos e uma casa de banho; o segundo piso, recuado, com suíte, escritório e um terraço; e por fim, o piso em cave com estacionamento para três viaturas, espaços de apoio e arrumos. Duas das moradias contam ainda com elevador.A arquitetura é marcada por linhas depuradas, onde os espaços interiores vivem em harmonia com os exteriores - terraços, varandas e jardins privativos. Os acabamentos são de qualidade premium que conferem uma sensação de conforto e sofisticação a estas moradias.Localizadas junto à embaixada da Hungria e do Hotel Pestana Palace, em Alcântara, encontram-se numa zona de Lisboa cada vez mais renovada e moderna, com diversos pontos de interesse.Aqui, vai encontrar alguns dos espaços mais animados da vida noturna e social da capital, mas também alguns dos museus e monumentos mais conhecidos em todo o mundo, pela sua arquitetura e história.Nesta zona há ainda espaços verdes de grande dimensão, como a Tapada da Ajuda ou o Parque Florestal de Monsanto, escolas, universidades, e um vasto património onde a tradição e a modernidade caminham lado a lado e que tornam Alcântara numa das zonas mais vibrantes de Lisboa.Um estilo de vida urbano que conjuga a modernidade, a sustentabilidade e a natureza, numa localização absolutamente ímpar, com uma vista deslumbrante sobre o rio Tejo.Não perca esta oportunidade. Solicite já mais informações!
AMI: 3497
Ref. Externa: CT-24947
Id: 1730728
Inicie sessão para guardar este imóvel e aceder à sua lista de favoritos em qualquer dispositivo.
1.285.000 €
4 Quartos
4 WCs
Área bruta : 187 m²
TO BUY MORADIA*T4 | LISBOA | JUNQUEIRA + INFO - [email protected] Moradia T4 3 andares 187m2 (175m2 úteis) 4 quartos Roupeiros embutidos 1 Sala Cozinha equipada Bosch 4 casas de banho 1 Patio interior privado 12 m² e exterior exclusivo com 18 m² Aquecimento central Luz natural Estores eléctricos Arrecadação 1 lugar de garagem REF: A155631 HL Moradia geminada T4 em Belém, inserida num condomínio privado de pequena dimensão e a poucos minutos do rio Tejo. Com 175 m² de área bruta privativa, esta moradia destaca-se pela sua arquitetura contemporânea, pela qualidade de construção, pela segurança e pela presença de espaços exteriores raros em contexto urbano. Dispõe de pátio interior privado de 12 m² e de pátio exterior de uso exclusivo com cerca de 18 m², ideais para lazer, refeições ao ar livre ou momentos de descanso. Inclui ainda 1 lugar de estacionamento privativo. O projeto de arquitetura do empreendimento é da autoria do atelier Rebelo de Andrade, um dos mais reconhecidos ateliers de arquitetura em Portugal, responsável, entre outros, pela reabilitação do emblemático Six Senses Douro Valley. A obra de construção foi concluída em 2018, refletindo padrões construtivos atuais e elevados níveis de conforto e eficiência. Localizada numa das zonas mais nobres e históricas de Lisboa, entre o rio Tejo e a cidade, esta é uma oportunidade única para quem procura qualidade de vida, segurança, exclusividade e centralidade. Distribuição da casa Piso 0 Área social O piso de entrada é dedicado à zona social e conta com casa de banho social, sala ampla e luminosa, com acesso direto ao pátio interior e ao pátio exterior, criando uma excelente ligação entre interior e exterior. A cozinha totalmente equipada tem igualmente acesso ao pátio interior, tornando este piso muito funcional para o dia a dia e para receber. Piso 1 Zona privada Neste piso encontram-se duas suítes de boas dimensões, ambas com casa de banho privativa, assegurando conforto, privacidade e uma clara separação entre zonas sociais e de descanso. Piso 2 Águas-furtadas O piso superior dispõe de armário embutido para arrumação, dois quartos adicionais e uma casa de banho completa, podendo ser utilizado como quartos, escritório, zona de hóspedes ou espaço multifuncional. Características e equipamentos A moradia edificada em 2017/2018 apresenta acabamentos de elevada qualidade, incluindo soalhos em madeira maciça, aquecimento central, painéis solares, cozinha equipada e classificação energética B, garantindo conforto térmico, eficiência energética e sustentabilidade. Localização A casa encontra-se na prestigiada Rua da Junqueira, no coração de Belém, uma das zonas mais emblemáticas e procuradas de Lisboa. A poucos minutos a pé do rio Tejo, do MAAT, do Mosteiro dos Jerónimos e dos jardins ribeirinhos, a envolvente combina história, cultura e qualidade de vida. A área oferece uma excelente rede de transportes (elétrico, autocarro e ligação rápida ao comboio da linha de Cascais), além de cafés tradicionais, restaurantes, pastelarias, comércio de proximidade e agradáveis espaços verdes para passeios e lazer. Trata-se de uma localização segura, bem servida de serviços e acessos, ideal para quem procura viver numa zona charmosa, tranquila e com grande valorização imobiliária. Uma oportunidade única de adquirir uma moradia com pátio e estacionamento em Belém, ideal para habitação própria ou investimento seguro, num empreendimento assinado por um dos mais prestigiados ateliers de arquitetura nacionais.
AMI: 9089
Ref. Externa: A155631
Id: 1690558
Inicie sessão para guardar este imóvel e aceder à sua lista de favoritos em qualquer dispositivo.
2.700.000 €
5 Quartos
4 WCs
Área bruta : 403 m²
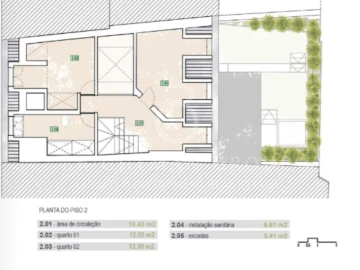
Inspirado na arte intemporal de Piet Mondrian, o empreendimento Casas de Santo Amaro nasce como uma verdadeira composição arquitetónica, onde equilíbrio, forma e materialidade se unem numa obra pensada para durar. Localizado em Alcântara, junto ao rio Tejo, este projeto exclusivo integra-se harmoniosamente numa das zonas mais autênticas e vibrantes de Lisboa. Entre tradição e modernidade, museus, monumentos, espaços verdes e uma forte dinâmica cultural, encontra-se aqui um estilo de vida onde a tranquilidade e o ritmo cosmopolita coexistem em perfeita sintonia. O empreendimento é composto por cinco moradias V5, com áreas brutas privativas entre 360 m² e 410 m². Cada habitação desenvolve-se ao longo de quatro pisos e distingue-se pela sua identidade própria, marcada por um corte vertical na fachada e por uma linguagem contemporânea inspirada nas composições geométricas de Mondrian. Cada casa dispõe de: Dois jardins privativos Terraço com jacuzzi Elevador interno Estacionamento para três viaturas Espaços de apoio e arrumos No piso térreo, as zonas sociais abrem-se para um amplo jardim privado com vista rio, promovendo uma ligação fluida entre interior e exterior. Nos pisos superiores, suites, quartos, escritório e biblioteca oferecem conforto, funcionalidade e privacidade. A cave garante total comodidade com estacionamento e áreas técnicas. Moradia V5 com uma área de 403,18 m2 com as seguintes características: Piso -1 # Garagem - 95,31 m2 # Área Técnica - 3,75 m2 # Arrumos - 5,76 m2 # Circulação - 8,60 m2 # Pátio - 1,66 m2 # Lavandaria - 8,40 m2 Piso 0 # Pátio - 12,50 m2 # Jardim - 12,97 m2 # Cozinha - 18,55 m2 # Hall - 7,76 m2 # WC - 2,17 m2 # Circulação - 5,06 m2 # Sala de Estar / Jantar - 42,57 m2 # Zona de Estar Exterior - 9, 20 m2 # Jardim - 29 ,80 m2 Piso 1 # Quarto - 12,20 m2 # Quarto - 11,40 m2 # WC - 7,32 m2 # Circulação - 14,65 m2 # Suite - 24,85 m2 # WC Suite - 8,25 m2 # Varanda - 4,05 m2 Piso 2 # Suite - 13,85 m2 # WC Suite - 4,36 m2 # Terraço - 14,47 m2 # Lounge - 30,60 m2 # Terraço / Jacuzzi - 18,05 m2 Estado: Concluído IMOJOY fazemos negócios com sorrisos! Contacte-nos para mais informações NOTA: Imagens ilustrativas
AMI: 12689
Ref. Externa: MORJJC052
Id: 1653784
Inicie sessão para guardar este imóvel e aceder à sua lista de favoritos em qualquer dispositivo.
2.500.000 €
5 Quartos
4 WCs
Área bruta : 346 m²
Inspirado na arte intemporal de Piet Mondrian, o empreendimento Casas de Santo Amaro nasce como uma verdadeira composição arquitetónica, onde equilíbrio, forma e materialidade se unem numa obra pensada para durar. Localizado em Alcântara, junto ao rio Tejo, este projeto exclusivo integra-se harmoniosamente numa das zonas mais autênticas e vibrantes de Lisboa. Entre tradição e modernidade, museus, monumentos, espaços verdes e uma forte dinâmica cultural, encontra-se aqui um estilo de vida onde a tranquilidade e o ritmo cosmopolita coexistem em perfeita sintonia. O empreendimento é composto por cinco moradias V5, com áreas brutas privativas entre 360 m² e 410 m². Cada habitação desenvolve-se ao longo de quatro pisos e distingue-se pela sua identidade própria, marcada por um corte vertical na fachada e por uma linguagem contemporânea inspirada nas composições geométricas de Mondrian. Cada casa dispõe de: Dois jardins privativos Terraço com jacuzzi Elevador interno Estacionamento para três viaturas Espaços de apoio e arrumos No piso térreo, as zonas sociais abrem-se para um amplo jardim privado com vista rio, promovendo uma ligação fluida entre interior e exterior. Nos pisos superiores, suites, quartos, escritório e biblioteca oferecem conforto, funcionalidade e privacidade. A cave garante total comodidade com estacionamento e áreas técnicas. Moradia V5 com uma área de 346,12 m2 com as seguintes características: Piso -1 # Garagem - 54,82 m2 # Área técnica - 2,44 m2 # Arrumos - 5,76 m2 # Circulação - 8,60 m2 #Pátio - 1,66 m2 # Lavandaria - 8,40 m2 # Elevador Piso 0 # Pátio - 8,35 m2 # Jardim - 10,35 m2 # Cozinha - 18,55 m2 # Hall - 7,76 m2 # WC - 2,17 m2 # Circulação - 6,59 m2 # Sala de Estar / Jantar - 38,95 m2 # Zona de estar Exterior - 9,20 m2 # Jardim - 2 9 , 5 0 m 2 # Elevador Piso 1 # Quarto - 12,20 m2 # Quarto - 11,40 m2 # WC - 7,32 m2 # Arrumos - 3,20 m2 # Circulação - 16,70 m2 # Suite - 19,30 m2 # WC Suite - 5,80 m2 # Varanda - 4,05 m2 # Elevador Piso 2 # Suite - 13,85 m2 # WC Suite - 4,36 m2 # Terraço - 14,47 m2 # Lounge - 27,60 m2 # Terraço / Jacuzzi - 17,43 m2 # Elevador Estado: Concluído IMOJOY fazemos negócios com sorrisos! Contacte-nos para mais informações NOTA: Imagens ilustrativas
AMI: 12689
Ref. Externa: MORJJC053
Id: 1653785
Inicie sessão para guardar este imóvel e aceder à sua lista de favoritos em qualquer dispositivo.
2.500.000 €
5 Quartos
4 WCs
Área bruta : 346 m²
Inspirado na arte intemporal de Piet Mondrian, o empreendimento Casas de Santo Amaro nasce como uma verdadeira composição arquitetónica, onde equilíbrio, forma e materialidade se unem numa obra pensada para durar. Localizado em Alcântara, junto ao rio Tejo, este projeto exclusivo integra-se harmoniosamente numa das zonas mais autênticas e vibrantes de Lisboa. Entre tradição e modernidade, museus, monumentos, espaços verdes e uma forte dinâmica cultural, encontra-se aqui um estilo de vida onde a tranquilidade e o ritmo cosmopolita coexistem em perfeita sintonia. O empreendimento é composto por cinco moradias V5, com áreas brutas privativas entre 360 m² e 410 m². Cada habitação desenvolve-se ao longo de quatro pisos e distingue-se pela sua identidade própria, marcada por um corte vertical na fachada e por uma linguagem contemporânea inspirada nas composições geométricas de Mondrian. Cada casa dispõe de: Dois jardins privativos Terraço com jacuzzi Elevador interno Estacionamento para três viaturas Espaços de apoio e arrumos No piso térreo, as zonas sociais abrem-se para um amplo jardim privado com vista rio, promovendo uma ligação fluida entre interior e exterior. Nos pisos superiores, suites, quartos, escritório e biblioteca oferecem conforto, funcionalidade e privacidade. A cave garante total comodidade com estacionamento e áreas técnicas. Moradia V5 com uma área de 346,12 m2 com as seguintes características: Piso -1 # Garagem - 54,82 m2 # Área técnica - 2,44 m2 # Arrumos - 5,76 m2 # Circulação - 8,60 m2 #Pátio - 1,66 m2 # Lavandaria - 8,40 m2 # Elevador Piso 0 # Pátio - 8,35 m2 # Jardim - 10,35 m2 # Cozinha - 18,55 m2 # Hall - 7,76 m2 # WC - 2,17 m2 # Circulação - 6,59 m2 # Sala de Estar / Jantar - 38,95 m2 # Zona de estar Exterior - 9,20 m2 # Jardim - 28,90 m2 # Elevador Piso 1 # Quarto - 12,20 m2 # Quarto - 11,40 m2 # WC - 7,32 m2 # Arrumos - 3,20 m2 # Circulação - 16,70 m2 # Suite - 19,30 m2 # WC Suite - 5,80 m2 # Varanda - 4,05 m2 # Elevador Piso 2 # Suite - 13,85 m2 # WC Suite - 4,36 m2 # Terraço - 14,47 m2 # Lounge - 27,60 m2 # Terraço / Jacuzzi - 17,43 m2 # Elevador Estado: Concluído IMOJOY fazemos negócios com sorrisos! Contacte-nos para mais informações NOTA: Imagens ilustrativas
AMI: 12689
Ref. Externa: MORJJC054
Id: 1653786
Inicie sessão para guardar este imóvel e aceder à sua lista de favoritos em qualquer dispositivo.
2.500.000 €
4 Quartos
4 WCs
Área bruta : 410 m²
O empreendimento Casas de Santo Amaro é composto por cinco habitações, com quatro pisos, estacionamento e jardins privados. Com vista para o rio . Cinco habitações com acesso independente em percurso interno pedonal, que assumem a sua individualidade pelas interrupções, realçada por um corte vertical na fachada. Com dois jardins privativos, desenvolvem-se em quatro pisos: o piso de entrada com átrio, cozinha, casa de banho social e sala aberta para o jardim; o primeiro piso com uma suite, dois quartos e uma casa de banho; o segundo piso, recuado, com suite, escritório, biblioteca e terraço com jacuzzi; e, por fim, o piso em cave com estacionamento para três viaturas, espaços de apoio e arrumos. O projeto procura acolher a cor e a materialidade que se integram na arquitetura da cidade. O embasamento em mármore lioz bujardado, os alçados em microbetão de alta resistência, os caixilhos e os ripados lacados a cor bronze, complementados por uma vegetação abundante materializam as composições.
AMI: 18419
Ref. Externa: CAS_568
Id: 1623278
Inicie sessão para guardar este imóvel e aceder à sua lista de favoritos em qualquer dispositivo.
2.700.000 €
5 Quartos
4 WCs
Área bruta : 298 m²
Para venda | Moradia | 5 quartos | 298 m2 abp | Área construção 403m2 | Área exteriores 121m2 | Garagem 4 carros | Alcantara Com entrada de muita luz natural, jardins e varandas com jacuzzi privativo (opcional), e uma vista única sobre o rio Tejo. Prontas a entrar Empreendimento A arquitetura é inspirada num dos quadros mais conhecidos do pintor Piet Mondrian, apresentando um equilíbrio nas formas e na cor, numa resposta estética e funcional que se pretende duradoura e intemporal - como uma obra de arte. O projeto procura ainda acolher a cor e a materialidade que se integram na arquitetura da cidade. Dispõe ainda de um acesso comum para o estacionamento e para a área privativa das moradias. Moradias Cinco habitações de tipologia V5, Área bruta privativa entre 360 e 410 m2, Todas as unidades de quatro pisos dispõem de cozinhas equipadas marca Bosch, ar condicionado, jacuzzi opcional e acabamentos de alta qualidade. Jardins e terraços descobertos. Estacionamento privativo para quatro viaturas, arrecadação e lavandaria. Como estão localizadas numa zona histórica, as casas beneficiam de isenção de IMI. Localização Alto de Santo Amaro. Alcântara - Lisboa Em Alcântara, num bairro histórico de Lisboa, mas com novas ruas cheias de vida e diversidade, um empreendimento composto por cinco habitações com características propícias à vida familiar, que são uma mais-valia para quem valoriza o conforto e a privacidade.
AMI: 14434
Ref. Externa: MOR2060.A.YD
Id: 1581747
Inicie sessão para guardar este imóvel e aceder à sua lista de favoritos em qualquer dispositivo.
2.500.000 €
4 Quartos
1 WCs
Área bruta : 287 m²
Moradia T4 com 287 m2 de área bruta privativa, varandas 49 m2, jardim 61 m2 e 3 lugares de estacionamento, em Alcântara, Lisboa. A arquitetura desta moradia é inspirada num dos quadros mais conhecidos do pintor Piet Mondrian, apresentando um equilíbrio nas formas e na cor, numa resposta estética e funcional que se pretende duradoura e intemporal - como uma obra de arte. O projeto procura ainda acolher a cor e a materialidade que se integram na arquitetura da cidade. Junto ao rio e parte integrante de uma cidade cheia de história, Alcântara é uma zona distinta, segura e acolhedora. Museus, monumentos icónicos, espaços verdes, comércio, oferta cultural, moda, inovação e modernidade abraçam a autenticidade e a tradição, que aqui permanecem intactas. Um local incomparável, onde a tranquilidade perdura, mas onde a vida é ritmada, a gosto, pela diversidade de uma das mais deslumbrantes capitais mundiais.
AMI: 17077
Ref. Externa: CAS_1791.AG.ES
Id: 1567005
Inicie sessão para guardar este imóvel e aceder à sua lista de favoritos em qualquer dispositivo.
2.500.000 €
5 Quartos
5 WCs
Área bruta : 336 m²
As Casas de Santo Amaro representam um novo padrão de habitação em Lisboa, combinando o melhor da tradição portuguesa com uma abordagem contemporânea, elegante e funcional. Localizadas numa zona tranquila e residencial de Alcântara, estas moradias unifamiliares de luxo foram pensadas para quem valoriza privacidade, conforto e sofisticação, sem abdicar da proximidade ao centro da cidade. Com uma arquitetura sóbria e intemporal, este conjunto exclusivo é composto por cinco moradias V5, todas com áreas generosas, acabamentos premium e uma disposição que privilegia a luz natural e a fluidez dos espaços interiores e exteriores. Situadas numa rua calma e arborizada, as Casas de Santo Amaro beneficiam da atmosfera autêntica de Alcântara uma zona histórica em plena transformação, com acesso rápido ao centro de Lisboa, zona ribeirinha, LX Factory, comércio local, restaurantes de autor, escolas e serviços essenciais. Um local onde se vive Lisboa com autenticidade e comodidade. Cada moradia foi concebida para proporcionar uma experiência de habitação de alto nível, com áreas brutas privativas entre 346 m² e 403 m², distribuídas por dois ou três pisos, e com uma lógica de utilização funcional e moderna. Os acabamentos são de excelência, garantindo conforto térmico e acústico, durabilidade e uma estética refinada. A seleção dos materiais e o cuidado nos pormenores refletem a assinatura da promotora Valle Flor, reconhecida pela sua aposta em projetos imobiliários singulares. Algumas moradias estão equipadas com elevadores privados, oferecendo um acesso conveniente e rápido a todos os pisos. Para maior conforto, as salas de estar contam com modernas lareiras em granito. Características principais: - Moradias V5 exclusivas, com tipologias únicas - Áreas entre 346 m² e 403 m² - Preços desde 2.430.000 até 2.640.000 - Ambientes amplos e luminosos - Arquitetura contemporânea com linhas discretas - Excelente localização, com acessos rápidos e serviços por perto - Construção de alta qualidade com acabamentos premium - Elevadores privados (Unidades B e D) - Lareiras modernas em granito As Casas de Santo Amaro são ideais para famílias que procuram um lar distinto em Lisboa ou para investidores que valorizam imóveis com carácter, qualidade e localização premium. Mais do que uma casa, este é um lugar para viver com identidade, conforto e exclusividade.
AMI: 21865
Ref. Externa: CSA_D
Id: 1525658
Inicie sessão para guardar este imóvel e aceder à sua lista de favoritos em qualquer dispositivo.
© Copyright 2023 | CASACERTA. All rights reserved
Guardar favoritos
Este imóvel foi guardados nos seus favoritos com sucesso.
Para poder guardar pesquisa deverá ter a sua sessão iniciada.
Caso não tenha uma conta, deverá criar uma.
A sua pesquisa foi guardada com sucesso!
Este site utiliza cookies. Ao navegar no site estará a consentir a sua utilização.
Para mais informações sobre os cookies pode consultar a
política de privacidade.