Filtros
0 · 8 resultados314.500 €
3 Quartos
Área bruta : 227 m²
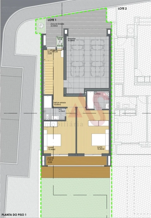
Moradia T3 em construção no Empreendimento "VILLA PARQUE" em Idães, Felgueiras🏡 Moradia Nova T3 com 431 m² de Terreno e 4 Lugares de Estacionamento – Barrosas, FelgueirasDescubra esta moradia T3 de arquitetura moderna, inserida numa zona habitacional calma e em plena valorização, junto ao futuro parque urbano da Vila de Barrosas.Com áreas generosas, excelente exposição solar e uma envolvente familiar e tranquila, esta moradia é ideal para quem procura qualidade de vida, espaço exterior e uma casa com acabamentos contemporâneos e possibilidade de personalização.🔹 Principais características:Terreno com 431 m²Área bruta de construção: 227 m²Sala e cozinha em open space, com ligação direta à zona de lazer exterior3 quartos (incluindo uma suíte)3 casas de banho (1 privativa, 1 comum e 1 social)LavandariaGaragem fechada para 2 viaturas + 2 lugares exteriores🛠 Equipamentos e acabamentos incluídos:Isolamento térmico e acústico de alta eficiênciaCaixilharia com corte térmico e vidros duplosEstores elétricosPortão de garagem seccionado e automatizadoPré-instalação de ar condicionadoBomba de calor para águas quentesCozinha com orçamento de 5.000€ incluído (personalizável)Tetos falsos em gesso cartonado com sancasEscadas interiores com guardas em ferro personalizadasPavimento flutuante e cerâmico (à escolha, até 15€/m²)Louças sanitárias incluídas (até 4.000€)Possibilidade de piscina no exterior📍 Localização estratégica:A 3 minutos da A11A 10 minutos de Felgueiras, Vizela, Guimarães e LousadaA 35 minutos do Porto e do Aeroporto Sá Carneiro💰 Valor de venda com campanha em vigor: 314.500€🔁 Possibilidade de descontos extra consoante o valor do sinal de entrada📆 Conclusão da obra prevista: setembro de 2027Referência: ASV26040Por sermos intermediários de crédito devidamente autorizados pelo Banco de Portugal (Reg. 2736) fazemos a gestão de todo o seu processo de financiamento, sempre com as melhores soluções de mercado.Porquê escolher a AS Imobiliária?Com mais de 18 anos no ramo imobiliário e milhares de famílias felizes, dispomos de 10 agências estrategicamente localizadas, para o servir com proximidade, corresponder à suas expectativas e ajudá-lo a adquirir a sua casa de sonho. Compromisso, Competência e Confiança são os nossos valores que entregamos aos nossos Clientes na hora de comprar, arrendar ou vender o seu imóvel.A nossa prioridade é a sua Felicidade!Na AS Imobiliária somos apaixonados por vender casas!Especialistas imobiliários em Vizela ; Guimarães ; Felgueiras ; Lousada ; Santo Tirso ; Porto ; Braga ; Trofa; Lisboa ; Fafe
AMI: 13249
Ref. Externa: ASV26040
Id: 1810756
Inicie sessão para guardar este imóvel e aceder à sua lista de favoritos em qualquer dispositivo.
294.500 €
3 Quartos
Área bruta : 227 m²
Moradia T3 em construção no Empreendimento "VILLA PARQUE" em Idães, Felgueiras🏡 Moradia Nova T3 com 313 m² de Terreno e 4 Lugares de Estacionamento – Barrosas, FelgueirasDescubra esta moradia T3 de arquitetura moderna, inserida numa zona habitacional calma e em plena valorização, junto ao futuro parque urbano da Vila de Barrosas.Com áreas generosas, excelente exposição solar e uma envolvente familiar e tranquila, esta moradia é ideal para quem procura qualidade de vida, espaço exterior e uma casa com acabamentos contemporâneos e possibilidade de personalização.🔹 Principais características:Terreno com 313 m²Área bruta de construção: 227 m²Sala e cozinha em open space, com ligação direta à zona de lazer exterior3 quartos (incluindo uma suíte)3 casas de banho (1 privativa, 1 comum e 1 social)LavandariaGaragem fechada para 2 viaturas + 2 lugares exteriores🛠 Equipamentos e acabamentos incluídos:Isolamento térmico e acústico de alta eficiênciaCaixilharia com corte térmico e vidros duplosEstores elétricosPortão de garagem seccionado e automatizadoPré-instalação de ar condicionadoBomba de calor para águas quentesCozinha com orçamento de 5.000€ incluído (personalizável)Tetos falsos em gesso cartonado com sancasEscadas interiores com guardas em ferro personalizadasPavimento flutuante e cerâmico (à escolha, até 15€/m²)Louças sanitárias incluídas (até 4.000€)Possibilidade de piscina no exterior📍 Localização estratégica:A 3 minutos da A11A 10 minutos de Felgueiras, Vizela, Guimarães e LousadaA 35 minutos do Porto e do Aeroporto Sá Carneiro💰 Valor de venda com campanha em vigor: 294.500€🔁 Possibilidade de descontos extra consoante o valor do sinal de entrada📆 Conclusão da obra prevista: setembro de 2027Referência: ASV26039Por sermos intermediários de crédito devidamente autorizados pelo Banco de Portugal (Reg. 2736) fazemos a gestão de todo o seu processo de financiamento, sempre com as melhores soluções de mercado.Porquê escolher a AS Imobiliária?Com mais de 18 anos no ramo imobiliário e milhares de famílias felizes, dispomos de 10 agências estrategicamente localizadas, para o servir com proximidade, corresponder à suas expectativas e ajudá-lo a adquirir a sua casa de sonho. Compromisso, Competência e Confiança são os nossos valores que entregamos aos nossos Clientes na hora de comprar, arrendar ou vender o seu imóvel.A nossa prioridade é a sua Felicidade!Na AS Imobiliária somos apaixonados por vender casas!Especialistas imobiliários em Vizela ; Guimarães ; Felgueiras ; Lousada ; Santo Tirso ; Porto ; Braga ; Trofa; Lisboa ; Fafe
AMI: 13249
Ref. Externa: ASV26039
Id: 1810757
Inicie sessão para guardar este imóvel e aceder à sua lista de favoritos em qualquer dispositivo.
598.000 €
3 Quartos
Área bruta : 496 m²
🏡 Moradia T3+2 com Piscina e Terreno de 2.760 m² em Idães, FelgueirasApresentamos esta fantástica moradia T3+2 com piscina em Idães, Felgueiras, ideal para habitação própria, casa de férias ou investimento imobiliário. Situada numa zona tranquila e com excelentes acessos, esta propriedade oferece o equilíbrio perfeito entre privacidade, conforto e qualidade de vida.Inserida num amplo terreno com 2.760 m², esta moradia destaca-se pelo seu espaço exterior generoso, ótima exposição solar e envolvência natural, perfeita para quem procura viver longe do stress urbano 🌿Com uma área de construção de aproximadamente 496 m², distribuída por dois pisos, o imóvel apresenta um enorme potencial de valorização, sendo ideal também para projetos de turismo rural ou alojamento local.✨ Características principais: Moradia T3+2 (5 divisões amplas) Piscina privada, ideal para lazer e convívio ☀️🏊♂️ Terreno com 2.760 m² Área bruta de construção: 496 m² Área de implantação: 195 m² Área bruta privativa: 186 m² Garagem para 3 carros 2 casas de banho (WC) Lareira e aquecimento central Ampla área dependente (arrumos, anexos ou potencial de expansão) Jardim e espaço exterior envolvente📍 Localização e acessos:Localizada em Idães, Felgueiras, esta moradia beneficia de uma zona calma com bons acessos às principais vias, incluindo a entrada da autoestrada (Revinhade/Longra) e a A41, facilitando a ligação a outras cidades.Na proximidade, encontra diversos serviços essenciais, como: Centro de saúde Creche e lar de idosos Piscinas e zonas de lazer Comércio e serviços locais💼 Excelente oportunidade de investimentoEsta propriedade reúne condições ideais para: Habitação própria permanente Casa de férias no norte de Portugal Investimento imobiliário com elevada rentabilidade Projeto de turismo rural ou alojamento localReferência: ASF26032Por sermos intermediários de crédito devidamente autorizados pelo Banco de Portugal (Reg. 2736) fazemos a gestão de todo o seu processo de financiamento, sempre com as melhores soluções de mercado.Porquê escolher a AS Imobiliária?Com mais de 18 anos no ramo imobiliário e milhares de famílias felizes, dispomos de 10 agências estrategicamente localizadas, para o servir com proximidade, corresponder à suas expectativas e ajudá-lo a adquirir a sua casa de sonho. Compromisso, Competência e Confiança são os nossos valores que entregamos aos nossos Clientes na hora de comprar, arrendar ou vender o seu imóvel.A nossa prioridade é a sua Felicidade!Na AS Imobiliária somos apaixonados por vender casas!Especialistas imobiliários em Vizela ; Guimarães ; Felgueiras ; Lousada ; Santo Tirso ; Porto ; Braga ; Trofa; Lisboa ; Fafe
AMI: 13249
Ref. Externa: ASF26032
Id: 1739527
Inicie sessão para guardar este imóvel e aceder à sua lista de favoritos em qualquer dispositivo.
490.000 €
3 Quartos
4 WCs
Área bruta : 183 m²
Moradia T3 em Barrosas - Idães - Felgueiras, com 3 pisos e 3 frentes, geminada e 183 m2 de área útil. . . Cave com garagem, sanitário e arrumos, r/c com ampla sala comum e moderna cozinha open space, wc e despensa, e 1º andar com 1 suite, 2 quartos e 1 wc completo. . . Muita claridade e arejamento em toda a moradia. . . Construída considerando elevados padrões de qualidade, situa-se em zona muito sossegada e próxima de escolas e comércio. . . Entre em contacto para qualquer esclarecimento e agendamento de visita.
AMI: 14791
Ref. Externa: 125381124-16/13900
Id: 1671416
Inicie sessão para guardar este imóvel e aceder à sua lista de favoritos em qualquer dispositivo.
Profissionais que conhecem esta zona a fundo — contacte-os para uma avaliação personalizada.
86.000 €
4 Quartos
Área bruta : 254 m²
�� Moradia para Restauro Total – Vila de Barrosas, Felgueiras Inserida num lote de 254 m², esta moradia oferece um excelente potencial para reabilitação e criação do seu espaço de sonho, numa zona calma e central da Vila de Barrosas. Venha conhecer este imóvel e deixe-se encantar pelas possibilidades que este projeto pode oferecer! A MILLION GROUP surge da união de sinergias, da complementaridade e experiência dos seus fundadores. Que iniciaram a sua colaboração sob a matriz de uma marca internacional e decidem criar um novo conceito para o setor imobiliário. Sentiram os desafios com uma perspetiva mais universal e flexível na abordagem do mercado imobiliário, e a criação da marca MILLION GROUP vem responder a todas as necessidades. Era preciso dar corpo a uma filosofia e uma forma de estar no mercado, nova e diferenciadora. Os nossos valores CONFIANÇA, PROXIMIDADE, MATURIDADE, UNIVERSALIDADE. CONFIANÇA – Conquistada interna e externamente pelo rigor e a lealdade na relação que estabelecemos com os nossos Consultores, Parceiros, Clientes e Amigos. PROXIMIDADE – Uma relação sincera, com acompanhamento, apoio e disponibilidade permanente. MATURIDADE – Um património de experiência e conhecimento no mercado imobiliário. UNIVERSALIDADE – Baseada numa presença abrangente em todos os segmentos de mercado, a profissionalizar os nossos consultores com foco na satisfação dos nossos clientes. O que fazemos "Concretizamos sonhos" Uma verdadeira síntese emocional do que fazemos todos os dias. Conciliamos compradores e vendedores, promovemos negócios e apoiamos a sua concretização.
AMI: 22034
Ref. Externa: MGG00015
Id: 1410252
Inicie sessão para guardar este imóvel e aceder à sua lista de favoritos em qualquer dispositivo.
498.000 €
3 Quartos
Área bruta : 235 m²
Moradia T3 de Luxo com Jardim e Espaço Exterior em Idães, FelgueirasApresentamos esta exclusiva moradia T3 de luxo, com 211,90 m² de área útil inserida num terreno generoso de 650 m², situada numa das zonas mais tranquilas e privilegiadas de Idães, Felgueiras.No rés-do-chão, destacam-se espaços amplos e elegantes: um hall de entrada convidativo, uma cozinha moderna totalmente equipada e mobilada com eletrodomésticos de alta gama Teka, que integra lareira com recuperador de calor e acesso direto ao exterior — ideal para momentos de convívio. A sala de estar luminosa tem ligação direta ao jardim, criando uma perfeita harmonia entre interior e exterior. Complementam este piso um escritório funcional e uma casa de banho completa de serviço.No primeiro piso, um hall de distribuição dá acesso a dois quartos com acesso ao exterior, uma suíte confortável com varanda privada, lavandaria e um amplo telheiro com capacidade para três carros, garantindo conveniência e segurança.O exterior é um verdadeiro destaque desta propriedade, com jardim cuidado, sistema de rega automática, churrasqueira para momentos de lazer e portões elétricos que asseguram privacidade total. O design permite ainda a circulação automóvel à volta da casa e oferece um espaço ideal para instalação de piscina, perfeito para desfrutar dos dias mais quentes.Com climatização por ar condicionado, iluminação moderna e acabamentos de alta qualidade, esta moradia combina conforto, funcionalidade e estilo num só lugar.Uma oportunidade rara para viver com qualidade, tranquilidade e perto de todas as comodidades que Felgueiras oferece.Esta fantástica moradia fica a:- 5 min. do centro de Barrosas (mini mercados, correios, farmácia, etc);- 7 min. da entrada da auto-estrada;- 15 min. de Felgueiras e Vizela;- 35 min. através da A41 e A42 (55km) do aeroporto Francisco Sá Carneiro.Referência: ASP25067Por sermos intermediários de crédito devidamente autorizados pelo Banco de Portugal (Reg. 2736) fazemos a gestão de todo o seu processo de financiamento, sempre com as melhores soluções de mercado.Porquê escolher a AS ImobiliáriaCom mais de 16 anos no ramo imobiliário e milhares de famílias felizes, dispomos de 9 agências estrategicamente localizadas, para o servir com proximidade, corresponder à suas expectativas e ajudá-lo a adquirir a sua casa de sonho. Compromisso, Competência e Confiança são os nossos valores que entregamos aos nossos Clientes na hora de comprar, arrendar ou vender o seu imóvel.A nossa prioridade é a sua Felicidade!Especialistas imobiliários em Vizela; Guimarães; Felgueiras; Lousada; Santo Tirso; Barcelos; S. João da Madeira; Porto; Lisboa; Braga; Trofa;
AMI: 13249
Ref. Externa: ASP25067
Id: 1290885
Inicie sessão para guardar este imóvel e aceder à sua lista de favoritos em qualquer dispositivo.
299.500 €
3 Quartos
Área bruta : 256 m²
Moradia T3 de Gaveto em construção em Idães, Felgueiras🚨 Valor de venda em campanha🏡 Moradia Solar da Vila, Nova T3, com Garagem e Espaço Exterior – Barrosas, FelgueirasApresento-lhe esta moradia T3 de arquitetura moderna, inserida numa zona habitacional tranquila e bem localizada no centro urbano da Vila de Barrosas, Felgueiras.Com linhas contemporâneas, excelente exposição solar e áreas bem distribuídas, esta moradia foi projetada para proporcionar conforto, funcionalidade e uma vivência familiar de qualidade. O espaço exterior permite a instalação de piscina e zona de lazer, ideal para momentos em família.🔹 Principais características:Lote com 232 m²Área bruta de construção: 256 m²Sala e cozinha em open space3 quartos (dois com WC privativo)3 casas de banho (2 privativas + 1 social)LavandariaGaragem fechada para 2 viaturas com arrumosAcesso lateral ao jardim🔧 Equipamentos e acabamentos de qualidade:Isolamento térmico e acústicoCaixilharia com corte térmico e vidros duplosEstores elétricosPortão automático de garagemPré-instalação de ar condicionadoBomba de calor para águas quentesChurrasqueiraTetos falsos com iluminação embutidaPavimento flutuante e cerâmico (à escolha dentro de gama definida)Louças sanitárias incluídasPossibilidade de personalização de materiais e acabamentos interiores📍 Localização privilegiada:A 3 minutos da A11A 10 minutos de Felgueiras, Vizela, Guimarães e LousadaA 35 minutos do Porto e do Aeroporto Sá Carneiro📆 Prazo estimado de conclusão: 18 a 24 meses📑 Possibilidade de Compra em regime de Auto- Construção e AquisiçãoReferência: ASV25059Por sermos intermediários de crédito devidamente autorizados pelo Banco de Portugal (Reg. 2736) fazemos a gestão de todo o seu processo de financiamento, sempre com as melhores soluções de mercado.Porquê escolher a AS ImobiliáriaCom mais de 10 anos no ramo imobiliário e milhares de famílias felizes, dispomos de 8 agências estrategicamente localizadas, para o servir com proximidade, corresponder à suas expectativas e ajudá-lo a adquirir a sua casa de sonho. Compromisso, Competência e Confiança são os nossos valores que entregamos aos nossos Clientes na hora de comprar, arrendar ou vender o seu imóvel.A nossa prioridade é a sua Felicidade!Especialistas imobiliários em Vizela ; Guimarães ; Felgueiras ; Lousada ; Santo Tirso ; Barcelos ; São João da Madeira ; Porto ; Braga ; Trofa ; Lisboa ;
AMI: 13249
Ref. Externa: ASV25059
Id: 1237628
Inicie sessão para guardar este imóvel e aceder à sua lista de favoritos em qualquer dispositivo.
195.000 €
3 Quartos
1 WCs
Área útil : 240 m²
Quintinha em Idães, Felgueiras! BAIXA DE PREÇO: ANTES: 199.000,00€ AGORA: 195.000,00€ Imóvel composto por: - Moradia em ruina; - Terreno de construção. Imóvel com 3 artigos. Boa localização situado em zona tranquila. Boa exposição solar. Fica a: - Próximo do comércio local; - 450 Metros do centro de Barrosas; - 3,5 Km da entrada da autoestrada A11; - 8,0 Km do centro de Vizela e do centro de Lousada; - 9,0 Km do centro de Felgueiras; - 18,0 Km do centro de Penafiel e do centro de Guimarães; - 41,0 Km do centro de Braga; - 49,8 Km do centro do Porto. Venha conhecer esta oportunidade, marque já a sua visita! Tem dúvidas por causa do financiamento? Não se preocupe — a Autopousada, Comércio e Serviços Lda ajuda! A Autopousada Comércio e Serviços Lda é intermediário de crédito devidamente autorizado pelo Banco de Portugal (Registo nº 6045) e encontra a melhor solução para o seu caso.
AMI: 16011
Ref. Externa: 00452
Id: 1116029
Inicie sessão para guardar este imóvel e aceder à sua lista de favoritos em qualquer dispositivo.
© Copyright 2023 | CASACERTA. All rights reserved
Guardar favoritos
Este imóvel foi guardados nos seus favoritos com sucesso.
Para poder guardar pesquisa deverá ter a sua sessão iniciada.
Caso não tenha uma conta, deverá criar uma.
A sua pesquisa foi guardada com sucesso!
Este site utiliza cookies. Ao navegar no site estará a consentir a sua utilização.
Para mais informações sobre os cookies pode consultar a
política de privacidade.