Lista
Comprar
Arrendar
4 Quartos
2 WCs
Área útil : 111 m²
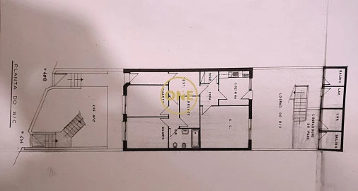
Moradia bifamiliar situada em São Pedro da Cova, inserida numa zona calma, ideal tanto para habitação própria como para quem procura um investimento seguro e rentável. Com duas entradas independentes, esta moradia oferece versatilidade total: no piso inferior, um T1 funcional, perfeito para arrendamento ou para receber familiares; nos pisos superiores, um T3 espaçoso e luminoso, pensado para o conforto do dia a dia. O terraço privativo da fração T3 é o local ideal para momentos de convívio em família, refeições ao ar livre ou simplesmente relaxar ao final do dia, desfrutando da sua excelente exposição solar a nascente, poente e norte. A proximidade a supermercados, escolas, piscinas municipais e ao Parque Urbano de São Pedro da Cova garante uma rotina prática e conveniente, com tudo o que precisa a poucos minutos de casa. Os rápidos acessos ao centro de Gondomar, Valongo, Estrada D. Miguel e IC29 tornam esta moradia ainda mais atrativa para quem valoriza mobilidade e qualidade de vida. Uma oportunidade completa, que alia tranquilidade, funcionalidade e o conforto de viver perto de tudo. Moradia T3 composta por: • 2 terraços um superior e outro inferior • Sala ampla com recuperador de calor • Cozinha equipada com acesso ao terraço inferior • 3 quartos na parte superior da moradia com roupeiros embutidos e um dos quartos com mezzanine e varanda • Casa de banho de serviço na zona social e outra completa com banheira na zona dos quartos Moradia T1 composta por: • Sala e cozinha em conceito Open Space • Cozinha equipada • Quarto com roupeiro embutido • Garagem fechada Caraterísticas: • Ar condicionado • Tetos falsos com focos Nas proximidades podemos encontrar várias infraestruturas que proporcionam uma melhor qualidade de vida: • Fácil acessibilidade à rede de transportes públicos (autocarro) • Fáceis acessos a autoestradas (IC29) • Piscina municipal de São Pedro da Cova • Parque Urbano de São Pedro da Cova • Parques infantis • Supermercados • Escolas • Farmácia • Todo o tipo de comércio e serviços Para além deste imóvel, dispomos de mais opções que certamente vão ao encontro daquilo que procura. Viva a Felicidade em Sua Casa! A GlobalHome é uma empresa do ramo imobiliário localizada em Fânzeres, Gondomar, cuja Missão é proporcionar um atendimento personalizado para que cada cliente encontre a sua felicidade em casa. Comprometemo-nos a acompanhá-lo(a) em todo o processo de compra, através de: • Procura ativa até encontrar o imóvel ideal • Apresentação das melhores soluções financeiras • Apoio no processo de financiamento (Intermediário de Crédito autorizado pelo Banco de Portugal, nº 3133) • Acompanhamento em avaliações bancárias Dispomos também de serviços especializados que asseguram um processo simples e seguro: • Certificação Energética • Apoio na marcação e realização do CPCV (Contrato Promessa Compra e Venda) • Acompanhamento na escritura pública de compra e venda
AMI: 9559
Ref. Externa: GH2763
Id: 1597100
Inicie sessão para guardar este imóvel e aceder à sua lista de favoritos em qualquer dispositivo.
4 Quartos
4 WCs
Área bruta : 277 m²
MORADIA NA COOPERATIVA DOS FUNCIONÁRIOS JUDICIAIS. Moradia T4 mais aproveitamento de sótão, de 2 frentes, com orientação solar nascente / poente. Inserida numa urbanização tranquila, com excelente localização, próxima à entrada do IC29/A43 e a 4 min do Porto. Na envolvente temos o Continente de São Cosme, Hospital Fernando Pessoa, o Centro Tecnológico 'Metyis', comércio, serviços, transportes e, futuramente, a futura estação Metro da Lagoa GDM A moradia desenvolve-se da seguinte forma: Cave: Garagem para 3 carros, com portões automáticos Acesso direto ao rés do chão Rés do chão: Sala com recuperador de calor Escritório / quarto com ligação ao pátio e jardim Cozinha com ligação ao pátio e jardim WC de serviço Andar: 1 Suite com roupeiro embutido e wc com base de duche 2 quartos com roupeiros embutidos WC de apoio aos quartos com banheira Sótão: Espaço polivalente (escritório / quarto), com luz direta WC de apoio com base de duche Área exterior: Pátio / jardim Telheiro com churrasqueira e forno a lenha Lavandaria Outras Características relevantes: - Ar Condicionado na Sala e Suíte - Aquecimento Eléctrico em toda a casa - Páineis Solares com Produção e Bateria
AMI: 15797
Ref. Externa: 0776
Id: 1597093
Inicie sessão para guardar este imóvel e aceder à sua lista de favoritos em qualquer dispositivo.
2 Quartos
3 WCs
Área bruta : 110 m²
Moradia T2 (2 suítes) recentemente remodelada, onde o conforto, o aproveitamento dos espaços e funcionalidade foram cuidadosamente pensados. Localizada numa rua tranquila de Valbom, com comércio, serviços e transportes na envolvente. A poucos minutos do Porto. A moradia, estruturalmente em pedra, distribui-se por dois pisos, com os espaços bem definidos e organizados. Rés do chão: Sala de estar e jantar Cozinha moderna, totalmente equipada (exaustor, placa, forno, micro-ondas, combinado e máquina lavar loiça) WC serviço Andar: Acessível por escada esculturada em caracol, que lhe confere charme 2 Suítes, com roupeiros Acesso a um terraço Exterior Pátio com acessível pela cozinha Lavandaria Moradia com Ar Condicionado e caixilharia Oscilo-batente e estores térmicos e elétricos. A remodelação cuidada permitiu a obtenção de uma classificação energética 'B-'. Nota: Não tem garagem
AMI: 15797
Ref. Externa: 0775
Id: 1597092
Inicie sessão para guardar este imóvel e aceder à sua lista de favoritos em qualquer dispositivo.
185.000 €
2 Quartos
1 WCs
Área bruta : 72 m²
Apartamento T2 – Andar de Moradia com jardim – Rio Tinto Apresentamos este T2 inserido no primeiro andar de uma moradia, localizado na Rua da Castanheira, em Rio Tinto, numa zona residencial tranquila e com bons acessos. O imóvel dispõe de uma área bruta de 72 m2 e beneficia de um agradável jardim privativo com cerca de 15 m2 na parte traseira da casa, um elemento raro e valorizador para este tipo de tipologia. A moradia é de 1970 e o apartamento encontra-se atualmente arrendado, com contrato em vigor até, no máximo, 31 de julho de 2026, o que o torna uma excelente opção para investidores que procuram rendimento imediato e estabilidade. A cobertura do edifício foi totalmente substituída em dezembro de 2023, com fatura e ainda dentro do período de garantia, um investimento estrutural importante já assegurado, trazendo tranquilidade e valorização futura ao imóvel. O valor anual de IMI é de apenas 134 €, representando um custo fiscal muito reduzido. Principais características: – Andar de moradia (1.º piso) – Tipologia T2 – Área de 72 m2 – Jardim privativo com cerca de 15 m2 – Imóvel atualmente arrendado até julho de 2026 – Telhado novo (dezembro de 2023) com garantia – IMI baixo Envolvente e pontos de interesse: O imóvel está situado numa zona residencial consolidada de Rio Tinto, com acesso rápido a comércio, serviços e transportes. Supermercados e comércio local a cerca de 5 minutos a pé Escolas, farmácias e serviços essenciais entre 5 e 10 minutos a pé Paragens de autocarro a poucos minutos a pé Estação ferroviária de Rio Tinto a cerca de 10 minutos Centro de Rio Tinto a cerca de 5 minutos de carro Centro do Porto a aproximadamente 15 minutos de carro Acessos rápidos às principais vias rodoviárias (VCI, A3 e A4) A localização torna este imóvel particularmente atrativo para o mercado de arrendamento, pela facilidade de deslocação diária, bem como para futura habitação própria. Uma oportunidade sólida para investimento com rendimento garantido e potencial de valorização. Para mais informações ou para agendar visita, entre em contacto. #ref: 800156
AMI: 11220
Ref. Externa: 800156
Id: 1595462
Inicie sessão para guardar este imóvel e aceder à sua lista de favoritos em qualquer dispositivo.
465.000 €
4 Quartos
4 WCs
Área bruta : 143 m²
Oportunidade INCRIVEL para quem procura um lar pratico, funcional e aprecia boas áreas. Já renovada muito bem estimada esta moradia oferece excelentes áreas nas suas divisões, localizada numa zona calma e tranquila próxima das principais saídas para autoestrada e centros. Composta por 3 Pisos e aproveitamento de Sótão: Cave: • Salão de convívio, luz natural • 1 Divisão transformada em mais um quarto • Wc com cabine de duche Rés do Chão: • Hall de entrada amplo • Divisória para dispensa e arrumos • Casa de banho social • Sala ampla com lareira e acesso á varanda • Cozinha remodelada totalmente equipada • Acesso direto ao pátio exterior Piso 1: • Hall de escadas amplo com acesso ao sótão • 4 Quartos, 1 deles suite ,2 com varanda e todos com roupeiros embutidos • 1 dos quartos transformado em closet • 1 Casa de banho completa com janela e luz natural • Varandas espaçosas, luminosas e agradáveis Sótão: • Amplo • Pé direto alto • Luz natural Características mais atrativas: Área exterior já revestida com capoto, Equipada com Ar Condicionado, Boa Luminosidade; Áreas grandes e Localização. Ainda é mais surpreendente ao vivo!!! Agenda a tua visita e não deixes escapar o teu próximo lar! O Grupo Mérito Invest foi fundado no ano 2000 e desde logo procurou cimentar uma posição de solidez, competência e credibilidade junto dos mais diversos atores do mercado imobiliário, nomeadamente através de uma equipa que, desde logo, se compôs por profissionais com competência técnica e experiência. Atento à responsabilidade de prestar um serviço de excelente qualidade, foi pelo Grupo Mérito Invest definida uma nova estratégia de crescimento geográfica, que levou à abertura de novas lojas nas cidades de Barcelos, Guimarães, Vila do Conde, Vila Nova de Famalicão, Porto e Póvoa do Varzim, contando com cerca de 40 consultores e uma carteira de imoveis alargada e diversificada. Sempre "de portas abertas para fazer bons negócios", o Grupo Mérito Invest rege-se por um conjunto de princípios e valores que se têm revelado fatores de sucesso no setor imobiliário: sigilo profissional sobre factos e documentos, elevado sentido de responsabilidade, dever de informação e defesa intransigente dos interesses de todos os seus clientes. A experiência, a credibilidade e a competência do Grupo Mérito Invest, são reconhecidas tanto pelos promotores imobiliários como pelos compradores (sejam Particulares, Empresas ou Investidores). Só assim é possível estabelecer relações fortes com instituições públicas e privadas e com as restantes mediadoras. Aguardamos a sua visita em qualquer uma das nossas sete lojas do Grupo Mérito Invest… porque o nosso Mérito é Investir em Si.
AMI: 4760
Ref. Externa: MIPC-0286
Id: 1595457
Inicie sessão para guardar este imóvel e aceder à sua lista de favoritos em qualquer dispositivo.
350.000 €
3 Quartos
2 WCs
Área útil : 230 m²
Moradia T3 para remodelação, situada no Forno, em Rio Tinto. Imóvel com três frentes e três pisos, composta por: - Rés-do-chão com sala comum, cozinha, wc e varanda; -1.º andar com wc, três quartos e varandas - Cave ampla (ótima para armazém, arrumos, etc) No exterior dispõe de garagem para 2 viaturas, jardim, e pátio. Bem localizado, com comércio e serviços nas imediações. Transportes públicos. A poucos minutos do Hospital de São João e do Hospital São João e do Pólo Universitário da Asprela (3,5km). Venha Conhecer! Para mais informações, contacte-nos. A CityCasas é uma mediadora imobiliária devidamente autorizada pelo Instituto dos Mercados Públicos, do Imobiliário e da Construção (IMPIC), detentora da licença n.º 18846. Na CityCasas, acreditamos que encontrar a casa certa é muito mais do que uma transação, é um passo importante na construção do seu futuro. Por isso, oferecemos acompanhamento gratuito e totalmente personalizado com o compromisso de o guiar em cada decisão, com confiança, clareza e proximidade. Trabalhamos com parcerias sólidas e selecionadas junto de diversas entidades, para que tenha acesso às melhores oportunidades e condições do mercado, sem complicações e com total transparência. A nossa missão é simples: transformar cada cliente num parceiro de longa duração. Para nós, o momento da escritura não é o fim, mas o início de uma relação de confiança e tranquilidade. Queremos que se sinta seguro, valorizado e acompanhado, porque a sua satisfação é, para nós, a melhor forma de sucesso. Contacte-nos para agendar a sua visita ou solicitar mais informações. A nossa equipa experiente e dedicada está disponível todos os dias, pronta para o receber com o profissionalismo e a atenção que merece. CityCasas - Estamos sempre ao seu lado!
AMI: 18846
Ref. Externa: CAS_751
Id: 1593727
Inicie sessão para guardar este imóvel e aceder à sua lista de favoritos em qualquer dispositivo.
3 Quartos
3 WCs
Área bruta : 450 m²
MORADIA T3 com 4 frentes, garagem fechada e logradouro, em Fânzeres, Gondomar Localização e envolvente: Localização em zona habitacional calma, na Rua de Manariz 763, em Fânzeres, Gondomar. Fácil acesso/distribuição automóvel e pedonal. Na envolvente existe oferta de serviços (cafés, padarias, supermercados, escolas...). Principais características: - 3 pisos - 4 frentes - possibilidade de ser transformado em tipologia superior - garagem fechada - prédio misto (1 artigo urbano + 1 artigo rústico) - área de implantação do edifício: 150,00m2 - poderá ser utilizado o r/c + 1.º andar para habitação e a cave para garagem - área total dos artigos: 2592,00m2 (segundo registo no BUPi) Cave (150,00m2): - acesso ao exterior pela fachada tardoz - área ampla com iluminação e ventilação natural - escadaria de acesso ao r/c Rés-do-chão (150,00m2): - átrio de entrada - pré-instalação de cozinha - instalação sanitária - quarto - área ampla para acesso de viaturas (garagem) 4 carros - escadarias de acesso à cave e 1.º andar - acesso ao exterior pelas fachadas frontal e tardoz 1.º andar (150,00m2): - átrio de entrada com acesso direto pelo exterior - sala comum com acesso a uma varanda - varanda - cozinha com acesso a uma varanda - varanda - instalação sanitária - átrio de distribuição da zona privativa dos quartos - quarto com armário embutido - quarto com armário embutido - suite com armário embutido e instalação sanitária - escadaria de acesso ao r/c Outras características e valências: - caixilharias com vidros duplos - videoporteiro wifi - aquecimento de águas bomba de calor - arrefecimento (1.º andar) por bomba de calor Pontos de interesse: - a 300m do Parque Urbano de Fânzeres - a 950m de um jardim de infância - a 1,1km de uma farmácia - a 1,5km do Mercadona - a 1,5km do Colégio Paulo VI - a 1,7km do Pingo Doce - a 1,7km do Continente - a 1,8km de uma abastecedora de combustíveis - a 1,9km da Câmara Municipal de Gondomar - a 2,3km do ALDI - a 2,5km da Escola Secundária de Gondomar - a 2,9km do Multiusos de Gondomar - a 3,2km do Shopping Parque Nascente Transportes e acessos: - a 1,3km do acesso à A43 - a 1,5km da N209 - a 1,9km do metro (Estação – Fânzeres) - a 3,2km da N12 - a 4,9km do acesso à VCI - a 5,9km da Ponte do Freixo Áreas do artigo urbano (de acordo com as Caderneta Predial Urbana): - Área total do terreno: 150,00 m2 - Área de implantação do edifício: 150,00 m2 - Área bruta de construção: 450,00 m2 - Área bruta dependente: 300,00 m2 - Área bruta privativa: 150, 00 m2 Área do artigo rústico (de acordo com as Caderneta Predial Rústica): - Área total do terreno: 2358,00 m2 Este imóvel está parcialmente classificado no PDM – Plano Diretor Municipal de Gondomar como “Espaços Centrais” e “Espaços residenciais Tipo II”. Resumo: Espaços Centrais (apróx. 1000m2): - índice de utilização: 1,4 - índice de impermeabilização: 0,8 Espaços residenciais Tipo II (apróx. 1500m2): - índice de utilização: 0,8 - altura máxima da fachada: 12 metros ou 3 pisos - índice de impermeabilização: 0,8 (...) SECÇÃO II Espaços centrais Artigo 51.º Identificação e usos 1 — Os espaços centrais correspondem aos espaços onde predominam ou se pretenda venham a predominar as funções direcionais dos principais núcleos urbanos localizados na UP 1 — Território do Baixo Concelho. 2 — Nestas áreas pretende-se uma maior qualificação e disponibilização de espaço público e o incremento de funções comerciais, de serviços, de turismo e a instalação de equipamentos urbanos, sem prejuízo da indispensável função habitacional e de outras utilizações ou ocupações compatíveis com o uso dominante. Artigo 52.º Regime de edificabilidade 1 — No solo urbanizado e na ampliação ou na construção de novos edifícios aplicam-se as seguintes regras: a) Em frente urbana consolidada, dá-se cumprimento ao plano de vedação ou de fachada dominante e à moda da altura da fachada e da forma de relação do edifício com o espaço público na frente urbana em que o prédio se integra; b) Na ausência de frente urbana consolidada, os parâmetros de edificabilidade são os seguintes: i) O índice de utilização não pode ser superior a 1,4, exceto nas situações de cumprimento de uma altura de fachada devidamente estabelecida para a frente urbana respetiva; ii) O índice de impermeabilização do solo não pode ser superior a 80 %. 2 — Excetuam-se do número anterior as situações de colmatação, nas quais as novas construções ou ampliações de edifícios existentes respeitam os planos de vedação ou de fachada dos edifícios contíguos e estabelecem a articulação volumétrica desses mesmos edifícios. 3 — No solo urbanizável, o regime de edificabilidade é o estabelecido na alínea b) do n.º 1 do presente artigo, salvo quando integrado em UOPG e quando no conteúdo destas, em anexo ao presente regulamento, se dispuser sobre tal. SECÇÃO III Espaços residenciais Artigo 53.º Identificação e usos 1 — Nestes espaços integram-se as áreas que em função das tipologias e morfologias dominantes se destinam preferencialmente a funções residenciais, complementadas com usos comerciais, de serviços, turísticos e de equipamentos, incluindo áreas verdes de utilização coletiva públicas ou privadas, admitindo-se usos industriais, de armazenagem ou outros desde que compatíveis com a função habitacional nos termos do disposto no artigo 20.º 2 — Os espaços residenciais encontram-se divididos, em função das tipologias edificatórias e das densidades pretendidas, nas seguintes subcategorias: a) Espaços residenciais Tipo I; b) Espaços residenciais Tipo II. Artigo 54.º Regime de edificabilidade 1 — No solo urbanizado e na ampliação ou na construção de novos edifícios, aplicam-se as seguintes regras: a) Em frente urbana consolidada, dá-se cumprimento ao plano de vedação ou de fachada dominante e à moda da altura da fachada e da forma de relação do edifício com o espaço público na frente urbana em que o prédio se integra; b) Na ausência de frente urbana consolidada, os parâmetros de edificabilidade são os seguintes: (...) ii) Tipo II — O índice de utilização máximo é de 0,8 e a altura da fachada não pode ser superior a 12 metros ou 3 pisos, exceto nas situações de cumprimento de uma altura de fachada devidamente estabelecida para a frente urbana respetiva e para os casos a que se refere o n.º 4 do presente artigo; c) Em ambas os casos da alínea anterior, o índice de impermeabilização do solo não pode ser superior a 80 %. 2 — No solo urbanizável, os parâmetros de edificabilidade são os estabelecidos nas alíneas b) e c) do número anterior ou nas UOPG respetivas quando for o caso. 3 — Excetuam-se dos números anteriores as situações de colmatação, nas quais as novas construções ou ampliações de edifícios existentes respeitam os planos de vedação ou de fachada dos edifícios contíguos e estabelecem a articulação volumétrica desses mesmos edifícios; 4 — Nos espaços residenciais, os equipamentos privados de índole social não integrados em operações de loteamento e os estabelecimentos hoteleiros poderão atingir um iu de 1,4 e ter uma altura de fachada e um número de pisos superiores aos definidos desde que, cumulativamente: a) Garantam a correta integração paisagística e inserção urbana; b) O empreendimento integre espaços destinados a conferências, reuniões e exposições com área não inferior a 500 m2, no caso dos estabelecimentos hoteleiros. (...) In Regulamento do Plano Diretor Municipal de Gondomar (Aviso n.º 3337/2018 - Alteração do Plano Diretor Municipal de Gondomar), Diário da República, 2.ª série — N.º 51 — 13 de março de 2018, pág. 7581 Nota: para maior facilidade na identificação deste imóvel, por favor, refira o respectivo ID. Em caso de agendamento de visita, faça-se acompanhar de um documento de identificação. Muito obrigado! ***** ;ID RE/MAX: 126401038-255
AMI: 7772
Ref. Externa: 126401038-255
Id: 1593268
Inicie sessão para guardar este imóvel e aceder à sua lista de favoritos em qualquer dispositivo.
3 Quartos
2 WCs
Área bruta : 175 m²
Moradia T3 com + uma casa T1 com Entradas Independentes –Ideal para Habitação Própria ou Investimento. Excelente oportunidade para quem procura um imóvel versátil,com potencial para habitação própria e simultaneamente para rentabilização. Este imóvel está registado como propriedade plena e é o único no quarteirão com um excelente terraço e para aproveitamento da área abaixo que confronta com outra rua paralela à rua do imóvel, foi construído um T1 que consegue ver nas fotografias e no vídeo. Alertamos que esta casa T1 não consta nos registos, nem está mencionada na área do anúncio, apesar do imóvel ter sido adquirido através de recurso de financiamento bancário no estado atual. Esta incrível moradia está organizada da seguinte forma: Piso Superior – Casa T3 (dois pisos) Sala com boas áreas Cozinha 3 quartos ( um dos quartos com terraço) 2 casas de banho Um espaço pensado para o conforto de uma família, comdivisões bem distribuídas e funcionais. Piso Inferior – Casa T1 Sala e cozinha em conceito open space 1 quarto 1 casa de banho Garagem privativa Ideal para arrendamento, alojamento de familiares ou paracriar uma fonte de rendimento adicional com total independência da habitaçãoprincipal. O imóvel dispõe ainda de espaço exterior, proporcionando umazona adicional para lazer e convívio ao ar livre. Terraço amplo com espaço para barbecue Espaço para arrumação Estas duas casas têm as seguintes características:- Sala do T3 com recuperador de calor - Ambas as cozinhas equipadas e modernizadas - Quartos com armários embutidos - Um dos quartos do T3 tem uma mezzanine com um arrumo extra. Entre outras características e espaços únicos que conseguirá ver e sentir numa visita ao imóvel. Esta é sem dúvida uma solução habitacional prática e flexível, perfeita paraquem valoriza a possibilidade de viver e investir no mesmo imóvel. Vai deixar escapar esta oportunidade? ;ID RE/MAX: 120931606-49
AMI: 7772
Ref. Externa: 120931606-49
Id: 1593231
Inicie sessão para guardar este imóvel e aceder à sua lista de favoritos em qualquer dispositivo.
6 Quartos
3 WCs
Área útil : 290 m²
Moradia T6, de quatro frentes, inserida num lote de 760 m², localizada na Rua Luís de Camões, em Valbom, a poucos minutos do Palácio do Freixo e com rápidos acessos ao Porto. Com uma área bruta de construção de 350 m² e 290 m² de área útil, esta moradia destaca-se pelas dimensões generosas, excelente exposição solar e uma distribuição funcional, ideal para famílias numerosas ou para quem procura espaço, conforto e privacidade. Distribuição: Rés do chão: 2 quartos Áreas sociais amplas e bem iluminadas com sala e cozinha ambas com duas frentes e com ligação direta ao exterior e jardim Wc completo com luz direta 1.º piso: 4 quartos, um deles em suíte Casa de banho completa Com acesso ao sótão A moradia dispõe ainda de garagem fechada, zonas exteriores ajardinadas e espaço suficiente para lazer, jardim ou outros projetos futuros. A localização combina tranquilidade residencial com proximidade a serviços, comércio, escolas e vias rápidas, tornando esta propriedade uma solução versátil tanto para habitação própria como para quem procura um imóvel diferenciado numa zona em valorização.
AMI: 7917
Ref. Externa: 807261001
Id: 1591859
Inicie sessão para guardar este imóvel e aceder à sua lista de favoritos em qualquer dispositivo.
2 Quartos
2 WCs
Área bruta : 94 m²
Andar Moradia T2 renovado com 3 frentes, em Valbom, Gondomar. Conclusão prevista para Março 2026. Imóvel completamente reconstruído, composto por: - Open Space: Sala e Cozinha - Quarto c/ roupeiro - Suíte - 2 wcs (um na suíte) - Arrumo - 1 lugar estacionamento coberto (zona comum) Características em destaque: Revestida a capoto Caixilharia Alumínio termolacado térmico Vidros duplos Tetos falsos c/ focos LED Pré-instalação A/C Proximidade: Junta Freguesia / Farmácia / Bancos Escolas Todo tipo de comércio / restauração Venha Conhecer! Para mais informações, contacte-nos. A CityCasas é uma mediadora imobiliária devidamente autorizada pelo Instituto dos Mercados Públicos, do Imobiliário e da Construção (IMPIC), detentora da licença n.º 18846. Na CityCasas, acreditamos que encontrar a casa certa é muito mais do que uma transação, é um passo importante na construção do seu futuro. Por isso, oferecemos acompanhamento gratuito e totalmente personalizado com o compromisso de o guiar em cada decisão, com confiança, clareza e proximidade. Trabalhamos com parcerias sólidas e selecionadas junto de diversas entidades, para que tenha acesso às melhores oportunidades e condições do mercado, sem complicações e com total transparência. A nossa missão é simples: transformar cada cliente num parceiro de longa duração. Para nós, o momento da escritura não é o fim, mas o início de uma relação de confiança e tranquilidade. Queremos que se sinta seguro, valorizado e acompanhado, porque a sua satisfação é, para nós, a melhor forma de sucesso. Contacte-nos para agendar a sua visita ou solicitar mais informações. A nossa equipa experiente e dedicada está disponível todos os dias, pronta para o receber com o profissionalismo e a atenção que merece. CityCasas - Estamos sempre ao seu lado!
AMI: 18846
Ref. Externa: HAB_749
Id: 1591735
Inicie sessão para guardar este imóvel e aceder à sua lista de favoritos em qualquer dispositivo.
2 Quartos
2 WCs
Área bruta : 94 m²
Andar Moradia T2 renovado com 3 frentes, em Valbom, Gondomar. Conclusão prevista para Março 2026. Imóvel completamente reconstruído, composto por: - Open Space: Sala e Cozinha - Quarto c/ roupeiro - Suíte - 2 wcs (um na suíte) - Arrumo - 1 lugar estacionamento coberto (zona comum) Características em destaque: Revestida a capoto Caixilharia Alumínio termolacado térmico Vidros duplos Tetos falsos c/ focos LED Pré-instalação A/C Proximidade: Junta Freguesia / Farmácia / Bancos Escolas Todo tipo de comércio / restauração Venha Conhecer! Para mais informações, contacte-nos. A CityCasas é uma mediadora imobiliária devidamente autorizada pelo Instituto dos Mercados Públicos, do Imobiliário e da Construção (IMPIC), detentora da licença n.º 18846. Na CityCasas, acreditamos que encontrar a casa certa é muito mais do que uma transação, é um passo importante na construção do seu futuro. Por isso, oferecemos acompanhamento gratuito e totalmente personalizado com o compromisso de o guiar em cada decisão, com confiança, clareza e proximidade. Trabalhamos com parcerias sólidas e selecionadas junto de diversas entidades, para que tenha acesso às melhores oportunidades e condições do mercado, sem complicações e com total transparência. A nossa missão é simples: transformar cada cliente num parceiro de longa duração. Para nós, o momento da escritura não é o fim, mas o início de uma relação de confiança e tranquilidade. Queremos que se sinta seguro, valorizado e acompanhado, porque a sua satisfação é, para nós, a melhor forma de sucesso. Contacte-nos para agendar a sua visita ou solicitar mais informações. A nossa equipa experiente e dedicada está disponível todos os dias, pronta para o receber com o profissionalismo e a atenção que merece. CityCasas - Estamos sempre ao seu lado!
AMI: 18846
Ref. Externa: HAB_750
Id: 1591734
Inicie sessão para guardar este imóvel e aceder à sua lista de favoritos em qualquer dispositivo.
3 Quartos
4 WCs
Área bruta : 268 m²
Moradias das Regadas em São Pedro da Cova é um empreendimento que oferece Modernismo e Charme. Localizado próximo de escolas, comércio e vários serviços, este complexo residencial é composto por 20 moradias de tipologia T3, com 2 e 3 frentes. A construção apresenta uma qualidade elevada, com áreas generosas e excelente exposição solar. Além disso, as moradias possuem isolamento térmico (Capoto) e acústico, portas e janelas com vidro duplo, estores de alumínio elétricos no exterior e grandes vãos envidraçados. No interior, as divisórias são em gesso projetado, e há instalação de painéis solares para aquecimento de água. Os tetos falsos estão presentes em toda a casa, com exceção do teto da cave, e há projetores de LEDs em todos os ambientes, exceto na garagem. A iluminação indireta está presente na sala e nos quartos, e há um recuperador de calor na sala. A casa conta com tomadas de TV na sala, cozinha e quartos, além da instalação de Dolby Surround nesses ambientes. Também possui sistema de alarme e ar condicionado. A suite possui um armário closet, e os dois quartos possuem armários roupeiros lacados a branco, com gavetas, prateleiras e varão. Os pavimentos dos quartos, sala, casa de banho de serviço e halls são em soalho flutuante AC5 - Carvalho. O imóvel também possui sistema de aspiração central e garagem para 2 carros com portões automáticos. A porta corta-fogo da garagem para o hall interior é um diferencial de segurança. A escada interior é em betão armado revestida a soalho flutuante AC5 - Carvalho. A cozinha conta com móveis em MDF Hidrofogo Lacado a Branco, com ilha e está equipada com despenseiro. O balcão é em Silestone, e os eletrodomésticos são da marca Siemens (forno, micro-ondas, placa vitro cerâmica e máquina de lavar louça). O exaustor é da marca Cata, e o frigorífico é Side by Side da marca Beko. A cozinha também possui iluminação e espaço para resíduos recicláveis, e o pavimento é em grés porcelanato. As paredes são pintadas com tinta lavável, e as casas de banho possuem revestimentos em ladrilho retificado e projetores de LED embutidos. Os armários de lavatório são suspensos e lacados a branco brilhante, as louças sanitárias são suspensas, e há resguardos de base de chuveiro. A suite está equipada com coluna de hidromassagem, e a casa de banho de apoio aos quartos possui rampa de chuveiro. A zona exterior apresenta fachada em Capoto, caixilharia em alumínio com corte térmico, portas e janelas com vidro duplo e estores de alumínio elétricos. O imóvel também possui vídeo porteiro com ecrã a cores. Não perca a oportunidade de viver numa zona calma com toda a comodidade que esta Moradia lhe proporciona... Marque já a sua Visita... Tratamos gratuitamente de todo o processo compra, desde o pedido de financiamento até ao acompanhamento no ato da escritura. Serviços: - Análises de financiamentos; - Simulações de crédito habitação; - Simulações de seguros de vida e multirriscos; - Simulações de impostos e despesas com escritura; - Estudos de mercado / avaliação de imóveis; Estilo Intemporal Imobiliária "Focados no cliente, orientados a resultados"
AMI: 14561
Ref. Externa: 1666
Id: 1589468
Inicie sessão para guardar este imóvel e aceder à sua lista de favoritos em qualquer dispositivo.
3 Quartos
5 WCs
Área útil : 274 m²
NOVA CONSTRUÇÃO em São Pedro da Cova, Gondomar! Moradias T3 de 3 frentes Espaço, conforto e privacidade para a sua família! Localização perfeita: Fora da confusão, mas perto de tudo! Bons acessos para uma mobilidade fácil e rápida. Destaques: Arquitetura moderna e acabamentos de qualidade Áreas amplas e bem distribuídas Excelente exposição solar Ideal para habitação própria Viva com tranquilidade sem abdicar da proximidade a comércio, serviços e transportes. Agende já a sua visita e venha conhecer o seu novo lar! Notas: Garantimos um acompanhamento total e profissional durante todo o seu processo de aquisição até à escritura e após a realização da mesma. Tratamos do seu processo de financiamento de Crédito à Habitação, garantindo as melhores propostas do mercado, através do nosso parceiro Intermediário de Crédito devidamente autorizado pelo Banco de Portugal. Mediação Imobiliária - Invest 351 Intermediação de operações de compra e venda de imóveis no mercado nacional e internacional. Fazemos da discrição, confidencialidade e segurança as nossas maiores valências na mediação imobiliária. Temos acesso ao mercado nacional, mas também a muitos investidores internacionais que procuram Portugal para investir. Invest in your dreams, #Invest351
AMI: 19960
Ref. Externa: 1131 - Moradia T3 NOVA em Gondomar
Id: 1587422
Inicie sessão para guardar este imóvel e aceder à sua lista de favoritos em qualquer dispositivo.
3 Quartos
5 WCs
Área útil : 184 m²
NOVA CONSTRUÇÃO em São Pedro da Cova, Gondomar! Moradias T3 de 2 frentes Espaço, conforto e privacidade para a sua família! Localização perfeita: Fora da confusão, mas perto de tudo! Bons acessos para uma mobilidade fácil e rápida. Destaques: Arquitetura moderna e acabamentos de qualidade Áreas amplas e bem distribuídas Excelente exposição solar Ideal para habitação própria Viva com tranquilidade sem abdicar da proximidade a comércio, serviços e transportes. Agende já a sua visita e venha conhecer o seu novo lar! Notas: Garantimos um acompanhamento total e profissional durante todo o seu processo de aquisição até à escritura e após a realização da mesma. Tratamos do seu processo de financiamento de Crédito à Habitação, garantindo as melhores propostas do mercado, através do nosso parceiro Intermediário de Crédito devidamente autorizado pelo Banco de Portugal. Mediação Imobiliária - Invest 351 Intermediação de operações de compra e venda de imóveis no mercado nacional e internacional. Fazemos da discrição, confidencialidade e segurança as nossas maiores valências na mediação imobiliária. Temos acesso ao mercado nacional, mas também a muitos investidores internacionais que procuram Portugal para investir. Invest in your dreams, #Invest351
AMI: 19960
Ref. Externa: 1132 - Moradia T3 NOVA em Gondomar
Id: 1587416
Inicie sessão para guardar este imóvel e aceder à sua lista de favoritos em qualquer dispositivo.
3 Quartos
3 WCs
Área útil : 184 m²
Moradia T3 para vendaPlanta disponivel para Consulta **Moradias Modernas em S. Cosme, Gondomar** Prevê-se a finalização da obra para o final de 2026 ou inícios de 2027, apresentando-se uma oportunidade única para adquirir moradias de alto padrão na Rua da Cal, nº 1367 e 1375. Estas moradias com três frentes são construídas por um construtor de confiança, destacando-se pela qualidade dos acabamentos. **Detalhes do Imóvel:** - Área do Lote: 195,3 m²- Área Bruta de Construção: 269,50 m²- Área Exterior: 90,5 m² A construção é marcada por grandes fachadas envidraçadas, oferecendo ótima luminosidade natural e um ambiente acolhedor. **Características da Moradia T3 com 3 Frentes:** - Cave: Salão de 38 m², wc e lavandaria.- R/C: Hall de entrada, sala e cozinha em openspace, wc de serviço, garagem para 2 carros, terraço e jardim.- Piso 1: Três suítes com varanda, sendo uma equipada com closet. **Características Relevantes:** - Isolamento Térmico e Acústico: Capoto.- Portas e Janelas: Vidro duplo; estores de alumínio elétricos.- Grandes Vãos Envidraçados: Proporcionando iluminação abundante.- Divisórias Interiores: Gesso projetado.- Aquecimento: Instalação de bomba de calor para aquecimento de água.- Sistema de Iluminação: Projetores de LED; luz indireta na sala e quartos.- Acessibilidade e Segurança: Instalação de alarme; pré-instalação de ar condicionado; garagem com portões automáticos.- Acabamentos de Qualidade: Tectos falsos na casa (exceto na cave); armários roupeiros em MDF lacados a creme. **Cozinha:** - Móveis: MDF hidrofogo lacado a creme, com ilha e despenseiro.- Balcão: Em Silestone.- Equipamentos: Eletrodomésticos Bosh (exceto frigorífico Beko) incluindo fogão, micro-ondas e lava-louças.- Pavimento: Grés porcelânico definido conforme 3D.- Paredes: Pintadas com tinta lavável. **Casas de Banho:** - Revestimentos: Ladrilho retificado, conforme 3D.- Equipamentos: Louças sanitárias suspensas, armários de lavatório lacados a creme, resguardos de base de chuveiro.- Suítes: Equipadas com kit de duche; casas de banho completas em todos os quartos. **Zona Exterior:** - Fachada: Capoto e Alucobond.- Caixilharia: Alumínio com corte térmico; portas e janelas com vidro duplo e estores elétricos.- Segurança: Vídeo porteiro com ecrã a cores. Esse projeto está inserido em uma zona habitacional dinâmica, com fácil acesso a comércio e serviços, próximo ao centro de Gondomar, ao pavilhão multiusos e principais vias de acesso (IC29 e CREP). Não perca a oportunidade de adquirir uma moradia com acabamentos de excelência e localização privilegiada! ;ID RE/MAX: 123631347-89
AMI: 7772
Ref. Externa: 123631347-89
Id: 1587123
Inicie sessão para guardar este imóvel e aceder à sua lista de favoritos em qualquer dispositivo.
3 Quartos
2 WCs
Área bruta : 200 m²
Moradia de 4 Frentes com garagem em Gondomar Referencia Interna - gon_P260101 Moradia de quatro frentes situada em Gondomar, destinada a investidores que procuram uma oportunidade com elevado potencial de valorização. O imóvel dispõe de garagem, 3 quartos, 2 casas de banho e conta com 200 m² de área bruta, oferecendo uma base sólida para um projeto de reabilitação ou modernização. Implantada nem boa localização, com acessos facilitados, esta moradia apresenta-se como uma solução ideal para recuperação total ou para realização de algumas obras de melhoria, permitindo adaptar o espaço a diferentes finalidades, quer para habitação própria, quer para investimento. A excelente exposição solar, proporcionada pelas quatro frentes, aliada à localização estratégica e à envolvente consolidada, fazem desta moradia uma oportunidade única para transformar e valorizar num dos eixos mais procurados da zona. Observação: Casa de momento não tem licença de habitação dado ser anterior a 1951, aguarda averbamento em julho deste ano. Tratamos do financiamento sem qualquer custo! Certificado energético: A+ Área: 200 m2 Valor: 140.000 € Ref: gon_P260101 Marque já a sua visita!! Teremos todo o gosto em ajudar a escolher seu imóvel.
AMI: 14839
Ref. Externa: gon_P260101
Id: 1585303
Inicie sessão para guardar este imóvel e aceder à sua lista de favoritos em qualquer dispositivo.
3 Quartos
5 WCs
Área útil : 252 m²
Moradia T3 com três frentes, com terraço e jardim, garantindo luz natural e ventilação em todos os ambientes. Pensada para conforto e funcionalidade, integra grandes vãos envidraçados que tornam os espaços acolhedores e bem iluminados. A cozinha com ilha central e armários bem distribuídos, aliada a ar condicionado e iluminação LED, facilita as tarefas do dia a dia. O piso inferior é versátil e pode ser adaptado para sala de lazer, ginásio ou espaço de convívio. No piso superior, a master suite conta com closet e casa de banho completa, enquanto os dois quartos oferecem roupeiros embutidos e varanda comum, o que garante privacidade e conforto. A garagem para dois carros permite acesso direto à casa. Inserida numa nova urbanização de São Pedro da Cova, a moradia está próxima de transportes públicos, comércio, escolas, serviços e áreas verdes, com fácil acesso a vias rápidas, combinando praticidade e qualidade de vida. Exterior composto por: • Terraço com jardim • Com possibilidade de aprovar projeto para piscina privada com custo adicional de 25.000.00€ Primeiro piso composto por: • Sala e cozinha em conceito open space • Cozinha totalmente equipada com ilha central • Sala de estar ampla com varanda • Casa de banho de serviço Segundo piso composto por: • Master Suite com casa de banho completa, closet e varanda • 2 Quartos amplos com roupeiro embutido e varanda comum • Casa de banho completa de apoio aos quartos Cave composta por: • Garagem fechada para 2 carros, com portão automático e acesso direto à casa • Arrumos com 20m² • Área técnica/ casa das máquinas Caraterísticas: • Isolamento Térmico (Capoto) e Acústico • Portas e Janelas com vidro Duplo • Estores de Alumínio Elétricos no Exterior • Grandes Vãos Envidraçados • Divisórias Interiores em Gesso Projetado • Instalação de Paneis Solares para Aquecimento de Água • Tetos Falsos em toda a casa, com exceção do teto da cave • Projetores de leds em toda a casa, exceto garagem • Luz indireta na Sala e nos quartos • Recuperador de Calor na Sala • Tomadas TV na sala, cozinha e quartos e salão • Instalação de Alarme • Instalação de Ar Condicionado • Portas com sistema pivot de altura igual ao pé direito das habitações, em madeira Lacado a Creme • Armário Closet na suite • Armários Roupeiros Lacados a Creme, com gavetas, prateleiras e varão, nos dois quartos • Pavimentos dos Quartos, Sala, Casa de Banho de Serviço e Halls em Soalho flutuante AC5 - Carvalho • Sistema de Aspiração Central • Garagem para 2 Carros com portões Automáticos • Porta Corta-fogo da Garagem para o hall interior • Escada Interior em betão armado revestida a soalho flutuante AC5 -Carvalho Cozinha: • Móveis em MDF Hidrofogo Lacado a Creme, com Ilha e equipada com Despenseiro • Balcão em Silestone • Eletrodomésticos da marca Bosh (Exaustor, Forno, Micro-ondas, Placa Vitrocerâmica e Máquina Lavar Louça) e Frigorifico Side by Side marca Candy • Iluminação e Espaço para Resíduos Recicláveis • Pavimento em grés porcelânico • Paredes Pintadas com tinta lavável Casas de banho: • Revestimentos em Ladrilho Retificado • Projetores de led embutidos • Armários de Lavatório suspensos, Lacados a Creme • Louças Sanitárias suspensas • Resguardos de Base de Chuveiro • Casas de Banho completas nos 3 Quartos • Suite equipada com Coluna de hidromassagem • Casas de Banho dos outros 2 quartos equipadas com rampa de chuveiro • Casa de banho com Sanita e Lavatório no piso 0 e no piso -1 Zona exterior: • Fachada em Capoto e Allucobond • Caixilharia em Alumínio com corte térmico • Portas e Janelas com Vidro Duplo e Estores de Alumínio Elétricos • Vídeo Porteiro com Ecrã a Cores Nas proximidades podemos encontrar várias infraestruturas que proporcionam uma melhor qualidade de vida: • Fácil acessibilidade à rede de transportes públicos (autocarro) • Fácil acesso a vias rápidas (A43/ Estrada Dom Miguel) • Bombeiros Voluntários de São Pedro da Cova • Parque Urbano de São Pedro da Cova • Piscina Municipal de São Pedro da Cova • Hospital Escola da Universidade Fernando Pessoa • Centro de saúde de São Pedro da Cova • Escolas/ Colégios/ Infantário • Ginásios • Restauração • Supermercados • Todo o tipo de comércio e serviços Para além deste imóvel, dispomos de mais opções que certamente vão ao encontro daquilo que procura. Viva a Felicidade em Sua Casa! A GlobalHome é uma empresa do ramo imobiliário localizada em Fânzeres, Gondomar, cuja Missão é proporcionar um atendimento personalizado para que cada cliente encontre a sua felicidade em casa. Comprometemo-nos a acompanhá-lo(a) em todo o processo de compra, através de: • Procura ativa até encontrar o imóvel ideal • Apresentação das melhores soluções financeiras • Apoio no processo de financiamento (Intermediário de Crédito autorizado pelo Banco de Portugal, nº 3133) • Acompanhamento em avaliações bancárias Dispomos também de serviços especializados que asseguram um processo simples e seguro: • Certificação Energética • Apoio na marcação e realização do CPCV (Contrato Promessa Compra e Venda) • Acompanhamento na escritura pública de compra e venda
AMI: 9559
Ref. Externa: GH002579
Id: 1585254
Inicie sessão para guardar este imóvel e aceder à sua lista de favoritos em qualquer dispositivo.
3 Quartos
5 WCs
Área útil : 268 m²
Moradia T3 com duas frentes, orientada a norte e sul, com terraço, jardim e possibilidade de piscina privada. Projetada para conforto e funcionalidade, proporciona ambientes luminosos e acolhedores através dos grandes vãos envidraçados. A cozinha com ilha central e armários inteligentes, juntamente com ar condicionado e iluminação LED, torna o dia a dia mais prático. O piso inferior é versátil, podendo ser usado como sala de lazer, ginásio ou cinema. No piso superior, as três suites garantem privacidade e conforto, com armários embutidos, closets e casas de banho completas. A garagem fechada para dois carros oferece acesso direto à casa. Localizada numa nova urbanização de São Pedro da Cova, a moradia está perto de transportes públicos, escolas, comércio, serviços e áreas de lazer, com fácil acesso a vias rápidas. Exterior composto por: • Terraço com jardim • Com possibilidade de aprovar projeto para piscina privada com custo adicional de 25.000.00€ Primeiro piso composto por: • Cozinha totalmente equipada com ilha central • Sala de estar/jantar e cozinha em conceito open space • Garagem fechada para 2 carros, com portão automático e acesso direto à casa • Casa de banho de serviço Segundo piso composto por: • Master Suite completa com closet e varanda • 2 Suites completas com roupeiro embutido e varanda comum • Hall dos quartos com iluminação natural (Claraboia) Cave composta por: • Salão amplo e versátil para festas/jogos, sala de cinema, ginásio, entre outros • Arrumos com 38m² • Casa de banho de serviço Caraterísticas: • Isolamento Térmico (Capoto) e Acústico • Portas e Janelas com vidro Duplo • Estores de Alumínio Elétricos no Exterior • Grandes Vãos Envidraçados • Divisórias Interiores em Gesso Projetado • Instalação de Paneis Solares para Aquecimento de Água • Tetos Falsos em toda a casa, com exceção do teto da cave • Projetores de leds em toda a casa, exceto garagem • Luz indireta na Sala e nos quartos • Recuperador de Calor na Sala • Tomadas TV na sala, cozinha e quartos e salão • Instalação de Alarme • Instalação de Ar Condicionado • Portas com sistema pivot de altura igual ao pé direito das habitações, em madeira Lacado a Creme • Armário Closet na suite • Armários Roupeiros Lacados a Creme, com gavetas, prateleiras e varão, nos dois quartos • Pavimentos dos Quartos, Sala, Casa de Banho de Serviço e Halls em Soalho flutuante AC5 - Carvalho • Sistema de Aspiração Central • Garagem para 2 Carros com portões Automáticos • Porta Corta-fogo da Garagem para o hall interior • Escada Interior em betão armado revestida a soalho flutuante AC5 -Carvalho Cozinha: • Móveis em MDF Hidrofogo Lacado a Creme, com Ilha e equipada com Despenseiro • Balcão em Silestone • Eletrodomésticos da marca Bosh (Exaustor, Forno, Micro-ondas, Placa Vitrocerâmica e Máquina Lavar Louça) e Frigorifico Side by Side marca Candy • Iluminação e Espaço para Resíduos Recicláveis • Pavimento em grés porcelânico • Paredes Pintadas com tinta lavável Casas de banho: • Revestimentos em Ladrilho Retificado • Projetores de led embutidos • Armários de Lavatório suspensos, Lacados a Creme • Louças Sanitárias suspensas • Resguardos de Base de Chuveiro • Casas de Banho completas nos 3 Quartos • Suite equipada com Coluna de hidromassagem • Casas de Banho dos outros 2 quartos equipadas com rampa de chuveiro • Casa de banho com Sanita e Lavatório no piso 0 e no piso -1 Zona exterior: • Fachada em Capoto e Allucobond • Caixilharia em Alumínio com corte térmico • Portas e Janelas com Vidro Duplo e Estores de Alumínio Elétricos • Vídeo Porteiro com Ecrã a Cores Nas proximidades podemos encontrar várias infraestruturas que proporcionam uma melhor qualidade de vida: • Fácil acessibilidade à rede de transportes públicos (autocarro) • Fácil acesso a vias rápidas (A43/ Estrada Dom Miguel) • Bombeiros Voluntários de São Pedro da Cova • Parque Urbano de São Pedro da Cova • Piscina Municipal de São Pedro da Cova • Hospital Escola da Universidade Fernando Pessoa • Centro de saúde de São Pedro da Cova • Escolas/ Colégios/ Infantário • Ginásios • Restauração • Supermercados • Todo o tipo de comércio e serviços Para além deste imóvel, dispomos de mais opções que certamente vão ao encontro daquilo que procura. Viva a Felicidade em Sua Casa! A GlobalHome é uma empresa do ramo imobiliário localizada em Fânzeres, Gondomar, cuja Missão é proporcionar um atendimento personalizado para que cada cliente encontre a sua felicidade em casa. Comprometemo-nos a acompanhá-lo(a) em todo o processo de compra, através de: • Procura ativa até encontrar o imóvel ideal • Apresentação das melhores soluções financeiras • Apoio no processo de financiamento (Intermediário de Crédito autorizado pelo Banco de Portugal, nº 3133) • Acompanhamento em avaliações bancárias Dispomos também de serviços especializados que asseguram um processo simples e seguro: • Certificação Energética • Apoio na marcação e realização do CPCV (Contrato Promessa Compra e Venda) • Acompanhamento na escritura pública de compra e venda
AMI: 9559
Ref. Externa: GH002578
Id: 1585253
Inicie sessão para guardar este imóvel e aceder à sua lista de favoritos em qualquer dispositivo.
3 Quartos
5 WCs
Área bruta : 320 m²
Moradia T3 NOVA, de linhas modernas e acabamentos premium, situada numa zona residencial tranquila e harmoniosa em Gondomar, ideal para quem valoriza conforto, privacidade e qualidade de vida. Estas moradias destacam-se pela excelente qualidade de construção, pelos espaços amplos e bem distribuídos e por uma luminosidade natural extraordinária, proporcionada pelos generosos vãos envidraçados. A localização oferece o equilíbrio perfeito entre serenidade e conveniência, com ótimos acessos, proximidade a serviços, comércio, escolas e todas as comodidades do dia a dia. Distribuição por 3 pisos: 1.º Piso Elegante sala e cozinha em open space, criando um ambiente moderno e acolhedor Acesso a varanda com vistas desafogadas WC de serviço Garagem fechada para dois carros, com zona de arrumos 2.º Piso Três quartos em suite, todos com roupeiros embutidos Suite principal com 29 m², complementada por um sofisticado closet Varandas nos quartos, proporcionando luz natural e conforto adicional Rés do Chão Sala ampla, pensada para momentos de convívio e lazer, com ligação direta a um fantástico jardim WC de serviço Lavandaria funcional com espaço para arrumos Equipamentos e Acabamentos de Excelência. Esta moradia foi projetada ao detalhe, com materiais de elevada qualidade e soluções que garantem conforto, eficiência e sofisticação: Isolamento térmico (Capoto) e acústico Bomba de calor para aquecimento de águas Ar condicionado instalado Aspiração central Estores elétricos exteriores em alumínio Caixilharia com corte térmico e vidro duplo Interiores Soalho flutuante AC5 Carvalho nos quartos, salas e halls Tetos falsos com iluminação LED embutida Luz indireta na sala e quartos Portas pivotantes lacadas a creme, à altura do pé-direito Roupeiros e closet lacados a creme, totalmente equipados Cozinha Móveis em MDF hidrófugo lacado a creme, com ilha Balcão em Silestone Eletrodomésticos Bosch (forno, micro-ondas, placa, exaustor e máquina de lavar loiça) Frigorífico Side by Side Beko Espaço para reciclagem e iluminação integrada Casas de Banho Revestimentos em ladrilho retificado conforme projeto 3D Louças sanitárias suspensas Móveis de lavatório suspensos Bases de duche com resguardos Casas de banho completas nas três suites WC de serviço no piso 0 e no piso -1 Exterior & Segurança Fachada em Capoto e Allucobond Garagem para dois carros com portões automáticos Porta corta-fogo da garagem para o interior Vídeo porteiro com ecrã a cores Instalação de alarme Prazo de conclusão: Segundo trimestre de 2026 Existem apenas duas moradias disponíveis para venda, correspondentes às últimas unidades deste empreendimento. As plantas encontram-se no final do anúncio, para uma melhor visualização dos espaços. NOTA: Estas fotos são de uma moradia já pronta, que a nova proprietária escolheu os matérias. Para mais informações ou agendar visita, contacte a nossa equipa sem qualquer compromisso.
AMI: 14355
Ref. Externa: MM400B/22SPC/VS(1)
Id: 1585056
Inicie sessão para guardar este imóvel e aceder à sua lista de favoritos em qualquer dispositivo.
3 Quartos
5 WCs
Área útil : 184 m²
Moradia T3 em Construção em São Pedro da Cova - Prevê-se a finalização da obra para o 1º Semestre de 2026. Moradia T3 de 2 Frentes - Lote 20 Situada numa localização privilegiada, próxima aos acessos da IC29, escolas, comércio e diversos serviços, esta moradia insere-se num complexo residencial exclusivo composto por 20 unidades, oferecendo tranquilidade, segurança e conveniência. Construção de Alta Qualidade: Áreas generosas e bem aproveitadas Excelente exposição solar Isolamento térmico (Capoto) e acústico Portas e janelas com vidro duplo Estores de alumínio elétricos no exterior Grandes vãos envidraçados que proporcionam luminosidade natural Interior Moderno e Confortável: Divisórias em gesso projetado Painéis solares para aquecimento de água Tetos falsos em toda a casa, exceto na cave Iluminação LED embutida e indireta na sala e quartos Recuperador de calor na sala Sistema de som Dolby Surround na sala, cozinha e quartos Sistema de alarme e ar condicionado em vários ambientes Tomadas de TV na sala, cozinha e quartos Suíte com armário closet Dois quartos com armários roupeiros lacados a branco, com gavetas, prateleiras e varão Pavimentos em soalho flutuante AC5 - Carvalho nos quartos, sala, casa de banho de serviço e halls Sistema de aspiração central Garagem para 2 carros com portões automáticos e porta corta-fogo para maior segurança Escada interior em betão armado revestida a soalho de Carvalho AC5 Cozinha Equipada e Moderna: Móveis em MDF Hidrofugo Lacado a branco Ilha central com despenseiro Balcão em Silestone Eletrodomésticos Siemens: forno, micro-ondas, placa vitrocerâmica e máquina de lavar louça Exaustor Cata e frigorífico Side by Side Beko Iluminação específica e espaço para resíduos recicláveis Pavimento em grés porcelanato Casa de Banho Elegante: Revestimentos em ladrilho retificado Iluminação LED embutida Armários de lavatório suspensos e lacados a branco brilhante Louças sanitárias suspensas Resguardos de base de chuveiro Suite com coluna de hidromassagem Casa de banho de apoio com rampa de chuveiro Exterior e Segurança: Fachada com revestimento Capoto Caixilharia em alumínio com corte térmico e vidro duplo Estores elétricos de alumínio Vídeo porteiro com ecrã a cores Esta moradia combina conforto, segurança e modernidade, ideal para quem busca qualidade de vida numa zona bem servida e de fácil acesso. Não perca esta oportunidade de viver num espaço pensado ao pormenor para o seu bem-estar! Agende já a sua visita! Entre em contato agora mesmo: Helena Mendes 962878342 Vila Azul Imobiliária
AMI: 12024
Ref. Externa: 12607005
Id: 1580924
Inicie sessão para guardar este imóvel e aceder à sua lista de favoritos em qualquer dispositivo.
Estes agentes são especialistas nesta zona:
Inicie sessão para ocultar este imóvel das suas pesquisas e manter a sua lista de resultados organizada.
Guardar favoritos
Este imóvel foi guardados nos seus favoritos com sucesso.
Para poder guardar pesquisa deverá ter a sua sessão iniciada.
Caso não tenha uma conta, deverá criar uma.
A sua pesquisa foi guardada com sucesso!
© Copyright 2023 | CASACERTA. All rights reserved
Este site utiliza cookies. Ao navegar no site estará a consentir a sua utilização.
Para mais informações sobre os cookies pode consultar a
política de privacidade.