Lista
Comprar
Arrendar
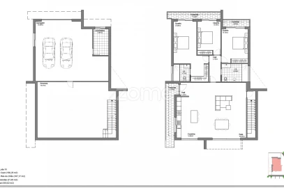
3 Quartos
2 WCs
Área útil : 202 m²
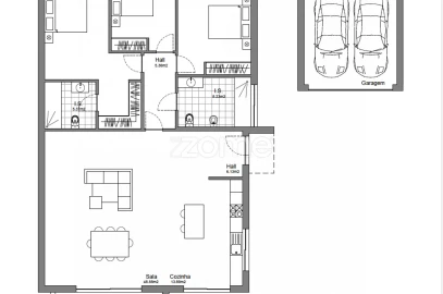
Apresentamos esta exclusiva moradia T3 de rés-do-chão, situada no prestigiado loteamento Casas de Várzea, em Lousada. Com um lote amplo, arquitetura moderna e acabamentos de qualidade, esta habitação foi concebida para proporcionar o máximo conforto, bem-estar e lazer, sendo a escolha ideal para famílias que procuram espaço e qualidade de vida em perfeita harmonia. Um lote generoso e exterior de excelência Implantada num lote de 845 m², esta moradia destaca-se pela amplitude do seu jardim privativo com piscina, um espaço perfeito para desfrutar de momentos de lazer, convívio em família e relaxamento, sempre em contacto com a natureza. Características da moradia A área social foi desenhada em conceito moderno, com uma ampla sala e cozinha em open space, que favorece a integração dos ambientes e a entrada de luz natural, criando um espaço acolhedor e funcional, ideal para o dia a dia ou para receber convidados. A zona privativa dispõe de três quartos confortáveis, sendo um deles uma elegante suíte com casa de banho privativa, que garante privacidade e comodidade. Para maior funcionalidade, existe ainda uma segunda casa de banho completa, que serve os restantes quartos e áreas comuns. Ao nível de apoio, esta moradia conta com garagem e lavandaria, oferecendo praticidade e soluções organizativas que respondem às necessidades de uma vida familiar dinâmica. Conforto e modernidade Com linhas arquitetónicas contemporâneas e acabamentos de qualidade, esta habitação conjuga design e funcionalidade. O layout térreo garante fluidez na circulação e acessibilidade, tornando esta moradia adequada a diferentes estilos de vida. Localização estratégica Localizada numa zona residencial calma em Lousada, esta moradia beneficia de rápidos acessos à A4 e às principais vias da Área Metropolitana do Porto. Nas proximidades, é possível encontrar escolas, comércio, serviços e o prestigiado Complexo Desportivo de Lousada, referência nacional pela sua diversidade de opções desportivas e de lazer. Casas de Várzea - viver com qualidade Integrada num projeto residencial moderno e harmonioso, esta moradia conjuga áreas interiores confortáveis com um exterior privilegiado, proporcionando um estilo de vida equilibrado, confortável e seguro. Previsão de conclusão: dezembro de 2026 Agende já a sua visita e descubra como esta moradia pode ser o lar dos seus sonhos, no coração de Lousada!
AMI: 19806
Ref. Externa: PG-BB-M-707
Id: 1475841
Inicie sessão para guardar este imóvel e aceder à sua lista de favoritos em qualquer dispositivo.
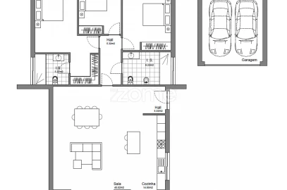
3 Quartos
2 WCs
Área bruta : 202 m²
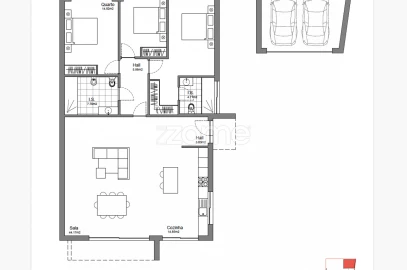
Casas da Várzea Um novo espaço residencial nasce em Lousada, composto por moradias individuais onde se poderá escolher desde moradias térreas a moradias com cave e piscina. O loteamento foi pensado para oferecer privacidade, conforto e bem-estar. A sua localização em zona calma, privilegia o descanso e boa convivência. Todos os serviços e comércio estão a 3 minutos de distância, no centro da Vila de Lousada. As moradias As plantas simples e funcionais convidam a uma vivência tranquila e confortável. Compostas por zonas distintas, a área mais privativa comtempla uma suite (com closet e wc) e dois quartos apoiados por um wc, em que todos os quartos dispõem de roupeiros embutidos. A área social descreve-se em conceito de open-space e amplas dimensões com cozinha (mobilada e equipada), sala de estar e sala de jantar. O exterior As variações do projecto possibilitam moradias com garagens para duas viaturas e lavandaria em anexo à habitação ou moradias com dois pisos (cave e piso), sendo a cave destinada ao aparcamento de viaturas, lavandaria e amplos arrumos. A variação da piscina pode estar em ambas as soluções. O logradouro envolvente às habitações possibilita ajardinamentos. Esta é uma das moradias térreas com piscina que pode tornar o seu sonho realidade. Venha conhecer. ComprarCasa é uma Rede Imobiliária integrada exclusivamente por associados da APEMIP (Associação dos Profissionais e Empresas de Mediação Imobiliária de Portugal), garantia de profissionalismo e de protecção dos direitos dos consumidores e utilizadores. A ComprarCasa Rede Imobiliária da APEMIP, resulta de um acordo de colaboração, celebrado em Junho de 2004, entre a APEMIP e a UCI (União de Créditos Imobiliários - instituição financeira especialista na concessão de crédito à habitação a particulares, através dos profissionais do sector imobiliário). A ComprarCasa iniciou a sua actividade comercial em Agosto de 2004, com a missão de Ser a Maior e Melhor Rede Imobiliária Nacional, oferecendo múltiplos serviços a mediadores imobiliários, baseados no conceito de marca comum, possibilitando e potenciando negócios nomeadamente para si, que pretende vender, comprar, arrendar ou trespassar um determinado imóvel. Com loja em Lousada, a IMOCERTA, faz parte da Rede ComprarCasa desde de Outubro de 2016. Na Mediação Imobiliária desde 2008, a IMOCERTA já ajudou imensas famílias a concretizar os seus sonhos, tanto na venda como na compra dos seus imóveis, para além de as apoiar na obtenção de crédito habitação, junto de instituições financeiras. Com a entrada em vigor do Decreto- Lei nº 81-C /2017 de 7 de Julho, que aprova o regime jurídico que estabelece os requisitos de acesso e de exercício da actividade de intermediário de crédito e de prestação de serviços de consultoria, e do Aviso do Banco de Portugal nº 6/2017, a ComprarCasa IMOCERTA (LA & EC, Soc. Med. Imobiliária, Lda), para além de ser uma Empresa de Mediação Imobiliária (Licença AMI 8359), passou também a ser um Intermediário de Crédito autorizado pelo Banco de Portugal com o número de registo 2124, ajudando os seus clientes junto das várias entidades bancárias. Na compra ou venda, procure a ComprarCasa IMOCERTA. ComprarCasa. A melhor forma de encontrar a casa ideal.
AMI: 8359
Ref. Externa: 365/M/03246
Id: 1474142
Inicie sessão para guardar este imóvel e aceder à sua lista de favoritos em qualquer dispositivo.
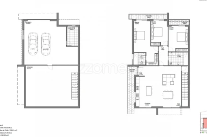
3 Quartos
Área útil : 209 m²
Moradia V3 em Nogueira, Lousada – Excelente Oportunidade! Apresentamos esta elegante moradia V3, composta por rés-do-chão e primeiro andar, situada numa zona tranquila de Nogueira, Lousada, ideal para quem procura conforto, qualidade e funcionalidade no dia a dia. Características principais: Cozinha totalmente equipada, moderna e funcional 3 casas de banho, incluindo 1 suíte com grande conforto 3 quartos com roupeiros embutidos, garantindo ótima arrumação Sistema de ar condicionado por conduta, oferecendo climatização eficiente e discreta em toda a casa Áreas amplas, luminosas e bem distribuídas Construção recente, com materiais de qualidade e acabamentos cuidados Esta moradia combina o melhor do conforto moderno com um ambiente acolhedor e agradável, ideal para famílias que valorizam bem-estar e localização conveniente. Localização: Inserida numa zona calma de Nogueira, com bons acessos, próxima de comércio, serviços e escolas, proporcionando um estilo de vida prático e equilibrado. Agende já a sua visita e venha conhecer a sua nova casa!
AMI: 7953
Ref. Externa: vas1411
Id: 1471301
Inicie sessão para guardar este imóvel e aceder à sua lista de favoritos em qualquer dispositivo.
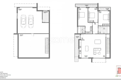
3 Quartos
2 WCs
Área bruta : 341 m²
Casas da Várzea Um novo espaço residencial nasce em Lousada, composto por moradias individuais onde se poderá escolher desde moradias térreas a moradias com cave e piscina. O loteamento foi pensado para oferecer privacidade, conforto e bem-estar. A sua localização em zona calma, privilegia o descanso e boa convivência. Todos os serviços e comércio estão a 3 minutos de distância, no centro da Vila de Lousada. As moradias As plantas simples e funcionais convidam a uma vivência tranquila e confortável. Compostas por zonas distintas, a área mais privativa comtempla uma suite (com closet e wc) e dois quartos apoiados por um wc, em que todos os quartos dispõem de roupeiros embutidos. A área social descreve-se em conceito de open-space e amplas dimensões com cozinha (mobilada e equipada), sala de estar e sala de jantar. O exterior As variações do projecto possibilitam moradias com garagens para duas viaturas e lavandaria em anexo à habitação ou moradias com dois pisos (cave e piso), sendo a cave destinada ao aparcamento de viaturas, lavandaria e amplos arrumos. A variação da piscina pode estar em ambas as soluções. O logradouro envolvente às habitações possibilita ajardinamentos. Esta é uma das moradias com cave e piso que pode tornar o seu sonho realidade. Venha conhecer. ComprarCasa é uma Rede Imobiliária integrada exclusivamente por associados da APEMIP (Associação dos Profissionais e Empresas de Mediação Imobiliária de Portugal), garantia de profissionalismo e de protecção dos direitos dos consumidores e utilizadores. A ComprarCasa Rede Imobiliária da APEMIP, resulta de um acordo de colaboração, celebrado em Junho de 2004, entre a APEMIP e a UCI (União de Créditos Imobiliários - instituição financeira especialista na concessão de crédito à habitação a particulares, através dos profissionais do sector imobiliário). A ComprarCasa iniciou a sua actividade comercial em Agosto de 2004, com a missão de Ser a Maior e Melhor Rede Imobiliária Nacional, oferecendo múltiplos serviços a mediadores imobiliários, baseados no conceito de marca comum, possibilitando e potenciando negócios nomeadamente para si, que pretende vender, comprar, arrendar ou trespassar um determinado imóvel. Com loja em Lousada, a IMOCERTA, faz parte da Rede ComprarCasa desde de Outubro de 2016. Na Mediação Imobiliária desde 2008, a IMOCERTA já ajudou imensas famílias a concretizar os seus sonhos, tanto na venda como na compra dos seus imóveis, para além de as apoiar na obtenção de crédito habitação, junto de instituições financeiras. Com a entrada em vigor do Decreto- Lei nº 81-C /2017 de 7 de Julho, que aprova o regime jurídico que estabelece os requisitos de acesso e de exercício da actividade de intermediário de crédito e de prestação de serviços de consultoria, e do Aviso do Banco de Portugal nº 6/2017, a ComprarCasa IMOCERTA (LA & EC, Soc. Med. Imobiliária, Lda), para além de ser uma Empresa de Mediação Imobiliária (Licença AMI 8359), passou também a ser um Intermediário de Crédito autorizado pelo Banco de Portugal com o número de registo 2124, ajudando os seus clientes junto das várias entidades bancárias. Na compra ou venda, procure a ComprarCasa IMOCERTA. ComprarCasa. A melhor forma de encontrar a casa ideal.
AMI: 8359
Ref. Externa: 365/M/03244
Id: 1469613
Inicie sessão para guardar este imóvel e aceder à sua lista de favoritos em qualquer dispositivo.
3 Quartos
2 WCs
Área bruta : 341 m²
Casas da Várzea Um novo espaço residencial nasce em Lousada, composto por moradias individuais onde se poderá escolher desde moradias térreas a moradias com cave e piscina. O loteamento foi pensado para oferecer privacidade, conforto e bem-estar. A sua localização em zona calma, privilegia o descanso e boa convivência. Todos os serviços e comércio estão a 3 minutos de distância, no centro da Vila de Lousada. As moradias As plantas simples e funcionais convidam a uma vivência tranquila e confortável. Compostas por zonas distintas, a área mais privativa comtempla uma suite (com closet e wc) e dois quartos apoiados por um wc, em que todos os quartos dispõem de roupeiros embutidos. A área social descreve-se em conceito de open-space e amplas dimensões com cozinha (mobilada e equipada), sala de estar e sala de jantar. O exterior As variações do projecto possibilitam moradias com garagens para duas viaturas e lavandaria em anexo à habitação ou moradias com dois pisos (cave e piso), sendo a cave destinada ao aparcamento de viaturas, lavandaria e amplos arrumos. A variação da piscina pode estar em ambas as soluções. O logradouro envolvente às habitações possibilita ajardinamentos. Esta é uma das moradias com cave e piso que pode tornar o seu sonho realidade. Venha conhecer. ComprarCasa é uma Rede Imobiliária integrada exclusivamente por associados da APEMIP (Associação dos Profissionais e Empresas de Mediação Imobiliária de Portugal), garantia de profissionalismo e de protecção dos direitos dos consumidores e utilizadores. A ComprarCasa Rede Imobiliária da APEMIP, resulta de um acordo de colaboração, celebrado em Junho de 2004, entre a APEMIP e a UCI (União de Créditos Imobiliários - instituição financeira especialista na concessão de crédito à habitação a particulares, através dos profissionais do sector imobiliário). A ComprarCasa iniciou a sua actividade comercial em Agosto de 2004, com a missão de Ser a Maior e Melhor Rede Imobiliária Nacional, oferecendo múltiplos serviços a mediadores imobiliários, baseados no conceito de marca comum, possibilitando e potenciando negócios nomeadamente para si, que pretende vender, comprar, arrendar ou trespassar um determinado imóvel. Com loja em Lousada, a IMOCERTA, faz parte da Rede ComprarCasa desde de Outubro de 2016. Na Mediação Imobiliária desde 2008, a IMOCERTA já ajudou imensas famílias a concretizar os seus sonhos, tanto na venda como na compra dos seus imóveis, para além de as apoiar na obtenção de crédito habitação, junto de instituições financeiras. Com a entrada em vigor do Decreto- Lei nº 81-C /2017 de 7 de Julho, que aprova o regime jurídico que estabelece os requisitos de acesso e de exercício da actividade de intermediário de crédito e de prestação de serviços de consultoria, e do Aviso do Banco de Portugal nº 6/2017, a ComprarCasa IMOCERTA (LA & EC, Soc. Med. Imobiliária, Lda), para além de ser uma Empresa de Mediação Imobiliária (Licença AMI 8359), passou também a ser um Intermediário de Crédito autorizado pelo Banco de Portugal com o número de registo 2124, ajudando os seus clientes junto das várias entidades bancárias. Na compra ou venda, procure a ComprarCasa IMOCERTA. ComprarCasa. A melhor forma de encontrar a casa ideal.
AMI: 8359
Ref. Externa: 365/M/03245
Id: 1469612
Inicie sessão para guardar este imóvel e aceder à sua lista de favoritos em qualquer dispositivo.
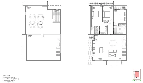
3 Quartos
2 WCs
Área bruta : 355 m²
Casas da Várzea Um novo espaço residencial nasce em Lousada, composto por moradias individuais onde se poderá escolher desde moradias térreas a moradias com cave e piscina. O loteamento foi pensado para oferecer privacidade, conforto e bem-estar. A sua localização em zona calma, privilegia o descanso e boa convivência. Todos os serviços e comércio estão a 3 minutos de distância, no centro da Vila de Lousada. As moradias As plantas simples e funcionais convidam a uma vivência tranquila e confortável. Compostas por zonas distintas, a área mais privativa comtempla uma suite (com closet e wc) e dois quartos apoiados por um wc, em que todos os quartos dispõem de roupeiros embutidos. A área social descreve-se em conceito de open-space e amplas dimensões com cozinha (mobilada e equipada), sala de estar e sala de jantar. O exterior As variações do projecto possibilitam moradias com garagens para duas viaturas e lavandaria em anexo à habitação ou moradias com dois pisos (cave e piso), sendo a cave destinada ao aparcamento de viaturas, lavandaria e amplos arrumos. A variação da piscina pode estar em ambas as soluções. O logradouro envolvente às habitações possibilita ajardinamentos. Esta é uma das moradias com cave, piso e piscina que pode tornar o seu sonho realidade. Venha conhecer. ComprarCasa é uma Rede Imobiliária integrada exclusivamente por associados da APEMIP (Associação dos Profissionais e Empresas de Mediação Imobiliária de Portugal), garantia de profissionalismo e de protecção dos direitos dos consumidores e utilizadores. A ComprarCasa Rede Imobiliária da APEMIP, resulta de um acordo de colaboração, celebrado em Junho de 2004, entre a APEMIP e a UCI (União de Créditos Imobiliários - instituição financeira especialista na concessão de crédito à habitação a particulares, através dos profissionais do sector imobiliário). A ComprarCasa iniciou a sua actividade comercial em Agosto de 2004, com a missão de Ser a Maior e Melhor Rede Imobiliária Nacional, oferecendo múltiplos serviços a mediadores imobiliários, baseados no conceito de marca comum, possibilitando e potenciando negócios nomeadamente para si, que pretende vender, comprar, arrendar ou trespassar um determinado imóvel. Com loja em Lousada, a IMOCERTA, faz parte da Rede ComprarCasa desde de Outubro de 2016. Na Mediação Imobiliária desde 2008, a IMOCERTA já ajudou imensas famílias a concretizar os seus sonhos, tanto na venda como na compra dos seus imóveis, para além de as apoiar na obtenção de crédito habitação, junto de instituições financeiras. Com a entrada em vigor do Decreto- Lei nº 81-C /2017 de 7 de Julho, que aprova o regime jurídico que estabelece os requisitos de acesso e de exercício da actividade de intermediário de crédito e de prestação de serviços de consultoria, e do Aviso do Banco de Portugal nº 6/2017, a ComprarCasa IMOCERTA (LA & EC, Soc. Med. Imobiliária, Lda), para além de ser uma Empresa de Mediação Imobiliária (Licença AMI 8359), passou também a ser um Intermediário de Crédito autorizado pelo Banco de Portugal com o número de registo 2124, ajudando os seus clientes junto das várias entidades bancárias. Na compra ou venda, procure a ComprarCasa IMOCERTA. ComprarCasa. A melhor forma de encontrar a casa ideal.
AMI: 8359
Ref. Externa: 365/M/03243
Id: 1469611
Inicie sessão para guardar este imóvel e aceder à sua lista de favoritos em qualquer dispositivo.
3 Quartos
2 WCs
Área bruta : 375 m²
Casas da Várzea Um novo espaço residencial nasce em Lousada, composto por moradias individuais onde se poderá escolher desde moradias térreas a moradias com cave e piscina. O loteamento foi pensado para oferecer privacidade, conforto e bem-estar. A sua localização em zona calma, privilegia o descanso e boa convivência. Todos os serviços e comércio estão a 3 minutos de distância, no centro da Vila de Lousada. As moradias As plantas simples e funcionais convidam a uma vivência tranquila e confortável. Compostas por zonas distintas, a área mais privativa comtempla uma suite (com closet e wc) e dois quartos apoiados por um wc, em que todos os quartos dispõem de roupeiros embutidos. A área social descreve-se em conceito de open-space e amplas dimensões com cozinha (mobilada e equipada), sala de estar e sala de jantar. O exterior As variações do projecto possibilitam moradias com garagens para duas viaturas e lavandaria em anexo à habitação ou moradias com dois pisos (cave e piso), sendo a cave destinada ao aparcamento de viaturas, lavandaria e amplos arrumos. A variação da piscina pode estar em ambas as soluções. O logradouro envolvente às habitações possibilita ajardinamentos. Esta é uma das moradias com cave, piso e piscina que pode tornar o seu sonho realidade. Venha conhecer. ComprarCasa é uma Rede Imobiliária integrada exclusivamente por associados da APEMIP (Associação dos Profissionais e Empresas de Mediação Imobiliária de Portugal), garantia de profissionalismo e de protecção dos direitos dos consumidores e utilizadores. A ComprarCasa Rede Imobiliária da APEMIP, resulta de um acordo de colaboração, celebrado em Junho de 2004, entre a APEMIP e a UCI (União de Créditos Imobiliários - instituição financeira especialista na concessão de crédito à habitação a particulares, através dos profissionais do sector imobiliário). A ComprarCasa iniciou a sua actividade comercial em Agosto de 2004, com a missão de Ser a Maior e Melhor Rede Imobiliária Nacional, oferecendo múltiplos serviços a mediadores imobiliários, baseados no conceito de marca comum, possibilitando e potenciando negócios nomeadamente para si, que pretende vender, comprar, arrendar ou trespassar um determinado imóvel. Com loja em Lousada, a IMOCERTA, faz parte da Rede ComprarCasa desde de Outubro de 2016. Na Mediação Imobiliária desde 2008, a IMOCERTA já ajudou imensas famílias a concretizar os seus sonhos, tanto na venda como na compra dos seus imóveis, para além de as apoiar na obtenção de crédito habitação, junto de instituições financeiras. Com a entrada em vigor do Decreto- Lei nº 81-C /2017 de 7 de Julho, que aprova o regime jurídico que estabelece os requisitos de acesso e de exercício da actividade de intermediário de crédito e de prestação de serviços de consultoria, e do Aviso do Banco de Portugal nº 6/2017, a ComprarCasa IMOCERTA (LA & EC, Soc. Med. Imobiliária, Lda), para além de ser uma Empresa de Mediação Imobiliária (Licença AMI 8359), passou também a ser um Intermediário de Crédito autorizado pelo Banco de Portugal com o número de registo 2124, ajudando os seus clientes junto das várias entidades bancárias. Na compra ou venda, procure a ComprarCasa IMOCERTA. ComprarCasa. A melhor forma de encontrar a casa ideal.
AMI: 8359
Ref. Externa: 365/M/03240
Id: 1469610
Inicie sessão para guardar este imóvel e aceder à sua lista de favoritos em qualquer dispositivo.
3 Quartos
2 WCs
Área bruta : 319 m²
Identificação do imóvel: ZMPT581422Moradia T3 de apenas 2 pisos, integrada num loteamento moderno (Casas da Várzea) em Lousada. Um projeto único na cidade, que alia qualidade com funcionalidade, combinando vários tipos de moradias.As moradias de 2 pisos contam com lotes entre os 495 m2 e os 860 m2, apresentando o seguinte layout interior:• Piso térreo:• Sala espaçosa em open space com cozinha integrada, com cerca de 60m2.• Suíte com closet e casa de banho privativa• Dois quartos com apoio de casa de banho completa.• Piso Inferior:• Garagem ampla• Lavandaria fechada• Sala multifunções com 60m2O imóvel beneficia ainda de jardim privativo ou pátio exterior, tendo alguns dos imóveis a possibilidade de contemplar piscina.LocalizaçãoContinente Lousada – 2.5kmPingo Doce Lousada – 2.5kmEscola Básica Lousada – 2.6kmHospital de Lousada – 3kmParedes – 9kmPaços de Ferreira – 11kmPorto – 40km3 razões para comprar com a Zome+ acompanhamentoCom uma preparação e experiência única no mercado imobiliário, os consultores Zome põem toda a sua dedicação em dar-lhe o melhor acompanhamento, orientando-o com a máxima confiança, na direção certa das suas necessidades e ambições.Daqui para a frente, vamos criar uma relação próxima e escutar com atenção as suas expectativas, porque a nossa prioridade é a sua felicidade! Porque é importante que sinta que está acompanhado, e que estamos consigo sempre.+ simplesOs consultores Zome têm uma formação única no mercado, ancorada na partilha de experiência prática entre profissionais e fortalecida pelo conhecimento de neurociência aplicada que lhes permite simplificar e tornar mais eficaz a sua experiência imobiliária.Deixe para trás os pesadelos burocráticos porque na Zome encontra o apoio total de uma equipa experiente e multidisciplinar que lhe dá suporte prático em todos os aspetos fundamentais, para que a sua experiência imobiliária supere as expectativas.+ felizO nosso maior valor é entregar-lhe felicidade!Liberte-se de preocupações e ganhe o tempo de qualidade que necessita para se dedicar ao que lhe faz mais feliz.Agimos diariamente para trazer mais valor à sua vida com o aconselhamento fiável de que precisa para, juntos, conseguirmos atingir os melhores resultados.Com a Zome nunca vai estar perdido ou desacompanhado e encontrará algo que não tem preço: a sua máxima tranquilidade!É assim que se vai sentir ao longo de toda a experiência: Tranquilo, seguro, confortável e... FELIZ!Notas:1. Caso seja um consultor imobiliário, este imóvel está disponível para partilha de negócio. Não hesite em apresentar aos seus clientes compradores e fale connosco para agendar a sua visita.2. Para maior facilidade na identificação deste imóvel, por favor, refira o respetivo ID ZMPT ou o respetivo agente que lhe tenha enviado a sugestão.
AMI: 17432
Ref. Externa: ZMPT581422
Id: 1414296
Inicie sessão para guardar este imóvel e aceder à sua lista de favoritos em qualquer dispositivo.
3 Quartos
2 WCs
Área bruta : 333 m²
Identificação do imóvel: ZMPT581420Moradia T3 de apenas 2 pisos, integrada num loteamento moderno (Casas da Várzea) em Lousada. Um projeto único na cidade, que alia qualidade com funcionalidade, combinando vários tipos de moradias.As moradias de 2 pisos contam com lotes entre os 495 m2 e os 860 m2, apresentando o seguinte layout interior:• Piso térreo:• Sala espaçosa em open space com cozinha integrada, com cerca de 60m2.• Suíte com closet e casa de banho privativa• Dois quartos com apoio de casa de banho completa.• Piso Inferior:• Garagem ampla• Lavandaria fechada• Sala multifunções com 60m2O imóvel beneficia ainda de jardim privativo ou pátio exterior, tendo alguns dos imóveis a possibilidade de contemplar piscina.LocalizaçãoContinente Lousada – 2.5kmPingo Doce Lousada – 2.5kmEscola Básica Lousada – 2.6kmHospital de Lousada – 3kmParedes – 9kmPaços de Ferreira – 11kmPorto – 40km3 razões para comprar com a Zome+ acompanhamentoCom uma preparação e experiência única no mercado imobiliário, os consultores Zome põem toda a sua dedicação em dar-lhe o melhor acompanhamento, orientando-o com a máxima confiança, na direção certa das suas necessidades e ambições.Daqui para a frente, vamos criar uma relação próxima e escutar com atenção as suas expectativas, porque a nossa prioridade é a sua felicidade! Porque é importante que sinta que está acompanhado, e que estamos consigo sempre.+ simplesOs consultores Zome têm uma formação única no mercado, ancorada na partilha de experiência prática entre profissionais e fortalecida pelo conhecimento de neurociência aplicada que lhes permite simplificar e tornar mais eficaz a sua experiência imobiliária.Deixe para trás os pesadelos burocráticos porque na Zome encontra o apoio total de uma equipa experiente e multidisciplinar que lhe dá suporte prático em todos os aspetos fundamentais, para que a sua experiência imobiliária supere as expectativas.+ felizO nosso maior valor é entregar-lhe felicidade!Liberte-se de preocupações e ganhe o tempo de qualidade que necessita para se dedicar ao que lhe faz mais feliz.Agimos diariamente para trazer mais valor à sua vida com o aconselhamento fiável de que precisa para, juntos, conseguirmos atingir os melhores resultados.Com a Zome nunca vai estar perdido ou desacompanhado e encontrará algo que não tem preço: a sua máxima tranquilidade!É assim que se vai sentir ao longo de toda a experiência: Tranquilo, seguro, confortável e... FELIZ!Notas:1. Caso seja um consultor imobiliário, este imóvel está disponível para partilha de negócio. Não hesite em apresentar aos seus clientes compradores e fale connosco para agendar a sua visita.2. Para maior facilidade na identificação deste imóvel, por favor, refira o respetivo ID ZMPT ou o respetivo agente que lhe tenha enviado a sugestão.
AMI: 17432
Ref. Externa: ZMPT581420
Id: 1414295
Inicie sessão para guardar este imóvel e aceder à sua lista de favoritos em qualquer dispositivo.
3 Quartos
2 WCs
Área bruta : 319 m²
Identificação do imóvel: ZMPT581421Moradia T3 de apenas 2 pisos, integrada num loteamento moderno (Casas da Várzea) em Lousada. Um projeto único na cidade, que alia qualidade com funcionalidade, combinando vários tipos de moradias.As moradias de 2 pisos contam com lotes entre os 495 m2 e os 860 m2, apresentando o seguinte layout interior:• Piso térreo:• Sala espaçosa em open space com cozinha integrada, com cerca de 60m2.• Suíte com closet e casa de banho privativa• Dois quartos com apoio de casa de banho completa.• Piso Inferior:• Garagem ampla• Lavandaria fechada• Sala multifunções com 60m2O imóvel beneficia ainda de jardim privativo ou pátio exterior, tendo alguns dos imóveis a possibilidade de contemplar piscina.LocalizaçãoContinente Lousada – 2.5kmPingo Doce Lousada – 2.5kmEscola Básica Lousada – 2.6kmHospital de Lousada – 3kmParedes – 9kmPaços de Ferreira – 11kmPorto – 40km3 razões para comprar com a Zome+ acompanhamentoCom uma preparação e experiência única no mercado imobiliário, os consultores Zome põem toda a sua dedicação em dar-lhe o melhor acompanhamento, orientando-o com a máxima confiança, na direção certa das suas necessidades e ambições.Daqui para a frente, vamos criar uma relação próxima e escutar com atenção as suas expectativas, porque a nossa prioridade é a sua felicidade! Porque é importante que sinta que está acompanhado, e que estamos consigo sempre.+ simplesOs consultores Zome têm uma formação única no mercado, ancorada na partilha de experiência prática entre profissionais e fortalecida pelo conhecimento de neurociência aplicada que lhes permite simplificar e tornar mais eficaz a sua experiência imobiliária.Deixe para trás os pesadelos burocráticos porque na Zome encontra o apoio total de uma equipa experiente e multidisciplinar que lhe dá suporte prático em todos os aspetos fundamentais, para que a sua experiência imobiliária supere as expectativas.+ felizO nosso maior valor é entregar-lhe felicidade!Liberte-se de preocupações e ganhe o tempo de qualidade que necessita para se dedicar ao que lhe faz mais feliz.Agimos diariamente para trazer mais valor à sua vida com o aconselhamento fiável de que precisa para, juntos, conseguirmos atingir os melhores resultados.Com a Zome nunca vai estar perdido ou desacompanhado e encontrará algo que não tem preço: a sua máxima tranquilidade!É assim que se vai sentir ao longo de toda a experiência: Tranquilo, seguro, confortável e... FELIZ!Notas:1. Caso seja um consultor imobiliário, este imóvel está disponível para partilha de negócio. Não hesite em apresentar aos seus clientes compradores e fale connosco para agendar a sua visita.2. Para maior facilidade na identificação deste imóvel, por favor, refira o respetivo ID ZMPT ou o respetivo agente que lhe tenha enviado a sugestão.
AMI: 17432
Ref. Externa: ZMPT581421
Id: 1414294
Inicie sessão para guardar este imóvel e aceder à sua lista de favoritos em qualquer dispositivo.
3 Quartos
2 WCs
Área bruta : 151 m²
Identificação do imóvel: ZMPT581419Moradia térrea T3, integrada num loteamento moderno (Casas da Várzea) em Lousada. Um projeto único na cidade, que alia qualidade com funcionalidade, combinando vários tipos de moradias.As moradias térreas contam com lotes entre os 459 m2 e os 845 m2, apresentando o seguinte layout interior:• Sala espaçosa em open space com cozinha integrada, com cerca de 60m2.• Suíte com closet e casa de banho privativa• Dois quartos com apoio de casa de banho completa.O imóvel conta com garagem fechada para 2 carros e lavandaria, beneficiando ainda de jardim privativo ou pátio exterior, tendo alguns dos imóveis a possibilidade de contemplar piscina.LocalizaçãoContinente Lousada – 2.5kmPingo Doce Lousada – 2.5kmEscola Básica Lousada – 2.6kmHospital de Lousada – 3kmParedes – 9kmPaços de Ferreira – 11kmPorto – 40km3 razões para comprar com a Zome+ acompanhamentoCom uma preparação e experiência única no mercado imobiliário, os consultores Zome põem toda a sua dedicação em dar-lhe o melhor acompanhamento, orientando-o com a máxima confiança, na direção certa das suas necessidades e ambições.Daqui para a frente, vamos criar uma relação próxima e escutar com atenção as suas expectativas, porque a nossa prioridade é a sua felicidade! Porque é importante que sinta que está acompanhado, e que estamos consigo sempre.+ simplesOs consultores Zome têm uma formação única no mercado, ancorada na partilha de experiência prática entre profissionais e fortalecida pelo conhecimento de neurociência aplicada que lhes permite simplificar e tornar mais eficaz a sua experiência imobiliária.Deixe para trás os pesadelos burocráticos porque na Zome encontra o apoio total de uma equipa experiente e multidisciplinar que lhe dá suporte prático em todos os aspetos fundamentais, para que a sua experiência imobiliária supere as expectativas.+ felizO nosso maior valor é entregar-lhe felicidade!Liberte-se de preocupações e ganhe o tempo de qualidade que necessita para se dedicar ao que lhe faz mais feliz.Agimos diariamente para trazer mais valor à sua vida com o aconselhamento fiável de que precisa para, juntos, conseguirmos atingir os melhores resultados.Com a Zome nunca vai estar perdido ou desacompanhado e encontrará algo que não tem preço: a sua máxima tranquilidade!É assim que se vai sentir ao longo de toda a experiência: Tranquilo, seguro, confortável e... FELIZ!Notas:1. Caso seja um consultor imobiliário, este imóvel está disponível para partilha de negócio. Não hesite em apresentar aos seus clientes compradores e fale connosco para agendar a sua visita.2. Para maior facilidade na identificação deste imóvel, por favor, refira o respetivo ID ZMPT ou o respetivo agente que lhe tenha enviado a sugestão.
AMI: 17432
Ref. Externa: ZMPT581419
Id: 1414293
Inicie sessão para guardar este imóvel e aceder à sua lista de favoritos em qualquer dispositivo.
3 Quartos
2 WCs
Área bruta : 320 m²
Identificação do imóvel: ZMPT581417Moradia T3 de apenas 2 pisos, integrada num loteamento moderno (Casas da Várzea) em Lousada. Um projeto único na cidade, que alia qualidade com funcionalidade, combinando vários tipos de moradias.As moradias de 2 pisos contam com lotes entre os 495 m2 e os 860 m2, apresentando o seguinte layout interior:• Piso térreo:• Sala espaçosa em open space com cozinha integrada, com cerca de 60m2.• Suíte com closet e casa de banho privativa• Dois quartos com apoio de casa de banho completa.• Piso Inferior:• Garagem ampla• Lavandaria fechada• Sala multifunções com 60m2O imóvel beneficia ainda de jardim privativo ou pátio exterior, tendo alguns dos imóveis a possibilidade de contemplar piscina.LocalizaçãoContinente Lousada – 2.5kmPingo Doce Lousada – 2.5kmEscola Básica Lousada – 2.6kmHospital de Lousada – 3kmParedes – 9kmPaços de Ferreira – 11kmPorto – 40km3 razões para comprar com a Zome+ acompanhamentoCom uma preparação e experiência única no mercado imobiliário, os consultores Zome põem toda a sua dedicação em dar-lhe o melhor acompanhamento, orientando-o com a máxima confiança, na direção certa das suas necessidades e ambições.Daqui para a frente, vamos criar uma relação próxima e escutar com atenção as suas expectativas, porque a nossa prioridade é a sua felicidade! Porque é importante que sinta que está acompanhado, e que estamos consigo sempre.+ simplesOs consultores Zome têm uma formação única no mercado, ancorada na partilha de experiência prática entre profissionais e fortalecida pelo conhecimento de neurociência aplicada que lhes permite simplificar e tornar mais eficaz a sua experiência imobiliária.Deixe para trás os pesadelos burocráticos porque na Zome encontra o apoio total de uma equipa experiente e multidisciplinar que lhe dá suporte prático em todos os aspetos fundamentais, para que a sua experiência imobiliária supere as expectativas.+ felizO nosso maior valor é entregar-lhe felicidade!Liberte-se de preocupações e ganhe o tempo de qualidade que necessita para se dedicar ao que lhe faz mais feliz.Agimos diariamente para trazer mais valor à sua vida com o aconselhamento fiável de que precisa para, juntos, conseguirmos atingir os melhores resultados.Com a Zome nunca vai estar perdido ou desacompanhado e encontrará algo que não tem preço: a sua máxima tranquilidade!É assim que se vai sentir ao longo de toda a experiência: Tranquilo, seguro, confortável e... FELIZ!Notas:1. Caso seja um consultor imobiliário, este imóvel está disponível para partilha de negócio. Não hesite em apresentar aos seus clientes compradores e fale connosco para agendar a sua visita.2. Para maior facilidade na identificação deste imóvel, por favor, refira o respetivo ID ZMPT ou o respetivo agente que lhe tenha enviado a sugestão.
AMI: 17432
Ref. Externa: ZMPT581417
Id: 1414290
Inicie sessão para guardar este imóvel e aceder à sua lista de favoritos em qualquer dispositivo.
3 Quartos
2 WCs
Área bruta : 320 m²
Identificação do imóvel: ZMPT581418Moradia T3 de apenas 2 pisos, integrada num loteamento moderno (Casas da Várzea) em Lousada. Um projeto único na cidade, que combina a qualidade com funcionalidade, combinando vários tipos de moradias.As moradias de 2 pisos contam com lotes entre os 495 m2 e os 860 m2, apresentando o seguinte layout interior:• Piso térreo:• Sala espaçosa em open space com cozinha integrada, com cerca de 60m2.• Suíte com closet e casa de banho privativa• Dois quartos com apoio de casa de banho completa.• Piso Inferior:• Garagem ampla• Lavandaria fechada• Sala multifunções com 60m2O imóvel beneficia ainda de jardim privativo ou pátio exterior, tendo alguns dos imóveis a possibilidade de contemplar piscina.LocalizaçãoContinente Lousada – 2.5kmPingo Doce Lousada – 2.5kmEscola Básica Lousada – 2.6kmHospital de Lousada – 3kmParedes – 9kmPaços de Ferreira – 11kmPorto – 40km3 razões para comprar com a Zome+ acompanhamentoCom uma preparação e experiência única no mercado imobiliário, os consultores Zome põem toda a sua dedicação em dar-lhe o melhor acompanhamento, orientando-o com a máxima confiança, na direção certa das suas necessidades e ambições.Daqui para a frente, vamos criar uma relação próxima e escutar com atenção as suas expectativas, porque a nossa prioridade é a sua felicidade! Porque é importante que sinta que está acompanhado, e que estamos consigo sempre.+ simplesOs consultores Zome têm uma formação única no mercado, ancorada na partilha de experiência prática entre profissionais e fortalecida pelo conhecimento de neurociência aplicada que lhes permite simplificar e tornar mais eficaz a sua experiência imobiliária.Deixe para trás os pesadelos burocráticos porque na Zome encontra o apoio total de uma equipa experiente e multidisciplinar que lhe dá suporte prático em todos os aspetos fundamentais, para que a sua experiência imobiliária supere as expectativas.+ felizO nosso maior valor é entregar-lhe felicidade!Liberte-se de preocupações e ganhe o tempo de qualidade que necessita para se dedicar ao que lhe faz mais feliz.Agimos diariamente para trazer mais valor à sua vida com o aconselhamento fiável de que precisa para, juntos, conseguirmos atingir os melhores resultados.Com a Zome nunca vai estar perdido ou desacompanhado e encontrará algo que não tem preço: a sua máxima tranquilidade!É assim que se vai sentir ao longo de toda a experiência: Tranquilo, seguro, confortável e... FELIZ!Notas:1. Caso seja um consultor imobiliário, este imóvel está disponível para partilha de negócio. Não hesite em apresentar aos seus clientes compradores e fale connosco para agendar a sua visita.2. Para maior facilidade na identificação deste imóvel, por favor, refira o respetivo ID ZMPT ou o respetivo agente que lhe tenha enviado a sugestão.
AMI: 17432
Ref. Externa: ZMPT581418
Id: 1414291
Inicie sessão para guardar este imóvel e aceder à sua lista de favoritos em qualquer dispositivo.
3 Quartos
2 WCs
Área bruta : 161 m²
Identificação do imóvel: ZMPT581416Moradia térrea T3, integrada num loteamento moderno (Casas da Várzea) em Lousada. Um projeto único na cidade, que alia qualidade com funcionalidade, combinando vários tipos de moradias.As moradias térreas contam com lotes entre os 459 m2 e os 845 m2, apresentando o seguinte layout interior:• Sala espaçosa em open space com cozinha integrada, com cerca de 60m2.• Suíte com closet e casa de banho privativa• Dois quartos com apoio de casa de banho completa.O imóvel conta com garagem fechada para 2 carros e lavandaria, beneficiando ainda de jardim privativo ou pátio exterior, tendo alguns dos imóveis a possibilidade de contemplar piscina.LocalizaçãoContinente Lousada – 2.5kmPingo Doce Lousada – 2.5kmEscola Básica Lousada – 2.6kmHospital de Lousada – 3kmParedes – 9kmPaços de Ferreira – 11kmPorto – 40km3 razões para comprar com a Zome+ acompanhamentoCom uma preparação e experiência única no mercado imobiliário, os consultores Zome põem toda a sua dedicação em dar-lhe o melhor acompanhamento, orientando-o com a máxima confiança, na direção certa das suas necessidades e ambições.Daqui para a frente, vamos criar uma relação próxima e escutar com atenção as suas expectativas, porque a nossa prioridade é a sua felicidade! Porque é importante que sinta que está acompanhado, e que estamos consigo sempre.+ simplesOs consultores Zome têm uma formação única no mercado, ancorada na partilha de experiência prática entre profissionais e fortalecida pelo conhecimento de neurociência aplicada que lhes permite simplificar e tornar mais eficaz a sua experiência imobiliária.Deixe para trás os pesadelos burocráticos porque na Zome encontra o apoio total de uma equipa experiente e multidisciplinar que lhe dá suporte prático em todos os aspetos fundamentais, para que a sua experiência imobiliária supere as expectativas.+ felizO nosso maior valor é entregar-lhe felicidade!Liberte-se de preocupações e ganhe o tempo de qualidade que necessita para se dedicar ao que lhe faz mais feliz.Agimos diariamente para trazer mais valor à sua vida com o aconselhamento fiável de que precisa para, juntos, conseguirmos atingir os melhores resultados.Com a Zome nunca vai estar perdido ou desacompanhado e encontrará algo que não tem preço: a sua máxima tranquilidade!É assim que se vai sentir ao longo de toda a experiência: Tranquilo, seguro, confortável e... FELIZ!Notas:1. Caso seja um consultor imobiliário, este imóvel está disponível para partilha de negócio. Não hesite em apresentar aos seus clientes compradores e fale connosco para agendar a sua visita.2. Para maior facilidade na identificação deste imóvel, por favor, refira o respetivo ID ZMPT ou o respetivo agente que lhe tenha enviado a sugestão.
AMI: 17432
Ref. Externa: ZMPT581416
Id: 1414292
Inicie sessão para guardar este imóvel e aceder à sua lista de favoritos em qualquer dispositivo.
3 Quartos
2 WCs
Área bruta : 161 m²
Identificação do imóvel: ZMPT581415Moradia térrea T3, integrada num loteamento moderno (Casas da Várzea) em Lousada. Um projeto único na cidade, que alia qualidade com funcionalidade, combinando vários tipos de moradias.As moradias térreas contam com lotes entre os 459 m2 e os 845 m2, apresentando o seguinte layout interior:• Sala espaçosa em open space com cozinha integrada, com cerca de 60m2.• Suíte com closet e casa de banho privativa• Dois quartos com apoio de casa de banho completa.O imóvel conta com garagem fechada para 2 carros e lavandaria, beneficiando ainda de jardim privativo ou pátio exterior, tendo alguns dos imóveis a possibilidade de contemplar piscina.LocalizaçãoContinente Lousada – 2.5kmPingo Doce Lousada – 2.5kmEscola Básica Lousada – 2.6kmHospital de Lousada – 3kmParedes – 9kmPaços de Ferreira – 11kmPorto – 40km3 razões para comprar com a Zome+ acompanhamentoCom uma preparação e experiência única no mercado imobiliário, os consultores Zome põem toda a sua dedicação em dar-lhe o melhor acompanhamento, orientando-o com a máxima confiança, na direção certa das suas necessidades e ambições.Daqui para a frente, vamos criar uma relação próxima e escutar com atenção as suas expectativas, porque a nossa prioridade é a sua felicidade! Porque é importante que sinta que está acompanhado, e que estamos consigo sempre.+ simplesOs consultores Zome têm uma formação única no mercado, ancorada na partilha de experiência prática entre profissionais e fortalecida pelo conhecimento de neurociência aplicada que lhes permite simplificar e tornar mais eficaz a sua experiência imobiliária.Deixe para trás os pesadelos burocráticos porque na Zome encontra o apoio total de uma equipa experiente e multidisciplinar que lhe dá suporte prático em todos os aspetos fundamentais, para que a sua experiência imobiliária supere as expectativas.+ felizO nosso maior valor é entregar-lhe felicidade!Liberte-se de preocupações e ganhe o tempo de qualidade que necessita para se dedicar ao que lhe faz mais feliz.Agimos diariamente para trazer mais valor à sua vida com o aconselhamento fiável de que precisa para, juntos, conseguirmos atingir os melhores resultados.Com a Zome nunca vai estar perdido ou desacompanhado e encontrará algo que não tem preço: a sua máxima tranquilidade!É assim que se vai sentir ao longo de toda a experiência: Tranquilo, seguro, confortável e... FELIZ!Notas:1. Caso seja um consultor imobiliário, este imóvel está disponível para partilha de negócio. Não hesite em apresentar aos seus clientes compradores e fale connosco para agendar a sua visita.2. Para maior facilidade na identificação deste imóvel, por favor, refira o respetivo ID ZMPT ou o respetivo agente que lhe tenha enviado a sugestão.
AMI: 17432
Ref. Externa: ZMPT581415
Id: 1414289
Inicie sessão para guardar este imóvel e aceder à sua lista de favoritos em qualquer dispositivo.
3 Quartos
2 WCs
Área bruta : 151 m²
Identificação do imóvel: ZMPT581414Moradia térrea T3, integrada num loteamento moderno (Casas da Várzea) em Lousada. Um projeto único na cidade, que alia qualidade com funcionalidade, combinando vários tipos de moradias.As moradias térreas contam com lotes entre os 459 m2 e os 845 m2, apresentando o seguinte layout interior:• Sala espaçosa em open space com cozinha integrada, com cerca de 60m2.• Suíte com closet e casa de banho privativa• Dois quartos com apoio de casa de banho completa.O imóvel conta com garagem fechada para 2 carros e lavandaria, beneficiando ainda de jardim privativo ou pátio exterior, tendo alguns dos imóveis a possibilidade de contemplar piscina.LocalizaçãoContinente Lousada – 2.5kmPingo Doce Lousada – 2.5kmEscola Básica Lousada – 2.6kmHospital de Lousada – 3kmParedes – 9kmPaços de Ferreira – 11kmPorto – 40km3 razões para comprar com a Zome+ acompanhamentoCom uma preparação e experiência única no mercado imobiliário, os consultores Zome põem toda a sua dedicação em dar-lhe o melhor acompanhamento, orientando-o com a máxima confiança, na direção certa das suas necessidades e ambições.Daqui para a frente, vamos criar uma relação próxima e escutar com atenção as suas expectativas, porque a nossa prioridade é a sua felicidade! Porque é importante que sinta que está acompanhado, e que estamos consigo sempre.+ simplesOs consultores Zome têm uma formação única no mercado, ancorada na partilha de experiência prática entre profissionais e fortalecida pelo conhecimento de neurociência aplicada que lhes permite simplificar e tornar mais eficaz a sua experiência imobiliária.Deixe para trás os pesadelos burocráticos porque na Zome encontra o apoio total de uma equipa experiente e multidisciplinar que lhe dá suporte prático em todos os aspetos fundamentais, para que a sua experiência imobiliária supere as expectativas.+ felizO nosso maior valor é entregar-lhe felicidade!Liberte-se de preocupações e ganhe o tempo de qualidade que necessita para se dedicar ao que lhe faz mais feliz.Agimos diariamente para trazer mais valor à sua vida com o aconselhamento fiável de que precisa para, juntos, conseguirmos atingir os melhores resultados.Com a Zome nunca vai estar perdido ou desacompanhado e encontrará algo que não tem preço: a sua máxima tranquilidade!É assim que se vai sentir ao longo de toda a experiência: Tranquilo, seguro, confortável e... FELIZ!Notas:1. Caso seja um consultor imobiliário, este imóvel está disponível para partilha de negócio. Não hesite em apresentar aos seus clientes compradores e fale connosco para agendar a sua visita.2. Para maior facilidade na identificação deste imóvel, por favor, refira o respetivo ID ZMPT ou o respetivo agente que lhe tenha enviado a sugestão.
AMI: 17432
Ref. Externa: ZMPT581414
Id: 1414288
Inicie sessão para guardar este imóvel e aceder à sua lista de favoritos em qualquer dispositivo.
3 Quartos
Área útil : 319 m²
Moradia T3 em Loteamento – LousadaDescubra a harmonia perfeita entre conforto, modernidade e tranquilidade neste loteamento exclusivo em Lousada. Principais Características: Tipologia T3 com layout funcional e luminoso Sala ampla em open space com cozinha totalmente integrada Suíte privativa, dois quartos adicionais e duas casas de banho Garagem fechada e lavandaria Jardim privativo ou pátio exterior, ideais para convívio e lazer Possibilidade de cave, garagem dupla ou piscina privativa em algumas unidadesSituada numa zona residencial calma, com excelentes acessos às principais vias . A poucos minutos de escolas, comércio, serviços e do Complexo Desportivo de Lousada.Arquitetura contemporânea, linhas modernas e acabamentos de qualidade superior.O loteamento foi pensado para oferecer privacidade, conforto e bem-estar, criando um ambiente perfeito para famílias que valorizam qualidade de vida.Casas de Várzea – Viver bem é viver aqui.Moradias T3 modernas, num ambiente seguro e harmonioso, pensadas para o seu conforto e o da sua família.
AMI: 20314
Ref. Externa: DSICTPV730
Id: 1414110
Inicie sessão para guardar este imóvel e aceder à sua lista de favoritos em qualquer dispositivo.
3 Quartos
Área bruta : 340 m²
Moradia em Banda T3 de 2 pisos em construção em Pias, LousadaBem-vindo às Casas da Várzea, um novo loteamento residencial pensado para quem procura qualidade de vida, conforto e modernidade num ambiente tranquilo e familiar.Localizado em Pias, Lousada, neste projeto exclusive cada habitação foi concebida para oferecer espaços amplos, luminosos e funcionais, aliados a materiais de elevada qualidade e soluções construtivas que garantem conforto durante todo o ano.Com zonas exteriores privativas, excelente exposição solar e uma envolvente residencial serena, as Casas da Várzea são o equilíbrio perfeito entre design moderno e bem-estar quotidiano.Constituição da moradia com Rés-do-chão + Cave:Cave:- Arrumos- Lavandaria- GaragemRés-do-chão:- Sala e Cozinha em Open Space com áreas generosas- Hall de circulação- 2 Quartos- Wc de apoio aos quartos- Suíte com closet e wc- Garagem e lavandariaExterior e Lazer- Varandas em todos os quartos e cozinha;- Pavimentos exteriores em cubo e lajetas de granito;- Iluminação exterior instalada;- Espaço exterior privativo, ideal para momentos de lazer.- Piscina incluída ou não conforme planta do imóvel .Localiza-se a:- 5 minutos do centro de Lousada;- 32 minutos do Aeroporto;- 10 minutos da entrada da A42.Finalização da moradia último trimestre de 2026.Referência: ASL25144Por sermos intermediários de crédito devidamente autorizados pelo Banco de Portugal (Reg. 2736), fazemos a gestão de todo o seu processo de financiamento, sempre com as melhores soluções de mercado.Porquê escolher a AS Imobiliária?Com mais de 16 anos no ramo imobiliário e milhares de famílias felizes, dispomos de 9 agências estrategicamente localizadas, para o servir com proximidade, corresponder à suas expectativas e ajudá-lo a adquirir a sua casa de sonho. Compromisso, Competência e Confiança são os nossos valores que entregamos aos nossos Clientes na hora de comprar, arrendar ou vender o seu imóvel.A nossa prioridade é a sua Felicidade!Na AS Imobiliária somos apaixonados por vender casas!Especialistas imobiliários em Vizela ; Guimarães ; Felgueiras ; Lousada ; Santo Tirso ; Barcelos ; São João da Madeira ; Porto ; Braga ; Trofa; Lisboa ;
AMI: 13249
Ref. Externa: ASL25144
Id: 1414093
Inicie sessão para guardar este imóvel e aceder à sua lista de favoritos em qualquer dispositivo.
3 Quartos
Área bruta : 202 m²
Moradia T3 de RC com piscina em construção em Pias, LousadaBem-vindo às Casas da Várzea, um novo loteamento residencial pensado para quem procura qualidade de vida, conforto e modernidade num ambiente tranquilo e familiar.Localizado em Pias, Lousada, neste projeto exclusive cada habitação foi concebida para oferecer espaços amplos, luminosos e funcionais, aliados a materiais de elevada qualidade e soluções construtivas que garantem conforto durante todo o ano.Com zonas exteriores privativas, excelente exposição solar e uma envolvente residencial serena, as Casas da Várzea são o equilíbrio perfeito entre design moderno e bem-estar quotidiano.Constituição da moradia:- Sala e Cozinha em Open Space com áreas generosas- Hall de circulação- 2 Quartos- Wc de apoio aos quartos- Suíte com closet e wc- Garagem e lavandariaExterior e Lazer- Pavimentos exteriores em cubo e lajetas de granito;- Iluminação exterior instalada;- Espaço exterior privativo, ideal para momentos de lazer.- Piscina incluída.Localiza-se a:- 5 minutos do centro de Lousada;- 32 minutos do Aeroporto;- 10 minutos da entrada da A42.Finalização da moradia último trimestre de 2026.Referência: ASL25145Por sermos intermediários de crédito devidamente autorizados pelo Banco de Portugal (Reg. 2736), fazemos a gestão de todo o seu processo de financiamento, sempre com as melhores soluções de mercado.Porquê escolher a AS Imobiliária?Com mais de 16 anos no ramo imobiliário e milhares de famílias felizes, dispomos de 9 agências estrategicamente localizadas, para o servir com proximidade, corresponder à suas expectativas e ajudá-lo a adquirir a sua casa de sonho. Compromisso, Competência e Confiança são os nossos valores que entregamos aos nossos Clientes na hora de comprar, arrendar ou vender o seu imóvel.A nossa prioridade é a sua Felicidade!Na AS Imobiliária somos apaixonados por vender casas!Especialistas imobiliários em Vizela ; Guimarães ; Felgueiras ; Lousada ; Santo Tirso ; Barcelos ; São João da Madeira ; Porto ; Braga ; Trofa; Lisboa ;
AMI: 13249
Ref. Externa: ASL25145
Id: 1414092
Inicie sessão para guardar este imóvel e aceder à sua lista de favoritos em qualquer dispositivo.
3 Quartos
Área bruta : 190 m²
Moradia em Banda T3 de RC em construção em Pias, LousadaBem-vindo às Casas da Várzea, um novo loteamento residencial pensado para quem procura qualidade de vida, conforto e modernidade num ambiente tranquilo e familiar.Localizado em Pias, Lousada, neste projeto exclusive cada habitação foi concebida para oferecer espaços amplos, luminosos e funcionais, aliados a materiais de elevada qualidade e soluções construtivas que garantem conforto durante todo o ano.Com zonas exteriores privativas, excelente exposição solar e uma envolvente residencial serena, as Casas da Várzea são o equilíbrio perfeito entre design moderno e bem-estar quotidiano.Constituição da moradia:- Sala e Cozinha em Open Space com áreas generosas- Hall de circulação- 2 Quartos- Wc de apoio aos quartos- Suíte com closet e wc- Garagem e lavandariaExterior e Lazer- Pavimentos exteriores em cubo e lajetas de granito;- Iluminação exterior instalada;- Espaço exterior privativo, ideal para momentos de lazer.- Piscina incluída ou não conforme planta do imóvel .Localiza-se a:- 5 minutos do centro de Lousada;- 32 minutos do Aeroporto;- 10 minutos da entrada da A42.Finalização da moradia último trimestre de 2026.Referência: ASL25143Por sermos intermediários de crédito devidamente autorizados pelo Banco de Portugal (Reg. 2736), fazemos a gestão de todo o seu processo de financiamento, sempre com as melhores soluções de mercado.Porquê escolher a AS Imobiliária?Com mais de 16 anos no ramo imobiliário e milhares de famílias felizes, dispomos de 9 agências estrategicamente localizadas, para o servir com proximidade, corresponder à suas expectativas e ajudá-lo a adquirir a sua casa de sonho. Compromisso, Competência e Confiança são os nossos valores que entregamos aos nossos Clientes na hora de comprar, arrendar ou vender o seu imóvel.A nossa prioridade é a sua Felicidade!Na AS Imobiliária somos apaixonados por vender casas!Especialistas imobiliários em Vizela ; Guimarães ; Felgueiras ; Lousada ; Santo Tirso ; Barcelos ; São João da Madeira ; Porto ; Braga ; Trofa; Lisboa ;
AMI: 13249
Ref. Externa: ASL25143
Id: 1414091
Inicie sessão para guardar este imóvel e aceder à sua lista de favoritos em qualquer dispositivo.
Estes agentes são especialistas nesta zona:
Inicie sessão para ocultar este imóvel das suas pesquisas e manter a sua lista de resultados organizada.
Guardar favoritos
Este imóvel foi guardados nos seus favoritos com sucesso.
Para poder guardar pesquisa deverá ter a sua sessão iniciada.
Caso não tenha uma conta, deverá criar uma.
A sua pesquisa foi guardada com sucesso!
© Copyright 2023 | CASACERTA. All rights reserved
Este site utiliza cookies. Ao navegar no site estará a consentir a sua utilização.
Para mais informações sobre os cookies pode consultar a
política de privacidade.