Lista
Comprar
Arrendar
6 Quartos
5 WCs
Área bruta : 297 m²
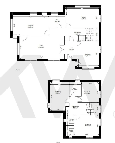
Localizada na Rua 25 de Abril, nº600, 4910-385, Vila Praia de Âncora, Caminha, esta moradia T6 apresenta uma oportunidade única para quem procura espaço, privacidade e potencial de investimento. Apesar de se encontrar em estado original, encontra-se habitável, oferecendo várias áreas de lazer exterior com varandas e um terraço com vista mar panorâmica. Cada piso possui entrada independente, pelo que não é possível aceder de um piso ao outro pelo interior, conferindo flexibilidade para diferentes usos, como habitação para familiares ou rendimento de arrendamento, embora a propriedade seja única. RESUMO: - Moradia T6 com 6 quartos e 5 WCs - Estado original, habitável, mas necessita de atualização - Duas salas amplas, três cozinhas (uma exterior) - Varandas e terraço com vista mar, área de estacionamento e garagem fechada - Entradas independentes para cada piso, oferecendo potencial de investimento - Certificação energética: C COMPOSIÇÃO E ÁREAS: - Área total do terreno: 500,0000 m² - Área de implantação do edifício: 157,0000 m² - Área bruta de construção: 297,0000 m² - Área bruta dependente: 157,0000 m² - Área bruta privativa: 140,0000 m² DISTRIBUIÇÃO: - 6 quartos (3 por piso), 5 WCs (2 por piso + 1 exterior), 2 salas, 3 cozinhas - Cada piso com entrada independente (não interligados internamente) CONFORTO E EQUIPAMENTO: - 2 lareiras (uma em cada piso) - Habitável, ideal para remodelação - Espaços amplos e luminosos - Estacionamento e garagem fechada - Varandas e terraço com vista mar EDIFÍCIO/EXTERIOR/FUNCIONALIDADE - Moradia independente em terreno generoso - Terraço e varandas com vista mar envolvente - Garagem fechada e estacionamento exterior - Espaços exteriores versáteis para jardim ou lazer - Estrutura sólida e bem distribuída LOCALIZAÇÃO E PRÓXIMIDADES: - Praia de Vila Praia de Âncora | Distância: ~2200 m - Acesso à EN13 | Distância: ~350 m - Acesso à A28 | Distância: ~350 m - Centro de Vila Praia de Âncora | Distância: ~1400 m - Supermercado Aldi | Distância: ~550 m - Estação de comboio | Distância: ~2400 m Notas relevantes Imóvel antigo, com potencial para remodelação e personalização, perfeito para quem procura uma moradia espaçosa com exteriores generosos, vista mar e possibilidade de rendimento em cada piso. O estado original permite que seja adaptada ao gosto do comprador, mantendo características tradicionais. Necessita de atualização em algumas áreas internas Entradas independentes para cada piso, ideal para arrendamento ou habitação familiar. Excelente exposição solar e localização estratégica. AGENDAR VISITA Não perca a oportunidade de conhecer esta moradia; agende a sua visita e descubra todo o potencial que oferece.
AMI: 23524
Ref. Externa: KWPT-028001
Id: 1680661
Inicie sessão para guardar este imóvel e aceder à sua lista de favoritos em qualquer dispositivo.
3 Quartos
4 WCs
Área bruta : 354 m²
Moradia T3 com vista mar em Âncora - Caminha A KW Alfa apresenta esta moradia na Rua do Sobrado em Âncora No seu rés do chão, a moradia – totalmente remodelada e modernizada – temos uma sala/cozinha em modo “open space”, com ligações para o jardim e varanda, nos quais é possível apreciar uma fantástica vista mar. A sua sala conta com uma lareira incorporada, cozinha moderna com fogão de lenha, idealizado para aquecimento central. Na cozinha temos também fogão a gás, contanto com o seu fornecimento através da rede. Neste espaço está instalado sistema de cortinas elétricas, iluminação led em todo o seu entorno, piso cerâmico de grandes dimensões, conjugado com piso flutuante de qualidade premium. Todas as janelas e portas deste piso são em alumínio da marca “cortizo” (com vidros duplos com rutura térmica). Os seus tetos falsos protegidos estão revestidos com lã de rocha. Neste piso existe uma casa de banho comum/social. No segundo andar temos três quartos ,uma casa de banho comum. Um dos seus quartos conta com casa de banho privativa (suite). Ainda podemos tirar proveito da vista mar, pois todos os quartos, voltados a poente, contam com uma varanda comum. Ainda nos quartos, temos roupeiros embutidos , estores elétricos e sistema de iluminação led. Já o piso inferior temos uma extensa garagem, lavandaria e área técnica. Temos também casa de banho com duche. Esta moradia foi construída no espaço de dois lotes, o que não lhe possibilitou apenas amplas áreas interiores, como um excecional espaço exterior e de jardim. A moradia tem duas entradas, está toda morada a pedra e o seu jardim conta com pré-instalação elétrica para piscina e churrasqueira… Nesta casa temos um sistema de aquecimento com bomba de calor e com possibilidade de colocação de caldeira a gás e painéis fotovoltaicos. Construção com parede dupla com isolamento térmico e caixa de ar. Não perca esta oportunidade numa zona em crescente valorização! Tem um imóvel para venda? Contacte-me! Se procura um imóvel com estas características ou até se é um consultor imobiliário, não hesite em contactar-me. Partilhamos negócios com todas as imobiliárias no mercado com Licença AMI num sistema de 50%-50%. Além disso: A Keller Williams assenta em princípios humanos e sociais que nos distinguem no setor imobiliário: Win-Win - ou não há acordo; Integridade - fazer o que está certo; Os clientes - estão sempre em primeiro lugar; Compromisso - em tudo; Comunicação - procurar entender primeiro; Criatividade - ideias antes dos resultados; Trabalho em equipa - em conjunto alcançamos mais; Ter confiança - começa com honestidade Sucesso - resultados evolvendo as pessoas
AMI: 23524
Ref. Externa: KWPT-004108
Id: 1671754
Inicie sessão para guardar este imóvel e aceder à sua lista de favoritos em qualquer dispositivo.
3 Quartos
3 WCs
Área útil : 122 m²
Moradia em banda T3 em fase final de construção. Destaque para o solário no último piso, jardim, varanda e garagem. Cozinha equipada com placa, forno, exaustor e micro ondas. Com ar condicionado, bomba de calor para águas sanitárias, estores elétricos e caixilharia com vidro duplo e corte térmico. Imóvel com excelente qualidade de acabamentos e localização numa zona de boa acessibilidade, com proximidade a todos os serviços essenciais e praias. TRATAMOS DO SEU CRÉDITO HABITAÇÃO POR SI. A Espoinvest - Mediação Imobiliária, Lda. dispõe de autorização para o exercício da atividade de intermediação de crédito com o n. º AUT - 0001876 emitida pelo banco de Portugal e encontra-se registado como intermediário de crédito vinculado. Fazemos a gestão de todo o processo de financiamento, sempre com as melhores condições de mercado e sem qualquer custo associado. Assim, não encontrará burocracias na compra da casa nova. SOMOS ESPECIALISTAS DE ZONA. Cada consultor imobiliário ERA é especializado num território e trabalha em regime full-time, o que lhe permite saber tudo sobre a sua zona ao ponto de fazer parte dessa vizinhança. TRABALHAMOS EM EQUIPA. Cada equipa de consultores imobiliários é apoiada por uma agência onde um consultor legal e financeiro trata de todos os processos administrativos para a compra e venda das casas e por uma estrutura de marketing nacional que garante a melhor divulgação de cada casa. *A informação disponibilizada não dispensa a sua confirmação, nem pode ser considerada vinculativa.
AMI: 8879
Ref. Externa: 251260023
Id: 1663558
Inicie sessão para guardar este imóvel e aceder à sua lista de favoritos em qualquer dispositivo.
2 Quartos
2 WCs
Área bruta : 220 m²
Moradia Térrea com piscina e vistas Mar, situada no concelho de Caminha. Toda a estrutura em betão térmico, revestido a capoto, piscina no terraço, possibilidade de efetuar mais um quarto com Wc no -1 (Cave) abrir para garagem. Possui cozinha equipada open space, sala, 2 quartos sendo 1 suite , 2 Wc sendo 1 suite. Piscina no Terraço e jardim. A moradia tem bons acessos, boa exposição solar, perto de todos os serviços e do acesso á A28. Possibilidade de ser personalizada, pois está em inicio de construção. Venha visitar! MITOS E REALIDADES - Sociedade de Mediação Imobiliária, Lda. Licença AMI - 11024 Empresa do setor imobiliário que atua no mercado de Arrendamento e Venda de Imóveis. Com um padrão de seriedade na prestação de serviços imobiliários, procura realizar bons negócios com eficiência, proporcionando assim, tranquilidade aos seus clientes. A nossa equipa de colaboradores é formada por profissionais experientes, com vasto conhecimento para sugerir as melhores alternativas. Além disso, dispomos de um sistema totalmente informatizado, o que permite uma maior agilidade na pesquisa e adequação do perfil do imóvel às solicitações do cliente. Apoiada pelo profissionalismo e seriedade, a MITOS está colocada entre as maiores imobiliárias de Viana do Castelo. #mitos #mitosimobiliaria #imobiliária #vianadocastelo #realestate
AMI: 11024
Ref. Externa: R991
Id: 1632476
Inicie sessão para guardar este imóvel e aceder à sua lista de favoritos em qualquer dispositivo.
3 Quartos
3 WCs
Área bruta : 225 m²
Moradia T3 em construção para venda em Vila Praia de Âncora, Caminha. Fantástica moradia de arquitetura moderna, com cozinha equipada e sala em openspace, três quartos um deles suite, três casas de banho, lavandaria, piscina e garagem fechada para dois automóveis. Imóvel equipado com bomba de calor para AQS, ar condicionado, vídeo porteiro e portões automáticos. Proximidade de comércios e serviços. Venha conhecer! MITOS E REALIDADES - Sociedade de Mediação Imobiliária, Lda. Licença AMI - 11024 Empresa do setor imobiliário que atua no mercado de Arrendamento e Venda de Imóveis. Com um padrão de seriedade na prestação de serviços imobiliários, procura realizar bons negócios com eficiência, proporcionando assim, tranquilidade aos seus clientes. A nossa equipa de colaboradores é formada por profissionais experientes, com vasto conhecimento para sugerir as melhores alternativas. Além disso, dispomos de um sistema totalmente informatizado, o que permite uma maior agilidade na pesquisa e adequação do perfil do imóvel às solicitações do cliente. Apoiada pelo profissionalismo e seriedade, a MITOS está colocada entre as maiores imobiliárias de Viana do Castelo. #mitos #mitosimobiliaria #imobiliária #vianadocastelo #realestate
AMI: 11024
Ref. Externa: M308
Id: 1632417
Inicie sessão para guardar este imóvel e aceder à sua lista de favoritos em qualquer dispositivo.
1.240.000 €
10 Quartos
7 WCs
Área bruta : 303 m²
Apresenta-se uma oportunidade rara no mercado: um conjunto exclusivo de quatro moradias, totalmente renovadas e já em funcionamento como unidade de alojamento local, situado a apenas 30 metros da praia de Vila Praia de Âncora. Um imóvel ideal tanto para investimento como para uso próprio, em localização altamente valorizada e procurada por turistas durante todo o ano. Características: Conjunto composto por quatro moradias: Duas moradias T2 Duas moradia T3 Arquitetura contemporânea e linhas modernas Renovação recente com materiais de elevada qualidade Totalmente mobiladas e equipadas Licenciamento de alojamento local em vigor Exploração turística ativa, com taxa de ocupação elevada Localização privilegiada: Segunda linha de mar, a apenas alguns passos da praia Zona calma, mas com acesso imediato a comércio local, restauração e serviços Forte atratividade turística ao longo de todo o ano Região valorizada para férias e fins de semana prolongados Próxima de praias marítimas e fluviais, trilhos naturais e pontos de interesse histórico Potencial de investimento: Estas moradias representam uma solução chave-na-mão para investidores no setor do turismo e arrendamento de curta duração, com retorno comprovado e possibilidade de expansão do negócio. Também são ideais para quem procura uma solução de segunda habitação ou residência principal junto ao mar, com todo o conforto e tranquilidade. Mais informações: Para mais detalhes ou agendamento de visita, entre em contacto. Esta é uma oportunidade única num dos destinos mais procurados do norte do país.
AMI: 13274
Ref. Externa: M554
Id: 1624404
Inicie sessão para guardar este imóvel e aceder à sua lista de favoritos em qualquer dispositivo.
3 Quartos
3 WCs
Área bruta : 225 m²
Apresentamos esta moradia de arquitetura moderna, atualmente em construção, pensada para quem valoriza qualidade, estilo e bem-estar. Inserida numa zona tranquila e privilegiada, oferece tudo o que precisa para viver com conforto e proximidade à natureza. Principais características: Arquitetura contemporânea, com linhas amplas e luminosas Jardim privativo, ideal para relaxar em família Piscina para desfrutar de momentos únicos nos dias mais quentes Garagem com excelentes acessos Ótima exposição solar, garantindo luz natural durante todo o dia Zona calma e com bons acessos Localização privilegiada, a cerca de 1500 m da praia Esta é a oportunidade perfeita para adquirir uma moradia que alia modernidade, conforto e uma envolvente natural única. Contacte-nos para mais informações ou para agendar a sua visita.
AMI: 13274
Ref. Externa: M587
Id: 1624385
Inicie sessão para guardar este imóvel e aceder à sua lista de favoritos em qualquer dispositivo.
3 Quartos
3 WCs
Área útil : 284 m²
Esta excelente moradia T3 com piscina e vista de mar está em fase inicial de construção e promete ser um imóvel de elevado padrão. Com uma arquitetura moderna e acabamentos de alta qualidade, a propriedade será composta por: Cozinha equipada com eletrodomésticos da marca Bosch ou similar, ideal para quem procura praticidade e eficiência. Sala ampla e luminosa, com uma moderna lareira, proporcionando um ambiente acolhedor e contemporâneo. Três quartos (suites), todos com roupeiros embutidos, oferecendo conforto e privacidade para toda a família. Janelas de vidro duplo e corte térmico, garantindo isolamento acústico e térmico. Entrada de luz natural através de velux, criando um ambiente claro e agradável. Garagem e salão, proporcionando espaço adicional para lazer ou armazenamento. Localizada em uma zona residencial tranquila, com bons acessos, a moradia está a cerca de 5 minutos do centro da vila e das praias de Vila Praia de Âncora e Moledo, locais ideais para quem aprecia o mar e a natureza. Se estiver interessado em mais informações sobre este imóvel, não hesite em entrar em contato! Nota: As fotografias são do projeto 3D. Imóvel comercializado por: BAMBU - Mediação Imobiliária, Lda. Lic. 8400-AMI Telf. (+ (telefone) chamada para rede fixa nacional) Tlm. ( + (telefone) chamada para rede móvel nacional) email: ( (email) ) (url) VILA PRAIA DE ÂNCORA Vila Praia de Âncora situa-se no fim de um vale protegido a norte pela Serra D'Arga e a sul pelo Monte de Santa Luzia, é uma vila piscatória carregada de tradições. A praia desta Vila é de tipo costeira e arenosa e oferece todas as condições para gozar a época balnear em pleno. Dentro dos parâmetros de qualidade exigidos, os extensos areais e o mar, aliados à paisagem, proporcionam a todos os veraneantes uma temporada memorável. Muito procurada, esta praia contempla todos os equipamentos necessários ao seu usufruto e as suas qualidades terapêuticas, pela quantidade de iodo. Atualmente, Vila Praia de Âncora, devido à sua praia e paisagens maravilhosas e aos seus vários monumentos, testemunhos da sua história, é uma vila dedicada essencialmente ao Turismo. O seu património cultural e natural, o artesanato, os desportos aquáticos, a pesca e as tradições gastronómicas. Património: Anta da Barrosa ou Lapa dos Mouros, Forte do Cão, Forte da Lagarteira, Igreja Matriz de Vila Praia de Âncora, Cova da Moura e Monte do Calvário. Conjugando dinamismo, inovação e empreendedorismo surgiu em 2008 a Bambu Imobiliária, Lda. Somos uma empresa que se rege pelo signo da qualidade dos serviços prestados bem como pela constante luta pela satisfação de todos os nossos clientes. Devido ao nosso posicionamento assertivo, auxiliamos na execução de todo o tipo de transações imobiliárias, sejam elas, compra, venda, arrendamento, permuta, etc. Para alcançarmos os objetivos a que nos propomos, temos ao nosso dispor as mais recentes inovações tecnológicas, contando com uma equipa de profissionais que se pauta pela sua competência, disponibilidade e seriedade. Seja bem vindo à Bambu Imobiliária, Lda. e não se esqueça: Entre. Este mundo também é seu!
AMI: 8400
Ref. Externa: B3124
Id: 1624164
Inicie sessão para guardar este imóvel e aceder à sua lista de favoritos em qualquer dispositivo.
3 Quartos
1 WCs
Área bruta : 543 m²
Propriedade em pedra para restauro, inserida num generoso terreno de 3.269 m², situada nas margem do Rio Âncora. Uma oportunidade rara para transformar um espaço único num verdadeiro refúgio, seja para habitação própria, casa de férias ou projeto turístico. Com acesso direto a uma praia fluvial logo à saída da propriedade, este é o local perfeito para desfrutar da tranquilidade da natureza. A envolvência natural é ideal para caminhadas ao longo do rio, atividades ao ar livre e momentos de desconexão total do ritmo urbano. A moradia, preserva o charme da arquitetura tradicional e oferece grande potencial para um restauro personalizado, respeitando a autenticidade do lugar. Toda a propriedade encontra-se murada com muros de pedra, o que garante privacidade absoluta e uma envolvência acolhedora. - Principais características: - Terreno amplo com 3.269 m² - Índice de construção de 30%, permitindo expansão ou novo projeto habitacional - Acesso direto ao Rio Âncora e à praia fluvial Esta é a escolha ideal para quem procura viver com qualidade, rodeado por natureza, num local onde o tempo parece abrandar. Visite! * * NOTA: A informação aqui prestada, ainda que precisa, requer confirmação antes do fecho do negócio e não pode ser utilizada de forma vinculativa. Insuavila Imobiliária
AMI: 11806
Ref. Externa: 2682
Id: 1623772
Inicie sessão para guardar este imóvel e aceder à sua lista de favoritos em qualquer dispositivo.
3 Quartos
3 WCs
Área bruta : 239 m²
Fantásticas Moradias T3 de arquitetura modernada, com garagem para 2 carros e vista mar. Características: - Moradias espaçosas com 3 quartos (1suite); - Terraço na cobertura, varandas amplas e espaço exterior privativo com jardim; - Localização privilegiada com fácil acesso a todas as comodidades, supermercados, autoestrada para o Porto a pouca distância; - Design moderno e acabamentos de alta qualidade; - ar condicionado. Nota: moradias em fase construção, com a possibilidade de escolher acabamentos. Não perca a oportunidade de viver num ambiente tranquilo com uma vista que o vai encantar todos os dias. Entre em contacto para mais informações e agende uma visita hoje mesmo! * * NOTA: A informação aqui prestada, ainda que precisa, requer confirmação antes do fecho do negócio e não pode ser utilizada de forma vinculativa. Insuavila Imobiliária
AMI: 11806
Ref. Externa: 2422
Id: 1623595
Inicie sessão para guardar este imóvel e aceder à sua lista de favoritos em qualquer dispositivo.
3 Quartos
3 WCs
Área útil : 225 m²
Moradia de Luxo em Vila Praia de Âncora Esta magnífica moradia de design contemporâneo irradia elegância e conforto, ideal para quem busca um estilo de vida requintado junto ao mar. Com uma área total de 225m², inserida num terreno de 1585m², esta propriedade exala sofisticação e requinte em cada detalhe. Características do Imóvel: - Quartos e Casas de Banho: Com 3 quartos espaçosos, sendo um deles suite, este refúgio proporciona privacidade e conforto supremo. Os acabamentos de alta qualidade e a luz natural abundante realçam o charme desta moradia. - Áreas de Convívio: A ampla sala de estar, a sala de jantar e a cozinha equipada com design moderno oferecem espaços acolhedores para momentos únicos em família. - Cozinha Equipada em Conceito Aberto: A moderna cozinha em conceito aberto, equipada com eletrodomésticos de última geração, é o ponto central desta casa, ideal para os entusiastas da culinária. - Exteriores Exuberantes: O jardim exuberante e bem cuidado, com uma piscina de cortar a respiração, proporciona um ambiente de serenidade e relaxamento. Ideal para desfrutar de dias ensolarados e noites estreladas em total privacidade. - Estacionamento e Garagem: Com garagem e espaço de estacionamento, acomode comodamente os seus veículos num ambiente seguro. - Condições de Conforto e Segurança: Equipada com TV a cabo, internet de alta velocidade, ar-condicionado, sistema de ventilação mecânica, as comodidades desta moradia oferecem o máximo de conforto e conveniência. - Localização Privilegiada: Situada em Vila Praia de Âncora, esta propriedade encontra-se a curta distância de praias deslumbrantes, oferecendo uma oportunidade única de desfrutar da vida costeira em toda a sua plenitude. Não perca a oportunidade de viver numa casa de sonho junto ao mar. Marque já a sua visita! #ref: 155490
AMI: 11220
Ref. Externa: 155490
Id: 1553975
Inicie sessão para guardar este imóvel e aceder à sua lista de favoritos em qualquer dispositivo.
3 Quartos
Área útil : 112 m²
🏡 Moradia T3 com terreno de 409 m² – Vila Praia de Âncora | 350.000 €Apresentamos esta moradia independente situada numa zona tranquila e soalheira de Vila Praia de Âncora, a apenas 15 minutos a pé (ou 4 minutos de carro) da magnífica praia. Uma excelente oportunidade para quem procura conjugar conforto, espaço exterior e proximidade ao mar.Com um terreno amplo de 409 m² e uma área bruta de 112 m², esta propriedade oferece todas as condições para viver com qualidade, usufruindo de um ambiente familiar e acolhedor.✨ Características principais da moradiaPiso Superior:- 3 quartos com excelente luminosidade- 1 casa de banho completaRés do Chão:- Sala ampla com lareira, ideal para momentos de convívio- Cozinha funcional- Despensa- Casa de banho de serviçoA moradia conta ainda com aquecimento a gás em todas as divisões, garantindo conforto durante todo o ano, e dispõe de poço de água, um grande benefício para manutenção do jardim e do terreno.✨ Zona Exterior e AnexosAmplo terreno com árvores de fruto, proporcionando privacidade e um ambiente natural muito agradávelAnexo completo com:- Garagem- Área preparada para cozinha, churrasqueira e fogão à lenha- Cave/adega, ideal para arrumos ou para armazenamento de vinhosA localização é estratégica: próximo de serviços, escolas, comércio e com acesso rápido às principais vias, sem perder a tranquilidade da zona residencial.Marque sua visita e descubra todo o potencial desta moradia!Referência: ASBR25036Por sermos intermediários de crédito devidamente autorizados pelo Banco de Portugal (Reg. 2736), fazemos a gestão de todo o seu processo de financiamento, sempre com as melhores soluções de mercado.Porquê escolher a AS Imobiliária?Com mais de 16 anos no ramo imobiliário e milhares de famílias felizes, dispomos de 9 agências estrategicamente localizadas, para o servir com proximidade, corresponder à suas expectativas e ajudá-lo a adquirir a sua casa de sonho. Compromisso, Competência e Confiança são os nossos valores que entregamos aos nossos Clientes na hora de comprar, arrendar ou vender o seu imóvel.A nossa prioridade é a sua Felicidade!Na AS Imobiliária somos apaixonados por vender casas!Especialistas imobiliários em Vizela ; Guimarães ; Felgueiras ; Lousada ; Santo Tirso ; Barcelos ; São João da Madeira ; Porto ; Braga ; Trofa; Lisboa
AMI: 13249
Ref. Externa: ASBR25036
Id: 1513798
Inicie sessão para guardar este imóvel e aceder à sua lista de favoritos em qualquer dispositivo.
2 Quartos
1 WCs
Área bruta : 253 m²
A KW Alfa apresenta esta fantástica oportunidade de negócio: uma moradia com uma área útil de 170m2, inserida numa propriedade com a área total de 1625m2, junto à Ludoteca, em Vila Praia de Âncora. A propriedade carece de restauro, ainda que tenha tido uma recente renovação de telhado. Esta moradia é composta pela casa principal e por algumas dependências, o que representa uma fantástica oportunidade de negócio para quem se quer manter próximo do centro, mas valorizando um estilo de vida descontraído, desafogado e ligado à natureza. NOTA: A informação aqui prestada, ainda que precisa, requer confirmação antes do fecho do negócio e não pode ser utilizada de forma vinculativa. Tem um imóvel para venda? Contacte-me! O que nos distingue? Se procura um imóvel com estas características ou até se é um consultor imobiliário, não hesite em contactar-me. Comigo e com a KW partilhamos negócios com todas as imobiliárias no mercado com Licença AMI num sistema de 50%-50%. Além disso: A Keller Williams assenta em princípios humanos e sociais que nos distinguem no setor imobiliário: Win-Win - ou não há acordo Integridade - fazer o que está certo Clientes - estão sempre em primeiro lugar Compromisso - em tudo Comunicação - procurar entender primeiro Criatividade - ideias antes dos resultados Trabalho em equipa - em conjunto alcançamos mais Ter confiança - começa com honestidade Sucesso - resultados evolvendo as pessoas
AMI: 23524
Ref. Externa: KWPT-025070
Id: 1509041
Inicie sessão para guardar este imóvel e aceder à sua lista de favoritos em qualquer dispositivo.
3 Quartos
3 WCs
Área útil : 138 m²
Moradia Moderna com Piscina em Zona Residencial Tranquila – Vila Praia de Âncora Excelente moradia de arquitetura contemporânea, situada numa zona residencial calma, a apenas 5 minutos do centro de Vila Praia de Âncora, das escolas, da piscina municipal, comércio, serviços e da praia. Principais Características: 3 quartos amplos e luminosos Piscina privativa, ideal para momentos de lazer em família Cozinha totalmente equipada com eletrodomésticos Bosch Ar condicionado (quente e frio) para conforto durante todo o ano Bomba de calor para aquecimento de águas sanitárias Portões automáticos e vídeo porteiro para maior comodidade e segurança Uma casa pensada para proporcionar conforto, modernidade e qualidade de vida, onde cada detalhe foi cuidadosamente idealizado para garantir bem-estar e funcionalidade. A MILLION GROUP surge da união de sinergias, da complementaridade e experiência dos seus fundadores. Que iniciaram a sua colaboração sob a matriz de uma marca internacional e decidem criar um novo conceito para o setor imobiliário. Sentiram os desafios com uma perspetiva mais universal e flexível na abordagem do mercado imobiliário, e a criação da marca MILLION GROUP vem responder a todas as necessidades. Era preciso dar corpo a uma filosofia e uma forma de estar no mercado, nova e diferenciadora. Os nossos valores CONFIANÇA, PROXIMIDADE, MATURIDADE, UNIVERSALIDADE. CONFIANÇA – Conquistada interna e externamente pelo rigor e a lealdade na relação que estabelecemos com os nossos Consultores, Parceiros, Clientes e Amigos. PROXIMIDADE – Uma relação sincera, com acompanhamento, apoio e disponibilidade permanente. MATURIDADE – Um património de experiência e conhecimento no mercado imobiliário. UNIVERSALIDADE – Baseada numa presença abrangente em todos os segmentos de mercado, a profissionalizar os nossos consultores com foco na satisfação dos nossos clientes. O que fazemos "Concretizamos sonhos" Uma verdadeira síntese emocional do que fazemos todos os dias. Conciliamos compradores e vendedores, promovemos negócios e apoiamos a sua concretização.
AMI: 22034
Ref. Externa: MG01929
Id: 1503364
Inicie sessão para guardar este imóvel e aceder à sua lista de favoritos em qualquer dispositivo.
1 Quartos
1 WCs
Área bruta : 36 m²
A KW Alfa apresenta esta pequena casa de praia em Vila Praia de Âncora, num local extremamente central e próximo da praia. NOTA: A informação aqui prestada, ainda que precisa, requer confirmação antes do fecho do negócio e não pode ser utilizada de forma vinculativa. Tem um imóvel para venda? Contacte-me! O que nos distingue? Se procura um imóvel com estas características ou até se é um consultor imobiliário, não hesite em contactar-me. Comigo e com a KW partilhamos negócios com todas as imobiliárias no mercado com Licença AMI num sistema de 50%-50%. Além disso: A Keller Williams assenta em princípios humanos e sociais que nos distinguem no setor imobiliário: Win-Win - ou não há acordo Integridade - fazer o que está certo Clientes - estão sempre em primeiro lugar Compromisso - em tudo Comunicação - procurar entender primeiro Criatividade - ideias antes dos resultados Trabalho em equipa - em conjunto alcançamos mais Ter confiança - começa com honestidade Sucesso - resultados evolvendo as pessoas
AMI: 23524
Ref. Externa: 1214-4333
Id: 1439126
Inicie sessão para guardar este imóvel e aceder à sua lista de favoritos em qualquer dispositivo.
5 Quartos
3 WCs
Área bruta : 330 m²
A KW Alfa apresenta esta propriedade que é composta por uma moradia T5 e um anexo convertido em T2. Num terreno com mais de 1700M2 na Rua 25 de Abril, em Vila Praia de Âncora, esta construção do inicio dos anos 80 tem uma construção muito sólida, bem conservada e mantida. O seu telhado foi recentemente trocado. No piso inferior temos um hall, cozinha, sala, WC, e dois quartos (um deles convertidos em escritório). No piso superior temos 3 quartos, um deles suite, um WC e muitos arrumos na zona de sotão. Ainda na propriedade temos um anexo recentemente convertido em T2, no qual podemos contar com uma cozinha moderna totalmente equipada (em open space), dois quartos e um WC. A moradia conta também com uma espaçosa garagem fechada com capacidade para dois carros. Esta propriedade está para venda, mas pode ser considerada a hipótese de permuta. NOTA: A informação aqui prestada, ainda que precisa, requer confirmação antes do fecho do negócio e não pode ser utilizada de forma vinculativa. Tem um imóvel para venda? Contacte-me! O que nos distingue? Se procura um imóvel com estas características ou até se é um consultor imobiliário, não hesite em contactar-me. Comigo e com a KW partilhamos negócios com todas as imobiliárias no mercado com Licença AMI num sistema de 50%-50%. Além disso: A Keller Williams assenta em princípios humanos e sociais que nos distinguem no setor imobiliário: Win-Win - ou não há acordo Integridade - fazer o que está certo Clientes - estão sempre em primeiro lugar Compromisso - em tudo Comunicação - procurar entender primeiro Criatividade - ideias antes dos resultados Trabalho em equipa - em conjunto alcançamos mais Ter confiança - começa com honestidade Sucesso - resultados evolvendo as pessoas
AMI: 23524
Ref. Externa: KWPT-017048
Id: 1426984
Inicie sessão para guardar este imóvel e aceder à sua lista de favoritos em qualquer dispositivo.
3 Quartos
2 WCs
Área bruta : 225 m²
Apresentamos esta elegante moradia térrea de arquitetura contemporânea, em fase inicial de construção, inserida num terreno totalmente murado que combina design moderno, conforto e privacidade. Situada numa zona residencial tranquila, a apenas 5 minutos da praia e do centro de Vila Praia de Âncora, onde encontrará todo o tipo de serviços, comércio, escolas e restauração. Características principais: Área social em open space com 51,60 m², integrando sala e cozinha com excelente luminosidade natural. Cozinha moderna totalmente equipada com eletrodomésticos Bosch. 3 quartos com roupeiros embutidos, sendo um deles suite. Lavandaria independente. Ar condicionado embutido nos tetos (frio e quente). Bomba de calor para aquecimento das águas sanitárias. Sistema de vídeo-porteiro. Garagem fechada para dois carros. Amplo terraço ideal para lazer e convívio. No exterior, poderá desfrutar de um agradável jardim envolvente e de uma piscina privada, perfeita para momentos de relaxamento e convívio familiar. Com excelente exposição solar, esta moradia oferece o equilíbrio perfeito entre modernidade, conforto e qualidade de vida. Não perca esta excelente oportunidade! Refª. 1350236/25VC
AMI: 24830
Ref. Externa: 1350236/25VC
Id: 1423214
Inicie sessão para guardar este imóvel e aceder à sua lista de favoritos em qualquer dispositivo.
2 Quartos
Área bruta : 250 m²
Descubra esta moradia única, térrea, com piscina no terraço e deslumbrantes vistas para o mar, localizada no concelho de Caminha. Construída com estrutura em betão térmico e revestimento a capoto, garante conforto e eficiência energética. O projeto inclui cozinha equipada em open space, sala ampla e luminosa, 2 quartos (sendo 1 suíte) e 2 casas de banho. Existe ainda a possibilidade de criar mais um quarto com WC no piso -1 (cave), com acesso direto à garagem. No exterior, desfrute do jardim e da piscina no terraço, perfeita para momentos de lazer e contemplação. Com excelente exposição solar, bons acessos, proximidade de todos os serviços e a poucos minutos da A28, esta moradia alia tranquilidade, modernidade e praticidade. Em fase inicial de construção, oferece a possibilidade de personalização ao seu gosto. Agende a sua visita e venha conhecer o seu futuro lar junto ao mar.
AMI: 13274
Ref. Externa: M568
Id: 1340491
Inicie sessão para guardar este imóvel e aceder à sua lista de favoritos em qualquer dispositivo.
3 Quartos
3 WCs
Área bruta : 225 m²
Apresentamos uma magnífica moradia térrea isolada com piscina e jardim, localizada em Vila Praia de Âncora, uma das zonas mais procuradas do Alto Minho. Esta propriedade de linhas contemporâneas destaca-se pelo design moderno, conforto e harmonia com o espaço exterior, ideal para quem procura qualidade de vida, privacidade e tranquilidade. Implantada num lote bem dimensionado, a moradia desenvolve-se num só piso, promovendo uma vivência prática, funcional e acessível. A zona social conta com uma sala ampla e luminosa, com ligação direta ao jardim e à piscina, perfeita para momentos de convívio e lazer em família. A cozinha, de estilo moderno e totalmente equipada, integra-se de forma fluida com os restantes espaços. A área privada oferece quartos confortáveis, com boa exposição solar e acabamentos de qualidade, destacando-se a suite com vista para a piscina. Toda a casa beneficia de excelente exposição solar, que proporciona luz natural durante todo o dia, aumentando o conforto térmico e a eficiência energética. O espaço exterior é um verdadeiro refúgio: um jardim cuidado, zona de refeições ao ar livre e uma piscina que convida a relaxar nos dias quentes. O imóvel está situado em zona residencial muito tranquila, com ótimos acessos ao centro da vila, praias, comércio, restauração e principais vias de ligação à A28 e à cidade de Viana do Castelo. Esta moradia é ideal para residência permanente, casa de férias ou até investimento turístico, num local em valorização constante. A proximidade ao mar e à natureza, aliada à privacidade e conforto, tornam esta oportunidade única no mercado imobiliário local. Não perca esta oportunidade de viver com elegância, tranquilidade e qualidade, a poucos minutos da praia. Agende a sua visita e venha descobrir o seu próximo lar em Vila Praia de Âncora!
AMI: 18126
Ref. Externa: DSVCTPS313
Id: 1337143
Inicie sessão para guardar este imóvel e aceder à sua lista de favoritos em qualquer dispositivo.
Sob consulta
Área útil : 234 m²
Oportunidade Única em Vila Praia de Âncora! Moradia V6 com Jardim e a 5 Minutos da Praia Descubra esta ampla moradia V6, inserida num lote generoso de 550 m², com 117 m² de implantação e distribuída por três pisos, perfeita para famílias grandes ou para quem procura espaço, conforto e proximidade com o mar. Localização de Excelência: Situada em zona calma e residencial, a apenas 5 minutos a pé da praia de Vila Praia de Âncora, estação de comboios, hipermercado, zona comercial, banco e CTT. Tudo o que precisa… à porta de casa. Distribuição: R/C: Garagem, Sala de Visitas, Hall, Lavandaria, Adega/Arrumos, Casa de Banho e acesso direto a zona ajardinada com árvores. 1.º Andar: 2 Quartos, Casa de Banho, Cozinha e Sala espaçosa com acesso ao jardim nas traseiras, onde encontrará um anexo com armazém de lenha e espaço adaptado para criação de aves. 2.º Andar: 3 Quartos (um deles em suíte), Hall e mais uma Casa de Banho completa. Espaços exteriores: Amplo jardim relvado e arborizado, perfeito para momentos em família, cultivo ou descanso. Ideal para quem valoriza qualidade de vida com ligação à natureza. Conforto: Certificado Energético: A Aquecimento eficiente a gás e por recuperador de calor a lenha Bons isolamentos e orientação solar privilegiada 962 023 829 Imperdível! Marque já a sua visita. Ligue hoje mesmo – chamada para rede móvel nacional. Não perca esta oportunidade de viver com qualidade, perto do mar e com espaço para tudo e todos! IADPORTUGAL, SA Lic. AMI 11220 Ref. 147189 #ref: 147189
AMI: 11220
Ref. Externa: 147189
Id: 1337074
Inicie sessão para guardar este imóvel e aceder à sua lista de favoritos em qualquer dispositivo.
Este agente é especialista nesta zona:
Inicie sessão para ocultar este imóvel das suas pesquisas e manter a sua lista de resultados organizada.
© Copyright 2023 | CASACERTA. All rights reserved
Guardar favoritos
Este imóvel foi guardados nos seus favoritos com sucesso.
Para poder guardar pesquisa deverá ter a sua sessão iniciada.
Caso não tenha uma conta, deverá criar uma.
A sua pesquisa foi guardada com sucesso!
Este site utiliza cookies. Ao navegar no site estará a consentir a sua utilização.
Para mais informações sobre os cookies pode consultar a
política de privacidade.