Lista
Comprar
Arrendar
535.000 €
Área de terreno : 1160 m²
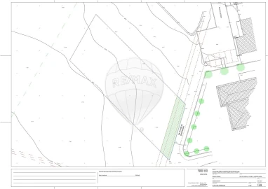
Construa o seu futuro Industrial em Famalicão com Projeto Aprovado! Fantástica oportunidade de investimento em Avidos, Vila Nova de Famalicão: Terreno Industrial com PIP (Pedido de Informação Prévia) para construção de um armazém com 2.010 m² de área bruta, e um generoso logradouro de 1.060 m². Este projeto pré-aprovado acelera a sua entrada em operação, eliminando a burocracia inicial e permitindo-lhe construir um espaço novo e à medida das suas necessidades industriais ou logísticas. Detalhes da Construção Aprovada (Armazém NOVO): • Pé-Direito: Generoso, com 7 metros de altura, ideal para diversas atividades e empilhamento; • Acessos: Preparado para 1 portão principal, facilitando a movimentação de mercadorias; • Estrutura: Projeto inclui estrutura metálica robusta e cobertura em painel sanduíche, garantindo eficiência térmica e durabilidade; • Espaços Adicionais: Flexibilidade para incluir escritórios, balneários e refeitório, conforme o seu layout interno; • Licença: Garantia de aprovação para Alvará Industrial/Logístico. Ponto Forte: O amplo logradouro de 1.060 m² é um diferencial competitivo, crucial para estacionamento de reboques e manobras, favorecendo a logística de cargas e descargas. Localização Premium: Beneficie-se do rápido acesso às Auto-estradas A3/A7, ligando rapidamente Famalicão e Santo Tirso aos principais eixos rodoviários nacionais. Não perca tempo! Este terreno com projeto aprovado é a solução chave-na-mão para o crescimento do seu negócio. Contacte-nos para mais informações e comece a construir a sua nova infraestrutura industrial. --------------------------------------------------------------------------------------------------- A REALTY ONE GROUP PLACE Desde 2002, em representação das maiores marcas mundiais de Mediação Imobiliária, já realizamos o sonho de muitas famílias! Atualmente de braço dado com a REALTY ONE GROUP, a agência PLACE, situada na Póvoa de Varzim, nasce da vontade de mudança, do desejo de fazer mais, melhor e diferente, no processo de compra e venda dos lares, daqueles que nos procuram. No nosso entender, somente pela condução de princípios éticos fundamentais, integridade e confiança, quer para o cliente vendedor, quer para o cliente comprador, é possível atuar neste competitivo mercado de forma sólida e sustentada. Por esta razão, trabalhamos diariamente com profissionalismo, paixão e desejo de ajudar os nossos clientes a encontrar a sua casa de sonho! Dedicamos todo o nosso tempo a cada um, de forma individual e personalizada, compreendendo exatamente as suas necessidades e desenvolvendo todos os esforços para superar as suas expectativas! Quer Comprar, Vender ou Arrendar? Fale connosco! Somos uma equipa de profissionais experientes, estrategicamente estruturada e motivada a conduzir os clientes às melhores oportunidades de negócio. Estamos prontos para o ajudar na decisão mais importante da sua vida!
AMI: 16698
Ref. Externa: ONE0021785-9
Id: 1412123
Inicie sessão para guardar este imóvel e aceder à sua lista de favoritos em qualquer dispositivo.
155.610 €
Área de terreno : 1482 m²
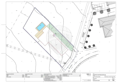
Terreno rústico, situado em zona residencial de baixa densidade, a escassos minutos do centro da cidade de Vila Nova de Famalicão e do nó de Lagoa/Avidos para acesso à A3, com projeto de licenciamento aprovado para a construção de uma moradia unifamiliar individual. O projeto encontra-se válido e com licença de construção pronta a ser levantada e prevê a edificação de uma moradia T4, com garagem fechada para 3 viaturas, jardim e piscina exterior. Excelente exposição solar, em zona maioritariamente plana e confrontante com o futuro Parque Verde de Lagoa, este terreno configura-se como uma oportunidade para quem procura construir a sua própria habitação, numa zona calma, mas igualmente servida de escolas, serviços e comércios de proximidade, bem como para um investidor que anteveja na construção da moradia uma oportunidade de vir a rentabilizar o investimento mais imediato. ;ID RE/MAX: 123631246-42
AMI: 7772
Ref. Externa: 123631246-42
Id: 1120785
Inicie sessão para guardar este imóvel e aceder à sua lista de favoritos em qualquer dispositivo.
126.750 €
Área de terreno : 974 m²
Terreno urbano, situado em zona residencial de baixa densidade, a escassos minutos do centro da cidade de Vila Nova de Famalicão e do nó de Lagoa/Avidos para acesso à A3, com capacidade construtiva para uma moradia unifamiliar individual ou duas moradias unifamiliares em banda. Excelente exposição solar, em zona maioritariamente plana, com vistas panorâmicas para a encosta envolvente, este terreno configura-se como uma oportunidade para quem procura construir a sua própria habitação, numa zona calma, mas igualmente servida de escolas, serviços e comércios de proximidade, bem como para um investidor que anteveja na sua capacidade construtiva uma oportunidade de vir a rentabilizar o investimento mais imediato. ;ID RE/MAX: 123631246-43
AMI: 7772
Ref. Externa: 123631246-43
Id: 1120786
Inicie sessão para guardar este imóvel e aceder à sua lista de favoritos em qualquer dispositivo.
141.855 €
Área de terreno : 1351 m²
Terreno rústico, situado em zona residencial de baixa densidade, a escassos minutos do centro da cidade de Vila Nova de Famalicão e do nó de Lagoa/Avidos para acesso à A3, com projeto de licenciamento aprovado para a construção de uma moradia unifamiliar individual.O projeto encontra-se válido e com licença de construção pronta a ser levantada e prevê a edificação de uma moradia T4, com garagem fechada para 3 viaturas, jardim e piscina exterior. Excelente exposição solar, em zona maioritariamente plana e confrontante com o futuro Parque Verde de Lagoa, este terreno configura-se como uma oportunidade para quem procura construir a sua própria habitação, numa zona calma, mas igualmente servida de escolas, serviços e comércios de proximidade, bem como para um investidor que anteveja na construção da moradia uma oportunidade de vir a rentabilizar o investimento mais imediato. ;ID RE/MAX: 123631246-41
AMI: 7772
Ref. Externa: 123631246-41
Id: 1117154
Inicie sessão para guardar este imóvel e aceder à sua lista de favoritos em qualquer dispositivo.
500.000 €
Área de terreno : 11000 m²
Terreno com cerca de 11.000m2, em zona residencial, com potencial para projeto residencial. Usufrui de uma localização com fáceis acessos e excelente exposição solar. Fantástica oportunidade de investimento!
AMI: 23263
Ref. Externa: TER_239
Id: 842909
Inicie sessão para guardar este imóvel e aceder à sua lista de favoritos em qualquer dispositivo.
55.000 €
Área de terreno : 5800 m²
Identificação do imóvel: ZMPT516912Bem-vindo a este terreno encantador, localizado na rua do Isqueiro em Avidos. Embora não seja de construção, este terreno tem características únicas que o tornam uma oportunidade imperdível!Imagine-se cercado por uma vasta área de cultivo e um belo pinhal. Este terreno é um verdadeiro tesouro natural, onde pode explorar e desfrutar de uma paisagem deslumbrante. Com a vantagem de estar situado em uma das frentes voltada para a rua que leva à Lagoa, terá acesso fácil a um cenário de tirar o fôlego.Uma das margens do Rio Pele atravessa essa propriedade, adicionando ainda mais encanto e valor à sua experiência. Poderá desfrutar de momentos relaxantes à beira do rio, conectando-se com a natureza e apreciando a serenidade que esse ambiente oferece.Além disso, esse terreno é altamente produtivo em termos de cultivo, oferecendo um potencial incrível para aqueles interessados em atividades agrícolas ou de jardinagem. Sinta a alegria de cultivar suas próprias plantações, colher frutas frescas e verduras saudáveis, tudo isso em um ambiente tranquilo e acolhedor.Este local é perfeito para aqueles que buscam uma pausa da agitação da cidade e desejam estabelecer-se em um ambiente pacífico e acolhedor. Imagine a sensação de chegar em casa e ser recebido por uma atmosfera serena e relaxante, longe do estresse cotidiano.Não perca a oportunidade de possuir esse pedaço especial da natureza, onde poderá criar um refúgio particular, longe do tumulto urbano. Permita-se aproveitar os prazeres da vida no campo, enquanto ainda desfruta da conveniência de estar perto das comodidades essenciais.Este é o lugar onde seus sonhos podem se tornar realidade. Agende uma visita hoje mesmo e descubra todo o potencial e a magia deste terreno. Estou pronto para ajudá-lo a encontrar seu próprio pedaço do paraíso natural!3 razões para comprar com a Zome+ acompanhamentoCom uma preparação e experiência única no mercado imobiliário, os consultores Zome põem toda a sua dedicação em dar-lhe o melhor acompanhamento, orientando-o com a máxima confiança, na direção certa das suas necessidades e ambições.Daqui para a frente, vamos criar uma relação próxima e escutar com atenção as suas expectativas, porque a nossa prioridade é a sua felicidade! Porque é importante que sinta que está acompanhado, e que estamos consigo sempre.+ simplesOs consultores Zome têm uma formação única no mercado, ancorada na partilha de experiência prática entre profissionais e fortalecida pelo conhecimento de neurociência aplicada que lhes permite simplificar e tornar mais eficaz a sua experiência imobiliária.Deixe para trás os pesadelos burocráticos porque na Zome encontra o apoio total de uma equipa experiente e multidisciplinar que lhe dá suporte prático em todos os aspetos fundamentais, para que a sua experiência imobiliária supere as expectativas.+ felizO nosso maior valor é entregar-lhe felicidade!Liberte-se de preocupações e ganhe o tempo de qualidade que necessita para se dedicar ao que lhe faz mais feliz.Agimos diariamente para trazer mais valor à sua vida com o aconselhamento fiável de que precisa para, juntos, conseguirmos atingir os melhores resultados.Com a Zome nunca vai estar perdido ou desacompanhado e encontrará algo que não tem preço: a sua máxima tranquilidade!É assim que se vai sentir ao longo de toda a experiência: Tranquilo, seguro, confortável e... FELIZ!Notas:1. Caso seja um consultor imobiliário, este imóvel está disponível para partilha de negócio. Não hesite em apresentar aos seus clientes compradores e fale connosco para agendar a sua visita.2. Para maior facilidade na identificação deste imóvel, por favor, refira o respetivo ID ZMPT ou o respetivo agente que lhe tenha enviado a sugestão.
AMI: 17432
Ref. Externa: ZMPT516912
Id: 467674
Inicie sessão para guardar este imóvel e aceder à sua lista de favoritos em qualquer dispositivo.
106.150 €
Área de terreno : 310 m²
Lotes de construção em Avidos, num local sossegado, com bons acessos, colado à EN20a-5 e a 7 minutos do centro de Famalicão. Vários lotes disponíveis entre 130 m2 e 310 m2. Agende já uma reunião.
AMI: 4760
Ref. Externa: MIFC-0203
Id: 231103
Inicie sessão para guardar este imóvel e aceder à sua lista de favoritos em qualquer dispositivo.
419.000 €
Área de terreno : 16000 m²
Vende-se Terreno com Aproximadamente 16.000m2 - Famalicão Localizado na freguesia de Avidos, Junto ao Instituto Nuno Alvares e à Casa de Saúde das Caldas. Com Possibilidade de Construção. Conheça todas as potencialidades deste imóvel! Tel. 253 254 081 (Chamada para a rede fixa nacional) Tlm. 918 022 382 - Álvaro Pinto (Chamada para a rede móvel nacional) www.florestaimobiliaria.pt Refª013-3388 floresta Imobiliária o caminho seguro para a sua casa Encontre-nos na Rua do Taxa, 5 - S. Victor, Braga floresta Imobiliária o caminho seguro para a sua casa Comprar ou vender a casa é provavelmente a maior e mais importante investimento que algum dia irá fazer. É por isso que tantos clientes confiam em nós. Somos uma agência imobiliária de Braga, que se tem vindo a destacar no mercado imobiliário em Portugal graças ao seu profissionalismo, dedicação e inovação. Conhecemos o mercado imobiliário em Braga como poucos e queremos ajudar em tudo o que necessitar durante o processo. Trabalhamos com rigor, eficiência e transparência! Com um histórico comprovado e uma equipa eficaz, estamos comprometidos em criar experiências extraordinárias em cada etapa do caminho. - Estamos aqui para ajudar com conhecimento especializado em todos os momentos-chave da compra e venda da sua casa. - Estamos ao seu lado para orientar e ajudar a tomar decisões informadas. Temos várias opções de casas à venda no distrito de Braga. Desde apartamentos para comprar, moradias, terrenos, lojas, escritórios, entre outras soluções. Pode entrar em contacto por: \ Telefone: 253 254 081 (Chamada para a rede fixa nacional) \ Whatsapp: 918 022 389 \ Email: [email protected] Também dispomos de um serviço gratuito de avaliação de imóveis para que possa ter conhecimento do valor da sua casa. Somos Intermediários de Crédito Bancário autorizados pelo Banco de Portugal, e podemos auxilia-lo(a) na gestão de todo o seu processo de financiamento. Desde 2007 a tratar dos seus projetos imobiliários com toda a transparência, rigor e eficiência. Quer comprar, arrendar ou vender casa no distrito de Braga através de uma agência imobiliária? Deixe connosco! Entre em contacto com a nossa agência imobiliária de Braga. floresta Imobiliária o caminho seguro para a sua casa Visite-nos na Rua do Taxa nº 5 em São Vitor Licença AMI 7630
AMI: 7630
Ref. Externa: 013-3388
Id: 218528
Inicie sessão para guardar este imóvel e aceder à sua lista de favoritos em qualquer dispositivo.
Estes agentes são especialistas nesta zona:
Inicie sessão para ocultar este imóvel das suas pesquisas e manter a sua lista de resultados organizada.
Guardar favoritos
Este imóvel foi guardados nos seus favoritos com sucesso.
Para poder guardar pesquisa deverá ter a sua sessão iniciada.
Caso não tenha uma conta, deverá criar uma.
A sua pesquisa foi guardada com sucesso!
© Copyright 2023 | CASACERTA. All rights reserved
Este site utiliza cookies. Ao navegar no site estará a consentir a sua utilização.
Para mais informações sobre os cookies pode consultar a
política de privacidade.