Filtros
0 · 25 resultadosÁrea de terreno : 1140000 m²
Super terreno com 114 hectares situado no concelho de Tavira.com um grande potencial para fazer projetos vários. De um total de 114 hectares de paraíso natural, 21 são viáveis para construção. O projeto pode ser dividido em duas partes: Um hotel com Cinco Estrelas e Núcleo de Turismo de cinco estrelas. Hotel cinco estrelas aprovado com 120 quartos, 240 camas, em 20 hectares onde o Pedido de Informação Prévia (P. I. P) está aprovado. O que está aprovado é a viabilidade do projeto. A comunicação prévia no Conselho poderá ser feita para iniciar uma construção. Situação atual do Núcleo de Turismo: Em fase final de aprovação pela CCDR-Algarve, Turismo de Portugal e Câmara Municipal de Tavira. O que será definido nesta aprovação? 800 camas turísticas nas infraestruturas, na definição dos Layouts de circulação, áreas exteriores, loteamentos, áreas de impermeabilização, áreas de lazer com o Campo de golfe de 18 buracos, passadiços na madeira nas encostas. Depois desta aprovação, para iniciar as construções, tem de ser desenvolvido um Plano Detalhado. Parte a ser estabelecida pelo Investidor. Pois, vai adaptar o plano aos seus projetos e/ou gostos pessoais. Próximo da cidade de Tavira, o terreno de dispõe de maravilhosas vistas panorâmicas sobre o mar e serra. Tavira é um dos pontos turísticos imperdíveis e com maior potencial do Algarve. Tavira tem capacidade turística de qualidade superior e ainda não existe um hotel de cinco estrelas, capaz de atrair eventos internacionais, colocando-os assim a cidade na rota do turismo internacional. A oportunidade estratégica de desenvolver um empreendimento turístico de qualidade que aguarda um investidor à altura do desafio. Igualmente ideal para turismo rural ou ligado à natureza. Não perca a oportunidade de marcar a sua visita.
AMI: 12689
Ref. Externa: TERIMOSS014
Id: 1796375
Inicie sessão para guardar este imóvel e aceder à sua lista de favoritos em qualquer dispositivo.
Área de terreno : 2485 m²
Este lote de terreno com 2485m², localizado na Arroteia (10 minutos de Tavira), é uma excelente oportunidade de investimento, especialmente pela sua viabilidade para construção de uma moradia de luxo com 240m². Um PIP (Pedido de Informação Prévia) está atualmente a ser aprovado para permitir que o projeto avance mais rapidamente. A localização é muito estratégica, estando perto da Estrada 125, o que garante boa acessibilidade e proximidade aos principais serviços e áreas comerciais. Além disso, a apenas 3 minutos da Praia da Fuseta, o que torna a localização ainda mais atrativa, especialmente para quem deseja viver perto do mar, com fácil acesso a uma das praias mais belas da região. O terreno é virado para sul, o que é uma vantagem, pois garante uma ótima exposição solar, proporcionando uma vista maravilhosa e luminosidade natural durante grande parte do dia. Caso tenha interesse em mais detalhes ou queira saber mais sobre o processo de construção e possíveis projetos para o lote, estou à disposição para ajudar! Categoria Energética: Isento
AMI: 26473
Ref. Externa: NM210
Id: 1774143
Inicie sessão para guardar este imóvel e aceder à sua lista de favoritos em qualquer dispositivo.
Área bruta : 27000 m²
Terreno misto situado próximo de Tavira, bons acessos, vistas deslumbrantes, água e eletricidade no local.Neste terreno é possível reconstruir a ruina existente e ainda aumentar a construção até 2000m².No terreno é possível a execução de um projeto agrícola como jovem agricultor aproveitando os benefícios atuais em vigor para o efeito, ou ainda para um agricultor já instalado dar azos á sua imaginação.Propriedade ideal para desenvolver um projeto de turismo rural ou habitação própria.Propriedade única na região de Tavira.Encontra-se localizada na freguesia de Santo Estêvão, a 5 minutos do acesso à A22 e a cerca de 10 minutos da cidade de Tavira.Marque connosco a sua visita e faça o negócio da sua vida.Sobre a freguesia de Santo Estêvão:A freguesia de Santo Estêvão, situada em zona de transição entre o mar e a serra, no barrocal algarvio.Das atividades artesanais que ainda perduram destaca-se a cestaria em verga ou cana, as rendas, cadeiras em tabua e a destilaria. A nível da gastronomia, os enchidos e outros derivados do porco, o pão caseiro, os doces regionais de amêndoa e os frutos secos marcam os sabores desta zona do concelho.Uma parte da população vive ainda da exploração agrícola e da produção de citrinos. A produção de alfarroba, citrinos, figo, amêndoa e a caça desempenham ainda importante papel nas atividades económicas da freguesia e no regime alimentar da população. O turismo tem vindo a desenvolver na freguesia, nomeadamente com a presença de diversos alojamentos.No artesanato tradicional destacamos a cestaria em verga ou cana, as rendas, cadeiras em tábua e ainda possuímos atividades de destilaria. Pratica-se uma gastronomia rica e variada, com enchidos e outros derivados do porco, pão caseiro, legumes e frutas, doces tradicionais de amêndoa e outros frutos secos.Aprecie os encantos desta freguesia e desfrute aquilo que de melhor o barrocal lhe pode proporcionar.Casas do Sotavento é uma empresa familiar, reconhecida no país e no estrangeiro, por clientes, colaboradores, investidores, pela qualidade das nossas ações e dos nossos projetos.A nossa missão é proporcionar uma experiência fácil e tranquila a quem nos procura. A nossa preocupação, tratar os outros como gostaríamos de ser tratados.
AMI: 17215
Ref. Externa: PR-CS-TU-92292
Id: 1756593
Inicie sessão para guardar este imóvel e aceder à sua lista de favoritos em qualquer dispositivo.
Área bruta : 1146700 m²
Oportunidade Única! Este é um terreno incrível localizado em Monte Agudo, Tavira, no sul de Portugal. É um vasto terreno misto com muito potencial de investimento, seja em turismo rural, urbanização ou construção de uma mansão/quinta. Ele tem fácil acesso e praticamente sem vizinhos, oferecendo uma vista desafogada para o campo e também para a praia. O terreno tem algumas ruinas que permitem construção e muita área verde, árvores e caminhos maravilhosos. Apesar de toda a privacidade e tranquilidade, em poucos minutos terá acesso as todas facilidades do dia-a-dia (supermercados, farmácias, bancos, etc.) no centro de Tavira, uma cidade histórica. Ele está muito bem localizado a cerca de 15 minutos da praia e a 30 minutos do Aeroporto de Faro.Além disso, tem um projeto aprovado condicionado a se realizar um caminho para construir um hotel 5 estrelas, com 120 quartos e 240 camas, juntamente com uma linda área de lazer, piscina e acessibilidade para pessoas com mobilidade reduzida. É uma oportunidade única para quem procura um terreno com muitas possibilidades de investimento e com uma localização privilegiada.Sobre Santo Estevão, Tavira:A freguesia de Santo Estevão é uma encantadora localidade situada no concelho de Tavira, no sul de Portugal. Rica em história e tradição, esta freguesia pitoresca oferece aos visitantes uma experiência autêntica do estilo de vida algarvio.Santo Estevão é conhecido por sua paisagem rural deslumbrante, com colinas verdejantes, pomares de citrinos e olivais. Os campos agrícolas e vinhas são uma visão comum nesta região, onde a agricultura desempenha um papel importante na economia local.Os habitantes locais são acolhedores e mantêm vivas as tradições algarvias. Eventos culturais, como festas populares, procissões religiosas e festivais gastronômicos, ocorrem ao longo do ano, proporcionando aos visitantes a oportunidade de experimentar a autenticidade da vida local.Para os amantes da natureza, Santo Estevão oferece várias trilhas e percursos pedestres que permitem explorar a paisagem deslumbrante da região. Seja caminhando entre os campos ou observando as aves em áreas de conservação, os visitantes têm a oportunidade de apreciar a tranquilidade e a beleza natural deste lugar.A Casas do Sotavento é uma empresa familiar de prestígio que se destaca pelo alto padrão de qualidade de seus produtos e projetos. Reconhecida tanto em Portugal como no exterior, a empresa tem como missão proporcionar uma experiência 'descomplicada' e tranquila aos seus clientes, colaboradores e investidores.O compromisso da Casas do Sotavento é o de tratar todas as pessoas com o mesmo respeito e atenção que gostamos de receber. Isso é refletido em todas as etapas de um processo, desde a escolha do imóvel, até ao fecho da transação com foco na satisfação de todas as partes. Além disso, a empresa orgulha-se em manter um alto nível de transparência, rigor e honestidade, em todas as suas interações.Se procura uma empresa de confiança, com uma equipa idónea e experiente para ajudá-lo a encontrar a imóvel dos seus sonhos, o investimento ou projetos certos, no lugar exato, a Casas do Sotavento é, certamente, a escolha certa!Contacte-nos, hoje mesmo, para saber mais sobre os nossos produtos e serviços.
AMI: 17215
Ref. Externa: PR-CS-TU-87936
Id: 1756521
Inicie sessão para guardar este imóvel e aceder à sua lista de favoritos em qualquer dispositivo.
Área bruta : 1752 m²
Terreno urbano com projeto aprovado e licença paga para a construção de 3 moradias.Possibilidade de aprovar outro projecto para moradiasUm projeto do Atelier Rua ((url)) as moradias contemplam uma construção moderna mas com traços arquitetónicos algarvios, acabamentos e equipamentos de luxo.Área Total do Terreno 5739.27m² / Área comum 311.86m²Casa 1 - T4 com piscina e garagemÁrea do terreno 1752.53m² / Implantação 326.03m² / Área de Construção 330.92m²Casa 2 - T5 com piscina e garagemÁrea do terreno 1671.48m² / Implantação 403.58m² / Área de Construção 404.88m²Casa 3 - T5 com piscina e garagem Área terreno 2003.438m² / Implantação 415.88m² / Área de Construção 414.98m²Acabamentos:- Tetos de Betão à Vista- Pavimento Betão Afagado Envernizado- IS com Pedra Brecha de Tavira- Pavimento Zona Lazer Exterior Tijoleira Santa Catarina- Cobertura Exterior - Telha de Santa Catarina- Pintura Exterior - Branco- Painéis Fotovoltaicos- Carregamento Veículos ElétricosEste terreno localiza-se no sítio da Amaro Gonçalves. A vila da Luz de Tavira encontra-se a 2km enquanto que a cidade de Tavira a está a 5km.A Praia do Barril está a cerca de 5km.Casas do Sotavento é uma empresa familiar, reconhecida no país e no estrangeiro, por clientes, colaboradores, investidores, pela qualidade das nossas acções e dos nossos projecto. A nossa missão é de proporcionar uma experiência fácil e tranquila. A nossa preocupação, tratar toda a gente como gostaríamos de ser tratados.
AMI: 17215
Ref. Externa: PR-CS-TU-93570
Id: 1756514
Inicie sessão para guardar este imóvel e aceder à sua lista de favoritos em qualquer dispositivo.
Área de terreno : 27000 m²
Terreno misto situado próximo de Tavira, bons acessos, vistas deslumbrantes, água e eletricidade no local.Neste terreno é possível reconstruir a ruina existente e ainda aumentar a construção até 2000m².No terreno é possível a execução de um projeto agrícola como jovem agricultor aproveitando os benefícios atuais em vigor para o efeito, ou ainda para um agricultor já instalado dar azos á sua imaginação.Propriedade ideal para desenvolver um projeto de turismo rural ou habitação própria.Propriedade única na região de Tavira.Encontra-se localizada na freguesia de Santo Estêvão, a 5 minutos do acesso à A22 e a cerca de 10 minutos da cidade de Tavira.Marque connosco a sua visita e faça o negócio da sua vida.Sobre a freguesia de Santo Estêvão:A freguesia de Santo Estêvão, situada em zona de transição entre o mar e a serra, no barrocal algarvio.Das atividades artesanais que ainda perduram destaca-se a cestaria em verga ou cana, as rendas, cadeiras em tabua e a destilaria. A nível da gastronomia, os enchidos e outros derivados do porco, o pão caseiro, os doces regionais de amêndoa e os frutos secos marcam os sabores desta zona do concelho.Uma parte da população vive ainda da exploração agrícola e da produção de citrinos. A produção de alfarroba, citrinos, figo, amêndoa e a caça desempenham ainda importante papel nas atividades económicas da freguesia e no regime alimentar da população. O turismo tem vindo a desenvolver na freguesia, nomeadamente com a presença de diversos alojamentos.No artesanato tradicional destacamos a cestaria em verga ou cana, as rendas, cadeiras em tábua e ainda possuímos atividades de destilaria. Pratica-se uma gastronomia rica e variada, com enchidos e outros derivados do porco, pão caseiro, legumes e frutas, doces tradicionais de amêndoa e outros frutos secos.Aprecie os encantos desta freguesia e desfrute aquilo que de melhor o barrocal lhe pode proporcionar.Casas do Sotavento é uma empresa familiar, reconhecida no país e no estrangeiro, por clientes, colaboradores, investidores, pela qualidade das nossas ações e dos nossos projetos.A nossa missão é proporcionar uma experiência fácil e tranquila a quem nos procura. A nossa preocupação, tratar os outros como gostaríamos de ser tratados.
AMI: 17215
Ref. Externa: SU-CS-TU-92292
Id: 1754811
Inicie sessão para guardar este imóvel e aceder à sua lista de favoritos em qualquer dispositivo.
Área de terreno : 2967 m²
Terreno rústico totalmente plano e vedado.Possui água da barragem e eletricidade.É perfeito para colocar caravanas, pois tem todas as facilidades já instaladas no local, tem plantas frutíferas.Vendido com casa préfabricada, usada, já instalada.A uma curta distância tem a vila da Luz de Tavira onde pode dispor de vários serviços e comércio.Bons acessos.Com vizinhos tranquilos e aprazíveis.Casas do Sotavento é uma empresa familiar, reconhecida no país e no estrangeiro, por clientes, colaboradores, investidores, pela qualidade das nossas ações e dos nossos projetos.A nossa missão é proporcionar uma experiência fácil e tranquila a quem nos procura. A nossa preocupação, tratar toda a gente como gostaríamos de ser tratados.
AMI: 17215
Ref. Externa: SU-CS-TR-85360
Id: 1754814
Inicie sessão para guardar este imóvel e aceder à sua lista de favoritos em qualquer dispositivo.
Área de terreno : 1146700 m²
Oportunidade Única! Este é um terreno incrível localizado em Monte Agudo, Tavira, no sul de Portugal. É um vasto terreno misto com muito potencial de investimento, seja em turismo rural, urbanização ou construção de uma mansão/quinta. Ele tem fácil acesso e praticamente sem vizinhos, oferecendo uma vista desafogada para o campo e também para a praia. O terreno tem algumas ruinas que permitem construção e muita área verde, árvores e caminhos maravilhosos. Apesar de toda a privacidade e tranquilidade, em poucos minutos terá acesso as todas facilidades do dia-a-dia (supermercados, farmácias, bancos, etc.) no centro de Tavira, uma cidade histórica. Ele está muito bem localizado a cerca de 15 minutos da praia e a 30 minutos do Aeroporto de Faro.Além disso, tem um projeto aprovado condicionado a se realizar um caminho para construir um hotel 5 estrelas, com 120 quartos e 240 camas, juntamente com uma linda área de lazer, piscina e acessibilidade para pessoas com mobilidade reduzida. É uma oportunidade única para quem procura um terreno com muitas possibilidades de investimento e com uma localização privilegiada.Sobre Santo Estevão, Tavira:A freguesia de Santo Estevão é uma encantadora localidade situada no concelho de Tavira, no sul de Portugal. Rica em história e tradição, esta freguesia pitoresca oferece aos visitantes uma experiência autêntica do estilo de vida algarvio.Santo Estevão é conhecido por sua paisagem rural deslumbrante, com colinas verdejantes, pomares de citrinos e olivais. Os campos agrícolas e vinhas são uma visão comum nesta região, onde a agricultura desempenha um papel importante na economia local.Os habitantes locais são acolhedores e mantêm vivas as tradições algarvias. Eventos culturais, como festas populares, procissões religiosas e festivais gastronômicos, ocorrem ao longo do ano, proporcionando aos visitantes a oportunidade de experimentar a autenticidade da vida local.Para os amantes da natureza, Santo Estevão oferece várias trilhas e percursos pedestres que permitem explorar a paisagem deslumbrante da região. Seja caminhando entre os campos ou observando as aves em áreas de conservação, os visitantes têm a oportunidade de apreciar a tranquilidade e a beleza natural deste lugar.A Casas do Sotavento é uma empresa familiar de prestígio que se destaca pelo alto padrão de qualidade de seus produtos e projetos. Reconhecida tanto em Portugal como no exterior, a empresa tem como missão proporcionar uma experiência 'descomplicada' e tranquila aos seus clientes, colaboradores e investidores.O compromisso da Casas do Sotavento é o de tratar todas as pessoas com o mesmo respeito e atenção que gostamos de receber. Isso é refletido em todas as etapas de um processo, desde a escolha do imóvel, até ao fecho da transação com foco na satisfação de todas as partes. Além disso, a empresa orgulha-se em manter um alto nível de transparência, rigor e honestidade, em todas as suas interações.Se procura uma empresa de confiança, com uma equipa idónea e experiente para ajudá-lo a encontrar a imóvel dos seus sonhos, o investimento ou projetos certos, no lugar exato, a Casas do Sotavento é, certamente, a escolha certa!Contacte-nos, hoje mesmo, para saber mais sobre os nossos produtos e serviços.
AMI: 17215
Ref. Externa: SU-CS-TU-87936
Id: 1754695
Inicie sessão para guardar este imóvel e aceder à sua lista de favoritos em qualquer dispositivo.
Área de terreno : 1752 m²
Terreno urbano com projeto aprovado e licença paga para a construção de 3 moradias.Possibilidade de aprovar outro projecto para moradiasUm projeto do Atelier Rua ((url)) as moradias contemplam uma construção moderna mas com traços arquitetónicos algarvios, acabamentos e equipamentos de luxo.Área Total do Terreno 5739.27m² / Área comum 311.86m²Casa 1 - T4 com piscina e garagemÁrea do terreno 1752.53m² / Implantação 326.03m² / Área de Construção 330.92m²Casa 2 - T5 com piscina e garagemÁrea do terreno 1671.48m² / Implantação 403.58m² / Área de Construção 404.88m²Casa 3 - T5 com piscina e garagem Área terreno 2003.438m² / Implantação 415.88m² / Área de Construção 414.98m²Acabamentos:- Tetos de Betão à Vista- Pavimento Betão Afagado Envernizado- IS com Pedra Brecha de Tavira- Pavimento Zona Lazer Exterior Tijoleira Santa Catarina- Cobertura Exterior - Telha de Santa Catarina- Pintura Exterior - Branco- Painéis Fotovoltaicos- Carregamento Veículos ElétricosEste terreno localiza-se no sítio da Amaro Gonçalves. A vila da Luz de Tavira encontra-se a 2km enquanto que a cidade de Tavira a está a 5km.A Praia do Barril está a cerca de 5km.Casas do Sotavento é uma empresa familiar, reconhecida no país e no estrangeiro, por clientes, colaboradores, investidores, pela qualidade das nossas acções e dos nossos projecto. A nossa missão é de proporcionar uma experiência fácil e tranquila. A nossa preocupação, tratar toda a gente como gostaríamos de ser tratados.
AMI: 17215
Ref. Externa: SU-CS-TU-93570
Id: 1754688
Inicie sessão para guardar este imóvel e aceder à sua lista de favoritos em qualquer dispositivo.
Área de terreno : 5468 m²
Terreno com uma área de 5468m2 e ruína - Tavira Terreno Misto com possibilidade de construção até 600m2 para fins turísticos e 200m2 para moradia unifamiliar, num total de 5468m2 de área. Com água, furo, nora, eletricidade e tanque de rega que pode ser transformado em piscina. A construção pode ser ampliada até 200 m2, ou 600m2 se o interesse for para Turismo Rural, Alojamento local ou Atividade Turística. Muito bem localizado, a 18 metros de estrada asfaltada. Fazem parte deste rústico varias árvores, nomeadamente : 209 oliveiras, romãzeiras, nespereiras, ameixeiras e figueiras. O terreno possui um tanque de rega que pode ser transformado em piscina sem ser tributado e tem ainda um furo com bomba da Grande Force com água em abundância. . Perto de todas as comodidades, 3 minutos de Luz de Tavira e Santo Estevão, A 5 minutos de Moncarapacho e do nó da via do Infante e 5 minutos da Ria Formosa, Praia do Barril e Pinheiro. Esta informação não dispensa a consulta do processo junto das entidades competentes. Consulte-nos para mais informações. Premier Algarve Tavira Tavira, cidade, é conhecida como a capital do Polvo, é sede de concelho e possui 6 freguesias: Cachopo, Conceição e Cabanas de Tavira, Luz de Tavira e Santo Estevão, Santa Luzia e Tavira. Esta cidade foi o principal centro algarvio da pesca do atum nas ultimadas décadas do sec. XIX até meados do sec XX. É conhecida ainda como a cidade das igrejas. Trata-se de uma cidade histórica que desempenhou um papel importante como capital do Algarve na época governada pelos Romanos. O casario da zona histórica apresenta uma característica muito interessante com os seus telhados com 4 lados conhecidos « de 4 águas ».
AMI: 14471
Ref. Externa: T552
Id: 1710131
Inicie sessão para guardar este imóvel e aceder à sua lista de favoritos em qualquer dispositivo.
Profissionais que conhecem esta zona a fundo — contacte-os para uma avaliação personalizada.
15.000.000 €
Área de terreno : 1140000 m²
Esta propriedade é composta por dois artigos O Primeiro é um terreno localizado no concelho de Tavira, freguesia de Santo Estevão, na localidade de Monte Agudo, totalizando uma área de 20,28ha. É delimitado por terrenos privados e atravessado a Sul pela Via do Infante de Sagres (A22). E o Segundo é um terreno localizado junto ao primeiro, totalizando uma área de 94ha com implantação de citrinos munidos de tubagem para rega de 3'' e com 8kg de pressão. No primeiro refere-se, assim a um projeto para a edificação de um Hotel & Spa, de 5 estrelas, na Freguesia de Santo Estevão - Concelho de Tavira. O Plano Director Municipal de Tavira foi aprovado pela Resolução do Conselho de Ministros nº 97/97, de 19 de Junho, adaptado ao Plano Regional de Ordenamento do Território do Algarve através do Aviso nº 25861/2007, publicado no Diário da República, 2ª Série - nº 248 de 26 de Dezembro de 2007 e pela Declaração de Rectificação nº 1581/2011 de 20 de Outubro. Estruturar este destino e estimular o ordenamento de serviços turísticos locais é promover projetos que visam à acessibilidade urbana e à adaptação de atividades turísticas, contribuindo, assim, para uma maior oferta e, simultaneamente, para a melhoria da qualidade de vida da população local. O projeto será desenvolvido em três pisos, um em semicave e mais dois acima da cota de soleira. A distribuição funcional do hotel será feita da seguinte forma: a) Semicave - Destinado principalmente às zonas técnicas e de serviços, este piso, devido à natureza do terreno, terá algumas zonas onde 10 a cota do terreno permitirá que o piso fique desenterrado, as quais serão aproveitadas para instalação de espaços de uso público. Neste piso teremos os seguintes espaços: - Receção/hall de entrada; - Salões polivalentes destinados conferências e afins; - Espaço previsto para a implantação de um SPA e ginásio; - Piscina Coberta; - Garagem destinada ao Público; - Área administrativas, - Cozinha e áreas anexas; - Lavandaria e engomadoria; - Tabacaria; - Cabeleireiro; - Vestiários/Balneários e sanitários para os empregados; - Zonas técnicas e arrumos. b) Piso 1 - Destinado principalmente ao uso público, destaca-se a implantação dos principais serviços do hotel. Neste piso teremos, assim, os seguintes áreas: - Restaurante/Sala de refeições; - Esplanada / Bar de apoio à piscina; - Piscina; - Quartos (57 Quartos duplos e 2 suites num total de 118 camas); - Zonas técnicas e de apoio ao serviço de quarto. c) Piso 2 - Destinado principalmente a zona de quartos, conta, ainda, com um espaço destinado uso público. Neste piso teremos assim os seguintes áreas: - Restaurante/bar panorâmico; - Quartos (61 Quartos duplos e 2 suites num total de 124 camas); - Zonas técnicas e de apoio ao serviço de quarto.
AMI: 24614
Ref. Externa: TVR898CA
Id: 1704073
Inicie sessão para guardar este imóvel e aceder à sua lista de favoritos em qualquer dispositivo.
Área de terreno : 457 m²
Excelente lote de 457,50 m² LOTE N° 10, para construir em Santo Estevao (Tavira) !! Convido-o a vir descobrir uma bela oportunidade para construir o seu sonho, a sua própria moradia ! Ideal para ter a sua propria casa, investir e/ou ter uma casa de ferias para rentabilizar tambem… Localizado numa zona muito calma e a dois passos da igreja, esse lote situa-se na aldeia tipicamente algarvia de Sto Estevao. Com potencial de construção interessante : - Area de implantaçao : 300m2 - Até 700m2 de aréa de construçao (com cave, Piso 0 e piso 1) - Agua de rede e eletriciade pronto a ligar. Muito importante : Esse terreno esta num loteamento numa zona em pleno desenvolvimento, com varias moradias modernas em construçao e tem muita boa exposiçao solar, A localização estratégica deste lote coloca-o perto de todas as comodidades, centro de saude, escolas, instalações desportivas, praia as 10’... Pode fazer tudo a pé ! 5’ de carro de Tavira 7’ da Autoestrada A22 30’ de Faro 1h30 de Sévilha 15’ do Benamor’Golf / Conceiçao de Cabanas Tenho tudo o gusto de partilhar 50/50% com tudos os meus colegas das outras agencias, ou agente com licença AMI Nao hesite e liga jà ! #ref: 800505
AMI: 11220
Ref. Externa: 800505
Id: 1584972
Inicie sessão para guardar este imóvel e aceder à sua lista de favoritos em qualquer dispositivo.
Área de terreno : 436 m²
Excelente lote de 436 m2 LOTE N°3, para construir em Santo Estevao (Tavira) !! Convido-o a vir descobrir uma bela oportunidade para construir o seu sonho, a sua própria moradia ! Ideal para ter a sua propria casa, investir e/ou ter uma casa de ferias para rentabilizar tambem… Localizado numa zona muito calma e a dois passos da igreja, esse lote situa-se na aldeia tipicamente algarvia de Sto Estevao. Com potencial de construção interessante : - Area de implantaçao : 300m2 - Até 700m2 de aréa de construçao (com cave, Piso 0 e piso 1) - Agua de rede e eletriciade pronto a ligar. Muito importante : Esse terreno esta num loteamento numa zona em pleno desenvolvimento, com varias moradias modernas em construçao e tem muita boa exposiçao solar, A localização estratégica deste lote coloca-o perto de todas as comodidades, centro de saude, escolas, instalações desportivas, praia as 10’... Pode fazer tudo a pé ! 5’ de carro de Tavira 7’ da Autoestrada A22 30’ de Faro 1h30 de Sévilha 15’ do Benamor’Golf / Conceiçao de Cabanas Tenho tudo o gusto de partilhar 50/50% com tudos os meus colegas das outras agencias, ou agente com licença AMI Nao hesite e liga jà ! #ref: 800484
AMI: 11220
Ref. Externa: 800484
Id: 1584958
Inicie sessão para guardar este imóvel e aceder à sua lista de favoritos em qualquer dispositivo.
Área de terreno : 466 m²
Excelente lote de 466, 80 m² LOTE N° 9, para construir em Santo Estevao (Tavira) !! Convido-o a vir descobrir uma bela oportunidade para construir o seu sonho, a sua própria moradia ! Ideal para ter a sua propria casa, investir e/ou ter uma casa de ferias para rentabilizar tambem… Localizado numa zona muito calma e a dois passos da igreja, esse lote situa-se na aldeia tipicamente algarvia de Sto Estevao. Com potencial de construção interessante : - Area de implantaçao : 300m2 - Até 700m2 de aréa de construçao (com cave, Piso 0 e piso 1) - Agua de rede e eletriciade pronto a ligar. Muito importante : Esse terreno esta num loteamento numa zona em pleno desenvolvimento, com varias moradias modernas em construçao e tem muita boa exposiçao solar, A localização estratégica deste lote coloca-o perto de todas as comodidades, centro de saude, escolas, instalações desportivas, praia as 10’... Pode fazer tudo a pé ! 5’ de carro de Tavira 7’ da Autoestrada A22 30’ de Faro 1h30 de Sévilha 15’ do Benamor’Golf / Conceiçao de Cabanas Tenho tudo o gusto de partilhar 50/50% com tudos os meus colegas das outras agencias, ou agente com licença AMI Nao hesite e liga jà ! #ref: 800495
AMI: 11220
Ref. Externa: 800495
Id: 1584950
Inicie sessão para guardar este imóvel e aceder à sua lista de favoritos em qualquer dispositivo.
Área de terreno : 6820 m²
Terreno rústico de 6.820 m² em Luz de Tavira e Santo Estêvão – Tavira Descubra este magnífico terreno rústico de 6.820 m², localizado na tranquila zona de Luz de Tavira e Santo Estêvão, Tavira. Com uma localização ideal perto da M514, o terreno tem um acesso muito conveniente através de um trilho, o que facilita tanto a agricultura como as deslocações diárias, ao mesmo tempo que proporciona um ambiente natural e tranquilo. O terreno inclui uma bela plantação de 31 amendoeiras e 4 oliveiras, perfeita para um projeto agrícola, de lazer ou simplesmente para usufruir de um espaço natural tipicamente algarvio. Esta é uma excelente oportunidade de investimento para os amantes da natureza que procuram um terreno rústico de fácil acesso, já plantado e bem localizado perto de Tavira, no Sotavento Algarvio. Contacte-nos hoje mesmo para mais informações ou para agendar uma visita! #ref: 148351
AMI: 11220
Ref. Externa: 148351
Id: 1347141
Inicie sessão para guardar este imóvel e aceder à sua lista de favoritos em qualquer dispositivo.
Área de terreno : 3700 m²
Para venda – Terreno rústico de 3.700 m² em Luz de Tavira – Uma oportunidade rara no Algarve! Sonha com um terreno autêntico, de fácil acesso e com uma localização ideal perto de Tavira? Este terreno rústico de 3.700 m², plantado com amendoeiras e oliveiras, é a oportunidade perfeita para concretizar os seus projetos no Sotavento Algarvio. Localizado em Luz de Tavira, a poucos passos da M514, este terreno oferece um acesso rápido e conveniente, beneficiando de uma localização tranquila e verdejante, longe do ruído, mas perto de comodidades. Desfrutará de um ambiente natural e soalheiro, com vegetação típica da região: 18 amendoeiras e 2 oliveiras já plantadas, que conferem ao terreno o seu encanto e carácter mediterrânico. ✅ Principais Características: Área total: 3.700 m² Terreno plano e de fácil acesso Amendoeiras e olivais Local luminoso, tranquilo e autêntico Proximidade imediata da M514, Tavira e seus serviços Potenciais e possíveis utilizações: Este terreno rústico é uma excelente base para o desenvolvimento de um projecto agrícola (cultivo de amendoeiras, oliveiras, horta, produtos locais, apicultura, etc.). É também adequado para quem procura um investimento na natureza, com a oportunidade de desfrutar de um vasto espaço exterior em total tranquilidade. É também uma excelente oportunidade para criar um retiro rural, um local tranquilo onde pode desfrutar da amenidade do Algarve, a poucos minutos de Tavira, das suas praias e lojas. Porquê escolher este terreno? Porque combina três características raras: dimensão, fácil acesso e uma localização privilegiada numa zona em expansão. Poucos terrenos rústicos disponíveis combinam tantas qualidades nesta área tão procurada. Contacte-nos hoje mesmo para mais informações ou para agendar uma visita. Não perca esta oportunidade! #ref: 148357
AMI: 11220
Ref. Externa: 148357
Id: 1347119
Inicie sessão para guardar este imóvel e aceder à sua lista de favoritos em qualquer dispositivo.
Área de terreno : 5570 m²
Para venda – Terreno rústico de 5.570 m² em Luz de Tavira – Uma oportunidade rara no Algarve! Procura um terreno espaçoso, bem localizado e de fácil acesso para um projeto agrícola ou um investimento na natureza? Não perca esta oportunidade excecional: um terreno rústico de 5.570 m², localizado em Luz de Tavira, entre a exuberante paisagem rural e as principais vias de comunicação. Este terreno beneficia de uma localização ideal: a poucos passos de Santo Estêvão e próximo da autoestrada A22, oferece acesso direto e conveniente, preservando a tranquilidade do campo. Uma localização estratégica que combina serenidade e conectividade, perfeita para desenvolver os seus projetos no Algarve. Principais Características: Área total: 5.570 m² Plantações existentes: 7 oliveiras e 6 alfarrobas, árvores típicas do Algarve Terreno rústico, plano, luminoso e de fácil acesso Local natural, tranquilo e verdejante Acesso rápido à A22, Tavira e a todas as comodidades Um terreno com grande potencial: Ideal para um projeto agrícola (horta, plantações de oliveiras e alfarrobeiras, culturas locais, pomar, apicultura, etc.), este terreno representa também um investimento inteligente numa zona muito procurada do Sotavento Algarvio. A sua generosa dimensão oferece inúmeras possibilidades de desenvolvimento e a sua acessibilidade torna-o uma mais-valia rara. ✨ Porquê escolher este terreno? Porque combina espaço, fácil acesso e uma localização estratégica perto de Tavira. Desfrute de um cenário natural autêntico a poucos minutos da cidade, das praias e das principais autoestradas. Poucos terrenos rústicos disponíveis atualmente oferecem um equilíbrio tão grande entre natureza e acessibilidade. Contacte-nos agora mesmo para agendar uma visita ou obter mais informações. Este tipo de oportunidade em Luz de Tavira é muito procurada: não perca! #ref: 148352
AMI: 11220
Ref. Externa: 148352
Id: 1347096
Inicie sessão para guardar este imóvel e aceder à sua lista de favoritos em qualquer dispositivo.
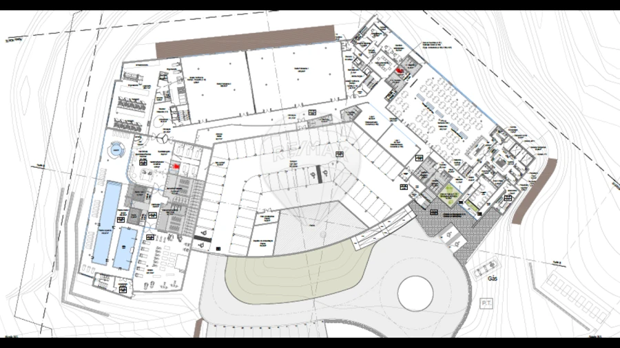
Área de terreno : 943156 m²
Ativo Único no Algarve Terreno Misto com Viabilidade de Construção para Hotel 5 Estrelas e Elevado Potencial TurísticoMonte Agudo | Entre Olhão e Tavira | Vista Panorâmica Uma oportunidade excecional no coração do Algarve, dirigida a investidores, promotores turísticos e operadores agrícolas, que reúne escala, localização estratégica e múltiplas possibilidades de desenvolvimento. Área Total 1.140.000 m² (114 hectares) A Propriedade de Monte Agudo é um terreno misto de grande dimensão, localizado numa zona privilegiada entre Olhão e Tavira, com excelente exposição solar, ampla visibilidade e acessos rápidos à A22 – Via do Infante (saída Tavira). A propriedade dispõe de projeto para a construção de um Hotel 5 Estrelas com SPA. Área destinada ao desenvolvimento turístico: 203.571,40 m², incluindo: 120 unidades de alojamento (116 quartos duplos + 4 suítes) Capacidade total: 240 camas Área de implantação: 6.075 m² (abaixo dos 10% permitidos) Área bruta de construção: 11.296,30 m² 3 pisos (cave, rés-do-chão e 1.º andar) SPA, piscina interior e exterior, ginásio e salas de conferência Bar panorâmico 50 lugares de estacionamento Flexibilidade de Desenvolvimento Mediante adaptação do projeto ou novo enquadramento urbanístico, o terreno permite o desenvolvimento de outros conceitos turísticos premium, tais como: Resort de luxo Hotel sénior Wellness resort Resort familiar de alto padrão Clube privado / day-use premium Complexo aquático turístico com piscina de ondas (como equipamento complementar hoteleiro) Componente Agrícola – Terreno Rústico (94 ha) 54 hectares de citrinos Projeto aprovado para 30 hectares de abacateiros 4 furos de água existentes Agricultura produtiva integrada ao projeto turístico Localização Estratégica ⏱ 30–35 minutos do Aeroporto Internacional de Faro? 5–10 minutos da A22? Entre Olhão e Tavira Forte visibilidade e excelente acessibilidade Principais Vantagens ✔ Desenvolvimento de múltiplos conceitos turísticos premium✔ Agricultura✔ Recursos hídricos próprios✔ Localização estratégica no Algarve✔ Elevado potencial de valorização e retorno Um ativo raro e altamente diferenciador no Algarve ? Contacte-nos para mais informações ou agende já a sua visita! ;ID RE/MAX: 125011252-2
AMI: 7772
Ref. Externa: 125011252-2
Id: 1282126
Inicie sessão para guardar este imóvel e aceder à sua lista de favoritos em qualquer dispositivo.
Área de terreno : 20630 m²
Terreno de mais de 20 000 m² para construçao de loteamento No coraçao de Luz de Tavira. Oportunidade de investimento excecional no centro da Luz de Tavira. Localizado perto de todas as estradas principais e numa zona calma e residencial, este terreno oferece um potencial de desenvolvimento significativo devido à forte procura local. Caraterísticas principais: Área: 20 630 m² (limites de cor azul na foto) Possibilidade de construir 9 lotes Edifícios de três andares acima do nível do solo, com cave Estacionamento previsto (Estudo de projeto realizado). Projectos de grande dimensão : Mais de 114 apartamentos (96 T2 e 18 T3) em vários edifícios Este lote é uma excelente oportunidade para desenvolver um projeto residencial de alta qualidade numa zona em franco crescimento e procurado. MUITO IMPORTANTE : Esse terreno esta junto num outro terreno a venda de mais 4200m2 ( terreno de cor amarelo na foto) _ link do anuncio do segundo terreno : https://www.iadportugal.pt/anuncio/terreno-venda-0-quartos-luz-de-tavira-e-santo-estevao-4200m2/r122396 Da para aumentar de maneira significativa o seu projecto e a rentabilidada. Contacte-me para mais informações e para marcar uma visita ! Partilho com tudo os meus coleagas com Licença AMI. #ref: 142561
AMI: 11220
Ref. Externa: 142561
Id: 1204744
Inicie sessão para guardar este imóvel e aceder à sua lista de favoritos em qualquer dispositivo.
Área de terreno : 1530 m²
Quintinha com pequena casa em ruínas, situada junto á Ria Formosa com acesso directo a uma distancia de 500m2 do mar.
AMI: 6513
Ref. Externa: 2330
Id: 1201518
Inicie sessão para guardar este imóvel e aceder à sua lista de favoritos em qualquer dispositivo.
© Copyright 2023 | CASACERTA. All rights reserved
Guardar favoritos
Este imóvel foi guardados nos seus favoritos com sucesso.
Para poder guardar pesquisa deverá ter a sua sessão iniciada.
Caso não tenha uma conta, deverá criar uma.
A sua pesquisa foi guardada com sucesso!
Este site utiliza cookies. Ao navegar no site estará a consentir a sua utilização.
Para mais informações sobre os cookies pode consultar a
política de privacidade.