Filtros
0 · 1 resultados14.000 €
Área de terreno : 676 m²
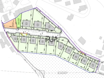
Lotes de terreno para construção de moradias isoladas.Situados num loteamento em Infias. A 2min da vila de Fornos de Algodres e a 3 minutos do Hotel & SPA - Termas S. Miguel.Com áreas totais que variam entre 676 a 1204m2. Implantações entre 250 a 300m2.Têm uma excelente exposição solar, declive plano. Próximos do meio urbano.
AMI: 15113
Ref. Externa: #T_F021
Id: 521016
Inicie sessão para guardar este imóvel e aceder à sua lista de favoritos em qualquer dispositivo.
© Copyright 2023 | CASACERTA. All rights reserved
Guardar favoritos
Este imóvel foi guardados nos seus favoritos com sucesso.
Para poder guardar pesquisa deverá ter a sua sessão iniciada.
Caso não tenha uma conta, deverá criar uma.
A sua pesquisa foi guardada com sucesso!
Este site utiliza cookies. Ao navegar no site estará a consentir a sua utilização.
Para mais informações sobre os cookies pode consultar a
política de privacidade.