Filtros
0 · 21 resultados160.000 €
Área de terreno : 5336 m²
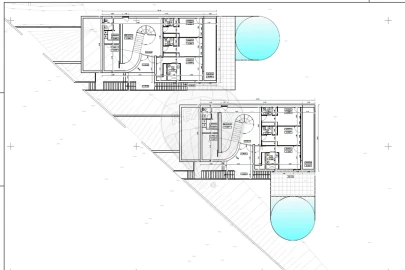
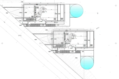
Situado na bonita aldeia de Casal Velho, encontramos um terreno urbano perfeito para o projeto de qualquer pessoa que tenha idealizado construir a sua própria moradia ou para construtores que procurei o local ideal para um pequeno empreendimento. Com uma área total de 5336.7m², este pequeno cantinho do céu conta com Informação Previa favorável a construção de 3 moradias e todas as plantas aprovadas. Possível construção de 3 frações: A - T3/T4 - 1.519m2 lote, 300m2 de implantação, construção de 2 pisos + cave B - T3/T4 - 1.521m2 lote, 300m2 implantação, construção de 2 pisos + cave C - T3/T4 - 1.618m2 lote, 300m2 implantação, construção de 2 pisos + cave Exposição solar muito boa, acessos a bens de 1º necessidade fáceis e rápidos. Próximo da Vila de São Martinho do Porto, da Cidade de Alcobaça e de Caldas da Rainha, a localização não poderia ser melhor. Não hesite em contactar para conhecer todos os pormenores desta excelente oportunidade de investimento.
AMI: 24609
Ref. Externa: 0093
Id: 1772211
Inicie sessão para guardar este imóvel e aceder à sua lista de favoritos em qualquer dispositivo.
70.000 €
Área de terreno : 1340 m²
Terreno com 1.340m2, rústico, localizado em Valado de Santa Quitéria. Segundo o PDM em vigor, este terreno é classificado como: espaços urbanos de baixa densidade (direito à informação já solicitado na C.M.A.) Valado de Santa Quitéria, é uma pacata aldeia da freguesia de Alfeizerão, Concelho de Alcobaça, no coração da Zona Oeste. Ao adquirir este terreno, vai permitir construir a sua uma moradia idealizada, de acordo com os seus sonhos. Com uma boa exposição solar, durante todo o dia, assim como boas vistas para o verde da natureza abundante. A sua localização, permite ainda ter por perto vários comércios nas redondezas, e permite também poder disfrutar de caminhadas, com total segurança. A proximidade de cidades como Caldas da Rainha, Alcobaça, Nazaré, ou Óbidos, ricas em património histórico e uma enorme beleza que lhe é natural, conferem uma oferta cultural de elevada qualidade. No centro de Portugal, Costa de Prata, próxima do acesso a vias rápidas e autoestradas. A Baía de S. Martinho do Porto, que fica apenas a 10 kms e 13 minutos possui uma extensa área de passadiços sobre as dunas de areia e o rio Tornada que se estendem até Salir do Porto, convidando a passeios e caminhadas em sintonia com a natureza. A pureza do ar que se respira é garantida pela proximidade ao Oceano Atlântico. Entre muitas outras ofertas de atividades de lazer, destacamos o excelente campo de golf do Béltico, ou para quem preferir a prática de surf, as mundialmente conhecidas praias do Norte da Nazaré, ou a praia dos Supertubos em Peniche. Não perca esta oportunidade de realizar um excelente investimento! O meu nome é Sofia Feliciano, sou consultora imobiliária da JBP Imobiliária, em Caldas da Rainha, Costa de Prata, Portugal. Na JBP, partilhamos negócios com qualquer consultor imobiliário ou agência imobiliária com licença AMI. Se é profissional do sector e tem um cliente qualificado, contacte-me para obter mais informações e agende a sua visita.
AMI: 24609
Ref. Externa: 0081
Id: 1772212
Inicie sessão para guardar este imóvel e aceder à sua lista de favoritos em qualquer dispositivo.
169.900 €
Área de terreno : 3404 m²
CONSTRUA O SEU PROJETO PRÓXIMO DAS PRAIAS DO OESTE! Excelente terreno para construção, com PIP aprovado para 3 moradias, localizado na estrada principal do Casal do Aguiar e com ótimos acessos. Com uma área total de 3.404 m², o terreno encontra-se dividido por uma estrada que garante acesso independente à terceira moradia. O PIP aprovado contempla áreas de construção generosas, ideais para projetos de destaque e elevada valorização. Existe ainda a possibilidade de deduzir o valor do PIP na elaboração de novos projetos. Uma oportunidade única para investir ou desenvolver o seu projeto habitacional numa zona tranquila, próxima das magníficas praias da região Oeste. Não deixe de perder esta oportunidade! SMILES 4U - O SEU SORRISO MORA AQUI! ::::::::::::::::::::::::::::::::::::::::::::::::::::::::::::::::::::::::::::::::::::::::::::::::::: Premium Land with Approved PIP for 3 Homes - Near the West Coast Beaches! BUILD YOUR PROJECT NEAR THE WEST COAST BEACHES! Excellent plot of land for construction, with an approved PIP for 3 homes, located on the main road in Casal do Aguiar with great access. With a total area of 3,404 m² (approx. 36,640 sq ft), the property is divided by a road that provides independent access to the third home. The approved PIP allows for generous construction areas, ideal for high-quality projects with strong appreciation potential. There is also the possibility to deduct the cost of the PIP when developing new projects. A unique opportunity to invest or develop your residential project in a peaceful area, close to the stunning beaches of the West Coast region. Don't miss this opportunity! SMILES 4U - YOUR SMILE LIVES HERE!
AMI: 8148
Ref. Externa: S4U100-V201
Id: 1764304
Inicie sessão para guardar este imóvel e aceder à sua lista de favoritos em qualquer dispositivo.
169.901 €
Área de terreno : 816 m²
INVESTIMENTO DE ALTO POTENCIAL - PRONTO A CONSTRUIR! Lote exclusivo com projeto aprovado + licença levantada Comece a construir HOJE. Sem esperas. Sem burocracias. Imagine investir num projeto onde tudo já está tratado, localização, viabilidade e potencial de valorização. Só falta dar o primeiro passo. LOCALIZAÇÃO QUE VENDE POR SI A poucos minutos da deslumbrante praia de São Martinho do Porto, numa zona: - Tranquila - Envolvida pela natureza - Com excelente exposição solar - Perfeita para habitação ou mercado de arrendamento PROJETO: 2 MORADIAS T2 ISOLADAS Duas unidades modernas, com espaço exterior generoso altamente procuradas no mercado atual. - Terreno plano - Infraestrutura pronta - Muro de suporte em pedra já executado - Redução significativa de custos e tempo de obra DETALHES DAS FRAÇÕES Fração A - Funcional e equilibrada Tipologia: T2 Área total exclusiva: 349,50 m² Área bruta: 104,35 m² Logradouro: 245,15 m² Fração B - Mais espaço, mais valorização Tipologia: T2 Área total exclusiva: 466,80 m² Área bruta: 126,20 m² Logradouro: 340,60 m² PORQUÊ ESTE NEGÓCIO? - Elevada procura por moradias T2 com espaço exterior - Ideal para revenda ou arrendamento - Projeto otimizado para rentabilidade - Entrada imediata em obra = retorno mais rápido OPORTUNIDADE RARA NO MERCADO Negócios assim, prontos a avançar, são cada vez mais escassos. Se procura rentabilidade, segurança e rapidez, este é o investimento certo. AGENDE JÁ A SUA VISITA Não deixe escapar este projeto com tudo pronto a arrancar. SMILES 4U - O SEU SORRISO MORA AQUI! ::::::::::::::::::::::::::::::::::::::::::::::::::::::::::::::::::::::::::::::::::::::::::::::::::::::::::::::::::::::: ZERO WAIT, MAXIMUM RETURN | PROJECT + PERMIT INCLUDED - 2 READY-TO-BUILD HOUSES! HIGH POTENTIAL INVESTMENT - READY TO CONSTRUCT! Exclusive lot with approved project + permit obtained Start building TODAY. No waiting. No red tape. Imagine investing in a project where everything is already taken care oflocation, feasibility, and potential for appreciation. All that's left is taking the first step. LOCATION THAT SELLS ITSELF Just minutes from the stunning São Martinho do Porto beach, in an area that is: Peaceful Surrounded by nature Bathed in excellent sunlight Perfect for personal residence or rental market PROJECT: 2 DETACHED T2 HOUSES Two modern units with generous outdoor spacehighly sought after in today's market. Flat land Infrastructure ready Stone retaining wall already built Significant cost and construction time savings UNIT DETAILS Unit A - Functional and Balanced Type: T2 Total exclusive area: 349.50 m² Gross area: 104.35 m² Yard: 245.15 m² Unit B - More Space, More Value Type: T2 Total exclusive area: 466.80 m² Gross area: 126.20 m² Yard: 340.60 m² WHY THIS DEAL? High demand for T2 homes with outdoor space Ideal for resale or rental income Project optimized for profitability Immediate construction start = faster return RARE MARKET OPPORTUNITY Deals like this, ready to go, are becoming increasingly scarce. If you're looking for profitability, security, and speed, this is the right investment. SCHEDULE YOUR VISIT NOW Don't miss this fully prepared project ready to launch. SMILES 4U - YOUR SMILE LIVES HERE!
AMI: 8148
Ref. Externa: S4U100-V205
Id: 1764301
Inicie sessão para guardar este imóvel e aceder à sua lista de favoritos em qualquer dispositivo.
169.902 €
Área de terreno : 889 m²
ZERO ESPERA, MÁXIMO RETORNO | PROJETO + LICENÇA INCLUÍDOS - 2 MORADIAS PRONTAS A CONSTRUIR! INVESTIMENTO DE ALTO POTENCIAL - PRONTO A CONSTRUIR! Lote exclusivo com projeto aprovado + licença levantada Comece a construir HOJE. Sem esperas. Sem burocracias. Imagine investir num projeto onde tudo já está tratado, localização, viabilidade e potencial de valorização. Só falta dar o primeiro passo. LOCALIZAÇÃO QUE VENDE POR SI A poucos minutos da deslumbrante praia de São Martinho do Porto, numa zona: - Tranquila - Envolvida pela natureza - Com excelente exposição solar - Perfeita para habitação ou mercado de arrendamento PROJETO: 2 MORADIAS T2 ISOLADAS Duas unidades modernas, com espaço exterior generoso altamente procuradas no mercado atual. - Terreno plano - Infraestrutura pronta - Muro de suporte em pedra já executado - Redução significativa de custos e tempo de obra DETALHES DAS FRAÇÕES Fração A - Funcional e equilibrada Tipologia: T2 Área total exclusiva: 461,75 m² Área bruta: 106,45 m² Logradouro: 355,30 m² Fração B - Mais espaço, mais valorização Tipologia: T2 Área total exclusiva: 427,20 m² Área bruta: 106,45 m² Logradouro: 320,75 m² PORQUÊ ESTE NEGÓCIO? - Elevada procura por moradias T2 com espaço exterior - Ideal para revenda ou arrendamento - Projeto otimizado para rentabilidade - Entrada imediata em obra = retorno mais rápido OPORTUNIDADE RARA NO MERCADO Negócios assim, prontos a avançar, são cada vez mais escassos. Se procura rentabilidade, segurança e rapidez, este é o investimento certo. AGENDE JÁ A SUA VISITA Não deixe escapar este projeto com tudo pronto a arrancar. SMILES 4U - O SEU SORRISO MORA AQUI! ::::::::::::::::::::::::::::::::::::::::::::::::::::::::::::::::::::::::::::::::::::::::::::::::::::::::::::::::::::::: ZERO WAIT, MAXIMUM RETURN | PROJECT + PERMIT INCLUDED - 2 READY-TO-BUILD HOUSES! HIGH POTENTIAL INVESTMENT - READY TO CONSTRUCT! Exclusive lot with approved project + permit obtained Start building TODAY. No waiting. No red tape. Imagine investing in a project where everything is already taken care oflocation, feasibility, and potential for appreciation. All that's left is taking the first step. LOCATION THAT SELLS ITSELF Just minutes from the stunning São Martinho do Porto beach, in an area that is: Peaceful Surrounded by nature Bathed in excellent sunlight Perfect for personal residence or rental market PROJECT: 2 DETACHED T2 HOUSES Two modern units with generous outdoor spacehighly sought after in today's market. Flat land Infrastructure ready Stone retaining wall already built Significant cost and construction time savings UNIT DETAILS Unit A - Functional and Balanced Type: T2 Total exclusive area: 461,75 m² Gross area: 106,45 m² Yard: 355,30 m² Unit B - More Space, More Value Type: T2 Total exclusive area: 427,75 m² Gross area: 106,45 m² Yard: 320,75 m² WHY THIS DEAL? High demand for T2 homes with outdoor space Ideal for resale or rental income Project optimized for profitability Immediate construction start = faster return RARE MARKET OPPORTUNITY Deals like this, ready to go, are becoming increasingly scarce. If you're looking for profitability, security, and speed, this is the right investment. SCHEDULE YOUR VISIT NOW Don't miss this fully prepared project ready to launch. SMILES 4U - YOUR SMILE LIVES HERE!
AMI: 8148
Ref. Externa: S4U100-V204
Id: 1764302
Inicie sessão para guardar este imóvel e aceder à sua lista de favoritos em qualquer dispositivo.
89.000 €
Área de terreno : 6310 m²
Terreno com Projeto Aprovado para 2 Moradias | Macalhona, Alfeizerão Apresentamos uma excelente oportunidade para quem procura investir com segurança e rapidez, num terreno com projeto totalmente aprovado para duas moradias unifamiliares. Inserido numa zona tranquila e com forte valorização, este imóvel permite avançar de imediato para a construção, eliminando prazos e incertezas associados a processos de licenciamento. Características gerais: Área total do terreno: 6.310 m² Projeto de arquitetura e projeto de especialidades aprovados Licença de construção a levantamento (pronto a iniciar obra) Propriedade horizontal: 2 frações com 1.500 m² cada 3.000 m² de área comum Projeto das moradias (Frações A e B): Tipologia: T3 + escritório Área bruta de construção: 300 m² (cada) Área de implantação: 207 m² (cada) Distribuição em 3 pisos: Piso 0: garagem, cozinha e sala em open space, varanda Piso -1: 3 suites, varanda, biblioteca e escritório Piso -2: piscina e zona de lazer Projeto moderno e bem estruturado Excelente enquadramento natural e privacidade Ideal para investimento ou projeto habitacional de qualidade Possibilidade de início imediato da construção Uma solução ideal para promotores ou particulares que valorizam localização, enquadramento e eficiência no processo de construção. Agende a sua visita e descubra todo o potencial deste projeto pronto a ganhar vida. Oportunidade sólida numa zona em crescente procura. Localização: A poucos minutos de Alfeizerão 10 minutos da Baía de São Martinho do Porto Próximo da Foz do Arelho e Lagoa de Óbidos Acesso rápido à A8 | cerca de 60 minutos de Lisboa
AMI: 7420
Ref. Externa: TS1923
Id: 1739410
Inicie sessão para guardar este imóvel e aceder à sua lista de favoritos em qualquer dispositivo.
85.000 €
Área de terreno : 3920 m²
Excelente oportunidade de investimento em solo rústico, localizado em Alfeizerão, concelho de Alcobaça. Este terreno destaca-se pela sua generosa área de 3.920m² e pela localização privilegiada junto aos principais eixos turísticos da região.Ficha Técnica:Área Total: 3.920m² (Tipologia: Semeadura).Morfologia: Terreno maioritariamente plano, facilitando qualquer atividade agrícola ou projeto de lazer.Acessibilidade: Estrada secundária com acesso direto, garantindo privacidade sem isolamento.Eixo Costeiro: Foz do Arelho (5 min), São Martinho do Porto (10 min) e Caldas da Rainha (15 min).Um ativo seguro para quem procura investir na região que mais cresce na Costa de Prata.Gostaria de conhecer o potencial deste terreno ou agendar uma visita ao local? Entre em contacto para mais informações.
AMI: 17184
Ref. Externa: SF-SAFTI:006797
Id: 1733896
Inicie sessão para guardar este imóvel e aceder à sua lista de favoritos em qualquer dispositivo.
65.000 €
Área de terreno : 3463 m²
Terreno com Potencial Único em Alfeizerão - Próximo da Praia de São Martinho do Porto Terreno com 3.463 m², localizado na tranquila Rua Azinhaga do Rio, em Alfeizerão. Situa-se a poucos minutos da encantadora baía de São Martinho do Porto, beneficiando de uma localização privilegiada, com proximidade a serviços, comércio local e com fácil acesso ao nó da A8. A propriedade destaca-se pela presença de uma azenha centenária em ruínas, com elevado potencial para recuperação, conferindo um carácter único ao espaço. Parte do terreno encontra-se inserido em zona urbana de 300 m², de acordo com os parâmetros urbanísticos atuais., a restante área integra a Reserva Agrícola Nacional, ideal para cultivo ou desenvolvimento de projetos em harmonia com a natureza. Características principais: Área total: 3.463 m² Zona calma, com bons acessos Próximo da praia, comércio, serviços e auto-estrada Azenha antiga com potencial de reabilitação Possibilidade de construção na área urbana de 300 m² dos 3.463 m2 As informações apresentadas são meramente informativas e não têm carácter vinculativo, não dispensando a consulta prévia junto da Câmara Municipal de Alcobaça. Excelente oportunidade para habitação, investimento ou projeto turístico, numa zona em franca valorização.
AMI: 10312
Ref. Externa: LM982T
Id: 1706965
Inicie sessão para guardar este imóvel e aceder à sua lista de favoritos em qualquer dispositivo.
150.000 €
Área de terreno : 5777 m²
Descobre o teu refúgio perfeito a apenas 15 minutos de Caldas da Rainha e a 10 minutos de São Martinho do Porto. Este terreno de 5777m² oferece uma oportunidade única para construir a casa dos teus sonhos, com um projeto aprovado para um imóvel térreo de cerca de 400m². Imagina acordar todos os dias rodeado por um espaço exterior desenhado para o lazer e a tranquilidade, onde podes adicionar uma piscina, jacuzzi, mini-golf, ou até um jardim com árvores de fruto. Este é o local ideal para criar memórias inesquecíveis em família ou simplesmente desfrutar da serenidade do campo. Não percas esta oportunidade de viver num ambiente urbano com o charme de uma moradia unifamiliar.
AMI: 10595
Ref. Externa: TER_1185
Id: 1703096
Inicie sessão para guardar este imóvel e aceder à sua lista de favoritos em qualquer dispositivo.
160.000 €
Área de terreno : 5337 m²
Terreno com informação prévia favorável para construção de 3 moradias unifamiliares, com possibilidade de piscina, em regime de propriedade horizontal. Areas do terreno das frações: Fração A - 1519m2 Fração B - 1521m2 Fração C - 1618m2 Servido de: rede de abastecimento de águas, esgotos, eletricidade e estrada alcatroada. Local muito sossegado, com privacidade, excelente exposição solar e vista para o campo e serra. Distancias: São Martinho do Porto: 10km Autoestrada A8: 5 km Aeroporto de Lisboa: 102 km Estação Ferroviária de São Martinho do Porto: 10km Nazaré: 19km Golf Óbidos: 33 km Caldas da Rainha: 20km Alcobaça: 16 km
AMI: 7420
Ref. Externa: TS1820T2
Id: 1702834
Inicie sessão para guardar este imóvel e aceder à sua lista de favoritos em qualquer dispositivo.
Profissionais que conhecem esta zona a fundo — contacte-os para uma avaliação personalizada.
110.000 €
Área de terreno : 2410 m²
Oportunidade de investimento: Terreno situado no Casal Velho, Alfeizerão, com PIP (Pedido de Informação Prévia) aprovado para a construção de duas moradias. Características do Terreno: Localização: Situado a somente a 9 km da deslumbrante baía de São Martinho do Porto, este terreno oferece a perfeita combinação de tranquilidade e proximidade ao acesso a uma das praias mais procuradas da região. Área do Terreno: 2.410m2, proporcionando espaço amplo para o desenvolvimento das moradias com áreas generosas, piscinas e jardins. Zona Residencial: O terreno encontra-se numa área tranquila e residencial, ideal para famílias que desejam desfrutar de um estilo de vida sossegado, ao mesmo tempo que estão a poucos minutos das comodidades e serviços disponíveis em Alfeizerão. Vantagens: Investimento seguro: Com o PIP aprovado, o processo de construção é facilitado, tornando este terreno uma opção atrativa para quem deseja investir em imóveis. Acessibilidade: A localização oferece fácil acesso a várias estradas principais, facilitando a deslocação para as cidades vizinhas e o acesso a serviços essenciais. Proximidade à Natureza: A região é conhecida pela sua beleza natural, proporcionando oportunidades para atividades ao ar livre, caminhadas e desfrutar do ar livre. Não perca a oportunidade de adquirir este terreno com grande potencial de valorização. Aproveite esta oportunidade única de construir as moradias dos seus sonhos ou desenvolver um projeto rentável. Para mais informações ou para agendar uma visita, entre em contato!
AMI: 7420
Ref. Externa: TS1844
Id: 1702831
Inicie sessão para guardar este imóvel e aceder à sua lista de favoritos em qualquer dispositivo.
130.000 €
Área de terreno : 1800 m²
Terreno para construção com localização privilegiada, a 10 minutos de São Martinho do Porto. Apresentamos este excelente terreno. Localizado numa zona muito tranquila perto das várias praias da região, com destaque para a baía de São Martinho do Porto. O terreno está em zona classificada como 'Espaços Urbanos de Baixa Densidade' com um índice de ocupação de 0,7 que permite uma construção de até 1260m2, permitindo a construção de várias unidades habitacionais. A viabilidade da construção está sujeita à legislação urbanística em vigor e não dispensa a obtenção das necessárias autorizações. Servido de todas as infra estruturas, rede publica de esgotos, abastecimento de água, eletricidade e fibra óptica. Características principais: Possibilidade de construção de até 1.360m2 Local sossegado e de baixa densidade habitacional; Vista panorâmica; Excelente exposição solar; Ambiente natural e tranquilo; Excelentes acessos, a 5 minutos da A8. Distancias: Aeroporto de Lisboa - 102km Nazaré - 18km Alcobaça - 14km São Martinho do Porto - 8km Óbidos - 25km Golf - 34km Caldas da Rainha - 18km Não perca esta oportunidade única de construir a casa dos seus sonhos num cenário idílico. Entre em contacto para mais informações ou para agendar uma visita ao local.
AMI: 7420
Ref. Externa: TS1896
Id: 1702827
Inicie sessão para guardar este imóvel e aceder à sua lista de favoritos em qualquer dispositivo.
200.000 €
Área de terreno : 3400 m²
Apresento-lhe uma excelente oportunidade de investimento em Valado de Santa Quitéria, Alfeizerão! Trata-se de um lote isolado com uma área de 3.400 m², ideal para quem procura investir num projecto imobiliário, com uma localização tranquila e privilegiada. Este terreno conta com um projecto aprovado para a construção de quatro moradias modernas, cada uma com aproximadamente 206 m² de área útil, oferecendo espaço e conforto para toda a família. Cada fracção será implantada num lote isolado, dispondo ainda de uma piscina privativa, perfeita para desfrutar dos dias de sol e momentos de lazer, além de uma garagem que garante praticidade. O alvará de construção já disponível e o projecto aprovado proporcionam uma excelente oportunidade de investimento, uma vez que pode começar a obra de imediato, e ainda, se pretender, reservar para si uma residência própria. Localizado em Valado de Santa Quitéria, uma zona serena e de fácil acesso, próximo de praias, comércio e serviços, este é o lugar ideal para quem valoriza qualidade de vida e tranquilidade, sem abrir mão da conveniência de estar perto de tudo. Que ótimo saber que o alvará de construção já foi levantado e que a obra está pronta para começar! Isso indica que toda a documentação está em dia, o que deve facilitar bastante o andamento do projecto. Se precisar de alguma ajuda ou tiver mais dúvidas, estou aqui para ajudar antes e depois da sua aquisição! Não perca esta oportunidade única de adquirir um terreno com potencial de realização de um projecto exclusivo e com bom gosto. Você merece o imóvel certo! Entre em contacto comigo para mais informações e agendar uma visita! A CASA DA PORTELA Imobiliária – É uma empresa de mediação imobiliária e Intermediação de Crédito criada em 2013. Os seus sócios fundadores possuem um sólido conhecimento acumulado desde 1994 sobre o mercado imobiliário, mantendo-se atentos às suas tendências e evolução, e com uma Intermediação de Crédito registado no Banco de Portugal com o nº 0004889. A empresa começou por centrar-se na região do Grande Porto, conseguindo, desde o início, um grande volume de transações. O sucesso do modelo de negócio fez com que a marca Casa da Portela imobiliária chegasse em 2022 a Vila Nova de Famalicão. A Casa da Portela imobiliária pretende valorizar o trabalho dos consultores e prestar um serviço de excelência aos seus clientes, proporcionando um serviço de qualidade e tranquilidade, de forma a realizar bons negócios, garantindo a satisfação dos nossos clientes e parceiros. Para atingir esse propósito, dispomos de uma equipa multidisciplinar de profissionais qualificados, com vasta experiência em mediação imobiliária que nos permite apresentar e sugerir as melhores alternativas para os seus objetivos de venda, de arrendamento, ou de investimento imobiliário. Possuímos uma rede de contatos privilegiada que nos permite potenciar a divulgação, a gestão e a concretização de negócio do seu imóvel em vários formatos. 3 Pilares fundamentais da Casa da Portela: Missão A nossa missão é orientar os nossos objetivos excecionais (financeiros, humanos e sociais) na nossa organização e uni-los aos nossos não menos excecionais clientes, atendendo sempre às suas necessidades, desejos e expectativas. A Casa da Portela imobiliária nasceu para que fosse possível prestar um acompanhamento e apoio contínuos, explicação e esclarecimento de dúvidas, sobre todo o processo de compra, venda ou arrendamento de imóveis em Portugal. A concretização de tudo isto faz com que a nossa máxima ambição seja sermos os melhores no mercado imobiliário. Visão A nossa visão é sermos a empresa de referência no mercado imobiliário, assim como sermos reconhecidos como a melhor opção para os nossos clientes. Para isso, fazemos sempre por manter um espírito inovador e de liderança que nos levará ao reconhecimento pela nossa excelência no mercado. Valores Os nossos valores são sempre o conjunto das nossas atitudes e crenças, que envolvem todas as pessoas da organização, para que, em uníssono, consigamos atingir os resultados de excelência a que nos propomos sempre que são baseados na Qualidade, Profissionalismo, Responsabilidade, Respeito e Inovação.
AMI: 10340
Ref. Externa: 1123721
Id: 1687962
Inicie sessão para guardar este imóvel e aceder à sua lista de favoritos em qualquer dispositivo.
84.000 €
Área de terreno : 1700 m²
NOVO E EXCLUSIVO!!! Terreno bem situado, Lote de terreno destinado a construção urbana com projeto aprovado, de área total do terreno de 1700 m2 Potencial para fazer 3 moradias Centro do Portugal Alcobaça, Alfeizerão Valado Santa qQuiteria! 10 min de São Martinho do Porto 15 min de Nazaré 1H de Lisboa ---- ------- ------ ------ ----- ----- Sim, Comigo também pode vender ou encontrar ofertas aos melhores preços. Sim em português ou francês, Eu seria o seu amigo do ramo imobiliário. ------ -------- ------ -------- --------- -------
AMI: 26473
Ref. Externa: AC302
Id: 1685448
Inicie sessão para guardar este imóvel e aceder à sua lista de favoritos em qualquer dispositivo.
175.000 €
Área de terreno : 5777 m²
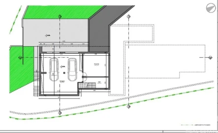
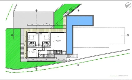
Terreno com Licença de construção para Moradia de Luxo 554m² + Piscina | Alfeizerão Próximo São Martinho do Porto 554 M² DE CONSTRUÇÃO | PISCINA 110 M² | ALFEIZERÃO COSTA DE PRATA OPORTUNIDADE RARA. Existem terrenos para construir. E depois existem oportunidades onde a escala, a volumetria e o potencial colocam o projeto num patamar completamente diferente. Na Rua Luís Camões, em Valado de Santa Quitéria, freguesia de Alfeizerão, concelho de Alcobaça, encontra-se um terreno com licença de construção já emitida, paga e levantada, para uma moradia unifamiliar com características verdadeiramente raras no mercado regional. DADOS APROVADOS: Área total de construção: 554,33 m² Área de implantação: 466,45 m² Volumetria: 3.265,15 m³ Piscina: 110,20 m² 2 pisos acima da cota de soleira Altura aprovada: 7 metros Uso: Habitação unifamiliar Estamos a falar de uma implantação com quase 470 m² algo muito acima da média habitual. ESCALA QUE PERMITE CONSTRUIR SEM COMPROMISSOS Esta dimensão permite desenvolver uma moradia com: Zona social ampla e integrada com o exterior Grandes superfícies envidraçadas Várias suítes de dimensão confortável Master suite de padrão superior Escritório, ginásio, sala de cinema ou área wellness Garagem ampla Zonas técnicas discretamente integradas A volumetria aprovada (3.265 m³) dá liberdade para trabalhar arquitetura contemporânea com presença, equilíbrio e proporção. Não é um projeto comprimido. É um projeto pensado para quem quer espaço real. UMA PISCINA QUE ELEVA O PROJETO Com 110,20 m², a piscina não é um elemento decorativo. É uma peça central. Permite: Zona de natação efetiva Área de lazer generosa Conceito de espaço exterior tipo resort Enquadramento visual forte a partir da zona social No contexto da Costa de Prata, piscinas desta dimensão em habitação privada são extremamente raras. LOCALIZAÇÃO ESTRATÉGICA Alfeizerão está numa posição privilegiada da Costa de Prata. A poucos minutos de: São Martinho do Porto Nazaré Caldas da Rainha Óbidos Acesso rápido à A8 (ligação a Lisboa) É uma zona que combina tranquilidade, espaço e proximidade ao mar com procura crescente tanto para residência permanente como para segunda habitação premium. LICENÇA JÁ EMITIDA, LEVANTADA E PAGA: UMA VANTAGEM DECISIVA A licença de construção foi emitida pela Câmara Municipal de Alcobaça. Num mercado onde os prazos de licenciamento podem ser um fator de risco e incerteza, aqui existe: Segurança jurídica Enquadramento urbanístico validado Redução significativa do tempo até início de obra Clareza total sobre índices e volumetria Pode avançar para construção com previsibilidade. UM PROJETO RARO NA REGIÃO Moradias com mais de 550 m² aprovadas não são comuns. Piscinas com mais de 100 m² são excecionais. A combinação de ambos, numa localização estratégica da Costa de Prata, é claramente diferenciadora. Este terreno não é para quem procura o standard. É para quem pretende construir uma propriedade com escala, conforto e presença num enquadramento que permite qualidade de vida e valorização futura. Se procura desenvolver um projeto de grande dimensão, com liberdade arquitetónica e base legal já assegurada, esta é uma oportunidade que merece análise detalhada. Contacte-me para acesso às plantas, enquadramento completo e visita ao local. Oportunidades com esta escala e aprovação formal não surgem com frequência no mercado.
AMI: 25662
Ref. Externa: SH-37
Id: 1678607
Inicie sessão para guardar este imóvel e aceder à sua lista de favoritos em qualquer dispositivo.
59.000 €
Área de terreno : 3906 m²
Terreno bem situado, Lote de terreno destinado a construção urbana com projeto aprovado, de área total do terreno de 3906 m2 Centro do Portugal Alcobaça, Alfeizerão 10 min de São Martinho do Porto 15 min de Nazaré 1H de Lisboa ---- ------- ------ ------ ----- ----- Sim, Comigo também pode vender ou encontrar ofertas aos melhores preços. Sim português ou francês, Eu seria o seu amigo do ramo imobiliário. ------ -------- ------ -------- --------- -------
AMI: 26473
Ref. Externa: AC115
Id: 1577394
Inicie sessão para guardar este imóvel e aceder à sua lista de favoritos em qualquer dispositivo.
120.000 €
Área de terreno : 2410 m²
Terreno rústico com PIP aprovado para construção de duas moradias unifamiliares, térreas com área bruta de 152m² cada em regime de propriedade horizontal. Inserido em zona calma, rural, com vista de campo e serra, boa exposição solar e acessos fáceis, este terreno encontra-se a escassos minutos dos seguintes acessos: Acesso a estrada N8 a cerca de 5-10min Acesso a autoestrada A8 a cerca de 10min Acesso a estrada IC2 (antiga nacional 1) a cerca de 20min Próximo de praias conceituadas na costa de prata e a cerca de 1h de distancia do Aeroporto de Lisboa, torna-se o local ideal para construir o seu lar privilegiando a qualidade de vida no campo sem perder a facilidade de se deslocar para o seu trabalho nas grandes cidades e das idas a praia sem filas demoradas até chegar ao areal. Marque já a sua visita e veja por si as vantagens deste local
AMI: 24609
Ref. Externa: 0040
Id: 1477519
Inicie sessão para guardar este imóvel e aceder à sua lista de favoritos em qualquer dispositivo.
39.900 €
Área de terreno : 3463 m²
Terreno com informação prévia favorável da Câmara Municipal de Alcobaça para a construção de uma casa de apoio à agricultura com 58 m², condicionado à obtenção de parecer favorável da Reserva Agrícola Nacional ( é necessário ser agricultor para obter parecer favorável junto da RAN) Terreno Rustico com 3463m² de área total onde consta uma azenha centenária com 58m² para reconstrução e apoio á agricultura. Terreno inserido na pacata aldeia de Alfeizerão a cerca de 5min de São Martinho do Porto e a 5min do acesso a autoestrada A8. Inserido em área agrícola, plano, com tanque de água de uso comum e com acesso por via publica, este terreno torna-se o espaço ideal para projeto harmonioso e com a Natureza e sustentável. Agende a sua visita, teremos todo o gosto em fazer parte do seu projeto.
AMI: 24609
Ref. Externa: 0033
Id: 1477517
Inicie sessão para guardar este imóvel e aceder à sua lista de favoritos em qualquer dispositivo.
120.000 €
Área de terreno : 1745 m²
Imagine investir num projeto onde o mar, a história e a rentabilidade se encontram. No coração de Alfeizerão, a poucos minutos da icónica baía de São Martinho do Porto, surge este terreno com 1.745 m², com viabilidade para construção até 4 moradias T3 ou T4 um espaço que convida a criar, crescer e rentabilizar. Com uma localização estratégica e valorizada, este lote combina tranquilidade residencial, proximidade a praias de renome internacional e acessos diretos às principais vias da região. Destaques que fazem a diferença: Área total: 1.745 m² Viabilidade para 3 a 4 moradias T3/T4 Localização premiu junto ao centro de Alfeizerão, em zona calma e consolidada Excelente exposição solar e topografia favorável à construção Comércio e serviços próximos, incluindo escolas, cafés e supermercados Acesso rápido à A8 (Lisboa - Leiria) e às principais cidades da região Localização e Distâncias: A partir de Alfeizerão, vive-se o equilíbrio perfeito entre campo, cidade e mar: São Martinho do Porto - 5 min (3 km): baía natural em forma de concha, considerada uma das praias mais bonitas e seguras de Portugal, ideal para famílias e turismo. Foz do Arelho / Lagoa de Óbidos - 20 min (17 km): paraíso para desportos náuticos e turismo ecológico. Nazaré - 20 min (20 km): capital mundial do surf de ondas gigantes e destino turístico internacional. Peniche / Baleal - 35 min (40 km): referência global no surf e na hospitalidade costeira. Caldas da Rainha - 10 min (9 km): cidade termal, centro comercial e cultural da região. Lisboa / Aeroporto Humberto Delgado - 60 min via A8 (100 km). Enquadramento Económico, Cultural e Turístico Alfeizerão Localização estratégica entre Alcobaça e Caldas da Rainha, com forte potencial habitacional. Zona em valorização contínua, impulsionada pela proximidade a São Martinho do Porto e à A8. Ideal para projetos residenciais, turísticos ou de arrendamento de média duração. São Martinho do Porto: Um dos destinos turísticos mais procurados da Costa de Prata, pela baía abrigada e qualidade ambiental. Forte presença de alojamento local (AL) e turismo familiar durante todo o ano. Mercado imobiliário estável e em constante valorização moradias novas T3 ultrapassam frequentemente os 350.000 €. Alcobaça Cidade Património Mundial (UNESCO), com o histórico Mosteiro de Alcobaça. Centro administrativo e económico com comércio ativo, turismo cultural e crescente investimento imobiliário. Potencial de Investimento e Rentabilidade (ROI) Um investimento de 120.000 € neste terreno representa uma oportunidade de rentabilidade muito acima da média com um ROI estimado de entre 40% e 55%. Um projeto de baixo risco e alta liquidez, ideal para construtores e investidores que procuram rentabilidade rápida num mercado em plena expansão. Os grandes investimentos nascem de quem sabe reconhecer o potencial antes de todos os outros. Este terreno é mais do que um espaço é uma oportunidade de construir futuro e gerar valor, num dos locais mais promissores da Costa de Prata. Aproveite esta oportunidade única para investir com visão, confiança e retorno garantido. Agende já a sua visita e descubra o local onde poderá erguer o seu próximo projeto de sucesso.
AMI: 10312
Ref. Externa: LM1069T
Id: 1405676
Inicie sessão para guardar este imóvel e aceder à sua lista de favoritos em qualquer dispositivo.
120.000 €
Área de terreno : 1745 m²
Terreno urbanizável com 1.745 m2, situado em Alfeizerão, na malha urbana do novo PDM, com viabilidade de construção de três moradias, a 2km de São Martinho do Porto, Terreno plano, totalmente vedado, com poço de água e excelente localização, oferecendo uma grande privacidade. Com enorme potencial para construção de habitação própria, ou investimento para construção de 3 moradias, ou condomínio fechado. Infraestruturas disponíveis na via pública, nomeadamente eletricidade, água, saneamento, tv por cabo. O terreno encontra-se em área urbana, com índice de construção entre 0,4 e 0,6, no atual PDM e no futuro PDM, já aprovado, a entrar em vigor. Localizado em Alfeizerão, com acesso a vários serviços, nomeadamente supermercado, mercado, restauração, farmácia, paragem de autocarro, campo desportivo, jardim, banco, junta de freguesia, entre outros. A menos de 5 minutos da Autoestrada A8, e a cerca de 2 km da Praia de São Martinho do Porto. Para mais informações contactar Cristina Batista | 963 542 135 | [email protected] Estamos disponíveis para apresentar possibilidades de financiamento para construção: - Sem taxas de intermediação, sem compromisso - Protocolos com a maioria dos Bancos a atuar em Portugal - Análise comparativa de propostas - Acompanhamento de todo o processo até à escritura - Segurança e comodidade Serviço de Intermediação de Crédito disponibilizado através de Credisucesso, uma marca da Lucrisucesso, Lda., registada no Banco de Portugal com o nº 0003199 (https://www.bportugal.pt/intermediariocreditofar/lucrisucesso-lda)
AMI: 8044
Ref. Externa: LIZ-216608
Id: 1384949
Inicie sessão para guardar este imóvel e aceder à sua lista de favoritos em qualquer dispositivo.
© Copyright 2023 | CASACERTA. All rights reserved
Guardar favoritos
Este imóvel foi guardados nos seus favoritos com sucesso.
Para poder guardar pesquisa deverá ter a sua sessão iniciada.
Caso não tenha uma conta, deverá criar uma.
A sua pesquisa foi guardada com sucesso!
Este site utiliza cookies. Ao navegar no site estará a consentir a sua utilização.
Para mais informações sobre os cookies pode consultar a
política de privacidade.