Lista
Comprar
Arrendar
Área de terreno : 801 m²
English description below Description en français ci-dessous CONSTRUTORES, INVESTIDORES E PROMOTORES Junto à Alta de Lisboa e de frente para o Aeroporto da Portela, situa-se uma das mais recentes Urbanizações que, embora pertencendo ao Concelho de Loures, fica na extremidade norte de Lisboa. Na Freguesia de Camarate e junto ao Parque Desportivo, esta moderna Urbanização dispõe de excelente localização, de linhas arquitectónicas actuais e de todo um conjunto de equipamentos na proximidade, que tornam estas habitações muito desejadas pelos jovens casais. A minutos dos grandes Hipermercados Aldi, Aki entre outros, bombas da Prio e a 500m do novo Continente de Camarate a Urbanização Parque das Oliveiras é a escolha perfeita para quem quer construir com garantia de venda imediata. O acesso ao Eixo Norte/Sul é feito directamente sem passar no centro de Camarate e a sua localização permite aceder facilmente ao Aeroporto, às Pontes Vasco da Gama e 25 de Abril, A1, A2, A8, CRIL e CREL. Um dos últimos lotes disponíveis é o Lote 8 Lote no centro da Urbanização do Parque das Oliveiras Capacidade de construção:1367,1 m2 acima do solo 604,80 m2 abaixo do solo Permite a construção de 13 a 17 fogos, dependendo de áreas e tipologias a reter. Existe um elevado grau de flexibilidade uma vez que os projectos deverão ainda ser submetidos. Venha conhecer esta oportunidade de negócio. BUILDERS, INVESTORS, AND DEVELOPERS Next to Alta de Lisboa and facing Portela Airport lies one of the newest residential developments which, although part of the Loures municipality, is located at the northern edge of Lisbon. Situated in the parish of Camarate, next to the Sports Park, this modern development offers an excellent location, contemporary architectural design, and a wide range of nearby facilities—making these homes highly sought after by young couples. Just minutes away from major supermarkets such as Aldi, Aki, and others, Prio fuel stations, and only 500 meters from the new Continente in Camarate, the Parque das Oliveiras Urbanization is the perfect choice for those looking to build with the assurance of immediate sales potential. Access to the North/South Axis (Eixo Norte/Sul) is direct, without passing through the center of Camarate, and its location allows for easy access to the Airport, Vasco da Gama and 25 de Abril bridges, as well as the A1, A2, A8, CRIL, and CREL highways. One of the last available plots is: Plot 8 Located in the center of the Parque das Oliveiras Urbanization Construction capacity: • 1,367.1 m² above ground • 604.8 m² below ground It allows for the construction of 13 to 17 housing units, depending on the chosen layouts and areas. There is a high degree of flexibility since the projects still need to be submitted. Come and discover this business opportunity. CONSTRUCTEURS, INVESTISSEURS ET PROMOTEURS À proximité de l’Alta de Lisboa et face à l’aéroport de Portela, se trouve l’une des plus récentes urbanisations qui, bien qu’appartenant à la municipalité de Loures, est située à l’extrémité nord de Lisbonne. Dans la paroisse de Camarate, à côté du parc sportif, cette urbanisation moderne bénéficie d’un excellent emplacement, d’un design architectural contemporain et de nombreux équipements à proximité, ce qui rend ces logements très recherchés par les jeunes couples. À quelques minutes des grands supermarchés tels qu’Aldi, Aki et d’autres, des stations-service Prio, et à seulement 500 mètres du nouveau Continente de Camarate, l’Urbanisation Parque das Oliveiras est le choix idéal pour ceux qui souhaitent construire avec la garantie d’une vente rapide. L’accès à l’Axe Nord/Sud se fait directement, sans passer par le centre de Camarate, et sa localisation permet de rejoindre facilement l’aéroport, les ponts Vasco da Gama et 25 de Abril, ainsi que les autoroutes A1, A2, A8, CRIL et CREL. L’un des derniers terrains disponibles est : Lot 8 Terrain situé au centre de l’Urbanisation Parque das Oliveiras Capacité de construction : • 1 367,1 m² au-dessus du sol • 604,8 m² en sous-sol Permettant la construction de 13 à 17 logements, selon les superficies et les typologies retenues. Il existe une grande flexibilité puisque les projets doivent encore être soumis. Venez découvrir cette opportunité d’investissement. ;ID RE/MAX: 121961620-68
AMI: 7772
Ref. Externa: 121961620-68
Id: 1451678
Inicie sessão para guardar este imóvel e aceder à sua lista de favoritos em qualquer dispositivo.
1.200.000 €
Área de terreno : 3966 m²
? "English description below" CONSTRUTORES, INVESTIDORES E PROMOTORES Lote de terreno com Alvará para construção de um Lar, Centro de Dia e Cuidados Continuados, Colégio, Clínica, Ginásio, Piscina ou qualquer equipamento de recreio. Investimento privado para fins públicos. Junto à Alta de Lisboa e de frente para o Aeroporto da Portela, situa-se uma das mais recentes Urbanizações que, embora pertencendo ao Concelho de Loures, fica na extremidade norte de Lisboa. Na Freguesia de Camarate e junto ao Parque Desportivo, esta moderna Urbanização dispõe de excelente localização, de linhas arquitectónicas actuais e de todo um conjunto de equipamentos na proximidade, que tornam estas habitações alvo de muita procura, sobretudo por jovens casais. A minutos dos grandes Hipermercados Aldi, Aki entre outros, bombas da Prio e a 500m do novo Continente de Camarate a Urbanização Parque das Oliveiras é a escolha perfeita para quem quer construir com garantia de venda imediata. O acesso ao Eixo Norte/Sul é feito directamente, sem passar no centro de Camarate e a sua localização permite aceder às Pontes Vasco da Gama e 25 de Abril, A1, A2, A8, CRIL e CREL em minutos. Venha conhecer esta oportunidade de negócio. Lote para Equipamento Área de lote de 3966m2 Capacidade de construção de 2444m2 Implantação1222m2 Classificação como equipamento privado de utilização pública. ****************** BUILDERS, INVESTORS & DEVELOPERS Plot of land with planning permission for the construction of a Care Home, Day Centre, Long-Term Care Facility, School, Clinic, Gym, Swimming Pool, or any recreational facility. A private investment for public use. Located next to Alta de Lisboa and facing Lisbon (Portela) Airport, this is one of the most recent developments which, although part of the Loures Municipality, lies right on the northern edge of Lisbon. Situated in the Parish of Camarate, next to the Sports Park, this modern development benefits from an excellent location, contemporary architecture, and a wide range of nearby amenities, making its properties highly sought-after, particularly among young couples. Just minutes from major supermarkets such as Aldi, Aki, and Continente, as well as Prio fuel stations, the Parque das Oliveiras development is the perfect choice for those looking to build with the assurance of immediate sales potential. Access to the North/South Axis is direct, without passing through the centre of Camarate, and the location provides easy connections to the Vasco da Gama and 25 de Abril bridges, as well as the A1, A2, A8, CRIL, and CREL motorways — all just minutes away. Come and discover this unique investment opportunity. Plot for Public-Use Facilities • Plot area: 3,966 m² • Gross construction area: 2,444 m² • Building footprint: 1,222 m² • Zoning classification: Private facility for public use ;ID RE/MAX: 121961620-67
AMI: 7772
Ref. Externa: 121961620-67
Id: 1438770
Inicie sessão para guardar este imóvel e aceder à sua lista de favoritos em qualquer dispositivo.
1.990.000 €
Área de terreno : 952 m²
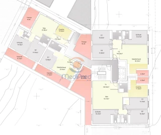
? "English description below" CONSTRUTORES, INVESTIDORES E PROMOTORES Lote de terreno com Alvará para construção de Hotel com 100 quartos ou Edíficio com 35 a 60 apartamentos. Perto da Alta de Lisboa e do Aeroporto situa-se uma das mais recentes Urbanizações que, embora pertencendo ao Concelho de Loures, fica na extremidade norte de Lisboa. Na Freguesia de Camarate e junto ao Parque Desportivo, esta moderna Urbanização dispõe de excelente localização, de linhas arquitectónicas actuais e de todo um conjunto de equipamentos na proximidade, que a tornam alvo de muita procura. A minutos dos grandes Hipermercados Aldi, Aki entre outros, bombas da Prio e a 500m do novo Continente de Camarate a Urbanização Parque das Oliveiras é a escolha perfeita para quem quer construir com garantia de venda imediata e a preços muito interessantes. O acesso ao Aeroporto de Lisboa e ao Eixo Norte/Sul é feito directamente, sem passar no centro de Camarate e a sua localização permite, igualmente, aceder à Ponte Vasco da Gama e A2, Ponte 25 de Abril, A1, A8, CRIL e CREL. É aqui que temos o lote 24. De frente para a pista central do Aeroporto de Lisboa, no extremo Norte da Urbanização do Parque das Oliveiras, temos este Lote que tem um Alvará para construção de um Hotel, com 7 pisos e com 100 quartos, ou um edifício habitacional com 35 a 60 apartamentos, dependendo das tipologias. Zona em expansão com novos empreendimentos a serem erguidos, cujas frações já foram praticamente todas vendidas. Principais características do Lote 24 •Área do Lote: 952,40 m2 •Capacidade construtiva: 6.538,95 m2 –Acima do solo: 3.681,75 m2 –Abaixo do solo: 2.857,20 m2 •Nº pisos: 10 –Acima do solo : 7 –Abaixo do solo : 3 Existe um elevado grau de flexibilidade uma vez que os projectos deverão ainda ser definidos e submetidos. Venha conhecer esta oportunidade de negócio. BUILDERS, INVESTORS & DEVELOPERS Plot of land with planning permission for the construction of a 100-room hotel or a residential building with 35 to 60 apartments. Located near Alta de Lisboa and Lisbon Airport, this is one of the most recent developments which, although part of the Loures Municipality, lies right on the northern edge of Lisbon. Situated in the Parish of Camarate, next to the Sports Park, this modern development offers an excellent location, contemporary architectural design, and a full range of nearby amenities — making it a highly sought-after area. Just minutes away from major supermarkets such as Aldi, Aki, and Continente, as well as Prio fuel stations, Parque das Oliveiras is the perfect choice for those looking to build with the assurance of immediate sales potential at attractive prices. Access to Lisbon Airport and the North/South Axis is direct, without the need to pass through the centre of Camarate. Its strategic position also provides easy access to the Vasco da Gama Bridge, A2, 25 de Abril Bridge, A1, A8, CRIL, and CREL. This is where you will find Plot 24. Overlooking the main runway of Lisbon Airport, at the northern end of the Parque das Oliveiras development, this plot benefits from planning permission for the construction of a 7-storey hotel with 100 rooms, or a residential building with 35 to 60 apartments, depending on the chosen layouts. This is a fast-growing area, with several new projects already under construction — most of which have already been sold. Main features of Plot 24 • Plot area: 952.40 m² • Gross construction area: 6,538.95 m² o Above ground: 3,681.75 m² o Below ground: 2,857.20 m² • Number of floors: 10 o Above ground: 7 o Below ground: 3 There is a high degree of flexibility, as the final project design and submission are yet to be defined. Come and discover this outstanding investment opportunity. ;ID RE/MAX: 121961620-66
AMI: 7772
Ref. Externa: 121961620-66
Id: 1438769
Inicie sessão para guardar este imóvel e aceder à sua lista de favoritos em qualquer dispositivo.
Área de terreno : 135 m²
Lote de terreno para construção com 135 m2 localizado no Catujal, Unhos, Não perca a oportunidade de construir a sua moradia de sonho! Conhecer esta magnífico imóvel está à distância de um telefonema! Este imóvel está disponível para partilha com todas as imobiliárias e profissionais em regime de 50/50. Para mais informação visite-nos no site da kw Portugal
AMI: 7183
Ref. Externa: KWPT-005176
Id: 1429768
Inicie sessão para guardar este imóvel e aceder à sua lista de favoritos em qualquer dispositivo.
Área de terreno : 818 m²
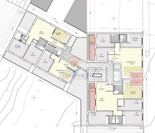
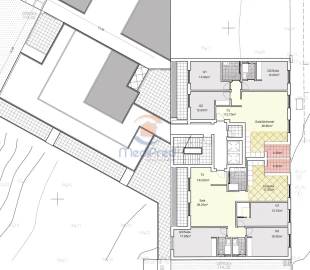
Ref.ª: MJL3555 - Lote de Terreno p/ Construção de Prédio | Quinta dos Matos Grandes, Camarate Lote de terreno urbano com uma área de 818 m2, apto para a construção de um prédio com um total de 8 pisos: - 2 pisos de estacionamento (com 43 lugares disponíveis); - 1 piso térreo de atividades económicas (135,60 m2 de área para serviços e 490 m2 para comércio); - 5 pisos de habitação; - 2 terraços comuns. Os pisos de habitação contemplam tipologias T1, T2 e T3 e serão constituídos da seguinte forma: - 2 apartamentos T1; - 2 apartamentos T2; - 10 apartamentos T3. Piso 1: - 1 apartamento T1 com varanda de 17,55 m2, 1 apartamento T2 com terraço e varanda e 2 apartamentos T3; - Neste piso está previsto a existência de 2 terraços comuns. Piso 2 e 3: - 1 apartamento T1, 1 apartamento T2 e 2 apartamentos T3 (ambos com terraço). Piso 4 ao 6: - 2 apartamentos T3 por piso; - Terraço comum na cobertura. Este lote situa-se numa zona de construções novas, com relativa proximidade ao aeroporto (cerca de 4 km), facilmente acessível e bem servida de transportes públicos (comboios e autocarros). O Percurso Ribeirinho de Loures, na Bobadela, fica aproximadamente a 12 minutos (de carro) deste lote. A cidade de Lisboa encontra-se a pouco mais de 10 minutos, com acesso pelo Eixo Norte-Sul, A1 e IC17. Contacte-nos para mais informações!
AMI: 8388
Ref. Externa: MJL3555
Id: 1423162
Inicie sessão para guardar este imóvel e aceder à sua lista de favoritos em qualquer dispositivo.
Área de terreno : 312 m²
Aproveite a oportunidade única de construir a sua casa de sonho na Apelação. Este Lote de Terreno Urbano está inserido numa zona residencial tranquila, ideal para quem procura o equilíbrio perfeito entre a serenidade de um bairro de moradias e a proximidade da capital. Com uma área generosa de 312m², o lote permite a construção de uma moradia unifamiliar com de 2 pisos com Área de Implantação de 103,50m2 e área Bruta de Construção de 207m2. Destaques da Localização: • Acessos rápidos ao Eixo Norte-Sul, A1, A8 e IC17 (CRIL). • A poucos minutos do Parque das Nações e do Aeroporto de Lisboa. • Proximidade de comércio local, escolas, transportes e serviços. Se procura investir no seu futuro e criar um lar à sua medida numa zona em valorização, não procure mais! Agende a sua visita e visualize o potencial deste terreno.
AMI: 23700
Ref. Externa: 65891-PRES60107
Id: 1409925
Inicie sessão para guardar este imóvel e aceder à sua lista de favoritos em qualquer dispositivo.
Área de terreno : 240 m²
Procura uma oportunidade de investimento no concelho de Loures? Apresentamos este terreno urbano com 240m2, situado em Unhos, numa zona residencial tranquila e em crescimento, com acessos a Lisboa. ➡️ O terreno encontra-se classificado como urbano, inserido em área de expansão habitacional. ➡️ O potencial construtivo depende de futura operação de loteamento, já prevista no âmbito do plano urbanístico da zona. ➡️ Excelente oportunidade para quem pretende investir hoje a valor competitivo, aguardando a valorização a médio/longo prazo. Pontos fortes da localização: A 10 minutos do centro de Loures e a 15 minutos de Lisboa Proximidade de comércio loca, escolas e transportes. A CASA DA PORTELA Imobiliária – É uma empresa de mediação imobiliária e Intermediação de Crédito criada em 2013. Os seus sócios fundadores possuem um sólido conhecimento acumulado desde 1994 sobre o mercado imobiliário, mantendo-se atentos às suas tendências e evolução, e com uma Intermediação de Crédito registado no Banco de Portugal com o nº 0004889. A empresa começou por centrar-se na região do Grande Porto, conseguindo, desde o início, um grande volume de transações. O sucesso do modelo de negócio fez com que a marca Casa da Portela imobiliária chegasse em 2022 a Vila Nova de Famalicão. A Casa da Portela imobiliária pretende valorizar o trabalho dos consultores e prestar um serviço de excelência aos seus clientes, proporcionando um serviço de qualidade e tranquilidade, de forma a realizar bons negócios, garantindo a satisfação dos nossos clientes e parceiros. Para atingir esse propósito, dispomos de uma equipa multidisciplinar de profissionais qualificados, com vasta experiência em mediação imobiliária que nos permite apresentar e sugerir as melhores alternativas para os seus objetivos de venda, de arrendamento, ou de investimento imobiliário. Possuímos uma rede de contatos privilegiada que nos permite potenciar a divulgação, a gestão e a concretização de negócio do seu imóvel em vários formatos. 3 Pilares fundamentais da Casa da Portela: Missão A nossa missão é orientar os nossos objetivos excecionais (financeiros, humanos e sociais) na nossa organização e uni-los aos nossos não menos excecionais clientes, atendendo sempre às suas necessidades, desejos e expectativas. A Casa da Portela imobiliária nasceu para que fosse possível prestar um acompanhamento e apoio contínuos, explicação e esclarecimento de dúvidas, sobre todo o processo de compra, venda ou arrendamento de imóveis em Portugal. A concretização de tudo isto faz com que a nossa máxima ambição seja sermos os melhores no mercado imobiliário. Visão A nossa visão é sermos a empresa de referência no mercado imobiliário, assim como sermos reconhecidos como a melhor opção para os nossos clientes. Para isso, fazemos sempre por manter um espírito inovador e de liderança que nos levará ao reconhecimento pela nossa excelência no mercado. Valores Os nossos valores são sempre o conjunto das nossas atitudes e crenças, que envolvem todas as pessoas da organização, para que, em uníssono, consigamos atingir os resultados de excelência a que nos propomos sempre que são baseados na Qualidade, Profissionalismo, Responsabilidade, Respeito e Inovação. Zona Tranquila, ideal para habitação futura Se procura um investimento sólido e com potencial de valorização, este terreno pode ser a solução.
AMI: 10340
Ref. Externa: 1111231
Id: 1381192
Inicie sessão para guardar este imóvel e aceder à sua lista de favoritos em qualquer dispositivo.
Área de terreno : 112 m²
Terreno Rústico com Benfeitorias em Fetais de Baixo - Loures Excelente Oportunidade de Investimento! Apresento-lhe uma oportunidade única para investidores eparticulares: terreno rústico com benfeitorias (inserido numa AUGI – áreaurbana génese ilegal com 10 000 m2), com 112 m², localizado em Unhos, na União dasFreguesias de Camarate, Unhos e Apelação, no concelho de Loures. Este imóvel combina o melhor de dois mundos — tranquilidadee acessibilidade — sendo ideal para quem procura investir em habitaçãoprópria ou em rentabilidade futura. Destaques do Imóvel: ? LocalizaçãoPrivilegiadaSituado numa zona calma e com vistas desafogadas, perto de Sacavém e Loures.Inserido em malha urbana com grande potencial de valorização. ? Ótima AcessibilidadeFácil acesso à A1, A8 e A9, o que garante ligações rápidas a Lisboa e àsprincipais vias rodoviárias da região. ? BenfeitoriasExistentesO terreno possui um edifício com três frações independentes, cada umacomposta por tipologia T2+1, e ainda um sótão com dois terraços,com potencial para criar mais uma unidade habitacional. Composição das Frações: Rés-do-chão Atualmente arrendado por 459€/mês até junho de 2026. Composto por 2 quartos com luz natural, 1 quarto interior, sala, cozinha, WC e pátio a tardoz. 1º Andar 2 quartos com luz natural, 1 quarto interior, sala, cozinha, WC, varanda frontal e acesso a pátio a tardoz. 2º Andar (em bruto) Espaço com obras iniciadas. Composto por 2 quartos com luz natural, 1 quarto interior, sala, cozinha com varanda, WC, varanda frontal e pátio traseiro. Sótão (em bruto) Com acesso a dois terraços. Potencial para criação de um T1 espaçoso ou T2 compacto. Potencial de Valorização Localizado numa zona em crescimento, este imóvel representauma excelente oportunidade para quem procura:✔ Investimento de longo prazo✔ Projetos de reabilitaçãourbana✔ Rendimento atravésde arrendamento✔ Habitação própria em zona sossegada mas próximade Lisboa Perfil do Investidor Ideal ? Investidoresimobiliários com visão para reabilitação e revenda?Quem procura rendimento passivo através de arrendamento?Famílias que pretendem personalizar a sua futura casa num contexto urbano mastranquilo Não perca esta oportunidade de investir numa zona com enormepotencial de valorização, com acessos facilitados, próximo da capital e comestruturas já existentes! Entre em contacto para mais informações ou agendamento devisita. ;ID RE/MAX: 126701092-9
AMI: 7772
Ref. Externa: 126701092-9
Id: 1322803
Inicie sessão para guardar este imóvel e aceder à sua lista de favoritos em qualquer dispositivo.
Área de terreno : 300 m²
INVESTIMENTO SEVEN HOUSE Terreno para Construção no Bairro de Angola, Camarate. Oportunidade de investimento em zona urbana consolidada! Apresentamos este terreno urbano com 300 m², localizado no Bairro de Angola, com excelente potencial. Características do Terreno: Área Total do Terreno: 300 m² Área de Implantação do Edifício: 210 m² Área Bruta de Construção: 630 m² Localizado em zona residencial consolidada, próximo de comércio, serviços e transportes Transportes públicos (autocarros) a poucos metros Investidores ou particulares que procuram um terreno urbano para habitação própria ou projeto de construção, com excelentes acessos a Lisboa e zona envolvente. 'Seven House, da vista à mudança, com toda a confiança'
AMI: 22486
Ref. Externa: SH 48
Id: 1311752
Inicie sessão para guardar este imóvel e aceder à sua lista de favoritos em qualquer dispositivo.
1.600.000 €
Área de terreno : 619 m²
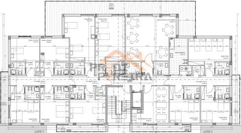
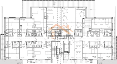
Apresentamos uma excelente oportunidade de investimento num terreno para a construção de uma Residência Sénior, com licença a pagamento, com o projeto de arquitetura já aprovado e com parecer favorável da Segurança Social e da Autoridade da Proteção Civil. A Área Bruta de Construção (ABC) do projeto é de 5.085m², distribuída por 9+1 pisos, detalhados da seguinte forma: Três pisos destinados a estacionamento com 53 lugares disponíveis. Um piso de serviços, incluindo cozinha e refeitório. Cinco pisos destinados a clientes, com uma oferta variada de suítes individuais, de casal, duplas e triplas, num total de 47 quartos para acomodar 92 utentes. A quase totalidade dos quartos será servida por varandas amplas, oferecendo vistas deslumbrantes sobre um horizonte que combina elementos urbanos e rurais. No 7.º piso, encontra-se um amplo terraço virado a poente, onde os utentes poderão desfrutar de momentos relaxantes ao pôr do sol. O edifício será implantado numa urbanização predominantemente residencial e localiza-se no topo de uma ampla praceta, fechando-a. A entrada pedonal ao equipamento será feita por esta praceta, proporcionando uma excelente acessibilidade. A viabilidade da construção está assegurada, e, caso as especialidades sejam submetidas e a licença paga dentro do prazo, prevê-se que as condições para iniciar a obra estejam criadas em até seis meses. A conclusão da construção poderá ocorrer entre 30 a 36 meses após o início dos trabalhos. Além disso, há a possibilidade de desenvolver outras utilizações complementares, como uma Unidade de Convalescença ou Cuidados Paliativos, podendo essas opções ser consideradas em paralelo. A localização do terreno é estratégica, situada numa urbanização recente, a poucos minutos da EXPO, da Ponte Vasco da Gama e do Aeroporto de Lisboa, garantindo um fácil acesso e proximidade a serviços essenciais. Estamos disponíveis para agendar uma visita e/ou reunião de apresentação, seja na sua empresa ou instituição, para discutir detalhes e responder a todas as suas questões. Esta é uma oportunidade única para a construção de um equipamento de referência na área de cuidados a seniores, em plena expansão. Descubra o seu parceiro de confiança desde 2009! Na Predipereira, estamos aqui para si! Explore as oportunidades em Predipereira.net OU visite-nos em facebook.com/predipereira.lda. Como Intermediários de Crédito Certificados pelo Banco de Portugal (n.º0002387), estamos prontos para orientá-lo GRATUITAMENTE em todo o processo de crédito à habitação. A jornada para a casa dos seus sonhos começa aqui, connosco!
AMI: 8546
Ref. Externa: PP5628
Id: 1287487
Inicie sessão para guardar este imóvel e aceder à sua lista de favoritos em qualquer dispositivo.
Área de terreno : 415 m²
FAÇA CONNOSCO O MELHOR NEGÓCIO - NEGOCIÁVEL Temos um fantástico Terreno Urbano em Olival de Vale de Lobos, na zona de Unhos-Catujal. Este Lote destina-se à construção, com uma área total de terreno de 415 m², com uma área de implantação do edifício de 145 m² e uma área bruta de construção de 290 m² sem qualquer projeto submetido até à data. Situado numa zona de Área Urbana de Génese Ilegal com Reconversão de Iniciativa Particular (AUGI), o processo está indicado na Câmara Municipal de Loures como não iniciado. A localização é na Rua Sousa Brandão, Bairro das Coroas, em Camarate, Loures, no Distrito de Lisboa, próximo aos bairros Terras de Teresa e Bairro Martins do Vale. Terreno com potencial de construção numa área em desenvolvimento. Não perca a chance de explorar este Terreno e transformar este espaço promissor. Localizado às portas de Lisboa, esta é uma excelente possibilidade de construir a moradia dos seus sonhos. Situa-se numa rua tranquila em plena área metropolitana de Lisboa, a cerca de 10 minutos de carro do Parque das Nações, 15 minutos do Aeroporto, da Ponte Vasco da Gama e do centro de Loures e ainda com transportes públicos destinados ao Campo Grande, à Gare do Oriente, à cidade de Loures e ao Aeroporto. Próximo de várias amenidades e espaços verdes como o Parque Verde do planalto do Catujal, transportes públicos e espaços comerciais e de restauração, Escolas básicas do Catujal e Centro comercial da Apelação Tratamos do seu processo de crédito, sem burocracias apresentando as melhores soluções para cada cliente. Intermediário de crédito certificado pelo Banco de Portugal com o nº 0001802. Ajudamos com todo o processo! Entre em contacto connosco ou deixe-nos os seus dados e entraremos em contacto assim que possível! ST95392EP
AMI: 8989
Ref. Externa: ST95392EP
Id: 1266123
Inicie sessão para guardar este imóvel e aceder à sua lista de favoritos em qualquer dispositivo.
Área de terreno : 459 m²
OPORTUNIDADE SEVEN HOUSE Terreno urbano no Bairro Fonte da Pipa, Loures. Terreno localizado no Bairro Fonte da Pipa, Loures, em zona residencial tranquila e com ótimos acessos. Destaques: Área total: 459 m² Potencial para construção habitacional (mediante viabilidade CML) Zona calma, com escolas, comércio e serviços próximos A 5 min do Continente, Leroy Merlin, Mercadona e Aldi Bons acessos: Eixo Norte-Sul, 2ª Circular, CRIL Transportes públicos nas imediações A 10 min do Aeroporto e do Metro do Lumiar Excelente oportunidade para construir numa zona em crescimento! 'Seven House, da vista à mudança, com toda a confiança'
AMI: 22486
Ref. Externa: SH 49
Id: 1250348
Inicie sessão para guardar este imóvel e aceder à sua lista de favoritos em qualquer dispositivo.
Área de terreno : 268 m²
Terreno urbano com 268,36 m2, situado a meio da Rua Fernando Farinha, no Casal dos Machados, em Catujal. A 100 metros do Moinho da Apelação e a pouco mais da Escola Básica do Catujal, este é um lote que já tem projecto aprovado e devo dizer-vos que é maravilhoso. De linhas direitas, deixo-vos uma foto da frente projetada e desafio-vos para (caso tenha interesse) reunir connosco e não perder esta oportunidade. ANA FERNANDES - 966140499 VipKasa Imobiliária
AMI: 17750
Ref. Externa: 00936
Id: 1206875
Inicie sessão para guardar este imóvel e aceder à sua lista de favoritos em qualquer dispositivo.
Área de terreno : 329 m²
Apresentamos estes 3 lotes de terreno incríveis em Loures, com uma área de 329m² e uma área bruta, potencial, de construção de 2447,12m² / cada lote. Existe um projeto aprovado, mas caducado, com prédio de 5 pisos com 3 apartamentos cada, mais 2 pisos subterrâneos de estacionamento. O preço apresentado é unitário, podendo ser vendidos na totalidade ou parcialmente. Valor negociavel. Terá que ser adaptado e feito novo pedido à Câmara Municipal de Loures. Localizado numa zona tranquila, com prédios de qualidade, de fácil acesso a todas as comodidades da cidade. Apresenta um potencial de rentabilidade de 34%.
AMI: 9513
Ref. Externa: CB03-1088
Id: 1124980
Inicie sessão para guardar este imóvel e aceder à sua lista de favoritos em qualquer dispositivo.
Área de terreno : 208 m²
Terreno com 207 m² para construção no Bairro Casal dos Machados no Catujal, Unhos. ÁREAS: - Área total do terreno: 207,4 m² - Área de implantação: 110 m² - Área de bruta de construção: 195 m² - Área de bruta dependente 25 m² Próximo da entrada para a A1/IC2, ficando a 10 minutos da entrada de Lisboa e do Aeroporto, do Parque das Nações e do acesso à Ponte Vasco da Gama. A área envolvente está servida de todo o tipo de comércio, serviços e escolas. Aproveitamos para informar que trabalhamos em parceria com gabinetes de arquitetura, que lhe farão um projeto idealizado ao seu gosto. Se necessitar de ajuda na construção, também trabalhamos com variadas empresas de construção civil com a possibilidade de contratação de chave na mão. Este anúncio foi publicado por rotina informática, pelo que todos os dados carecem de confirmação junto da imobiliária.
AMI: 15959
Ref. Externa: PT2025-1893
Id: 1070787
Inicie sessão para guardar este imóvel e aceder à sua lista de favoritos em qualquer dispositivo.
Área de terreno : 1905 m²
TERRENO RÚSTICO COM BENFEITORIA com 1.905 m² em Unhos, na União das Freguesias de Camarate, Unhos e Apelação, no concelho de Loures: uma oportunidade única para investidores e particulares. Apresento uma excelente oportunidade de investimento: um TERRENO RÚSTICO COM BENFEITORIA em Unhos, Loures, localizado numa zona tranquila e com vistas deslumbrantes sobre a lezíria e a Ponte Vasco da Gama.Este terreno é ideal para quem procura um refúgio no meio da natureza, um projeto habitacional ou mesmo um investimento de longo prazo. DESTAQUES DO IMÓVEL: - Classificação no PDM: este terreno está classificado no PDM de Loures como "Espaços Residenciais: Consolidadas Habitacionais de Nível III"; - Área: 1.905 m2 - Localização: https://maps.app.goo.gl/qp5B8VpDeDNjPb658 - Localização Privilegiada: situado em Unhos, perto de Sacavém e de Loures, numa zona calma e de grande potencial de valorização; - Acessibilidade: fácil acesso à A1, A8 e A9, garantindo ligação rápida a Lisboa e às principais vias rodoviárias; - Benfeitorias Existentes: o terreno conta com uma casa térrea em construção com obras inacabadas, ainda sem licenciamento, e com anexos, oferecendo potencial paraadaptação ao gosto do novo proprietário; Este TERRENO RÚSTICO COM BENFEITORIA poderá ser vendido em conjunto com um outro TERRENO RÚSTICO EM AVOS (Angariação 121981288-138), localizado ao lado desta propriedade. Precisa de vender algum imóvel antes de concluir a compra deste Terreno? Eu tenho a solução! PORQUÊ ESCOLHER-ME COMO O SEU CONSULTOR IMOBILIÁRIO? - Dedicação: estou comprometido em promover os imóveis dos meus clientes, garantindo um SERVIÇO DE EXCELÊNCIA, para alcançar uma venda rápida e com os melhores resultados; Além de ajudá-lo na venda do seu imóvelatual, também ofereço apoio em todo o processo de financiamento. Tenho o apoioda MAXFINANCE e poderemos encontrar as melhores condições de crédito para que oseu investimento se torne uma realidade. Desde a escolha da melhor opção definanciamento até ao acompanhamento de todo o processo, estamos aqui paraassegurar que tudo corra da forma mais simples e eficiente possível. Juntos, vamosconcretizar os seus objetivos! English version below Versiónen español a continuación Deutscheversion unten 國語版本如下 النسخة العربية أدناه RUSTIC LAND WITHBUILDING (1,905 m²) IN UNHOS, LOURES A uniqueopportunity for investors or private buyers looking for space, privacy, andpotential near Lisbon. We present anexcellent investment opportunity: a RUSTIC LAND WITH BUILDING located in Unhos,Loures - a peaceful area with breathtaking views of the Tagus floodplain andthe Vasco da Gama Bridge. Perfect for those seeking a natural retreat, aresidential project, or a long-term investment. PROPERTYHIGHLIGHTS: PDM Classification: Designated in theLoures Municipal Master Plan as “Consolidated Residential Areas - Level III”. Total Area: 1,905m² Address: Rua doImpasse, Unhos, a quiet residential area with villas and small farms, near thevillage centre. Google MapsLocation: https://maps.app.goo.gl/qp5B8VpDeDNjPb658 Prime Location: In Unhos, nearSacavém and Loures - a calm area with strong appreciation potential. Accessibility: Excellent roadaccess via A1, A8, and A9, ensuring a quick connection to Lisbon and majorroutes. ExistingStructures: Includes asingle-storey house under construction (unfinished and unlicensed), along withannexes that offer flexibility for future adaptation. Infrastructure: Equipped with awell and a water tank, ideal for irrigation or gardening. Also connected tomains water and electricity. Fenced Plot: Entire property issecurely fenced, ensuring privacy and safety. Gently SlopedTerrain: Slight inclineprovides panoramic views without compromising accessibility. AgriculturalFeatures: Several fruit treesand regularly cultivated land enhance both aesthetic and agricultural value. Sun Exposure: South-facing,ensuring sunlight throughout the day. Annexes: Additional spacesfor storage, garage setup, or other uses. VALUE POTENTIAL Situated in adeveloping urban area, this plot merges rural tranquility with proximity tourban centers. Its strategic location and existing infrastructure make it apromising opportunity for residential or agricultural use. INVESTMENT PROFILE Natural Retreat: Ideal for apeaceful getaway close to the city. ResidentialPotential: Great opportunityfor housing development. AgriculturalInfrastructure: Suitable forfarming, gardening, or hobbyist cultivation in a serene and refreshingenvironment. This RUSTIC LANDWITH BUILDING can also be sold together with an adjacent RUSTIC LAND SHARE(Listing Ref. 121981288-138), offering even greater flexibility and potential. Schedule your visitnow and witness the full potential of this unique property! TERRAIN RUSTIQUEAVEC AMÉNAGEMENT de 1 905 m² à Unhos, dans l’Union des Freguesias de Camarate,Unhos et Apelação, dans la municipalité de Loures : une opportunité unique pourinvestisseurs et particuliers. Je vous présenteune excellente opportunité d’investissement : un TERRAIN RUSTIQUE AVECAMÉNAGEMENT à Unhos, Loures, situé dans une zone paisible avec une vueimprenable sur les plaines et le Pont Vasco da Gama. Ce terrain est idéal pourceux qui recherchent un refuge en pleine nature, un projet résidentiel ou uninvestissement à long terme. POINTS FORTS DUBIEN : Classification dansle PDM : ce terrain est classé dans le PDM de Loures comme « EspacesRésidentiels : Consolidés Résidentiels de Niveau III » ; Surface : 1 905 m²; Adresse : situé Ruado Impasse, à Unhos, dans un quartier de maisons individuelles et de petitesfermes, proche du centre local ; Localisation : https://maps.app.goo.gl/qp5B8VpDeDNjPb658 Emplacementprivilégié : situé à Unhos, près de Sacavém et de Loures, dans un quartiercalme à fort potentiel de valorisation ; Accessibilité :accès facile à l’A1, l’A8 et l’A9, garantissant une connexion rapide à Lisbonneet aux principales routes ; Aménagementsexistants : le terrain comprend une maison de plain-pied en construction, nonachevée et encore sans licence, avec des annexes, offrant un potentield’adaptation au goût du nouveau propriétaire ; Infrastructures :dispose d’un puits et d’un bassin, garantissant une autonomie en eau – idéalpour la culture ou le jardinage. Alimentation en eau courante et électricitédisponibles ; Terrain clôturé :toute la propriété est entièrement clôturée, garantissant sécurité et intimité; Terrain en pente :avec un profil légèrement incliné, il offre une vue panoramique sur le paysageenvironnant, sans compromettre l’accessibilité ; Cultures agricoles: présence de quelques arbres fruitiers et culture régulière, ajoutant unevaleur agricole et esthétique ; Exposition solaire: orienté plein sud, très ensoleillé, assurant une lumière naturelle tout aulong de la journée ; Annexes : le biencomprend plusieurs annexes pouvant être utilisées comme rangement, garage ou àd’autres fins. POTENTIEL DEVALORISATION : Ce terrain rustiqueest situé dans une région en plein développement, dans le tissu urbain local,combinant tranquillité et proximité des centres urbains. Sa positionstratégique et ses infrastructures existantes en font un investissementprometteur pour l’habitat ou l’agriculture. PROFIL DEL’INVESTISSEMENT : Refuge naturel :idéal pour ceux qui recherchent un lieu paisible proche de la ville ; Investissement àpotentiel : possibilité de développement d’un projet résidentiel ; Infrastructureagricole : excellente option pour cultiver ou créer un potager dans unenvironnement bucolique et revitalisant. Ce TERRAIN RUSTIQUEAVEC AMÉNAGEMENT peut être vendu conjointement avec un autre TERRAIN RUSTIQUEEN INDIVISION (Référence 121981288-138), situé juste à côté. Prenez rendez-vousdès maintenant pour visiter ce terrain exclusif au potentiel remarquable. ;ID RE/MAX: 121981288-137
AMI: 7772
Ref. Externa: 121981288-137
Id: 1070078
Inicie sessão para guardar este imóvel e aceder à sua lista de favoritos em qualquer dispositivo.
Área de terreno : 3637 m²
Se procura um investimento sólido ou um refúgio tranquilo perto de Lisboa, esta pode ser a oportunidade ideal! Apresento dois TERRENOS RÚSTICOS, com um total de 3.637 m², localizados em Unhos, na União das Freguesias de Camarate, Unhos e Apelação, no concelho de Loures. - Área Total: 3.637 m² (1.905 m² + 1.732 m²); - Capacidade Construtiva do Terreno em Avos: 794,50 m2. Este terreno poderá vir a ter uma capacidade construtiva de 794,50 m2, calcudado sobre um índice de 70%; - Localização:- Vistas deslumbrantes: Panorâmica incrível sobre a lezíria e a Ponte Vasco da Gama; - Privacidade e segurança: Ambos os terrenos estão totalmente vedados, proporcionando tranquilidade e proteção; - Infraestruturas e benfeitorias: Um dos terrenos inclui uma casa térrea em construção (ainda sem licenciamento) e anexos, além de um poço e tanque para abastecimento deágua; UM INVESTIMENTO COM GRANDE POTENCIAL COMO PODE APROVEITAR ESTE ESPAÇO? - Investir no futuro, com grande potencial de valorização a médio e longo prazo; Não perca esta oportunidade única de adquirir dois terrenos contíguos num local estratégico e de grande potencial! Entre em contacto para mais informações. Se está a considerar adquirir estes terrenos mas necessita vender algum imóvel primeiro, estou disponível para ajudá-lo em cada passo do processo. Com a minhaexperiência no mercado imobiliário e um profundo entendimento das transações imobiliárias, posso assegurar uma venda rápida e eficiente do seu imóvel, permitindo-lhe garantir este fantástico investimento. - Especialização: histórico comprovado de promoção de imóveis e de vendas imobiliárias bem-sucedidas; - Serviço Personalizado: estratégias personalizadas para atender ao que necessita eprazos específicos de venda imobiliária, sem incómodo nem preocupações para si. PRECISA DE FINANCIAMENTO? Permita-me gerir apromoção e venda do seu imóvel atual, enquanto você se concentra em planear oseu novo lar, local de negócio ou investimento imobiliário. Contacte-me hojepara pedir o meu DOSSIER DEAPRESENTAÇÃO e agendar uma Reunião! A excelência do SERVIÇO AO CLIENTE é a minhaúnica prioridade. Version française ci-dessous Versioneitaliana qui sotto النسخة أدناه Unique Opportunity! Two RUSTIC PLOTS, One with BUILDINGS, Totaling 3,637m² in Unhos, Loures If you're looking for a solid investment or a peaceful retreat nearLisbon, this could be the ideal opportunity! We present two RUSTIC PLOTS totaling3,637 m², located in Unhos, part of the Union of Parishes of Camarate, Unhosand Apelação, in the municipality of Loures. WHY IS THIS OFFER SPECIAL? PDM Zoning: One plot is classified as “Consolidated Residential Areas - Level III”and the other as “Residential Housing Areas to Restructure and Legalize” underthe Loures Master Plan (PDM). Total Area: 3,637 m² (1,905 m² + 1,732 m²) Construction Potential on the Land Share Plot: Up to 794.50 m², based on a 70% construction index. Prime Location: Located on Rua do Impasse, Unhos - a residential area with villas andsmall farms, close to the town center. Google Maps: https://maps.app.goo.gl/qp5B8VpDeDNjPb658 Breathtaking Views: Panoramic landscapes over the Tagus floodplain and Vasco da Gama Bridge. Exceptional Accessibility: Quick access to the A1, A8, and A9 highways - excellent connectivity toLisbon and surroundings. Privacy and Safety: Both plots are fully fenced, offering peace of mind and seclusion. Excellent Sun Exposure: South-facing - plenty of natural light all day. Infrastructure and Improvements: One plot includes a single-storey house under construction (unfinishedand unlicensed), annexes, a well, and a water tank for irrigation. Natural and Cultivated Land: With fruit trees and fertile soil, perfect for nature lovers andgardening enthusiasts. A HIGH-POTENTIAL INVESTMENT Located in a developing urban zone, these plots offer the perfect blendof rural tranquility and urban proximity. Whether for housing development,agricultural use, or long-term investment, this is a unique opportunity toacquire two adjacent plots with excellent features. HOW CAN YOU USE THIS SPACE? Build a large natural retreat for housing, taking advantage of theexpansive area and existing infrastructure; Make a smart long-term investment, with strong potential for propertyvalue appreciation; Launch an agricultural or gardening project, benefiting from fertileland and a calm environment. Don't miss out on this unique chance to acquire two connected plots in astrategic location with exceptional potential. Contact us now for moreinformation! Opportunité Unique ! Deux TERRAINS RUSTIQUES, dont un avec CONSTRUCTION,à Unhos, pour un total de 3.637 m² ! Si vous recherchez un investissement solide ou un refuge paisible prèsde Lisbonne, voici une opportunité idéale ! Je vous présente deux TERRAINS RUSTIQUES, pour unesuperficie totale de 3.637 m², situés à Unhos, dans l’Union des Freguesias deCamarate, Unhos et Apelação, dans la commune de Loures. POURQUOICETTE OFFRE EST-ELLE SPÉCIALE ? Classementau PDM : l’un des terrains est classé dans le Plan Directeur Municipal (PDM) deLoures comme "Espaces Résidentiels : Zones Résidentielles Consolidées deNiveau III" et l’autre comme "Espaces Résidentiels à restructurer età légaliser" ; Superficietotale : 3.637 m² (1.905 m² + 1.732 m²) ; Capacitéde construction du terrain en indivision : 794,50 m², calculée sur un indice de70 % ; Emplacementprivilégié : Situés dans la Rua do Impasse, à Unhos, dans un quartierrésidentiel de maisons et de petites fermes, proche du centre de la localité ; Localisation : https://maps.app.goo.gl/qp5B8VpDeDNjPb658 Vueimprenable : panorama exceptionnel sur les plaines du Tage et le Pont Vasco daGama ; Accessibilitéexceptionnelle : accès facile aux principales autoroutes (A1, A8 et A9),assurant une connexion rapide à Lisbonne et à sa périphérie ; Intimité et sécurité : les deux terrains sont entièrement clôturés,assurant calme et protection ; Excellente exposition solaire : orientation sud, garantissant unensoleillement naturel tout au long de la journée ; Infrastructures et constructions : l’un des terrains comprend une maisonde plain-pied en construction (non encore licenciée) avec des annexes, ainsiqu’un puits et un bassin pour l’approvisionnement en eau ; Nature et culture : avec des arbres fruitiers et un sol fertile,parfaits pour les amateurs de nature et de jardinage. UNINVESTISSEMENT À FORT POTENTIEL Cesterrains se trouvent dans une zone en développement, combinant la tranquillitéde la campagne avec la proximité des centres urbains. Que ce soit pour un projetrésidentiel, une exploitation agricole ou un investissement à long terme, cetteacquisition groupée représente une opportunité rare. COMMENT PROFITER DE CET ESPACE ? Créer un grand refuge naturel à usage résidentiel, en tirant parti del’espace et des infrastructures existantes ; Investir pour l’avenir, avec un fort potentiel de valorisation à moyenet long terme ; Développerun projet agricole ou horticole, grâce à la qualité du sol et au cadrepaisible. Nemanquez pas cette opportunité unique d’acquérir deux terrains contigus dans unlieu stratégique et à fort potentiel ! Contactez-nous pour plusd’informations. ;ID RE/MAX: 121981288-139
AMI: 7772
Ref. Externa: 121981288-139
Id: 1070080
Inicie sessão para guardar este imóvel e aceder à sua lista de favoritos em qualquer dispositivo.
Área de terreno : 1732 m²
Se procura um espaço tranquilo perto de Lisboa, esta pode ser a oportunidade ideal! Apresento um TERRENO RÚSTICO EM AVOS com 1.732 m², localizado em Unhos, na União das Freguesias de Camarate, Unhos e Apelação, no concelho de Loures. O QUE TORNA ESTE TERRENO ESPECIAL? - Classificação no PDM: este terreno está classificado no PDM de Loures como "Espaços Residenciais Habitacionais a reestruturar e legalizar"; - Área do Terreno Principal: 75.480 m2; - Área do Terreno em Venda: 1.732 m2; - Capacidade Construtiva: 794,50 m2 Este terreno poderá vir a ter uma capacidade construtiva de 794,50 m2,calculado sobre um índice de 70%; - Localização excelente: situado na Rua do Impasse, em Unhos, numa zona de moradias e pequenas quintas, muito próximo do centro da localidade. - Localização: https://maps.app.goo.gl/qp5B8VpDeDNjPb658 - Vistas deslumbrantes: Paisagens incríveis sobre a lezíria e a Ponte Vasco da Gama. - Acesso fácil: Muito bem servido de acessos rápidos à A1, A8 e A9, garantindo ligação rápida a Lisboa e outras localidades. - Privacidade e segurança: Terreno vedado, proporcionando tranquilidade e proteção. - Terreno plano e soalheiro: Orientação a Sul, garantindo muita luz natural ao longo do dia. - Com árvores de fruto: Um espaço já cultivado, perfeito para quem gosta de ter um contacto direto com a natureza. UM INVESTIMENTO COM GRANDE POTENCIAL Este terreno está numa zona em desenvolvimento, combinando o sossego da natureza com a proximidade dos principais centros urbanos. COMO PODE APROVEITAR ESTE ESPAÇO? Criar um refúgio natural para relaxar aos fins de semana, sem sair muito longe da cidade; Apostar num investimento futuro, com potencial para valorização; Desenvolver um projeto de agricultura ou hortas, aproveitando o solo fértil e o ambiente calmo. Se ficou interessado, entre em contacto para mais informações ou para marcar uma visita! Marque já a sua visita e veja de perto o enorme potencial deste terreno exclusivo. Se está a considerar adquirir este terreno mas necessita vender algum imóvel primeiro,estou disponível para ajudá-lo em cada passo do processo. Com a minha experiência no mercado imobiliário e um profundo entendimento das transações imobiliárias, posso assegurar uma venda rápida e eficiente do seu imóvel, permitindo-lhe garantir este fantástico investimento. - Especialização:histórico comprovado de promoção de imóveis e de vendas imobiliáriasbem-sucedidas; - ServiçoPersonalizado: estratégias personalizadas para atender ao que necessita eprazos específicos de venda imobiliária, sem incómodo nem preocupações para si. PRECISA DE FINANCIAMENTO? Permita-me gerir apromoção e venda do seu imóvel atual, enquanto você se concentra em planear oseu novo lar, local de negócio ou investimento imobiliário. Contacte-me hojepara pedir o meu DOSSIER DEAPRESENTAÇÃO e agendar uma Reunião! A excelência do SERVIÇO AO CLIENTE é a minhaúnica prioridade. Version française ci-dessous Versioneitaliana qui sotto النسخة أدناه If you’re looking fora peaceful space near Lisbon, this might be the ideal opportunity! I present aRUSTIC LAND SHARE of 1,732 m², located in Unhos, within the Union of Parishesof Camarate, Unhos and Apelação, in the municipality of Loures. WHAT MAKES THIS LANDSPECIAL? PDM Classification:The land is classified under the Loures Municipal Master Plan (PDM) as“Residential Housing Areas to be restructured and legalized”. Total Main Plot Area:75,480 m² Area for Sale: 1,732m² Building Potential:Up to 794.50 m², based on a 70% construction index. Excellent Location:Situated on Rua do Impasse, in Unhos, in a residential area with villas andsmall farms, just minutes from the local center. Google Maps Location:https://maps.app.goo.gl/qp5B8VpDeDNjPb658 Stunning Views:Incredible landscapes over the Tagus floodplain and Vasco da Gama Bridge. Easy Access: Verywell connected to highways A1, A8, and A9, ensuring quick access to Lisbon andother nearby regions. Privacy and Security:Fully fenced land, offering peace and protection. Flat and SunnyTerrain: South-facing, ensuring abundant natural light throughout the day. With Fruit Trees: Acultivated area, ideal for those who enjoy close contact with nature. A SMART INVESTMENTWITH GREAT POTENTIAL This land is locatedin a growing area, combining the serenity of nature with proximity to majorurban centers. HOW CAN YOU ENJOYTHIS SPACE? Create a naturalretreat to relax on weekends, close to the city; Make a futureinvestment, with strong appreciation potential; Develop a farming orgardening project, taking advantage of the fertile soil and peacefulsurroundings. If you're interested,get in touch for more information or to schedule a visit! This RUSTIC LANDSHARE may also be sold together with an adjacent RUSTIC LAND WITH IMPROVEMENTS(Listing Ref. 121981288-137), located right next to this property. Book your visit todayand discover the incredible potential of this exclusive land! Si vous cherchez unendroit paisible près de Lisbonne, cette opportunité pourrait être idéale ! Jevous présente un TERRAIN RUSTIQUE EN INDIVISION de 1 732 m², situé à Unhos,dans l’Union des Freguesias de Camarate, Unhos et Apelação, dans la municipalitéde Loures. QU’EST-CE QUI REND CETERRAIN SPÉCIAL ? Classification dansle PDM : ce terrain est classé dans le PDM de Loures comme « EspacesRésidentiels à restructurer et à légaliser » ; Surface totale duterrain principal : 75 480 m² ; Surface du terrain àvendre : 1 732 m² ; Capacité deconstruction : 794,50 m² – ce terrain pourrait offrir une constructibilité de794,50 m², calculée sur un indice de 70 % ; Excellent emplacement: situé Rua do Impasse, à Unhos, dans un quartier résidentiel de maisonsindividuelles et petites fermes, tout près du centre local ; Localisation : https://maps.app.goo.gl/qp5B8VpDeDNjPb658 Vues magnifiques :paysages incroyables sur les plaines et le Pont Vasco da Gama ; Accès facile : trèsbien desservi avec un accès rapide à l’A1, l’A8 et l’A9, assurant une liaisonfluide vers Lisbonne et d’autres localités ; Intimité et sécurité: terrain clôturé, offrant tranquillité et protection ; Terrain plat etensoleillé : orientation plein sud, garantissant une grande luminositénaturelle toute la journée ; Avec des arbresfruitiers : un espace déjà cultivé, parfait pour ceux qui aiment un contactdirect avec la nature. UN INVESTISSEMENT ÀFORT POTENTIEL Ce terrain se situedans une zone en pleine expansion, alliant le calme de la nature à la proximitédes principaux centres urbains. COMMENT PROFITER DECET ESPACE ? Créer un refugenaturel pour se détendre les week-ends, sans s’éloigner de la ville ; Miser sur uninvestissement futur, avec un fort potentiel de valorisation ; Développer un projetagricole ou de potager, en profitant du sol fertile et de l’environnementpaisible. Si vous êtesintéressé, n’hésitez pas à demander plus d’informations ou à planifier unevisite ! Ce TERRAIN RUSTIQUEEN INDIVISION peut être vendu conjointement avec un TERRAIN RUSTIQUE AVECAMÉNAGEMENT (Réf. 121981288-137), situé juste à côté. Prenez rendez-vousdès maintenant pour découvrir tout le potentiel de ce terrain exclusif. ;ID RE/MAX: 121981288-138
AMI: 7772
Ref. Externa: 121981288-138
Id: 1070079
Inicie sessão para guardar este imóvel e aceder à sua lista de favoritos em qualquer dispositivo.
1.600.000 €
Área de terreno : 619 m²
Apresentamos uma excelente oportunidade de investimento num terreno para a construção de uma Residência Sénior, com licença a pagamento, com o projeto de arquitetura já aprovado e com parecer favorável da Segurança Social e da Autoridade da Proteção Civil. A Área Bruta de Construção (ABC) do projeto é de 5.085m², distribuída por 9+1 pisos, detalhados da seguinte forma: Três pisos destinados a estacionamento com 53 lugares disponíveis. Um piso de serviços, incluindo cozinha e refeitório. Cinco pisos destinados a clientes, com uma oferta variada de suítes individuais, de casal, duplas e triplas, num total de 47 quartos para acomodar 92 utentes. A quase totalidade dos quartos será servida por varandas amplas, oferecendo vistas deslumbrantes sobre um horizonte que combina elementos urbanos e rurais. No 7.º piso, encontra-se um amplo terraço virado a poente, onde os utentes poderão desfrutar de momentos relaxantes ao pôr do sol. O edifício será implantado numa urbanização predominantemente residencial e localiza-se no topo de uma ampla praceta, fechando-a. A entrada pedonal ao equipamento será feita por esta praceta, proporcionando uma excelente acessibilidade. A viabilidade da construção está assegurada, e, caso as especialidades sejam submetidas e a licença paga dentro do prazo, prevê-se que as condições para iniciar a obra estejam criadas em até seis meses. A conclusão da construção poderá ocorrer entre 30 a 36 meses após o início dos trabalhos. Além disso, há a possibilidade de desenvolver outras utilizações complementares, como uma Unidade de Convalescença ou Cuidados Paliativos, podendo essas opções ser consideradas em paralelo. A localização do terreno é estratégica, situada numa urbanização recente, a poucos minutos da EXPO, da Ponte Vasco da Gama e do Aeroporto de Lisboa, garantindo um fácil acesso e proximidade a serviços essenciais. Estamos disponíveis para agendar uma visita e/ou reunião de apresentação, seja na sua empresa ou instituição, para discutir detalhes e responder a todas as suas questões. Esta é uma oportunidade única para a construção de um equipamento de referência na área de cuidados a seniores, em plena expansão. Descubra o seu parceiro de confiança desde 2009! Na Predipereira, estamos aqui para si! Explore as oportunidades em Predipereira.net OU visite-nos em facebook.com/predipereira.lda. Como Intermediários de Crédito Certificados pelo Banco de Portugal (n.º0002387), estamos prontos para orientá-lo GRATUITAMENTE em todo o processo de crédito à habitação. A jornada para a casa dos seus sonhos começa aqui, connosco!
AMI: 8546
Ref. Externa: PP5486
Id: 1039653
Inicie sessão para guardar este imóvel e aceder à sua lista de favoritos em qualquer dispositivo.
Área de terreno : 242 m²
O lote possui uma área de 169 m² com parâmetros provisórios, pois o projeto de reconversão ainda está em elaboração e o alvará de loteamento ainda não foi emitido. São permitidos dois pisos e uma cave, com uma área total de construção de 253 m², que inclui 83 m² destinados a estacionamento. Ideal para: Famílias que desejam construir a sua casa de sonho num local tranquilo e com boa qualidade de vida. Investidores que procuram uma oportunidade para rentabilizar o seu capital através da construção e venda de um imóvel. Características: Localização privilegiada, perto de escolas, supermercados, transportes públicos e outros serviços essenciais. Terreno com bons acessos
AMI: 16962
Ref. Externa: 60730-COLI60635
Id: 912571
Inicie sessão para guardar este imóvel e aceder à sua lista de favoritos em qualquer dispositivo.
Estes agentes são especialistas nesta zona:
Inicie sessão para ocultar este imóvel das suas pesquisas e manter a sua lista de resultados organizada.
Guardar favoritos
Este imóvel foi guardados nos seus favoritos com sucesso.
Para poder guardar pesquisa deverá ter a sua sessão iniciada.
Caso não tenha uma conta, deverá criar uma.
A sua pesquisa foi guardada com sucesso!
© Copyright 2023 | CASACERTA. All rights reserved
Este site utiliza cookies. Ao navegar no site estará a consentir a sua utilização.
Para mais informações sobre os cookies pode consultar a
política de privacidade.