Lista
Comprar
Arrendar
Área de terreno : 4000 m²
Excelente terreno com moradia estilo moderno com licença para a construção já levantada, válida até 2025, podendo ser renovada.. Fica situada numa zona muito sossegada e só a 4 kms do Bombarral e muito perto Do município da Lourinhã, por isso tem a praia por perto. O terreno está plantado com vinha e têm uma vista fantástica sobre o vale.
AMI: 10312
Ref. Externa: LM740T
Id: 1706967
Inicie sessão para guardar este imóvel e aceder à sua lista de favoritos em qualquer dispositivo.
Área de terreno : 14800 m²
**A RS Imobiliária convida-o a vir conhecer Terreno Agrícola em Venda** Descubra este incrível terreno agrícola de 14.800m², localizado em um núcleo urbano com acesso facilitado por estrada alcatroada. Este terreno é um verdadeiro paraíso para quem busca tranquilidade e contato com a natureza. Com uma área plana seguida de um declive suave atravessado por uma linha de água, o local é perfeito para diversas atividades agrícolas. Além disso, possui poços e uma cisterna, garantindo o abastecimento de água necessário para o cultivo. O terreno inclui um pomar produtivo e oferece vistas magníficas da Serra de Montejunto, proporcionando um cenário deslumbrante e inspirador. A propriedade não é urbanizável, mas há a possibilidade de construção de um hotel, tornando-se uma excelente oportunidade para investidores do setor turístico. Para aqueles que desejam expandir, existe a possibilidade de aquisição de um terreno confinante com área e valor idênticos. Não perca esta oportunidade única de adquirir um terreno versátil e cheio de potencial em uma localização privilegiada. Entre em contato para mais informações e agende uma visita! *As informações disponibilizadas são de cariz meramente informativo, não vinculativo, não dispensando a consulta da mediadora.
AMI: 21428
Ref. Externa: 123034
Id: 1704372
Inicie sessão para guardar este imóvel e aceder à sua lista de favoritos em qualquer dispositivo.
Área de terreno : 12320 m²
Terreno Agrícola c / área de 12320 m2 , classificado no Plano Diretor municipal -Lourinhã com os seguintes planos: uma pequena área RAN (reserva agrícola Nacional) 2 270 m2 a Norte do Terreno, a Sul viabilidade de construção de Turismo de habitação ( 3 Estrelas e const. 40 camas por hect.) ( Estrada das Moutelas)com as respetivos áreas obrigatórias a respeitar. Com bons acessos a toda a zona OESTE, A8 e A6 a poucos minutos, 50 minutos de Lisboa. O Oeste é uma das sua zonas de eleição para o seu negócio! Tenho a solução! Agende já sua visita!
AMI: 10545
Ref. Externa: 26CT0202
Id: 1704366
Inicie sessão para guardar este imóvel e aceder à sua lista de favoritos em qualquer dispositivo.
Área de terreno : 874 m²
Terreno com Ruina para construção. Terreno, localizado na Pinhôa, a 15 minutos da Praia da Areia Branca e a 13 minutos da entrada da A8. Com uma área total de 874,43 m2 e 161,68 m2 de implantação. Boa oportunidade para construir. 10 minutos da Lourinhã 15 minutos da Praia 60 minutos de Lisboa Visite-nos!
AMI: 18528
Ref. Externa: TER_216
Id: 1704241
Inicie sessão para guardar este imóvel e aceder à sua lista de favoritos em qualquer dispositivo.
Área de terreno : 218 m²
Terreno c/ Projecto & Alvará de Construção até 2028! Excelente oportunidade para construir a sua moradia de sonho sitiado em Moita dos Ferreiros, no coração do Oeste. Terreno misto com 3900 m2, sendo 1001m2 urbanos, situado em Moita dos Ferreiros, concelho da Lourinhã, inserido numa zona tranquila e predominantemente residencial, ideal para quem procura qualidade de vida sem abdicar da proximidade aos principais centros urbanos. O terreno dispõe de alvará de construção válido até 2028, aprovado para moradia unifamiliar térrea, com: Área de implantação: 318 m² Área de construção: 318 m² Volumetria máxima: 550 m³ Estas características permitem o desenvolvimento de uma moradia moderna, funcional e perfeitamente integrada no lote, com excelente exposição solar e espaço exterior generoso. Envolvente e Localização Moita dos Ferreiros beneficia de um enquadramento privilegiado, combinando a tranquilidade do meio rural com acessos rápidos a serviços e infraestruturas essenciais. Num raio inferior a 15 km, encontra: Praias da Costa de Prata (Areia Branca, Porto Dinheiro, Peniche) Vila da Lourinhã, com comércio, escolas e serviços Acessos rápidos à A8 A localização permite ainda estar a cerca de 50 minutos de Lisboa, tornando este terreno uma solução ideal tanto para habitação própria permanente como para investimento, seja para mercado residencial ou arrendamento de média/longa duração. Vantagens de viver no Oeste Viver no Oeste é sinónimo de: Elevada qualidade de vida Contacto com a natureza e o mar Clima ameno durante todo o ano Menor densidade urbana face à área metropolitana de Lisboa Forte procura imobiliária, com valorização sustentada Um terreno com projeto viável, prazos definidos e localização estratégica — a base perfeita para concretizar um projeto residencial sólido e com futuro. Não perca esta oportunidade e venha conhecer!
AMI: 23990
Ref. Externa: 66790-TEAM60762
Id: 1529037
Inicie sessão para guardar este imóvel e aceder à sua lista de favoritos em qualquer dispositivo.
Área de terreno : 3900 m²
Terreno para construção com 3900 m2, com projeto aprovado para Moradia T3 Térrea com garagem, com as seguintes caraterísticas: Cozinha com 12 m2 e despensa com 2 m2; Sala de estar com 21 m2; Sala de jantar com 14 m2; Quarto 1 com 11 m2; Quarto 2 com 14 m2; Suíte com 14 m2 e Wc com 4 m2; Wc com 6 m2; Garagem com 33 m2. Localizado na Moita dos Ferreiros, próximo do acesso á A8 e aos centros urbanos do Bombarral, Óbidos, Caldas da Rainha e Lourinhã, no máximo a 30 minutos das praias da região Oeste, Baleal, Areia Branca, Foz do Arelho e São Martinho do Porto, a 70 kms de Lisboa. Está aqui a sua oportunidade de construir a sua nova casa, com uma paisagem fantástica. Venha conhecer.
AMI: 15281
Ref. Externa: SFF 271
Id: 1479623
Inicie sessão para guardar este imóvel e aceder à sua lista de favoritos em qualquer dispositivo.
Área de terreno : 3900 m²
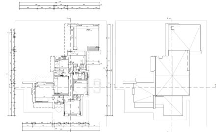
PREÇO NEGOCIÁVEL Área Total do Terreno: 3.900 m² Área de Implantação da Moradia: 218,35 m² Localização: Moita dos Ferreiros, Lourinhã ---------------------------------------------------- Detalhes do Projeto aprovado: Tipologia: T3 (Três Quartos) Área de Implantação: 218,35 m² Distribuição dos Espaços: Cozinha: 12,20 m² Despensa: 2,30 m² Sala de Estar: 21,30 m² Sala de Jantar: 14,50 m² Instalação Sanitária: 6,50 m² Hall: 13,40 m² Quarto Suite: 14,30 m² com WC Privativo de 3,75 m² Quarto 2: 11,40 m² Quarto 3: 14,00 m² Garagem: 33,90 m² ---------------------------------------------------- Características do Terreno: Localização Privilegiada: Situado em Moita dos Ferreiros, uma localidade tranquila e charmosa na Lourinhã, com fácil acesso às principais vias e a poucos minutos de diversas comodidades. Projeto Aprovado: Permite o início imediato da construção, poupando tempo e recursos com burocracias e aprovação de projetos. Ampla Área: O terreno de 3.900 m² oferece espaço abundante para jardim, área de lazer, ou outros projetos adicionais. ---------------------------------------------------- Vantagens do Projeto: Conforto e Funcionalidade: Projeto T3 bem distribuído, com espaços amplos e bem iluminados. Garagem Ampla: Espaço suficiente para estacionamento e arrumação. Suite Principal: Quarto principal com WC privativo, garantindo maior privacidade e conforto. Ambientes Integrados: Sala de estar e sala de jantar conectadas, promovendo convivência e funcionalidade. ---------------------------------------------------- Pontos de Interesse Próximos: Proximidade ao centro de Lourinhã: Acesso fácil a supermercados, escolas, centros de saúde e outros serviços essenciais. Beleza Natural: Região conhecida pelas suas paisagens naturais, vinícolas e praias próximas. Acesso Rápido: Fácil acesso à autoestrada, conectado à Lourinhã, praias e outros pontos de interesse. ---------------------------------------------------- Aproveite esta excelente oportunidade de construir a casa dos seus sonhos com um projeto já aprovado! Entre em contato para mais informações e agendamento de visitas.
AMI: 16962
Ref. Externa: 64546-MCCP62656
Id: 1149621
Inicie sessão para guardar este imóvel e aceder à sua lista de favoritos em qualquer dispositivo.
Área de terreno : 1001 m²
Ref: 3022-TUPG Oportunidade de Investimento! Terreno Misto (Rustico/Urbano) em Casal dos Pinheirinhos - Moita de Ferreiros. Terreno com Licença de construção e projeto aprovado (disponível para consulta), com a área total de 1.001m2, área bruta de construção 218,35m2. O terreno tem um Poço e uma Vinha. Localização próxima do Bombarral e da Lourinhã, perto do Karting Internacional do Bombarral e do futuro Hospital do Bombarral, Campo de futebol, vista para a serra de Montejunto e para uma charca no final do Terreno. Perto de várias Praias (Areia Branca) e a cerca de 4 Km de distância da A8. A informação disponibilizada, ainda que precisa, não dispensa a sua confirmação nem pode ser considerada vinculativa.
AMI: 9369
Ref. Externa: 3022-TUPG
Id: 945025
Inicie sessão para guardar este imóvel e aceder à sua lista de favoritos em qualquer dispositivo.
Área de terreno : 3900 m²
Com Licença de Construção e Projeto Aprovado (disponível para consulta) encontra-se este terreno na freguesia da Moita dos Ferreiros. Com uma área bruta de construção 218.35 m2. É uma excelente oportunidade de investimento. Possui uma vinha e um poço, tratando-se de um terreno misto. Localiza-se perto do Bombarral (onde será construído o novo hospital) e da Lourinhã. Perto do Karting Internacional, campo de futebol e vista lindíssima para a Serra do Montejunto. Tem várias praias a poucos minutos de distância e fica a cerca de 4km da A8. This plot of land in the parish of Moita dos Ferreiros has a building license and an approved project (available for consultation). It is an excellent investment opportunity. It has a vineyard and a well, making it a mixed plot. It is located near Bombarral (where the new hospital will be built) and Lourinhã. Close to International Karting, a soccer field and beautiful views of the Serra do Montejunto.
AMI: 17782
Ref. Externa: 386/T/00253
Id: 650158
Inicie sessão para guardar este imóvel e aceder à sua lista de favoritos em qualquer dispositivo.
Estes agentes são especialistas nesta zona:
Inicie sessão para ocultar este imóvel das suas pesquisas e manter a sua lista de resultados organizada.
© Copyright 2023 | CASACERTA. All rights reserved
Guardar favoritos
Este imóvel foi guardados nos seus favoritos com sucesso.
Para poder guardar pesquisa deverá ter a sua sessão iniciada.
Caso não tenha uma conta, deverá criar uma.
A sua pesquisa foi guardada com sucesso!
Este site utiliza cookies. Ao navegar no site estará a consentir a sua utilização.
Para mais informações sobre os cookies pode consultar a
política de privacidade.