Lista
Comprar
Arrendar
Área de terreno : 18774 m²
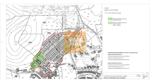
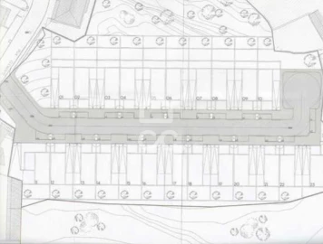
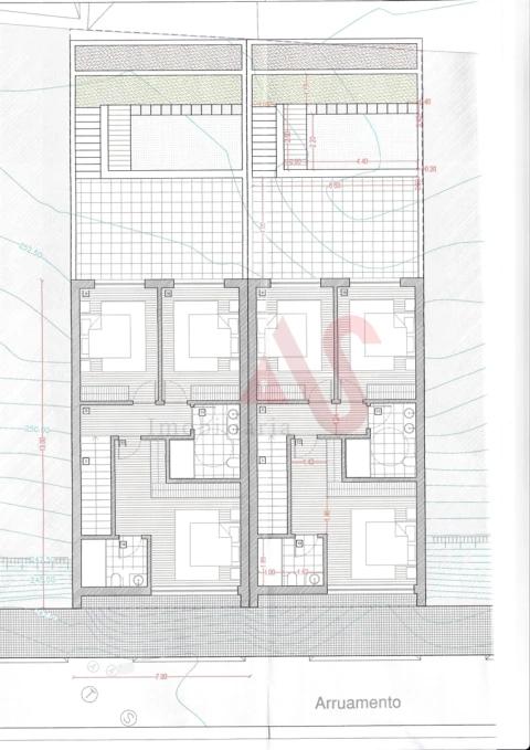
Mata de São Jorge Apresentamos este terreno denominado "Mata de São Jorge", Localizado em Boim, Lousada, com mais de 18.000m², numa zona tranquila, mas de fácil acesso. Ideal para fazer um loteamento e construção de moradias. Este terreno oferece um grande potencial para quem deseja investir. Venha conhecer! ComprarCasa é uma Rede Imobiliária integrada exclusivamente por associados da APEMIP (Associação dos Profissionais e Empresas de Mediação Imobiliária de Portugal), garantia de profissionalismo e de protecção dos direitos dos consumidores e utilizadores. A ComprarCasa Rede Imobiliária da APEMIP, resulta de um acordo de colaboração, celebrado em Junho de 2004, entre a APEMIP e a UCI (União de Créditos Imobiliários - instituição financeira especialista na concessão de crédito à habitação a particulares, através dos profissionais do sector imobiliário). A ComprarCasa iniciou a sua actividade comercial em Agosto de 2004, com a missão de Ser a Maior e Melhor Rede Imobiliária Nacional, oferecendo múltiplos serviços a mediadores imobiliários, baseados no conceito de marca comum, possibilitando e potenciando negócios nomeadamente para si, que pretende vender, comprar, arrendar ou trespassar um determinado imóvel. Com loja em Lousada, a IMOCERTA, faz parte da Rede ComprarCasa desde de Outubro de 2016. Na Mediação Imobiliária desde 2008, a IMOCERTA já ajudou imensas famílias a concretizar os seus sonhos, tanto na venda como na compra dos seus imóveis, para além de as apoiar na obtenção de crédito habitação, junto de instituições financeiras. Com a entrada em vigor do Decreto- Lei nº 81-C /2017 de 7 de Julho, que aprova o regime jurídico que estabelece os requisitos de acesso e de exercício da actividade de intermediário de crédito e de prestação de serviços de consultoria, e do Aviso do Banco de Portugal nº 6/2017, a ComprarCasa IMOCERTA (LA & EC, Soc. Med. Imobiliária, Lda), para além de ser uma Empresa de Mediação Imobiliária (Licença AMI 8359), passou também a ser um Intermediário de Crédito autorizado pelo Banco de Portugal com o número de registo 2124, ajudando os seus clientes junto das várias entidades bancárias. Na compra ou venda, procure a ComprarCasa IMOCERTA. ComprarCasa. A melhor forma de encontrar a casa ideal.
AMI: 8359
Ref. Externa: 365/T/03252
Id: 1491012
Inicie sessão para guardar este imóvel e aceder à sua lista de favoritos em qualquer dispositivo.
Área de terreno : 4227 m²
Terreno urbano com 4227m² Com uma excelente exposição solar, totalmente plano e com frente de estrada a todo o comprimento do mesmo, ideal para a contrução de moradias. O acesso ao terreno faz-se através de vias principais da região e, apesar de estar numa zona tranquila, está a escassos minutos do centro da Vila de Lousada e relativamente próximo de outros centros urbanos. Venha conhecer! ComprarCasa é uma Rede Imobiliária integrada exclusivamente por associados da APEMIP (Associação dos Profissionais e Empresas de Mediação Imobiliária de Portugal), garantia de profissionalismo e de protecção dos direitos dos consumidores e utilizadores. A ComprarCasa Rede Imobiliária da APEMIP, resulta de um acordo de colaboração, celebrado em Junho de 2004, entre a APEMIP e a UCI (União de Créditos Imobiliários - instituição financeira especialista na concessão de crédito à habitação a particulares, através dos profissionais do sector imobiliário). A ComprarCasa iniciou a sua actividade comercial em Agosto de 2004, com a missão de Ser a Maior e Melhor Rede Imobiliária Nacional, oferecendo múltiplos serviços a mediadores imobiliários, baseados no conceito de marca comum, possibilitando e potenciando negócios nomeadamente para si, que pretende vender, comprar, arrendar ou trespassar um determinado imóvel. Com loja em Lousada, a IMOCERTA, faz parte da Rede ComprarCasa desde de Outubro de 2016. Na Mediação Imobiliária desde 2008, a IMOCERTA já ajudou imensas famílias a concretizar os seus sonhos, tanto na venda como na compra dos seus imóveis, para além de as apoiar na obtenção de crédito habitação, junto de instituições financeiras. Com a entrada em vigor do Decreto- Lei nº 81-C /2017 de 7 de Julho, que aprova o regime jurídico que estabelece os requisitos de acesso e de exercício da actividade de intermediário de crédito e de prestação de serviços de consultoria, e do Aviso do Banco de Portugal nº 6/2017, a ComprarCasa IMOCERTA (LA & EC, Soc. Med. Imobiliária, Lda), para além de ser uma Empresa de Mediação Imobiliária (Licença AMI 8359), passou também a ser um Intermediário de Crédito autorizado pelo Banco de Portugal com o número de registo 2124, ajudando os seus clientes junto das várias entidades bancárias. Na compra ou venda, procure a ComprarCasa IMOCERTA. ComprarCasa. A melhor forma de encontrar a casa ideal.
AMI: 8359
Ref. Externa: 365/T/03251
Id: 1491010
Inicie sessão para guardar este imóvel e aceder à sua lista de favoritos em qualquer dispositivo.
Área de terreno : 3400 m²
Excelente oportunidade de investimento no coração de Lousada. Terreno urbano com 3.400 m², com área de implantação de 885 m² e possibilidade de construção de cave + 3 pisos, ideal para desenvolvimento de um empreendimento residencial. Com capacidade estimada para 18 a 20 frações habitacionais, este terreno destaca-se pela sua localização central, proximidade a serviços, comércio, escolas e acessos principais. Características Principais: Área total do terreno: 3.400 m² Área de implantação: 885 m² Construção: Cave + 3 pisos Capacidade para 18–20 frações Localização central e valorizada Ideal para: Promotores e investidores que procuram um projeto com excelente rentabilidade e procura garantida numa das zonas mais dinâmicas de Lousada. Contacte-nos para mais informações ou visita ao local.
AMI: 7953
Ref. Externa: vas 10/2025
Id: 1415436
Inicie sessão para guardar este imóvel e aceder à sua lista de favoritos em qualquer dispositivo.
Área de terreno : 4526 m²
Terreno com Projeto Aprovado. Este terreno conta com mais de 4500m² e tem um projeto aprovado para construção de 2 armazéns em propriedade horizontal, com uma área de construção de cerca de 2400m². Tem uma localização de excelência, ficando a cerca de 5 minutos do centro da Vila de Lousada e apresentando ótimos acessos. Venha conhecer o melhor lugar para o seu próximo negócio! ComprarCasa é uma Rede Imobiliária integrada exclusivamente por associados da APEMIP (Associação dos Profissionais e Empresas de Mediação Imobiliária de Portugal), garantia de profissionalismo e de protecção dos direitos dos consumidores e utilizadores. A ComprarCasa Rede Imobiliária da APEMIP, resulta de um acordo de colaboração, celebrado em Junho de 2004, entre a APEMIP e a UCI (União de Créditos Imobiliários - instituição financeira especialista na concessão de crédito à habitação a particulares, através dos profissionais do sector imobiliário). A ComprarCasa iniciou a sua actividade comercial em Agosto de 2004, com a missão de Ser a Maior e Melhor Rede Imobiliária Nacional, oferecendo múltiplos serviços a mediadores imobiliários, baseados no conceito de marca comum, possibilitando e potenciando negócios nomeadamente para si, que pretende vender, comprar, arrendar ou trespassar um determinado imóvel. Com loja em Lousada, a IMOCERTA, faz parte da Rede ComprarCasa desde de Outubro de 2016. Na Mediação Imobiliária desde 2008, a IMOCERTA já ajudou imensas famílias a concretizar os seus sonhos, tanto na venda como na compra dos seus imóveis, para além de as apoiar na obtenção de crédito habitação, junto de instituições financeiras. Com a entrada em vigor do Decreto- Lei nº 81-C /2017 de 7 de Julho, que aprova o regime jurídico que estabelece os requisitos de acesso e de exercício da actividade de intermediário de crédito e de prestação de serviços de consultoria, e do Aviso do Banco de Portugal nº 6/2017, a ComprarCasa IMOCERTA (LA & EC, Soc. Med. Imobiliária, Lda), para além de ser uma Empresa de Mediação Imobiliária (Licença AMI 8359), passou também a ser um Intermediário de Crédito autorizado pelo Banco de Portugal com o número de registo 2124, ajudando os seus clientes junto das várias entidades bancárias. Na compra ou venda, procure a ComprarCasa IMOCERTA. ComprarCasa. A melhor forma de encontrar a casa ideal.
AMI: 8359
Ref. Externa: 365/T/03225
Id: 1391865
Inicie sessão para guardar este imóvel e aceder à sua lista de favoritos em qualquer dispositivo.
Área de terreno : 162 m²
Terreno para Construção em Boim, Lousada Terreno com projeto aprovado.Localização privilegiada com fácil acesso a vias principais e inserido em loteamento com boa orientação solar.Características do Terreno (lote 7):Área total: 162 m²Área bruta de construção: 268 m²Tipo: Terreno para ConstruçãoInserido em zona classificada para habitação.Ideal para construção de moradia unifamiliar, este terreno oferece todo o potencial para quem procura um espaço amplo e bem localizado num ambiente calmo e em crescimento.Existe outro terreno para venda (lote 8 - 153 m²) pelo mesmo valor.Referência: ASG25158Por sermos intermediários de crédito devidamente autorizados pelo Banco de Portugal (Reg. 2736), fazemos a gestão de todo o seu processo de financiamento, sempre com as melhores soluções de mercado.Porquê escolher a AS Imobiliária?Com mais de 16 anos no ramo imobiliário e milhares de famílias felizes, dispomos de 9 agências estrategicamente localizadas, para o servir com proximidade, corresponder à suas expectativas e ajudá-lo a adquirir a sua casa de sonho. Compromisso, Competência e Confiança são os nossos valores que entregamos aos nossos Clientes na hora de comprar, arrendar ou vender o seu imóvel.A nossa prioridade é a sua Felicidade!Na AS Imobiliária somos apaixonados por vender casas!Especialistas imobiliários em Vizela ; Guimarães ; Felgueiras ; Lousada ; Santo Tirso ; Barcelos ; São João da Madeira ; Porto ; Braga ; Trofa ; Lisboa
AMI: 13249
Ref. Externa: ASG25158
Id: 1350346
Inicie sessão para guardar este imóvel e aceder à sua lista de favoritos em qualquer dispositivo.
Área de terreno : 162 m²
Lote de Terreno Urbano, LOUSADAFrentes de estradaViabilidade de construção habitacionalTodo MuradoBons acessosBoa exposição solarPronto a ConstruirArea bruta de construção 268 metros quadradosSitua-se:- a 1 min. de Acesso a A4,A42- a 5 min. de Vizela;- a 5 min. de Lousada:- a 30 min. através de A3,A4 (50km) do Aeroporto Francisco Sá Carneiro.I-Móveis apresenta-se como a Imobiliária de referência na Zona Norte.Não hesite em confiar o seu sonho nas mãos de profissionais.
AMI: 15816
Ref. Externa: I-M1695
Id: 1332021
Inicie sessão para guardar este imóvel e aceder à sua lista de favoritos em qualquer dispositivo.
Área de terreno : 153 m²
Lote de Terreno Urbano, LOUSADAFrentes de estradaViabilidade de construção habitacionalTodo MuradoBons acessosBoa exposição solarPronto a ConstruirArea bruta de construção 268 metros quadradosSitua-se:- a 1 min. de Acesso a A4,A42- a 5 min. de Vizela;- a 5 min. de Lousada:- a 30 min. através de A3,A4 (50km) do Aeroporto Francisco Sá Carneiro.I-Móveis apresenta-se como a Imobiliária de referência na Zona Norte.Não hesite em confiar o seu sonho nas mãos de profissionais.
AMI: 15816
Ref. Externa: I-M1694
Id: 1332020
Inicie sessão para guardar este imóvel e aceder à sua lista de favoritos em qualquer dispositivo.
Área de terreno : 713 m²
RO2609 Lote de terreno com 712,5 m2 para construção de moradia com 237,25 m2 de área total de construção (cave, rés do chão, 2 andares e anexo). Localiza-se junto à EN207, próximo ao Parque de Lazer de Freamunde, dispõe de hipermercados, escolas e outro tipo de importantes infraestruturas nas proximidades. Para mais informações e/ou agendar visita contacte-nos! A Real Objectiva é uma empresa implantada no norte de Portugal, vocacionada para a venda e arrendamento de imóveis. Fruto dos seus 25 anos de trabalho, pautados pelo rigor e profissionalismo alcançou resultados reconhecidos pelo mercado em que se insere, atuando de forma transversal no mercado habitacional e no mercado industrial. Missão: Praticar um conceito de mediação imobiliária baseada na relação cliente/empresa consolidada pelo papel do consultor especialista e capaz de permitir a superação das expectativas de todos os intervenientes. Posicionamento: Vendemos casas Vendemos armazéns, escritórios, lojas e terrenos Especialistas do mercado imobiliário Princípios de Atuação: Competência Confidencialidade Idoneidade Disponibilidade Modelos de Ação: Rigor e profissionalismo Especialistas na angariação e na mediação imobiliária Estudamos o mercado e propomo-nos a encontrar soluções adequadas Avaliações rigorosas e alvo de estudo pormenorizado Cuidado extremo nas visitas
AMI: 3456
Ref. Externa: RO2609
Id: 1251996
Inicie sessão para guardar este imóvel e aceder à sua lista de favoritos em qualquer dispositivo.
Área de terreno : 356 m²
Imagine viver num espaço onde o conforto e a conveniência se encontram.Este lote de terreno, com 356m² e área de construção já aprovada de 396m² (incluindo cave, piso térreo e primeiro piso), é o cenário perfeito para criar o lar que sempre desejou.Localizado em Boim, Lousada, o terreno oferece tudo o que você precisa ao seu redor. Num raio de apenas 5 km, encontrará escolas públicas e privadas de qualidade, parques de lazer para momentos de descontração, 5 hipermercados, ginásios bem equipados e uma vasta oferta de comércio.Aprovado pela Câmara Municipal, este terreno está pronto para dar início ao projeto da sua nova casa.Não perca a oportunidade de investir no seu futuro e viver num lugar que combina tranquilidade com todas as comodidades à porta.Agarre esta oportunidade e comece hoje a construir o seu sonho!Porquê escolher a ERÖV?Confiança, experiência e dedicação ao seu lado.Na ERÖV, colocamos ao seu dispor mais de 15 anos de experiência no setor imobiliário, com uma equipa focada em encontrar a solução certa para si. Acreditamos em relações de proximidade e acompanhamento personalizado, por isso, estamos ao seu lado em todas as etapas, seja na compra, venda ou investimento.Valorizamos a transparência, o profissionalismo e os resultados de excelência, que fazem parte da nossa identidade e do nosso compromisso com cada cliente.Além disso, como intermediários de crédito autorizados pelo Banco de Portugal (n.º 0008180), oferecemos um serviço gratuito de apoio ao financiamento, garantindo o acesso às melhores condições de mercado – sempre com clareza, sem complicações.Fale conosco e descubra como podemos ajudá-lo a concretizar o seu sonho imobiliário com segurança e tranquilidade.
AMI: 22945
Ref. Externa: VA-24301B
Id: 1155254
Inicie sessão para guardar este imóvel e aceder à sua lista de favoritos em qualquer dispositivo.
Área de terreno : 4750 m²
Terreno para construção com 4 750 m2 em Ordem, LousadaTerreno à face da Estrada Nacional 207, com 55 m de frente para a estrada nacional e 80 m de frente para a Rua de Curtinhas, com possibilidade de destaque.Localiza-se em solo urbanizável "Espaços residenciais de tipo III" que correspondem a áreas que se destinam preferencialmente a funções residenciais, podendo acolher outros usos desde que compatíveis com a utilização dominante, caracterizando-se por apresentarem baixa densidade e de tipologias dominantemente de moradia unifamiliar isolada (extraído PDM de Lousada).- Terreno com boa exposição solar e vistas desafogadas.Situa-se:- A 2km do centro de Lousada;- A 2 minutos do acesso à A42;- A 5km da entrada da A4.Referência: ASL22024Porquê escolher a AS ImobiliáriaCom mais de 16 anos no ramo imobiliário e milhares de famílias felizes, dispomos de 9 agências estrategicamente localizadas, para o servir com proximidade, corresponder à suas expectativas e ajudá-lo a adquirir a sua casa de sonho. Compromisso, Competência e Confiança são os nossos valores que entregamos aos nossos Clientes na hora de comprar, arrendar ou vender o seu imóvel.A nossa prioridade é a sua Felicidade!Na AS Imobiliária somos apaixonados por vender casas!Especialistas imobiliários em Vizela ; Guimarães ; Taipas ; Felgueiras ; Lousada ; Santo Tirso ; Barcelos ; São João da Madeira ; Porto ; Braga ;
AMI: 13249
Ref. Externa: ASL22024
Id: 1154620
Inicie sessão para guardar este imóvel e aceder à sua lista de favoritos em qualquer dispositivo.
Área de terreno : 1000 m²
Terreno para construção com 1 000 m2 em Ordem, LousadaTerreno à face da Estrada Nacional 207, com 60 m de frente para a estrada, com possibilidade de destaque.Localiza-se em solo urbanizável "Espaços residenciais de tipo III" que correspondem a áreas que se destinam preferencialmente a funções residenciais, podendo acolher outros usos desde que compatíveis com a utilização dominante, caracterizando-se por apresentarem baixa densidade e de tipologias dominantemente de moradia unifamiliar isolada (extraído PDM de Lousada).- Terreno com boa exposição solar e vistas desafogadas.Excelente terreno para a construção da sua nova moradia.Situa-se:- A 2km do centro de Lousada;- A 2 minutos do acesso à A42;- A 5km da entrada da A4.Referência: ASL22022Porquê escolher a AS Imobiliária?Com mais de 16 anos no ramo imobiliário e milhares de famílias felizes, dispomos de 9 agências estrategicamente localizadas, para o servir com proximidade, corresponder à suas expectativas e ajudá-lo a adquirir a sua casa de sonho. Compromisso, Competência e Confiança são os nossos valores que entregamos aos nossos Clientes na hora de comprar, arrendar ou vender o seu imóvel.A nossa prioridade é a sua Felicidade!Na AS Imobiliária somos apaixonados por vender casas!Especialistas imobiliários em Vizela ; Guimarães ; Taipas ; Felgueiras ; Lousada ; Santo Tirso ; Barcelos ; São João da Madeira ; Porto ; Braga ;
AMI: 13249
Ref. Externa: ASL22022
Id: 1154617
Inicie sessão para guardar este imóvel e aceder à sua lista de favoritos em qualquer dispositivo.
Área de terreno : 1478 m²
Com uma àrea total de 1.478 m² este terreno tem um excelente potencial para desenvolvimento. Construção iniciada: Estrutura em fase inicial de um prédio destinado a serviços, ideal para empresas ou empreendimentos comerciais. Localização estratégica: Situado junto à N106, numa zona de fácil acesso, proporcionando uma excelente oportunidade para negócios. Proximidade de auto-estrada: Entrada da A42 a apenas 3 minutos. Aproveite esta oportunidade de investimento com grande potencial de valorização! Para mais informações ou agendar uma visita, entre em contacto connosco. 'Dê Asas à Sua Nova História' Uma equipa profissional um propósito Esta é uma equipa muito dinâmica que funciona como uma unidade muito eficiente. A grande capacidade de resposta e comunicação é a razão que leva os clientes a sentirem-se muito bem acompanhados ao longo dos seus processos de compra e venda. Experiência, competência e profissionalismo Todos os dias trabalhamos para somar, mas não a qualquer preço. Estamos do seu lado, representamos os seus interesses. Fazemo-lo com confiança e respeito. Processos claros e com transparência. Preocupamo-nos em prestar um serviço de excelência e inovador aos nossos clientes, quer estes pretendam vender comprar ou arrendar casa.
AMI: 20808
Ref. Externa: F2401.076
Id: 904445
Inicie sessão para guardar este imóvel e aceder à sua lista de favoritos em qualquer dispositivo.
Área de terreno : 11327 m²
Terreno para Construção com 11.327 m² em Boim, Lousada Alto Potencial de Desenvolvimento Habitacional •Vende-se terreno com 11.327 m², situado em Boim, Lousada, na sua maioria inserido em zona de construção, com excelente potencial para loteamento. •Classificado no PDM de Lousada como Solo Urbanizado - Espaços Residenciais do Tipo III, este terreno oferece uma oportunidade única para investidores ou construtores que procuram desenvolver um projeto residencial em zona de expansão. Detalhes Técnicos: •Área total: 11.327 m² •Área inserida em Solo Urbanizado, Espaços Residenciais do Tipo III: cerca de 10.000 m² •Número de pisos acima da cota de soleira: 2; •Índice de utilização do solo: 0,7; •Índice de impermeabilização do solo: 0,70. •Potencial de construção: 7.000 m² (aproximadamente) Vantagens do Terreno: •Localização estratégica em zona residencial tranquila •Excelente acessibilidade e proximidade ao centro da Vila de Lousada •Ideal para a construção de moradias unifamiliares ou empreendimentos habitacionais •Terreno plano com boas condições de implementação de infraestruturas Oportunidade de Investimento: Com grande capacidade de desenvolvimento residencial, este terreno é uma excelente oportunidade para promotores imobiliários que pretendam investir numa zona de crescente procura habitacional. Para mais informações ou visita ao local, contacte Joaquim Ruão, tel. 919 936 829. #ref: 128766
AMI: 11220
Ref. Externa: 128766
Id: 900535
Inicie sessão para guardar este imóvel e aceder à sua lista de favoritos em qualquer dispositivo.
Sob consulta
Área de terreno : 356 m²
Terreno de Construção em Boim, Lousada. Localiza-se num loteamento com todas as infraestruturas e permite construção de moradia independente com Cave, R/Chão e Andar. Próximo de todos os serviços e do centro da Vila de Lousada. ComprarCasa é uma Rede Imobiliária integrada exclusivamente por associados da APEMIP (Associação dos Profissionais e Empresas de Mediação Imobiliária de Portugal), garantia de profissionalismo e de protecção dos direitos dos consumidores e utilizadores. A ComprarCasa Rede Imobiliária da APEMIP, resulta de um acordo de colaboração, celebrado em Junho de 2004, entre a APEMIP e a UCI (União de Créditos Imobiliários - instituição financeira especialista na concessão de crédito à habitação a particulares, através dos profissionais do sector imobiliário). A ComprarCasa iniciou a sua actividade comercial em Agosto de 2004, com a missão de Ser a Maior e Melhor Rede Imobiliária Nacional, oferecendo múltiplos serviços a mediadores imobiliários, baseados no conceito de marca comum, possibilitando e potenciando negócios nomeadamente para si, que pretende vender, comprar, arrendar ou trespassar um determinado imóvel. Com loja em Lousada, a IMOCERTA, faz parte da Rede ComprarCasa desde de Outubro de 2016. Na Mediação Imobiliária desde 2008, a IMOCERTA já ajudou imensas famílias a concretizar os seus sonhos, tanto na venda como na compra dos seus imóveis, para além de as apoiar na obtenção de crédito habitação, junto de instituições financeiras. Com a entrada em vigor do Decreto- Lei nº 81-C /2017 de 7 de Julho, que aprova o regime jurídico que estabelece os requisitos de acesso e de exercício da actividade de intermediário de crédito e de prestação de serviços de consultoria, e do Aviso do Banco de Portugal nº 6/2017, a ComprarCasa IMOCERTA (LA & EC, Soc. Med. Imobiliária, Lda), para além de ser uma Empresa de Mediação Imobiliária (Licença AMI 8359), passou também a ser um Intermediário de Crédito autorizado pelo Banco de Portugal com o número de registo 2124, ajudando os seus clientes junto das várias entidades bancárias. Na compra ou venda, procure a ComprarCasa IMOCERTA. ComprarCasa. A melhor forma de encontrar a casa ideal.
AMI: 8359
Ref. Externa: 365/T/02905
Id: 826537
Inicie sessão para guardar este imóvel e aceder à sua lista de favoritos em qualquer dispositivo.
Área de terreno : 30000 m²
Terreno com 30000m2 com projeto aprovado para construção de 23 moradias; Boa exposição solar; Bons acessos. ComprarCasa é uma Rede Imobiliária integrada exclusivamente por associados da APEMIP (Associação dos Profissionais e Empresas de Mediação Imobiliária de Portugal), garantia de profissionalismo e de protecção dos direitos dos consumidores e utilizadores. A ComprarCasa Rede Imobiliária da APEMIP, resulta de um acordo de colaboração, celebrado em Junho de 2004, entre a APEMIP e a UCI (União de Créditos Imobiliários - instituição financeira especialista na concessão de crédito à habitação a particulares, através dos profissionais do sector imobiliário). A ComprarCasa iniciou a sua actividade comercial em Agosto de 2004, com a missão de Ser a Maior e Melhor Rede Imobiliária Nacional, oferecendo múltiplos serviços a mediadores imobiliários, baseados no conceito de marca comum, possibilitando e potenciando negócios nomeadamente para si, que pretende vender, comprar, arrendar ou trespassar um determinado imóvel. Com loja em Lousada, a IMOCERTA, faz parte da Rede ComprarCasa desde de Outubro de 2016. Na Mediação Imobiliária desde 2008, a IMOCERTA já ajudou imensas famílias a concretizar os seus sonhos, tanto na venda como na compra dos seus imóveis, para além de as apoiar na obtenção de crédito habitação, junto de instituições financeiras. Com a entrada em vigor do Decreto- Lei nº 81-C /2017 de 7 de Julho, que aprova o regime jurídico que estabelece os requisitos de acesso e de exercício da actividade de intermediário de crédito e de prestação de serviços de consultoria, e do Aviso do Banco de Portugal nº 6/2017, a ComprarCasa IMOCERTA (LA & EC, Soc. Med. Imobiliária, Lda), para além de ser uma Empresa de Mediação Imobiliária (Licença AMI 8359), passou também a ser um Intermediário de Crédito autorizado pelo Banco de Portugal com o número de registo 2124, ajudando os seus clientes junto das várias entidades bancárias. Na compra ou venda, procure a ComprarCasa IMOCERTA. ComprarCasa. A melhor forma de encontrar a casa ideal.
AMI: 8359
Ref. Externa: 365/T/02893
Id: 792126
Inicie sessão para guardar este imóvel e aceder à sua lista de favoritos em qualquer dispositivo.
Área de terreno : 24300 m²
Terreno com PIP aprovado para 23 moradias geminadas em Ordem, LousadaTerreno com 24.300 m2, com uma área total de construção aprovada de 12.267 m2.Muito bem localizado e com ótima exposição solar a Sul. Localiza-se a:- 3 minutos da entrada da A42;- 5 minutos do centro da Vila de Lousada.Venha conhecer!Referência: ASL24039Por sermos intermediários de crédito devidamente autorizados pelo Banco de Portugal (Reg. 2736) fazemos a gestão de todo o seu processo de financiamento, sempre com as melhores soluções de mercado.Porquê escolher a AS ImobiliáriaCom mais de 14 anos no ramo imobiliário e milhares de famílias felizes, dispomos de 8 agências estrategicamente localizadas, para o servir com proximidade, corresponder à suas expectativas e ajudá-lo a adquirir a sua casa de sonho. Compromisso, Competência e Confiança são os nossos valores que entregamos aos nossos Clientes na hora de comprar, arrendar ou vender o seu imóvel.A nossa prioridade é a sua Felicidade!Especialistas imobiliários em Vizela ; Guimarães ; Taipas ; Felgueiras ; Lousada ; Santo Tirso ; Barcelos ; S. João da Madeira ; Porto ; Lisboa ; Braga ;
AMI: 13249
Ref. Externa: ASL24039
Id: 755266
Inicie sessão para guardar este imóvel e aceder à sua lista de favoritos em qualquer dispositivo.
Área de terreno : 5036 m²
Terreno para construção com 5.036 m2, destinado a construção de moradias ou apartamentos. Existe a possibilidade de edificar 10 moradias ou 30 apartamentos T3, ou mais de 30 de acordo com a sua tipologia. Duas frentes de estrada e excelente exposição solar. Situado no epicentro de Lousada, Penafiel e Paredes, é o local ideal para morar em total tranquilidade e em simultâneo estar perto de tudo o que precisa no seu dia-a-dia. A vila de Lousada, tem a particularidade de ser um dos conselhos mais jovens do país. Sendo também um município fortemente industrializado, de modo particular na Indústria Têxtil e Confecção. Bons acessos, a 5 minutos da entrada da A4, A42, e A11. Não perca esta oportunidade única de investimento imobiliário! #ref: 116250
AMI: 11220
Ref. Externa: 116250
Id: 667593
Inicie sessão para guardar este imóvel e aceder à sua lista de favoritos em qualquer dispositivo.
Sob consulta
Área de terreno : 1344 m²
Terreno. 1.344m² de área. ComprarCasa é uma Rede Imobiliária integrada exclusivamente por associados da APEMIP (Associação dos Profissionais e Empresas de Mediação Imobiliária de Portugal), garantia de profissionalismo e de protecção dos direitos dos consumidores e utilizadores. A ComprarCasa Rede Imobiliária da APEMIP, resulta de um acordo de colaboração, celebrado em Junho de 2004, entre a APEMIP e a UCI (União de Créditos Imobiliários - instituição financeira especialista na concessão de crédito à habitação a particulares, através dos profissionais do sector imobiliário). A ComprarCasa iniciou a sua actividade comercial em Agosto de 2004, com a missão de Ser a Maior e Melhor Rede Imobiliária Nacional, oferecendo múltiplos serviços a mediadores imobiliários, baseados no conceito de marca comum, possibilitando e potenciando negócios nomeadamente para si, que pretende vender, comprar, arrendar ou trespassar um determinado imóvel. Com lojas em Lousada e Paredes, a IMOCERTA, faz parte da Rede ComprarCasa desde de Outubro de 2016. Na Mediação Imobiliária desde 2008, a IMOCERTA já ajudou imensas famílias a concretizar os seus sonhos, tanto na venda como na compra dos seus imóveis, para além de as apoiar na obtenção de crédito habitação, junto de instituições financeiras. Com a entrada em vigor do Decreto- Lei nº 81-C /2017 de 7 de Julho, que aprova o regime jurídico que estabelece os requisitos de acesso e de exercício da actividade de intermediário de crédito e de prestação de serviços de consultoria, e do Aviso do Banco de Portugal nº 6/2017, a ComprarCasa IMOCERTA (LA & EC, Soc. Med. Imobiliária, Lda), para além de ser uma Empresa de Mediação Imobiliária (Licença AMI 8359), passou também a ser um Intermediário de Crédito autorizado pelo Banco de Portugal com o número de registo 2124, ajudando os seus clientes junto das várias entidades bancárias. Na compra ou venda, procure a ComprarCasa IMOCERTA. ComprarCasa. A melhor forma de encontrar a casa ideal.
AMI: 8359
Ref. Externa: 365/T/00056
Id: 636922
Inicie sessão para guardar este imóvel e aceder à sua lista de favoritos em qualquer dispositivo.
Área de terreno : 8720 m²
Terreno para construção com 8.720 m2 em Lousada.Tem 8.720 m2;Permite a construção em altura;Localiza-se:- Próximo do centro de Lousada e de todos os serviços;- Próximo da entrada da autoestrada.Temos a solução de arquitetura, 3D e de chave na mão.Referência: ASF190104Por sermos intermediários de crédito devidamente autorizados pelo Banco de Portugal (Reg. 2736), fazemos a gestão de todo o seu processo de financiamento, sempre com as melhores soluções de mercado.Porquê escolher a AS Imobiliária?Com mais de 10 anos no ramo imobiliário e milhares de famílias felizes, dispomos de 5 agências estrategicamente localizadas, para o servir com proximidade, corresponder às suas expectativas e ajudá-lo a adquirir a sua casa de sonho. Compromisso, Competência e Confiança são os nossos valores que entregamos aos nossos Clientes na hora de comprar, arrendar ou vender o seu imóvel.A nossa prioridade é a sua Felicidade!Na AS Imobiliária somos apaixonados por vender casas!
AMI: 13249
Ref. Externa: ASF190104
Id: 427914
Inicie sessão para guardar este imóvel e aceder à sua lista de favoritos em qualquer dispositivo.
1.450.000 €
Área de terreno : 0 m²
Terreno para construção residencial em Lousada, com lotes para construção de prédios e moradias.Área total de construção: 10.717 m2Número total de habitações: 72Número total de comércios: 8A 100 DOMUS A IMOBILIÁRIA DO PORTOA 100 Domus é apaixonada pela alma Portuense! Partilha a sua garra, genuinidade e proximidade com os demais, características da essência Nortenha, por isso a nossa essência também. Nós somos Porto, a imobiliária do Porto e talvez por isso carregarmos com tanto orgulho a bandeira da reabilitação e revitalização da nossa região.CULTURA 100 DOMUSMissãoTemos como missão criar valor através da reabilitação e da revitalização imobiliária, através da mediação e promoção de novos projetos. Satisfazer as necessidades dos nossos clientes é fazer com que tenham o desejo, a oportunidade e o prazer de viver na cidade do Porto.VisãoSermos a principal referência no mercado da reabilitação e mediação imobiliária do Porto.Reconhecida, sólida e de qualidade, a nossa marca deve destacar-se pela sua autenticidade e proximidade com as pessoas.Valores(Valores estruturais que corporizam a cultura e essência 100Domus)? ProximidadeSomos uma empresa de pessoas para pessoas. Acompanhamos cada cliente de forma próxima, dedicada e personalizada, para encontrar a solução ideal para a sua necessidade. Conduzimos do início ao fim cada processo de compra, venda ou reabilitação para que o cliente jamais esse encontre perdido.? ConfiançaTemos o compromisso de fazer o melhor atendimento na área de mediação e encontrar sempre a melhor solução, com transparência e rigor através de profissionais formados e preparados para orientar o nosso cliente em cada uma das etapas dos processos.? ExcelênciaLevamos a cabo o nosso trabalho no sentido da excelência. Somos uma equipa com profissionais altamente experientes e qualificados que proporcionam um serviço superior, com foco em relações e parcerias de sucesso mútuo.? PaixãoMove-nos a paixão pela alma portuense, pela nossa cidade e pelas pessoas do Porto. Somos uma equipa profissional, dinâmica, motivada, somos acima de tudo especializados e inspirados por aquela que consideramos ser a melhor cidade para viver.Porquê trabalhar com a 100DOMUSNas nossas agências encontrará:? Profissionais com conhecimento real do mercado imobiliário da nossa cidade;? Profissionais que irão sempre salvaguardar os seus interesses;? Sistemas e ferramentas que agilizam e potenciam a compra ou venda do seu imóvel.? O apoio de uma empresa com resultados comprovados no mercado imobiliário do Porto.? Um departamento jurídico que presta todo o apoio necessário a qualquer transação. Avalia toda a documentação, formaliza os contratos e agenda a escritura proporcionando em todas as etapas o devido acompanhamento.?Cada imóvel é único, deixe o seu em boas mãos!?António Manuel Cunha Soc. Unipessoal, Lda.Rua de Cedofeita, 342 - PortoAMI 13288
AMI: 9824
Ref. Externa: DO2915
Id: 425536
Inicie sessão para guardar este imóvel e aceder à sua lista de favoritos em qualquer dispositivo.
Estes agentes são especialistas nesta zona:
Inicie sessão para ocultar este imóvel das suas pesquisas e manter a sua lista de resultados organizada.
Guardar favoritos
Este imóvel foi guardados nos seus favoritos com sucesso.
Para poder guardar pesquisa deverá ter a sua sessão iniciada.
Caso não tenha uma conta, deverá criar uma.
A sua pesquisa foi guardada com sucesso!
© Copyright 2023 | CASACERTA. All rights reserved
Este site utiliza cookies. Ao navegar no site estará a consentir a sua utilização.
Para mais informações sobre os cookies pode consultar a
política de privacidade.