Lista
Comprar
Arrendar
Área de terreno : 1000 m²
✨ Terreno com Projeto Aprovado para Moradia T3 com Piscina – Valadares ✨ Apresento-lhe uma oportunidade rara em Valadares: um terreno com quase 1.000 m², totalmente murado e com projeto aprovado para a construção de uma moradia T3 contemporânea, com linhas modernas e uma fantástica piscina privativa. O projeto prevê uma casa luminosa, funcional e perfeita para quem procura qualidade de vida: ? Moradia T3 de arquitetura moderna ? Amplos espaços exteriores, ideais para jardim e zona de lazer ? Piscina integrada no espaço exterior, perfeita para momentos em família ? Garagem e arrumos. ? Grandes vãos envidraçados e excelente exposição solar Localizado numa zona tranquila de Valadares, este terreno oferece o equilíbrio perfeito entre privacidade e proximidade a tudo o que é essencial: escolas, comércio, serviços e acessos rápidos à A44, A29 e às praias de Valadares e Francelos. Se procura começar do zero, mas com o processo simplificado, este terreno é para si — basta iniciar a construção e dar vida ao projeto dos seus sonhos. ? Contacte-me para mais informações ou para agendar a visita ao local. A MILLION GROUP surge da união de sinergias, da complementaridade e experiência dos seus fundadores. Que iniciaram a sua colaboração sob a matriz de uma marca internacional e decidem criar um novo conceito para o setor imobiliário. Sentiram os desafios com uma perspetiva mais universal e flexível na abordagem do mercado imobiliário, e a criação da marca MILLION GROUP vem responder a todas as necessidades. Era preciso dar corpo a uma filosofia e uma forma de estar no mercado, nova e diferenciadora. Os nossos valores CONFIANÇA, PROXIMIDADE, MATURIDADE, UNIVERSALIDADE. CONFIANÇA – Conquistada interna e externamente pelo rigor e a lealdade na relação que estabelecemos com os nossos Consultores, Parceiros, Clientes e Amigos. PROXIMIDADE – Uma relação sincera, com acompanhamento, apoio e disponibilidade permanente. MATURIDADE – Um património de experiência e conhecimento no mercado imobiliário. UNIVERSALIDADE – Baseada numa presença abrangente em todos os segmentos de mercado, a profissionalizar os nossos consultores com foco na satisfação dos nossos clientes. O que fazemos "Concretizamos sonhos" Uma verdadeira síntese emocional do que fazemos todos os dias. Conciliamos compradores e vendedores, promovemos negócios e apoiamos a sua concretização.
AMI: 22034
Ref. Externa: MG01919
Id: 1480083
Inicie sessão para guardar este imóvel e aceder à sua lista de favoritos em qualquer dispositivo.
Área de terreno : 565 m²
Terreno com Projeto Aprovado em Francelos, Vila Nova de GaiaTerreno urbano para construção em Francelos, Vila Nova de Gaia, situado numa das zonas mais procuradas da Costa Verde. A poucos minutos da praia, transportes e serviços, este lote insere-se numa área residencial tranquila e consolidada, ideal para quem procura um investimento sólido no mercado imobiliário.Projeto Aprovado O projeto arquitetónico aprovado prevê a construção de um edifício moderno com quatro apartamentos, dois T2 e dois T4, todos com varandas e terraços que garantem conforto, funcionalidade e luminosidade natural.Características do Terreno Com uma área total de 565,58 m² e projeto já aprovado, o terreno oferece a oportunidade de iniciar de imediato a fase de construção, assegurando rapidez e valorização do investimento imobiliário em Vila Nova de Gaia.Localização e envolvente Inserido numa zona residencial tranquila, o terreno beneficia de fácil acesso a supermercados, serviços e autoestradas principais. A apenas 800 metros, ou cinco minutos a pé, encontra-se a Praia de Francelos, reforçando o potencial de valorização do imóvel.Destaques Projeto de arquitetura aprovado para 4 apartamentos: 2 T2 e 2 T4 Apartamentos com varandas e terraços Terreno com 565,58 m² pronto para construção Localização privilegiada, próxima da praia e de serviços Excelente oportunidade para investimento ou desenvolvimento imobiliárioObs: As imagens virtuais 3D são imagens de estudo da concepção do projeto e apenas ilustrativas.Marque já sua visita com um dos nossos consultores imobiliários.Com mais de 35 anos de atuação no mercado nacional, aplicamos as boas práticas e metodologias que privilegiam Proprietário e Comprador, proporcionando os melhoresresultados para todos os intervenientes. Trabalhamos com um posicionamento de rigor na prestação de serviços imobiliários, apoiando a nossa atividade na experiência da nossa equipa de profissionais e em soluções eficazes de publicidade e marketing. Garantimos a máxima discrição e serviço de excelência.Sem preocupações - nós tratamos de tudo.RÉPLICA, uma referência imobiliária.
AMI: 12769
Ref. Externa: RE2034
Id: 1469286
Inicie sessão para guardar este imóvel e aceder à sua lista de favoritos em qualquer dispositivo.
Área de terreno : 1037 m²
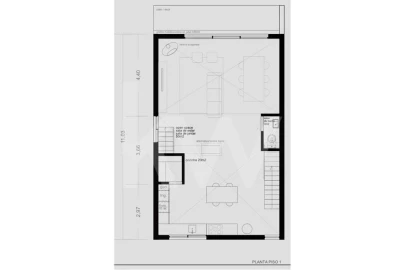
Identificação do imóvel: ZMPT582610Localizado na Rua das Marinhas, Gulpilhares, este terreno urbano destaca-se pela sua proximidade às praias e, pela vista mar visível, tanto da entrada, como do segundo piso da uma futura habitação.Características Principais: Projeto de arquitetura aprovado. Volumetria aprovada; garantindo uma construção alinhada com as normas urbanísticas. Implantação da mancha coberta; já estabelecida, permitindo uma visão clara da futura edificação. Utilização acima da cota da soleira; aproveitando ao máximo a topografia do terreno. Localização privilegiada; a poucos minutos da praia, ideal para quem valoriza tranquilidade e qualidade de vida. Potencial de valorização; excelente oportunidade para investimento ou construção própria.Com um projeto já aprovado e uma localização excecional, este terreno oferece todas as condições para criar uma habitação que aproveite ao máximo a envolvência natural e a luminosidade única da região.O arquiteto projetista tirou o máximo partido da envolvência em zona consolidada de moradias e de toda a exposição natural que lhe confere uma luz permanente única!Não perca esta oportunidade! Entre em contacto para mais informações e marque já a sua visita.Memória Descritiva e JustificativaLote da Rua das Marinhas, Gulpilhares, Valadares Vila Nova de Gaia.O terreno encontra-se afeto no âmbito do Plano DiretorMunicipal de Vila Nova de Gaia, do Regulamento Municipal de Urbanização e Edificação de Vila Nova de Gaia.EnquadramentoO terreno Urbano é limitado a Norte, Este e Oeste por terrenos Urbanos, e a Sul pela Rua dasMarinhas. Encontra-se em Área de Expansão Urbana de Tipologia Mista do tipo II.Ele possui uma área de 1038m².ProjetoNo terreno pretende-se construir uma moradia unifamiliar, com garagem integrada e anexo/churrasco nas traseiras.Previu-se a cedência da área de 85,76m² na frente do terreno à Camara Municipal, afim de dar continuidade ao passeio e lugares de estacionamento público.A implantação do edifício foi mantida no polígono de afastamentos legais, 3m nas empenas, 5m de afastamento da frente de rua e estende-se num máximo de 35m de profundidade.A malha estrutural do edifício foi prevista com uma grelha de 5m por 5m, alternando paredes retangulares com planos semicirculares, permitindo assim a criação de movimento na fachada e articular espacialmente os espaços em sequência, evitando ao máximo espaços de circulação como corredores. O edifício foi pensado em dois pisos, nos quais o piso térreo seria dedicado aos espaços comuns, e o primeiro piso à zona privada dos quartos.Estruturalmente, prevê-se o uso do betão bruto, de estereotomia da cofragem, com isolamento térmico e acústico pelo interior, pretendendo-se revestimentos interiores mais nobres, como o uso de painéis de madeira.Distribuição espacialComo mencionado anteriormente, a casa desenvolve-se em dois pisos: o térreo de carácter social, com espaços de convívio como Sala de Estar, Cozinha, e de acesso direto ao jardim com o anexo; e o primeiro piso de espaços privados, como os quartos e uma sala de convívio familiar (family room).A distribuição espacial prevê a localização da garagem na fachada principal do edifício, mantendo o restante terreno livre para jardim de aproveitamento próprio. A garagem e o espaço interior da casa são separados por um Pátio de Entrada, que permite uma maior privacidade no interior do Hall de Entrada.Os espaços de Escritorio, Sala de Jantar e Sala de Estar, estão distribuídos emsequência, permitindo uma continuidade visual que se prende constantemente no jardim. O espaço da Sala de Estar encontra-se a uma cota mais baixa em relação ao restante da casa, permitindo que o seu pé-direito seja maior.A casa abre assim o seu plano visual para jardim traseiro, invertendo a tipologia tradicional de terrenos semelhantes, onde o anexo serve de garagem e a casa projeta-se para a frente de rua.Ainda no piso térreo, o espaço destinado a escritório pode ser usado como quarto, sendo apoiado por uma casa de banho completa (IS Social), atendendo às necessidades do Plano de Acessibilidades. A distribuição dos espaços permite ainda, em caso de necessidade, da colocação de um elevador no Jardim Interior, permitindo o acesso ao piso superior pela Sala Familiar.No piso superior distribuem-se 4 suítes, um espaço de arrumos / Almoxarifado e uma Sala Familiar.O anexo, afastado do edifício principal, tem uma área de 45m², onde se distribui uma zona de arrumos para o jardim, uma casa de banho social e um espaço para barbecue. Este espaço permite dar apoio ao jardim com piscina, tornando-o o limite da construção no terreno.A distribuição dos vãos em todos os compartimentos, potencializando a captação de melhor entrada de luz possível e de ventilação, e garantido graças a irregularidade da fachada, procurando a luz nascente/poente, e a sul. Prevê-se o uso de janelas com caixilharias de vidro duplo, com caixa de ar.Prevê-se o uso de painéis solares na cobertura, assim como equipamentos de AQS que serão especificados numa fase posterior do projeto.Proximidade:Acessos rodoviários ( A29, A44, A1) principais;Estações de comboio ( Miramar, Francelos);Escolas (publicas e privadas);Supermercados, locais e hipermercados;Padaria e cafetaria; Comercio e serviços;Ginásios; Praias ( Francelos, Francemar, Sãozinha, Senhor da Pedro, Miramar; Golf;Referência de morada: Rua das MoutadasTodo e qualquer esclarecimento referente ao projeto é possível mediante interesse comprovado e marcação prévia.A aprovação do projeto de arquitetura permite o conhecimento e garantia da volumetria e implantação do edifício (a personalização deste projeto ou um projeto novo, é sempre possível).A partilha com outras imobiliárias e feita nos moldes habituais de partilha de 50%3 razões para comprar com a Zome+ acompanhamentoCom uma preparação e experiência única no mercado imobiliário, os consultores Zome põem toda a sua dedicação em dar-lhe o melhor acompanhamento, orientando-o com a máxima confiança, na direção certa das suas necessidades e ambições.Daqui para a frente, vamos criar uma relação próxima e escutar com atenção as suas expectativas, porque a nossa prioridade é a sua felicidade! Porque é importante que sinta que está acompanhado, e que estamos consigo sempre.+ simplesOs consultores Zome têm uma formação única no mercado, ancorada na partilha de experiência prática entre profissionais e fortalecida pelo conhecimento de neurociência aplicada que lhes permite simplificar e tornar mais eficaz a sua experiência imobiliária.Deixe para trás os pesadelos burocráticos porque na Zome encontra o apoio total de uma equipa experiente e multidisciplinar que lhe dá suporte prático em todos os aspetos fundamentais, para que a sua experiência imobiliária supere as expectativas.+ felizO nosso maior valor é entregar-lhe felicidade!Liberte-se de preocupações e ganhe o tempo de qualidade que necessita para se dedicar ao que lhe faz mais feliz.Agimos diariamente para trazer mais valor à sua vida com o aconselhamento fiável de que precisa para, juntos, conseguirmos atingir os melhores resultados.Com a Zome nunca vai estar perdido ou desacompanhado e encontrará algo que não tem preço: a sua máxima tranquilidade!É assim que se vai sentir ao longo de toda a experiência: Tranquilo, seguro, confortável e... FELIZ!Notas:1. Caso seja um consultor imobiliário, este imóvel está disponível para partilha de negócio. Não hesite em apresentar aos seus clientes compradores e fale connosco para agendar a sua visita.2. Para maior facilidade na identificação deste imóvel, por favor, refira o respetivo ID ZMPT ou o respetivo agente que lhe tenha enviado a sugestão.
AMI: 17432
Ref. Externa: ZMPT582610
Id: 1461778
Inicie sessão para guardar este imóvel e aceder à sua lista de favoritos em qualquer dispositivo.
Área de terreno : 565 m²
Procura terreno com projeto aprovado a escassos metros da praia? Não procure mais, o seu terreno está aqui! Neste lote com 565m2 com projeto aprovado terá a sua moradia de sonho, com apenas 2 pisos e com espaço exterior ajardinado com piscina que lhe permite usufruir da natureza sem sair do conforto da sua casa. Na sua envolvência pode usufruir da praia do Sr. da Pedra que fica a 10 minutos a pé ou até mesmo aproveitar a orla marítima para fazer as suas caminhadas, andar de bicicleta, etc... Conta ainda com restaurantes, serviços, transportes públicos, estação de comboio de Miramar e com bom acesso aos principais eixos rodoviários (A1 - A29 - A44 ). Não perca esta oportunidade e agende já a sua visita! Para além deste imóvel, dispomos de mais imóveis que de certeza encaixam naquilo que pretende. Tratamos de todo o processo de crédito habitação e acompanhamento até ao ato da escritura de forma gratuita. Mais informações sobre este ou outro imóvel e marcações de visita, contacte-nos: CHAVE NOVA – MADALENA Rua António Francisco de Sousa, Nº584 – R/Chão Esq. 4405-996, Madalena – Vila Nova de Gaia. 222 444 629 / 939 672 002
AMI: 7142
Ref. Externa: MAD/02120
Id: 1456981
Inicie sessão para guardar este imóvel e aceder à sua lista de favoritos em qualquer dispositivo.
Área de terreno : 9900 m²
Terreno em Gulpilhares com PIP aprovado Referencia Interna - vng_P251009 Excelente oportunidade de investimento em Gulpilhares! Este terreno com 9.900 m² possui PIP (Pedido de Informação Prévia) aprovado para a construção de 15 moradias, oferecendo um potencial de desenvolvimento residencial na zona. Localizado em uma área com boas acessibilidades e próximo de serviços, este espaço é ideal para quem busca desenvolver um projeto habitacional ou investir em uma área em crescimento. Características principais: Área total: 9.900 m² PIP aprovado para 15 moradias Localização privilegiada em Gulpilhares Potencial para desenvolvimento residencial Excelente oportunidade de investimento Se desejar mais informações ou agendar uma visita, entre em contacto! Tratamos do financiamento sem qualquer custo! Certificado energético: Isento Área: 9900 m2 Valor: 550.000€ Ref: vng_P251009 Marque já a sua visita!! Teremos todo o gosto em ajudar a escolher seu imóvel.
AMI: 14839
Ref. Externa: vng_P251009
Id: 1442695
Inicie sessão para guardar este imóvel e aceder à sua lista de favoritos em qualquer dispositivo.
Área de terreno : 450 m²
Terreno com 450 m2, situado em zona privilegiada de Francelos a 1,5km da Praia. Situado num loteamento constituído por moradias de alto padrão, este terreno situa-se perto do novo continente de Francelos, próximo dos principais acessos de autoestradas, perto da estação de comboios, próximo de diverso comércio e de pontos de transportes. Com projeto aprovado para uma moradia de 4 frentes de dois pisos, 250m2 de área útil, espaço para piscina e possibilidade de garagem até 40 m2. Para mais informações, p.f. contacte. A CASA DA PORTELA Imobiliária – É uma empresa de mediação imobiliária criada em 2013. Possui um sólido conhecimento acumulado desde 1994 sobre o mercado imobiliário, mantendo-se atenta às suas tendências e evolução. A empresa começou por centrar-se na região do Grande Porto, conseguindo, desde o início, um grande volume de transações. O sucesso do modelo de negócio fez com que a marca Casa da Portela imobiliária chegasse em 2022 a Vila Nova de Famalicão. A Casa da Portela imobiliária pretende valorizar o trabalho dos consultores e prestar um serviço de excelência aos seus clientes, proporcionando um serviço de qualidade e tranquilidade, de forma a realizar bons negócios, garantindo a satisfação dos nossos clientes e parceiros. Para atingir esse propósito, dispomos de uma equipa multidisciplinar de profissionais qualificados, com vasta experiência em mediação imobiliária que nos permite apresentar e sugerir as melhores alternativas para os seus objetivos de venda, de arrendamento, ou de investimento imobiliário. Possuímos uma rede de contatos privilegiada que nos permite potenciar a divulgação, a gestão e a concretização de negócio do seu imóvel em vários formatos. 3 Pilares fundamentais da Casa da Portela: Missão A nossa missão é orientar os nossos objetivos excecionais (financeiros, humanos e sociais) na nossa organização e uni-los aos nossos não menos excecionais clientes, atendendo sempre às suas necessidades, desejos e expetativas. A Casa da Portela imobiliária nasceu para que fosse possível prestar um acompanhamento e apoio contínuos, explicação e esclarecimento de dúvidas, sobre todo o processo de compra, venda ou arrendamento de imóveis em Portugal. A concretização de tudo isto faz com que a nossa máxima ambição seja sermos os melhores no mercado imobiliário. Visão A nossa visão é sermos a empresa de referência no mercado imobiliário, assim como sermos reconhecidos como a melhor opção para os nossos clientes. Para isso, fazemos sempre por manter um espírito inovador e de liderança que nos levará ao reconhecimento pela nossa excelência no mercado. Valores Os nossos valores são sempre o conjunto das nossas atitudes e crenças, que envolvem todas as pessoas da organização, para que, em uníssono, consigamos atingir os resultados de excelência a que nos propomos sempre que são baseados na Qualidade, Profissionalismo, Responsabilidade, Respeito e Inovação.
AMI: 10340
Ref. Externa: 1113841
Id: 1440965
Inicie sessão para guardar este imóvel e aceder à sua lista de favoritos em qualquer dispositivo.
Área de terreno : 927 m²
Excelente Terreno com Projeto Aprovado - Valadares Oportunidade imperdível para construir a sua moradia de sonho! Terreno com 927 m², já com projeto aprovado para uma moradia de 4 frentes com piscina, numa das zonas mais procuradas de Valadares. Características principais: Área total do terreno: 927 m² Área de implantação: 213 m² Projeto aprovado para moradia unifamiliar de 4 frentes Piscina incluída no projeto Excelente exposição solar Zona residencial tranquila Localização privilegiada: A 10 minutos das praias de Valadares e Madalena A 5 minutos da A29 A 10 minutos do centro de Vila Nova de Gaia Próximo de comércio, serviços e transportes Este é o local ideal para quem procura qualidade de vida, privacidade e proximidade ao mar e à cidade. Imagens 3D Não perca esta oportunidade única. Agende já a sua visita! GC IMOBILIÁRIA - Licença AMI: 10841 Com sede em Vila Nova de Gaia e com mais de 15 anos no setor imobiliário, atuamos, preferencialmente, no Grande Porto. Com um padrão de seriedade na prestação de serviços imobiliários, procuramos realizar bons negócios, com eficiência mas com total transparência em todas as fases do processo. Com uma equipa de profissionais com um vasto conhecimento da atividade imobiliária para que possamos sugerir sempre as melhores alternativas. Somos Intermediários de Crédito aprovado pelo Banco de Portugal (nº1884), o que permite aos nossos Clientes, de uma forma gratuita, terem acesso aos principias Bancos do mercado e com especiais condições de financiamento.
AMI: 10841
Ref. Externa: GC1463
Id: 1439513
Inicie sessão para guardar este imóvel e aceder à sua lista de favoritos em qualquer dispositivo.
2.400.000 €
Área de terreno : 11533 m²
Terreno para Construção em Francelos – Projeto Aprovado para 16 Moradias de 4 frentes!Oportunidade única de investimento num dos locais mais procurados de Vila Nova de Gaia!Este terreno com mais de 11.500 m², localizado em Francelos, junto à Avenida principal, conta com projeto aprovado para a construção de 16 moradias de 4 frentes e terreno privado com piscina, constituído por cave, rés do chão e primeiro piso. Com todas as infraestruturas no local, oferece uma frente generosa e excelente exposição solar, ideal para um condomínio residencial moderno e exclusivo. Situado numa zona em crescimento e a poucos metros das praias e principais acessos à cidade.Não perca esta excelente oportunidade de investimento. Para mais informações ou agendar visita, entre em contacto.FRACÇÃO EXACTACom uma história de sucesso, a Fracção Exacta foi fundada em 2008 e hoje é uma das principais redes imobiliárias em Portugal. Com mais de 20 lojas espalhadas pelo Distrito do Porto, Aveiro, Braga, Lisboa, Algarve e Ilha da Madeira, e uma equipa de mais de 200 colaboradores, estamos presentes em todo o país para atender às necessidades dos nossos clientes.A nossa filosofia de trabalho é baseada no profissionalismo e no compromisso com a excelência. Cada membro da nossa equipa é dedicado, competente e está sempre focado em encontrar as melhores soluções para os nossos clientes. Acreditamos que só através do rigor e da competência é possível oferecer um serviço de qualidade e superar as expectativas dos nossos clientes.A nossa visão é ser a maior rede imobiliária em Portugal, 100% portuguesa. Queremos oferecer as melhores condições tanto para os compradores como para os vendedores, criando parcerias duradouras e beneficiando todos os envolvidos no processo de compra e venda de imóveis.
AMI: 8866
Ref. Externa: 25.22/018
Id: 1439275
Inicie sessão para guardar este imóvel e aceder à sua lista de favoritos em qualquer dispositivo.
Sob consulta
Área de terreno : 9900 m²
Terreno com PIP Aprovado para 15 Moradias – Excelente Oportunidade de Investimento! Apresentamos este terreno com PIP aprovado para a construção de 15 moradias, localizado numa zona de grande potencial e com excelentes acessos. Características principais: Área total do terreno: 9.900 m² Área de construção acima do solo: 2.765,60 m² Área bruta de construção: 2.313 m² Projeto com 2 pisos acima da cota do solo Excelentes acessos rodoviários Zona envolvente com comércio e serviços Este é o investimento ideal para promotores imobiliários que procuram um projeto pronto a avançar, com enquadramento urbano consolidado e ótima valorização futura. Contacte-nos para mais informações e agende uma visita ao local!
AMI: 23515
Ref. Externa: 15250048E
Id: 1437408
Inicie sessão para guardar este imóvel e aceder à sua lista de favoritos em qualquer dispositivo.
Área de terreno : 4000 m²
Terreno com 4.000m2 para construção - 800.000 índice de construção: 0,4m2/m2 Este terreno, com frente para a Rua Sérgio Vieira de Melo e para a Rua das Moutadas, segundo o PDM de Vila Nova de Gaia insere-se em Área de Expansão Urbana de Tipologia Mista Tipo I, em que o índice de construção bruto (Icb) a observar é de 0,4 m2/m2 para uso em construção destinada a habitação, comércio e serviços. A edificabilidade máxima admitida é igual à área bruta de construção (Abc) resultante do produto da área total do terreno (Att), afeto à categoria do espaço, pelo índice de construção bruto (Icb), em que Abc = Att x Icb. Neste caso a área bruta de construção são cerca de 1600 m2 Terreno com 2.000m2 para construção - 440.000 índice de construção: PIP aprovado p/ R/C+2 (Gaiurb diz que R/C+3 poderá ser uma hipótese)Este terreno, com frente para a Rua do Prado, segundo o PDM de Vila Nova de Gaia insere-se nas Áreas Urbanizadas em Transformação de Tipologia Moradias em que uso dominante é o habitacional.As tipologias arquitetónicas admissíveis são as moradias uni ou bifamiliares isoladas, geminadas ou em banda, com ou sem cave comum. A cércea máxima é de 2 pisos, admitindo-se um terceiro piso com área bruta equivalente até 50% da área do piso imediatamente inferior.Este terreno já possui um Pedido de Informação Prévia (PIP) aprovado para construção de Res-do-chão e 2 pisos. Terreno com 5.300m2 para construção - 1.060.000 índice de construção: 0,8m2/m2 Este terreno, com frente para a Rua das Moutadas e para a Rua dos Belos Ares, segundo o PDM de Vila Nova de Gaia insere-se em Área de Expansão Urbana de Tipologia Mista Tipo II, em que o índice de construção bruto (Icb) a observar é de 0,8 m2/m2 para uso em construção destinada a habitação, comércio e serviços.A edificabilidade máxima admitida é igual à área bruta de construção (Abc) resultante do produto da área total do terreno (Att), afeto à categoria do espaço, pelo índice de construção bruto (Icb), em que Abc = Att x Icb. Neste caso a área bruta de construção são cerca de 4.240 m2. Terreno com 54.090m2 para construção - 6.000.000 Antiga EN109 - Aldeia SOSíndice de construção: 0,4m2/m2 nas faixas onde é possível construir (as faixas representam cerca de 18.000m2) Este terreno, com frente para a Rua dos Combatentes do Ultramar Português (EN 109) e para a Rua do Prado, segundo o PDM de Vila Nova de Gaia possuiu cerca de 18.000m2 classificados como Área de Expansão Urbana de Tipologia Mista Tipo I, em que o índice de construção bruto (Icb) a observar é de 0,4 m2/m2 para uso em construção destinada a habitação, comércio e serviços. Estes 18.000m2 são constituídos por duas faixas adjacentes aos arruamentos: em toda extensão da Rua do Prado, uma faixa com cerca de 30m de profundidade e em toda a extensão da Rua dos Combatentes do Ultramar Português (EN 109), uma faixa com cerca de 70m de profundidade.A edificabilidade máxima admitida nestas duas faixas é igual à área bruta de construção (Abc) resultante do produto da área total do terreno (Att), afeto à categoria do espaço, pelo índice de construção bruto (Icb), em que Abc = Att x Icb. Neste caso a área bruta de construção são cerca de 7.200m2. A restante área interior às duas faixas está inserida em área de Estrutura Ecológica Fundamental, permitindo o contacto das futuras construções com uma vasta área verde existente. O PDM do concelho admite poderem ser instalados parques de campismo e caravanismo, áreas de recreio e lazer, campos de férias, empreendimentos turísticos e equipamentos com interesse público, incrementando a potencialidades deste terreno. Características: Características Exteriores - Jardim; Andar Alto; Andar baixo; Características Gerais - Primeiro Proprietário; Orientação - Nascente; Norte; Sul; Poente; Vistas - Vista cidade; Vista jardim; Vista campo;
AMI: 23524
Ref. Externa: 1214-764
Id: 1431736
Inicie sessão para guardar este imóvel e aceder à sua lista de favoritos em qualquer dispositivo.
Área de terreno : 708 m²
? Excelente Oportunidade de Investimento, Zona ARU. Numa zona privilegiada e tranquila de Valadares, em Gulpilhares, apenas a 5 minutos do centro e a 1,5 km das Praias de Valadares e da Madalena. Uma oportunidade única para quem procura construir em altura ou reabilitar em zona residencial em crescimento, com excelente acessibilidade e proximidade ao mar. Zona envolvente privilegiada, em lugar calmo, a 5 minutos de centro de Valadares onde dispõe de uma excelente zona de comércio e de serviços onde se encontram bancos, farmácias, supermercados, mercearias, perto de escola de Valadares, fácil acesso a transportes, localizado a 1,5 km entre a Praia de Valadares e da Madalena. Área total do terreno. 708,80 (320 m2+388,80 m2) Ideal para Investimento! Possibilidade de construção em altura , vários T2 ou T3 ou moradias , unifamiliar ou bifamiliar. Agende já a sua visita. Contacte-me!
AMI: 23524
Ref. Externa: 1214-3097
Id: 1430160
Inicie sessão para guardar este imóvel e aceder à sua lista de favoritos em qualquer dispositivo.
Área de terreno : 373 m²
Localizado na Rua Alberto Teixeira Costa, em Valadares, este terreno com 373m2 oferece uma excelente oportunidade para construir a casa dos seus sonhos, já com projeto pronto em 2D e em breve em 3D. Imagine-se construir uma moradia moderna e personalizada de acordo com as suas necessidades e desejos, e desfrutar de um ambiente tranquilo e familiar, numa zona residencial próxima de tudo o que precisa. Proximidade: - 2 km da praia - 90m da Igreja Valadares - 750m Pingo doce - 800m Bombeiro - 500m da A44 Não perca esta Oportunidade única! PORQUÊ COMPRAR COM A KELLER WILLIAMS? Nós gostamos de ajudar nossos clientes a encontrar o seu imóvel de sonho! É por isso que o estilo de vida precisa de cada cliente, dedique-se a entender e desejar.Somos especialistas em vender/comprar pessoas que podem ser capazes de vender/comprar e podem ajudar. A Keller Williams baseia sua atividade em princípios humanos e sociais que nos distinguem no setor imobiliário: - Win-Win - ou não há acordo; - Integridade - fazer o que está certo, sempre; - Clientes - estão sempre no primeiro lugar; - Compromisso - em tudo; - Comunicação - procurar primeiro; - Criatividade - ideias antes dos resultados; - Trabalho em equipe - em conjunto alcançamos mais; - Ter confiança - começar com honestidade; - Sucesso - resultados como pessoas; QUANDO ESCOLHE A KELLER WILLIAMS, OBTÉM: - Um agente imobiliário profissional e conhecedor do mercado; - Um compromisso de negociação sem seu interesse; - Os sistemas e recursos específicos para agilizar a compra/venda do seu imóvel; - O apoio de uma empresa de confiança. NA KELLER WILLIAMS, conta com mais de 2.000 profissionais de especialistas. Agradecemos aos clientes a confiança demonstrada no nosso trabalho, o que nos permite ser hoje uma referência Nacional. Ao seu dispor, dedique todo o dia de trabalho para prestar um serviço de excelência; Estou à sua disposição total para ajudar um vendedor ou comprar seu imóvel de SONHO! E este é o imóvel dos seus sonhos? Venha conhecer! Entre em contato comigo!
AMI: 11829
Ref. Externa: 1202-3354
Id: 1429937
Inicie sessão para guardar este imóvel e aceder à sua lista de favoritos em qualquer dispositivo.
1.350.000 €
Área de terreno : 2490 m²
Terreno em Francelos perto do Mar com PIP aprovado para 6 moradiasTerreno com 2360 m2Local muito sossegado a 2 minutos da praia e 10 minutos do PortoBom investimento para construir perto da Praia e da CidadeO terreno tem 2 entrada: Av. das Rosas e Rua Heliantia (Francelos - V.N. de Gaia)PORQUÊ COMPRAR COM A KELLER WILLIAMS?Nós gostamos de ajudar os compradores encontrar a sua casa de sonho! É por isso que precisa de seu estilo de vida com cada cliente, dedicando o tempo necessário para entender o estilo de vida, e cada cliente. Somos especialistas em trabalhar com pessoas que estão a comprar uma casa e podemos mostrar a sua casa de que forma comprar.QUANDO ESCOLHE A KELLER WILLIAMS, OBTÉM: Um agente imobiliário Uma empresa comprometida com sua confiança e seu interesse no mercado Uma empresa com sua confiança e seu interesse profissional ferramentas úteis para agilizar a compra de sua casa O apoio de uma empresa de sistemas e confiançaCOMPROMETEMOS-NOS A AJUDÁ-LO NA COMPRA DA SUA CASA ATRAVÉS DE: Visualização das casas com antecedência Manter uma reserva sobre novas no mercado Ajudar a pesquisar outras casas para e que valor Informação até encontrar a melhor venda de seus sonhos Apresentação das melhores casas financeiras para aquisição do Apoio na marcação e realização da escritura pública de compra e venda. Características: Características Exteriores - Jardim; Parqueamento; Piscina exterior; Características Interiores - Hall de entrada; Lareira; Características Gerais - Para remodelar; Orientação - Nascente; Norte; Noroeste; Nordeste; Sul; Sudeste; Sudoeste; Poente; Vistas - Vista jardim; Outras características - Box (1 lugar); Box (2 lugares); Garagem;
AMI: 23524
Ref. Externa: 1214-2502
Id: 1429453
Inicie sessão para guardar este imóvel e aceder à sua lista de favoritos em qualquer dispositivo.
1.060.000 €
Área de terreno : 5300 m²
Terreno com 5.300m2 para construção - 1.060.000 índice de construção: 0,8m2/m2 Este terreno, com frente para a Rua das Moutadas e para a Rua dos Belos Ares, segundo o PDM de Vila Nova de Gaia insere-se em Área de Expansão Urbana de Tipologia Mista Tipo II, em que o índice de construção bruto (Icb) a observar é de 0,8 m2/m2 para uso em construção destinada a habitação, comércio e serviços.A edificabilidade máxima admitida é igual à área bruta de construção (Abc) resultante do produto da área total do terreno (Att), afeto à categoria do espaço, pelo índice de construção bruto (Icb), em que Abc = Att x Icb. Neste caso a área bruta de construção são cerca de 4.240 m2. Terreno com 2.000m2 para construção - 440.000 índice de construção: PIP aprovado p/ R/C+2 (Gaiurb diz que R/C+3 poderá ser uma hipótese)Este terreno, com frente para a Rua do Prado, segundo o PDM de Vila Nova de Gaia insere-se nas Áreas Urbanizadas em Transformação de Tipologia Moradias em que uso dominante é o habitacional.As tipologias arquitetónicas admissíveis são as moradias uni ou bifamiliares isoladas, geminadas ou em banda, com ou sem cave comum. A cércea máxima é de 2 pisos, admitindo-se um terceiro piso com área bruta equivalente até 50% da área do piso imediatamente inferior.Este terreno já possui um Pedido de Informação Prévia (PIP) aprovado para construção de Res-do-chão e 2 pisos. Terreno com 4.000m2 para construção - 800.000 índice de construção: 0,4m2/m2 Este terreno, com frente para a Rua Sérgio Vieira de Melo e para a Rua das Moutadas, segundo o PDM de Vila Nova de Gaia insere-se em Área de Expansão Urbana de Tipologia Mista Tipo I, em que o índice de construção bruto (Icb) a observar é de 0,4 m2/m2 para uso em construção destinada a habitação, comércio e serviços. A edificabilidade máxima admitida é igual à área bruta de construção (Abc) resultante do produto da área total do terreno (Att), afeto à categoria do espaço, pelo índice de construção bruto (Icb), em que Abc = Att x Icb. Neste caso a área bruta de construção são cerca de 1600 m2 Terreno com 54.090m2 para construção - 6.000.000 Antiga EN109 - Aldeia SOSíndice de construção: 0,4m2/m2 nas faixas onde é possível construir (as faixas representam cerca de 18.000m2) Este terreno, com frente para a Rua dos Combatentes do Ultramar Português (EN 109) e para a Rua do Prado, segundo o PDM de Vila Nova de Gaia possuiu cerca de 18.000m2 classificados como Área de Expansão Urbana de Tipologia Mista Tipo I, em que o índice de construção bruto (Icb) a observar é de 0,4 m2/m2 para uso em construção destinada a habitação, comércio e serviços. Estes 18.000m2 são constituídos por duas faixas adjacentes aos arruamentos: em toda extensão da Rua do Prado, uma faixa com cerca de 30m de profundidade e em toda a extensão da Rua dos Combatentes do Ultramar Português (EN 109), uma faixa com cerca de 70m de profundidade.A edificabilidade máxima admitida nestas duas faixas é igual à área bruta de construção (Abc) resultante do produto da área total do terreno (Att), afeto à categoria do espaço, pelo índice de construção bruto (Icb), em que Abc = Att x Icb. Neste caso a área bruta de construção são cerca de 7.200m2. A restante área interior às duas faixas está inserida em área de Estrutura Ecológica Fundamental, permitindo o contacto das futuras construções com uma vasta área verde existente. O PDM do concelho admite poderem ser instalados parques de campismo e caravanismo, áreas de recreio e lazer, campos de férias, empreendimentos turísticos e equipamentos com interesse público, incrementando a potencialidades deste terreno. Características: Características Exteriores - Jardim; Andar Alto; Andar baixo; Características Gerais - Primeiro Proprietário; Orientação - Nascente; Norte; Sul; Poente; Vistas - Vista cidade; Vista jardim; Vista campo;
AMI: 23524
Ref. Externa: 1214-765
Id: 1429051
Inicie sessão para guardar este imóvel e aceder à sua lista de favoritos em qualquer dispositivo.
Área de terreno : 2000 m²
Terreno com 2.000m2 para construção - 440.000 índice de construção: PIP aprovado p/ R/C+2 (Gaiurb diz que R/C+3 poderá ser uma hipótese) Este terreno, com frente para a Rua do Prado, segundo o PDM de Vila Nova de Gaia insere-se nas Áreas Urbanizadas em Transformação de Tipologia Moradias em que uso dominante é o habitacional.As tipologias arquitetónicas admissíveis são as moradias uni ou bifamiliares isoladas, geminadas ou em banda, com ou sem cave comum. A cércea máxima é de 2 pisos, admitindo-se um terceiro piso com área bruta equivalente até 50% da área do piso imediatamente inferior.Este terreno já possui um Pedido de Informação Prévia (PIP) aprovado para construção de Res-do-chão e 2 pisos. Terreno com 4.000m2 para construção - 800.000 índice de construção: 0,4m2/m2 Este terreno, com frente para a Rua Sérgio Vieira de Melo e para a Rua das Moutadas, segundo o PDM de Vila Nova de Gaia insere-se em Área de Expansão Urbana de Tipologia Mista Tipo I, em que o índice de construção bruto (Icb) a observar é de 0,4 m2/m2 para uso em construção destinada a habitação, comércio e serviços. A edificabilidade máxima admitida é igual à área bruta de construção (Abc) resultante do produto da área total do terreno (Att), afeto à categoria do espaço, pelo índice de construção bruto (Icb), em que Abc = Att x Icb. Neste caso a área bruta de construção são cerca de 1600 m2 Terreno com 5.300m2 para construção - 1.060.000 índice de construção: 0,8m2/m2 Este terreno, com frente para a Rua das Moutadas e para a Rua dos Belos Ares, segundo o PDM de Vila Nova de Gaia insere-se em Área de Expansão Urbana de Tipologia Mista Tipo II, em que o índice de construção bruto (Icb) a observar é de 0,8 m2/m2 para uso em construção destinada a habitação, comércio e serviços.A edificabilidade máxima admitida é igual à área bruta de construção (Abc) resultante do produto da área total do terreno (Att), afeto à categoria do espaço, pelo índice de construção bruto (Icb), em que Abc = Att x Icb. Neste caso a área bruta de construção são cerca de 4.240 m2. Terreno com 54.090m2 para construção - 6.000.000 Antiga EN109 - Aldeia SOSíndice de construção: 0,4m2/m2 nas faixas onde é possível construir (as faixas representam cerca de 18.000m2) Este terreno, com frente para a Rua dos Combatentes do Ultramar Português (EN 109) e para a Rua do Prado, segundo o PDM de Vila Nova de Gaia possuiu cerca de 18.000m2 classificados como Área de Expansão Urbana de Tipologia Mista Tipo I, em que o índice de construção bruto (Icb) a observar é de 0,4 m2/m2 para uso em construção destinada a habitação, comércio e serviços. Estes 18.000m2 são constituídos por duas faixas adjacentes aos arruamentos: em toda extensão da Rua do Prado, uma faixa com cerca de 30m de profundidade e em toda a extensão da Rua dos Combatentes do Ultramar Português (EN 109), uma faixa com cerca de 70m de profundidade.A edificabilidade máxima admitida nestas duas faixas é igual à área bruta de construção (Abc) resultante do produto da área total do terreno (Att), afeto à categoria do espaço, pelo índice de construção bruto (Icb), em que Abc = Att x Icb. Neste caso a área bruta de construção são cerca de 7.200m2. A restante área interior às duas faixas está inserida em área de Estrutura Ecológica Fundamental, permitindo o contacto das futuras construções com uma vasta área verde existente. O PDM do concelho admite poderem ser instalados parques de campismo e caravanismo, áreas de recreio e lazer, campos de férias, empreendimentos turísticos e equipamentos com interesse público, incrementando a potencialidades deste terreno. Características: Características Exteriores - Jardim; Andar Alto; Andar baixo; Características Gerais - Primeiro Proprietário; Orientação - Nascente; Norte; Sul; Poente; Vistas - Vista cidade; Vista jardim; Vista campo;
AMI: 23524
Ref. Externa: 1214-761
Id: 1426825
Inicie sessão para guardar este imóvel e aceder à sua lista de favoritos em qualquer dispositivo.
Área de terreno : 1300 m²
? Terreno para Construção em Francelos – Perto do Mar Onde pode nascer o seu próximo projeto... ou a sua casa de sonho. Terreno com aproximadamente 1.300 m², localizado em Francelos, Vila Nova de Gaia, numa zona tranquila abaixo da linha férrea, a apenas 4 minutos a pé da praia e a 10 minutos do centro do Porto. Este terreno já teve PIP aprovado para a construção de 4 moradias geminadas, em dois blocos de duas, oferecendo um excelente potencial para investimento, seja para construção própria ou para desenvolvimento imobiliário com retorno garantido. Duas frentes e acessos distintos: Pela Avenida das Rosas Pela Rua Heliântia Principais Características: Área total: cerca de 1.300 m² Localização privilegiada, com proximidade ao mar Zona muito sossegada, ideal para habitação permanente ou de férias Vistas desafogadas para o jardim e para o mar Excelente exposição solar, com orientação nascente/poente e todas as variantes intermédias Espaço exterior com potencial para jardim, piscina e parqueamento Possibilidade de incluir box para estacionamento Inserido numa zona residencial de qualidade e em crescimento PORQUÊ COMPRAR COM A KELLER WILLIAMS? Na Keller Williams, acreditamos que comprar uma casa é mais do que uma transação imobiliária — é a realização de um sonho. Por isso, ouvimos atentamente cada cliente, compreendendo o seu estilo de vida, necessidades e desejos. Acompanhamos todo o processo com profissionalismo e dedicação. Ao escolher a Keller Williams, beneficia de: Um agente imobiliário focado nos seus interesses Uma marca global com valores sólidos e orientação para o cliente Ferramentas e sistemas profissionais que facilitam todo o processo de compra Acesso antecipado a imóveis no mercado Apoio em todas as fases: pesquisa, visita, negociação e escritura Apresentação das melhores soluções financeiras disponíveis Acompanhamento jurídico e técnico até à conclusão da escritura pública Venha conhecer este terreno e descubra o lugar onde pode construir o seu futuro. Entre em contacto connosco para agendar a sua visita. ? Estamos disponíveis para si!
AMI: 23524
Ref. Externa: KWPT-014886
Id: 1426266
Inicie sessão para guardar este imóvel e aceder à sua lista de favoritos em qualquer dispositivo.
Área de terreno : 1700 m²
Na zona residencial de Francelos, Vila Nova de Gaia, a 5 min da praia, encontra este terreno com 1 700 m², sem projeto aprovado mas com informação camarária favorável para construir uma moradia com ( 600 m² ABC) ou 2 moradias com acesso comum a oportunidade ideal para personalizar o seu investimento imobiliário no litoral do Grande Porto. Pontos-chave • Localização premium: frente ao Largo das Lavouras, exposição solar Sul/Poente e total privacidade. • Transportes rápidos: ◦ Estação de Francelos (linha urbana do Porto) a 400 m ◦ Acesso às auto-estradas A29 (saída Francelos), A44 e A1, ligando em 15 min ao centro do Porto e em 25 min ao Aeroporto. • Comércio e conveniências: ◦ Continente Bom Dia Francelos, Av. de Francelos, 1022 – 2 min de carro ◦ Várias padarias, cafés e farmácia a curta distância. • Serviços de saúde: USF Caminho Novo (Gulpilhares) a 1,2 km • Educação: ◦ Escola Básica de Francelos (Pré-escolar e 1.º Ciclo) a 650 m ◦ Colégio de Gaia (Pré-escolar-12.º) a 10 min de carro Colégio de Gaia - Escola Católica • Lazer: ◦ Praia de Francelos e passadiços atlânticos para running ou ciclismo. ◦ Club de Golf Miramar a 5 min Clube Golf Miramar Benefícios de valor Viabilidade para dividir em dois lotes ou manter uma implantação única, garantindo flexibilidade de projeto e valorização futura. Escassez de terrenos urbanizáveis junto à costa do Porto aumenta a procura por ativos semelhantes. Infra-estruturas (água, luz, telecomunicações) disponíveis à porta, reduzindo custos de licenciamento. terreno para construir Francelos, lote Vila Nova de Gaia, terreno perto da praia, comprar terreno Porto, investir em moradias de luxo, terreno 2 moradias. Contacte-nos hoje mesmo para agendar visita. Transfira o seu sonho para este lote exclusivo e construa a(s) moradia(s) que imaginou — nós ajudamos em todas as etapas.
AMI: 23524
Ref. Externa: KWPT-015937
Id: 1425836
Inicie sessão para guardar este imóvel e aceder à sua lista de favoritos em qualquer dispositivo.
Área de terreno : 6016 m²
Excelente oportunidade de investimento em Gulpilhares! Este terreno com 6.016 m² possui um PEDIDO de INFORMAÇÂO PRÉVIA aprovado para a construção de dois edifícios, destinados a seis moradias T3 em banda, com cave comum e regime de propriedade horizontal. ? Principais Características do Projeto: -Área do Terreno-----------------------------------6.016,00m2 -Área de Cedência -----------------------------------129,30m2 -Área de Implantação-------------------------------811,90m2 -Área Bruta de Construção---------------------1.066,70m2 -Altura da Fachada--------------------------------------7,00m2 -Área Total de Impermeabilização-------------811,90m2 -Índice de Área de Implantação-----------------------0,135 -Índice de Área de Construção------------------------0,177 -Índice de Área de Impermeabilização-------------0,135 -Número de Lugares de Estacionamento Coberto-12 -Número de Lugares de Estacionamento Exterior---5 -Número de pisos acima da cota de soleira------------2 -Número de pisos abaixo da cota de soleira-----------2 Zona calma e residencial, com excelente exposição solar e bons acessos a todos as vias de comunicação. ? Pontos Fortes ✅ PIP aprovado ✅ Localização privilegiada em zona consolidada de moradias ✅ Ideal para promotores ou construtores ✅ Excelente potencial de valorização Agende já a sua visita! Todos os nossos Imóveis encontram-se em regime de Partilha com todas as Imobiliárias! A CASA DA PORTELA Imobiliária – É uma empresa de mediação imobiliária e Intermediação de Crédito criada em 2013. Os seus sócios fundadores possuem um sólido conhecimento acumulado desde 1994 sobre o mercado imobiliário, mantendo-se atentos às suas tendências e evolução, e com uma Intermediação de Crédito registado no Banco de Portugal com o nº 0004889. A empresa começou por centrar-se na região do Grande Porto, conseguindo, desde o início, um grande volume de transações. O sucesso do modelo de negócio fez com que a marca Casa da Portela imobiliária chegasse em 2022 a Vila Nova de Famalicão. A Casa da Portela imobiliária pretende valorizar o trabalho dos consultores e prestar um serviço de excelência aos seus clientes, proporcionando um serviço de qualidade e tranquilidade, de forma a realizar bons negócios, garantindo a satisfação dos nossos clientes e parceiros. Para atingir esse propósito, dispomos de uma equipa multidisciplinar de profissionais qualificados, com vasta experiência em mediação imobiliária que nos permite apresentar e sugerir as melhores alternativas para os seus objetivos de venda, de arrendamento, ou de investimento imobiliário. Possuímos uma rede de contatos privilegiada que nos permite potenciar a divulgação, a gestão e a concretização de negócio do seu imóvel em vários formatos. 3 Pilares fundamentais da Casa da Portela: Missão A nossa missão é orientar os nossos objetivos excecionais (financeiros, humanos e sociais) na nossa organização e uni-los aos nossos não menos excecionais clientes, atendendo sempre às suas necessidades, desejos e expectativas. A Casa da Portela imobiliária nasceu para que fosse possível prestar um acompanhamento e apoio contínuos, explicação e esclarecimento de dúvidas, sobre todo o processo de compra, venda ou arrendamento de imóveis em Portugal. A concretização de tudo isto faz com que a nossa máxima ambição seja sermos os melhores no mercado imobiliário. Visão A nossa visão é sermos a empresa de referência no mercado imobiliário, assim como sermos reconhecidos como a melhor opção para os nossos clientes. Para isso, fazemos sempre por manter um espírito inovador e de liderança que nos levará ao reconhecimento pela nossa excelência no mercado. Valores Os nossos valores são sempre o conjunto das nossas atitudes e crenças, que envolvem todas as pessoas da organização, para que, em uníssono, consigamos atingir os resultados de excelência a que nos propomos sempre que são baseados na Qualidade, Profissionalismo, Responsabilidade, Respeito e Inovação.
AMI: 10340
Ref. Externa: 1113921
Id: 1421559
Inicie sessão para guardar este imóvel e aceder à sua lista de favoritos em qualquer dispositivo.
Área de terreno : 9900 m²
Terreno Gulpilhares – 9.900 m² com PIP aprovado para 15 moradias Excelente oportunidade de investimento em Gulpilhares! Este terreno com 9.900 m² possui PIP (Pedido de Informação Prévia) aprovado para a construção de 15 moradias, oferecendo um potencial de desenvolvimento residencial na zona. Localizado em uma área com boas acessibilidades e próximo de serviços, este espaço é ideal para quem busca desenvolver um projeto habitacional ou investir em uma área em crescimento. Características principais: Área total: 9.900 m² PIP aprovado para 15 moradias Localização privilegiada em Gulpilhares Potencial para desenvolvimento residencial Excelente oportunidade de investimento Se desejar mais informações ou agendar uma visita, entre em contacto!
AMI: 9721
Ref. Externa: SS1270
Id: 1418549
Inicie sessão para guardar este imóvel e aceder à sua lista de favoritos em qualquer dispositivo.
Área de terreno : 10439 m²
Venda conjunta de 5 lotes de terreno em Gulpilhares Invista num dos locais mais promissores de Gulpilhares! Disponível para venda, este conjunto de cinco lotes oferece flexibilidade e potencial único para construção e projetos diversos. 4 lotes de 1.450 m² cada – perfeitos para moradias isoladas de quatro frentes, com excelente exposição solar e amplos espaços exteriores para jardins, piscinas ou áreas de lazer. 1 lote de 4.639 m² – em zona agrícola, ideal para cultivo, lazer ou projeto complementar, permitindo múltiplas oportunidades de aproveitamento. Localizados numa zona tranquila e de fácil acesso, próximos de serviços, comércio e principais vias, estes terrenos combinam privacidade, comodidade e alto potencial de valorização. Não deixe escapar esta oportunidade de investimento estratégico em Gulpilhares! Entre em contato e descubra como transformar estes lotes no seu próximo projeto de sucesso.
AMI: 7142
Ref. Externa: AR/04845
Id: 1414393
Inicie sessão para guardar este imóvel e aceder à sua lista de favoritos em qualquer dispositivo.
Estes agentes são especialistas nesta zona:
Inicie sessão para ocultar este imóvel das suas pesquisas e manter a sua lista de resultados organizada.
Guardar favoritos
Este imóvel foi guardados nos seus favoritos com sucesso.
Para poder guardar pesquisa deverá ter a sua sessão iniciada.
Caso não tenha uma conta, deverá criar uma.
A sua pesquisa foi guardada com sucesso!
© Copyright 2023 | CASACERTA. All rights reserved
Este site utiliza cookies. Ao navegar no site estará a consentir a sua utilização.
Para mais informações sobre os cookies pode consultar a
política de privacidade.