Lista
Comprar
Arrendar
1.090.000 €
Área de terreno : 1033 m²
O projeto Brejos da Carregueira de Baixo, situado entre a Comporta e o Carvalhal, a cerca de 30 minutos de Alcácer do Sal, é promovido sob a assinatura Pestana Residences, refletindo um conceito residencial de baixa densidade, privacidade e integração com a paisagem natural. A arquitetura inspira-se na tradição local, estando estipuladas áreas máximas de construção entre 163,20 m² e 484 m², de acordo com a dimensão de cada lote, com arquitetos previamente definidos para assegurar coerência e qualidade arquitetónica. O Lote 55 dispõe de 1.033 m² de terreno, com área bruta de construção até 413,20 m², oferecendo uma excelente combinação entre dimensão, potencial construtivo e enquadramento no condomínio. A proximidade às praias do Pego e do Carvalhal e o ambiente reservado tornam este lote ideal para a construção de uma moradia contemporânea de elevada qualidade. Localizado na histórica propriedade da família Espírito Santo, a aldeia de Brejos da Carregueira de baixo, já foi destino de férias bem conhecido a nível mundial Madonna, Angelina Jolie, Rania da Jordânia, Nicolas Sarkosy, Carla Bruni, Philippe Stark ou Christian Louboutin, entre outras figuras públicas, passaram, nesta zona, muitos dias das suas férias. É aqui que irá encontrar também um dos melhores restaurantes de cozinha típica portuguesa a Dona Bia, com peixe sempre fresco, e pratos de deliciar qualquer um. Apenas a cerca de 10 km, encontram-se as famosas praia do Pego e Carvalhal, onde poderá contemplar um magnífico pôr do sol, caminhar, passear a cavalo e praticar vários desportos náuticos. Este lote é particularmente indicado para quem procura um projeto residencial distintivo, próximo das praias e inserido num contexto de elevada exclusividade. Para mais informações ou apresentação privada, por favor contacte-nos.
AMI: 10563
Ref. Externa: LX - 2292
Id: 1585047
Inicie sessão para guardar este imóvel e aceder à sua lista de favoritos em qualquer dispositivo.
1.250.000 €
Área de terreno : 1 m²
Localizado entre a Comporta e o Carvalhal, a cerca de 30 minutos de Alcácer do Sal, o projeto Brejos da Carregueira de Baixo é um empreendimento de referência promovido sob a assinatura Pestana Residences, inserido numa das zonas mais valorizadas e protegidas da costa alentejana. O projeto define uma arquitetura inspirada na tradição local, com critérios rigorosos de integração paisagística e áreas máximas de construção que podem atingir os 484 m² nos lotes de maior dimensão. O Lote 54 destaca-se pela sua dimensão generosa, com 1.141 m² de área de terreno e área bruta de construção até 456 m², permitindo desenvolver uma moradia de maior amplitude, com forte presença arquitetónica, sem comprometer a harmonia do conjunto. Os arquitetos já se encontram definidos, garantindo um resultado final coerente e valorizador. Este lote é particularmente indicado para quem procura um projeto residencial distintivo, próximo das praias e inserido num contexto de elevada exclusividade. Para mais informações ou apresentação privada, por favor contacte-nos.
AMI: 10563
Ref. Externa: LX - 2291
Id: 1585045
Inicie sessão para guardar este imóvel e aceder à sua lista de favoritos em qualquer dispositivo.
760.000 €
Área de terreno : 801 m²
Entre a Comporta e o Carvalhal, a cerca de 30 minutos de Alcácer do Sal, situa-se o projeto Brejos da Carregueira de Baixo, desenvolvido sob a assinatura Pestana Residences, a área imobiliária do Grupo Pestana. Inserido num condomínio privado de baixa densidade, o projeto contempla lotes de construção com arquitetura inspirada na tradição local da Comporta, estando definidos parâmetros claros quanto à linguagem arquitetónica e às áreas máximas de construção, que variam entre 163,20 m² para os lotes de menor dimensão e 484 m² para os lotes de maior expressão. O Lote 1 dispõe de 801 m² de área de terreno, com área bruta de construção até 320,40 m², permitindo o desenvolvimento de uma moradia unifamiliar equilibrada, integrada na paisagem e em total coerência com o conceito do empreendimento. Os arquitetos encontram-se já definidos, garantindo consistência estética e valorização do conjunto. Localizado na histórica propriedade da família Espírito Santo, a aldeia de Brejos da Carregueira de baixo, já foi destino de férias bem conhecido a nível mundial Madonna, Angelina Jolie, Rania da Jordânia, Nicolas Sarkosy, Carla Bruni, Philippe Stark ou Christian Louboutin, entre outras figuras públicas, passaram, nesta zona, muitos dias das suas férias. É aqui que irá encontrar também um dos melhores restaurantes de cozinha típica portuguesa a Dona Bia, com peixe sempre fresco, e pratos de deliciar qualquer um. Apenas a cerca de 10 km, encontram-se as famosas praia do Pego e Carvalhal, onde poderá contemplar um magnífico pôr do sol, caminhar, passear a cavalo e praticar vários desportos náuticos. Este lote é particularmente indicado para quem procura um projeto residencial distintivo, próximo das praias e inserido num contexto de elevada exclusividade. Para mais informações ou apresentação privada, por favor contacte-nos.
AMI: 10563
Ref. Externa: LX - 2289
Id: 1585043
Inicie sessão para guardar este imóvel e aceder à sua lista de favoritos em qualquer dispositivo.
450.000 €
Área de terreno : 408 m²
Lote de Terreno na Comporta, situado no Loteamento do Possanco, com 408 m2 de área de terreno e, com projeto de arquitetura aprovado e licença a pagamento, para construção de uma Moradia Unifamiliar T2 com 242,46m2 de área bruta de construção e 148,71m2 de área de implantação. O lote distingue-se pela localização privilegiada, numa zona calma do loteamento, com maior privacidade e uma ótima exposição solar. Oportunidade para construir uma Moradia num loteamento residencial devidamente infraestruturado e consolidado, a 2 Kms do centro da Comporta e a 3Kms da Carrasqueira, muito perto das principais praias da região e dos campos de golfe. A Castelhana agora é Dils. Com mais de 25 anos de experiência no mercado imobiliário português, a Castelhana é agora Dils, uma empresa internacional com mais de 50 anos de história e presença em Itália, Países Baixos, Espanha e Portugal. Sob a marca Dils, continuamos a prestar serviços especializados de consultoria, compra, venda, arrendamento e desenvolvimento de imóveis residenciais. Estamos ao seu lado, com uma equipa dedicada nos nossos escritórios em Lisboa, Estoril, Comporta, Porto e Algarve, prontos para apoiar o seu próximo investimento. Quando o mundo muda, é hora de reescrever as regras. It's time to imagine your future space.
AMI: 3497
Ref. Externa: 33706
Id: 1538882
Inicie sessão para guardar este imóvel e aceder à sua lista de favoritos em qualquer dispositivo.
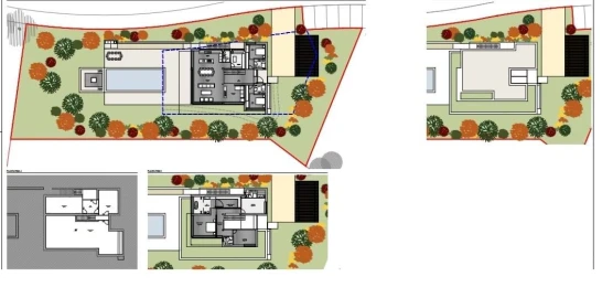
995.000 €
Área de terreno : 1141 m²
Terreno com 1141 m2 e potencial construtivo de 456,4 m2 para construção de moradia perto da praia no loteamento dos Brejos da Carregueira de Baixo, Pestana Brejos, Comporta. Conta com um projeto de arquitetura para uma Moradia T6 com 327,20m2 de área bruta de construção, que se distribui por quatro edifícios. O Edifício principal com cozinha em open space para a sala, casa de banho social e uma suite e os restantes edifícios compostos por suites. No exterior encontramos uma piscina privativa com uma área de deck em madeira e zona de lazer. O projeto foi totalmente inspirado no estilo tradicional e autêntico da Comporta, privilegiando as cores e estilo da Comporta, com o colmo na cobertura, caniço na fachada, as madeiras como ponto principal de construção e decoração, amplas janelas que potenciam o contacto com a envolvente natural e todo o paisagismo assente nas plantas locais e areia. O Vendedor está aberto à possibilidade de vender a Moradia chave na mão, ficando responsável pela obra. O loteamento do Pestana Brejos da Carregueira de Baixo é das zonas mais exclusivas da Herdade da Comporta. Composto por 59 lotes residenciais e 2 lotes para equipamentos comuns, inseridos num condomínio fechado. Situado a 5 minutos walking distance da Praia dos Brejos, a 11 minutos driving distance do Centro do Carvalhal e da Aldeia da Comporta, a 15 minutos da Praia da Comporta. A cerca de 30 minutos dos Centros Urbanos da Região (Alcácer do Sal e Grândola). Está a uma hora de Lisboa. A Castelhana agora é Dils. A Castelhana é um nome de referência no setor imobiliário português há mais de 25 anos e agora é Dils, uma empresa Italiana com mais de 50 anos de história e com escritórios em Milão, Roma e Amesterdão e agora em Lisboa, Porto, Algarve e Estoril. Em Lisboa, a nossa sede encontra-se no Chiado, um dos bairros mais emblemáticos e tradicionais da cidade. No Porto, estamos na icónica Avenida da Boavista. Na região do Algarve, temos um escritório junto à Marina de Vilamoura, e no Estoril, ao lado do famoso Casino do Estoril. Sob a marca Dils, somos especializados na consultoria para empresas, organizações e investidores institucionais, oferecendo serviços de compra, venda, arrendamento e desenvolvimento de imóveis residenciais. Estamos à sua disposição, com uma equipa dedicada para oferecer o melhor suporte no seu próximo investimento imobiliário. Quando o mundo muda, é hora de reescrever as regras. It's time to imagine your future space.
AMI: 3497
Ref. Externa: 32071
Id: 1456648
Inicie sessão para guardar este imóvel e aceder à sua lista de favoritos em qualquer dispositivo.
850.000 €
Área de terreno : 855 m²
Lote de terreno urbano com 855,10 m2, com comunicação prévia para uma Moradia T4 com 224,90m2 de área bruta de construção, distribuída por dois pisos, com terraço, jardim e piscina privativa, situado no loteamento La Reserve, Carvalhal, região da Comporta. Situado numa extremidade do loteamento, o lote distingue-se pela localização privilegiada, que lhe confere uma maior privacidade, com uma cota mais elevada e com orientação nascente/poente permitindo uma vista privilegiada para o pôr do sol. A partir do lote, o acesso às praias do Carvalhal e do Pego poderá ser efetuado por bicicleta via ciclovia já existente. O Empreendimento La Reserve, terá apenas 24 lotes urbanos individuais para desenvolvimento de villas premium com arquitetura individualizada. Será, também, composto por 82 Casas de Aldeia (Village La Réserve) com tipologias T3 a T5 e 56 apartamentos turísticos (Aparthotel) de tipologia T3. Situa-se a apenas 100 metros dos principais estabelecimentos de comércio e serviços, nomeadamente o Hotel Quinta da Comporta, restaurantes, cafés, pastelarias, farmácia, banco, papelarias, renting de automóvel e de bicicletas, minimercado, lojas de moda e de decoração de interiores. Localiza-se a 5 minutos driving distance das praias do Carvalhal e do Pego, a 10 minutos do novo campo de golfe do Comporta Dunes e a 15 minutos da Comporta. Encontra-se a apenas uma hora de Lisboa e de fácil acesso ao Aeroporto. A Castelhana agora é Dils. A Castelhana é um nome de referência no setor imobiliário português há mais de 25 anos e agora é Dils, uma empresa Italiana com mais de 50 anos de história e com escritórios em Milão, Roma e Amesterdão e agora em Lisboa, Porto, Algarve e Estoril. Em Lisboa, a nossa sede encontra-se no Chiado, um dos bairros mais emblemáticos e tradicionais da cidade. No Porto, estamos na icónica Avenida da Boavista. Na região do Algarve, temos um escritório junto à Marina de Vilamoura, e no Estoril, ao lado do famoso Casino do Estoril. Sob a marca Dils, somos especializados na consultoria para empresas, organizações e investidores institucionais, oferecendo serviços de compra, venda, arrendamento e desenvolvimento de imóveis residenciais. Estamos à sua disposição, com uma equipa dedicada para oferecer o melhor suporte no seu próximo investimento imobiliário. Quando o mundo muda, é hora de reescrever as regras. It's time to imagine your future space.
AMI: 3497
Ref. Externa: 31488
Id: 1445280
Inicie sessão para guardar este imóvel e aceder à sua lista de favoritos em qualquer dispositivo.
3.000.000 €
Área de terreno : 5924 m²
Terreno urbano com 5.924,34m2 perto da praia, para construção de moradia com até 1 400 m2 de área bruta de construção, no loteamento residencial das Casas da Colina, na Lagoa Formosa, no Carvalhal. O novo proprietário é livre de desenvolver o projeto de arquitetura a seu gosto, cumprindo os parâmetros definidos no regulamento de construção do loteamento, sendo permitida a construção de um piso acima da cota de soleira e um piso abaixo, com uma altura máxima da fachada de 3,5m. O condomínio Casas da Colina, que conta com todas as infraestruturas, é composto por 40 lotes individuais, privilegiando uma envolvente de pinhal. Situa-se a apenas a 15 minutos walking distance da Praia do Carvalhal e do centro da aldeia, onde se encontram todos os serviços e estabelecimentos de comércio da localidade, nomeadamente restaurantes, lojas, hotéis, escolas, cafés e bancos. O Carvalhal, localiza-se a 10 minutos driving distance da Comporta, a 20 minutos da Vila de Grândola e a 25 minutos de Melides. Está a uma hora de Lisboa. A Castelhana agora é Dils. A Castelhana é um nome de referência no setor imobiliário português há mais de 25 anos e agora é Dils, uma empresa Italiana com mais de 50 anos de história e com escritórios em Milão, Roma e Amesterdão e agora em Lisboa, Porto, Algarve e Estoril. Em Lisboa, a nossa sede encontra-se no Chiado, um dos bairros mais emblemáticos e tradicionais da cidade. No Porto, estamos na icónica Avenida da Boavista. Na região do Algarve, temos um escritório junto à Marina de Vilamoura, e no Estoril, ao lado do famoso Casino do Estoril. Sob a marca Dils, somos especializados na consultoria para empresas, organizações e investidores institucionais, oferecendo serviços de compra, venda, arrendamento e desenvolvimento de imóveis residenciais. Estamos à sua disposição, com uma equipa dedicada para oferecer o melhor suporte no seu próximo investimento imobiliário. Quando o mundo muda, é hora de reescrever as regras. It's time to imagine your future space.
AMI: 3497
Ref. Externa: 31484
Id: 1437377
Inicie sessão para guardar este imóvel e aceder à sua lista de favoritos em qualquer dispositivo.
500.000 €
Área de terreno : 413 m²
Este lote de terreno tem projeto de arquitetura em fase de apreciação na Câmara Municipal de Alcácer do Sal. Prevê a construção de uma moradia isolada com duas suites no rés do chão e no piso 1, uma sala com área generosa em open space para a cozinha, com acesso ao terraço. No mesmo terraço podemos disfrutar da piscina com vista campo desafogada. As imagens são meramente ilustrativas de como poderá ficar a sua próxima casa, de acordo com o projecto em vias de aprovação. Na Herdade da Comporta, respiramos harmonia, tranquilidade e qualidade de vida. A proximidade do mar e do campo proporciona momentos de relaxe únicos. O facto da zona envolvente ser composta por casas que se enquadram de forma homogénea na paisagem, permite a extensão do bem estar sentido, ao longo de percursos diários a pé ou de bicicleta. As Praias mais bonitas de Portugal estão a poucos minutos de carro e se preferir poderá subir para a Praia da Torre, da Comporta, da Malha da Costa, até Tróia, ou descer e ir à Praia do Carvalhal e à linda Praia do Pego. Difícil será escolher. Localidade com bons recursos gastronómicos e proximidade de bons acessos rodoviários. Venha sonhar hoje mesmo!! Partilhamos com todas as agências e parceiros com a licença AMI válida.
AMI: 11160
Ref. Externa: KWPT-002467
Id: 1429748
Inicie sessão para guardar este imóvel e aceder à sua lista de favoritos em qualquer dispositivo.
620.000 €
Área de terreno : 542 m²
Lote de Terreno na Comporta, situado no Loteamento dos Brejos da Carregueira de Cima, com 542m2 de área de terreno e com potencial para construir uma Moradia Unifamiliar com 216,80m2 de área bruta de construção e 162,60m2 de área de implantação. Os Brejos da Carregueira de Cima é um loteamento residencial devidamente infraestruturado e consolidado, situado a apenas 3km do Carvalhal, com um total de 128 lotes, permitindo a construção de moradias com 2 pisos acima da cota de soleira e 1 piso abaixo da cota de soleira, com uma cércea máxima de 6,5m. Situado numa zona calma do loteamento, com maior privacidade. Oportunidade para construir uma Moradia numa zona privilegiada, num loteamento residencial com regras de construção definidas, próximo do centro da Comporta e do Carvalhal, das principais praias da região e dos campos de golfe. A Castelhana agora é Dils. Com mais de 25 anos de experiência no mercado imobiliário português, a Castelhana é agora Dils, uma empresa internacional com mais de 50 anos de história e presença em Itália, Países Baixos, Espanha e Portugal. Sob a marca Dils, continuamos a prestar serviços especializados de consultoria, compra, venda, arrendamento e desenvolvimento de imóveis residenciais. Estamos ao seu lado, com uma equipa dedicada nos nossos escritórios em Lisboa, Estoril, Comporta, Porto e Algarve, prontos para apoiar o seu próximo investimento. Quando o mundo muda, é hora de reescrever as regras. It's time to imagine your future space.
AMI: 3497
Ref. Externa: 33547
Id: 1415776
Inicie sessão para guardar este imóvel e aceder à sua lista de favoritos em qualquer dispositivo.
Sob consulta
Área de terreno : 1343 m²
Terreno para Construção na Zona da Comporta Projeto Aprovado Solicite mais importante
AMI: 19467
Ref. Externa: NS.014
Id: 1386595
Inicie sessão para guardar este imóvel e aceder à sua lista de favoritos em qualquer dispositivo.
2.100.000 €
Área de terreno : 4198 m²
Lote de terreno com 4.197,50 m2 situado no loteamento residencial Comporta Retreat, Carvalhal, na primeira linha com vista para os arrozais e potencial construtivo para uma Moradia térrea com até 550 m2 de área de implantação/construção. Apresenta um projeto de arquitetura aprovado e enquadrado com o estilo arquitetônico da região da Comporta. Moradia única com tipologia T6 com 550 m2 de área bruta de construção e todos os quartos em suíte. Conta com sala / cozinha em open space com cerca de 100m2, piscina de 60m2, ginásio, garagem e firepit exterior integrado num terraço elevado. O loteamento Comporta Retreat desenvolve-se num terreno de 12 hectares e uma envolvente de pinhal, sendo composto por 28 lotes residenciais com áreas entre 2.000 m2 e 5.500 m2, no centro do Carvalhal, a 10 minutos walking distance dos principais estabelecimentos de comércio e serviços. Situa-se a 2 minutos driving distance da Praia do Carvalhal, a 10 minutos do centro da Comporta, a 20 minutos de Grândola, a 30 minutos de Alcácer e a 1hora e 30 minutos de Lisboa. A Castelhana agora é Dils. A Castelhana é um nome de referência no setor imobiliário português há mais de 25 anos e agora é Dils, uma empresa Italiana com mais de 50 anos de história e com escritórios em Milão, Roma e Amesterdão e agora em Lisboa, Porto, Algarve e Estoril. Em Lisboa, a nossa sede encontra-se no Chiado, um dos bairros mais emblemáticos e tradicionais da cidade. No Porto, estamos na icónica Avenida da Boavista. Na região do Algarve, temos um escritório junto à Marina de Vilamoura, e no Estoril, ao lado do famoso Casino do Estoril. Sob a marca Dils, somos especializados na consultoria para empresas, organizações e investidores institucionais, oferecendo serviços de compra, venda, arrendamento e desenvolvimento de imóveis residenciais. Estamos à sua disposição, com uma equipa dedicada para oferecer o melhor suporte no seu próximo investimento imobiliário. Quando o mundo muda, é hora de reescrever as regras. It's time to imagine your future space.
AMI: 3497
Ref. Externa: 31780
Id: 1358827
Inicie sessão para guardar este imóvel e aceder à sua lista de favoritos em qualquer dispositivo.
269.000 €
Área de terreno : 432 m²
Terreno Urbano 431 m² – Carrasqueira, ComportaImóvel promovido no sistema de propostas múltiplas - Preço Base 269.000€Fecho das propostas: 31/01/2026. Os proprietários estão disponíveis para analisar todas as propostas acima do valor base;- A decisão de escolha da proposta caberá ao proprietário; o imóvel será sempre vendido ao comprador que oferecer uma proposta mais competitiva, seja em termos de valor, seja em termos de condições ou prazos de pagamento.- Caso o proprietário, considere não estarem reunidas as condições para aceitação de uma das propostas, poderá não aceitar a mesma ou solicitar a todos os presentes a apresentação de contrapropostas.Descrição:A apenas 4 minutos do centro da ComportaExcelente oportunidade para construir a sua casa de sonho ou desenvolver um projeto de alojamento local, numa das zonas mais procuradas da costa alentejana.Este terreno urbano com 431 m² está localizado na típica aldeia da Carrasqueira, numa área tranquila e rodeada por várias moradias, com bons acessos e todas as infraestruturas já disponíveis.Área total: 431 m²Área edificável: 325 m²Possibilidade de construir até 2 pisosTerreno praticamente plano, o que reduz os custos de construçãoExcelente exposição solarIdeal para residência permanente, segunda habitação ou investimento turísticoZona com grande potencial de valorização, próxima das praias, restaurantes e comércio local. Uma localização estratégica para quem procura tranquilidade e, ao mesmo tempo, proximidade à Comporta.Marque já a sua visita e faça a sua proposta.Predimed Imobiliária, Mediação Imobiliária, Lda.Avenida Brasil 43, 12º Andar, 1700-062 LisboaLicença AMI nº 22503Pessoa Coletiva nº 517 239 345Seguro Responsabilidade Civil: Nº de Apólice RC65379424 Fidelidade
AMI: 13558
Ref. Externa: 053975
Id: 1290533
Inicie sessão para guardar este imóvel e aceder à sua lista de favoritos em qualquer dispositivo.
1.450.000 €
Área de terreno : 91500 m²
Terreno com 9,15 hectares, situado na Muda, com projeto de arquitetura em fase de aprovação para a construção de uma habitação unifamiliar V3+1, com piscina privativa. O projeto contempla uma Moradia com uma arquitetura contemporânea com 483m2 de área bruta de construção, distribuídos entre a habitação com 419m2 e garagem com 64m2. A Moradia distribui-se por dois pisos, contando com duas suites, sala de jantar, sala de estar, cozinha e área técnica no piso inferior, e a suite principal no piso superior. No exterior, encontra-se a piscina e uma zona de lazer. Na envolvente encontramos uma vegetação autóctone, onde predominam os Pinheiros, que conferem total privacidade à Moradia e que permitem uma vivência do exterior a partir do interior. A Herdade da Comporta é uma das maiores propriedades agrícolas em Portugal, com 12.500 hectares, situada na Costa Alentejana, onde podemos encontrar a harmonia perfeita da brisa do mar, o verde da floresta e o sol brilhante. A Castelhana agora é Dils. A Castelhana é um nome de referência no setor imobiliário português há mais de 25 anos e agora é Dils, uma empresa Italiana com mais de 50 anos de história e com escritórios em Milão, Roma e Amesterdão e agora em Lisboa, Porto, Algarve e Estoril. Em Lisboa, a nossa sede encontra-se no Chiado, um dos bairros mais emblemáticos e tradicionais da cidade. No Porto, estamos na icónica Avenida da Boavista. Na região do Algarve, temos um escritório junto à Marina de Vilamoura, e no Estoril, ao lado do famoso Casino do Estoril. Sob a marca Dils, somos especializados na consultoria para empresas, organizações e investidores institucionais, oferecendo serviços de compra, venda, arrendamento e desenvolvimento de imóveis residenciais. Estamos à sua disposição, com uma equipa dedicada para oferecer o melhor suporte no seu próximo investimento imobiliário. Quando o mundo muda, é hora de reescrever as regras. It's time to imagine your future space.
AMI: 3497
Ref. Externa: 31972
Id: 1252508
Inicie sessão para guardar este imóvel e aceder à sua lista de favoritos em qualquer dispositivo.
880.000 €
Área de terreno : 810 m²
Terreno com 810 m2 situado no Loteamento Pestana Brejos, com projeto de arquitetura aprovado para uma Moradia de tipologia T4 com 258m2 de área bruta. A moradia distribui-se por três blocos: No bloco principal encontra-se a cozinha em open space para a sala de estar, uma suite com casa de banho e closet, casa de banho social, despensa e zona de arrumos. Nos outros dois blocos encontram-se as restantes três suites. Todas as Moradias estão orientadas para a zona exterior, com área de deck em madeira e piscina. O projeto foi totalmente inspirado no estilo tradicional e autêntico da Comporta, privilegiando as cores e estilo da Comporta, com o colmo na cobertura, caniço na fachada, as madeiras como ponto principal de construção e decoração, amplas janelas que potenciam o contacto com a envolvente natural e todo o paisagismo assente nas plantas locais e areia. O loteamento do Pestana Brejos da Carregueira de Baixo é das zonas mais exclusivas da Herdade da Comporta. Composto por 59 lotes residenciais e 2 lotes para equipamentos comuns, inseridos num condomínio fechado. Situado a 5 minutos walking distance da Praia dos Brejos, a 11 minutos driving distance do Centro do Carvalhal e da Aldeia da Comporta, a 15 minutos da Praia da Comporta. A cerca de 30 minutos dos Centros Urbanos da Região (Alcácer do Sal e Grândola). Está a uma hora de Lisboa. A Castelhana agora é Dils. Com mais de 25 anos de experiência no mercado imobiliário português, a Castelhana é agora Dils, uma empresa internacional com mais de 50 anos de história e presença em Itália, Países Baixos, Espanha e Portugal. Sob a marca Dils, continuamos a prestar serviços especializados de consultoria, compra, venda, arrendamento e desenvolvimento de imóveis residenciais. Estamos ao seu lado, com uma equipa dedicada nos nossos escritórios em Lisboa, Estoril, Comporta, Porto e Algarve, prontos para apoiar o seu próximo investimento. Quando o mundo muda, é hora de reescrever as regras. It's time to imagine your future space.
AMI: 3497
Ref. Externa: 31490
Id: 1219688
Inicie sessão para guardar este imóvel e aceder à sua lista de favoritos em qualquer dispositivo.
1.100.000 €
Área de terreno : 788 m²
Vende-se Possanco - Comporta | Terreno com Projeto Aprovado & Vistas Deslumbrantes | Oportunidade num Ambiente Natural Protegido Terreno de 788 m² com PIP (Pedido de Informação Preliminar) já aprovado permitindo a construção de 346,92 m² (1 ou 2 pisos). Situado no coração da encantadora aldeia de Possanco, apenas a 3 minutos de carro da Comporta e a 5 minutos das suas deslumbrantes praias, este lote de 788 m² apresenta uma oportunidade única - ideal para uma segunda casa ou um investimento inteligente. Vistas desobstruídas sobre o estuário do Sado, pinheiros e campos de arroz - localizado no limite de uma área protegida. Nenhuma construção futura pode bloquear este panorama tranquilo. A propriedade inclui atualmente quatro casas que precisam de ser completamente renovadas ou reconstruídas, oferecendo um excelente potencial para criar um projeto que se integre harmoniosamente no estilo arquitetónico único da Comporta. Um cenário excecional: Possanco é uma aldeia residencial tranquila que está a ser renovada com bom gosto, de acordo com o espírito autêntico da região. Situada na Reserva Natural do Estuário do Sado, está rodeada por arrozais e terrenos agrícolas cultivados por produtores locais. A aldeia dispõe de dois restaurantes, enquanto lojas e outras comodidades podem ser encontradas nas proximidades, na Comporta e em Grândola.
AMI: 15355
Ref. Externa: AM121-T
Id: 1182061
Inicie sessão para guardar este imóvel e aceder à sua lista de favoritos em qualquer dispositivo.
2.400.000 €
Área de terreno : 3909 m²
Terreno urbano com 3909 m2, perto da praia, para construção de moradia com até 1 000 m2 de área bruta de construção, no loteamento residencial das Casas da Colina, na Lagoa Formosa, no Carvalhal. O novo proprietário é livre de desenvolver o projeto de arquitetura a seu gosto, cumprindo os parâmetros definidos no regulamento de construção do loteamento, sendo permitida a construção de um piso acima da cota de soleira e um piso abaixo, com uma altura máxima da fachada de 3,5m. O condomínio Casas da Colina, que conta com todas as infraestruturas, é composto por 40 lotes individuais, privilegiando uma envolvente de pinhal. Situa-se a apenas a 15 minutos walking distance da Praia do Carvalhal e do centro da aldeia, onde se encontram todos os serviços e estabelecimentos de comércio da localidade, nomeadamente restaurantes, lojas, hotéis, escolas, cafés e bancos. O Carvalhal, localiza-se a 10 minutos driving distance da Comporta, a 20 minutos da Vila de Grândola e a 25 minutos de Melides. Está a uma hora de Lisboa. A Castelhana agora é Dils. A Castelhana é um nome de referência no setor imobiliário português há mais de 25 anos e agora é Dils, uma empresa Italiana com mais de 50 anos de história e com escritórios em Milão, Roma e Amesterdão e agora em Lisboa, Porto, Algarve e Estoril. Em Lisboa, a nossa sede encontra-se no Chiado, um dos bairros mais emblemáticos e tradicionais da cidade. No Porto, estamos na icónica Avenida da Boavista. Na região do Algarve, temos um escritório junto à Marina de Vilamoura, e no Estoril, ao lado do famoso Casino do Estoril. Sob a marca Dils, somos especializados na consultoria para empresas, organizações e investidores institucionais, oferecendo serviços de compra, venda, arrendamento e desenvolvimento de imóveis residenciais. Estamos à sua disposição, com uma equipa dedicada para oferecer o melhor suporte no seu próximo investimento imobiliário. Quando o mundo muda, é hora de reescrever as regras. It's time to imagine your future space.
AMI: 3497
Ref. Externa: 31482
Id: 1167892
Inicie sessão para guardar este imóvel e aceder à sua lista de favoritos em qualquer dispositivo.
249.000 €
Área de terreno : 2000 m²
Uma rara oportunidade de garantir um generoso terreno urbano de 2000m² na tranquila zona rural perto da Comporta. Com 30% de subsídio de construção, pode construir uma casa de até 600m² perfeita para uma moradia moderna, um complexo familiar ou um retiro que se mistura com a paisagem natural do Alentejo. O terreno inclui um pequeno bangalô existente em condições habitáveis, com uma cozinha bem equipada, ideal como base durante a construção ou como anexo de hóspedes mais tarde. Os serviços públicos são classificados: a água é feita por furo e a eletricidade é conectada à rede elétrica. Situado a apenas 2 minutos do IC1, a 10 minutos da autoestrada A2, a 6 minutos de Alcácer do Sal e a apenas 24 minutos das procuradas praias do Carvalhal e do Pego, este local oferece calma rural com excelente conectividade. O aeroporto de Lisboa fica a pouco mais de uma hora de distância. Uma escolha ideal para quem procura uma fatia do interior da Comporta - com potencial para construir, crescer e desfrutar por gerações.
AMI: 24470
Ref. Externa: A106
Id: 1148064
Inicie sessão para guardar este imóvel e aceder à sua lista de favoritos em qualquer dispositivo.
850.000 €
Área de terreno : 1725 m²
Localizado junto a um dos melhores campos de golfe da Europa e das praias de areia branca de Troia, este é o local perfeito para construir a sua casa de férias ou habitação, rodeado pela natureza e pelo mar. Perfeitamente integrado entre a reserva natural e a praia encontra-se este lote com 1.725 m2 para a construção de uma moradia unifamiliar, com uma área bruta de construção de 344m2. Dada a dimensão do lote, a construção poderá permitir a utilização do espaço de jardim, prolongando a vivência para o exterior de forma a aproveitar o clima da região. O lote fica a uma curta distância de 10 minutos a pé para a praia ou 3 minutos de bicicleta. A aquisição deste lote inclui projecto de arquitectura aprovado. A sua localização é conveniente para os praticantes do golfe, tornando-o um local ideal para pessoas que desejam desfrutar de um estilo de vida único que esta região proporciona. Acesso privilegiado ao Troia Golf, campo reconhecido como um dos 10 melhores resorts da Europa continental pela revista Golf World em 2019. Com 6 hectares de 18 buracos e par-72 ao longo da praia com uma vista magnífica vista sobre o mar e a serra da Arrábida. Nas proximidades existe uma vasta gama e serviços, restauração, supermercados e equipamentos de lazer. A península de Setúbal é conhecida pelas suas praias de areia branca e fina, com vistas soberbas sobre a Serra da Arrábida e a uma custa distância da vila da Comporta. Local idílico para férias de praia e fins-de-semana. Uma oportunidade única de investir numa área prestigiada e em crescimento a apenas 50km de Lisboa e do Aeroporto Internacional de Lisboa Humberto Delgado.
AMI: 11469
Ref. Externa: HG1408A
Id: 1064865
Inicie sessão para guardar este imóvel e aceder à sua lista de favoritos em qualquer dispositivo.
760.000 €
Área de terreno : 21309 m²
O Parque Industrial “SAPEC BAY” está localizado na Península de Setúbal, na Herdade das Praias. O imóvel insere-se numa zona industrial perto da Central Termoeléctrica de Setúbal, caracterizada pela presença de armazéns e indústria, nomeadamente as instalações da Sapec na proximidade imediata, bem como de algumas atividades industriais de grande dimensão, onde se destaca a Alstom, Portucel, Setenave, Porto de Setúbal e uma envolvente mais distante diversificada, contando com áreas residenciais nas Praias Sado, Manteigadas e o Politécnico de Setúbal. A rede viária garante uma grande proximidade aos eixos de circulação local, regional e nacional, encontrando-se igualmente próxima da via-férrea. Dadas as características e implantação de indústrias, a zona é ponto de passagem de veículos ligeiros e pesados. Em termos de desenvolvimento urbanístico, trata-se de uma zona industrial estabilizada, existindo parcelas de terreno sem ocupação perto dos imóveis. O local beneficia de bons acessos rodoviários, encontrando-se a cerca de 5km da EN10 e 8km da A12. A estação ferroviária de Praias – Sado localiza-se a cerca de 3kms. Existe ainda um ramal ferroviário que serve o parque industrial, bem como um cais portuário. O estacionamento em superfície processa-se sem dificuldade à entrada dos lotes através de espaços destinados a esse fim. O local dispõe igualmente de zonas de parqueamento de veículos pesados. Lotes em Comercialização (Disponibilidade sujeita a confirmação) LOTE nº. 2—– 37.859m2 ——- 1.430.000 € LOTE nº. 3—– 27.613m2 ——– 1 140 000 € LOTE nº. 4—– 74.367m2 ——– 2 980 000 € LOTE nº. 5—– 68.440m2 ——- 2 745 000 € LOTE nº. 9—– 21.309m2 ——- 760 000 € LOTE nº.14 —–34.320m2 ——- 1 225 000 € Contacte nos para mais informações.
AMI: 10539
Ref. Externa: SapecBay_1
Id: 509522
Inicie sessão para guardar este imóvel e aceder à sua lista de favoritos em qualquer dispositivo.
1.140.000 €
Área de terreno : 27613 m²
O Parque Industrial “SAPEC BAY” está localizado na Península de Setúbal, na Herdade das Praias. O imóvel insere-se numa zona industrial perto da Central Termoeléctrica de Setúbal, caracterizada pela presença de armazéns e indústria, nomeadamente as instalações da Sapec na proximidade imediata, bem como de algumas atividades industriais de grande dimensão, onde se destaca a Alstom, Portucel, Setenave, Porto de Setúbal e uma envolvente mais distante diversificada, contando com áreas residenciais nas Praias Sado, Manteigadas e o Politécnico de Setúbal. A rede viária garante uma grande proximidade aos eixos de circulação local, regional e nacional, encontrando-se igualmente próxima da via-férrea. Dadas as características e implantação de indústrias, a zona é ponto de passagem de veículos ligeiros e pesados. Em termos de desenvolvimento urbanístico, trata-se de uma zona industrial estabilizada, existindo parcelas de terreno sem ocupação perto dos imóveis. O local beneficia de bons acessos rodoviários, encontrando-se a cerca de 5km da EN10 e 8km da A12. A estação ferroviária de Praias – Sado localiza-se a cerca de 3kms. Existe ainda um ramal ferroviário que serve o parque industrial, bem como um cais portuário. O estacionamento em superfície processa-se sem dificuldade à entrada dos lotes através de espaços destinados a esse fim. O local dispõe igualmente de zonas de parqueamento de veículos pesados. Lotes em Comercialização (Disponibilidade sujeita a confirmação) LOTE nº. 2—– 37.859m2 ——- 1.430.000 € LOTE nº. 3—– 27.613m2 ——– 1 140 000 € LOTE nº. 4—– 74.367m2 ——– 2 980 000 € LOTE nº. 5—– 68.440m2 ——- 2 745 000 € LOTE nº. 9—– 21.309m2 ——- 760 000 € LOTE nº.14 —–34.320m2 ——- 1 225 000 € Contacte nos para mais informações.
AMI: 10539
Ref. Externa: SapecBAy_2
Id: 509499
Inicie sessão para guardar este imóvel e aceder à sua lista de favoritos em qualquer dispositivo.
Estes agentes são especialistas nesta zona:
Inicie sessão para ocultar este imóvel das suas pesquisas e manter a sua lista de resultados organizada.
Guardar favoritos
Este imóvel foi guardados nos seus favoritos com sucesso.
Para poder guardar pesquisa deverá ter a sua sessão iniciada.
Caso não tenha uma conta, deverá criar uma.
A sua pesquisa foi guardada com sucesso!
© Copyright 2023 | CASACERTA. All rights reserved
Este site utiliza cookies. Ao navegar no site estará a consentir a sua utilização.
Para mais informações sobre os cookies pode consultar a
política de privacidade.