Filtros
0 · 6 resultadosÁrea de terreno : 420 m²
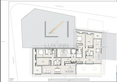
Precisa de Crédito Habitação? Trabalhamos com o nosso parceiro MAXFINANCE GARANTE que trata do seu crédito habitação SEM CUSTOS PARA SI! MAXFINANCE GARANTE é intermediário de crédito vinculado ao Banco de Portugal com o número de registo 0007287. Excelente Terreno com Projeto Aprovado para 2 Apartamentos T2 com Garagem. Apresentamos este fantástico terreno com 186m², já com projeto aprovado para construção de um prédio com 420m² de área edificável. O projeto contempla dois apartamentos T2, distribuídos por dois pisos, com garagem no piso -1, oferecendo estacionamento para 4 viaturas e espaço adicional para 8 bicicletas. O edifício inclui ainda painéis solares na cobertura, promovendo maior eficiência energética. Composição do Imóvel: Piso 0: Cozinha e sala em open space com 39m² Suite com 23m² Suite com closet com 31,5m² Duas varandas com 11m² (na zona da sala) Piso 1: Cozinha e sala em open space com 39m² Suite com 18,5m² Suite com closet com 28m² Varanda com 11m² (na zona da sala) A localização é um dos grandes destaques deste imóvel, encontrando-se próximo de transportes públicos, comércio local, farmácias, supermercados e escolas. Beneficia ainda de excelentes acessibilidades, com ligação rápida às principais vias, como a A2 e a A33, facilitando as deslocações para Lisboa e outras zonas da região. Se procura um investimento seguro ou um projeto habitacional moderno e bem localizado, esta é uma oportunidade a não perder. Imobiliária Casas do Rui Pedro, Refª 4908OB1 'A informação disponibilizada, ainda que precisa, não dispensa a sua confirmação nem pode ser considerada vinculativa.'
AMI: 12831
Ref. Externa: 4908OB1
Id: 1741166
Inicie sessão para guardar este imóvel e aceder à sua lista de favoritos em qualquer dispositivo.
Área de terreno : 417 m²
Terreno urbano com PIP aprovado para a construção de prédio com 6 fogos e 1 loja, localizado em Cacilhas, numa zona muito central e de grande valorização. O projeto prevê: 4 apartamentos T2 com 98 m² e 100 m² 1 apartamentos T1 com 70 m² cada 1 apartamento T0 com 54 m², incluindo parqueamento e arrecadação Loja com 45 m² ao nível do rés do chão O terreno possui 416 m² de área total, com implantação de 300 m² e uma área bruta de construção de 520 m², além da loja. Situado junto a comércio, serviços e transportes públicos, este terreno apresenta ótimo potencial de rentabilidade e é ideal para investidores ou promotores imobiliários que procuram um projeto pronto a iniciar.
AMI: 14049
Ref. Externa: 1114 CV (2)
Id: 1708480
Inicie sessão para guardar este imóvel e aceder à sua lista de favoritos em qualquer dispositivo.
Área de terreno : 1001 m²
OPORTUNIDADE ÚNICA DE INVESTIMENTO! Terreno com 1.001 m² e PIP aprovado com uma área total de construção de 2.486,80 m² Ideal para investidores como também para quem procura desenvolver um projeto residencial de grande prestígio Este é composto por 12 apartamentos T3, todos eles com varandas, estacionamento subterrâneo e ainda um jardim privado exterior para usufruto dos residentes proporcionando um ambiente fantástico e harmonioso Nos andares superiores é possível disfrutar de uma deslumbrante vista sobre o Rio Tejo e do futuro Projeto ' Nova Cidade da Água ' a realizar na zona Ribeirinha de Cacilhas Com excelentes acessos para a Ponte 25 de Abril, IC20 Via Rápida para as diversas praias da Fonte da Telha e Costa de Caparica, A33, A2 e A38, além dos serviços fluviais da Transtejo e do Metro Sul do Tejo com destino a Universidade, Cacilhas, Pragal e Corroios sendo que estes dois últimos para a Estação de Comboios da Fertagus com vários destinos tais como Lisboa e Setúbal Próximo da Praça Gil Vicente e das Avenidas principais de Almada contando ainda com diversas Escolas, Universidades, Centro de Saúde, comércio, restaurantes e todo o tipo de serviços Ótimo para quem valoriza uma qualidade de vida por isso não deixe de Investir numa das melhores cidades para viver!... Para mais informações sobre o acesso ao este maravilhoso projeto detalhado, entre em contacto conosco através do telemóvel (telefone) Rui Gouveia para podermos explorar todas as possibilidades desta grande oportunidade Fazemos a gestão personalizada de todo o seu processo de financiamento, sempre com as melhores soluções do mercado ' A Chave do nosso sucesso é tornar o seu Sonho em Realidade!...'
AMI: 16369
Ref. Externa: TER_0173_1R
Id: 1708165
Inicie sessão para guardar este imóvel e aceder à sua lista de favoritos em qualquer dispositivo.
Profissionais que conhecem esta zona a fundo — contacte-os para uma avaliação personalizada.
Área bruta : 6220 m²
Localizado na tranquila zona da Quinta do Robalo, na freguesia da Caparica, este terreno rústico com 6.220 m² oferece uma oportunidade rara para quem procura um refúgio natural junto à costa. Envolvido por vegetação madura e inserido numa paisagem de grande beleza, o terreno é atualmente destinado a cultura arvense e horta, apresentando uma topografia que favorece projetos agrícolas ou de lazer num ambiente sereno e privado. Com confrontações a norte com propriedade privada, a sul e nascente com terrenos vizinhos e a poente com caminho público, beneficia de bons acessos e de uma envolvente residencial dispersa que reforça o seu carácter exclusivo e resguardado. A proximidade às praias da Costa da Caparica e à natureza envolvente, incluindo falésias e áreas arborizadas, acrescenta um valor distintivo ao potencial do terreno. A Caparica e Trafaria são conhecidas pela sua forte ligação ao mar e pela tranquilidade das suas áreas mais interiores, como é o caso desta. Aqui, os residentes podem desfrutar de uma qualidade de vida equilibrada entre o verde da natureza e a proximidade a Almada e Lisboa, com acesso facilitado por estrada e transportes. Ideal para quem procura investir num ativo sólido com grande potencial de valorização, seja para uso privado ou desenvolvimento sustentável.
AMI: 13824
Ref. Externa: 21924
Id: 1149975
Inicie sessão para guardar este imóvel e aceder à sua lista de favoritos em qualquer dispositivo.
Área de terreno : 203 m²
Terreno para Construção com Vista Privilegiada para o Cristo Rei – Pragal Este terreno de 202m² é a oportunidade perfeita para quem deseja construir a casa dos seus sonhos ou investir num imóvel com grande potencial. Com projeto de especialidades aprovado em 2019 pela CMA, o lote está pronto para ser reavaliado e obter a Licença de Construção. O projeto oferece uma Moderna Moradia Unifamiliar de 2 pisos + Sótão, com 156m² e um lugar de estacionamento. Perfeito para quem valoriza espaço, conforto e uma localização estratégica. Detalhes do Projeto: - Área de implantação: 71,63 m² - Área bruta de construção: 156 m² - Área útil: 130,10 m² - Sótão e Terraços: 25,41 m² + 39,70 m² - Varandas e galerias exteriores: 2,22 m² + 16 m² - Volumetria: 498 m³ - Altura da construção: 6,95 m Por que este lote é ideal? Localizado no Pragal, com uma vista impressionante para o Cristo Rei e próximo de todas as comodidades, este terreno oferece a possibilidade de construir a sua habitação própria com o apoio do Crédito Habitação para Construção, ou de realizar um investimento com elevado retorno devido à excelente localização. Não perca esta oportunidade! Nota: Se é um agente imobiliário com licença AMI, e tem um potencial cliente comprador para este magnifico imóvel, não hesite em contactar-nos. As partilhas são feitas a 50/50!
AMI: 17621
Ref. Externa: REF-100612
Id: 859339
Inicie sessão para guardar este imóvel e aceder à sua lista de favoritos em qualquer dispositivo.
Área de terreno : 300 m²
Terreno Rustico com 300m2, plano, com bons acessos ao IC20, A2, A33, Ponte 25 de Abril, junto ao Almada Fórum, a 10 minutos da Costa da Caparica. Possibilidade de ser murado e tornar em uma propriedade privada onde poderá colocar um contentor, uma autocaravana ou mesmo até uma casa amovível/madeira. Terreno já está terraplanado e pronto a ser utilizado. Zona rural com bastante verde, tornam esta propriedade atrativa para quem gosta da natureza. Visite sem compromisso.
AMI: 19708
Ref. Externa: 13277
Id: 392162
Inicie sessão para guardar este imóvel e aceder à sua lista de favoritos em qualquer dispositivo.
© Copyright 2023 | CASACERTA. All rights reserved
Guardar favoritos
Este imóvel foi guardados nos seus favoritos com sucesso.
Para poder guardar pesquisa deverá ter a sua sessão iniciada.
Caso não tenha uma conta, deverá criar uma.
A sua pesquisa foi guardada com sucesso!
Este site utiliza cookies. Ao navegar no site estará a consentir a sua utilização.
Para mais informações sobre os cookies pode consultar a
política de privacidade.