ArrowRightBlue

Santo Andre

Área de terreno : 873 m²

Terreno Urbano para Construção - Santo André Excelente oportunidade! Terreno urbano localizado no Bairro da Várzea, em Vila Nova de Santo André, concelho de Santiago do Cacém. Localização privilegiada, em zona residencial tranquila e com bons acessos. A poucos minutos de escolas, comércio, serviços e das principais vias de ligação à costa alentejana e ao Porto de Sines. Área total do terreno: 872,63 m² Área de implantação permitida: 230 m² Área bruta de construção autorizada: 230 m² Afetação: Habitação Isto significa que, respeitando os regulamentos em vigor e as condições urbanísticas definidas pela câmara municipal, poderá ser erguida uma moradia unifamiliar ou edifício de habitação com até 230 m² de área bruta de construção, ocupando no máximo 24% da área total do terreno, garantindo assim uma excelente envolvência exterior e zonas ajardinadas ou de lazer. Possibilidade de construção de moradia unifamiliar com espaço exterior generoso. Enquadrado em zona urbana consolidada com infraestrutura existente (água, luz, saneamento). Registo e documentação em dia - propriedade plena, sem encargos. A zona oferece todas as comodidades essenciais: escolas, comércio local, serviços públicos, espaços verdes e boas ligações à rede viária nacional, nomeadamente a EN120 e proximidade à A26 e A2, facilitando o acesso a Sines, Santiago do Cacém e à costa alentejana. Construa a sua casa de sonho num local calmo, mas próximo de tudo. Contacte-nos para mais informações ou agendamento de visita.

AMI: 19406

Ref. Externa: UNU.I.1419.19406

Id: 1217154

Área de terreno : 630 m²

Terreno Urbano na Costa Alentejana, Vila Nova de Santo André Terreno de 630 m² na Costa Alentejana, a 2 km da praia e na corrente das famosas praias da Comporta e de Melides. O terreno permite a construção de uma moradia de 2 pisos com piscina e garagem, com 202 m² de Implantação e 318 m² de Construção, numa zona de moradias novas. Permite a construção de dois fogos. O centro da Vila Nova de Santo André, que se encontra a 6 km de distância, tem tudo: comércio, serviços, restauração, escolas públicas de todo o agrupamento escolar, atividades de lazer em Artes, Cultura, Música e Desporto, agrupamento de Escuteiros, Academia Sénior, CERCIS, grandes cadeias de supermercados, transportes públicos locais e de ligação nacional, Kartódromo, Badoca Park e até os 3 grandes clubes de futebol estão ali representados! No verão enche-se de vida com o Festival das Cores, em Santo André, e as Músicas do Mundo, em Sines. Localidade muito procurada pelas suas praias, temperatura e vida pacata que se vive nesta região alentejana tão rica e longe do stress da cidade. Excelente tanto para casa permanente como de férias.

AMI: 9100

Ref. Externa: CL24013.FM

Id: 1177895

Área de terreno : 2277 m²

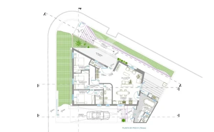
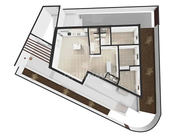
Loteamento de 9 Vilas localizado junto à Lagoa de santo André, Santiago do Cacem. Em plena Costa Alentejana surge este projeto que consiste na urbanização de um conjunto de nove vilas unifamiliares que se desenvolvem ao longo de uma parcela de terreno aproximadamente, 2400 m². A proposta para cada Vila contempla uma série de coberturas acessíveis e um jardim ao nível térreo que se abre fisicamente para o pinhal. As coberturas praticáveis oferecem vistas panorâmicas sobre toda a envolvente e, em especial, sobre o mar e a Lagoa de Santo André. Área de cada Vila - 253 m² Área bruta de construção - 165 m² Áreas dos espaços exteriores - 290 m² com os terraços incluídos. Todas as Vilas são tipologias T3 com áreas generosas e espaços bem iluminados. Um pequeno pátio central organiza e distribui os diferentes espaços da casa para além de servir como um ponto de iluminação natural das divisões que lhe são contíguas. Santiago do Cacém, por sua vez, é sede do município homónimo e um dos maiores do país. Em 2018, foi o município com os maiores índices de crescimento de todo o território Alentejano, um crescimento que tem sido acompanhado por um forte aumento do investimento hoteleiro, bem como do investimento particular, o que demonstra que há cada vez mais pessoas a quererem fixar-se na região ou a escolhê-la como o seu local de férias. A proximidade com a Herdade da Comporta e com o porto de Sines têm influenciado positivamente esse crescimento e contribuído para o rápido desenvolvimento da região. A localidade é servida por dois aeroportos que se encontram muito bem conectados, quer por autoestrada, quer por itinerários principais. O aeroporto de Lisboa, o maior e mais importante aeroporto português, encontra-se a cerca de 140 quilómetros, a aproximadamente 1 hora e 30 minutos de carro, enquanto que o Aeroporto de Beja, que opera sobretudo voos particulares e alguns voos comerciais de pequena dimensão situa-se a 92 quilómetros do complexo, a cerca de 1 hora e 20 minutos de carro. A Castelhana é uma agência imobiliária portuguesa presente no mercado nacional há mais de 20 anos, especializada no mercado residencial prime e reconhecida pelo lançamento de alguns dos empreendimentos de maior notoriedade no panorama imobiliário nacional. Fundada em 1999, a Castelhana presta um serviço integral na mediação de negócios. Somos especialistas em investimento e na comercialização de imóveis. Em Lisboa, estamos sediados no Chiado, um dos bairros mais emblemáticos e tradicionais da cidade. E no Porto, na sofisticada zona da Boavista. Ficamos à sua espera. Contamos com uma equipa disponível para lhe dar o melhor apoio no seu próximo investimento imobiliário. Contacte-nos!

AMI: 3497

Ref. Externa: 18223

Id: 1146595

Área de terreno : 1100 m²

Terreno tem 1100 m2, com 180 m2 de implantação, com area bruta de construção até 300m2. O terreno fica em Brescos, uma zona tranquila e perto da natureza, a poucos minutos da lagoa de Santo André e da praia de Melides. Agende a sua visita!

AMI: 9583

Ref. Externa: NR829

Id: 974697

Área de terreno : 627 m²

Terreno com área de 627 m² localizado na Costa Vicentina, a 2 km das praias e na corrente das praias da Comporta e de Melides. O terreno permite a construção de moradia de dois pisos idênticas ás da urbanização, com área bruta de construção de 200 m². Nas proximidades poderá encontrar: - Ginásio - Cafés - Hipermercados - Postos de combustível - Escolas - Transportes públicos. Poderá divertir-se no famoso Kartódromo de Vila Nova de Santo André localizado a 3 Km e ainda o Badoca Park a 7 Km. Localidade representada pela natureza, zona calma e excelente para aproveitar o bom tempo e viver as praias mais bonitas de Portugal. Venha agendar a sua visita!

AMI: 68

Ref. Externa: 501.2413

Id: 967013

Área de terreno : 373 m²

Terreno para Construção com Projeto Aprovado em Aldeia de Santo AndréEstá à procura do lugar ideal para construir a sua casa de sonho? Este lote é a oportunidade perfeita!Detalhes do Lote:Localização: Aldeia de Santo André, Vila Nova de Santo AndréTerreno para construção com 373,5 m², projeto aprovado e especialidades asseguradas, pronto para iniciar.Projeto aprovado para Moradia T3 com áreas amplas e generosasEspaço de lazer amplo e estacionamento privadoDestaques: A apenas minutos 10 minutos das praias de Santo AndréPróximo de todas as comodidades essenciaisLocalização privilegiada:1h30 de Lisboa20 minutos de Melides, Grândola e SinesEsta é uma oportunidade única para criar a sua casa de sonho com o melhor do litoral alentejano. Entre em contato para mais informações e agende já a sua visita!Predimed Imobiliária, Mediação Imobiliária, Lda.Avenida Brasil 43, 12º Andar, 1700-062 LisboaLicença AMI nº 22503Pessoa Coletiva nº 517 239 345Seguro Responsabilidade Civil: Nº de Apólice RC65379424 Fidelidade Características: Campo;Centro da Cidade;Espaços Verdes;Posto de Combustível;Vista para Campo

AMI: 13558

Ref. Externa: 048586

Id: 941141

Área de terreno : 193 m²

Lote de terreno disponível para construção de moradia, com uma área total de 192,50m², área de implantação de 116m² e área bruta de construção de 232m². Este lote oferece a oportunidade ideal para construir a sua moradia num ambiente tranquilo e próximo das belas praias da região. Com uma área generosa de terreno e possibilidade de construção de uma moradia espaçosa, este é o local perfeito para criar o seu refúgio à beira-mar. Localizado numa zona residencial de moradias novas, este lote garante um ambiente familiar e acolhedor. A sua proximidade às praias permite-lhe desfrutar do melhor que a região tem para oferecer em termos de lazer e qualidade de vida. Não perca a oportunidade de investir neste lote e construir a casa dos seus sonhos num ambiente privilegiado. Contacte-nos para mais informações e comece já a planear o seu futuro junto ao mar.

AMI: 487

Ref. Externa: 2024009

Id: 845008

Área de terreno : 627 m²

Este é um convite para explorar uma oportunidade única de investimento ou construção na bela região da costa alentejana. Apresentamos um lote com características distintas que certamente irão atrair quem busca qualidade de vida e proximidade com a natureza. Área Total: 627,27m2 Área de Implantação: 201,60m2 Área de Construção: 317,50m2 A apenas 2 km da praia mais próxima, este lote oferece a proximidade com as deslumbrantes praias da Costa Alentejana, conhecidas pela sua beleza natural intocada. Além disso, está estrategicamente localizado a cerca de 15 km de Sines, com excelentes acessos à via rápida, garantindo conveniência para deslocamentos. Este lote está inserido numa urbanização exclusivamente composta por moradias unifamiliares, proporcionando um ambiente tranquilo e familiar para desfrutar do seu novo lar. Com a possibilidade de construir uma espaçosa moradia unifamiliar ou duas moradias geminadas, este lote oferece flexibilidade para adaptar-se às suas necessidades e preferências. Se está à procura de um lugar para construir a casa dos seus sonhos ou para investir num projeto imobiliário promissor, não procure mais. Este lote em Vila Nova de Santo André é a escolha ideal. Entre em contato hoje mesmo para mais informações ou para agendar uma visita.

AMI: 487

Ref. Externa: 2024005

Id: 844990

Área de terreno : 320 m²

Terreno urbano para construção de moradia, na Aldeia de Santo André, a 5 minutos da praia, na Costa AlentejanaTerreno para construção de moradia na aldeia de Santo André, no concelho de Santiago do Cacém, a 3 minutos de Vila Nova de Santo André e do Hospital do Litoral Alentejano, a 5 minutos da praia, a 10 minutos da Lagoa de Santo André e da Reserva Natural.Localizado numa aldeia tranquila, a partir deste terreno tem rápido acesso por estrada municipal, a Vila Nova de Santo André, onde existe comércio local, serviços e restauração, bem como à sede de concelho, Santiago do Cacém. Sines fica a cerca de 20 minutos e o complexo industrial a 15 minutos. Situado no Largo da Igreja, perto de café e restaurante, e uma zona com bastante estacionamento público disponível, este terreno tem 320 m2 e permite uma área bruta de construção de 198 m2. Tem grande potencial também para criar um espaço exterior de lazer agradável para usufruir da tranquilidade da aldeia.Para saber mais ou marcar uma visita, fale connosco!Cláudia Marques » +351 968 851 352Mais sobre a Predimed Vasco da Gama em https://vascodagamaimobiliaria.com/Predimed Imobiliária, Mediação Imobiliária, Lda.Avenida Brasil 43, 12º Andar, 1700-062 LisboaLicença AMI nº 22503Pessoa Coletiva nº 517 239 345Seguro Responsabilidade Civil: Nº de Apólice RC65379424 Fidelidade Características: Auto-Estrada;Escola;Hospital;Terreno

AMI: 13558

Ref. Externa: 045985

Id: 814180

Área de terreno : 192 m²

Lote de terreno, localizado no Bairro das Flores, Vila Nova de Santo André, área total do terreno: 192.50m2, área bruta de construção: 232.00m2, Excelente localização, Vila Nova de Santo André. Somos também Intermediário de Crédito, estamos ao seu dispor. Memória Descritiva Relativo aos Parâmetros Urbanísticos do Loteamento, “não existe projeto-tipo, pelo que os projetos a apresentar deverão ser livres, desde que não violem os Parâmetros Urbanos do Loteamento e que, em todos os casos omissos no mesmo, se respeite todas as disposições legais e regulamentares aplicáveis, nomeadamente o RGEU”.

AMI: 8065

Ref. Externa: 11551

Id: 549760

Área de terreno : 28100 m²

Terreno rústico, com a nova lei, terreno rústico em Portugal está sujeita a regras específicas e pode variar de acordo com o plano diretor municipal e a legislação vigente. uma localização privilegiada perto da natureza e da Cidade. Localizado em Vila Nova de Santo André. com 28,100m² com pinheiros, muita privacidade e uma localização privilegiada perto da natureza e da Cidade. Se procura a calma e privacidade, mas perto da cidade e de todo o tipo de serviços, esta é a sua oportunidade a não perder! Marque já a sua visita.

AMI: 8065

Ref. Externa: 11361

Id: 523751

Área de terreno : 42025 m²

Terreno rústico à venda em Vila Nova de Santo André! Com 42.025m2, com a nova lei, terreno rústico em Portugal está sujeita a regras específicas e pode variar de acordo com o plano diretor municipal e a legislação vigente. uma localização privilegiada perto da natureza e da Cidade. Se procura a calma e privacidade, mas perto da cidade e de todo o tipo de serviços, esta é a sua oportunidade a não perder! Marque já a sua visita.

AMI: 8065

Ref. Externa: 10401

Id: 433855

Clicky