Lista
Comprar
Arrendar
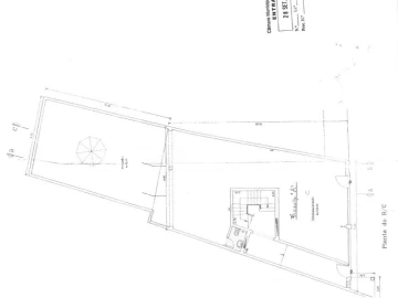
Área útil : 3018 m²
A fração em comercialização situa-se no Edifício Mirador, Aveiro que é constituído por um total de 14 pisos destinados a estacionamentos, comércio, serviços e habitação. Um Edifício Único, com 9 blocos de apartamentos e lojas. Inserido em espaços verdes e com vistas soberbas, perto do centro de Aveiro. A fração encontra-se integrada no Lote 1, ocupando os pisos -3 e -4, onde funciona como área comercial/serviços e 100 lugares de estacionamentos e arrumos nos pisos -5 a -7. O imóvel encontra-se com a configuração do anterior inquilino, que desenvolvia a atividade de health club. A área comercial/serviços do imóvel distribui-se em dois pisos e é composta por áreas destinadas a atividades de lazer, físicas e desportivas, como sejam áreas de ginásio, bar, piscina, jacuzzi, sauna, balneários e atividades complementares (enfermaria, gabinetes diversos e cacifos). O meio envolvente caracteriza-se pela proximidade com o Hospital da Luz, inserido na urbanização da Forca-Vouga. É uma zona nobre numa das entradas principais da cidade de Aveiro, maioritariamente com habitação multifamiliar com comércio e serviços ao nível do r/chão, algumas moradias unifamiliares e alguns edifícios com serviços relevantes, como a Loja do Cidadão e a Conservatória do Registo Comercial de Aveiro. A sua centralidade e fácil acesso às principais vias de comunicação e perto do Centro de Congressos e do Centro de Exposições de feiras, fazem deste Empreendimento um factor competitivo e afirmação no mercado imobiliário e de negócio local. Bons acessos rodoviários e razoavelmente servida de transportes públicos, junto à N109 e a 1,5km da A25, próxima da Estação de Comboios e do Terminal Rodoviário de Aveiro.
AMI: 9240
Ref. Externa: N/02211
Id: 1696446
Inicie sessão para guardar este imóvel e aceder à sua lista de favoritos em qualquer dispositivo.
Área bruta : 260 m²
Arrenda-se excelente espaço comercial com 2 pisos, estrategicamente localizado no centro de Aveiro, na prestigiada zona dos Liceus. Beneficiando de uma localização privilegiada com elevado fluxo pedonal e rodoviário, este imóvel é ideal para quem procura prestígio e conveniência para o seu negócio. Distribuída por dois pisos, com diversos gabinetes, permitindo criar zonas distintas de atendimento, showroom ou escritório/armazém. Situada no polo escolar e residencial de referência, garantindo proximidade a serviços, transportes e uma vasta rede de potenciais clientes. Zona envolvente com excelentes opções de aparcamento, uma vantagem competitiva crucial para o conforto dos seus clientes. Venha instalar o seu negócio numa das zonas mais dinâmicas e procuradas da cidade de Aveiro. *********************************************************************************************************************************************** Excellent commercial space for rent with 2 floors, strategically located in the centre of Aveiro, in the prestigious Liceus area. Benefiting from a privileged location with high pedestrian and road flow, this property is ideal for those looking for prestige and convenience for their business. Spread over two floors, with several offices, allowing the creation of distinct service areas, showroom or office/warehouse. Located in the school and residential centre of reference, ensuring proximity to services, transport and a vast network of potential customers. Surrounding area with excellent parking options, a crucial competitive advantage for the comfort of your customers. Come and install your business in one of the most dynamic and sought-after areas of the city of Aveiro. *********************************************************************************************************************************************** Excelente espacio comercial en alquiler con 2 plantas, estratégicamente situado en el centro de Aveiro, en la prestigiosa zona del Liceus. Beneficiándose de una ubicación privilegiada con un alto flujo peatonal y viario, esta propiedad es ideal para quienes buscan prestigio y comodidad para su negocio. Distribuido en dos plantas, con varias oficinas, lo que permite crear áreas de servicio distintas, sala de exposición o oficina/almacén. Ubicado en el centro escolar y residencial de referencia, asegurando la proximidad a servicios, transporte y una vasta red de clientes potenciales. Zona circundante con excelentes opciones de aparcamiento, una ventaja competitiva crucial para la comodidad de tus clientes. Ven y instala tu negocio en una de las zonas más dinámicas y codiciadas de la ciudad de Aveiro. *********************************************************************************************************************************************** Excellent espace commercial à louer avec 2 étages, stratégiquement situé au centre d'Aveiro, dans la prestigieuse zone du Liceus. Bénéficiant d'un emplacement privilégié avec un fort débit piétonnier et routier, ce bien est idéal pour ceux qui recherchent prestige et commodité pour leur entreprise. Répartie sur deux étages, avec plusieurs bureaux, permettant la création de zones de service distinctes, d'une salle d'exposition ou d'un bureau/entrepôt. Situé dans l'école et le centre résidentiel de référence, assurant la proximité des services, des transports et d'un vaste réseau de clients potentiels. Un environnement environnant avec d'excellentes options de stationnement, un avantage concurrentiel crucial pour le confort de vos clients. Venez installer votre entreprise dans l'un des quartiers les plus dynamiques et recherchés de la ville d'Aveiro. ***********************************************************************************************************************************************
AMI: 12919
Ref. Externa: AV20/194
Id: 1694586
Inicie sessão para guardar este imóvel e aceder à sua lista de favoritos em qualquer dispositivo.
Área útil : 175 m²
Espaço comercial - Empreendimento GUL Espaço comercial destinado a comercio e serviços, inserido no novo empreendimento de luxo GUL - Golden Urban Life. Este espaço comercial com 175m2, está disponível para arrendamento, com licença para comércio/serviços e sem acabamentos para que possa efetuar a melhor adaptação possível ao seu negócio. Situada no coração a cidade, junto à Avenida Dr. Lourenço Peixinho e em frente ao Mercado Manuel Firmino, aqui encontra uma localização distinta e uma grande visibilidade para o seu espaço.
AMI: 16355
Ref. Externa: GUL - LOJA B
Id: 1692917
Inicie sessão para guardar este imóvel e aceder à sua lista de favoritos em qualquer dispositivo.
1 WCs
Área útil : 91 m²
Loja localizada no centro histórico da cidade de Aveiro! Composta por: - Uma sala ampla; - Duas casas de banho; - Um espaço que pode ser utilizado como arrumo (anexos); Esta loja situa-se numa zona com boa visibilidade, próxima de comércio e serviços, dispondo de todas as valências na sua envolvência. Área Bruta Privativa: 90,70m2 Área Útil: 66m2 Não perca esta oportunidade e agende já a sua visita e venha conhecer! Ref: 1040498/23 BR CE:C LU:281/08 I
AMI: 3447
Ref. Externa: 1040498/23 BR
Id: 1690002
Inicie sessão para guardar este imóvel e aceder à sua lista de favoritos em qualquer dispositivo.
Área bruta : 173 m²
Excelente loja c/ 173 m2, destinada a comercio. - Excelente localização. - Wc - 2 Lugares de garagem. - Montra. - Zona habitacional e comercial. - Escolas. - Farmácia. - Padaria. - Comercio local. Excelente oportunidade para negócio próprio ou para rendimento. ************************************************************************************************************************************************* Excellent store with 173 m2, intended for commerce. - Excellent location. - Toilet - 2 parking spaces. - Showcase. - Housing and commercial area. - Schools. - Pharmacy. - Bakery. - Local market. Excellent opportunity for your own business or income. *************************************************************************************************************************************************
AMI: 12919
Ref. Externa: AV24/078
Id: 1683743
Inicie sessão para guardar este imóvel e aceder à sua lista de favoritos em qualquer dispositivo.
2 WCs
Área bruta : 95 m²
Loja para arrendamento, 90 m2 e com alvará para restauração. Imóvel localizado na Rua dos Marnotos, entre a Praça do Peixe e a Praça 14 de Julho, zona de bares e restauração. Os bens móveis que se encontram nas fotos não estão incluídos no arrendamento, mas é possível adquiri-los. Condições para arrendamento: 2 rendas e 2 cauções. Venha conhecer! Sobre nós: A equipa da LITORALCASA inicia todos os dias de trabalho com o objetivo de encontrar a compatibilidade perfeita entre quem vende e quem pretende comprar. O nosso foco centra-se na mediação imobiliária; por isso todos os dias fazemos o cruzamento entre os imóveis em carteira que nos são confiados e quem os procura. Isto aplica-se à compra, venda, permuta, trespasse, cedências de posição e arrendamento. Encaramos esta missão de uma forma muito dedicada e temos como principal objetivo auxiliar a concretizar as aspirações de investimento imobiliário dos nossos clientes. O que nos motiva e diferencia é a proximidade com que nos relacionamos com o mercado e as pessoas que o compõem. Temos um conhecimento muito próximo da dinâmica da oferta e procura, porque estamos em constante contacto com esta componente social e humana. Estes aspetos dão-nos todo o conhecimento necessário para fazer um acompanhamento de proximidade em todas as fases do seu processo de aquisição imobiliária. Missão: A nossa missão consiste em realizar o sonho imobiliário dos nossos clientes, garantindo para isso um serviço exclusivo, transparente, próximo e completo de modo a abranger todas as etapas necessárias desde a compra até à venda ou arrendamento dos imóveis. O nosso propósito é encontrar a melhor solução para o seu lar ou para o seu investimento. Visão: Fomentar o desenvolvimento de uma rede virtuosa de compra, venda e arrendamento no setor imobiliário capaz de atrair e fidelizar clientes, bem como de satisfazer as mais diversas necessidades imobiliárias dos nossos clientes. Valores · Ética · Rigor · Respeito · Lealdade · Conhecimento · Proximidade · Transparência
AMI: 13825
Ref. Externa: ARR-4204
Id: 1680394
Inicie sessão para guardar este imóvel e aceder à sua lista de favoritos em qualquer dispositivo.
1 WCs
Área bruta : 96 m²
Oportunidade imperdível para o seu negócio! Arrenda-se loja com localização privilegiada no centro da cidade, inserida em zona de grande movimento pedonal e rodoviário. Este espaço comercial destaca-se pelas excelentes áreas interiores, ideais para comércio, serviços ou showroom, e pelas amplas montras, perfeitas para dar visibilidade ao seu negócio e atrair clientes. Características principais: Área generosa e bem distribuída Montras amplas com excelente exposição solar Forte visibilidade e fácil acesso Ideal para diversos tipos de negócio Zona envolvente com comércio, serviços e transportes. Não perca esta oportunidade de instalar o seu negócio numa das zonas mais procuradas da cidade! Para mais informações ou agendar visita, entre em contacto. Ref:1040692/25 BR
AMI: 3447
Ref. Externa: 1040692/25 BR
Id: 1676651
Inicie sessão para guardar este imóvel e aceder à sua lista de favoritos em qualquer dispositivo.
1.400 €
1 WCs
Área bruta : 220 m²
Loja para comércio com 220 m2. Imóvel bem situado, zona do Glicínias, com montra e constituída por 2 pisos. Loja ao nível de R/C com 197 m2 e na cave com 23 m2. Com acesso a pessoas com mobilidade reduzida. Licença para comércio. Sobre nós: A equipa da LITORALCASA inicia todos os dias de trabalho com o objetivo de encontrar a compatibilidade perfeita entre quem vende e quem pretende comprar. O nosso foco centra-se na mediação imobiliária; por isso todos os dias fazemos o cruzamento entre os imóveis em carteira que nos são confiados e quem os procura. Isto aplica-se à compra, venda, permuta, trespasse, cedências de posição e arrendamento. Encaramos esta missão de uma forma muito dedicada e temos como principal objetivo auxiliar a concretizar as aspirações de investimento imobiliário dos nossos clientes. O que nos motiva e diferencia é a proximidade com que nos relacionamos com o mercado e as pessoas que o compõem. Temos um conhecimento muito próximo da dinâmica da oferta e procura, porque estamos em constante contacto com esta componente social e humana. Estes aspetos dão-nos todo o conhecimento necessário para fazer um acompanhamento de proximidade em todas as fases do seu processo de aquisição imobiliária. Missão: A nossa missão consiste em realizar o sonho imobiliário dos nossos clientes, garantindo para isso um serviço exclusivo, transparente, próximo e completo de modo a abranger todas as etapas necessárias desde a compra até à venda ou arrendamento dos imóveis. O nosso propósito é encontrar a melhor solução para o seu lar ou para o seu investimento. Visão: Fomentar o desenvolvimento de uma rede virtuosa de compra, venda e arrendamento no setor imobiliário capaz de atrair e fidelizar clientes, bem como de satisfazer as mais diversas necessidades imobiliárias dos nossos clientes. Valores · Ética · Rigor · Respeito · Lealdade · Conhecimento · Proximidade · Transparência
AMI: 13825
Ref. Externa: ARR-4200 B
Id: 1673682
Inicie sessão para guardar este imóvel e aceder à sua lista de favoritos em qualquer dispositivo.
Área útil : 60 m²
FAÇA CONNOSCO O MELHOR NEGÓCIO Excelente oportunidade para instalar o seu negócio! Loja com 60 m², espaço funcional e versátil, ideal para comércio ou serviços. Boa luminosidade natural e fácil adaptação a diferentes conceitos comerciais. Localização com boa acessibilidade, adequada para quem procura visibilidade e comodidade. Renda mensal: 650€ Condições de pagamento: 2 rendas 1 caução Uma oportunidade a não perder para dar início ou expandir o seu negócio em Aveiro. Contacte-nos para mais informações ou para agendar a sua visita! Tratamos do seu processo de crédito, sem burocracias apresentando as melhores soluções para cada cliente. Intermediário de crédito certificado pelo Banco de Portugal com o nº 0001802. Ajudamos com todo o processo! Entre em contacto connosco ou deixe-nos os seus dados e entraremos em contacto assim que possível! EA98019
AMI: 8989
Ref. Externa: EA98019
Id: 1672171
Inicie sessão para guardar este imóvel e aceder à sua lista de favoritos em qualquer dispositivo.
Área útil : 100 m²
Procura o espaço ideal para instalar a sua marca em Aveiro? Imagine-se no coração da ação, junto à prestigiada avenida dr Lourenço Peixinho Com 100m² de área, dividida por 2 espaços versáteis e um WC , este imóvel é a tela em branco perfeita para comércio ou serviços que não abdicam de excelência.Porquê escolher esta localização?+++ Ponto Estratégico: Situada numa zona de passagem obrigatória, entre o dinamismo do Centro e a proximidade à zona histórica e estação.+++Acessibilidade Total: Estacionamento e acesso para os seus clientes, garantindo conveniência e fluxo constante.+++Versatilidade: Layout ideal para lojas de retalho, consultórios, ateliers criativos ou escritórios de serviços profissionais.Mais do que uma loja, é o posicionamento que o seu negócio precisa para ser notado. Num mercado onde a localização é tudo.? Interessado? Envie mensagem privada ou ligue para o 912159434 para mais informações e agende a sua visita.Predimed Imobiliária, Mediação Imobiliária, Lda.Avenida Brasil 43, 12º Andar, 1700-062 LisboaLicença AMI nº 22503Pessoa Coletiva nº 517 239 345Seguro Responsabilidade Civil: Nº de Apólice RC65379424 Fidelidade
AMI: 13558
Ref. Externa: 058701
Id: 1671728
Inicie sessão para guardar este imóvel e aceder à sua lista de favoritos em qualquer dispositivo.
1.400 €
1 WCs
Área bruta : 220 m²
Esta loja para arrendamento em Aradas, Aveiro, destaca-se pela sua excelente localização estratégica, inserida numa zona de elevada dinâmica comercial e proximidade a serviços essenciais. Imóvel distribuído por 2 pisos, oferecendo uma separação funcional ideal entre áreas de atendimento e zonas privadas ou administrativas. Composta por várias salas/gabinetes, é versátil para diferentes ramos de negócio, desde escritórios e serviços a clínicas ou centros de estética. Imóvel em bom estado, pronto a habitar, com acabamentos cuidados e infraestruturas operacionais. Possui montras amplas, garantindo excelente exposição solar e visibilidade para o exterior, fundamental para captação de clientes. ******************************************************************************************************************************************************** This shop for rent in Aradas, Aveiro, stands out for its excellent strategic location, situated in a highly dynamic commercial area and close to essential services. The property is distributed over 2 floors, offering an ideal functional separation between customer service areas and private or administrative zones. Comprising several rooms/offices, it is versatile for different business sectors, from offices and services to clinics or beauty centers. The property is in good condition, ready to move into, with careful finishing and operational infrastructure. It has large shop windows, guaranteeing excellent sun exposure and visibility to the outside, essential for attracting customers. Ce local commercial à louer à Aradas, Aveiro, bénéficie d'une situation stratégique exceptionnelle, au cœur d'une zone commerciale très dynamique et à proximité immédiate des services essentiels. Réparti sur deux étages, il offre une séparation fonctionnelle idéale entre les espaces d'accueil et les zones privées ou administratives. Composé de plusieurs pièces/bureaux, il se prête à de multiples activités, des bureaux et services aux cliniques ou instituts de beauté. En excellent état et prêt à être occupé, il présente des finitions soignées et une infrastructure opérationnelle optimale. Sa large vitrine garantit une excellente luminosité et une visibilité optimale, atouts essentiels pour attirer la clientèle. ******************************************************************************************************************************************************** Dieses Ladenlokal zur Miete in Aradas, Aveiro, besticht durch seine hervorragende Lage in einem dynamischen Geschäftsviertel und in unmittelbarer Nähe zu wichtigen Einrichtungen. Die Immobilie erstreckt sich über zwei Etagen und bietet eine optimale Trennung zwischen Kundenservice- und Verwaltungsbereichen. Mit mehreren Räumen/Büros ist sie vielseitig nutzbar - von Büros und Dienstleistungsbetrieben bis hin zu Kliniken oder Kosmetikstudios. Das Objekt befindet sich in einem guten Zustand und ist sofort bezugsfertig. Es wurde sorgfältig ausgebaut und verfügt über eine moderne Betriebsinfrastruktur. Große Schaufenster garantieren optimale Sonneneinstrahlung und gute Sichtbarkeit - ideal, um Kunden anzulocken. ********************************************************************************************************************************************************
AMI: 12919
Ref. Externa: AV26/020
Id: 1645313
Inicie sessão para guardar este imóvel e aceder à sua lista de favoritos em qualquer dispositivo.
Área útil : 50 m²
Loja comercial, com bastante luminosidade, e bem localizada: o local perfeito para o seu negócio!! A loja é composta por espaço amplo, com acabamentos de qualidade, transmitindo conforto. O teto tem iluminação embutida e ar condicionado, garantindo um ambiente agradável. A mesma dispõe de uma casa de banho moderna e funcional. Cada detalhe foi pensado para criar um ambiente que inspira, o pavimento com efeito de madeira transmite sofisticação, enquanto as paredes brancas e as janelas inundam o espaço de luz natural. Este imóvel não é apenas uma loja, é uma tela em branco pronta para acolher o seu projeto. Para mais informações, não hesite em contactar!
AMI: 11813
Ref. Externa: 1689-25MJ
Id: 1629020
Inicie sessão para guardar este imóvel e aceder à sua lista de favoritos em qualquer dispositivo.
1.100 €
Área bruta : 180 m²
Loja | Escritório situado na Avenida Europa (EN 109) com 180 m2 e lugares de estacionamento. Imóvel bem localizada e com bastante visibilidade. Com montra e bastante luminosidade. Constituída por um espaço amplo e quarto de banho. Venha conhecer! Sobre nós: A equipa da LITORALCASA inicia todos os dias de trabalho com o objetivo de encontrar a compatibilidade perfeita entre quem vende e quem pretende comprar. O nosso foco centra-se na mediação imobiliária; por isso todos os dias fazemos o cruzamento entre os imóveis em carteira que nos são confiados e quem os procura. Isto aplica-se à compra, venda, permuta, trespasse, cedências de posição e arrendamento. Encaramos esta missão de uma forma muito dedicada e temos como principal objetivo auxiliar a concretizar as aspirações de investimento imobiliário dos nossos clientes. O que nos motiva e diferencia é a proximidade com que nos relacionamos com o mercado e as pessoas que o compõem. Temos um conhecimento muito próximo da dinâmica da oferta e procura, porque estamos em constante contacto com esta componente social e humana. Estes aspetos dão-nos todo o conhecimento necessário para fazer um acompanhamento de proximidade em todas as fases do seu processo de aquisição imobiliária. Missão: A nossa missão consiste em realizar o sonho imobiliário dos nossos clientes, garantindo para isso um serviço exclusivo, transparente, próximo e completo de modo a abranger todas as etapas necessárias desde a compra até à venda ou arrendamento dos imóveis. O nosso propósito é encontrar a melhor solução para o seu lar ou para o seu investimento. Visão: Fomentar o desenvolvimento de uma rede virtuosa de compra, venda e arrendamento no setor imobiliário capaz de atrair e fidelizar clientes, bem como de satisfazer as mais diversas necessidades imobiliárias dos nossos clientes. Valores · Ética · Rigor · Respeito · Lealdade · Conhecimento · Proximidade · Transparência
AMI: 13825
Ref. Externa: ARR-3950
Id: 1600155
Inicie sessão para guardar este imóvel e aceder à sua lista de favoritos em qualquer dispositivo.
1 WCs
Área bruta : 124 m²
Excelente oportunidade para instalar o seu negócio numa zona central e de grande movimento em Aveiro. Loja com 123,4 m² de área bruta, destacando-se pela ampla montra, que proporciona excelente visibilidade e exposição comercial. O espaço beneficia de muita luz natural e está distribuído por uma sala ampla e principal, dois escritórios, uma casa de banho e uma sala adicional, permitindo uma utilização versátil para comércio, serviços ou atendimento ao público. Inserida numa localização privilegiada, junto de comércio, serviços e transportes públicos, com elevada circulação pedonal e fácil acessibilidade. Ideal para quem procura visibilidade, funcionalidade e uma localização estratégica para o seu negócio. Dê destaque à sua marca no coração de Aveiro. A CASA DA PORTELA Imobiliária – É uma empresa de mediação imobiliária e Intermediação de Crédito criada em 2013. Os seus sócios fundadores possuem um sólido conhecimento acumulado desde 1994 sobre o mercado imobiliário, mantendo-se atentos às suas tendências e evolução, e com uma Intermediação de Crédito registado no Banco de Portugal com o nº 0004889. A empresa começou por centrar-se na região do Grande Porto, conseguindo, desde o início, um grande volume de transações. O sucesso do modelo de negócio fez com que a marca Casa da Portela imobiliária chegasse em 2022 a Vila Nova de Famalicão. A Casa da Portela imobiliária pretende valorizar o trabalho dos consultores e prestar um serviço de excelência aos seus clientes, proporcionando um serviço de qualidade e tranquilidade, de forma a realizar bons negócios, garantindo a satisfação dos nossos clientes e parceiros. Para atingir esse propósito, dispomos de uma equipa multidisciplinar de profissionais qualificados, com vasta experiência em mediação imobiliária que nos permite apresentar e sugerir as melhores alternativas para os seus objetivos de venda, de arrendamento, ou de investimento imobiliário. Possuímos uma rede de contatos privilegiada que nos permite potenciar a divulgação, a gestão e a concretização de negócio do seu imóvel em vários formatos. 3 Pilares fundamentais da Casa da Portela: Missão A nossa missão é orientar os nossos objetivos excecionais (financeiros, humanos e sociais) na nossa organização e uni-los aos nossos não menos excecionais clientes, atendendo sempre às suas necessidades, desejos e expectativas. A Casa da Portela imobiliária nasceu para que fosse possível prestar um acompanhamento e apoio contínuos, explicação e esclarecimento de dúvidas, sobre todo o processo de compra, venda ou arrendamento de imóveis em Portugal. A concretização de tudo isto faz com que a nossa máxima ambição seja sermos os melhores no mercado imobiliário. Visão A nossa visão é sermos a empresa de referência no mercado imobiliário, assim como sermos reconhecidos como a melhor opção para os nossos clientes. Para isso, fazemos sempre por manter um espírito inovador e de liderança que nos levará ao reconhecimento pela nossa excelência no mercado. Valores Os nossos valores são sempre o conjunto das nossas atitudes e crenças, que envolvem todas as pessoas da organização, para que, em uníssono, consigamos atingir os resultados de excelência a que nos propomos sempre que são baseados na Qualidade, Profissionalismo, Responsabilidade, Respeito e Inovação.
AMI: 10340
Ref. Externa: 1119921
Id: 1593432
Inicie sessão para guardar este imóvel e aceder à sua lista de favoritos em qualquer dispositivo.
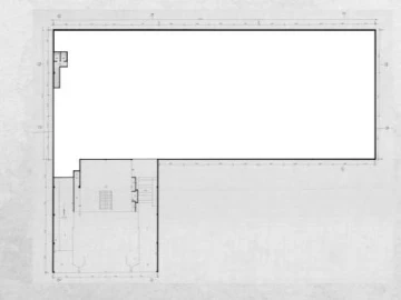
12.000 €
Área bruta : 3921 m²
Excelente armazém de 3 pisos (cave, rés do chão e 1º andar), com mais de 1200m2 cada piso. 2 armazéns com 3.720 m²/cada de área, são uma magnifica oportunidade para quem procura um espaço flexível e bem localizado em Aveiro. Com óptimos acessos a estradas nacionais e autoestradas, oferece uma oportunidade para investidores ou empresários. Cada armazém com as seguintes características: - Cave com 49 lugares de estacionamento para comodidade de clientes, funcionários e visitantes. Elevador de acesso aos pisos superiores para movimentação de veículos e mercadorias. - Piso 0 (Rés do Chão): Amplo e bem iluminado, com abundante luz natural. - 2 instalações sanitárias. - Piso 1 (1º Andar): Igualmente amplo e luminoso, com janelas amplas, que permitem a entrada de luz. - 2 instalações sanitárias. Em frente aos 2 pavilhões: 32 lugares de estacionamento em espinha. CASAS IN PORTO - THE BEST IN CLASS
AMI: 12820
Ref. Externa: Pavilhão_InAveiro_4876
Id: 1577336
Inicie sessão para guardar este imóvel e aceder à sua lista de favoritos em qualquer dispositivo.
1 WCs
Área bruta : 162 m²
Loja com 162 m2 situada na Cidadela de Aveiro, perto do IMTT A loja é constituída casa de banho, montra, 2 pisos amplos, cave e R/C, com duas frentes. Cada piso é constituído por 81 m2. Situada em zona residencial com bastante fluxo de pessoas, perto de padarias/pastelarias, transportes públicos, restaurantes, situado a 1,5 km do centro de Aveiro, a 1 Km do Aveiro Center, a 800 metros da Zona Industrial de Aveiro. Venha conhecer!
AMI: 13825
Ref. Externa: ARR-4164
Id: 1573391
Inicie sessão para guardar este imóvel e aceder à sua lista de favoritos em qualquer dispositivo.
1 WCs
Área bruta : 180 m²
Em zona de elevado tráfego, disponível para arrendamento com área total de construção de 180m2. Esta loja possui uma montra envidraçada bastante grande, e é compostas da seguinte forma; - Espaço amplo e versátil para melhor adaptação ao negócio; - Casa de banho, - Arrumo; Próxima de cafés, pastelarias, farmácia, bancos, comércio e serviços, com todas as valências essenciais na envolvência, este espaço fica inserido numa zona com excelente visibilidade. Área Bruta Privativa: 179,9m2 Área Bruta Construção: 180m2 Área Útil: 175,78m2 LU: 235/2010 Contate-nos e venha conhecer o local ideal para o seu negócio! Ref.: 1012406/25 GL
AMI: 16858
Ref. Externa: 1012406/25 GL
Id: 1535309
Inicie sessão para guardar este imóvel e aceder à sua lista de favoritos em qualquer dispositivo.
1 WCs
Área bruta : 405 m²
Em zona de elevado tráfego, disponível para arrendamento duas lojas contíguas, interligadas e com área total de construção de 405,50m2. Estas lojas possuem uma montra envidraçada bastante grande, e são compostas da seguinte forma; - Espaço amplo e versátil para melhor adaptação ao negócio; - Duas casas de banho, - Arrumo; - Mezanine; Próxima de cafés, pastelarias, farmácia, bancos, comércio e serviços, com todas as valências essenciais na envolvência, este espaço fica inserido numa zona com excelente visibilidade. Área Bruta Privativa: 405,50m2 Área Bruta Construção: 405,50m2 Área Útil: 396m2 LU:235/2010 Contate-nos e venha conhecer o local ideal para o seu negócio! Ref.: 1012406A/25 GL
AMI: 16858
Ref. Externa: 1012406A/25 GL
Id: 1535307
Inicie sessão para guardar este imóvel e aceder à sua lista de favoritos em qualquer dispositivo.
1 WCs
Área bruta : 147 m²
Loja em Aveiro, Glória e Vera Cruz, na Avenida Dr. Lourenço Peixinho. Inserido em zona privilegiada, esta loja beneficia de uma localização central em zona de grande movimento, com excelente visibilidade. A Loja está licenciada para comércios e serviços, tem 147 m2 de área e uma casa de banho privativa. Excelente escolha para quem quer abrir ou expandir o seu negócio com presença forte no centro da cidade de Aveiro Marque a sua visita! CE A Ref. 7375 Store in Aveiro, Glória and Vera Cruz, on Avenida Dr. Lourenço Peixinho. Located in a prime area, this shop benefits from a central location in a high-traffic zone, with excellent visibility. The shop is licensed for commerce and services, has an area of 147 sqm and a private bathroom. This is an excellent choice for those looking to open or expand their business with a strong presence in the City centre of Aveiro. Book your visit! CE A Ref. 7375
AMI: 4439
Ref. Externa: 7445
Id: 1513429
Inicie sessão para guardar este imóvel e aceder à sua lista de favoritos em qualquer dispositivo.
2 WCs
Área bruta : 68 m²
Loja Aveiro, Glória e Vera Cruz, localizado no centro da cidade em zona de bastante passagem, junto a serviços e comércios. A loja tem dois pisos, 2 montras tem um hall de receção, sala, está dividido em vários gabinetes individuais, tem área de armazém/arquivo, e duas casas de banho. Está equipado com ar condicionado. Marque a sua visita! CE B- Ref. 7238 Store in Aveiro, Glória e Vera Cruz, located in the city center in a high-traffic area, close to services and shops. The store has two floors, consisting of a reception hall, a meeting room, and is divided into several individual offices. It also has a storage/archive area and two bathrooms. The store is equipped with air Conditioning. Schedule your visit! Energy Certification: B- Ref. 7238
AMI: 4439
Ref. Externa: 7238
Id: 1488853
Inicie sessão para guardar este imóvel e aceder à sua lista de favoritos em qualquer dispositivo.
Estes agentes são especialistas nesta zona:
Inicie sessão para ocultar este imóvel das suas pesquisas e manter a sua lista de resultados organizada.
© Copyright 2023 | CASACERTA. All rights reserved
Guardar favoritos
Este imóvel foi guardados nos seus favoritos com sucesso.
Para poder guardar pesquisa deverá ter a sua sessão iniciada.
Caso não tenha uma conta, deverá criar uma.
A sua pesquisa foi guardada com sucesso!
Este site utiliza cookies. Ao navegar no site estará a consentir a sua utilização.
Para mais informações sobre os cookies pode consultar a
política de privacidade.