Lista
Comprar
Arrendar
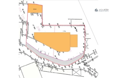
Área de terreno : 9000 m²
Terreno com 9.000 m² localizado em Guilhufe, Penafiel, com capacidade construtiva de 4.500 m², ideal para desenvolvimento habitacional ou projeto de investimento. Inserido numa zona tranquila e com boa envolvente residencial, oferece excelentes acessos e grande conveniência. A Autoestrada A4 fica a apenas 2–5 minutos, garantindo ligações rápidas ao Porto e ao interior. Na envolvente, encontra-se uma boa oferta de serviços essenciais: Hospital Padre Américo / Centro Hospitalar do Tâmega e Sousa – 5 a 10 minutos Centro de Penafiel – 5 a 7 minutos Escola Básica de Guilhufe – menos de 5 minutos Agrupamento de Escolas Joaquim de Araújo – muito próximo Comércio local, transportes e serviços da freguesia nas imediações Trata-se de uma localização prática, com excelente acessibilidade e procura crescente, ideal para quem pretende desenvolver um projeto com boa valorização futura. Gostamos de ajudar os compradores a encontrar a casa de sonho, o seu negócio e o seu melhor investimento. Por este motivo trabalhamos com cada cliente de forma personalizada e dedicamos o tempo necessário de forma a entender as necessidades do mesmo. Adaptamo-nos a trabalhar com pessoas que procuram investir no seu futuro pessoal e profissional e estimamos mostrar-lhe de que forma o pode fazer. QUANDO OPTA pelos nossos serviços tem acesso a: - Um agente imobiliário com a melhor formação do mercado - Visualização das casas com antecedência; - Informação sobre novas casas no mercado; - Informação sobre outras casas vendidas e quais os valores das mesmas; - Apresentação das melhores soluções financeiras para a aquisição do imóvel; - Apoio no processo de intermediação de crédito (se requerido); - Presença na avaliação do imóvel; - Realização do Certificado Energético; - Apoio na marcação e realização do CPCV (Contrato Promessa Compra e Venda); - Apoio na marcação e realização da escritura pública de compra e venda.
AMI: 15715
Ref. Externa: T/01219
Id: 1463767
Inicie sessão para guardar este imóvel e aceder à sua lista de favoritos em qualquer dispositivo.
Área de terreno : 1200 m²
Terreno com 1.200 m², localizado na freguesia de Guilhufe, Penafiel, inserido numa zona calma e com boa envolvente residencial. Beneficia de excelente acessibilidade, estando a 2–5 minutos da A4, o que permite ligações rápidas ao Porto e ao interior. Na proximidade encontram-se serviços essenciais, como o Hospital Padre Américo (5–10 minutos), o Centro de Penafiel (5–7 minutos), a Escola Básica de Guilhufe e o Agrupamento de Escolas Joaquim de Araújo, ambos a poucos minutos. A zona conta ainda com comércio local, transportes e restantes serviços da freguesia. Ideal para quem procura um terreno bem localizado, com boa exposição e potencial para construção, mediante consulta ao regulamento municipal. Gostamos de ajudar os compradores a encontrar a casa de sonho, o seu negócio e o seu melhor investimento. Por este motivo trabalhamos com cada cliente de forma personalizada e dedicamos o tempo necessário de forma a entender as necessidades do mesmo. Adaptamo-nos a trabalhar com pessoas que procuram investir no seu futuro pessoal e profissional e estimamos mostrar-lhe de que forma o pode fazer. QUANDO OPTA pelos nossos serviços tem acesso a: - Um agente imobiliário com a melhor formação do mercado - Visualização das casas com antecedência; - Informação sobre novas casas no mercado; - Informação sobre outras casas vendidas e quais os valores das mesmas; - Apresentação das melhores soluções financeiras para a aquisição do imóvel; - Apoio no processo de intermediação de crédito (se requerido); - Presença na avaliação do imóvel; - Realização do Certificado Energético; - Apoio na marcação e realização do CPCV (Contrato Promessa Compra e Venda); - Apoio na marcação e realização da escritura pública de compra e venda.
AMI: 15715
Ref. Externa: T/01220
Id: 1463763
Inicie sessão para guardar este imóvel e aceder à sua lista de favoritos em qualquer dispositivo.
Área de terreno : 1480 m²
Terreno rústico com 1.480 m², localizado na freguesia de Guilhufe, Penafiel. Inserido numa zona tranquila e com boa exposição solar, trata-se de uma excelente oportunidade para cultivo agrícola, hortas, pequenas plantações ou exploração de lazer. Situa-se a 2–5 minutos da A4, garantindo acessos rápidos, e encontra-se próximo de serviços essenciais — como o Hospital Padre Américo (5–10 minutos), o Centro de Penafiel (5–7 minutos), escolas e comércio local. A envolvente é predominantemente rural e residencial, oferecendo um ambiente calmo e adequado à atividade agrícola. Ideal para quem procura um terreno acessível, bem localizado e com boas condições para cultivo ou projeto agrícola próprio. Gostamos de ajudar os compradores a encontrar a casa de sonho, o seu negócio e o seu melhor investimento. Por este motivo trabalhamos com cada cliente de forma personalizada e dedicamos o tempo necessário de forma a entender as necessidades do mesmo. Adaptamo-nos a trabalhar com pessoas que procuram investir no seu futuro pessoal e profissional e estimamos mostrar-lhe de que forma o pode fazer. QUANDO OPTA pelos nossos serviços tem acesso a: - Um agente imobiliário com a melhor formação do mercado - Visualização das casas com antecedência; - Informação sobre novas casas no mercado; - Informação sobre outras casas vendidas e quais os valores das mesmas; - Apresentação das melhores soluções financeiras para a aquisição do imóvel; - Apoio no processo de intermediação de crédito (se requerido); - Presença na avaliação do imóvel; - Realização do Certificado Energético; - Apoio na marcação e realização do CPCV (Contrato Promessa Compra e Venda); - Apoio na marcação e realização da escritura pública de compra e venda.
AMI: 15715
Ref. Externa: T/01221
Id: 1463762
Inicie sessão para guardar este imóvel e aceder à sua lista de favoritos em qualquer dispositivo.
Área de terreno : 4500 m²
CONCEIÇÃO RAMOS. Consultora Imobiliária. Telefone: 9"_1"_7"_4"_5"_8"_7"_4"_6_ (custo de chamada para rede nacional) E-mail: [email protected] Terreno para Venda – Rio de Moinhos, Penafiel Apresento-lhe este excelente terreno com 4.500 m². Localizado na freguesia de Rio de Moinhos, no concelho de Penafiel. Trata-se de um terreno rústico, com viabilidade urbanística classificada como tipo C4, o que permite a construção de moradias unifamiliares, em zona de baixa densidade. Ideal para quem procura investir num projeto habitacional ou desenvolver um loteamento em zona calma, com bons acessos e excelente exposição solar. Características principais: - Área total: 4.500 m² - Classificação: Rústico com viabilidade C4 - Zona tranquila e com bons acessos - Potencial de construção habitacional - Excelente oportunidade para investidores ou particulares Não perca esta oportunidade de transformar este terreno na sua casa de sonho. Trabalhar com o Grupo RE/MAX +VANTAGEM é preferir estar com os melhores PROFISSIONAIS e mais EFICIENTES do sector imobiliário. Onde encontra as mais adequadas soluções para o que procura e a certeza de ter acompanhamento em todo o percurso de compra. CE. F AMI 7772 Contacto 917 458 746
AMI: 7772
Ref. Externa: T-29261
Id: 1313629
Inicie sessão para guardar este imóvel e aceder à sua lista de favoritos em qualquer dispositivo.
Sob consulta
Área útil : 6700 m²
Terreno bem localizado e com bons acessos
AMI: 6244
Ref. Externa: SÒL_699
Id: 1297397
Inicie sessão para guardar este imóvel e aceder à sua lista de favoritos em qualquer dispositivo.
Área de terreno : 1840 m²
Terrenos rústicos, em Vila Cova - PenafielApresentamos-lhe 3 terrenos agrícolas com uma área total de 1840 m2, com excelente potencial para cultivo!Terrenos planos e com boa exposição solar, localizados em zonas de fácil acesso e com grandes possibilidades para diversos tipos de produção.Referência interna do imóvel: 0125049Menfinvest Trading, LdaLicença AMI nº:15215Intermediário de Crédito Vinculado nº: 0007189Quem SomosO nosso projeto nasceu com o objetivo de trazer diferenciação e acréscimo ao mercado imobiliário, tendo como principal premissa a satisfação dos nossos clientes. Em 2019, iniciamos a nossa atividade com a abertura da loja em Penafiel e fruto da nossa expansão continua, pode também encontrar-nos em Oliveira de Azeméis e Castelo de Paiva.Somos intermediários de crédito autorizados pelo Banco de Portugal e, juntamente com os nossos profissionais, ajudamos a obter as propostas de mercado mais adequadas para os nossos clientes. De forma cómoda e tranquila, tratamos de todo o processo, desde o primeiro contacto até ao dia da escritura, tornando-se assim mais um Sorriso Gold.Se procura um serviço capaz de mudar a sua rotina, contacte-nos.
AMI: 15215
Ref. Externa: 0125049
Id: 1274213
Inicie sessão para guardar este imóvel e aceder à sua lista de favoritos em qualquer dispositivo.
Área de terreno : 50000 m²
DL25-48. . Oportunidade Única de Investimento Florestal e Energético a 40 Minutos do Porto!. . Apresentamos um terreno florestal com 50.000 m2 (5 hectares), situado na tranquila freguesia de Sebolido, no concelho de Penafiel – a apenas cerca de 40 minutos do Porto.. . Com excelente exposição solar nascente/poente, esta propriedade destaca-se pelo seu vasto potencial para diversos tipos de exploração sustentável:. - Produção Florestal – Ideal para a plantação de eucalipto, uma cultura de elevado rendimento e grande procura no setor da produção de pasta de papel.. - Energia Renovável – A orientação solar torna-o perfeito para projetos de instalação de painéis fotovoltaicos, promovendo a produção de energia limpa.. - Projetos Agrícolas e Ambientais – Espaço amplo e fértil para atividades agrícolas, reflorestação ou iniciativas ecológicas.. . Principais Características:. - Localização estratégica, a menos de uma hora do Porto. - Exposição solar privilegiada (nascente/poente). - Terreno florestal com elevado potencial de valorização. - Bons acessos e envolvência natural tranquila. . Se procura um investimento sólido, sustentável e com múltiplas possibilidades de rentabilização, este terreno é a escolha certa.. . Contacte-nos já e agende a sua visita!. Uma excelente oportunidade espera por si em Sebolido.
AMI: 18696
Ref. Externa: DL25-48/11654
Id: 1148031
Inicie sessão para guardar este imóvel e aceder à sua lista de favoritos em qualquer dispositivo.
Área de terreno : 818 m²
Terreno de construção com 812m2 sito na Rua do Ribeiral, freguesia de Santiago de Subarrifana em Penafiel. O terreno permite construir 1 moradia de 2 pisos. Muito bem localizado, a 2 minutos da estação de comboios de Penafiel, 2 minutos central de autocarros, 2 minutos da entrada da auto estrada, próximo a todo o tipo de serviços e comércio. Para além da excelente localização, o terreno fica numa rua muito sossegada com boas vistas.
AMI: 8780
Ref. Externa: 34
Id: 1140188
Inicie sessão para guardar este imóvel e aceder à sua lista de favoritos em qualquer dispositivo.
Área de terreno : 3000 m²
Terreno rústico, em Galegos - PenafielEstá à procura de um terreno com 3000m2 para explorar? Temos a oportunidade perfeita para si!Terreno com eucaliptal: Ideal para quem pretende aproveitar a madeira, ótima opção para quem procura sustentabilidade.Localização tranquila e natural: Aprecie o clima fresco e desfrute de um ambiente calmo.Referência interna do imóvel: 0125025Menfinvest Trading, LdaLicença AMI nº:15215Intermediário de Crédito Vinculado nº: 0007189Quem SomosO nosso projeto nasceu com o objetivo de trazer diferenciação e acréscimo ao mercado imobiliário, tendo como principal premissa a satisfação dos nossos clientes. Em 2019, iniciamos a nossa atividade com a abertura da loja em Penafiel e fruto da nossa expansão continua, pode também encontrar-nos em Oliveira de Azeméis e Castelo de Paiva.Somos intermediários de crédito autorizados pelo Banco de Portugal e, juntamente com os nossos profissionais, ajudamos a obter as propostas de mercado mais adequadas para os nossos clientes. De forma cómoda e tranquila, tratamos de todo o processo, desde o primeiro contacto até ao dia da escritura, tornando-se assim mais um Sorriso Gold.Se procura um serviço capaz de mudar a sua rotina, contacte-nos.
AMI: 15215
Ref. Externa: 0125025
Id: 1127124
Inicie sessão para guardar este imóvel e aceder à sua lista de favoritos em qualquer dispositivo.
Área de terreno : 25092 m²
Apresentamos para venda um excelente terreno rústico com uma área total de 29.092 m², localizado na freguesia de Castelões, Penafiel. Este terreno é ideal para quem procura um espaço com vasto potencial para exploração agrícola, florestal, ou para a criação de um refúgio rural. O terreno encontra-se em uma área tranquila, rodeada pela natureza, oferecendo uma excelente oportunidade para quem busca um estilo de vida mais ligado ao campo ou para investidores que desejem apostar no desenvolvimento de projetos sustentáveis. As características rústicas do local fazem deste espaço uma oportunidade única, com grande potencial de valorização.
AMI: 21174
Ref. Externa: DSPMCANAVMA16
Id: 881425
Inicie sessão para guardar este imóvel e aceder à sua lista de favoritos em qualquer dispositivo.
Área de terreno : 528 m²
Terreno Rústico c/ 528m2 localizado em Abragão, PenafielTerreno rústico situado numa zona calma habitacional, rodeado de espaços verdes, tornando-o no local ideal para quem deseja viver em harmonia com a natureza e com bom acessos.O terreno com uma área total de 528m2 após destaqueOferece espaço suficiente para a construção da sua casa de sonho, jardim e outras instalações que deseje implementar.- Localizado junto a estrada EN320- 3.10 Km da Praia fluvial de Luzim- 11.5 Km do Centro de Penafiel- 14 Km Hospital Padre Américo- 14.2 Km entrada Autoestrada A4 Penafiel JC LEÃO ImobiliáriaGarra, Determinação e SoluçãoConsigo desde 2010Compramos, Vendemos, Ajudamos a Financiar o seu Imóvel.Intermediário de Crédito aprovado pelo Banco de Portugal.
AMI: 9075
Ref. Externa: B240053
Id: 569959
Inicie sessão para guardar este imóvel e aceder à sua lista de favoritos em qualquer dispositivo.
Área de terreno : 529 m²
Terreno Rústico c/ 529m2 localizado em Abragão, PenafielTerreno rústico situado numa zona calma habitacional, rodeado de espaços verdes, tornando-o no local ideal para quem deseja viver em harmonia com a natureza e com bom acessos.O terreno com uma área total de 529m2 após destaqueOferece espaço suficiente para a construção da sua casa de sonho, jardim e outras instalações que deseje implementar.- Localizado junto a estrada EN320- 3.10 Km da Praia fluvial de Luzim- 11.5 Km do Centro de Penafiel- 14 Km Hospital Padre Américo- 14.2 Km entrada Autoestrada A4 Penafiel JC LEÃO ImobiliáriaGarra, Determinação e SoluçãoConsigo desde 2010Compramos, Vendemos, Ajudamos a Financiar o seu Imóvel.Intermediário de Crédito aprovado pelo Banco de Portugal.
AMI: 9075
Ref. Externa: B240052
Id: 412022
Inicie sessão para guardar este imóvel e aceder à sua lista de favoritos em qualquer dispositivo.
Área de terreno : 5296 m²
Terreno rústico no concelho de Penafiel com 5 296 metros quadrados.Situado em Luzim, com vistas sobre o Rio Tâmega.Existem mais terrenos para venda nesta localização.Consulte-nos para saber mais informações.Frontal, desde 1990.Carácter e Competência.--A FRONTAL distingue-se pela amplitude no serviço de qualidade prestado ao cliente e encara sempre os desafios com rigor e frontalidade.Segmento Residencial - conta com uma vasta equipa de comerciais, dinâmica e ambiciosa que tem por missão prestar um serviço de excelência, alicerçada numa vasta experiência do mercado, respeitando os mais elevados padrões de ética, descrição e integridade, contribuindo assim para o crescimento da marca e da satisfação dos seus clientes.Apoiados por um departamento autónomo, trata de todos os processos administrativos e de financiamento acompanhando o cliente até á escritura.Através da sua rede de Sucursais, Know-How, Dinâmica e Inovação Comercial, apoiada em ferramentas de Marketing, a Frontal responde eficazmente aos desafios que os seus clientes e parceiros possam lançar.Segmento Empresarial - concentra-se na oferta de soluções diferenciadas a empresas e a clientes empresariais que procuram um produto dotado de um alto grau de especificidade.Segmento Empreendimentos – tem o seu foco especializado na comercialização de Empreendimentos, contemplando um Serviço Global de Venda, apoiado numa Estratégia de Marketing e Estudo de Mercado, definindo um posicionamento claro e ajustado à dinâmica da oferta e da procura tendo como foco superar as suas expectativas.
AMI: 9590
Ref. Externa: FPS-27431D
Id: 402245
Inicie sessão para guardar este imóvel e aceder à sua lista de favoritos em qualquer dispositivo.
Área de terreno : 1585 m²
Terreno rústico no concelho de Penafiel com 1 585 metros quadrados.Situado em Luzim, com vistas sobre o Rio Tâmega.Existem mais terrenos para venda nesta localização.Consulte-nos para saber mais informações.Frontal, desde 1990.Carácter e Competência.--A FRONTAL distingue-se pela amplitude no serviço de qualidade prestado ao cliente e encara sempre os desafios com rigor e frontalidade.Segmento Residencial - conta com uma vasta equipa de comerciais, dinâmica e ambiciosa que tem por missão prestar um serviço de excelência, alicerçada numa vasta experiência do mercado, respeitando os mais elevados padrões de ética, descrição e integridade, contribuindo assim para o crescimento da marca e da satisfação dos seus clientes.Apoiados por um departamento autónomo, trata de todos os processos administrativos e de financiamento acompanhando o cliente até á escritura.Através da sua rede de Sucursais, Know-How, Dinâmica e Inovação Comercial, apoiada em ferramentas de Marketing, a Frontal responde eficazmente aos desafios que os seus clientes e parceiros possam lançar.Segmento Empresarial - concentra-se na oferta de soluções diferenciadas a empresas e a clientes empresariais que procuram um produto dotado de um alto grau de especificidade.Segmento Empreendimentos – tem o seu foco especializado na comercialização de Empreendimentos, contemplando um Serviço Global de Venda, apoiado numa Estratégia de Marketing e Estudo de Mercado, definindo um posicionamento claro e ajustado à dinâmica da oferta e da procura tendo como foco superar as suas expectativas.
AMI: 9590
Ref. Externa: FPS-27431C
Id: 402244
Inicie sessão para guardar este imóvel e aceder à sua lista de favoritos em qualquer dispositivo.
Área de terreno : 1058 m²
Terreno rústico no concelho de Penafiel com 1 058 metros quadrados.Situado em Luzim, com vistas sobre o Rio Tâmega.Existem mais terrenos para venda nesta localização.Consulte-nos para saber mais informações.Frontal, desde 1990.Carácter e Competência.--A FRONTAL distingue-se pela amplitude no serviço de qualidade prestado ao cliente e encara sempre os desafios com rigor e frontalidade.Segmento Residencial - conta com uma vasta equipa de comerciais, dinâmica e ambiciosa que tem por missão prestar um serviço de excelência, alicerçada numa vasta experiência do mercado, respeitando os mais elevados padrões de ética, descrição e integridade, contribuindo assim para o crescimento da marca e da satisfação dos seus clientes.Apoiados por um departamento autónomo, trata de todos os processos administrativos e de financiamento acompanhando o cliente até á escritura.Através da sua rede de Sucursais, Know-How, Dinâmica e Inovação Comercial, apoiada em ferramentas de Marketing, a Frontal responde eficazmente aos desafios que os seus clientes e parceiros possam lançar.Segmento Empresarial - concentra-se na oferta de soluções diferenciadas a empresas e a clientes empresariais que procuram um produto dotado de um alto grau de especificidade.Segmento Empreendimentos – tem o seu foco especializado na comercialização de Empreendimentos, contemplando um Serviço Global de Venda, apoiado numa Estratégia de Marketing e Estudo de Mercado, definindo um posicionamento claro e ajustado à dinâmica da oferta e da procura tendo como foco superar as suas expectativas.
AMI: 9590
Ref. Externa: FPS-27431B
Id: 402243
Inicie sessão para guardar este imóvel e aceder à sua lista de favoritos em qualquer dispositivo.
Área de terreno : 751 m²
Terreno rústico no concelho de Penafiel com 751 metros quadrados.Situado em Luzim, com vistas sobre o Rio Tâmega.Existem mais terrenos para venda nesta localização.Consulte-nos para saber mais informações.Frontal, desde 1990.Carácter e Competência.--A FRONTAL distingue-se pela amplitude no serviço de qualidade prestado ao cliente e encara sempre os desafios com rigor e frontalidade.Segmento Residencial - conta com uma vasta equipa de comerciais, dinâmica e ambiciosa que tem por missão prestar um serviço de excelência, alicerçada numa vasta experiência do mercado, respeitando os mais elevados padrões de ética, descrição e integridade, contribuindo assim para o crescimento da marca e da satisfação dos seus clientes.Apoiados por um departamento autónomo, trata de todos os processos administrativos e de financiamento acompanhando o cliente até á escritura.Através da sua rede de Sucursais, Know-How, Dinâmica e Inovação Comercial, apoiada em ferramentas de Marketing, a Frontal responde eficazmente aos desafios que os seus clientes e parceiros possam lançar.Segmento Empresarial - concentra-se na oferta de soluções diferenciadas a empresas e a clientes empresariais que procuram um produto dotado de um alto grau de especificidade.Segmento Empreendimentos – tem o seu foco especializado na comercialização de Empreendimentos, contemplando um Serviço Global de Venda, apoiado numa Estratégia de Marketing e Estudo de Mercado, definindo um posicionamento claro e ajustado à dinâmica da oferta e da procura tendo como foco superar as suas expectativas.
AMI: 9590
Ref. Externa: FPS-27431A
Id: 401818
Inicie sessão para guardar este imóvel e aceder à sua lista de favoritos em qualquer dispositivo.
Área de terreno : 1057 m²
Terreno Rústico c/ 1057m2 localizado em Abragão, PenafielTerreno rústico situado numa zona calma habitacional, rodeado de espaços verdes, tornando-o no local ideal para quem deseja viver em harmonia com a natureza e com bom acessos.O terreno com uma área total de 1057m2 com possibilidade de destaque.Oferece espaço suficiente para a construção da sua casa de sonho, jardim e outras instalações que deseje implementar.- Localizado junto a estrada EN320- 3.10 Km da Praia fluvial de Luzim- 11.5 Km do Centro de Penafiel- 14 Km Hospital Padre Américo- 14.2 Km entrada Autoestrada A4 Penafiel JC LEÃO ImobiliáriaGarra, Determinação e SoluçãoConsigo desde 2010Compramos, Vendemos, Ajudamos a Financiar o seu Imóvel.Intermediário de Crédito aprovado pelo Banco de Portugal.
AMI: 9075
Ref. Externa: B240049
Id: 389439
Inicie sessão para guardar este imóvel e aceder à sua lista de favoritos em qualquer dispositivo.
Estes agentes são especialistas nesta zona:
Inicie sessão para ocultar este imóvel das suas pesquisas e manter a sua lista de resultados organizada.
Guardar favoritos
Este imóvel foi guardados nos seus favoritos com sucesso.
Para poder guardar pesquisa deverá ter a sua sessão iniciada.
Caso não tenha uma conta, deverá criar uma.
A sua pesquisa foi guardada com sucesso!
© Copyright 2023 | CASACERTA. All rights reserved
Este site utiliza cookies. Ao navegar no site estará a consentir a sua utilização.
Para mais informações sobre os cookies pode consultar a
política de privacidade.