Filtros
0 · 180 resultados4 Quartos
Área de terreno : 166 m²
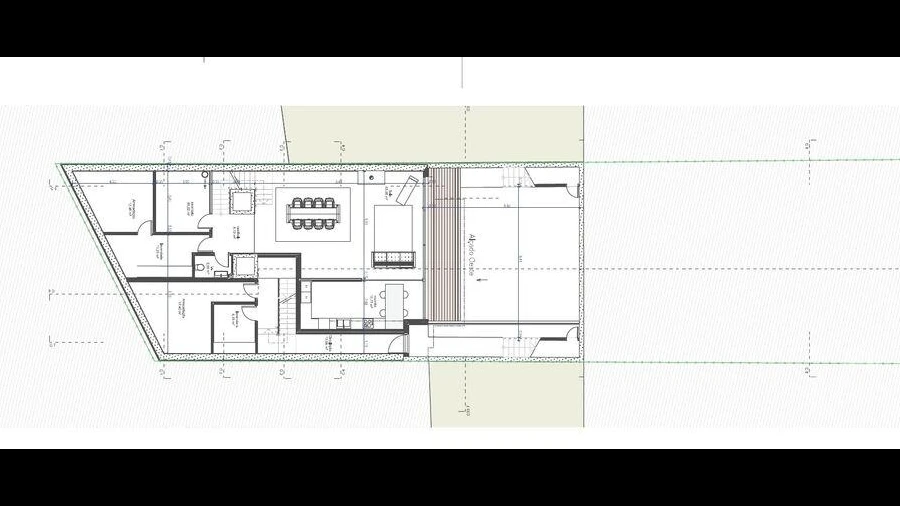
Terreno para Moradia T4 c/ jardim junto ao rio nas CondominhasTerreno para construção de Moradia T4 de 227 m2 distribuída em três pisos com projeto aprovado localizado no Bairro das Condominhas junto à Foz do Douro.O projeto é constituído por:Entrada a sul pelo jardim dianteiro, hall de entrada, uma casa de banho de serviço, seguindo pela direita temos a sala de estar mais à frente a sala de jantar e a cozinha do lado esquerdo, ambas com acesso ao jardim orientado a nascente. No mesmo piso temos o acesso por fora à garagem fechada.Piso - 1 Temos uma suite muito generosa e dois quartos com casa de banho completa de apoio, todos com closetPiso - 2 Temos um bom open space, uma casa de banho e uma varanda a dar para o jardim, que pode ser um quarto, um escritórioA Localização é muito boa e está em franca expansão muito procurada por famílias e onde já existem muitas reabilitações, de notar que está em zona ARU.Conhecido pelo Bairro das Condominhas, em Lordelo do Ouro e Massarelos, caracteriza-se por ruas estreitas, calçadas bem conservadas e áreas verdes, proporcionando um ambiente agradável para os moradores.Nas proximidades, encontram-se diversas infraestruturas, como escolas, clínicas, supermercados e centros comerciais. Bem servida de transportes públicos e está a 1 km a pé do rio, Localização Estratégica Proximidade ao Rio Douro: A poucos minutos da marginal, ideal para caminhadas e atividades ao ar livre. Acessos facilitados: Excelentes ligações rodoviárias e de transporte público, permitindo fácil deslocação para o centro da cidade e outras zonas. Infraestruturas completas: Presença de escolas, centros de saúde, supermercados e comércio local, garantindo conveniência no dia a dia.Ambiente Agradável e Comunidade Ativa Espaços verdes: Áreas ajardinadas e parques nas proximidades proporcionam um ambiente relaxante e familiar. Vida comunitária: Associações de moradores e eventos locais promovem o convívio e a segurança na região. Arquitetura diversificada: Mistura harmoniosa de edifícios históricos e construções modernas, refletindo a evolução urbana do Porto.Visite-nos!
AMI: 19489
Ref. Externa: R21731
Id: 1833029
Inicie sessão para guardar este imóvel e aceder à sua lista de favoritos em qualquer dispositivo.
480.000 €
Área de terreno : 230 m²
Terreno a 800m do Hospital de S. JoãoRef: 2357Terreno com +/- 230m2 a 800m do Polo Universitário do Hospital S. João, Metro e Circunvalação.Com projeto de arquitetura em aprovação para construção de prédios com r/c + 3 andares, ou 8 habitações T1kit + 1 habitação T0.Marque já a sua Visita!Para mais informações contacte-nos!
AMI: 11665
Ref. Externa: 2357
Id: 1833008
Inicie sessão para guardar este imóvel e aceder à sua lista de favoritos em qualquer dispositivo.
Área de terreno : 163 m²
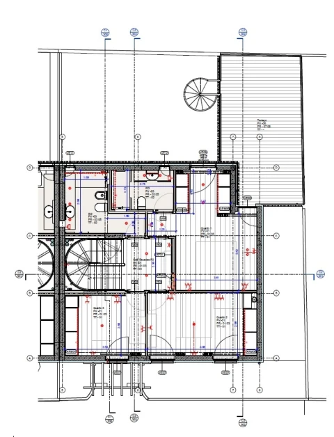
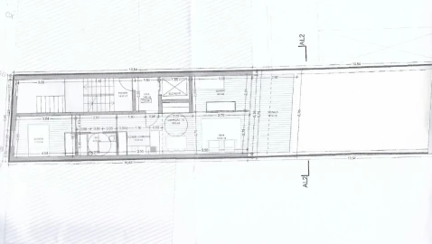
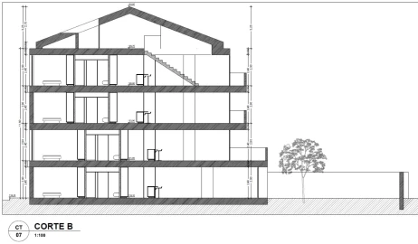
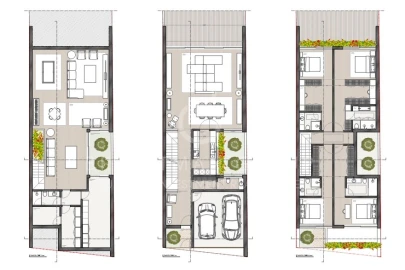
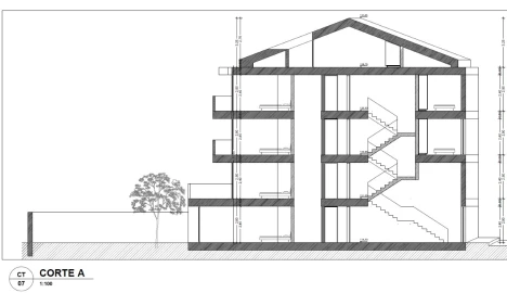
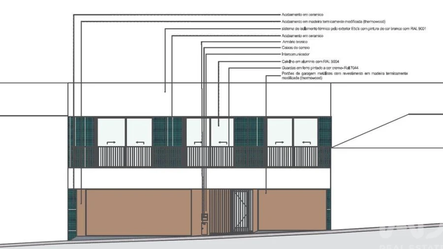
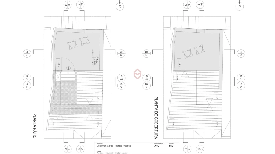
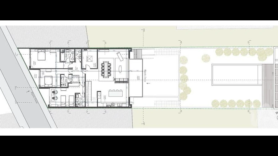
Projeto Aprovado | Eficiência Energética A+ | Localização Premium Viva na serenidade de uma zona residencial consolidada, onde o silêncio e a proximidade à água promovem um estilo de vida saudável em contacto com a natureza. Este terreno urbano, situado a apenas 300 metros do Rio Douro é uma oportunidade rara para construção imediata de uma moradia unifamiliar de 3 frentes numa das zonas mais exclusivas e tranquilas do Porto. Um equilíbrio perfeito entre sofisticação e bem-estar: • Vistas inalteráveis: No piso recuado, uma sala com banho completo abre-se para dois terraços que serve de miradouro privado sobre a Foz e o Douro – um cenário que se mantém garantido para o futuro. • Espaço e Conforto: Com 4 quartos amplos e varandas privadas, o projeto prioriza a vivência exterior com 2 jardins distintos, ideais para momentos de lazer em família. • Conveniência: Garagem fechada para 2 viaturas. • Pronto a Avançar: Com projeto de arquitetura aprovado e especialidades pré-aprovadas pela C.M.P., este é o investimento ideal para quem procura evitar incertezas e prazos burocráticos. O Projeto: Arquitetura de luz e transparência Distribuída por 4 pisos conectados por elevador panorâmico, a Arquitetura foi desenhada para maximizar a entrada de luz natural e a funcionalidade dos espaços, privilegiando a paisagem e o contacto o com a natureza: • Piso 0 (Social & Lazer): Uma generosa sala de 51 m² com ligação direta ao jardim principal (42,5 m²). A cozinha (19,1 m²) oferece um conceito versátil: pode funcionar em open space para a sala ou de forma independente, estendendo-se para um segundo jardim (23 m²). • Piso 1 (Entrada & Suite): Hall de entrada (16,1 m²) e suite com varanda privada. Inclui ainda lavandaria independente e garagem fechada para 2 viaturas. Pátio exterior. • Piso 2 (Área Familiar): Uma Suite Master com closet e dois quartos com uma solução inteligente de zona de estudo e casa de banho partilhada. No hall deste piso foi desenhada uma área funcional de trabalho. • Piso 3 (O Refúgio): O ex-líbris da casa. Uma sala panorâmica de 33,5 m² ladeada por dois terraços (16,8 m² e 5,3 m²), onde poderá desfrutar de vistas inalteráveis de rio e mar. Inclui uma casa de banho completa, o que permite converter este espaço numa suite master adicional, uma sala de estar ou um escritório de luxo. Características • Área terreno:163.05 m² | Implantação: 88.8 m² • Área Bruta Privativa: 335,2 m² | Área Útil: 227,6 m² • Espaços Exteriores: 65,5 m² de jardins, 46,4 m² de terraços e 17,9 m² de varandas. • Eficiência Energética: Classificação A+, garantindo o máximo conforto térmico e acústico com custos de manutenção reduzidos. Localização e estilo de vida Viver em Lordelo do Ouro é abraçar a tranquilidade sem abdicar da proximidade ao coração do Porto e da Foz: • Natureza e Lazer: A 300m do Douro (passeios e ciclovia) e a 1,5 km das praias da Foz. Próximo do Parque de Serralves. Baixa do Porto e centro histórico a 10 minutos de carro e com ligações diretas de autocarro ou elétrico • Educação e Cultura: Proximidade à Universidade Católica, colégios de prestígio e museus. • Acessibilidades: A 1 km da Avenida da Boavista e VCI. Restaurantes de prestígio, comércio, supermercados e transportes (STCP) a uma curta distância a pé. Não perca a oportunidade de dar vida a este projeto único, onde a natureza, o rio e o mar são vizinhos muito próximos. Nota: Caso seja um consultor imobiliário, este imóvel está disponível para partilha de negócio. Apresente-o aos seus clientes!
AMI: 23524
Ref. Externa: KWPT-031601
Id: 1832724
Inicie sessão para guardar este imóvel e aceder à sua lista de favoritos em qualquer dispositivo.
Área de terreno : 501 m²
RO2844 Apresentamos este excelente terreno com 500m², localizado numa das zonas mais privilegiadas da cidade. Com uma envolvente tranquila e ao mesmo tempo próxima de tudo, este espaço oferece o equilíbrio perfeito entre qualidade de vida e conveniência urbana. A poucos minutos do Parque da Cidade e da deslumbrante Praia de Matosinhos, este terreno é ideal para quem valoriza natureza, lazer e proximidade ao mar, sem abdicar do conforto de viver no centro. Com grande potencial de construção, é o local perfeito para dar vida à moradia dos seus sonhos um espaço pensado à sua medida, onde cada detalhe reflete o seu estilo de vida. Não perca esta oportunidade de investir numa localização de excelência e criar um projeto verdadeiramente único. Entre em contacto para mais informações! A Real Objectiva é uma empresa implantada no norte de Portugal, vocacionada para a venda e arrendamento de imóveis. Fruto dos seus 26 anos de trabalho, pautados pelo rigor e profissionalismo alcançou resultados reconhecidos pelo mercado em que se insere, atuando de forma transversal no mercado habitacional e no mercado industrial. Missão: Praticar um conceito de mediação imobiliária baseada na relação cliente/empresa consolidada pelo papel do consultor especialista e capaz de permitir a superação das expectativas de todos os intervenientes. Posicionamento: Vendemos casas Vendemos armazéns, escritórios, lojas e terrenos Especialistas do mercado imobiliário Princípios de Atuação: Competência Confidencialidade Idoneidade Disponibilidade Modelos de Ação: Rigor e profissionalismo Especialistas na angariação e na mediação imobiliária Estudamos o mercado e propomo-nos a encontrar soluções adequadas Avaliações rigorosas e alvo de estudo pormenorizado Cuidado extremo nas visitas
AMI: 3456
Ref. Externa: RO2844
Id: 1827350
Inicie sessão para guardar este imóvel e aceder à sua lista de favoritos em qualquer dispositivo.
325.000 €
Área de terreno : 215 m²
Terreno com pedido de informação prévia (PIP) aprovado relativo a obra de ampliação e alteração do prédio na Rua de São Dionisio e Praça da Alegria, na freguesia do Bonfim concelho do Porto.No lote de terreno estão compreendidas duas parcelas doravante designadas parcela A e B. A parcela A terá uma superfície de 130m2, com frente para a Rua São Dionisio e será formada pelo edifício multifamiliar A, com área de implantação de 91m2 composto por 3 fracções autónomas (A.1, A.2 e A.3) de habitações T2, e um espaço livre ajardinado permeável com 39m2. A parcela B terá uma superfície de 85,75m2, com frente para a Praça da Alegria e será formada pelo edifício unifamiliar B, com área de implantação de 60m2 composto por 1 fogo T3, e um espaço livre ajardinado permeável com 25,75m2.Encontra-se inserido na Área de Reabilitação Urbana Cidade de Porto e por via disso beneficia de taxa reduzida de IVA de 6% em materiais de construção e mão de obra, isenção de IMI de 3 anos (prorrogável por mais 5 em determinadas condições), isenção de IMT e tributação de 5% em sede de IRS sobre rendimentos ou mais valias. Todos estes benefícios deverão enquadrar-se no Regulamento de Benefícios Fiscais.A cidade do Porto foi eleita o Melhor Destino de Cidade do Mundo 2022, é a grande porta de entrada e pode ser ponto de partida para uma viagem pela diversidade natural e cultural da região. É conhecido pelo vinho que daqui parte para todo o mundo e por um património que sabe combinar a antiguidade de igrejas e monumentos, como a Sé ou a Igreja de S. Francisco, com a contemporaneidade de edifícios marcantes como a Casa da Música, o Museu de Serralves e outros.O rio Douro que passa a 200 metros do terrreno, entra em Portugal apertado entre as ravinas e montanhas do interior para percorrer toda a paisagem do Património Mundial onde se cultivam os vinhos do Porto e do Douro. Ali se cruza o vinho que segue até às Caves de Gaia e os cruzeiros que visitam a região.Entre em contacto connosco! A nossa agência conta com consultores imobiliários experientes que estão ao seu lado para que, juntos, possa encontrar o que melhor satisfaz as suas expectativas e aspirações. Temos ainda uma equipa de BackOffice que lhe dará o apoio e aconselhamento necessário em todo o processo de compra/venda/arrendamento, entre outros, passando por acompanhar e elucidar qualquer dúvida no que respeita à vertente financeira, legal, logística ou contratual. Sabemos que no mundo do negócio onde as mudanças, quer de mercado, quer financeiras, são uma constante é crucial o acompanhamento personalizado em cada etapa e por isso tentamos sempre alertar os nossos clientes para que, de forma consciente, tomem as melhores decisões. Para a Campus Place, acompanhamento é regra! Visite-nos e descubra por si, a dedicação que colocamos em cada um dos nossos clientes. Somos uma agência imobiliária que não se preocupa apenas em satisfazer as necessidades dos nossos clientes, queremos EXCEDÊ-LAS, para que esta marca seja o nosso melhor marketing.
AMI: 14411
Ref. Externa: CP3137
Id: 1819827
Inicie sessão para guardar este imóvel e aceder à sua lista de favoritos em qualquer dispositivo.
360.000 €
Área de terreno : 266 m²
Terreno Urbano para Construção em Altura – Localização Premium no Porto.Apresentamos uma excelente oportunidade de investimento: terreno urbano com 266 m², situado numa das zonas mais procuradas da cidade, junto ao Hospital São João e ao Polo Universitário.Com uma localização estratégica, este terreno beneficia de proximidade a metro, diversos serviços, comércio e ao Centro Comercial São João, garantindo elevada procura para projetos habitacionais ou de investimento.Com viabilidade para construção em altura, é ideal para promotores ou investidores que procuram rentabilidade numa zona com forte dinamismo e valorização contínua.Não perca esta oportunidade única de investir numa das áreas com maior potencial do Porto!Entre em contacto connosco!A nossa agência conta com consultores imobiliários experientes que estão ao seu lado para que, juntos, possa encontrar o que melhor satisfaz as suas expectativas e aspirações.Temos ainda uma equipa de BackOffice que lhe dará o apoio e aconselhamento necessário em todo o processo de compra/venda/arrendamento, entre outros, passando por acompanhar e elucidar qualquer dúvida no que respeita à vertente financeira, legal, logística ou contratual.Sabemos que no mundo do negócio onde as mudanças, quer de mercado, quer financeiras, são uma constante é crucial o acompanhamento personalizado em cada etapa e por isso tentamos sempre alertar os nossos clientes para que, de forma consciente, tomem as melhores decisões.Para a Campus Place, acompanhamento é regra!Visite-nos e descubra por si, a dedicação que colocamos em cada um dos nossos clientes.Somos uma agência imobiliária que não se preocupa apenas em satisfazer as necessidades dos nossos clientes, queremos EXCEDÊ-LAS, para que esta marca seja o nosso melhor marketing.
AMI: 14411
Ref. Externa: CP4286
Id: 1804685
Inicie sessão para guardar este imóvel e aceder à sua lista de favoritos em qualquer dispositivo.
4 Quartos
Área de terreno : 110 m²
Terreno na Foz com projeto aprovado para moradia V4Projeto com licenças prontas a levantar para iniciar a obra de construção de uma moradia V4, de 4 frentes, com jardim e garagem com área bruta de construção de 257mts2 - possibilidade de adquirir a casa "chave na mão" por €1.250.000,00.A moradia está distribuída ao nível do rés do chão por hall de entrada, sala comum, cozinha e wc e um jardim. Na fachada da entrada tem acesso a uma garagem fechada, com sistema de placa elevatória para 1 viatura que baixa à cave, onde tem um quarto, cozinha, sala e wc completo.No 1 andar apresenta duas suites com acesso a varandas e no 2 andar as outras duas suites.Localização de excelência próxima de todo o tipo de comércio e serviços.Próximo da praia, do rio e de colégios internacionais como o Oporto British School e a Universidade Católica do Porto.
AMI: 19489
Ref. Externa: R21360 B
Id: 1804623
Inicie sessão para guardar este imóvel e aceder à sua lista de favoritos em qualquer dispositivo.
Área de terreno : 380 m²
Terreno com Projeto Aprovado para Moradia T4 na Foz do DouroTerreno urbano com 380 m² e projeto de arquitetura aprovado para moradia unifamiliar T4, situado na zona nobre da Foz do Douro, no Porto. Com projeto já aprovado, esta é uma oportunidade rara para construir uma moradia com todas as comodidades modernas, num dos bairros residenciais mais valorizados da cidade.Composição e Características do Projeto O projeto aprovado contempla uma moradia T4 com três pisos, organizada de forma funcional para garantir conforto e privacidade. No último piso, encontram-se quatro quartos, todos em suite. Os pisos sociais distribuem-se de forma fluida e luminosa, com áreas generosas para sala de estar e jantar, varandas e cozinha fechada totalmente independente. No exterior, o jardim privado com piscina proporciona um espaço de lazer ideal para momentos em família ou convívio, com exposição solar privilegiada e ligação direta à zona social da casa. A moradia dispõe ainda de garagem fechada, com capacidade para dois automóveis.Localização e Envolvente O terreno insere-se numa zona residencial consolidada, com proximidade ao mar, escolas internacionais, comércio tradicional e serviços. A envolvente combina tranquilidade, segurança e acessibilidade, oferecendo uma elevada qualidade de vida a quem procura um ambiente familiar sem abdicar da centralidade e da sofisticação.Obs: As imagens virtuais 3D são imagens de estudo da concepção do projeto e apenas ilustrativas.Marque já sua visita com um dos nossos consultores imobiliários.Com mais de 35 anos de atuação no mercado nacional, aplicamos as boas práticas e metodologias que privilegiam Proprietário e Comprador, proporcionando os melhores resultados para todos os intervenientes. Trabalhamos com um posicionamento de rigor na prestação de serviços imobiliários, apoiando a nossa atividade na experiência da nossa equipa de profissionais e em soluções eficazes de publicidade e marketing. Garantimos a máxima discrição e serviço de excelência.Sem preocupações – nós tratamos de tudo.RÉPLICA, uma referência imobiliária.
AMI: 10830
Ref. Externa: RG2829
Id: 1804405
Inicie sessão para guardar este imóvel e aceder à sua lista de favoritos em qualquer dispositivo.
480.000 €
Área de terreno : 230 m²
Terreno na Circunvalação com 230 m2. Localizado a 800 m do Hospital de S. João e Pólo Universitário. Frente à Circunvalação - Local estratégico. Área total do terreno: 230,00 m2; Área de implantação do edifício: 70,00 m2; Área bruta de construção: 83,20; Área bruta privativa: 83,20 m2. Contactos: 967042898/968927238/224804686 (Chamada para a rede fixa ou móvel de acordo com o seu tarifário em Portugal) [email protected]/[email protected]
AMI: 1833
Ref. Externa: 240045
Id: 1801794
Inicie sessão para guardar este imóvel e aceder à sua lista de favoritos em qualquer dispositivo.
412.300 €
Área de terreno : 400 m²
Terreno p/ construção - ao Estádio do Dragão Referência: 3212 Excelente terreno com 400 m2 de área total de construção. Localizado junto ao Mercado Abastecedor, Estádio do Dragão. Zona residencial. Excelente oportunidade de negócio. Zona Envolvente: Escola Básica do 1º CEB / JI das Antas Mercado Abastecedor Alameda Shopping Ac Hotel Porto Metro Contumil Ecocentro das Antas Áreas: 1)Casa de rés do chão com 4 divisões e logradouro - área de 143 m2; 2)Casa de rés do chão com 3 divisões e logradouro - área de 122 m2; 3) Casa de rés do chão com 4 divisões e logradouro - área de 144 m2. Marque já a sua visita junto de um dos nossos consultores imobiliários.
AMI: 8859
Ref. Externa: 3212
Id: 1791888
Inicie sessão para guardar este imóvel e aceder à sua lista de favoritos em qualquer dispositivo.
Profissionais que conhecem esta zona a fundo — contacte-os para uma avaliação personalizada.
Área de terreno : 137 m²
Identificação do imóvel: ZMPT587608Se gosta de:• Bons investimentos• Construção diferenciada no coração da cidade do Porto 3• Potencial de valorizaçãoVai querer conhecer este terreno localizado na Travessa da Senhora da Lapa, 40/42 e com projeto de arquitectura aprovado pela Câmara Municipal do Porto para a construção de um edifício residencial de 3 fogos de design exclusivo bem no coração do Centro Histórico do Porto.È uma oportunidade única para promotores ou investidores que pretendam desenvolver um imóvel de referência numa das moradas mais emblemáticas da cidade.Concebido pelo reconhecido atelier Studio Toggle, o projecto distingue-se por uma linguagem arquitectónica contemporânea que dialoga com o carácter do bairro: fachada em betão aparente de alta qualidade, ritmada por painéis em metal perfurado de tom verde profundo — evocando a identidade cromática dos azulejos portuenses — e grandes vãos envidraçados do piso ao teto. O resultado é um edifício de carácter singular, que se insere com elegança na malha histórica da cidade.O projeto de interiores é de elevado padrão: revestimentos em madeira de nogueira, soalho em padrão espinha de peixe, tetos em betão polido e caixilharia de grande formato. Cada fogo dispõe de pátio privativo, conferindo luminosidade natural e uma relação especial com o exterior no coração urbano do Porto.O edifício é composto por três pisos acima do solo e prevê três fogos:• T2 no piso térreo• dois T1+1 nos pisos superiores.O adquirente poderá desenvolver o projeto conforme entender, ou optar pela personalização dos fogos em parceria com o próprio atelier Studio Toggle, por acordo mútuo.LOCALIZAÇÃO PRIVILEGIADA:Situado na Travessa da Senhora da Lapa, o terreno encontra-se inserido na Área de Reabilitação Urbana (ARU) da Lapa, o que confere benefícios fiscais relevantes ao promotor e aos futuros adquirentes, nomeadamente a isenção ou redução de IMT e Imposto de Selo, bem como a possibilidade de dedução das despesas de reabilitação em sede de IRS.A zona alia a tranquilidade de uma rua histórica à proximidade das principais artérias do Porto e dos transportes públicos, incluindo o Metropolitano do Porto (estações C. Michaelis / Lapa).A poucos minutos a pé do Rio Douro, da Ribeira, do Jardim do Morro e das principais áreas comerciais e culturais da cidade, a Lapa é um dos bairros mais procurados por quem deseja viver no verdadeiro Porto histórico, com toda a comodidade da vida contemporânea.CARACTERÍSTICAS DO PROJECTO:– Venda de terreno com projeto de arquitetura aprovado pela CMP — Processo NUP/65262/2025/CMP (Fevereiro 2026)– Arquitetura de autor: Studio Toggle– 3 fogos: 1 T2 (piso térreo) + 2 T1+1 (pisos superiores)– Pátios privativos em cada fogo– Área total de construção: 214,97 m² | Área do terreno: 137,00 m²– 3 pisos acima do solo | Altura máxima (cércea): 9,36 m– Fachada em betão aparente com painéis em metal perfurado verde profundo– Interiores premium: madeira de nogueira, soalho espinha de peixe, betão polido– Grandes vãos envidraçados do piso ao teto– Possibilidade de personalização dos fogos pelo atelier Studio Toggle, por acordo mútuo– Inserido na ARU da Lapa — benefícios fiscais aplicáveis (IMT, IS, IRS)– Centro Histórico do Porto | Área de Interesse Urbanístico e Arquitetónico– Metro: C. Michaelis / Lapa (proximidade)– Lote pronto a construir — projeto aprovado e especialidades a entregarNota: o atelier Studio Toggle está disponível para colaborar na personalização dos fogos (acabamentos, layout, programa), por acordo mútuo com o promotor.Este pode ser o seu próximo investimento!Estamos ao seu dispor para lhe prestar todos os esclarecimentos acerca deste terreno com projecto aprovado para três fogos na Lapa, bem no centro do Porto.3 razões para comprar com a Zome+ acompanhamentoCom uma preparação e experiência única no mercado imobiliário, os consultores Zome põem toda a sua dedicação em dar-lhe o melhor acompanhamento, orientando-o com a máxima confiança, na direção certa das suas necessidades e ambições.Daqui para a frente, vamos criar uma relação próxima e escutar com atenção as suas expectativas, porque a nossa prioridade é a sua felicidade! Porque é importante que sinta que está acompanhado, e que estamos consigo sempre.+ simplesOs consultores Zome têm uma formação única no mercado, ancorada na partilha de experiência prática entre profissionais e fortalecida pelo conhecimento de neurociência aplicada que lhes permite simplificar e tornar mais eficaz a sua experiência imobiliária.Deixe para trás os pesadelos burocráticos porque na Zome encontra o apoio total de uma equipa experiente e multidisciplinar que lhe dá suporte prático em todos os aspetos fundamentais, para que a sua experiência imobiliária supere as expectativas.+ felizO nosso maior valor é entregar-lhe felicidade!Liberte-se de preocupações e ganhe o tempo de qualidade que necessita para se dedicar ao que lhe faz mais feliz.Agimos diariamente para trazer mais valor à sua vida com o aconselhamento fiável de que precisa para, juntos, conseguirmos atingir os melhores resultados.Com a Zome nunca vai estar perdido ou desacompanhado e encontrará algo que não tem preço: a sua máxima tranquilidade!É assim que se vai sentir ao longo de toda a experiência: Tranquilo, seguro, confortável e... FELIZ!Notas:1. Caso seja um consultor imobiliário, este imóvel está disponível para partilha de negócio. Não hesite em apresentar aos seus clientes compradores e fale connosco para agendar a sua visita.2. Para maior facilidade na identificação deste imóvel, por favor, refira o respetivo ID ZMPT ou o respetivo agente que lhe tenha enviado a sugestão.
AMI: 17432
Ref. Externa: ZMPT587608
Id: 1789911
Inicie sessão para guardar este imóvel e aceder à sua lista de favoritos em qualquer dispositivo.
500.000 €
Área de terreno : 202 m²
Excelente Terreno Para Construção na Cidade do Porto! Se procura um terreno para criar um projeto de investimento, esta é a oportunidade que estava à espera. Este terreno para construção, localizado na belíssima cidade do Porto, oferece uma vasta área de 202m² para dar vida a um projeto único. Características do Terreno: - Tipo: Terreno para Construção - Área do Terreno: 202m² - Localização: Porto Explore a possibilidade de dar vida a uma construção ou outro projeto arquitetônico dos seus sonhos. Benefícios do Terreno: - Localização Estratégica: Situado num contexto urbano privilegiado, com acessos fáceis e rápidos a serviços, comércio e transportes. - Potencial de Investimento: Ideal para promotores imobiliários ou particulares que desejam construir a sua própria casa. - Versatilidade Arquitetônica: Liberte a sua criatividade e conceba um projeto personalizado. - Proximidade a Todas as Comodidades: Desfrute das vantagens de viver ou investir numa das cidades mais vibrantes de Portugal. Com viabilidades a serem exploradas e expetativas a serem concretizadas, este terreno oferece um vasto oceano de possibilidades para transformar a sua visão em realidade. Aproveite esta oportunidade única no pitoresco e culturalmente rico Porto. Contacte-nos hoje mesmo para mais informações e comece a dar forma ao seu futuro desde já. #ref: 873407
AMI: 11220
Ref. Externa: 873407
Id: 1789506
Inicie sessão para guardar este imóvel e aceder à sua lista de favoritos em qualquer dispositivo.
800.000 €
Área de terreno : 350 m²
Terreno às Antas - PortoRefª. 3387-PTerreno para construção, localizado em Campanhã, nas mediações das AntasPara o local já existiu projeto para a construção de Edifício de Cave + rés de chão + 4 pisos, para 10 frações (8 habitações T2 e 2 habitações T1).Atualmente o projeto encontra-se caducado, carecendo de renovação.Local estratégico em em grande desenvolvimentoPróximo do Estádio do Dragão, em ContumilZona de muita procura de habitaçãoContacte-nos***Land in Antas – PortoRef. 3387-PBuilding plot located in Campanhã, in the Antas area.There was previously a project for the construction of a building with basement + ground floor + 4 upper floors, comprising 8 two-bedroom apartments and 2 one-bedroom apartments.The project has now expired and requires renewal.Strategic location in a rapidly developing area.Close to Estádio do Dragão, in Contumil.Area with high housing demand.Contact us
AMI: 11665
Ref. Externa: 3387-P
Id: 1786484
Inicie sessão para guardar este imóvel e aceder à sua lista de favoritos em qualquer dispositivo.
2.200.000 €
Área de terreno : 1788 m²
"Quando achas que tudo é igual estas a desistir de encontrar algo melhor" Disponíveis soluções no Porto com PIP (Pedido de Informação Previa) e ou Projetos Aprovados. Áreas de construção desde 1800m2 a 3560m2 Os preços e as áreas apresentadas e valores estão sujeitos a enquadramento com os vários processos disponíveis para apresentação, solicite informação detalhada. Necessário apresentar Carta de Intenções ou Entendimento (LOI) e ou Prova de Fundos (POF) ________________________________________________________________________________________________________________ A ComCasa® Imobiliária nasce com a Missão de prestar um serviço de Excelência. O nosso objetivo é criar valor patrimonial e rendimento para o nosso cliente, com base numa equipa profissional (que integra elementos ligados à Gestão Imobiliária, assim como com credenciação na CMVM), respeitando assim os padrões de Ética, Discrição e Integridade A nossa experiência é alicerçada nas melhores ferramentas tecnológicas disponibilizadas pelo mercado, consolidadas na qualidade e fiabilidade nos produtos que mediamos. Nós somos a sua melhor estratégia para a transação do seu Imóvel! Na ComCasa, “a nossa Casa é a sua Casa”
AMI: 15121
Ref. Externa: 0224.RAM1
Id: 1783510
Inicie sessão para guardar este imóvel e aceder à sua lista de favoritos em qualquer dispositivo.
Área de terreno : 97 m²
Casa | Foz Velha | Foz do Douro Rua de Montebelo Em lote de gaveto À Universidade Católica, Marginal, Igreja Paroquial de S. João da Foz, Passeio Alegre Zona residencial de excelência, histórica e classificada Imóvel com elevado potencial para restauro ou reconstrução (possível aumento) === Este imóvel está ARRENDADO, para venda com inquilinos === - Igreja Paroquial de S. João da Foz (200 metros) - rio Douro, Marginal, Jardim do Passeio Alegre (350 metros) - Universidade Católica da Foz (750 metros) - Praias da Foz do Douro (800 metros) - Parque Urbano da Pasteleira (1200 metros) - Jardim do Cálem (1400 metros) - Serralves (1700 metros) - Aeroporto Francisco Sá Carneiro (14 Km) 20 minutos de carro Envolvente com todo o tipo de comércio, serviços e transportes Proximidade a Escolas, Colégios e Universidades Centros de Saúde e Hospitais Para melhores informações contacte-nos. " As casas que espreitam o Rio " as imagens virtuais e uma das plantas no anúncio, são meramente ilustrativas) Para Vender, Comprar, Arrendar. Não hesite, fale Connosco! QUADRATURA …porque cada casa é um caso!
AMI: 8478
Ref. Externa: AP449/10042_
Id: 1780274
Inicie sessão para guardar este imóvel e aceder à sua lista de favoritos em qualquer dispositivo.
500.000 €
Área de terreno : 202 m²
Terreno Urbanizável com 202 m² – Excelente Oportunidade de Investimento noPortoApresentamos terreno com 202 m², localizado na numa zona privilegiada e de elevada procura, nas proximidades da Escola Secundária António Nobre e da Rua Costa Cabral.Inserido numa área residencial tranquila e consolidada, o imóvel beneficia de excelentes acessibilidades, estando próximo de estação de metro, transportes públicos, comércio, serviços e das principais vias de saída da cidade.Com elevado potencial construtivo, este terreno apresenta viabilidade para a construção de um edifício com até 5 pisos acima do solo, podendo incluir rés-do-chão destinado a comércio — solução ideal para projetos modernos de habitação com componente comercial.Uma oportunidade única para investidores e promotores que procuram um ativo seguro, com forte potencial de valorização, numa das zonas mais estratégicas do Porto.Características Específicas:* Área total do terreno: 202 m²* Área mínima de venda: 202 m²* Área de implantação / edificável: 112 m²* Acesso por via urbana.Situação Urbanística:*Terreno urbanizável*Viabilidade para construção residencial em altura (apartamentos)*Potencial construtivo até 5 pisos acima do soloVamos agendar visita?BIS3 Imowww.bis3imo.ptAMI 20902202 m² Urban Plot – Excellent Investment Opportunity inPortoWe are pleased to present this fantastic 202 m² urban plot, situated onRua Pires de Lima, in a prime, highly sought-after area, close toAntónio Nobre Secondary School and Rua Costa Cabral.Set in a quiet, established residential area, the propertybenefits from excellent transport links, being close to ametro station, public transport, shops, amenities and the main roadsleading out of the city.With high development potential, this plot is suitablefor the construction of a building with up to 5 storeys above ground, which mayinclude a ground floor for retail use — an ideal solution for modernresidential projects with a commercial component.A unique opportunity for investors and developers seeking asecure asset with strong potential for appreciation, in one of the moststrategic areas of Porto.Specific FeaturesTotal plot area: 202 m²Minimum saleable area: 202 m²Building plot area: 112 m²Access via urban roadPlanning StatusDevelopable landPermitted for high-rise residential construction (flats)Potential for up to 5 storeys above groundShall we arrange a viewing?BIS3 Imowww.bis3imo.ptAMI 20902Terrain urbain de 202 m² – Excellente opportunité d'investissement àPortoNous vous présentons ce magnifique terrain urbain de 202 m², situérue Pires de Lima, dans un quartier privilégié et très prisé, àproximité du lycée António Nobre et de la rue Costa Cabral.Situé dans un quartier résidentiel calme et bien établi, le bienbénéficie d'une excellente accessibilité, à proximité d'une station demétro, des transports en commun, des commerces, des services et des principales voies desortie de la ville.Offrant un fort potentiel de construction, ce terrain permet laconstruction d'un immeuble pouvant compter jusqu'à 5 étages hors sol, avec lapossibilité d'inclure un rez-de-chaussée destiné au commerce — une solutionidéale pour des projets d'habitation modernes à vocation mixte.Une opportunité unique pour les investisseurs et les promoteurs à la recherche d’unactif sûr, avec un fort potentiel de plus-value, dans l’un des quartiers les plusstratégiques de Porto.Caractéristiques spécifiquesSuperficie totale du terrain : 202 m²Superficie minimale de vente : 202 m²Superficie d’implantation / constructible : 112 m²Accès par voie urbaineSituation urbanistiqueTerrain urbanisableFaisabilité pour la construction résidentielle en hauteur (appartements)Potentiel de construction jusqu'à 5 étages au-dessus du solOn organise une visite ?BIS3 Imowww.bis3imo.ptAMI 20902
AMI: 20902
Ref. Externa: BIS3 565
Id: 1779950
Inicie sessão para guardar este imóvel e aceder à sua lista de favoritos em qualquer dispositivo.
500.000 €
Área de terreno : 202 m²
RO2834 Terreno urbano com 202 m², situado numa das zonas mais valorizadas e procuradas de Paranhos, no Porto. Com localização estratégica, o imóvel beneficia de proximidade imediata a estação de metro, transportes públicos, comércio, serviços e principais acessos rodoviários, garantindo conveniência e elevada procura habitacional e comercial. Apresenta viabilidade para construção de edifício com até 5 pisos acima do solo, incluindo rés-do-chão destinado a comércio, o que potencia a rentabilidade do investimento. Uma opção ideal para promotores e investidores que procuram um projeto com forte potencial construtivo e excelente perspetiva de valorização futura. Para mais informações e/ou agendar visita, contacte-nos! A Real Objectiva é uma empresa implantada no norte de Portugal, vocacionada para a venda e arrendamento de imóveis. Fruto dos seus 26 anos de trabalho, pautados pelo rigor e profissionalismo alcançou resultados reconhecidos pelo mercado em que se insere, atuando de forma transversal no mercado habitacional e no mercado industrial. Missão: Praticar um conceito de mediação imobiliária baseada na relação cliente/empresa consolidada pelo papel do consultor especialista e capaz de permitir a superação das expectativas de todos os intervenientes. Posicionamento: Vendemos casas Vendemos armazéns, escritórios, lojas e terrenos Especialistas do mercado imobiliário Princípios de Atuação: Competência Confidencialidade Idoneidade Disponibilidade Modelos de Ação: Rigor e profissionalismo Especialistas na angariação e na mediação imobiliária Estudamos o mercado e propomo-nos a encontrar soluções adequadas Avaliações rigorosas e alvo de estudo pormenorizado Cuidado extremo nas visitas
AMI: 3456
Ref. Externa: RO2834
Id: 1779713
Inicie sessão para guardar este imóvel e aceder à sua lista de favoritos em qualquer dispositivo.
480.000 €
Área de terreno : 230 m²
Terreno com 230m² na Circunvalação Apresentamos um terreno de 230m², localizado de forma estratégica a apenas 700 metros do Hospital S. João, da estação de metro e do Polo Universitário. Esta área privilegiada oferece fácil acesso a uma vasta gama de serviços essenciais e ao transporte público, tornando-se uma excelente oportunidade para quem busca desenvolver ou investir numa propriedade. No terreno encontra-se uma edificação para restauro, composta por cave, rés do chão, andar e anexos. Este espaço possui potencial para ser transformado numa residência com aproximadamente 6 a 8 quartos, ideal para famílias numerosas ou como uma oportunidade de negócio para arrendamento. Para mais informações ou agendar uma visita, entre em contacto connosco. Helena Mendes [email protected] Vila Azul Imobiliária
AMI: 12024
Ref. Externa: 12607042
Id: 1778868
Inicie sessão para guardar este imóvel e aceder à sua lista de favoritos em qualquer dispositivo.
360.000 €
Área de terreno : 265 m²
TERRENO AO IPO E H.S. JOÃO (METRO)Refª: 3386Terreno com 266m², muito próximo ao Hospital de São João / IPO / Pólo Universitário / Metro - PortoDará para R/C + 2 andares, para 6 ou mais habitações T0, T1 ou Moradia com projeto, a seu gosto.Próximo do Metro e variados outros transportes para a cidade do Porto, Matosinhos, Maia, Póvoa, Vila do Conde e outros.Local residencial tranquilo, que dada a sua proximidade às Faculdades e Hospital, confere o ambiente ideal para habitação de médicos, enfermeiros, professores e estudantes deste Pólo.Contacte-nos para mais informações e visitas.***LAND NEAR IPO AND SÃO JOÃO HOSPITAL (METRO)Ref.: 3386Plot of land with 266 m², very close to São João Hospital / IPO / University Campus / Metro – Porto.Suitable for ground floor + 2 upper floors, allowing for 6 or more units (studio, one-bedroom) or a house project, tailored to your preference.Close to the Metro and various other transport links to the city of Porto, Matosinhos, Maia, Póvoa de Varzim, Vila do Conde, and others.Quiet residential area which, due to its proximity to universities and the hospital, offers an ideal environment for doctors, nurses, professors, and students from this campus.Contact us for more information and to schedule a visit.
AMI: 11665
Ref. Externa: 3386
Id: 1777248
Inicie sessão para guardar este imóvel e aceder à sua lista de favoritos em qualquer dispositivo.
350.000 €
Área de terreno : 0 m²
Terreno com Moradia em Ruína – Construção de Prédio no Centro do Porto Imóvel localizado em plena zona central da cidade do Porto, atualmente composto por uma moradia T3 em ruína, com as seguintes características: Área total do terreno: 189 m² Área descoberta: 132 m² (ideal para logradouro, estacionamento ou jardim comum) Área de implantação existente: aprox. 80 m² Constituído por 3 pisos (R/C, 1.º e 2.º e recuado) Frente urbana consolidada, com viabilidade urbanística confirmada Potencial de Construção Viabilidade para demolição e construção de edifício multifamiliar (prédio) Possibilidade de constituição de propriedade horizontal, com criação de múltiplas frações independentes Zona classificada para intervenção de reabilitação urbana, podendo beneficiar de incentivos fiscais e regimes simplificados de licenciamento Adequado para projeto residencial, turístico (AL) ou de investimento Outros Destaques Excelente localização, com acesso a transportes públicos, comércio, serviços e equipamentos
AMI: 20665
Ref. Externa: GS1/30072204
Id: 1773935
Inicie sessão para guardar este imóvel e aceder à sua lista de favoritos em qualquer dispositivo.
© Copyright 2023 | CASACERTA. All rights reserved
Guardar favoritos
Este imóvel foi guardados nos seus favoritos com sucesso.
Para poder guardar pesquisa deverá ter a sua sessão iniciada.
Caso não tenha uma conta, deverá criar uma.
A sua pesquisa foi guardada com sucesso!
Este site utiliza cookies. Ao navegar no site estará a consentir a sua utilização.
Para mais informações sobre os cookies pode consultar a
política de privacidade.