Lista
Comprar
Arrendar
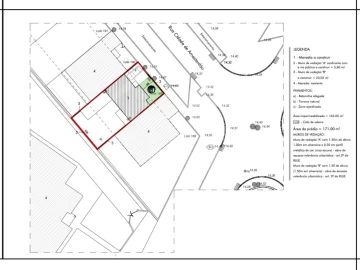
Área de terreno : 2200 m²
Terreno Rústico para Venda no Granho – 2.200 m² de Oportunidade Apresentamos este terreno rústico com 2.200 m², localizado na tranquila freguesia do Granho, um local que combina natureza, privacidade e excelente potencial de valorização. Este espaço é ideal para quem procura: Investimento agrícola ou criação de horta/olival. Lazer e contacto com a natureza, num ambiente sereno. Um refúgio fora da cidade, com todo o charme do meio rural. A sua localização estratégica no concelho de Salvaterra de Magos, próxima de bons acessos rodoviários, garante comodidade sem abdicar da tranquilidade característica da região. Se procura um terreno rústico para venda em Portugal com versatilidade e grande potencial, esta é uma oportunidade a não perder. ? Contacte-nos para mais informações ou para agendar a sua visita! ;ID RE/MAX: 120431577-1
AMI: 7772
Ref. Externa: 120431577-1
Id: 1595242
Inicie sessão para guardar este imóvel e aceder à sua lista de favoritos em qualquer dispositivo.
Área de terreno : 131 m²
Excelente Terreno Urbano à Venda em Salvaterra de Magos Se você está em busca de uma oportunidade imperdível para construir a casa dos seus sonhos ou investir em um terreno promissor, não pode deixar de conhecer este excelente terreno urbano com 131m², localizado em Salvaterra de Magos. Características do Terreno: - Área total: 131m² - Localização privilegiada, próximo ao Continente e aos principais pontos do centro da cidade - Acesso fácil a serviços essenciais, como supermercados, escolas, comércio e transportes públicos Vantagens da Localização: Situado em uma região que combina tranquilidade e conveniência, este terreno oferece a oportunidade ideal para viver perto de tudo o que você precisa. A proximidade com o Continente torna as compras do dia a dia mais práticas, enquanto a facilidade de acesso ao centro proporciona uma vida dinâmica e cheia de comodidades. Investimento Seguro: O mercado imobiliário em Salvaterra de Magos está em expansão, e este terreno representa uma excelente oportunidade de investimento. Com um planejamento adequado, você pode transformar essa área em um lar acolhedor ou um empreendimento rentável. Não perca a chance de adquirir este incrível terreno e dar o primeiro passo rumo à realização dos seus projetos. Entre em contato para mais informações e agende uma visita! Realty ONE Group A Realty ONE Group é atualmente a marca imobiliária com o crescimento mais rápido nos Estados Unidos. Com mais de 20 anos de experiência, está presente em 26 países e continua a expandir-se a nível global. À frente da marca está Vinnie Tracey, presidente da Realty ONE Group, que durante 40 anos liderou uma das maiores referências mundiais do setor. Com a sua vasta experiência, está a consolidar a Realty ONE Group como uma das marcas líderes nos Estados Unidos e no mundo. Motivos para escolher a ONE As Pessoas Primeiro. Os nossos consultores recebem formação de excelência, nacional e internacional, ministrada pelos melhores especialistas em todas as vertentes do negócio. Toda a formação é gratuita, garantindo que a equipa está preparada para o apoiar com máxima eficiência. “Enquanto desfruta dos prazeres da sua vida, compre e venda o seu imóvel de forma rápida, simples e segura.” ONE House. ONE Dream. ONE Life(style).
AMI: 25691
Ref. Externa: ONE521946-1
Id: 1587296
Inicie sessão para guardar este imóvel e aceder à sua lista de favoritos em qualquer dispositivo.
85.000 €
Área de terreno : 8040 m²
Terreno para venda Integrado numa zona tranquila de Marinhais, apresentamos em exclusivo este terreno urbano com 4.020 m2, ideal para construção habitacional junto do Centro de Bem Estar Social Esta oportunidade única oferece um ambiente sereno e propício para a criação do seu lar de sonho. Com uma boa localização, este terreno proporciona a privacidade desejada sem comprometer a acessibilidade a comodidades locais. Não perca a oportunidade de investir num espaço que promete harmonia e qualidade de vida. Venha morar para uma zona de excelência, ligue-me hoje mesmo ;ID RE/MAX: 120431207-345
AMI: 7772
Ref. Externa: 120431207-345
Id: 1562779
Inicie sessão para guardar este imóvel e aceder à sua lista de favoritos em qualquer dispositivo.
Área de terreno : 600 m²
Seja bem vindo á Elyte Mediação Imobiliária. Temos o prazer de lhe apresentar mais um imóvel. Terreno urbano para construção em Salvaterra de Magos com área total de 600m². Terreno em Salvaterra de Magos onde se encontra todos os tipos de serviços, como comercio local, transportes públicos, escolas, farmácia, etc. Ótimo acesso. Terreno para construção de moradia. Marque já a sua visita. Temos pessoal especializado para tratar do seu crédito habitação e seguros, sem custos adicionais. Para mais informações não hesite, entre já em contacto connosco. Estamos aqui para o ajudar e para tirar todas as suas duvidas e servir em todos os processo necessários para a compra do seu imóvel, desde a visita até há escritura.
AMI: 17231
Ref. Externa: T410SM
Id: 1561398
Inicie sessão para guardar este imóvel e aceder à sua lista de favoritos em qualquer dispositivo.
45.000 €
Área de terreno : 4020 m²
Terreno para venda Integrado numa zona tranquila de Marinhais, apresentamos em exclusivo este terreno urbano com 4.020 m2, ideal para construção habitacional junto do Centro de Bem Estar Social Esta oportunidade única oferece um ambiente sereno e propício para a criação do seu lar de sonho. Com uma boa localização, este terreno proporciona a privacidade desejada sem comprometer a acessibilidade a comodidades locais. Não perca a oportunidade de investir num espaço que promete harmonia e qualidade de vida. Venha morar para uma zona de excelência, ligue-me hoje mesmo ;ID RE/MAX: 120431207-344
AMI: 7772
Ref. Externa: 120431207-344
Id: 1558184
Inicie sessão para guardar este imóvel e aceder à sua lista de favoritos em qualquer dispositivo.
45.000 €
Área de terreno : 4020 m²
Terreno para venda Integrado numa zona tranquila de Marinhais, apresentamos em exclusivo este terreno urbano com 4.020 m2, ideal para construção habitacional junto do Centro de Bem Estar Social Esta oportunidade única oferece um ambiente sereno e propício para a criação do seu lar de sonho. Com uma boa localização, este terreno proporciona a privacidade desejada sem comprometer a acessibilidade a comodidades locais. Não perca a oportunidade de investir num espaço que promete harmonia e qualidade de vida. Venha morar para uma zona de excelência, ligue-me hoje mesmo ;ID RE/MAX: 120431207-343
AMI: 7772
Ref. Externa: 120431207-343
Id: 1558183
Inicie sessão para guardar este imóvel e aceder à sua lista de favoritos em qualquer dispositivo.
371.000 €
Área de terreno : 552 m²
Projeto de construção CHAVE NA MÂO Moradia com piscina numa zona calma perto do centro da cidade. As suas grandes janelas panorâmicas proporcionam um acesso original e fácil à piscina e permitem também uma grande luminosidade nos espaços interiores, Os materiais escolhidos, bem como os acabamentos interiores e exteriores, são meticulosos e de grande qualidade. O Construtor compromete-se a enviar um relatório semanal por video dos trabalhos realizados durante a semana Categoria Energética: Em processo ref: PAR_332.
AMI: 26473
Ref. Externa: 33847105
Id: 1546389
Inicie sessão para guardar este imóvel e aceder à sua lista de favoritos em qualquer dispositivo.
41.000 €
Área de terreno : 269 m²
Terreno urbano com 269 m2 para construção de moradia. Inserido mesmo no centro da típica localidade ribatejana de Muge. O terreno está mesmo no centro urbano. Tem 3 frentes e tem 269 m2 e aí pode implantar a sua habitação. Situa-se numa das principais vias de Muge, Rua Mouzinho de Albuquerque, que liga à Rua Vasco da Gama, paralelas à N 118 para poente. Muge é conhecida pela qualidade da sua gastronomia e da sua enologia. Boas terras e boas águas dão bons produtos. Zona com vocação para caça, pesca, atividades hípicas, passeios pedestres, e muitas outras. Bem perto pode praticar desportos náuticos, no Porto de Muge ou Valada. A hospitalidade das suas gentes cheias de energia dão vida a quem aqui chega. Aqui encontra a Casa Cadaval e a Igreja matriz, com belo monumento. Bem próximo, ... o Silas, bem conhecido pela qualidade das suas bifanas. Tudo em Muge, na N 118, paralela à localização deste terreno. Marque a sua visita através dos contactos 219 589 840 ou 91 90 10 100 A MOVITUDO IMOBILIÁRIA, uma casa simpática. Há 28 anos dedicada a si na: • Mediação Imobiliária; • Intermediação de Crédito e • Mediação de Obras. Na MEDIAÇÃO IMOBILIÁRIA encontramos as melhores soluções e asseguramos um acompanhamento personalizado ao longo de todo o seu processo de: • Compra, venda ou arrendamento; • Investimento em imóveis da banca; • Imóveis de Oportunidade e • Imóveis de luxo ou golden visa. Na INTERMEDIAÇÃO DE CRÉDITO garantimos as melhores soluções do mercado ao nível do: • Crédito Habitação e • Crédito Hipotecário, para particulares e empresas. Na MEDIAÇÃO DE OBRAS apresentamos as melhores soluções face a padrões de qualidade que sempre nos pautaram. • Orçamentação Gratuita e • Um serviço personalizado de Chave na Mão. Na hora de comprar, vender ou arrendar o seu imóvel, lembre-se de si. Fale com MOVITUDO IMOBILIÁRIA. PORQUÊ COMPRAR COM A MOVITUDO? Diga-nos o que procura e iremos ajudá-lo(a). • FOCO no cliente; • DEDICAÇÃO na procura do imóvel ideal para si; • ORIENTAÇÃO para as suas necessidades; • RESPEITO pelos seus interesses; • INFORMAÇÃO de qualidade ao seu dispor; • ACOMPANHAMENTO em todas as fases do processo; • CONSULTORES ESPECIALISTAS em acompanhamento de compradores; • APOIO nas burocracias e • EXPERIÊNCIA comprovada desde 1992. PORQUÊ VENDER ou ARRENDAR COM A MOVITUDO? Basta contactar-nos e iremos ajudá-lo(a). • RESULTADOS comprovados; • EFICÁCIA na transação de imóveis; • CONHECIMENTO profundo do mercado imobiliário; • ORIENTAÇÃO para as suas necessidades; • PARTILHA com entidades de Licença AMI válida; • FOCO na prestação do melhor serviço e • EXPERIÊNCIA vasta e multidisciplinar.
AMI: 1804
Ref. Externa: 70500001
Id: 1540296
Inicie sessão para guardar este imóvel e aceder à sua lista de favoritos em qualquer dispositivo.
Área de terreno : 171 m²
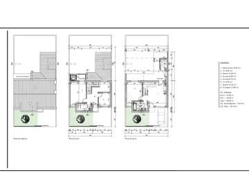
Terreno Urbano, localizado em Salvaterra de Magos, com área de 171m2, inserido numa urbanização de excelência para construção de moradia T2 ou T3 de 2 pisos, com 125 m2 de implantação e 200m2 de área bruta, Moradia em banda similar às que estão construídas na urbanização. NOTA: O terreno já possui projecto aprovado. Pode encontrar na proximidade: - agrupamento de escolas (desde o pré escolar ao secundário) - hipermercados (Continente e Lidl) - serviços - comércio - restauração - transportes públicos - posto de combustível - espaços verdes - parque infantil. Marque já a sua visita!
AMI: 68
Ref. Externa: 542.044
Id: 1517484
Inicie sessão para guardar este imóvel e aceder à sua lista de favoritos em qualquer dispositivo.
Área de terreno : 1600 m²
Terreno urbano com 1600m2 . Frente de 25m. Com água, luz, esgotos e comunicações. Viabilidade de construção até 2 pisos com indìce de 0,25% de implantação. Paragem de autocarro a 20m. Nos Foros de Salvaterra . Venha conhecer e construir a sua futura casa !! SOBRE NÓS A One Brokers é uma marca, que opera em Portugal desde 2018, liderada por uma equipa com mais de 10 anos de experiência no imobiliário e inteiramente disponível para o ajudar em todo o processo de compra da sua nova casa! One Brokers - Confiança a 100% desde o 1º negócio!
AMI: 15753
Ref. Externa: TER-TEUR_48
Id: 1487065
Inicie sessão para guardar este imóvel e aceder à sua lista de favoritos em qualquer dispositivo.
Área de terreno : 1102 m²
Terreno Urbano com 1102m2 para construção de moradia. Terreno com infraestruturas, (água , luz, comunicações) rua alcatroada e passeios. Localizado em zona sossegada, relativamente perto de algum comércio local e outros serviços.. A 1h de Lisboa através da A1. Conte comigo para a compra ou venda do seu imóvel. Antecipe-se a outros possíveis interessados Agende já a sua visita !..
AMI: 15116
Ref. Externa: 66524-MCCT62200
Id: 1462983
Inicie sessão para guardar este imóvel e aceder à sua lista de favoritos em qualquer dispositivo.
Área de terreno : 1102 m²
Terreno Urbano com 1102m2 para construção de moradia. Terreno com infraestruturas, rua alcatroada e passeios. Localizado em zona sossegada, relativamente perto de algum comércio local, Escola primária, Igreja e outros serviços.. A 1h de Lisboa através da A1. Conte comigo para a compra ou venda do seu imóvel. Antecipe-se a outros possíveis interessados Agende já a sua visita !..
AMI: 15116
Ref. Externa: 66529-MCCT62197
Id: 1462982
Inicie sessão para guardar este imóvel e aceder à sua lista de favoritos em qualquer dispositivo.
Área de terreno : 1327 m²
Terreno Urbano com 1327m2 para construção de moradia. Terreno com infraestruturas, (água , luz, comunicações) rua alcatroada e passeios. Localizado em zona sossegada, relativamente perto de algum comércio local e outros serviços.. A 1h de Lisboa através da A1. Conte comigo para a compra ou venda do seu imóvel. Antecipe-se a outros possíveis interessados Agende já a sua visita !..
AMI: 15116
Ref. Externa: 66530-MCCT62199
Id: 1462981
Inicie sessão para guardar este imóvel e aceder à sua lista de favoritos em qualquer dispositivo.
Área de terreno : 544 m²
Terreno em Salvaterra de Magos - Escaroupim (S550) Lote de Terreno para Construção – Aldeia Avieira do Escaroupim, Salvaterra de Magos Descubra este encantador lote de terreno com cerca de 544.40 m², situado no coração da Aldeia Avieira do Escaroupim, uma das localidades ribeirinhas mais pitorescas de Portugal. Com uma localização privilegiada junto ao Rio Tejo, este lote oferece o equilíbrio perfeito entre tranquilidade, natureza e autenticidade cultural. Não perca esta oportunidade de negócio! Os lares incorporam a forma como vivemos e nos vemos. Esses espaços evoluem quando nos concentramos no que nos faz felizes. Quando entramos em alguns lares, estes instantaneamente transmitem um sentimento acolhedor. Isto acontece porque o espaço é autêntico, um reflexo genuíno da pessoa ou família que lá vive. Apresentamos esta filosofia na nossa forma de trabalhar! Encontramos uma casa à sua medida, para construir o seu lar, de acordo com as suas necessidades, pretensões, vivências, ajustando-se o mesmo ao seu carácter e personalidade. O resultado será radiante alcançando a sua plena satisfação. Contacte-nos, conheça a forma como operamos! Apresentamos uma equipa profissional e segmentada em departamentos (Financeiro/Crédito, Marketing, Judicial, Apoio ao Cliente e Contratação), para que tenha o melhor serviço de consultoria em cada fase do processo. Trataremos de tudo, assegurando a máxima eficiência e eficácia nos serviços prestados. A única tarefa que terá ao seu encargo será mesmo a decisão na escolha do imóvel. - Se o seu sonho tem um endereço, nós levamo-lo à porta! A VENDO O MUNDO está no mercado imobiliário desde 2004, atuando desde então nos Distritos de Lisboa, Santarém, Setúbal e Évora. Contamos, para isso, com uma equipa de profissionais com a experiência e dedicação necessária, que fazem de nós a Imobiliária Líder da Região Centro. Encontre-nos em Marinhais, Salvaterra de Magos, Foros de Salvaterra, Benavente e Samora Correia. Encontre-nos também nos escritórios em Alverca, Vila Franca de Xira e em Mora. Os nossos 21 anos e a constante expansão do nosso raio de ação, são prova da confiança que temos merecido. Dispomos de uma carteira com centenas de clientes e imóveis, permitindo-nos negócios em tempo record. Um deles pode ser o seu! Esperamos por si!
AMI: 6282
Ref. Externa: S550
Id: 1454576
Inicie sessão para guardar este imóvel e aceder à sua lista de favoritos em qualquer dispositivo.
Área de terreno : 584 m²
Terreno em Salvaterra de Magos - Escaroupim (S549) Lote de Terreno para Construção – Aldeia Avieira do Escaroupim, Salvaterra de Magos Descubra este encantador lote de terreno com cerca de 584.80 m², situado no coração da Aldeia Avieira do Escaroupim, uma das localidades ribeirinhas mais pitorescas de Portugal. Com uma localização privilegiada junto ao Rio Tejo, este lote oferece o equilíbrio perfeito entre tranquilidade, natureza e autenticidade cultural. Não perca esta oportunidade de negócio! Os lares incorporam a forma como vivemos e nos vemos. Esses espaços evoluem quando nos concentramos no que nos faz felizes. Quando entramos em alguns lares, estes instantaneamente transmitem um sentimento acolhedor. Isto acontece porque o espaço é autêntico, um reflexo genuíno da pessoa ou família que lá vive. Apresentamos esta filosofia na nossa forma de trabalhar! Encontramos uma casa à sua medida, para construir o seu lar, de acordo com as suas necessidades, pretensões, vivências, ajustando-se o mesmo ao seu carácter e personalidade. O resultado será radiante alcançando a sua plena satisfação. Contacte-nos, conheça a forma como operamos! Apresentamos uma equipa profissional e segmentada em departamentos (Financeiro/Crédito, Marketing, Judicial, Apoio ao Cliente e Contratação), para que tenha o melhor serviço de consultoria em cada fase do processo. Trataremos de tudo, assegurando a máxima eficiência e eficácia nos serviços prestados. A única tarefa que terá ao seu encargo será mesmo a decisão na escolha do imóvel. - Se o seu sonho tem um endereço, nós levamo-lo à porta! A VENDO O MUNDO está no mercado imobiliário desde 2004, atuando desde então nos Distritos de Lisboa, Santarém, Setúbal e Évora. Contamos, para isso, com uma equipa de profissionais com a experiência e dedicação necessária, que fazem de nós a Imobiliária Líder da Região Centro. Encontre-nos em Marinhais, Salvaterra de Magos, Foros de Salvaterra, Benavente e Samora Correia. Encontre-nos também nos escritórios em Alverca, Vila Franca de Xira e em Mora. Os nossos 21 anos e a constante expansão do nosso raio de ação, são prova da confiança que temos merecido. Dispomos de uma carteira com centenas de clientes e imóveis, permitindo-nos negócios em tempo record. Um deles pode ser o seu! Esperamos por si!
AMI: 6282
Ref. Externa: S549
Id: 1454575
Inicie sessão para guardar este imóvel e aceder à sua lista de favoritos em qualquer dispositivo.
Área de terreno : 545 m²
Terreno em Salvaterra de Magos - Escaroupim (S548) Lote de Terreno para Construção – Aldeia Avieira do Escaroupim, Salvaterra de Magos Descubra este encantador lote de terreno com cerca de 545.80 m², situado no coração da Aldeia Avieira do Escaroupim, uma das localidades ribeirinhas mais pitorescas de Portugal. Com uma localização privilegiada junto ao Rio Tejo, este lote oferece o equilíbrio perfeito entre tranquilidade, natureza e autenticidade cultural. Não perca esta oportunidade de negócio! Os lares incorporam a forma como vivemos e nos vemos. Esses espaços evoluem quando nos concentramos no que nos faz felizes. Quando entramos em alguns lares, estes instantaneamente transmitem um sentimento acolhedor. Isto acontece porque o espaço é autêntico, um reflexo genuíno da pessoa ou família que lá vive. Apresentamos esta filosofia na nossa forma de trabalhar! Encontramos uma casa à sua medida, para construir o seu lar, de acordo com as suas necessidades, pretensões, vivências, ajustando-se o mesmo ao seu carácter e personalidade. O resultado será radiante alcançando a sua plena satisfação. Contacte-nos, conheça a forma como operamos! Apresentamos uma equipa profissional e segmentada em departamentos (Financeiro/Crédito, Marketing, Judicial, Apoio ao Cliente e Contratação), para que tenha o melhor serviço de consultoria em cada fase do processo. Trataremos de tudo, assegurando a máxima eficiência e eficácia nos serviços prestados. A única tarefa que terá ao seu encargo será mesmo a decisão na escolha do imóvel. - Se o seu sonho tem um endereço, nós levamo-lo à porta! A VENDO O MUNDO está no mercado imobiliário desde 2004, atuando desde então nos Distritos de Lisboa, Santarém, Setúbal e Évora. Contamos, para isso, com uma equipa de profissionais com a experiência e dedicação necessária, que fazem de nós a Imobiliária Líder da Região Centro. Encontre-nos em Marinhais, Salvaterra de Magos, Foros de Salvaterra, Benavente e Samora Correia. Encontre-nos também nos escritórios em Alverca, Vila Franca de Xira e em Mora. Os nossos 21 anos e a constante expansão do nosso raio de ação, são prova da confiança que temos merecido. Dispomos de uma carteira com centenas de clientes e imóveis, permitindo-nos negócios em tempo record. Um deles pode ser o seu! Esperamos por si!
AMI: 6282
Ref. Externa: S548
Id: 1454574
Inicie sessão para guardar este imóvel e aceder à sua lista de favoritos em qualquer dispositivo.
Área de terreno : 549 m²
Terreno em Salvaterra de Magos - Escaroupim (S547) Lote de Terreno para Construção – Aldeia Avieira do Escaroupim, Salvaterra de Magos Descubra este encantador lote de terreno com cerca de 549.50 m², situado no coração da Aldeia Avieira do Escaroupim, uma das localidades ribeirinhas mais pitorescas de Portugal. Com uma localização privilegiada junto ao Rio Tejo, este lote oferece o equilíbrio perfeito entre tranquilidade, natureza e autenticidade cultural. Não perca esta oportunidade de negócio! Os lares incorporam a forma como vivemos e nos vemos. Esses espaços evoluem quando nos concentramos no que nos faz felizes. Quando entramos em alguns lares, estes instantaneamente transmitem um sentimento acolhedor. Isto acontece porque o espaço é autêntico, um reflexo genuíno da pessoa ou família que lá vive. Apresentamos esta filosofia na nossa forma de trabalhar! Encontramos uma casa à sua medida, para construir o seu lar, de acordo com as suas necessidades, pretensões, vivências, ajustando-se o mesmo ao seu carácter e personalidade. O resultado será radiante alcançando a sua plena satisfação. Contacte-nos, conheça a forma como operamos! Apresentamos uma equipa profissional e segmentada em departamentos (Financeiro/Crédito, Marketing, Judicial, Apoio ao Cliente e Contratação), para que tenha o melhor serviço de consultoria em cada fase do processo. Trataremos de tudo, assegurando a máxima eficiência e eficácia nos serviços prestados. A única tarefa que terá ao seu encargo será mesmo a decisão na escolha do imóvel. - Se o seu sonho tem um endereço, nós levamo-lo à porta! A VENDO O MUNDO está no mercado imobiliário desde 2004, atuando desde então nos Distritos de Lisboa, Santarém, Setúbal e Évora. Contamos, para isso, com uma equipa de profissionais com a experiência e dedicação necessária, que fazem de nós a Imobiliária Líder da Região Centro. Encontre-nos em Marinhais, Salvaterra de Magos, Foros de Salvaterra, Benavente e Samora Correia. Encontre-nos também nos escritórios em Alverca, Vila Franca de Xira e em Mora. Os nossos 21 anos e a constante expansão do nosso raio de ação, são prova da confiança que temos merecido. Dispomos de uma carteira com centenas de clientes e imóveis, permitindo-nos negócios em tempo record. Um deles pode ser o seu! Esperamos por si!
AMI: 6282
Ref. Externa: S547
Id: 1454572
Inicie sessão para guardar este imóvel e aceder à sua lista de favoritos em qualquer dispositivo.
Área de terreno : 539 m²
Terreno em Salvaterra de Magos - Escaroupim (S546) Lote de Terreno para Construção – Aldeia Avieira do Escaroupim, Salvaterra de Magos Descubra este encantador lote de terreno com cerca de 539 m², situado no coração da Aldeia Avieira do Escaroupim, uma das localidades ribeirinhas mais pitorescas de Portugal. Com uma localização privilegiada junto ao Rio Tejo, este lote oferece o equilíbrio perfeito entre tranquilidade, natureza e autenticidade cultural. Não perca esta oportunidade de negócio! Os lares incorporam a forma como vivemos e nos vemos. Esses espaços evoluem quando nos concentramos no que nos faz felizes. Quando entramos em alguns lares, estes instantaneamente transmitem um sentimento acolhedor. Isto acontece porque o espaço é autêntico, um reflexo genuíno da pessoa ou família que lá vive. Apresentamos esta filosofia na nossa forma de trabalhar! Encontramos uma casa à sua medida, para construir o seu lar, de acordo com as suas necessidades, pretensões, vivências, ajustando-se o mesmo ao seu carácter e personalidade. O resultado será radiante alcançando a sua plena satisfação. Contacte-nos, conheça a forma como operamos! Apresentamos uma equipa profissional e segmentada em departamentos (Financeiro/Crédito, Marketing, Judicial, Apoio ao Cliente e Contratação), para que tenha o melhor serviço de consultoria em cada fase do processo. Trataremos de tudo, assegurando a máxima eficiência e eficácia nos serviços prestados. A única tarefa que terá ao seu encargo será mesmo a decisão na escolha do imóvel. - Se o seu sonho tem um endereço, nós levamo-lo à porta! A VENDO O MUNDO está no mercado imobiliário desde 2004, atuando desde então nos Distritos de Lisboa, Santarém, Setúbal e Évora. Contamos, para isso, com uma equipa de profissionais com a experiência e dedicação necessária, que fazem de nós a Imobiliária Líder da Região Centro. Encontre-nos em Marinhais, Salvaterra de Magos, Foros de Salvaterra, Benavente e Samora Correia. Encontre-nos também nos escritórios em Alverca, Vila Franca de Xira e em Mora. Os nossos 21 anos e a constante expansão do nosso raio de ação, são prova da confiança que temos merecido. Dispomos de uma carteira com centenas de clientes e imóveis, permitindo-nos negócios em tempo record. Um deles pode ser o seu! Esperamos por si!
AMI: 6282
Ref. Externa: S546
Id: 1454571
Inicie sessão para guardar este imóvel e aceder à sua lista de favoritos em qualquer dispositivo.
Área de terreno : 529 m²
Terreno em Salvaterra de Magos - Escaroupim (S545) Lote de Terreno para Construção – Aldeia Avieira do Escaroupim, Salvaterra de Magos Descubra este encantador lote de terreno com cerca de 529 m², situado no coração da Aldeia Avieira do Escaroupim, uma das localidades ribeirinhas mais pitorescas de Portugal. Com uma localização privilegiada junto ao Rio Tejo, este lote oferece o equilíbrio perfeito entre tranquilidade, natureza e autenticidade cultural. Não perca esta oportunidade de negócio! Os lares incorporam a forma como vivemos e nos vemos. Esses espaços evoluem quando nos concentramos no que nos faz felizes. Quando entramos em alguns lares, estes instantaneamente transmitem um sentimento acolhedor. Isto acontece porque o espaço é autêntico, um reflexo genuíno da pessoa ou família que lá vive. Apresentamos esta filosofia na nossa forma de trabalhar! Encontramos uma casa à sua medida, para construir o seu lar, de acordo com as suas necessidades, pretensões, vivências, ajustando-se o mesmo ao seu carácter e personalidade. O resultado será radiante alcançando a sua plena satisfação. Contacte-nos, conheça a forma como operamos! Apresentamos uma equipa profissional e segmentada em departamentos (Financeiro/Crédito, Marketing, Judicial, Apoio ao Cliente e Contratação), para que tenha o melhor serviço de consultoria em cada fase do processo. Trataremos de tudo, assegurando a máxima eficiência e eficácia nos serviços prestados. A única tarefa que terá ao seu encargo será mesmo a decisão na escolha do imóvel. - Se o seu sonho tem um endereço, nós levamo-lo à porta! A VENDO O MUNDO está no mercado imobiliário desde 2004, atuando desde então nos Distritos de Lisboa, Santarém, Setúbal e Évora. Contamos, para isso, com uma equipa de profissionais com a experiência e dedicação necessária, que fazem de nós a Imobiliária Líder da Região Centro. Encontre-nos em Marinhais, Salvaterra de Magos, Foros de Salvaterra, Benavente e Samora Correia. Encontre-nos também nos escritórios em Alverca, Vila Franca de Xira e em Mora. Os nossos 21 anos e a constante expansão do nosso raio de ação, são prova da confiança que temos merecido. Dispomos de uma carteira com centenas de clientes e imóveis, permitindo-nos negócios em tempo record. Um deles pode ser o seu! Esperamos por si!
AMI: 6282
Ref. Externa: S545
Id: 1454570
Inicie sessão para guardar este imóvel e aceder à sua lista de favoritos em qualquer dispositivo.
Área de terreno : 2800 m²
Terreno em Escaroupim - Salvaterra de Magos (S544) Terreno agrícola com 2800m2 Agende já a sua visita! Os lares incorporam a forma como vivemos e nos vemos. Esses espaços evoluem quando nos concentramos no que nos faz felizes. Quando entramos em alguns lares, estes instantaneamente transmitem um sentimento acolhedor. Isto acontece porque o espaço é autêntico, um reflexo genuíno da pessoa ou família que lá vive. Apresentamos esta filosofia na nossa forma de trabalhar! Encontramos uma casa à sua medida, para construir o seu lar, de acordo com as suas necessidades, pretensões, vivências, ajustando-se o mesmo ao seu carácter e personalidade. O resultado será radiante alcançando a sua plena satisfação. Contacte-nos, conheça a forma como operamos! Apresentamos uma equipa profissional e segmentada em departamentos (Financeiro/Crédito, Marketing, Judicial, Apoio ao Cliente e Contratação), para que tenha o melhor serviço de consultoria em cada fase do processo. Trataremos de tudo, assegurando a máxima eficiência e eficácia nos serviços prestados. A única tarefa que terá ao seu encargo será mesmo a decisão na escolha do imóvel. - Se o seu sonho tem um endereço, nós levamo-lo à porta! A VENDO O MUNDO está no mercado imobiliário desde 2004, atuando desde então nos Distritos de Lisboa, Santarém, Setúbal e Évora. Contamos, para isso, com uma equipa de profissionais com a experiência e dedicação necessária, que fazem de nós a Imobiliária Líder da Região Centro. Encontre-nos em Marinhais, Salvaterra de Magos, Foros de Salvaterra, Benavente e Samora Correia. Encontre-nos também nos escritórios em Alverca, Vila Franca de Xira e em Mora. Os nossos 21 anos e a constante expansão do nosso raio de ação, são prova da confiança que temos merecido. Dispomos de uma carteira com centenas de clientes e imóveis, permitindo-nos negócios em tempo record. Um deles pode ser o seu! Esperamos por si!
AMI: 6282
Ref. Externa: S544
Id: 1452610
Inicie sessão para guardar este imóvel e aceder à sua lista de favoritos em qualquer dispositivo.
Estes agentes são especialistas nesta zona:
Inicie sessão para ocultar este imóvel das suas pesquisas e manter a sua lista de resultados organizada.
Guardar favoritos
Este imóvel foi guardados nos seus favoritos com sucesso.
Para poder guardar pesquisa deverá ter a sua sessão iniciada.
Caso não tenha uma conta, deverá criar uma.
A sua pesquisa foi guardada com sucesso!
© Copyright 2023 | CASACERTA. All rights reserved
Este site utiliza cookies. Ao navegar no site estará a consentir a sua utilização.
Para mais informações sobre os cookies pode consultar a
política de privacidade.