Lista
Comprar
Arrendar
2 WCs
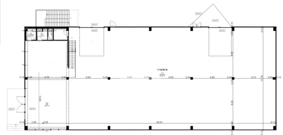
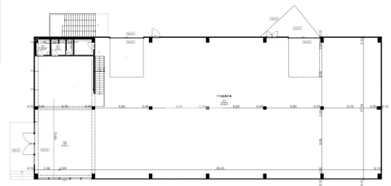
Área bruta : 930 m²
Junto à Zona Industrial de Constantim em Vila Real, imóvel novo com 930 m2, licenciado para Armazém, Comércio e Serviços, com cais desnivelado, montra de 22 metros de comprimento e 2,20 metros de altura, duas casas de banho, duas saídas de emergência e logradouro de 1.377 m2. | Medidas | - Área: Comprimento: 43 m | Largura 17 m (completamente desobstruídos - não tem pilares no meio) - Pé direito: Armazém: À viga: 4,55 m; à laje: 5,15 m Por baixo do mezanino: À viga: 2,20 m; à laje: 2,90 m Mezanino: 2,30 m a 3,10 m - Portão principal: Largura: 4,20 m; altura: 4,00 m - Portão cais: Largura: 4,00 m; altura: 4,00 m - Área do mezanino: 112 m2 (16 m x 7 m) | Nota | - Poder-se-á adicionar a este arrendamento, outra fração no piso inferior do mesmo armazém com as seguintes características principais: - Área bruta: 789 m2 - Área útil: 722 m2 - Área de logradouro: 540 m2 - Valor da renda: 4.000€ Mensais | Zona Envolvente | Aeródromo, Ampla Oferta de Serviços, Autoestrada, Estacionamento, Estacionamento Público, Excelentes Acessos, Posto de Combustível, Transportes Públicos, Zona Industrial | Condições de arrendamento | A combinar
AMI: 14033
Ref. Externa: MAG_1101
Id: 1387922
Inicie sessão para guardar este imóvel e aceder à sua lista de favoritos em qualquer dispositivo.
4 WCs
Área bruta : 1719 m²
Junto à Zona Industrial de Constantim em Vila Real, armazém novo com 1719 m2, de rés do chão (área bruta: 789 m2) e andar (área bruta: 930 m2), licenciado para Armazém, Comércio e Serviços, com duas montras, entradas independentes, cais e logradouro de 1917 m2. Características principais de cada andar: - Rés do chão: | Medidas | - Área: Comprimento: 43 m | Largura 17 m - Pé direito: À viga: 4,55 m; À laje: 5,15 m - Portão: Largura: 3,70 m; Altura: 4,90 m - Montra: Comprimento: 13 m | Altura: 4,90 m --------------------------------------------- - 1º Andar: | Medidas | - Área: Comprimento: 43 m | Largura 17 m (completamente desobstruídos - não tem pilares no meio) - Pé direito: Armazém: À viga: 4,55 m; à laje: 5,15 m Por baixo do mezanino: À viga: 2,20 m; à laje: 2,90 m Mezanino: 2,30 m a 3,10 m - Portão principal: Largura: 4,20 m; altura: 4,00 m - Portão cais: Largura: 4,00 m; altura: 4,00 m - Área do mezanino: 112 m2 (16 m x 7 m) - Montra: Comprimento: 22 m | Altura: 2,20 m | Nota | Os armazéns do R/C e 1º Andar são completamente independentes e estão disponíveis para serem arrendados em separado: - Rés do chão (área bruta: 789 m2): 4.000€ mensais; - 1º Andar (área bruta: 930 m2): 5.000€ mensais | Zona Envolvente | Aeródromo, Ampla Oferta de Serviços, Autoestrada, Estacionamento, Estacionamento Público, Excelentes Acessos, Posto de Combustível, Transportes Públicos, Zona Industrial | Condições de arrendamento | A combinar
AMI: 14033
Ref. Externa: MAG_1099
Id: 1386292
Inicie sessão para guardar este imóvel e aceder à sua lista de favoritos em qualquer dispositivo.
2 WCs
Área bruta : 789 m²
Junto à Zona Industrial de Constantim em Vila Real, imóvel novo com 789 m2, licenciado para Armazém, Comércio e Serviços, com montra de 13 metros de comprimento e 4,90 metros de altura, duas casas de banho, duas saídas de emergência e logradouro de 540 m2. | Medidas | - Área: Comprimento: 43 m | Largura 17 m - Pé direito: À viga: 4,55 m; À laje: 5,15 m - Portão: Largura: 3,70 m; Altura: 4,90 m | Nota | - Poder-se-á adicionar a este arrendamento, outra fração no piso superior do mesmo armazém com as seguintes características principais: - Área bruta: 930 m2 - Área útil: 750 m2 - Área de logradouro: 1.377 m2 - Conta também com: cais desnivelado, montra, mezanino, etc - Valor da renda: 5.000€ Mensais | Zona Envolvente | Aeródromo, Ampla Oferta de Serviços, Autoestrada, Estacionamento, Estacionamento Público, Excelentes Acessos, Posto de Combustível, Transportes Públicos, Zona Industrial | Condições de arrendamento | A combinar
AMI: 14033
Ref. Externa: MAG_1100
Id: 1386293
Inicie sessão para guardar este imóvel e aceder à sua lista de favoritos em qualquer dispositivo.
3 WCs
Área bruta : 800 m²
Licenciado para Armazém, Comércio e Serviços, Imóvel novo com logradouro junto à Zona Industrial de Constantim, em Vila Real. | Configuração do armazém | Zona de armazém, três casas de banho e dois escritórios | Áreas | - Área Útil: 659,50 m2 - Área Bruta: 800 m2 - Área do logradouro total: 1.500 m2 - Área de logradouro (pavimentado): 1.000 m2 | Dimensões | - Pé direito: de 5 m (junto às paredes) a 6,20 m (no meio) - Largura: 20 m - Comprimento: 35,20 m - Portões: Altura: 4,70 m Largura: 3,90 m Condições de Arrendamento: A combinar
AMI: 14033
Ref. Externa: MAG_1066
Id: 1205211
Inicie sessão para guardar este imóvel e aceder à sua lista de favoritos em qualquer dispositivo.
Área útil : 200 m²
Anda à procura de espaço para expandir o seu negócio? Este armazém em Lordelo é a solução ideal. Localizado numa zona de serviços privilegiada, oferece acesso conveniente e amplo espaço para as suas operações, acesso fácil às principais vias, ideal para logística e distribuição. Você sonha, nós Realizamos
AMI: 17144
Ref. Externa: RZ491/25
Id: 1112860
Inicie sessão para guardar este imóvel e aceder à sua lista de favoritos em qualquer dispositivo.
Área útil : 580 m²
ARMAZÉM PARA ARRENDAMENTO NA ZONA INDUSTRIAL DE VILA REALEspaço ideal para o seu negócio!Localizado na zona industrial de Vila Real, com excelente acessibilidade e proximidade às principais vias de transporte.Marque já a sua visita!Não perca a oportunidade de investir num espaço funcional e bem localizado!
AMI: 17144
Ref. Externa: RZ702
Id: 986789
Inicie sessão para guardar este imóvel e aceder à sua lista de favoritos em qualquer dispositivo.
2 WCs
Área bruta : 580 m²
Na Zona Industrial de Constantim, em Vila Real, armazém de 580 m2 composto por espaço amplo de armazém, zona administrativa com luz natural, duas casas de banho e arrumos. | Zona Envolvente | Aeródromo, Ampla Oferta de Serviços, Auto-Estrada, Estacionamento, Estacionamento Público, Orientação Solar(Sul), Posto de Combustível, Transportes Públicos, Zona Comercial, Zona Industrial | Áreas e Dimensões | Área útil de armazém: 529 m² Pé direito: 3,86 m Portão: Largura: 3,95 m Altura: 3,5 m | Condições de arrendamento | Sugerimos, que, antes de nos contatarem vejam por favor as Condições de Arrendamento: - Prazo inicial do contrato de arrendamento: Mínimo 12 meses - Nota: Valor a entregar na assinatura do contrato de arrendamento: O equivalente a duas rendas mensais (Primeiro mês de renda e outro de caução) - Resposta a uma pergunta frequente: É necessário fiador ou garantia? Poderá ou não ser necessário. O proprietário analisará caso a caso.
AMI: 14033
Ref. Externa: MAG_970
Id: 857238
Inicie sessão para guardar este imóvel e aceder à sua lista de favoritos em qualquer dispositivo.
Área bruta : 501 m²
Armazém Amplo com 501m2 na Zona Industrial de Constantim em Vila Real | Zona Envolvente | Aeródromo, Autoestrada, Escola, Estacionamento, Estacionamento Público, Excelentes Acessos, Posto de Combustível, Transportes Públicos, Vista para Campo; | Nota | Prazo do Contrato de Arrendamento e Respetivas Condições, a Combinar;
AMI: 14033
Ref. Externa: MAG_479
Id: 857221
Inicie sessão para guardar este imóvel e aceder à sua lista de favoritos em qualquer dispositivo.
Estes agentes são especialistas nesta zona:
Inicie sessão para ocultar este imóvel das suas pesquisas e manter a sua lista de resultados organizada.
Guardar favoritos
Este imóvel foi guardados nos seus favoritos com sucesso.
Para poder guardar pesquisa deverá ter a sua sessão iniciada.
Caso não tenha uma conta, deverá criar uma.
A sua pesquisa foi guardada com sucesso!
© Copyright 2023 | CASACERTA. All rights reserved
Este site utiliza cookies. Ao navegar no site estará a consentir a sua utilização.
Para mais informações sobre os cookies pode consultar a
política de privacidade.