Voltar
Terreno para Venda em Oliveira do Bairro Foto 1
Terreno para Venda em Oliveira do Bairro Foto 2
Terreno para Venda em Oliveira do Bairro Foto 3
Terreno para Venda em Oliveira do Bairro Foto 4
Terreno para Venda em Oliveira do Bairro Foto 5

Terreno para Venda em Oliveira do Bairro

100.000 €

Tipo
Terreno
Negócio
Venda
Condição
Não Aplicável
Certificado Energético
Isento
Área do Terreno
1402 m²

Terreno com Benfeitorias em Vila Verde

Terreno com Benfeitorias e Projeto Aprovado - Oliveira do Bairro

Vende-se excelente terreno totalmente murado, com portão de entrada e diversas benfeitorias já legalizadas.

No local encontra-se um mobile home, garagem e armazém de arrumos, tudo devidamente regularizado. O terreno conta ainda com calçada feita, água, luz e saneamento instalados.

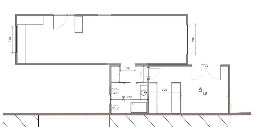
O imóvel dispõe de projeto aprovado pela Câmara Municipal de Oliveira do Bairro para a construção de uma moradia térrea T1, ideal para habitação permanente ou casa de férias.

Terreno com várias árvores de fruto (28 no total), oferecendo um ambiente tranquilo e natural.

Localização privilegiada, em zona calma e com bons acessos.
Oportunidade única para quem procura um espaço pronto a habitar ou investir!

Marque já a sua visita!

REF:1051364/25 OB

Localização

Oliveira do Bairro, Oliveira do Bairro, Aveiro

Informação do anúncio

ID do anúncio 1451811
Referência Externa 1051364/25 OB
Atualizado em 04/12/2025 12:13:15
Arcada Oliveira do Bairro AMI 9283
Referência do imóvel: 1051364/25 OB
Phone
Chamada para a rede fixa nacional
Arcada Imobiliária Oliveira do Bairro
Arcada Imobiliária Oliveira do Bairro
Phone
Chamada para a rede móvel nacional
Arcada Oliveira do Bairro AMI 9283
Referência do imóvel: 1051364/25 OB
Phone
Chamada para a rede fixa nacional
Arcada Imobiliária Oliveira do Bairro
Arcada Imobiliária Oliveira do Bairro
Phone
Chamada para a rede móvel nacional
1 / 12
Terreno para Venda em Oliveira do Bairro Foto 1
Terreno para Venda em Oliveira do Bairro Foto 2
Terreno para Venda em Oliveira do Bairro Foto 3
Terreno para Venda em Oliveira do Bairro Foto 4
Terreno para Venda em Oliveira do Bairro Foto 5
Terreno para Venda em Oliveira do Bairro Foto 6
Terreno para Venda em Oliveira do Bairro Foto 7
Terreno para Venda em Oliveira do Bairro Foto 8
Terreno para Venda em Oliveira do Bairro Foto 9
Terreno para Venda em Oliveira do Bairro Foto 10
Terreno para Venda em Oliveira do Bairro Foto 11
Terreno para Venda em Oliveira do Bairro Foto 12
Clicky