Terreno Misto para Venda em Sesimbra (Castelo)
690.000 €
Tipo
Terreno Misto
Negócio
Venda
Área Bruta
360 m²
Área Útil
239 m²
Condição
Não Aplicável
Certificado Energético
Isento
Área do Terreno
10000 m²
Apresentamos um terreno singular no coração do Meco, em Sesimbra - um refúgio onde a natur
Apresentamos um terreno singular no coração do Meco, em Sesimbra - um refúgio onde a natureza, a proximidade do mar e a arquitetura contemporânea se encontram.
Localizado na zona de Fornos, considerada uma das mais nobres e procuradas da região, este terreno desfruta de uma posição privilegiada: imerso na calma da paisagem natural e, ao mesmo tempo, a poucos minutos de pontos icónicos da vida local - da tradicional Padaria das Caixas ao Café Baratinha, sem esquecer a descontraída 'Pizza na Praia'.
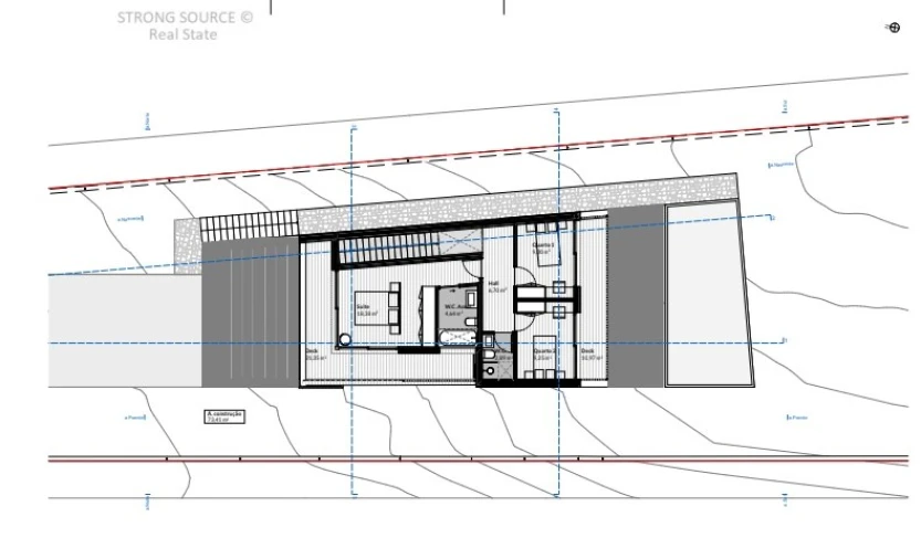
O lote, com os seus generosos 1ha , distingue-se não apenas pela localização excecional, mas também pelo projeto aprovado para uma Mima House V3+2 - uma obra-prima da arquitetura minimalista portuguesa.
A Mima House foi concebida como um refúgio contemporâneo, inspirada na simplicidade escandinava e no equilíbrio com a natureza. Criada com detalhe ao milímetro, esta casa alia linhas puras e elegantes a uma vivência fluída entre interior e exterior. Grandes superfícies envidraçadas trazem a paisagem para dentro de casa, inundando cada espaço de luz natural. Além disso, as paredes da sala abrem-se totalmente, permitindo uma visão contínua da piscina e do mar em ambos os lados, criando uma sensação de harmonia total com a envolvente.
O design é sustentável e intemporal: estruturas em madeira de abeto, acabamentos claros e desenhado à medida criam uma atmosfera acolhedora e sofisticada. Cada detalhe reflete uma filosofia de bem-estar, onde conforto e estética se unem à consciência ambiental.
O terreno conta ainda com a possibilidade de construção de um apoio agrícola de 45 m², mediante apresentação de projeto ligado à agricultura local (como já acontece com os reconhecidos 'Maçãs Camoesas'). Um esboço de orçamento para esta construção encontra-se já elaborado.
Na parte traseira, o terreno estende-se até a um pequeno vale, outrora utilizado para plantação agrícola e onde permanecem algumas árvores de fruto - um espaço com enorme potencial para revitalização e aproveitamento sustentável, já com um furo de água artesiano legalizado.
Mais do que um terreno, esta é uma oportunidade de viver um estilo de vida único - entre a serenidade da natureza e a proximidade do oceano, num lar concebido como um verdadeiro refúgio.
Localizado na zona de Fornos, considerada uma das mais nobres e procuradas da região, este terreno desfruta de uma posição privilegiada: imerso na calma da paisagem natural e, ao mesmo tempo, a poucos minutos de pontos icónicos da vida local - da tradicional Padaria das Caixas ao Café Baratinha, sem esquecer a descontraída 'Pizza na Praia'.
O lote, com os seus generosos 1ha , distingue-se não apenas pela localização excecional, mas também pelo projeto aprovado para uma Mima House V3+2 - uma obra-prima da arquitetura minimalista portuguesa.
A Mima House foi concebida como um refúgio contemporâneo, inspirada na simplicidade escandinava e no equilíbrio com a natureza. Criada com detalhe ao milímetro, esta casa alia linhas puras e elegantes a uma vivência fluída entre interior e exterior. Grandes superfícies envidraçadas trazem a paisagem para dentro de casa, inundando cada espaço de luz natural. Além disso, as paredes da sala abrem-se totalmente, permitindo uma visão contínua da piscina e do mar em ambos os lados, criando uma sensação de harmonia total com a envolvente.
O design é sustentável e intemporal: estruturas em madeira de abeto, acabamentos claros e desenhado à medida criam uma atmosfera acolhedora e sofisticada. Cada detalhe reflete uma filosofia de bem-estar, onde conforto e estética se unem à consciência ambiental.
O terreno conta ainda com a possibilidade de construção de um apoio agrícola de 45 m², mediante apresentação de projeto ligado à agricultura local (como já acontece com os reconhecidos 'Maçãs Camoesas'). Um esboço de orçamento para esta construção encontra-se já elaborado.
Na parte traseira, o terreno estende-se até a um pequeno vale, outrora utilizado para plantação agrícola e onde permanecem algumas árvores de fruto - um espaço com enorme potencial para revitalização e aproveitamento sustentável, já com um furo de água artesiano legalizado.
Mais do que um terreno, esta é uma oportunidade de viver um estilo de vida único - entre a serenidade da natureza e a proximidade do oceano, num lar concebido como um verdadeiro refúgio.
Localização
Sesimbra (Castelo), Sesimbra, Setúbal
Informação do anúncio
ID do anúncio
1454298
Referência Externa
TER_1428
Atualizado em
18/04/2026 04:47:00
Anunciante
Chamada para a rede fixa nacional
Strong Source - Mediação Imobiliária, Lda.
AMI 9476
Referência do imóvel:
TER_1428
Consultor
STRONG SOURCE - MEDIACAO IMOBILIARIA
Terreno Misto para Venda em Sesimbra (Castelo)
Vídeo
Terreno Misto para Venda em Sesimbra (Castelo)