Moradia T3 para Venda em Tavira (Santa Maria e Santiago)
550.000 €
Tipo
Moradia
Negócio
Venda
Quartos
3
Área Bruta
169 m²
Área Útil
121 m²
Condição
Usado
Certificado Energético
A
Área do Terreno
105 m²
Moradia em Banda T3 Venda em Tavira (Santa Maria e Santiago),Tavira
Moradia T3 Nova na Periferia de Tavira – A 1km da Ponte Romana
Apresentamos esta moderna moradia T3 de arquitetura contemporânea, situada numa zona tranquila da periferia da cidade, a apenas 1 km da emblemática Ponte Romana e do centro histórico da cidade.
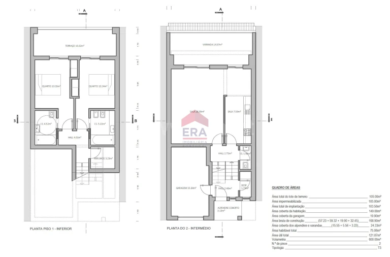
Distribuída por três pisos, esta casa oferece conforto, funcionalidade e excelentes acabamentos:
Rés-do-chão: garagem privativa, WC de serviço, ampla sala de estar e jantar com acesso direto ao exterior, e cozinha totalmente equipada, ideal para momentos de convívio.
Primeiro piso: suite principal com roupeiros embutidos e varanda.
Subcave: dois quartos em suite, ambos com boa luminosidade natural e áreas generosas, e com acesso a uma varanda espaçosa.
A moradia foi projetada com atenção ao detalhe, combinando design moderno, materiais de qualidade e excelente aproveitamento de luz natural.
A sua localização estratégica proporciona a tranquilidade da periferia, mantendo-se próxima de todos os serviços, comércio e das belas praias de Tavira.
Ideal para residência permanente, segunda habitação ou investimento.
Este site utiliza cookies. Ao navegar no site estará a consentir a sua utilização. Para mais informações sobre os cookies pode consultar a
política de privacidade.