Apartamento T3 para arrendamento
APARTAMENTO DUPLEX PARA ARRENDAMENTO NO MONTE ESTORIL - não mobilado
Este charmoso apartamento situado no Monte Estoril é constituído por dois pisos e, graças à sua excelente exposição solar, às suas janelas de grandes dimensões e aos tetos altos, possui uma luminosidade invulgar.
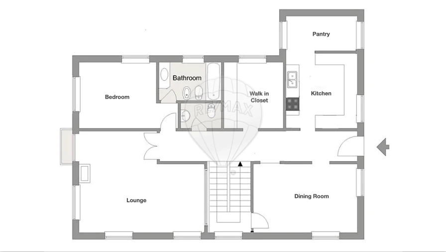
Com uma área total de 225m², o apartamento distribui-se elegantemente da seguinte forma:
Piso inferior:
- Suíte, com ampla casa de banho completa;
- Walk in closet muito espaçoso, com janela;
- Casa de banho social;
- Ampla sala de estar com lareira;
- Sala de jantar.
- Cozinha equipada com placa, forno elétrico, micro-ondas, frigorífico e máquina de lavar loiça;
- Zona de lavandaria equipada com máquinas de lavar roupa e de secar.
Piso superior:
- Em estilo loft, encontramos neste piso dois quartos, uma casa de banho completa, uma zona de escritório e diversos espaços para arrumos.
Localização Monte Estoril: Zona residencial tranquila e luxuosa, fica a 15 minutos a pé da Praia, do Paredão de Cascais e da Estação de Comboios do Estoril. A zona é servida por todo tipo de serviços e comercio, conta também com escolas tradicionais e internacionais. O apartamento fica próximo de estações de autocarros, a 3 minutos de carro do Pingo Doce e a 30 minutos de Lisboa e do aeroporto.
ENG
DUPLEX
APARTMENT FOR RENT IN MONTE ESTORIL - unfurnished
This charming apartment located in Monte Estoril has two floors and, thanks to its
excellent sun exposure, large windows and high ceilings, has unusual brightness.
With a total area of 225m², the apartment is elegantly distributed as follows:
Lower floor:
- Suite with large full bathroom;
- Generous walk-in closet with window;
- Guest bathroom;
- Large living room with fireplace;
- Dining room;
- Kitchen equipped with stove, electric oven, microwave, refrigerator and dishwasher;
- Laundry area equipped with washing and drying machines.
Upper floor:
- Loft-style, this floor has two bedrooms, a full bathroom, an office area and
several storage spaces.
Location
Monte Estoril: Quiet and comfortable residential area, a 15-minute walk from the
beach, the Cascais promenade and the Estoril train station. The area is served
by all types of services and shops as well as traditional and international schools.
The apartment is close to bus stations, a 3-minute drive from Pingo Doce supermarket, and 30 minutes from Lisbon and the airport.
;ID RE/MAX: 126261211-1