Moradia T2 para Venda em Amoreira
640.000 €
Tipo
Moradia
Negócio
Venda
Quartos
2
Casas de Banho
2
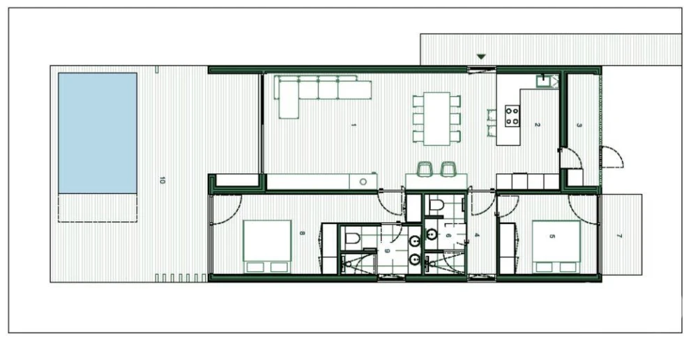
Área Útil
158 m²
Certificado Energético
A+
Casa / Villa T2 em Amoreira de 158,00 m²
Eco House T2 à Venda na Costa de Prata
PROJECTO ECO HOUSE *5 ESTRELAS* - ÚNICO EM PORTUGAL
Um refúgio ecológico junto ao mar — onde o design contemporâneo encontra a natureza
O sucesso deste projeto, perfeitamente alinhado com a natureza e com a crescente sensibilidade ecológica do consumidor moderno, já é evidente: das quatro fases de construção, a primeira encontra-se totalmente RESERVADA, refletindo o reconhecimento e a procura por um estilo de vida sustentável, moderno e em harmonia com o ambiente.
Venha Fazer Parte deste Projeto!
Entre o azul do oceano e o verde tranquilo das florestas, nasce um refúgio singular, concebido para quem procura um estilo de vida sustentável, sofisticado e em plena harmonia com o meio envolvente. Aqui, a arquitetura moderna funde-se com a paisagem natural, criando um ambiente sereno, equilibrado e profundamente inspirador.
Localizado junto à histórica vila de Óbidos, na deslumbrante Costa de Prata, este empreendimento exclusivo oferece o privilégio de viver entre o mar e o lago, num cenário onde o conforto contemporâneo e o respeito pela natureza se complementam.
Mais do que um espaço para habitar, é uma forma de viver — saudável, consciente e integrada no ritmo natural do lugar.
Residências com alma natural:
Composto por 135 moradias elegantes, este projeto foi desenhado para se integrar discretamente na paisagem. Linhas puras, materiais ecológicos e texturas orgânicas criam um ambiente de serenidade e equilíbrio, onde cada casa se abre ao exterior através de amplas janelas e espaços fluidos.
As moradias dispõem de:
•Piscina privada
•Jardins e terraços panorâmicos
•Pacote de mobiliário opcional: €45.000 (IVA incluído)
Os interiores combinam estética contemporânea e eficiência ecológica, com soluções que privilegiam a luz natural e o bem-estar.
Design e sustentabilidade:
•Construção sustentável, com materiais de origem ecológica
•Pavimentos flutuantes em tons neutros e naturais
•Revestimentos em madeira clara de três camadas
•Cozinhas modernas com bancadas Silestone e eletrodomésticos Bosch
•Casas de banho com design minimalista e duche em vidro temperado
•Climatização embutida e silenciosa
•Bomba de calor de alta eficiência energética
•Caixilharia em alumínio com rutura térmica e vidros duplos isolantes
•Sistema de ventilação centralizada e acesso eletrónico inteligente
Cada detalhe reflete o compromisso com o conforto, a durabilidade e a harmonia ambiental.
Natureza, lazer e bem-estar:
O resort foi idealizado para proporcionar vida ao ar livre e contacto direto com a natureza.
Os percursos pedonais e ciclovias serpenteiam entre pinheiros e margens tranquilas, enquanto jardins com espécies autóctones e iluminação suave reforçam a sensação de equilíbrio e serenidade.
Comodidades e serviços:
•Lago natural para banho e lazer
•Centro de bem-estar com spa e ginásio panorâmico
•Restaurante e bar com vista sobre a água
•Campos de padel, trilhos pedestres e ciclovias
•Espaço de coworking totalmente equipado
•Estações de carregamento para veículos elétricos
•Receção e segurança permanentes
•Serviços de gestão, limpeza e manutenção
Tudo foi pensado para proporcionar um estilo de vida sustentável, elegante e relaxado, num cenário de rara beleza natural.
Planeamento e desenvolvimento:
O projeto está estruturado em quatro fases cuidadosamente planeadas, garantindo uma integração harmoniosa e um desenvolvimento equilibrado:
1.Criação do primeiro lago, zonas comuns, restaurante, spa, ginásio e as primeiras moradias à beira da água.
oFase inicial — unidades totalmente RESERVADAS
2.Expansão do segundo lago e novas moradias.
3.Desenvolvimento do terceiro lago e cabanas ecológicas com piscina privada.
4.Conclusão do quarto lago e das áreas de lazer complementares.
Viver em sintonia com a natureza:
Este empreendimento é um tributo ao equilíbrio entre modernidade e natureza.
Um espaço concebido para quem valoriza o design contemporâneo, a sustentabilidade e a liberdade de viver perto do mar, num ambiente calmo, verde e inspirador.
Localização e Acessibilidades:
A moradia esta localizada na Costa Oeste (Silver Coast) numa região rica em cultura e história, com fácil acesso a praias, áreas verdes e uma variedade de serviços e comércio, tornando-a uma escolha atrativa para quem deseja qualidade de vida na cidade de Caldas da Rainha.
- Caldas da Rainha conhecida pelas suas fontes termais e pela cerâmica artística e um estilo de vida vibrante e repleto de cultura;
- Foz do Arelho a 8 Km com uma bela praia que combina o mar e a lagoa, ideal para desportos aquáticos e passeios;
- Óbidos a 10 Km uma vila medieval cercada pelas muralhas do seu Castelo repleta de atividades culturais o ano inteiro;
- Nazaré a 30 km de distância famosa pelas suas ondas gigantes, a Nazaré é um destino popular entre surfistas. Localidade vibrante, repleta de bares, cafés e restaurantes;
Alcobaça a 25 km conhecida pelo Mosteiro Gótico um dos mais importantes do País;
- Servida por duas importantes autoestradas (A8 e A15) que o ligam aos mais importantes pontos da Região e ao Aeroporto Internacional de Lisboa a 80 Km.
✨ Um novo conceito de vida ecológica e moderna, junto ao oceano e à tranquilidade da natureza
Faça já seu contacto e obtenha mais informações e venha fazer parte deste projeto!
+351 961805938
Susana Leal – REALTOR® | IAD Portugal
#ref: 152068
PROJECTO ECO HOUSE *5 ESTRELAS* - ÚNICO EM PORTUGAL
Um refúgio ecológico junto ao mar — onde o design contemporâneo encontra a natureza
O sucesso deste projeto, perfeitamente alinhado com a natureza e com a crescente sensibilidade ecológica do consumidor moderno, já é evidente: das quatro fases de construção, a primeira encontra-se totalmente RESERVADA, refletindo o reconhecimento e a procura por um estilo de vida sustentável, moderno e em harmonia com o ambiente.
Venha Fazer Parte deste Projeto!
Entre o azul do oceano e o verde tranquilo das florestas, nasce um refúgio singular, concebido para quem procura um estilo de vida sustentável, sofisticado e em plena harmonia com o meio envolvente. Aqui, a arquitetura moderna funde-se com a paisagem natural, criando um ambiente sereno, equilibrado e profundamente inspirador.
Localizado junto à histórica vila de Óbidos, na deslumbrante Costa de Prata, este empreendimento exclusivo oferece o privilégio de viver entre o mar e o lago, num cenário onde o conforto contemporâneo e o respeito pela natureza se complementam.
Mais do que um espaço para habitar, é uma forma de viver — saudável, consciente e integrada no ritmo natural do lugar.
Residências com alma natural:
Composto por 135 moradias elegantes, este projeto foi desenhado para se integrar discretamente na paisagem. Linhas puras, materiais ecológicos e texturas orgânicas criam um ambiente de serenidade e equilíbrio, onde cada casa se abre ao exterior através de amplas janelas e espaços fluidos.
As moradias dispõem de:
•Piscina privada
•Jardins e terraços panorâmicos
•Pacote de mobiliário opcional: €45.000 (IVA incluído)
Os interiores combinam estética contemporânea e eficiência ecológica, com soluções que privilegiam a luz natural e o bem-estar.
Design e sustentabilidade:
•Construção sustentável, com materiais de origem ecológica
•Pavimentos flutuantes em tons neutros e naturais
•Revestimentos em madeira clara de três camadas
•Cozinhas modernas com bancadas Silestone e eletrodomésticos Bosch
•Casas de banho com design minimalista e duche em vidro temperado
•Climatização embutida e silenciosa
•Bomba de calor de alta eficiência energética
•Caixilharia em alumínio com rutura térmica e vidros duplos isolantes
•Sistema de ventilação centralizada e acesso eletrónico inteligente
Cada detalhe reflete o compromisso com o conforto, a durabilidade e a harmonia ambiental.
Natureza, lazer e bem-estar:
O resort foi idealizado para proporcionar vida ao ar livre e contacto direto com a natureza.
Os percursos pedonais e ciclovias serpenteiam entre pinheiros e margens tranquilas, enquanto jardins com espécies autóctones e iluminação suave reforçam a sensação de equilíbrio e serenidade.
Comodidades e serviços:
•Lago natural para banho e lazer
•Centro de bem-estar com spa e ginásio panorâmico
•Restaurante e bar com vista sobre a água
•Campos de padel, trilhos pedestres e ciclovias
•Espaço de coworking totalmente equipado
•Estações de carregamento para veículos elétricos
•Receção e segurança permanentes
•Serviços de gestão, limpeza e manutenção
Tudo foi pensado para proporcionar um estilo de vida sustentável, elegante e relaxado, num cenário de rara beleza natural.
Planeamento e desenvolvimento:
O projeto está estruturado em quatro fases cuidadosamente planeadas, garantindo uma integração harmoniosa e um desenvolvimento equilibrado:
1.Criação do primeiro lago, zonas comuns, restaurante, spa, ginásio e as primeiras moradias à beira da água.
oFase inicial — unidades totalmente RESERVADAS
2.Expansão do segundo lago e novas moradias.
3.Desenvolvimento do terceiro lago e cabanas ecológicas com piscina privada.
4.Conclusão do quarto lago e das áreas de lazer complementares.
Viver em sintonia com a natureza:
Este empreendimento é um tributo ao equilíbrio entre modernidade e natureza.
Um espaço concebido para quem valoriza o design contemporâneo, a sustentabilidade e a liberdade de viver perto do mar, num ambiente calmo, verde e inspirador.
Localização e Acessibilidades:
A moradia esta localizada na Costa Oeste (Silver Coast) numa região rica em cultura e história, com fácil acesso a praias, áreas verdes e uma variedade de serviços e comércio, tornando-a uma escolha atrativa para quem deseja qualidade de vida na cidade de Caldas da Rainha.
- Caldas da Rainha conhecida pelas suas fontes termais e pela cerâmica artística e um estilo de vida vibrante e repleto de cultura;
- Foz do Arelho a 8 Km com uma bela praia que combina o mar e a lagoa, ideal para desportos aquáticos e passeios;
- Óbidos a 10 Km uma vila medieval cercada pelas muralhas do seu Castelo repleta de atividades culturais o ano inteiro;
- Nazaré a 30 km de distância famosa pelas suas ondas gigantes, a Nazaré é um destino popular entre surfistas. Localidade vibrante, repleta de bares, cafés e restaurantes;
Alcobaça a 25 km conhecida pelo Mosteiro Gótico um dos mais importantes do País;
- Servida por duas importantes autoestradas (A8 e A15) que o ligam aos mais importantes pontos da Região e ao Aeroporto Internacional de Lisboa a 80 Km.
✨ Um novo conceito de vida ecológica e moderna, junto ao oceano e à tranquilidade da natureza
Faça já seu contacto e obtenha mais informações e venha fazer parte deste projeto!
+351 961805938
Susana Leal – REALTOR® | IAD Portugal
#ref: 152068
Localização
Amoreira, Óbidos, Leiria
Informação do anúncio
ID do anúncio
1484137
Referência Externa
152068
Atualizado em
19/05/2026 23:34:05
Moradia T2 para Venda em Amoreira
Vídeo