Moradia T5 para venda no Pinhal D’Aberta, Esmoriz, conforto, privacidade e praia ao seu lado
Possibilidade de rentabilidade devido a ter Licença de Alojamento Local!
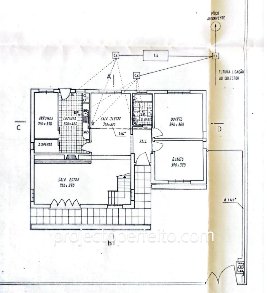
Descubra esta encantadora moradia T5 situada no prestigiado Pinhal D’Aberta, em Esmoriz, onde a tranquilidade da natureza se encontra com a proximidade da praia. Com apenas 2 pisos, 4 frentes e uma arquitetura típica portuguesa, esta casa oferece uma vivência acolhedora, funcional e cheia de charme.
Com um interior pensado para o seu bem-estar, na moradia dispõe de:
-- 3 suítes espaçosas, perfeitas para garantir total privacidade;
-- 2 quartos adicionais com WC de apoio, ideal para famílias grandes ou visitas;
-- WCs completamente remodelados, modernos e elegantes;
-- Sala ampla com lareira e recuperador de calor, criando um ambiente confortável para os dias mais frescos;
-- Cozinha equipada, acompanhada por uma prática despensa.
-- Exterior para viver e desfrutar
-- O espaço exterior foi desenhado para proporcionar momentos únicos:
-- Jardim cuidado, ideal para relaxar ou receber amigos;
-- Piscina com duche de apoio, perfeita para os dias de verão;
-- Zona coberta com churrasqueira e área de refeições, pensadas para jantares ao ar livre;
-- WC completo de apoio à zona exterior;
-- Lavandaria independente;
-- Anexo T1, ótimo para familiares, hóspedes ou até rentabilização;
-- Estacionamento privativo para 4 viaturas.
-- Terreno tem 15 metros de comprimento.
Localização privilegiada, numa zona calma, rodeada de pinhal e apenas a poucos minutos da praia, esta moradia oferece o equilíbrio ideal entre qualidade de vida, natureza e comodidade.
Uma casa completa, com espaço, conforto e uma envolvência única.
Este site utiliza cookies. Ao navegar no site estará a consentir a sua utilização. Para mais informações sobre os cookies pode consultar a
política de privacidade.