Voltar
Apartamento T2 para Venda em São Martinho Foto 1
Apartamento T2 para Venda em São Martinho Foto 2
Apartamento T2 para Venda em São Martinho Foto 3
Apartamento T2 para Venda em São Martinho Foto 4
Apartamento T2 para Venda em São Martinho Foto 5

Apartamento T2 para Venda em São Martinho

540.000 €

Tipo
Apartamento
Negócio
Venda
Ano de Construção
2024
Quartos
2
Casas de Banho
2
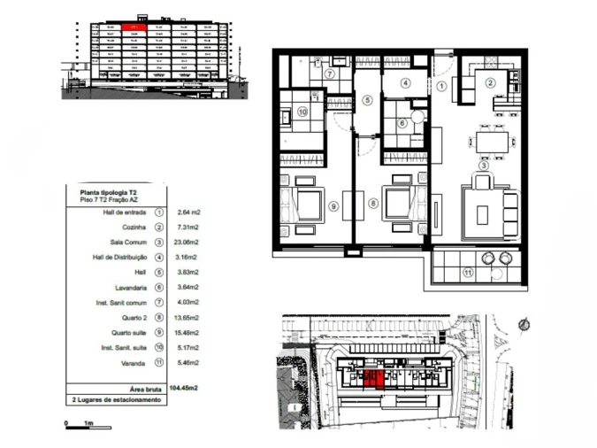
Área Bruta
104 m²
Área Útil
104 m²
Condição
Como novo
Certificado Energético
A
Área do Terreno
5 m²

Apartamento T2 em condominio fechado com piscina, São Martinho, Ilha da Madeira

Apartamento T2 em condomínio fechado com piscina, solario, parque infantil e jardins, localizado em zona de serviços e transportes públicos a 5 minutos do centro da cidade.

O apartamento localizado no 7º piso do edifício é composto por Hall de entrada, sala comum com varanda e cozinha em open space, lavandaria, casa de banho comum, quarto e suite com closet e casa de banho privativa.

Deste apartamento fazem parte ainda 1 estacionamento e uma arrecadação em garagem fechada.

Alguns dos equipamentos contemplados no apartamento são eletrodomésticos TEKA, sistema de aquecimento de águas por bomba de calor com eficiência energética A+, Ar condicionado, Pré-instalação para Veículos elétricos no estacionamento e Ponto de tomada elétrica na arrecadação.

Nesta zona e muito próximo do edificio existem hospital, clinicas, bancos, supermercados, farmácias, escolas, jardins de infância, lojas de ferragens e materiais de construção, McDonalds entre outros. A próximidade em relação ás praias, grandes cnetros comerciais e acessos á via expresso que circunda a ilha.

Não perca mais tempo, venha conhecer a sua próxima casa ou investimento! Contacte-nos já!

Localização

São Martinho, Funchal, Ilha da Madeira

Informação do anúncio

ID do anúncio 1494783
Referência Externa DS-157/25
Atualizado em 19/03/2026 09:35:28
D STYLE MADEIRA - Real Estate AMI 24982
Referência do imóvel: DS-157/25
Phone
Chamada para a rede móvel nacional
D STYLE MADEIRA - Real Estate AMI 24982
Referência do imóvel: DS-157/25
Phone
Chamada para a rede móvel nacional
1 / 40
Apartamento T2 para Venda em São Martinho Foto 1
Apartamento T2 para Venda em São Martinho Foto 2
Apartamento T2 para Venda em São Martinho Foto 3
Apartamento T2 para Venda em São Martinho Foto 4
Apartamento T2 para Venda em São Martinho Foto 5
Apartamento T2 para Venda em São Martinho Foto 6
Apartamento T2 para Venda em São Martinho Foto 7
Apartamento T2 para Venda em São Martinho Foto 8
Apartamento T2 para Venda em São Martinho Foto 9
Apartamento T2 para Venda em São Martinho Foto 10
Apartamento T2 para Venda em São Martinho Foto 11
Apartamento T2 para Venda em São Martinho Foto 12
Apartamento T2 para Venda em São Martinho Foto 13
Apartamento T2 para Venda em São Martinho Foto 14
Apartamento T2 para Venda em São Martinho Foto 15
Apartamento T2 para Venda em São Martinho Foto 16
Apartamento T2 para Venda em São Martinho Foto 17
Apartamento T2 para Venda em São Martinho Foto 18
Apartamento T2 para Venda em São Martinho Foto 19
Apartamento T2 para Venda em São Martinho Foto 20
Apartamento T2 para Venda em São Martinho Foto 21
Apartamento T2 para Venda em São Martinho Foto 22
Apartamento T2 para Venda em São Martinho Foto 23
Apartamento T2 para Venda em São Martinho Foto 24
Apartamento T2 para Venda em São Martinho Foto 25
Apartamento T2 para Venda em São Martinho Foto 26
Apartamento T2 para Venda em São Martinho Foto 27
Apartamento T2 para Venda em São Martinho Foto 28
Apartamento T2 para Venda em São Martinho Foto 29
Apartamento T2 para Venda em São Martinho Foto 30
Apartamento T2 para Venda em São Martinho Foto 31
Apartamento T2 para Venda em São Martinho Foto 32
Apartamento T2 para Venda em São Martinho Foto 33
Apartamento T2 para Venda em São Martinho Foto 34
Apartamento T2 para Venda em São Martinho Foto 35
Apartamento T2 para Venda em São Martinho Foto 36
Apartamento T2 para Venda em São Martinho Foto 37
Apartamento T2 para Venda em São Martinho Foto 38
Apartamento T2 para Venda em São Martinho Foto 39
Apartamento T2 para Venda em São Martinho Foto 40
Clicky