Terreno para Venda em Santa Maria, São Pedro e Matacães
2.274.000 €
Tipo
Terreno
Negócio
Venda
Área Bruta
214760 m²
Condição
Não Aplicável
Certificado Energético
Isento
Área do Terreno
214760 m²
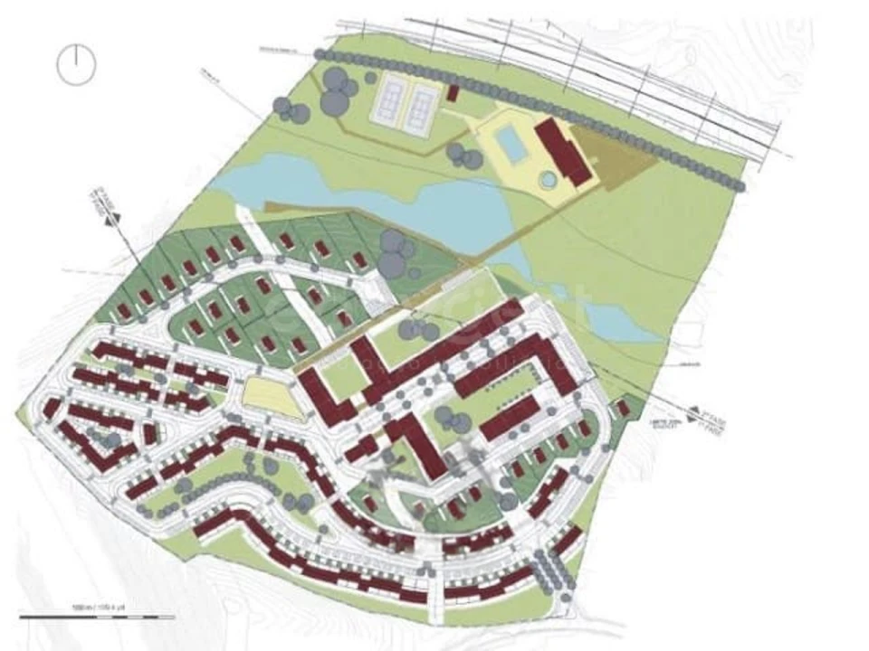
Terreno com loteamento, com 214760m2, perto da entrada da A8, em Torres Vedras
FAÇA CONNOSCO O MELHOR NEGÓCIO
Se quer dedicar-se à construção de uma urbanização de excelência, bem localizada em termos de transportes, serviços e acesso a Lisboa, temos o terreno ideal já com alvará de loteamento.
O terreno com uma área total de 214.760 m2, está localizado em Torres Vedras na Quinta da Gaga.
Tem Alvará de Loteamento válido para uma área de urbanização de 69.553 m2 (Fase 1), tendo 146 lotes constituídos, para moradias e prédios de habitação de baixo porte, num total de 41.200 m2 de área bruta de construção, 232 fogos e 18 espaços comerciais.
Prevê-se ainda o desenvolvimento da Fase 2.
A Quinta da Gaga dista de Torres Vedras de 3,5Km e encontra-se a Nordeste da Cidade, numa zona tranquila e famosa- A Costa da Prata- a 12 km do mar.
A sua localização pode dizer-se estratégica, com excelentes acessibilidades - junto ao nó da A8 e com proximidade à área comercial e de serviços da cidade, onde se encontram o Arena Shopping, Intermarché, Auchan, Leroy Merlin, Espaço Casa.
Condições especiais de leasing com spreads diferenciados.
Tratamos do seu processo de crédito, sem burocracias apresentando as melhores soluções para cada cliente.
Intermediário de crédito certificado pelo Banco de Portugal com o nº 0001802.
Ajudamos com todo o processo! Entre em contacto connosco ou deixe-nos os seus dados e entraremos em contacto assim que possível!
MM97212MC
Localização
Santa Maria, São Pedro e Matacães, Torres Vedras, Lisboa
Este site utiliza cookies. Ao navegar no site estará a consentir a sua utilização. Para mais informações sobre os cookies pode consultar a
política de privacidade.